30 and 36 Inch Electric Downdraft Cooktop Installation Guide
IMPORTANT: Save for local electrical inspector’s use.
COOKTOP SAFETY
Your safety and the safety of others are very important.
We have provided many important safety messages in this manual and on your appliance. Always read and obey all safety messages.
This is the safety alert symbol.
This symbol alerts you to potential hazards that can kill or hurt you and others.
All safety messages will follow the safety alert symbol and either the word “DANGER” or “WARNING.”
These words mean:
DANGER: You can be killed or seriously injured if you don’t immediately follow instructions.
WARNING: You can be killed or seriously injured if you don’t follow instructions.
All safety messages will tell you what the potential hazard is, tell you how to reduce the chance of injury, and tell you what can happen if the instructions are not followed.
INSTALLATION REQUIREMENTS
Tools and Parts
Gather the required tools and parts before starting installation.
Read and follow the instructions provided with any tools listed here.
Tools needed
| • Tape measure • Flat-blade screwdriver • Phillips head screwdriver • Drill • Level • 6″ (15.2 cm) socket extension | • Marker or pencil • Pliers • 1/4″ (6.4 mm) drill bit • Jigsaw • Ratchet with 3/8″ (9.5 mm) socket • 1/4″ (6.4 mm) nut driver |
Parts supplied
- Vent grille
- Pre-filter
- Plenum
- Plenum screw pack
- Downdraft motor assembly
Parts needed
- UL-listed or CSA-approved strain relief for 7/8″ (2.2 cm) knockout.
- A UL-listed or CSA-approved conduit connector for 1/2″ (1.3 cm) trade-size metal-clad conduit
- UL listed wire connectors
- Metal ducting
- Wall cap
6″ (15.2 cm) Round Surface Wall Cap Damper Order Part Number A406
3 1/4″ x 10″ (8.3 cm x 25.4 cm) Surface Wall Cap Damper Order Part Number A403
To order, see the “Assistance or Service” section of the Use and Care Guide. - Vent clamps
Check local codes. Check existing electrical supply.
See the “Electrical Requirements” section.
It is recommended that all electrical connections be made by a licensed, qualified electrical installer.
Location Requirements
IMPORTANT: Observe all governing codes and ordinances. When installing the cooktop, use the minimum dimensions given.
- Use the countertop opening dimensions that are given in these Installation Instructions. Given dimensions are minimum clearances and provide 0″ (0 cm) clearance.
- A grounded electrical supply is required. See the “Electrical Requirements” section.
- If the cabinet has drawers, drawers will need to be removed and drawer fronts installed on the front of the cabinet.
- To eliminate the risk of burns or fire by reaching over the heated surface units, cabinet storage space located above the surface units should be avoided. If cabinet storage is provided, the risk can be reduced by installing a range hood or microwave hood combination that projects horizontally a minimum of 5″ (12.7 cm) beyond the bottom cabinets.
IMPORTANT: An under-counter built-in oven cannot be installed under this product.
Product Dimensions
30″ (76.2 cm) Cooktop – for standard and electric models
A. 22 1 /16″ (56.0 cm) without stainless steel trim or 22 1 /2″ (57.2 cm) or 23″ (58.5 cm) with stainless steel trim (depending on model)
B. Model/serial/rating/clearance plate location
C. 20 53 /64″ (52.9 cm) screw head to screw head
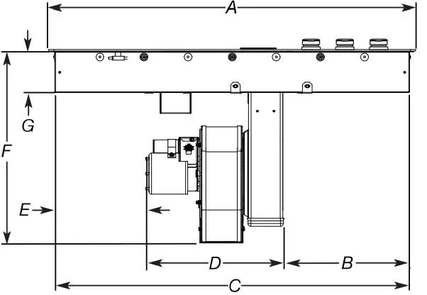
A. 30 7 /8″ (78.4 cm)
B. 12 7 /16″ (31.6 cm)
C. 28 35 /64″ (72.5 cm)
D. 14 29 /64″ (36.7 cm)
E. 1 41 /64″ (4.2 cm)
NOTE: 2″ (5.1 cm) recommended minimum cabinet to motor clearance
F. 17 29 /32″ (45.5 cm)
G. 3 3 /4″ (9.5 cm)
36″ (91.4 cm) Cooktop – for standard and electric models
A. 20 53 /64″ (52.9 cm) screw head to screw head
B. Model/serial/rating/clearance plate location
C. 22 1 /16″ (56.0 cm) without stainless steel trim or 22 1 /2″ (57.2 cm) or 23″ (58.5 cm) with stainless steel trim (depending on model)
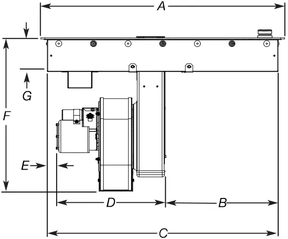
A. 36 5 /16″ (92.3 cm)
B. 11 13 /16″ (30.0 cm)
C. 34 1 /4″ (87.0 cm)
D. 14 29 /64″ (36.7 cm)
E. 8″ (20.3 cm)
NOTE: 2″ (5.1 cm) recommended minimum cabinet to motor clearance
F. 17 29 /32″ (45.5 cm)
G. 3 3 /4″ (9.5 cm)
Cabinet Dimensions
IMPORTANT: If installing a range hood or microwave hood combination above the range, follow the range hood or microwave hood combination installation instructions for dimensional clearances above the cooktop surface.
A. 30″ (76.2 cm) on 30″ (76.2 cm) models 36″ (91.4 cm) on 36″ (91.4 cm) models
B. Side and rear surfaces illustrated by the dashed box above, must meet the minimum clearances to combustible material as defined in dimensions K and L below.
C. 30″ (76.2 cm) minimum clearance between the top of the cooktop platform and the bottom of an uncovered wood or metal cabinet (24″ [61 cm] minimum clearance if the bottom of wood or metal cabinet is covered by not less than 1/4″ [6.4 mm] flame retardant millboard covered with not less than No. 28 MSG sheet steel, 0.015″ [0.04 cm] stainless steel, 0.024″ [0.06 cm] aluminum, or 0.020″ [0.05 cm] copper)
D. 13″ (33 cm) recommended upper cabinet depth
E. 2″ (5.1 cm)
F. 21 1 /8″ (53.7 cm)
G. 18″ (45.7 cm) minimum clearance from upper cabinet to countertop within minimum horizontal clearances to the cooktop
H. Junction box or outlet: 12″ (30.5 cm) minimum from the bottom of the countertop
I. Junction box or outlet: 10″ (25.4 cm) from the right-hand side of the cabinet
J. 28 7 /8″ (73.3 cm) on 30″ (76.2 cm) models 34 9 /16″ (87.8 cm) on 36″ (91.4 cm) models
K. 2 1 /2″ (6.4 cm) minimum distance to the nearest left and right side combustible surface above the cooktop
L. 1 1 /2″ (3.81cm) minimum distance from the back of the cooktop cutout to the nearest back side combustible surface above the cooktop.
NOTE: After making the countertop cutout, some installations may require notching down the base cabinet side walls to clear the cooktop base. To avoid this modification, use a base cabinet with sidewalls wider than the cutout.
- A minimum side clearance of 6″ (15.2 cm) is recommended between the side of the cooktop and the side wall for maximum ventilation performance.
Cutout Dimensions
A. 28 7 /8″ (73.3 cm) maximum on 30″ (76.2 cm) models 34 9 /16″ (87.8 cm) maximum on 36″ (91.4 cm) models
B. 21 1 /8″ (53.7 cm) maximum on both 30″ (76.2 cm) and 36″ (91.4 cm) models
C. 8 11 /32″ (21.2 cm) on 30″ (76.2 cm) models 14 11 /16″ (37.3 cm) on 36″ (91.4 cm) models
D. 6 19 /64″ (16.0 cm) on both 30″ (76.2 cm) and 36″ (91.4 cm) models
E. 2″ (5.1 cm) minimum space to the front edge of the cooktop
F. Floor exhaust option
G. 6 1 /8″ (15.6 cm) for 6″ (15.2 cm) vent system 5 1 /8″ (13 cm) for 5″ (12.7 cm) vent system
H. 8 11 /32″ (21.2 cm) on 30″ (76.2 cm) models 14 11 /16″ (37.3 cm) on 36″ (91.4 cm) models
I. 13 13 /16″ (35.1 cm) on both 30″ (76.2 cm) and 36″ (91.4 cm) models
J. Wall exhaust option
Venting Requirements
IMPORTANT: This cooktop must be exhausted outdoors unless using the Duct-Free Filter Accessory Kit. See the “Venting Methods” section.
- Do not terminate the vent system in an attic, wall, ceiling, or concealed space of a building.
- Use a vent cap.
- The vent system must terminate to the outside.
- Use only a 6″ (15.2 cm) diameter round or 3 1/4″ x 10″(8.3 cm x 25.4 cm) rectangular vent except as follows: For electric cooktops, a 5″ (12.7 cm) diameter round vent may be used for venting straight out the back of the cooktop and directly through the wall for 10 ft (3.0 m) or less.
- Before making cutouts, make sure there is proper clearance within the wall or floor for the exhaust vent.
- Do not cut a joist or stud unless absolutely necessary. If a joist or stud must be cut, then a supporting frame must be constructed.
- The size of the vent should be uniform.
- The vent system must have a damper.
- Use vent clamps to seal all joints in the vent system.
- Use caulking to seal the exterior wall or roof opening around the cap.
- Determine which venting method is best for your application.
For Best Performance:
- Use a 26-gauge minimum galvanized or 25-gauge minimum aluminum metal vent. Poor-quality pipe fittings can reduce airflow. The flexible metal vent is not recommended.
NOTE: Local codes may require a heavier gauge material. - The metal duct may be reduced to 30-gauge galvanized steel or 26-gauge aluminized steel if allowed by local codes.
This reduction is based on information in the International Residential Codes Section M1601.1 (2006 edition). - Do not install 2 elbows together.
- Use no more than three 90° elbows.
- If an elbow is used, install it as far away as possible from the vent motor exhaust opening.
- Make sure there is a minimum of 18″ (45.7 cm) of straight vent between the elbows if more than one elbow is used.
- Elbows too close together can cause excess turbulence that reduces airflow.
- Do not use a 5″ (12.7 cm) elbow in a 6″ (15.2 cm) or 3 1/4″ x 10″ (8.3 cm x 25.4 cm) system.
- Do not reduce to a 5″ (12.7 cm) system after using 6″ (15.2 cm) or 3 1/4″ x 10″ (8.3 cm x 25.4 cm) fittings.
- Avoid forming handmade crimps. Handmade crimps may restrict airflow.
- Use a vent cap for proper performance. If an alternate wall or roof cap is used, be certain the cap size is not reduced and that it has a backdraft damper.
- Use vent clamps to seal all joints in the vent system.
- Use caulking to seal the exterior wall or roof opening around the cap.
The length of the vent system and the number of elbows should be kept to a minimum to provide efficient performance.
The maximum equivalent length of the vent system is 60 ft (18.3 m). For altitudes above 4,500 ft (1372 m), reduce recommended vent run by 20% for best performance.
Cold Weather Installations
An additional backdraft damper should be installed to minimize backward cold airflow.
Makeup Air
Local building codes may require the use of makeup air systems when using ventilation systems greater than the specified CFM of air movement. The specified CFM varies from locale to locale. Consult your HVAC professional for specific requirements in your area.
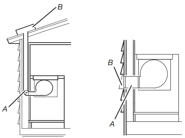
Venting Methods
Common venting methods are shown for a counter-mounted downdraft cooktop. The cooktop may be vented through the wall or floor.
| Option 1 – Roof Venting | Option 2 – Wall Venting |
![]() | |
| A. 6″ (15.2 cm) round roof venting B. Roof cap | A. 6″ (15.2 cm) round wall venting B. Wall cap |
| Option 3 – Venting Between Floor Joist | Option 4 – Venting Behind Cabinet Kick Plate |
![]() | |
| A. Wall cap B. 6″ (15.2 cm) round wall venting | A. Wall cap B. 6″ (15.2 cm) round wall venting |
Concrete Slab Installations – Exhaust Through Wall

| A. Wall cap B. 6″ (15.2 cm) round metal vent C. 16″ (40.6 cm) maximum D. 6″ (15.2 cm) round PVC sewer pipe E. 6″ (15.2 cm) round metal duct F. 6″ (15.2 cm) round PVC coupling G. Concrete slab | H. 6″ (15.2 cm) round PVC sewer pipe I. 6″ (15.2 cm) round 90° PVC sewer pipe elbow J. Tightly pack gravel or sand completely around the pipe. K. 30 ft (9.1 m) max. L. 6″ (15.2 cm) round 90° PVC sewer pipe elbow M. 6″ (15.2 cm) round PVC coupling N. 12″ (30.5 cm) minimum |
Duct-Free Filter Accessory Kit
The Duct-Free Filter Accessory Kit Part Number W10620783 is now available. Duct-Free Filter Accessory Kit is ideal for both new construction and kitchen renovation projects because it provides an easy alternative to the installation of metal ducting and venting in the downdraft system outside the home. The kit includes all required hardware, one filter, and complete installation instructions. Replacement Filter Part Number W10177003 is available.
Calculating Vent System Length
To calculate the length of the system you need, add the equivalent feet (meters) for each vent piece used in the system.
| Vent Piece | 6″ (15.2 cm) Round |
| 45° elbow | 2.5 ft (0.8 m)![]() |
| 90° elbow | 5.0 ft (1.5 m)![]() |
| 6″ (15.2 cm) wall cap | 0.0 ft (0.0 m)![]() |
| 3 1/4″ x 10″ (8.3 cm x 25.4 cm) to 6″ (15.2 cm) transition | 4.5 ft (1.4 m)![]() |
| 6″ (15.2 cm) to 3 1/4″ x 10″ (8.3 cm x 25.4 cm) transition | 1 ft (0.3 m)![]() |
| 3 1/4″ x 10″ (8.3 cm x 25.4 cm) to 6″ (15.2 cm) 90° elbow transition | 5.0 ft (1.5 m)![]() |
| 6″ (15.2 cm) to 3 1/4″ x 10″ (8.3 cm x 25.4 cm) 90° elbow transition | 5.0 ft (1.5 m)![]() |
| 3 1/4″ x 10″ (8.3 cm x 25.4 cm) 90° elbow | 5.0 ft (1.5 m)![]() |
| 3 1/4″ x 10″ (8.3 cm x 25.4 cm) flat elbow | 12.0 ft (3.7 m)![]() |
| 3 1/4″ x 10″ (8.3 cm x 25.4 cm) wall cap | 0.0 ft (0.0 m)![]() |
Example vent system

| 1- 90° elbow | = 5 ft (1.5 m) |
| 8 ft (2.4 m) straight | = 8 ft (2.4 m) |
| 1 – wall cap | = 0 ft (0 m) |
| System length | = 13 ft (3.9 m) |
NOTE: Flexible vent is not recommended. A flexible vent creates back pressure and air turbulence that greatly reduces performance.
Electrical Requirements
WARNING![]()
Electrical Shock Hazard
Disconnect power before servicing.
Use 8 gauge copper wire.
Electrically ground cooktop.
Failure to follow these instructions can result in death, fire, or electrical shock.
If codes permit and a separate ground wire is used, it is recommended that a qualified electrical installer determine that the ground path and wire gauge are in accordance with local codes.
Check with a qualified electrical installer if you are not sure the cooktop is properly grounded.
Make sure that the electrical connection and wire size are adequate and in conformance with the National Electrical Code, ANSI/NFPA 70-latest edition or CSA Standards C22.1-94, Canadian Electrical Code, Part 1 and C22.2 No. O-M91-latest edition, and all local codes and ordinances.
A copy of the above code standards can be obtained from:
National Fire Protection Association
1 Batterymarch Park
Quincy, MA 02169-7471
CSA International
8501 East Pleasant Valley Road
Cleveland, Ohio 44131-5575
Before You Make the Electrical Connection:
To properly install your cooktop, you must determine the type of electrical connection you will be using and follow the instructions provided for it here.
- A 4-wire or 3-wire, single-phase, 120/240 V, 60 Hz, AC-only electrical supply on a separate, 40 A circuit breaker is required for both 30″ (76.2 cm) and 36″ (91.4 cm) models. If a fused system is used, fuse both sides of the line.
- The cooktop should be connected directly to the junction box through the flexible metal conduit. The flexible, armored cable extending from the fuse box or circuit breaker box should be connected directly to the junction box.
- Locate the junction box to allow as much slack as possible between the junction box and the cooktop so that the cooktop can be moved if servicing becomes necessary in the future.
- A UL-listed or CSA-approved conduit connector must be provided at each end of the power supply cable (at the cooktop and at the junction box).
- If the house has aluminum wiring, follow the procedure below:
- Connect the aluminum wiring using special connectors and/or tools designed and UL-listed for joining copper to aluminum.
Follow the electrical connector manufacturer’s recommended procedure. Aluminum/copper connection must conform with local codes and industry-accepted wiring practices.
INSTALLATION INSTRUCTIONS
Prepare Cooktop
Decide on the final location for the cooktop.
WARNING
Excessive Weight Hazard
Use two or more people to move and install the cooktop.
Failure to do so can result in back or another injury.
IMPORTANT: Do not cut the top of the product packaging. This may damage the product.
- Open the product as instructed on the product packaging.
- Remove all items from both sides of the foam and set aside. Take out the packaging foam and set it aside to lay the cooktop on.
IMPORTANT: Do not place packaging foam on knobs. - Using two or more people, remove the cooktop and place the cooktop upside down on the packaging foam, making sure the knobs are not laid on the packaging foam.

- Remove the plenum and plenum screw pack (in the package containing the literature).
- Remove the downdraft motor assembly.
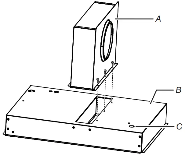
- Place a plenum on the bottom of the cooktop with a round opening to the motor wire harness.
NOTE: All holes are pre-drilled. If all six holes do not line up, reverse the plenum.
A. Plenum
B. Cooktop
C. Motor wire harness - Using a 1/4″ (6.4 mm) nut driver, screw in the six screws from the package containing literature to attach the plenum.
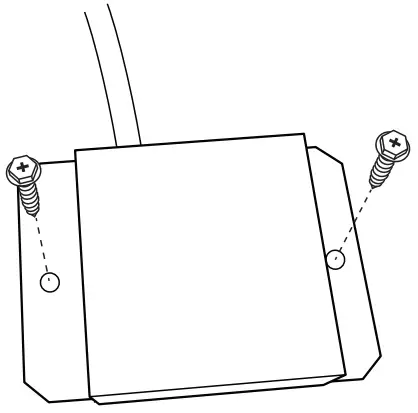
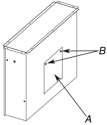
- Remove the access panel from the plenum using a 1/4″ (6.4 mm) nut driver and set it aside.
A. Access panel
B. Two screws - Remove four locking nuts and four washers from the package containing literature.
NOTE: Remove the four protective caps from the motor mounting posts. - Place the blower motor on the plenum and rotate the blower outlet to where it matches the ductwork.
A. Blower motor
B. Plenum - Install and finger-tighten the four washers and locking nuts that were removed through the opening of the motor access panel. Do not over-tighten to allow the motor to rotate.
- Connect the blower electrical connector to the cooktop.

- Using a 1/4″ (6.4 mm) nut driver, screw the electrical junction cover to the burner box with two screws.

Install Foam Strip
- Remove the foam strip from the package containing the literature.
- Remove backing from foam strip.
- Remove one of the four foam strips.
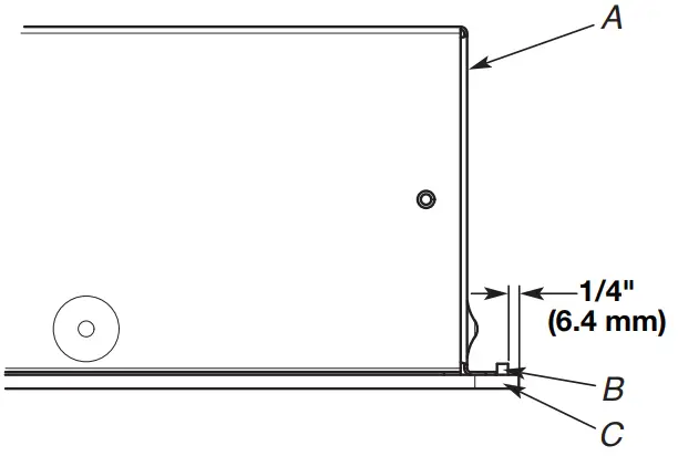
- Apply foam strip adhesive-side down around the bottom of the cooktop, 1/4″ (6.4 mm) from the edge, and cut out excessive material 1/4″ (6.4 mm) from the edge.
NOTE: The foam strip keeps the underside of the cooktop glass free from debris and helps the cooktop sit flat on uneven counters.
A. Cooktop base
B. Foam strip
C. Glass - Repeat steps 3 and 4 for remaining edges.
Install Cooktop
WARNING
Excessive Weight Hazard
Use two or more people to move and install the cooktop.
Failure to do so can result in back or another injury.
- Using two or more people, lift the cooktop from the packaging foam and install the cooktop into the countertop cutout by tilting one end of the cooktop into the cutout, then lowering the other end into the cutout.
NOTE: Make sure that the front edge of the cooktop is parallel to the front edge of the countertop. If repositioning is needed, lift the entire cooktop up from the cutout to avoid scratching the countertop. - Rotate the motor to align with ductwork and attach ducting.
- Fully tighten the motor and, using a 1/4″ (6.4 mm) nut driver, reattach the motor access cover with 2 screws.
IMPORTANT: Verify that the motor access cover is fully tightened and back on the plenum. - Using a wood block between the screw and the countertop, moderately tighten the screws to secure the cooktop.
IMPORTANT: Do not tighten screws directly against the countertop. - Install a grease filter.
NOTES:
• The filter should always be placed at an angle. As you face the front of the cooktop, the top of the filter should rest against the right side of the vent opening.
• The bottom of the filter should rest against the left side of the vent chamber at the bottom.
• If the filter is flat against the fan wall, ventilation effectiveness will be reduced. - Install vent grille.
Make Electrical Connection
WARNING![]()
Electrical Shock Hazard
Disconnect power before servicing.
Use 8 gauge copper wire.
Electrically ground cooktop.
Failure to follow these instructions can result in death, fire, or electrical shock.
This cooktop is manufactured with a frame connected to the bare ground wire. Connect the cooktop cable to the junction box through the UL-listed or CSA-approved conduit connector.
- Disconnect power.
- Remove the junction box cover, if present.
- Connect the flexible cable conduit from the cooktop to the junction box using a UL-listed or CSA-approved conduit connector.
- Tighten screws on the conduit connector if present.
- See the “Electrical Connection Options” chart to complete installation for your type of electrical connection.
Electrical Connection Options
| If your home has: | And you will be connecting to: | Go to Section: |
4-wire![]() | A fused disconnect or circuit breaker box | 4-Wire Cable from Home Power Supply to 4-Wire Cable from Cooktop |
3-wire![]() | A fused disconnect or circuit breaker box | 3-Wire Cable from Home Power Supply to 4-Wire Cable from Cooktop – The U.S. only |
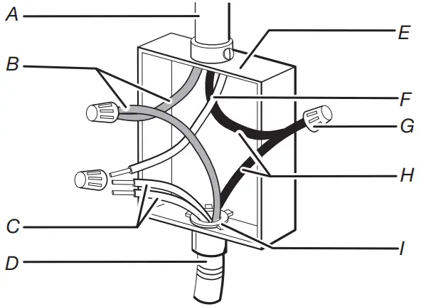
4-Wire Cable from Home Power Supply to 4-Wire Cable from Cooktop
IMPORTANT: Use the 4-wire cable from the home power supply in the U.S. where local codes do not allow grounding through neutral, new branch circuit installations (1996 NEC), mobile homes and recreational vehicles, new construction, and in Canada.
A. Cable from the home power supply
B. Black wires
C. Bare ground wires
D. 4-wire cable from the cooktop
E. Junction box
F. White wires
G. UL listed wire connector
H. Red wires
I. UL-listed or CSA-approved conduit connector
- Connect the two black wires together using the UL-listed wire connectors.
- Connect the two red wires together using the UL-listed wire connectors.
- Connect the two white wires together using the UL-listed wire connectors.
- Connect the green (or bare) ground wire from the cooktop cable to the green (or bare) ground wire (in the junction box) using the UL-listed wire connectors.
- Install junction box cover.
3-Wire Cable from Home Power Supply to 4-Wire Cable from Cooktop – U.S. only
IMPORTANT: Use the 3-wire cable from the power supply where local codes permit connecting the frame-ground conductor to the neutral (white) junction box wire.

A. Cable from the home power supply
B. Red wires
C. White wire and green (or bare) wire (from the cooktop)
D. 4-wire cable from the cooktop
E. Junction box
F. White wire
G. UL listed wire connector
H. Black wires
I. UL-listed or CSA-approved conduit connector
- Connect the two black wires together using the UL-listed wire connectors.
- Connect the two red wires together using the UL-listed wire connectors.
- Connect the green or bare and white cooktop cable wires to the white (neutral) wire in the junction box using the UL-listed wire connectors.
- Install junction box cover.
Complete Installation
- Check that all parts are now installed. If there is an extra part, go back through the steps to see which step was skipped.
- Check that you have all your tools.
- Dispose of/recycle all packaging materials.
- Use a mild solution of liquid household cleaner and warm water to clean the cooktop before use. Dry thoroughly with a soft cloth. For more information, see the Cooktop Care” section of the Use and Care Guide.
- Read the “Cooktop Use” section in the cooktop Use and Care Guide.
- Reconnect power.
NOTE: If the cooktop does not work after turning on the power, check that a circuit breaker has not tripped or a household fuse has not blown. See the “Troubleshooting” section in the Use and Care Guide for further information.
If you need Assistance or Service:
Please reference the “Warranty”.
W11439180C
©2021 All rights reserved. Used under license in Canada.
02/21













A. Plenum
A. Access panel
A. Blower motor

A. Cooktop base



















