KitchenAid W11439180C 30 Inch and 36 Inch Electric Downdraft Cooktop

Tools and Parts
Gather the required tools and parts before starting installation. Read and follow the instructions provided with any tools listed here.
Tools needed
- Tape measure
- Flat-blade screwdriver
- Phillips head screwdriver
- Drill
- Level
- 6″ (15.2 cm) socket extension
- Marker or pencil
- Pliers
- 1/4″ (6.4 mm) drill bit
- Jigsaw
- Ratchet with 3/8″ (9.5 mm) socket
- 1/4″ (6.4 mm) nut driver
Parts supplied
- Vent grille
- Pre-filter
- Plenum
- Plenum screw pack
- Downdraft motor assembly
Parts needed
- A UL listed or CSA approved strain relief for 7/8″ (2.2 cm) knockout.
- A UL listed or CSA approved conduit connector for 1/2″ (1.3 cm) trade-size metal-clad conduit
- UL listed wire connectors
- Metal ducting
- Wall cap
- 6″ (15.2 cm) Round Surface Wall Cap Damper Order Part Number A406
- 31/4″ x 10″ (8.3 cm x 25.4 cm) Surface Wall Cap Damper Order Part Number A403
- To order, see the “Assistance or Service” section of the Use and Care Guide.
- Vent clamps
- Check local codes. Check existing electrical supply.
- See the “Electrical Requirements” section.
- It is recommended that all electrical connections be made by a licensed, qualified electrical installer.
Location Requirements
IMPORTANT: Observe all governing codes and ordinances. When installing cooktop, use minimum dimensions given.
- Use the countertop opening dimensions that are given with these Installation Instructions. Given dimensions are minimum clearances and provide 0″ (0 cm) clearance.
- Grounded electrical supply is required. See the “Electrical Requirements” section.
- If cabinet has drawers, drawers will need to be removed and drawer fronts installed on front of cabinet.
- To eliminate the risk of burns or fire by reaching over the heated surface units, cabinet storage space located above the surface units should be avoided. If cabinet storage is provided, the risk can be reduced by installing a range hood or microwave hood combination that projects horizontally a minimum of 5″ (12.7 cm) beyond the bottom cabinets.
IMPORTANT: An undercounter built-in oven cannot be installed under this product.
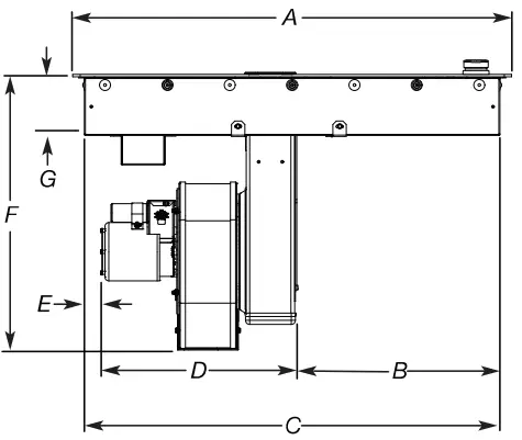
Product Dimensions
- 30″ (76.2 cm) Cooktop – for standard and electric models

- A. 221/16″ (56.0 cm) without stainless steel trim or 221/2″ (57.2 cm) or 23″ (58.5 cm) with stainless steel trim (depending on model)
- B. Model/serial/rating/clearance plate location
- C. 2053/64″ (52.9 cm) screw head to screw head

- A. 307/8″ (78.4 cm)
- B. 127/16″ (31.6 cm)
- C. 2835/64″ (72.5 cm)
- D. 1429/64″ (36.7 cm)
- E. 141/64″ (4.2 cm)
NOTE: 2″ (5.1 cm) recommended minimum cabinet to motor clearance - F. 1729/32″ (45.5 cm)
- G. 33/4″ (9.5 cm)
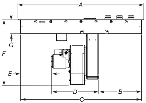
- 36″ (91.4 cm) Cooktop – for standard and electric models

- A. 2053/64″ (52.9 cm) screw head to screw head
- B. Model/serial/rating/clearance plate location
- C. 221/16″ (56.0 cm) without stainless steel trim or 221/2″ (57.2 cm) or 23″ (58.5 cm) with stainless steel trim (depending on model)

- A. 365/16″ (92.3 cm)
- B. 1113/16″ (30.0 cm)
- C. 341/4″ (87.0 cm)
- D. 1429/64″ (36.7 cm)
- E. 8″ (20.3 cm)
NOTE: 2″ (5.1 cm) recommended minimum cabinet to motor clearance - F. 1729/32″ (45.5 cm)
- G. 33/4″ (9.5 cm)
Cabinet Dimensions
IMPORTANT: If installing a range hood or microwave hood combination above the range, follow the range hood or microwave hood combination installation instructions for dimensional clearances above the cooktop surface.

- A. 30″ (76.2 cm) on 30″ (76.2 cm) models 36″ (91.4 cm) on 36″ (91.4 cm) models
- B. Side and rear surfaces illustrated by dashed box above, must meet the minimum clearances to combustible material as defined in dimensions K and L below.
- C. 30″ (76.2 cm) minimum clearance between top of cooktop platform and bottom of uncovered wood or metal cabinet (24″ [61 cm] minimum clearance if bottom of wood or metal cabinet is covered by not less than 1/4″ [6.4 mm] flame retardant millboard covered with not less than No. 28 MSG sheet steel, 0.015″ [0.04 cm] stainless steel, 0.024″ [0.06 cm] aluminum, or 0.020″ [0.05 cm] copper)
- D. 13″ (33 cm) recommended upper cabinet depth
- E. 2″ (5.1 cm)
- F. 211/8″ (53.7 cm)
- G. 18″ (45.7 cm) minimum clearance from upper cabinet to countertop within minimum horizontal clearances to cooktop
- H. Junction box or outlet: 12″ (30.5 cm) minimum from bottom of countertop
- I. Junction box or outlet: 10″ (25.4 cm) from right-hand side of cabinet
- J. 287/8″ (73.3 cm) on 30″ (76.2 cm) models 349/16″ (87.8 cm) on 36″ (91.4 cm) models
- K. 21/2″ (6.4 cm) minimum distance to nearest left and right side combustible surface above cooktop
- L. 11/2″ (3.81cm) minimum distance from the back of the cooktop cutout to the nearest back side combustible surface above cooktop.
NOTE: After making the countertop cutout, some installations may require notching down the base cabinet side walls to clear the cooktop base. To avoid this modification, use a base cabinet with sidewalls wider than the cutout.
- A minimum side clearance of 6″ (15.2 cm) is recommended between side of cooktop and side wall for maximum ventilation performance.
Cutout Dimensions

- A. 287/8″ (73.3 cm) maximum on 30″ (76.2 cm) models 349/16″ (87.8 cm) maximum on 36″ (91.4 cm) models
- B. 211/8″ (53.7 cm) maximum on both 30″ (76.2 cm) and 36″ (91.4 cm) models
- C. 811/32″ (21.2 cm) on 30″ (76.2 cm) models 1411/16″ (37.3 cm) on 36″ (91.4 cm) models
- D. 619/64″ (16.0 cm) on both 30″ (76.2 cm) and 36″ (91.4 cm) models
- E. 2″ (5.1 cm) minimum space to front edge of cooktop
- F. Floor exhaust option
- G. 61/8″ (15.6 cm) for 6″ (15.2 cm) vent system 51/8″ (13 cm) for 5″ (12.7 cm) vent system
- H. 811/32″ (21.2 cm) on 30″ (76.2 cm) models 1411/16″ (37.3 cm) on 36″ (91.4 cm) models
- I. 1313/16″ (35.1 cm) on both 30″ (76.2 cm) and 36″ (91.4 cm) models
- J. Wall exhaust option
Venting Requirements
IMPORTANT: This cooktop must be exhausted outdoors unless using the Duct-Free Filter Accessory Kit. See the “Venting Methods” section.
- Do not terminate the vent system in an attic, wall, a ceiling, or a concealed space of a building.
- Use a vent cap.
- Vent system must terminate to the outside.
- Use only a 6″ (15.2 cm) diameter round or 31/4″ x 10″ (8.3 cm x 25.4 cm) rectangular vent except as follows: For electric cooktops, a 5″ (12.7 cm) diameter round vent may be used for venting straight out the back of the cooktop and directly through the wall for 10 ft (3.0 m) or less.
- Before making cutouts, make sure there is proper clearance within the wall or floor for the exhaust vent.
- Do not cut a joist or stud unless absolutely necessary. If a joist or stud must be cut, then a supporting frame must be constructed.
- The size of the vent should be uniform.
- The vent system must have a damper.
- Use vent clamps to seal all joints in the vent system.
- Use caulking to seal exterior wall or roof opening around the cap.
- Determine which venting method is best for your application.
For Best Performance:
- Use 26-gauge minimum galvanized or 25-gauge minimum aluminum metal vent. Poor quality pipe fittings can reduce airflow. Flexible metal vent is not recommended.
NOTE: Local codes may require a heavier gauge material. - Metal duct may be reduced to 30-gauge galvanized steel or 26-gauge aluminized steel if allowed by local codes. This reduction is based on information in the International Residential Codes Section M1601.1 (2006 edition).
- Do not install 2 elbows together.
- Use no more than three 90° elbows.
- If an elbow is used, install it as far away as possible from the vent motor exhaust opening.
- Make sure there is a minimum of 18″ (45.7 cm) of straight vent between the elbows if more than one elbow is used.
- Elbows too close together can cause excess turbulence that reduces airflow.
- Do not use a 5″ (12.7 cm) elbow in a 6″ (15.2 cm) or 31/4″ x 10″ (8.3 cm x 25.4 cm) system.
- Do not reduce to a 5″ (12.7 cm) system after using 6″ (15.2 cm) or 31/4″ x 10″ (8.3 cm x 25.4 cm) fittings.
- Avoid forming handmade crimps. Handmade crimps may restrict airflow.
- Use a vent cap for proper performance. If an alternate wall or roof cap is used, be certain the cap size is not reduced and that it has a backdraft damper.
- Use vent clamps to seal all joints in the vent system.
- Use caulking to seal exterior wall or roof opening around the cap.
- The length of vent system and number of elbows should be kept to a minimum to provide efficient performance.
- The maximum equivalent length of the vent system is 60 ft (18.3 m). For altitudes above 4,500 ft (1372 m), reduce recommended vent run by 20% for best performance.
Cold Weather Installations
An additional backdraft damper should be installed to minimize backward cold air flow.
Makeup Air
Local building codes may require the use of makeup air systems when using ventilation systems greater than specified CFM of air movement. The specified CFM varies from locale to locale. Consult your HVAC professional for specific requirements in
your area.
Venting Methods
Common venting methods are shown for a counter-mounted downdraft cooktop. The cooktop may be vented through the wall or floor.
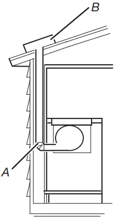
- Option 1 – Roof Venting

- A. 6″ (15.2 cm) round roof venting
- B. Roof cap
- Option 2 – Wall Venting

- A. 6″ (15.2 cm) round wall venting
- B. Wall cap
- Option 3 – Venting Between Floor Joist

- A. Wall cap
- B. 6″ (15.2 cm) round wall venting
- Option 4 – Venting Behind Cabinet Kick Plate

- A. Wall cap
- B. 6″ (15.2 cm) round wall venting
Concrete Slab Installations – Exhaust Through Wall

- A. Wall cap
- B. 6″ (15.2 cm) round metal vent
- C. 16″ (40.6 cm) maximum
- D. 6″ (15.2 cm) round PVC sewer pipe
- E. 6″ (15.2 cm) round metal duct
- F. 6″ (15.2 cm) round PVC coupling
- G. Concrete slab
- H. 6″ (15.2 cm) round PVC sewer pipe
- I. 6″ (15.2 cm) round 90° PVC sewer pipe elbow
- J. Tightly pack gravel or sand completely around pipe.
- K. 30 ft (9.1 m) max.
- L. 6″ (15.2 cm) round 90° PVC sewer pipe elbow
- M. 6″ (15.2 cm) round PVC coupling
- N. 12″ (30.5 cm) minimum
Duct-Free Filter Accessory Kit
The Duct-Free Filter Accessory Kit Part Number W10620783 is now available. Duct-Free Filter Accessory Kit is ideal for both new construction and kitchen renovation projects because it provides an easy alternative to the installation of metal ducting and venting in the downdraft system outside the home. The kit includes all required hardware, one filter and complete installation instructions. Replacement Filter Part Number W10177003 is available.
Calculating Vent System Length
To calculate the length of the system you need, add the equivalent feet (meters) for each vent piece used in the system.


Example vent system

NOTE: Flexible vent is not recommended. Flexible vent creates back pressure and air turbulence that greatly reduce performance.
Electrical Requirements
WARNING
- Electrical Shock Hazard
- Disconnect power before servicing.
- Use 8 gauge copper wire.
- Electrically ground cooktop.
- Failure to follow these instructions can result in death, fire, or electrical shock.
Safety Instruction
- If codes permit and a separate ground wire is used, it is recommended that a qualified electrical installer determine that the ground path and wire gauge are in accordance with local codes.
- Check with a qualified electrical installer if you are not sure the cooktop is properly grounded.
- Make sure that the electrical connection and wire size are adequate and in conformance with the National Electrical Code, ANSI/NFPA 70-latest edition or CSA Standards C22.1-94, Canadian
- Electrical Code, Part 1 and C22.2 No. O-M91-latest edition, and all local codes and ordinances.
- A copy of the above code standards can be obtained from:
- National Fire Protection Association
- 1 Batterymarch Park
- Quincy, MA 02169-7471
- CSA International
- 8501 East Pleasant Valley Road
- Cleveland, Ohio 44131-5575
Before You Make the Electrical Connection:
To properly install your cooktop, you must determine the type of electrical connection you will be using and follow the instructions provided for it here.
- A 4-wire or 3-wire, single-phase, 120/240 V, 60 Hz, AC only electrical supply on a separate, 40 A circuit breaker is required for both 30″ (76.2 cm) and 36″ (91.4 cm) models. If a fused system is used, fuse both sides of the line.
- The cooktop should be connected directly to the junction box through the flexible metal conduit. The flexible, armored cable extending from the fuse box or circuit breaker box should be connected directly to the junction box.
- Locate the junction box to allow as much slack as possible between the junction box and the cooktop so that the cooktop can be moved if servicing becomes necessary in the future.
- A UL listed or CSA approved conduit connector must be provided at each end of the power supply cable (at the cooktop and at the junction box).
- If the house has aluminum wiring, follow the procedure below:
- Connect the aluminum wiring using special connectors and/or tools designed and UL listed for joining copper to aluminum.
Follow the electrical connector manufacturer’s recommended procedure. Aluminum/copper connection must conform with local codes and industry-accepted wiring practices.
Prepare Cooktop
Decide on the final location for the cooktop.
WARNING
- Excessive Weight Hazard
- Use two or more people to move and install cooktop.
- Failure to do so can result in back or other injury.
IMPORTANT: Do not cut top of product packaging. This may damage the product.
- Open product as instructed on product packaging.
- Remove all items from both sides of the foam and set aside. Take out packaging foam and set aside to lay cooktop on. IMPORTANT: Do not place packaging foam on knobs.
- Using two or more people, remove cooktop and place the cooktop upside down on the packaging foam, making sure the knobs are not laid on the packaging foam.

- Remove plenum and plenum screw pack (in the package containing literature).
- Remove downdraft motor assembly.
- Place plenum on bottom of cooktop with round opening to the motor wire harness.
NOTE: All holes are pre-drilled. If all six holes do not line up, reverse plenum.
- A. Plenum
- B. Cooktop
- C. Motor wire harness
- Using a 1/4″ (6.4 mm) nut driver, screw in the six screws from the package containing literature to attach plenum.
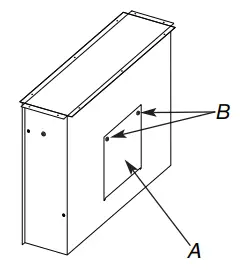
- Remove access panel from plenum using a 1/4″ (6.4 mm) nutdriver and set aside.

- A.Access panel
- B.Two screws
- Remove four locking nuts and four washers from the packagecontaining literature.
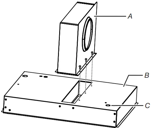
NOTE: Remove the four protective caps from the motormounting posts. - Place blower motor on plenum and rotate blower outletto where it matches the ductwork.

- A.Blower motor
- B.Plenum
- Install and finger-tighten the four washers and locking nutsthat were removed through the opening of the motor accesspanel. Do not over-tighten to allow for motor to rotate.
- Connect blower electrical connector to cooktop.

- Using a 1/4″ (6.4 mm) nut driver, screw the electrical junctioncover to the burner box with two screws.

Install Foam Strip
- Remove foam strip from the package containing literature.
- Remove backing from foam strip.
- Remove one of the four foam strips.
- Apply foam strip adhesive-side down around bottom ofcooktop, 1/4″ (6.4 mm) from edge and cut out excessivematerial 1/4″ (6.4 mm) from edge.
NOTE: The foam strip keeps the underside of the cooktopglass free from debris and helps the cooktop sit flat onuneven counters.
- A.Cooktop base
- B.Foam strip
- C.Glass
- Repeat steps 3 and 4 for remaining edges.
Install Cooktop
WARNING
- Excessive Weight Hazard
- Use two or more people to move and install cooktop.
- Failure to do so can result in back or other injury.
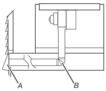
- Using two or more people, lift the cooktop from packaging foam and install the cooktop into the countertop cutout by tilting one end of the cooktop into the cutout, then lowering the other end into the cutout.
NOTE: Make sure that the front edge of the cooktop is parallel to the front edge of the countertop. If repositioning is needed, lift entire cooktop up from cutout to avoid scratching the countertop. - Rotate motor to align with duct work and attach ducting.
- Fully tighten motor and, using a 1/4″ (6.4 mm) nut driver, reattach motor access cover with 2 screws. IMPORTANT: Verify that the motor access cover is fully tightened and back on the plenum.
- Using a wood block between the screw and the countertop,moderately tighten the screws to secure the cooktop.
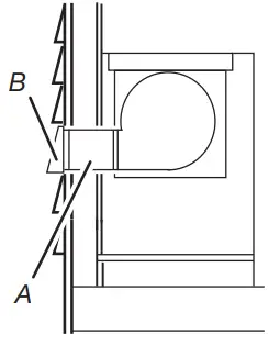
IMPORTANT: Do not tighten screws directly against thecountertop. - Install grease filter.
NOTES:- The filter should always be placed at an angle. As youface the front of the cooktop, the top of the filter should rest against the right side of the vent opening.
- The bottom of the filter should rest against the left side of the vent chamber at the bottom.
- If the filter is flat against the fan wall, ventilation effectiveness will be reduced.
- Install vent grille.
Make Electrical Connection
WARNING
- Electrical Shock Hazard
- Disconnect power before servicing.
- Use 8 gauge copper wire.
- Electrically ground cooktop.
- Failure to follow these instructions can result in death, fire, or electrical shock.
This cooktop is manufactured with the frame connected to the bare ground wire. Connect the cooktop cable to the junction box through the UL listed or CSA approved conduit connector.
- Disconnect power.
- Remove junction box cover, if present.
- Connect the flexible cable conduit from the cooktop to the junction box using a UL listed or CSA approved conduit connector.
- Tighten screws on conduit connector if present.
- See the “Electrical Connection Options” chart to complete 1. Disconnect power.
2. Remove junction box cover, if present.
3. Connect the flexible cable conduit from the cooktop to the junction box using a UL listed or CSA approved conduit connector.
4. Tighten screws on conduit connector if present.
5. See the “Electrical Connection Options” chart to complete installation for your type of electrical connection.
Electrical Connection Options

4-Wire Cable from Home Power Supply to 4-WireCable from Cooktop
IMPORTANT: Use the 4-wire cable from home power supply in the U.S. where local codes do not allow grounding through neutral, new branch circuit installations (1996 NEC), mobile homes and recreational vehicles, new construction, and in Canada.

- A.Cable from home power supply
- B.Black wires
- C.Bare ground wires
- D.4-wire cable from cooktop
- E.Junction box
- F.White wires
- G.UL listed wire connector
- H.Red wires
- I.UL listed or CSA approvedconduit connector
- Connect the two black wires together using the UL listed wire connectors.
- Connect the two red wires together using the UL listed wire connectors.
- Connect the two white wires together using the UL listed wire connectors.
- Connect the green (or bare) ground wire from the cooktop cable to the green (or bare) ground wire (in the junction box) using the UL listed wire connectors.
- Install junction box cover.
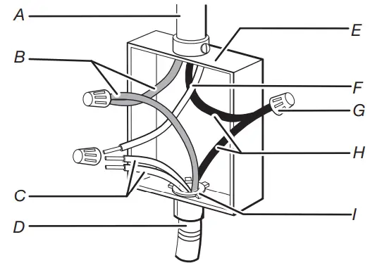
3-Wire Cable from Home Power Supply to 4-Wire Cable from Cooktop – U.S. only
IMPORTANT: Use the 3-wire cable from power supply where local codes permit connecting the frame-ground conductor to the neutral (white) junction box wire.

- A. Cable from home power supply
- B. Red wires
- C.White wire and green (or bare)wire (from cooktop)
- D.4-wire cable from cooktop
- E.Junction box
- F.White wire
- G.UL listed wire connector
- H.Black wires
- I.UL listed or CSA approvedconduit connector
- Connect the two black wires together using the UL listed wire connectors.
- Connect the two red wires together using the UL listed wire connectors.
- Connect the green or bare and white cooktop cable wires to the white (neutral) wire in the junction box using the UL listed wire connectors.
- Install junction box cover.
Complete Installation
- Check that all parts are now installed. If there is an extra part, go back through the steps to see which step was skipped.
- Check that you have all your tools.
- Dispose of/recycle all packaging materials.
- Use a mild solution of liquid household cleaner and warm water to clean cooktop before use. Dry thoroughly with a soft cloth. For more information, see the “Cooktop Care” section of the Use and Care Guide.
- Read the “Cooktop Use” section in the cooktop Use and Care Guide.
- Reconnect power.
NOTE: If the cooktop does not work after turning on the power, check that a circuit breaker has not tripped or a household fuse has not blown. See the “Troubleshooting” section in the Use and Care Guide for further information.
If you need Assistance or Service:
Please reference the “Warranty”.

































