bemodern Flare Collection Timber Electric Fire

Product Information
The Chimney Breast Suite is a pre-assembled product that includes a main surround, a middle assembly, a top assembly, and LED mood lighting. The product is designed to be installed in rooms without coving installed, and it can also be installed in rooms with ceiling heights greater than the stated dimensions. However, if the top assembly is required to finish flush with the ceiling, additional steps may be necessary.
The product requires a power supply for the fire and LED mood lighting, and it is recommended that a qualified electrician conduct any electrical parts of the installation. The product also requires a single wall socket for the operation of the fire and an additional single wall socket for the LED mood lighting.
Product Usage Instructions
- Scan the QR code for an overview of the installation steps before starting the installation.
- Unpack the boxes and place the pre-assembled parts to one side ready for installing. Take care when positioning the pre-assembled parts, make sure the surface is clear of sharp objects and other debris that may damage the painted surfaces and edges. Consider using the surplus cardboard packaging to help protect the painted surfaces and edges while the pre-assembled parts are waiting to be fitted.
- Ensure that all the parts and fixings listed above are present before disposing of the packaging. If anything is missing, call Customer Services on 01914300901 (Option 4) or email [email protected].
- Before starting the installation, decide on the installation location and ensure that there is enough space to install the Chimney Breast Suite. The minimum ceiling height required for installation with and without the top assembly is 2200mm.
- Route the power supply to the fire and LED mood lighting, as well as the TV if it is part of the installation. A qualified electrician should conduct any electrical parts of the installation.
- Install the product with the help of a second person, as it is a two adult person lift.
Technical Specification
Note: All dimensions stated above are for installation in rooms without coving installed. The chimney breast can be installed in rooms with ceiling heights greater than the dimensions stated, however the Top Assembly (1), will not finish flush with the ceiling, should this be required. See P5, for further information.
Separate instructions are provided for the following: Fire & LED Mood Lighting.
| Description | Dimensions | |||||
| A | B | C | D | E | F | |
| 63” Chimney Breast Suite | 2150mm | 1600mm | 1352mm | 1366mm | 214mm | 260mm |
| Description | Supplied Pre-assembled Parts | ||
| 1 | 2 | 3 | |
| 63” Chimney Breast Suite | Top Assembly (1) | Middle Assembly (2) | Main Surround (3) |
| Unboxed Weight (Kg) | 10.1Kg | 32.4Kg | 51Kg |
What Is In The Boxes?
- Box- A Main Surround (3) -Including the fire.
- Box- B Middle Assembly (2) & Top Assembly (1)
Also included in Box –A is the Main Surround (3) fixing kit.
Also included in Box –B are the boxed Middle Assembly (2) & Top Assembly (1) fixing kits & LED Mood Light accessories.
Unpack the boxes and place the pre-assembled parts to one side ready for installing.
Note: Take care when positioning the pre-assembled parts, make sure the surface is clear of sharp objects and other debris that may damage the painted surfaces and edges. Consider using the surplus cardboard packaging to help protect the painted surfaces and edges whilst the pre-assembled parts are waiting to be fitted.
Note: The Middle Assembly (2) is not flat on the bottom edge and will want to tip back if placed on this edge- if you have the room consider placing the Middle Assembly (2) flat on the back edges of the assembly.
DO NOT dispose of the packaging until you have checked and made sure all the parts and fixings listed above are present. If anything is missing please call Customer Services on 01914300901 (Option 4) or email us at [email protected].
Installation – Introduction & Preparation
Note: The Chimney Breast Suite is a two adult person lift. A second person will be required to lift and support the pre-assembled parts during installation. Before the Chimney Breast Suite can be installed, consideration will need to be given to routing the power supply to the Fire and LED Mood Lighting, as well as the TV should this be part of the installation. This will affect the stages of the installation process. We advise a qualified electrician conduct any electrical parts of the installation.
Note: A Single wall socket is required for the operation of the Fire. An additional single wall socket is required for the LED Mood Lighting.
Installation – Preparation
Decide on the installation location and before starting the installation ensure that there is enough space to install the Chimney Breast Suite. See Page 3, for the product overall sizes.
Note: The minimum ceiling height the Chimney Breast Suite can be installed with and without the Top Assembly (1) is 2200mm. See Page 3.
Note: The installation of the Top Assembly (1) is optional and allows for the Chimney Breast Suite to finish flush to the ceiling, should this be required. It is designed to work with ceiling heights between 2200-2500mm.
Note: If the Top Assembly (1) is required and is to be installed where the ceiling height is above 2500mm then the Wall Hanging Brackets will need to be installed at a height of 2430mm from the floor to the top edge of the bracket. At this dimension the Top Assembly (1) will be fully extended- Height 2500mm. Reduce the bracket installation height by up to 300mm (Maximum), should you wish to position the Top Assembly (1) at an alternative height.
Diagram 1
Once you have decided how the Top Assembly (1) will be fitted, begin the installation by marking a vertical line from the floor to ceiling in the centre of the installation location.
As shown in Diagram 1.
Installation – ( Optional) Top Assembly (1)
If the Top Assembly (1) is not required, please proceed to Page 8.
Locate the 1 x Top Assembly (1) and the 2 X Wall Hanging Brackets. (Boxed separately inside Box B).
Begin by measuring the inside dimension- width “Y” of the Top Assembly (1), subtract 20mm from the width “Y” to give you the Wall Hanging Brackets- installation width “X”. As shown in Diagrams 2 & 3.
Diagram 2
Using both the ceiling and centreline as guides, mark the installation position of the 2 x Wall Hanging Brackets. As shown in Diagram 3. Alternatively, if the room height exceeds 2500mm, install the 2 x Wall Hanging Brackets at the desired height as detailed on Page 5, **Note.
Note: Ensure that the 2 x Wall Hanging Brackets are orientated so the open part of the bracket is facing towards the floor before fixing, as shown in Diagram 4.

Once marked, drill the fixing positions. Depending on the wall medium, it may be necessary to plug the drilled holes. See Page 15 ‘Important Note’.
Finally screw and secure the 2 x Wall Hanging Brackets to the wall using suitable screws. See Page 15 ‘Important Note’.
Note: The Top Assembly (1) is a two adult person lift. A second person will be required to lift and support the assembly during installation. Lightly mark the centre of the Top Assembly (1), along the top edge and mark the ceiling approximately 155mm back from the wall on the centreline. Offer the Top Assembly (1) to the wall at a height of approximately 50mm from the ceiling, ensuring both the Wall Hanging Brackets are inside the Top Assembly (1).
As shown in Diagram 5.
Note: Ensure that the Fixing Brackets that protrude from bottom of the Top Assembly (1) point towards the floor on installation to ensure the correct orientation. See Diagram 6 Slide the Top Assembly (1) up to the ceiling, ensuring that the pre-installed 2 x Mantel Brackets on the inside of the Top Assembly (1) engage with the 2 X Wall Hanging Brackets, previously fixed to the wall.
Once in position, centralise and mark the fixing points in the Fixing Brackets onto the wall, then remove the Top Assembly (1) by sliding the part down by approximately 50mm and releasing from the 2 x Wall Hanging Brackets and lift away from the wall.
Once marked, drill the fixing positions. Depending on the wall medium, it may be necessary to plug the drilled holes. See Page 15 ‘Important Note’.
Offer the Top Assembly (1) back to the wall centrally to the installation location at a height of approximately 50mm from the ceiling and sliding vertically up to engage with the 2 x Wall Hanging Brackets.
Finally screw and secure the Top Assembly (1) to the wall using suitable screws. See Page 15 ‘Important Note’. As shown in Diagram 7.
Installation – Main Surround (3)- Preparation
Note: The Main Surround (3) is a two adult person lift. A second person will be required to lift and support the assembly during installation. Locate & unscrew the Main Surround (3) from the transit board. (Note: The transit board is no longer required.) Also remove the transit screws from rear of the suite. These are identified by a text transit screw sticker and/or red square transit screw stickers. Trail fit the Main Surround (3) in the installation position ensuring that the Main Surround (3) is central to the vertical centreline, previously drawn and remove any obstructions, i.e. remove the skirting and cut to shape to allow the Main Surround (3) to finish flush to the wall. As shown in Diagrams 8 & 9.
Installation – Main Surround (3)
Locate the 2 X Wall Hanging Brackets, 2 X Mantel Brackets and 4 x 16mm Screws. (Bagged separately in Box-A)
Fix the 2 x Mantel Brackets to the inside of each surround leg using the 4 X 16mm Screws, making sure that the brackets are flush with the rear of each surround leg. As shown in Diagram 10.
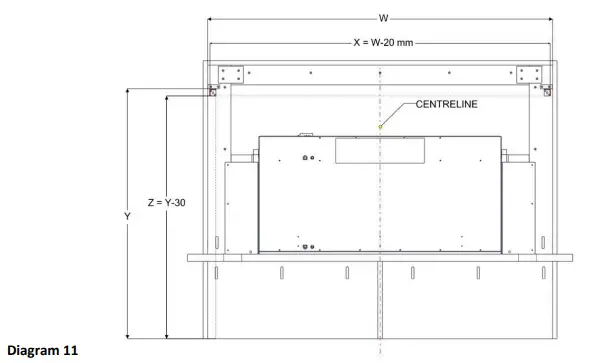
Measure the inside dimension- width “W” of the Main Surround (3)- subtract 20mm from the width “W” to give you the Wall Hanging Brackets- installation width “X”. As shown in Diagram 11.
Measure the dimension “Y” from the bottom of the suite to the underside of the L bracket attached to the legs of the suite, subtract 30mm from length “Y” to give you the Wall Hanging Brackets, installation height, “Z”. As shown in Diagram 11.
Once dimensions X and Y have been calculated, carefully mark out the positions of the 2 X Wall Hanging Brackets, working out from the previous drawn centre line. As shown in Diagram 12.
Once marked, drill the fixing positions. Depending on the wall medium, it may be necessary to plug the drilled holes. See Page 15 ‘Important Note’.
Finally screw and secure the 2 X Wall Hanging Brackets to the wall using suitable screws. See Page 15 ‘Important Note’.
Note: The Main Surround (3) is a two adult person lift. A second person will be required to lift and support the assembly during installation.
Note: Before proceeding further, consider how the cables for the Fire will be routed, care must be taken not to crush or damage the cables when positioning the Main Surround (3).
Once the cables have been routed correctly, lift the mantel onto the Wall Hanging Brackets and confirm the Main Surround (3) is securely held in place, ensuring it is central to the installation location and level.
As shown in Diagram 13.
Note: In the unlikely event of the fire requiring repair or replacement, it may be necessary to remove the whole mantel from the wall position, this can be done by lifting the mantel straight up, off the fixing brackets located at the rear. To replace the suite please follow the steps above.
NB. Should a defect be discovered and in the event of a suite being permanently fixed to the wall the householder will be responsible for any costs incurred.
Installation – Middle Assembly (2)
Note: If installing a TV on the front of the font of Middle Assembly (2)- Please read P15 before proceeding further.
Note: It is critical to ensure that the Main Surround (3) is LEVEL before proceeding further, this will effect the installation of the Middle Assembly (2).
Once the Main Surround (3) is level, locate the Middle Assembly (2) and the 2 x Middle Assembly Brackets (long version of the brackets, boxed separately inside Box B) and fix to the correct side of the Middle Assembly (2), using the 8 x No.8 x 15mm Domed- Head Screws supplied.
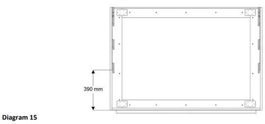
As a starting point the brackets need to be fixed 6mm in, from the rear edge of Middle Assembly (2). As shown in Diagram 14. Use the horizontal slots to fix through, as this will allow for adjustment later, if required. See Page 17.
Tip: The 2 x Middle Assembly Brackets are handed, ensure that the Left and Right Hand Middle Assembly Brackets are orientated so that the “fingers” are pointing vertically down. As shown in Diagrams 14 & 15.

Note: Before proceeding further double check the measurements, as shown in Diagram 15, and adjust accordingly if required.
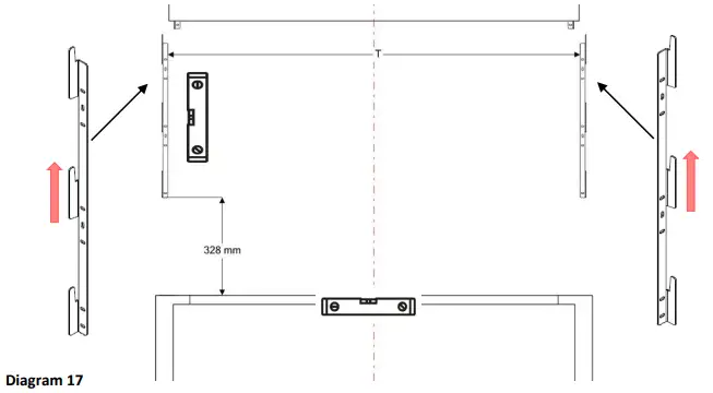
Next measure the inside dimension- width “S” of the Middle Assembly (2) subtract 48mm from the width “S” to give you the Wall Brackets – installation width “T”. As shown in Diagram 16 & 17.

Locate the 2 x Wall Brackets- (short version of the brackets, boxed separately inside Box B)
Tip: The 2 x Wall Brackets are handed, ensure that the Left and Right Hand Wall Brackets are orientated so that the “fingers” are pointing vertically up and are on the outside of the installation.
As shown in Diagram 16.
Using the centreline as a guide, the setting out dimensions previously calculated and shown in Diagram 17 and a spirit level, proceed to mark out the fixing locations of the left-hand and right-hand Wall Brackets, on the wall.
Note: A minimum of 3 screw points per bracket is recommended.
Once marked, drill the fixing positions. Depending on the wall medium, it may be necessary to plug the drilled holes. See Page 15 ‘Important Note’.
Finally screw and secure the 2 X Wall Brackets- to the wall using suitable screws, ensuring they are aligned vertically using a spirit level. See P15 ‘Important Note’.
Note-The LED Mood Lights and Driver come pre-installed on the Middle Assembly (2) Place the Middle Assembly (2), as close as possible, in front of the Main Surround (3) and ensure the LED Mood Lighting power cable is routed and connected to a power supply. As shown in Diagram 18.

Tip: Masking tape the LED Mood Lighting power cable around the centre of Top Assembly (1), before lifting into position, this will help keep the cable out of the way during installation of the Middle Assembly (2).
Note: The Middle Assembly (2) is a two adult person lift. A second person will be required to lift and support the assembly during installation.
With a person standing either side of the Middle Assembly (2), carefully lift the Middle Assembly (2) on to the top of the Main Surround (3), positioning it as close to the wall as possible and centralising on the top of the Main Surround (3). As shown in Diagrams 19 & 20.

Lift the Middle Assembly (2) vertically up approximately 40mm and back towards the wall so the Left-hand and Right-hand Middle Assembly Wall Brackets slot over the 2 X Wall Brackets attached to the Wall.
As shown in Diagram 21.

Lower the Middle Assembly (2) down, the installation is complete when the Middle Assembly (2) meets the top of Main Surround (3). As shown in Diagram 22.
Note: The product has been designed so there is a definite break line between the fascia panel on the Main Surround (3) and the fascia panel on the Middle Assembly (2).
Note: The brackets have some small adjustment left and right should you wish to adjust the position of the Middle Assembly (2). This can be achieved by tapping the side of the Middle Assembly (2), with the palm of your hand. If this does not solve the problem remove the Middle Assembly (2) and double check over the measurements on Pages 11 -14 and make any adjustments necessary.
Note: For any problems during installation, please refer to Troubleshooting Page 17 for additional advice before contacting customer services.
Installation: Hanging A Television
Note: Please follow the manufacturers individual instruction for TV hanging, however for guidance please see below:
- The Chimney Breast Suite can accommodate TV’s up to 55” in size. Always double check the TV size against the dimensions supplied on Page 3, before beginning the installation.
- If you are planning mount a TV to the face of Middle Assembly (2) – The TV Hanging Bracket and TV should weigh no more than 25KG- should the weight exceed this consider using an TV Arm Bracket instead, that can be fixed directly to the wall behind.
- Depending on installation requirements consider cutting an access hole in the face of Middle Assembly (2) – to allow access to any power and cable connections, that may be situated behind.
- To cut an access hole, we suggest laying the Middle Assembly (2) flat on the floor- To avoid damage DO NOT place the painted side down, instead lay it on its back, supporting the rear face, with the painted side facing up.
- Next, plan the layout out of the TV and TV Hanging Bracket accordingly, considering that any access hole will need to be located behind the TV and TV Hanging Bracket installation, so it is hidden behind the TV once installed.
- Once planned cut the access into the Middle Assembly (2) – using appropriate tools ensuring that there is sufficient access to any power and cable connections behind the Middle Assembly (2) – once installed.
- Fix the TV Hanging Bracket to the Middle Assembly (2) as per manufacturers instructions.
- Once attached, place to the TV to one side in a safe place and proceed with the installation of the Middle Assembly (2), as described on Pages 11-14.
- Once the Middle Assembly (2) and TV Hanging Bracket are securely fitted in position, proceed with hanging the TV as per the TV and Bracket manufacturers instructions.
Note: In the unlikely event that the Chimney Breast Suite requires working on by a member of our maintenance team- it will be the customers responsibility to remove the TV from the Chimney Breast Suite to provide the necessary access required and to avoid damage to the appliance.
IMPORTANT NOTE:
Wall fixings (i.e. screws/wall plugs etc.) are not supplied as these are crucially dependent upon the type of wall and surface the Chimney Breast Suite is going to be fixed too.
The installer is therefore responsible for ensuring that suitable fittings are used as well as individual fitting situations and environments. All mechanical fixings, for holding the Chimney Breast Suite in position, must be secured to a solid wall or structure.
Maintenance
WARNING: Before any maintenance or whilst cleaning the exterior of the fireplace, the unit should be disconnected from the power supply until it has fully cooled down.
Cleaning the Fire
Cleaning or polishing products are not recommended. Fingerprints or other marks on the front glass panel can be removed by using a piece of soft, damp, lint-free cloth with a good quality household glass cleaner. The front glass panel should always be completely dried with a clean, lint-free cloth or paper towel.
CAUTION: Abrasive cleaners should not be used on the glass panel. Liquids should not be sprayed directly onto any surface of the unit.
Cleaning the Furniture
Wipe up spills with a clean damp cloth. When cleaning the furniture, we also recommend using a clean damp cloth. Avoid using cleaners or polishes that contain abrasives, solvents, acid and ammonia.
Troubleshooting
Should you have any queries regarding this product please contact Customer Services on 01914300901 (Option 4) or email us at [email protected]
Recycling
All cardboard packing is recyclable.
Troubleshooting
| Problem/Query | Solution |
| What is the lowest ceiling height that the product can be installed in? | 2200mm-. See Page 3. |
| Can the product be installed right up the ceiling? | Yes. (Min ceiling height 2200mm, Max ceiling height 2500mm) |
| There are parts or fixings missing. | Please call customer services on – 01914300901 (Option 4) |
| What kind of electrical supply will I need? | A single wall socket is required for the operation of the Fire An additional single socket is required for the LED Mood Lighting. If installing a TV consider the extra electrical supply required for this appliance. We advise a qualified electrician conduct any electrical parts of the installation. |
| The LED Mood Lighting is not working or visible. | Follow the separate LED Mood Lighting instructions. |
| The Fire is not working | Follow the separate Fire instructions. |
| Are wall fixings included? | Wall fixings (i.e. screws/wall plugs etc.) are not supplied as these are crucially dependent upon the type of wall and surface the chimney breast is going to be fixed too. The installer is therefore responsible for ensuring that suitable fittings are used as well as individual fitting situations and environments. All mechanical fixings, for holding the chimney breast in position, must be secured to a solid wall or structure. |
| Adjustment of Middle Assembly (2) to centrally position. | The brackets have some small adjustment left and right should you wish to adjust the position of the Middle Assembly (2). This can be achieved by tapping the side of the Middle Assembly (2), with the palm of your hand. If this does not solve the problem remove the Middle Assembly (2) and double check over the measurements on Pages 11 -14 and make any adjustments necessary. |
| The Middle Assembly (2) is not sitting flush to the wall. | The Middle Assembly (2) finish to the wall is very much dependant on the flatness of the wall you are fixing it to. It is normal to have a small shadow line between The Middle Assembly (2) and the wall after installation. If you wish to try and reduce the gap, remove the Middle Assembly (2) and adjust the position of the brackets previously attached to the Middle Assembly (2), not the wall. See Page 11. |




















