
IMI Hydronic Engineering TVI 19 Transfero TVI Connect

IN THE BOX

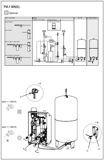
INSTALLATION INSTRUCTION








DNe
Table 6: DNe Transfero TVI
| C | TVI_19.1 H | TVI_19.2 H | TVI_25.1 H | TVI_25.2 H |
| L max: 5 m | DNe 32 | 50/40 | 32 | 50/40 |
| Hst | m all | < 128 / ≥ 128 | all | < 182 / ≥ 182 | |
| DNd 25 | 25 | 25 | 25 | |
| Hst | m all | all | all | all | |
| L max: 10 m | DNe 40/32 | 65/50 | 40/32 | 65/50 |
| Hst | m < 88 / ≥ 88 | < 87 / ≥ 87 | < 136 / ≥ 136 | < 136 / ≥ 136 | |
| DNd 25 | 25 | 25 | 25 | |
| Hst | m all | all | all | all | |
| L max: 30 m | DNe 50/40 | 65/50 | 50/40 | 65/50 |
| Hst | m < 101 / ≥ 101 | < 134 / ≥ 134 | < 150 / ≥ 150 | < 188 / ≥ 188 | |
| DNd 32 | 32 | 32 | 32 | |
| Hst | m all | all | all | all |

WIRING



ABOUT COMPANY
- w+ww.imi-hydronic.com
- We reserve the right to introduce technical alterations without prior notice.
- IMI Hydronic Engineering AG
- Mühlerainstrasse 26
- CH-4414 Füllinsdorf
- Tel. +41 (0)61 906 26 26
- www.imi-hydronic.com


















