PENTAIR CFPS-LM-P7-R0 Aurora Compact Fire Pump System

SAFETY SYMBOLS & TERMINOLOGY
| A hazardous situation which, if not avoided, could result in minor or moderate injury. |
| A hazardous situation which, if not avoided, could result in serious injury. |
| A hazardous situation which, if not avoided, will result in serious injury. |
COMPACT FIRE PUMP SYSTEM – (LIFTING MANUAL)
| This manual is meant only for lifting of the system. This manual should be kept in a safe place and ALWAYS be available to the QUALIFIED operating and maintenance personnel. |
For more information regarding the system, please refer “Operation & Maintenance manual” of the same. A basic understanding of the system and its components can be built by reading the following heading.
BASIC KNOW-HOW OF COMPACT FIRE PUMP SYSTEM

Fairbanks Morse Nijhuis offers a complete fire pump system that has a small footprint, ideal for buildings with limited space. This pre-engineered system is factory assembled and ready to start, with only base grouting and pipe and power connections to be completed at site.
- Ideal for Smaller Areas – Fits through a 36″ Doorway*
- Multiple Starting Methods for the Fire Pump with Optional Automatic Transfer Switch
- Optional City Bypass & Test loop
*Bypass loop (if there) need to be removed to pass through 36” door.
LIFTING
Prior to lifting and moving the system, find out the following:
- Total weight of the system.
- Maximum outside dimensions.
Total weight of the system :
It should be known for minimum capacity requirements of forklift. The table 1.1 shows the dimensions and weight (excluding the weight of pump and fire pump controller) of a Compact Fire Pump System with given flow capacity. The minimum capacity requirements of forklift can be determined by adding the maximum weight of controller (B) & fire pump (C) to the maximum weight of the rest of the system (A). The maximum weight of controller & fire pump can be figured out from the below tables 1.2 & 1.3 respectively.
Maximum weight of the system, T=A+B+C
Now,
Minimum capacity of the forklift should be, Cm= [T + Forklift Load Centre adjustment*] lbs
*Refer Forklift catalogue for details.
| Maximum weight of the system is to be used for calculation of minimum capacity requirements of forklift. The actual weight of the system may however vary as per the system flow. Refer catalogue & drawing(s) for accurate dimension & weight data. |
| Flow Range | Option | Length | Width | Height | Max. Weight (A) |
| 450-750GPM | AO | 135 | 46 | 84 | 1960 |
| 450-750GPM | B | 122 | 46 | 79 | 1560 |
| 450-750GPM | T | 122 | 35 | 84 | 1570 |
| 450-750GPM | NO | 109 | 35 | 79 | 1170 |
| 250-400GPM | AO | 121 | 44 | 81 | 1350 |
| 250-400GPM | B | 111 | 44 | 68 | 1110 |
| 250-400GPM | T | 111 | 35 | 81 | 1130 |
| 250-400GPM | NO | 101 | 35 | 68 | 890 |
| 50-200GPM | AO | 102 | 39 | 69 | 1050 |
| 50-200GPM | B | 96 | 39 | 68 | 870 |
| 50-200GPM | T | 96 | 35 | 68 | 900 |
| 50-200GPM | NO | 89 | 35 | 68 | 740 |
Table 1.1
Here, AO- All Options, B- With Bypass Loop, T-With Test Loop & NO- With Test Header Only
| Controller Make | Transfer Switch | Max. Weight |
| Eaton | YES | 655 |
| Eaton | NO | 375 |
| Firetrol | YES | 650 |
| Firetrol | NO | 415 |
| Master Controller | YES | 900 |
| Master Controller | NO | 650 |
| Metron | YES | 570 |
| Metron | NO | 385 |
| Tornatech | YES | 900 |
| Tornatech | NO | 550 |
Table 1.2
| Fire Pump | Max. Weight |
| 2”1591CF | 387 |
| 3”1591AF | 328 |
| 3”1591BF | 367 |
| 3”1591CF | 386 |
| 3”1593F | 595 |
| 3”1592AF | 566 |
| 3”1593BF | 514 |
| 4”1594F | 1201 |
| 4”1594BF | 1201 |
| 4”1593F | 1171 |
| 4”1591BF | 480 |
| 4”1591CF | 446 |
| 4”1592F | 700 |
| 4”1593BF | 700 |
| 4”1593CF | 574 |
Table 1.3
Maximum outside dimensions
The maximum outside dimensions of the system can be found from the table 1.1. The following pictures show the length, width & height of a Compact Fire pump System

Height is the maximium vertical dimension of the system measured from the bottomost point of skid to the topmost point of fire pump controller / flowmeter whatever the case may be.
| Actual maximum dimensions of the system may vary as per the system flow. The dimensions shown in the table above are the maximum values in the mentioned flow. |
PROCEDURE

- Only Forklift or lull forklift should be used for lifting & moving the system. Avoid lifting system by slings, eye-bolts etc.
- Ensure that forks are level and high enough to go under the skid but it should not hit the load.
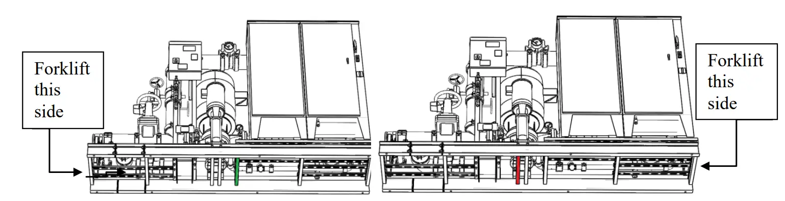
- System can be lifted from either side by forklift. However preference should be given to lift it from controller end.
- The length of the forks should be such that it should cross the red shaded channel below the pump if the system is lifted from controller end. However, it should cross the green shaded channel if lifted from the other end as shown below. Not
complying with this may result in toppling of the system causing damage to personnel or property
- Lift the load straight up until it is clear & then tilt back and drive with the load against the backrest.
- Look for overhead hazards both when lifting a load and while travelling.
- Watch that the load or forks do not catch on adjacent loads or obstructions.
| Systems with Bypass line may be unstable during lifting. Use of slings/additional weight on the controller side is recommended in such case for balancing purpose otherwise toppling may occur. |
GENERAL SAFETY INSTRUCTIONS
Strictly obey to the following instructions to prevent personal injuries and/or equipment damages
- Existing regulations for the prevention of accidents must be followed.
- Wearing of gloves, hard-toed boots and hard hats is obligatory for all transport works.
- Wooden cases, crates, pallets or boxes may be unloaded with forklift trucks or using hoisting slings, depending on their size, weight and construction.
- A first aid kit as per the Health and Safety Authority’s travel kit recommendations with all the contents properly checked for expiry.
- A safely stowed fire extinguisher according to the industrial safety norms.
- Operator of the hoist equipment must follow proper rigging procedure.
- For stable positioning of the unit without any risk of accident, always make sure that the pump system remains in horizontal position during transport and cannot slip out of the transport suspension arrangement.
- For transport purposes the unit may be secured on suitable pallets or sleds.
- All loose and movable parts must be secured.
- Examine lifting devices to determine their load capacity. Employers must have these examinations conducted in accordance with the regulations, for example, before using a lifting device for the first time.
- Do not attempt to transport the unit until you have read the safety precautions in this publication.
- Lifting of the system should be only carried out when the unit has been brought to standstill position.
| Always disconnect the power to the system and make sure that it should not be switched on accidentally before attempting to move the system. |
| Motor or Controller lifting holes are not meant for entire system lifting. |

SAFETY SYMBOLS & TERMINOLOGY
CAUTION
WARNING



















