
FAIRBANKS NIJHUIS™

MODEL 1620F
END SUCTION FIRE PUMPS
INSTRUCTION, INSTALLATION, MAINTENANCE AND REPAIR MANUAL
Part #FMF-03-330 | © 2012 Pentair Ltd. | 12/26/12![]()
1620F End Suction Fire Pumps
NOTE! To the installer: Please make sure you provide this manual to the owner of the equipment or to the responsible party who maintains the system.
IMPORTANT NOTE TO INSTALLER:
This manual contains important information about the installation, operation and safe use of this product. This information should be given to the owner/operator of this equipment.
ATTENTION: SAFETY WARNINGS:
Read and understand all warnings before installation or servicing pump.
CALIFORNIA PROPOSITION 65 WARNING:
WARNING:
This product and related accessories contain chemicals known to the State of California to cause cancer, birth defects or other reproductive harm.
OPERATIONAL LIMITS: *
| Maximum Operating Pressure: | See UL Listings for max pressure by model. |
| Maximum Operating Temperature: | 150°F (66°C) |
Pumps are not to be operated outside the operating envelope as stated on the nameplate and the maximum case working pressure as published in the product catalog for the relevant model. Shaft couplings are selected for the maximum power output of the driver, however, the pump is not to be operated outside its normal limits.
All pumps are designed to allow 1/16″ for corrosion. Should this value be exceeded, the pump should be taken out of service.
The 1620F Pumps are not designed for use in potentially explosive atmospheres.
* See ASTM A126/ANSI B16.1 for pressure/temperature ratings of flanges.
ELECTRICAL SAFETY:
WARNING: Electrical Shock Hazard
All electrical connections are to be made by a qualified electrician in accordance with all codes and ordinances. Failure to follow these instructions could result in serious personal injury, death or property damage.
WARNING: Electrical Overload Hazard
Ensure all motors have properly sized overload protection. Failure to follow these instructions could result in serious personal injury, death or property damage.
WARNING: Sudden Start-Up Hazard
Disconnect and lock out power source before servicing. Failure to follow these instructions could result in serious personal injury, death or property damage.
HIGH TEMPERATURE SAFETY:
WARNING: Hot Surface Hazard
If pumping hot water, ensure guards or proper insulation is installed to protect against skin contact with hot piping or pump components. Failure to follow these instructions could result in serious personal injury, death or property damage.
HIGH PRESSURE SAFETY:
INSTALLATION
WARNING: Hot Surface Hazard
Some pump surfaces may be subject to elevated temperatures; there is no required operator contact necessary while the pump is operating.
WARNING: Spraying Water Hazard
When servicing pump replace all gaskets and seals. Do not reuse old gaskets or seals. Failure to follow these instructions could result in serious personal injury, death or property damage.
WARNING: High Pressure Hazard
Do not exceed the maximum pressure. Install properly sized pressure relief valves in system. Failure to follow these instructions could result in serious personal injury, death or property damage.
WARNING: Expansion Hazard
Water expands when heated. Install properly sized thermal expansion tanks and relief valves. Failure to follow these instructions could result in serious personal injury, death or property damage.
Read and understand all safety warnings at the beginning of the manual before beginning installation or any repair work.
PUMP LOCATION. You probably have spent considerable time planning where your pump will be located. However, you may have overlooked some factor that may affect pump operation or efficiency.
The pump should be located as close to the liquid source as possible so that the suction line can be short and direct. It should be located in a clean, open area, where it is easily accessible for inspection, disassembly and repair. Pumps installed in dark, dirty areas or in cramped locations are often neglected, which can result in premature failure of both the pump and the driver.
The Fairbanks Nijhuis must be installed horizontally. Install isolating valves on each side of pump so pump maintenance can be performed without draining the system. Special mounting requirements may be required if the pump is to be mounted near a noise or vibration sensitive area.
These pumps are intended for use in applications where the water supply to the suction connection is permanently flooded. Operation of these pumps under static suction lift condition is strictly prohibited.
The installation must be evaluated to ensure that the net positive suction head available (NPSHA) meets or exceeds the requirements of NFPA 20.

FOUNDATION. The foundation for your pump must be sufficiently rigid to absorb any vibration and stress encountered during pump operation. A raised foundation of concrete is preferable for most floor mounted pumps. The raised foundation assures a satisfactory base, protects against flooding, simplifies moisture drainage, and facilitates keeping the area clean.
Your pump should be firmly bolted to the foundation, whether it is a raised concrete base, steelwork wall, or structural member. The mounting bolts or lag screws should be accurately located per the applicable Fairbanks Nijhuis dimension sheet. Refer to Fig. 1.
LEVELING THE PUMP. Leveling the pump will require enough shims to support the base plate near the foundation bolts and at any points of the base plate carrying a substantial weight load. The shims should be large enough to allow a gap of 3/4″ to 1-1/2″ between the base plate and foundation for grouting.
WARNING: Lifting Hazard
The motor and pump assembly may be very heavy. Use extreme caution and safe lifting equipment during the lifting procedure. Failure to follow these instructions could result in serious personal injury, death or property damage.
IMPORTANT: The pump base must be set level to avoid any mechanical difficulties with the pump or motor. The 1620F pump was properly aligned, if supplied with a motor, at the factory. However, since the pump base is flexible, it may spring and twist during shipment. Do not pipe the pump until it is realigned. Realign the base after piping is completed and after the pump is grouted in and bolted down. NOTE: It may be necessary to readjust the alignment from time to time while the unit and foundation are new. Realignment will prevent premature bearing failure, excessive vibration or shaft failure.
Ensure that proper hydronic accessories such as pressure relief valves, thermal expansion tanks and flow/pressure control devices are installed in the system. Consult the responsible party for your system to ensure these devices are installed and of the proper size.
GROUTING THE INSTALLATION. Grouting the base plate prevents lateral movement of the base plate and improves the vibration absorbing characteristics of the foundation by increasing its mass. A wooden dam should be constructed around the base plate to contain the grout while it is being poured. The dam can be built tight against the base plate or slightly removed from it as desired. Refer to Fig. 2. The entire base plate should be completely filled with non shrinkable type grout. The grout should be puddled frequently to remove any air bubbles from the grout.
ROTATION. Pump rotation is clockwise when viewed from the back of the motor. An arrow is also located on the pump to show the direction of rotation.
WARNING: Sudden Start-Up Hazard
Disconnect and lock-out power source before servicing. Failure to follow these instructions could result in serious personal injury, death or property damage.
INITIAL ALIGNMENT OF THE FLEXIBLE COUPLING. The pump and driver were accurately aligned at the factory. However, it is impossible to maintain this alignment during shipping and handling. Therefore it will be necessary for you to realign the pump and driver. Flexible couplings are not universal joints. They should not be used to compensate for misalignment of the pump and motor shafts. Their function is to transmit power from the driver to the pump while compensating for thermal expansion and shaft end movement. The coupling faces should be far enough apart so that they do not make contact when the motor shaft is forced to the limit of the bearing clearance toward the pump shaft.
In order to properly align the coupling, you will need a taper gauge or set of feeler gauges and a straight edge. There are two types of misalignment encountered with flexible couplings: angular misalignment, in which the shafts are not parallel, and parallel misalignment where the shafts are parallel but not on the same axis.
To check angular alignment, insert a feeler gauge or taper gauge at any four places 90-degrees apart around the coupling halves. Insert shims under the driver feet until the same reading is obtained at all four check points. The pump and driver will then be in angular alignment.
To check parallel alignment, a straight edge should be held against the edges of the coupling halves at any four places 90° apart around the coupling. The straight edge should be parallel to the pump and driver shafts at all times. Insert shims until the straight edge lies flat against both coupling halves at all four checkpoints. The pump and driver will then be in proper parallel alignment. Refer to Fig. 3.
For fine alignment, 3500 RPM operation, for all other coupler types.
A dial indicator should be used when greater alignment accuracy is required. Use the following alignment tolerances unless specified otherwise by the coupling manufacturer. On sleeve type couplings make sure there is at least 1/8″ end clearance between the sleeve and the two coupling halves.
To check angular misalignments, mount the dial indicator base to the coupling half, and position the dial indicator button on the front or rear face of the opposite coupling half. Set the dial to zero, rotate both coupling halves together, making sure the indicator button always indicates off the same spot. Misalignment values within 0.004 inches TIR per inch of coupler radius is permissible.
To check parallel misalignment, mount the dial indicator base to one coupling half, or shaft, and position the dial indicator button on the outside diameter of the opposite coupling half. Set the dial to zero. Rotate both coupling halves together, making sure the indicator button always indicates off the same spot. Misalignment within 0.004 inches TIR is permissible.
WARNING: Coupling Failure
Do not operate pump with coupling out of alignment. Ensure final coupling alignment according to coupling manufacturer’s instructions. Coupling, pump or driver failure may occur. Failure to follow these instructions could result in serious personal injury or death and property damage.
Pumps are supplied by the manufacturer with adequate guards for the coupling. The installer is to ensure that any additional guarding required shall be compliant with EN 953.
PIPING:
SUCTION PIPING. The suction piping should be short and direct with as few elbows and fittings as possible to keep head loss (from friction) at a minimum. A horizontal suction line should have a gradual rise to the pump, and pass under any interfering piping. The suction pipe diameter must be at least the diameter specified by NFPA 20. All joints must be tight to maintain prime on the pump.
INCREASERS & REDUCERS. For installations where pump suction flange is smaller than system piping: Eccentric reducers should be installed directly at the suction nozzle, with the taper at the bottom to prevent air pockets from forming. Straight taper reducers should never be used in a horizontal suction line because of the air pocket that is formed at the leg of the reducer and the pipe. Refer to Fig. 4.
For installations where pump suction flange is larger than system piping: Either concentric or eccentric reducers can be used, and should be installed directly at the suction nozzle.
DISCHARGE PIPING. Discharge piping should also be short and direct with as few elbows and fittings as possible to keep head loss (from friction) at a minimum. The discharge pipe diameter must be at least the diameter specified by NFPA 20.
DISCHARGE VALVES. The discharge piping must include a check valve and an indicating isolation valve. The check valve should be located between the isolation valve and the pump. If an increaser (or reducer) is used in the discharge piping, the increaser (or reducer) should be installed between the pump nozzle and the check valve. The check valve protects against a reverse flow of the liquid if the driver fails. Refer to Fig. 5.
PRESSURE RELIEF VALVE. All End Suction Fire Pump Models are provided with a pressure relief valve by the pump manufacturer to prevent an over pressure condition. For rotodynamic pumps, these valves are to set in the field at a point between the duty pressure and shut-off pressure to prevent a no-flow condition. For rotary positive displacement pumps, the pressure relief valve is factory set to 10% above the duty pressure and sealed with a safety wire, and are not to be field adjusted.

SPECIAL CONSIDERATIONS FOR DIESEL ENGINES:
ENGINE FLUIDS. Many diesel engines are shipped dry and must have lubricating oil and coolant added prior to start-up. It is the installer’s responsibility to assure that all fluid levels are correct to avoid damage to the engine.
DIESEL ENGINE WIRING. The End Suction Fire Pump controller must be wired to the diesel engine’s junction box. This is usually a simple matter of connecting like-numbered terminals of each with the correct wire gauge size. Refer to panel manufacturer’s wiring diagram.
The electric solenoid valve in the diesel engine cooling loop piping must be wired to the engine junction box. Either red wire goes to terminal 1; the other red wire goes to terminal 11; the green wire is grounded to the engine block.
Engines may have 12-volt or 24-volt systems, but all batteries furnished are 12-volt. Since dual battery sets are required by N.F.P.A. 20, two batteries are furnished for 12-volt systems and four batteries are furnished for 24-volt systems.
Fairbanks Nijhuis’s standard battery racks are designed to keep the batteries elevated off the floor for housekeeping purposes. They must be placed on a suitable level surface as close to the diesel engine as possible. Each rack holds two batteries; one rack is required for 12-volt systems and two racks for 24-volt systems. If two racks are used, they are to be placed side-by-side and not stacked.

Electrolyte is not furnished by Fairbanks Nijhuis; it must be procured locally (approximately 16 quarts per battery).
Electrolyte must be added and the batteries charged at a low rate for at least 24 hours prior to start-up. It is recommended for safety reasons that the batteries be filled with electrolyte only after being placed in their permanent positions in the pump room.
DANGER:
Can Cause Blindness or Severe Burns
Batteries contain sulphuric acid electrolyte. This is a highly CORROSIVE POISON. They also produce a mixture of hydrogen and oxygen gasses which will EXPLODE if ignited.
WHEN WORKING ON OR NEAR BATTERIES, MIXING OR POURING ACID SOLUTIONS, ALWAYS WEAR PROTECTIVE CLOTHING AND PROTECT EYES WITH SAFETY GOGGLES. KEEP SPARKS, FLAMES AND CIGARETTES AWAY.
KEEP BATTERIES AND ACID OUT OF THE REACH OF CHILDREN.
If acid contacts skin or eyes, flush affected parts with clean water immediately and repeat for 15 minutes. Then seek prompt medical attention.
![]()
If acid is taken internally, call medical help immediately. Drink large quantities of water, milk or milk of magnesia, beaten eggs or vegetable oil.
Acid spilled on clothing, workbench or floor may be neutralized with baking soda or ammonia solutions, in metallic containers.
Use only glass, ceramic or acid resisting plastic vessels. Never discard used containers before they have been rinsed clean, then puncture them to prevent further use.
When charging batteries, keep area well ventilated and bar general access. Connect/disconnect batteries only when charge is switched off. Make sure tools cannot short circuit battery terminals. Keep vent caps on battery during charging.
The positive battery terminal of each battery (or pair of batteries for 24-volt systems) is connected to one of the engine’s starter contactors. The negative terminals are to be connected to the engine block or other suitable ground. Fairbanks Nijhuis’s standard battery cable wire gauge sizes are selected for a maximum 10-foot circuit length (5-foot cables). Longer cables will require heavier gauge wire to be used.
Power wiring to the engine’s jacket water heater must be completed only after it has been assured that there is sufficient coolant in the engine. Most heaters are continuously energized when wiring is connected and will burn out the heating element if no water is present. This failure is not covered by warranty.
Refer to engine manufacturer’s data sheet for correct voltage of the heater.
DIESEL ENGINE COOLING LOOP PIPING. The cooling loop system diverts a small amount of water from the pump discharge through the engine’s heat exchanger to help control the operating temperature of the engine. Prior to start-up, it is recommended that this piping be checked for damage or displacement that might have occurred during shipment.
During normal operation, the top two valves of the cooling loop (in the by-pass line) are to be closed, and the lower two valves (in the pressure regulated line) are to be open. Failure to observe this may result in over pressurization of the heat exchanger when the pump is started, causing damage to the engine.
Piping from the engine’s heat exchanger to a drain is to be provided by the installer. It is important to use the recommended size piping to reduce back pressure and avoid over pressurizing the heat exchanger. A length of PVC tubing is provided by Fairbanks Nijhuis to be connected to the petcock in the cooling loop piping in order to vent the system and visually verify the flow of water through the heat exchanger.
DIESEL ENGINE FUEL SYSTEM. The fuel tank should be installed so that the supply outlet is at the same elevation as the engine’s fuel pump. Since the unit base is usually elevated


as described earlier, this may require that the fuel tank is likewise elevated. The means of elevating the tank is the responsibility of the installer. Substituting the legs furnished with the tank with pipes of greater length is not a recommended method of elevating the tank.
All fuel fittings shown in Figure 9 are shipped loose for field installation. They are to be assembled as shown in Figure 9 to be consistent with Figure A-8-4.6 of N.F.P.A. Pamphlet 20. Installation may vary at the discretion of the installer with the approval of the local authority having jurisdiction. Note that some sections of common piping needed to complete this installation are not furnished by Fairbanks Nijhuis and must be procured locally.
Tube fittings are provided to allow the use of 5/8″ O.D. tubing for the fuel supply and return lines (the tubing itself is NOT furnished by Fairbanks Nijhuis). If hard piping is used, these tube fittings are simply to be discarded.
Diesel fuel is not furnished by Fairbanks Nijhuis and must be procured locally prior to start-up.
DIESEL MUFFLER AND EXHAUST SYSTEM. A commercial grade muffler and flexible connector are furnished as standard on diesel End Suction Fire Pumps. If necessary, additional fittings needed for connecting these to the engine are also provided.
Commercial grade mufflers have NPT connections on 3″ and 3-1/2″ sizes, slip-on (automotive type) connectors for 4″, 5″ and 6″ sizes, and 125# ANSI flanged connections for larger sizes.
Optional residential grade mufflers have NPT connections on 3″ and 3-1/2″ sizes; ANSI 125# flanges on 4″ and larger sizes.
Piping, elbows and other components required to route the exhaust to the outside are not provided by Fairbanks Nijhuis. It is suggested that the building contractor or on-site engineers design and install the remainder of the exhaust system.
Mufflers are sized by Fairbanks Nijhuis to allow the engine to operate at its rated speed with nominal back pressure. However, if more than 25 feet of additional piping and/or more than four 90-degree elbows are required to complete the system, it is important to contact the factory for re-evaluation of the system with respect to back pressure. A larger muffler and piping may be required to allow the engine to operate properly.
The flexible connectors furnished by Fairbanks Nijhuis are intended for use as a vibration control device and cannot be substituted for elbows in the piping system. It is recommended that the flexible connector be placed as close to the engine’s exhaust outlet as possible. The muffler and piping must be supported to prevent strain on any diesel engine component.
START-UP AND FIELD ACCEPTANCE TEST:
GENERAL. The following is a general outline for starting and field testing End Suction Fire Pump systems. It is recognized that requirements and methods may vary depending on local customs and practices. Those involved in End Suction Fire Pump sales MUST fully understand all local requirements and N.F.P.A. Pamphlet 20. A general method to follow is outlined below.
Be specific and complete when ordering End Suction Fire Pumps and accessories so that all necessary and correct items are on hand for the start-up. Trouble cannot be tolerated on the day of the field acceptance test.
Visit the jobsite after delivery of the equipment to verify that all components ordered have been received and are correct for the installation.
Visit the jobsite again after installation to assure that the components have been correctly assembled and installed.
After the installation is complete and the End Suction Fire Pump system is pressurized and checked by the contractor, the following items must be verified:
- Coupling has been properly aligned.
- Motor has been “bumped” to check for proper rotation.
- Diesel engine (where applicable) has been properly serviced, necessary fluids added, batteries filled and charged, jacket water heater operating.
INITIAL TEST. The following steps are basic for an initial test of the End Suction Fire Pump system:
- Close the valves on all discharge outlets.
- Open the suction valve.
- Having read the controller manual and gained an understanding of its operation, set the End Suction Fire Pump controller to “manual”. The Jockey pump panel should be set to the “off’ position.
- With the controller door closed, start the End Suction Fire Pump.
- Adjust the packing to allow approximately 60 drops per minute to flow from each packing box. Further adjustment may be required later, so a recheck upon completion of the test is advised.
- Close the relief valve completely for a brief period to verify that the shut-off pressure agrees with that on the certified factory test curve.
Figure 9. Diesel Fuel Tank and Fittings.Components Furnished by Fairbanks Nijhuis Item Number Quantity Required Description 1 1 2″ NPT Lockable Fuel Cap 2 1 “Z” Npt Vent/Flash Arrestor 3 1 Fuel Gauge — 2″ NPT 4 1 1″ NPT Drain Plug 5 1 Fuel Fill Tube — 2″ NPT 6 1 Fuel Return Tube — 1/2″ NPT 7 6 Tube Fitting 8 1 1/2″ NPT Lockable Fuel Valve 9 2 Fuel Hoses For Supply and Return
(Furnished By Engine Manufacturer)10 2 Tube Fitting Adaptor (If Required) 11 1 2″ NPT Pipe Plug Components To Be Furnished by Others Item
NumberQuantity
RequiredDescription 13 1 “Z” x “Z” x 1/2″ Pipe Tee 14 2 “Z” Diameter Piping For Vent 15 1 1/2″ Pipe Tee 16 1 5/8″ O.D. Tubing - Adjust the casing relief valve (electric-driven units only) to allow enough flow to keep the pump cool.
- Stop the End Suction Fire Pump.
- Set the End Suction Fire Pump controller to the “automatic” position.
- Slowly lower the system pressure with the control valve. The End Suction Fire Pump should start. Observe this starting pressure and adjust if necessary. (Adjustment procedure varies with controller manufacturer.) Stop the End Suction Fire Pump.
FIELD ACCEPTANCE TEST. Personnel on hand for the End Suction Fire Pump field acceptance test should include the controller representative, diesel engine service technician (if applicable), representatives of the insuring agency and local fire authority, as well as those responsible for building maintenance and supervision.
Equipment needed for the field acceptance test includes:
- Calibrated ammeter.
- Volt meter.
- Tachometer.
- Pitot tube and gauge.
- Calibrated suction and discharge gauges with 1/4% accuracy. (Gauges furnished with the pump are 2%3% accurate and could be troublesome for the field acceptance test.)
- 50 feet of 2-1/2″ hose for each connection on the hose manifold.
- Play pipe with suitable nozzle for each hose.
While field acceptance tests vary by location, the following steps are usually taken. Additional operations may be required depending on the special needs in some territories.
- A hose and play pipe are connected to each valve on the hose manifold.
- The discharge valve leading to the building’s fire system is closed.
- The discharge valve leading to the hose manifold (or “test header”) is opened.
- The suction valve is opened.
- All relief valves are closed.
- One hose valve on the hose manifold is opened.
- With the End Suction Fire Pump operating, the hose valve is adjusted for a flow of 500 GPM at the play pipe as indicated by the pitot tube. Refer to Table 1 to determine the pressure vs. flow for the size play pipe used for this test.
Nozzle
PressureGPM At Various Nozzle Sizes 1-1/8 1-1/4 1-3/8 1-1/2 1-5/8 1-3/4 10 100 130 160 195 235 285 20 160 203 245 290 348 410 30 206 254 308 366 430 498 35 222 275 332 395 464 538 40 238 294 355 423 496 575 45 252 311 377 448 525 610 50 266 328 397 473 555 643 55 279 344 417 496 582 675 60 291 360 435 518 608 716 62 296 366 442 526 618 728 64 301 371 449 535 628 732 66 305 377 456 543 637 739 68 310 383 463 551 647 750 70 315 388 470 559 656 761 72 319 394 477 567 666 772 74 323 399 483 575 675 783 76 328 405 490 583 684 793 78 332 410 496 590 693 803 80 336 415 502 598 702 814 85 347 428 518 616 723 839 90 357 440 533 634 744 863 95 355 452 547 651 765 887 100 376 464 562 668 784 910 105 385 476 575 685 804 932 110 394 487 589 701 823 954 115 403 498 602 717 841 976 120 412 509 615 732 859 997 Table 1. GPM at Various Nozzle Sizes.
- By opening additional valves and measuring the flow equal to 500 GPM, readings of 1000 GPM, 1500 GPM, 2000 GPM, etc. can be determined.
- Open the necessary hose valves to obtain the total rated flow. When this flow is assured, check and record the following data:
a. Suction gauge pressure
b. Discharge gauge pressure
c. RPM with tachometer
d. Voltage
e. Amps (on all legs) - Verify that the flow remained constant during the above data readings.
- Adjust hose valves to achieve 150% of rated flow. Proceed as before and record the necessary data.
- Repeat these steps as required by supervising authorities to obtain the desired number of points on the test curve.
- Finally, close all valves and record the above readings in Step 9 at shut-off (zero GPM) condition.
If a number of automatic and/or manual starts are to be demonstrated, this series of tests can now be conducted.
The Jockey Pump controller must be set to start the Jockey Pump at a pressure greater than that of the main End Suction Fire Pump. The following procedure may be used to accomplish this.
- The main End Suction Fire Pump controller is set to the “off’ position.
- The Jockey Pump controller is set to the “automatic” position.
- The system pressure is slowly reduced by opening the test valve until the Jockey Pump starts. Observe the pressure at which the Jockey Pump starts.
- Allow the Jockey Pump to continue running until the system pressure rises enough to stop the pump automatically. Typically, there is a minimum of 10 psi between the “pump start” and “pump stop” pressure readings.
- Adjust the set points in the Jockey Pump controller as necessary to achieve the desired results. As with the main End Suction Fire Pump controller, adjustment methods vary with controller manufacturer.
IMPORTANT: Upon successful completion of the field acceptance test, the following points must be verified:
- The discharge valve leading to the outside hose manifold should be closed.
- The discharge valve leading to the building fire protection system should be opened.
- The casing relief valve should be set to a pressure just below the shut-off pressure of the pump.
- The main relief valve (if applicable) should be set to a pressure just above the maximum system pressure.
- Both the End Suction Fire Pump and Jockey Pump controllers should be set to the “automatic” position.
- Any alarm systems disabled during the tests should be reactivated.
- The individual or authority responsible for maintaining the building’s fire protection system must be made aware of all settings and the operational condition of the system before leaving the site.
MAINTENANCE:
Your Fairbanks Nijhuis requires no maintenance other than periodic inspection, occasional cleaning and lubrication of bearings. The intent of inspection is to prevent breakdown, thus obtaining optimum service life. The liquid end of the pump is lubricated by the fluid being pumped and therefore does not require periodic lubrication.
LUBRICATION OF IMPELLER SHAFT BEARINGS:
Regreaseable bearings will require periodic lubrication and can be accomplished by using the zerk or lubrication fittings in the cartridge cap and power frame. Lubricate the bearings at regular intervals using a grease of high quality. Mixing of different brands of grease should be avoided due to possible chemical reactions between the brands which could damage the bearings. Accordingly, avoid grease of vegetable or animal base which can develop acids, as well as grease containing rosin, graphite, talc and other impurities. Under no circumstances should used grease be reused.
Overlubrication should be avoided as it may result in overheating and possible bearing failure. Under normal application, adequate lubrication is assured if the amount of grease is maintained at 1/3 to 1/2 the capacity of the bearing and space surrounding it.
In dry locations, each bearing will need lubrication at least every 4,000 hours of running time or every 6 to 12 months, whichever is more frequent. In wet locations (exposed to dripping water, to the weather, or to heavy condensation such as is found in unheated and poorly ventilated underground locations) the bearings should be lubricated at least after every 2,000 hours of running time or every 4 to 6 months, whichever is more frequent.
Use Chevron SRI, NLGI2.
Lubricate motor per motor manufacturer’s instructions.
GENERAL INSTRUCTIONS:
- Keep this pump and motor properly lubricated.
- Inspect the pump regularly for leaky seals of gaskets and loose or damaged components. Replace or repair as required.
ELECTRICAL WIRING. Normally, your pump will be supplied with an attached drive motor. The motor should be wired in accordance with the wiring diagram found on the motor nameplate. Be sure the voltage, frequency, and phase of your power supply corresponds with the nameplate data. It is advisable to provide a separate switch and overload protection for your pump motor to protect against power failure in some other area. Conversely, if the pump motor develops electrical problems, it will be isolated from other equipment.
PRESTARTING INSTRUCTION. The coupling halves should be connected. Prior to connection, however, the drive motor should be started to make sure the direction of rotation is the same as the direction indicated by the arrow on the pump casing.
| CAPSCREW TORQUE FOR COMMON BOLT DIAMETERS | ||||||
| IN-POUNDS | FOOT-POUNDS | |||||
| 1/4″ | 5/16″ | 3/8″ | 7/16″ | 1/2″ | 5/8″ | 3/4″ |
| 85 | 180 | 27 | 43 | 65 | 130 | 230 |
Table 2. Torque Chart.
When the pump is used in conjunction with electric motors and controls, these components must be in accordance with EN 60529 IP 22. Electrical equipment applied is to conform to the requirements of EN 50081 parts I or 2, and to EN 50082 parts 1 or 2, and the relevant parts of EN 6100 with regard to electromagnetic compatibility. Protection of the electrical assembly against electrostatic phenomena shall be per paragraph 5.2.2.2 of EN 809. General compliance of the electrical assembly shall be per EN 60204-1. The installer shall ensure that any displays and control actuators are designed and installed in accordance with EN 894. The nature of the pumped liquid precludes the need for an emergency stop device; the pump can be shut down by normal means.
Any electrical equipment shall be properly earthed.
Overall assembly shall be shown to comply with 98/37/EC Annex 1 paragraph 1.7.4 (f) by the final assembler with respect to noise and vibration.
Installation must comply with the Machinery Directive 98/37/EC as well as any other applicable national regulations in the member state of the installation. The final installation must not be put into service until it has been declared in conformity with the provisions of the Machinery Directive.
PUMP DISASSEMBLY:
For frame mounted pumps, model 1620F.
Any disassembly/assembly procedures performed will require testing per NFPA 20 Table 14.5.2.3 after re-assembly has been completed prior to the pump being returned to service.
WARNING: Sudden Start-Up Hazard
Disconnect and lock out power source before servicing. Failure to follow these instructions could result in serious personal injury, death or property damage.
Read and understand all safety warnings at the beginning of the manual before beginning installation or any repair work.
- Ensure the electrical power is locked out, the system pressure has been lowered to 0 psi and temperature of the unit is at a safe level before beginning any disassembly of the pump.
- Isolate the pump from the system by closing the valves that should be located on both the suction and discharge of the pump. Loosen the drain plug at the bottom of the casing and drain the pump. The flush line assembly (optional 1, 3, 2 and 75) should be removed at this time.
Inspect removed parts at disassembly to determine if they can be reused. Ball bearings that turn roughly or show wear should be replaced. Cracked castings should never be reused. Scored or worn pump shafts should be replaced. Gaskets should be replaced at reassembly simply as a matter of economy. They are much less expensive to replace routinely than to replace singly as the need arises.
WARNING: Hot Surface Hazard
If pumping hot water, ensure guards or proper insulation is installed to protect against skin contact with hot piping or pump components. Failure to follow these instructions could result in serious personal injury, death or property damage.
WARNING: High Pressure Hazard
The pump is rated at a maximum of 175 psi at 150°F. Do not exceed this pressure. Install properly sized pressure relief valves in system. Failure to follow these instructions could result in serious personal injury, death or property damage.
WARNING: Spraying Water Hazard
When servicing pump replace all gaskets and seals. Do not reuse old gaskets or seals. Failure to follow these instructions could result in serious personal injury, death or property damage.
PACKING REMOVAL/REPLACEMENT ONLY:
a. Remove capscrews (65), gland lamps (22) and gland halves (23).
b. Use a flexible Packing Tool* with a hook attachment for removal of the packing, and a wood screw attachment for removal of the lantern ring. The lantern ring contains several holes for the packing tool.
* The Packing Tool can be purchased from industrial supply, or hardware stores. It is not considered a special tool.
c. Thoroughly clean the shaft sleeve (25) and packing cover (26) seal cavity. Thoroughly inspect the bore of the Pump Packing Cover (26) and the Shaft Sleeve (25) for wear or signs that replacement is needed.
d. Place one ring of packing (28) into the packing cover (26). On successive rings of packing stagger the packing joints to prevent excessive leakage through the packing box. If a lantern ring (29) is used, place a second ring of packing (28) into the cover before installing lantern ring. Refer to Fig. 10.
CAUTION:
There must be two (2) rings of packing in front of lantern ring (29) to assure proper alignment between the lantern ring and the sealing tube connection (3) in the cover (26). Install remaining packing rings (28). Each ring should be tapped firmly into place with a wood or metal bushing.
e. Replace gland halves (23) and place gland clamps (22) over capscrews (65). Tighten capscrews (65) finger tight into either cover assembly (26).
NOTE: The slots in gland halves (23) should be diagonal to pump horizontal center line.
Proceed to Step 17 to return the pump to service. - Remove the coupling guard.
- Loosen the set screws in both coupling halves and slide each half back as far as possible on its shaft. Then, remove the coupling insert.
WARNING: High Pressure Hazard
Make certain that the internal pressure of the pump is relieved before continuing. Failure to follow the instructions could result in serious person injury, death, or property damage. - Remove the two foot support capscrews from the powerframe. Loosen, but do not remove the volute capscrews (5). Use capscrew in the jack screw holes to loosen the impeller subassembly from the volute.
- Now remove the volute capscrews (5) and remove the impeller subassembly from the volute.
WARNING: Lifting Hazard
The motor and pump assemblies may be very heavy. Use extreme caution and safe lifting equipment during the removal and assembly procedures. Failure to follow these instructions could result in serious personal injury, death or property damage. - Remove the impeller capscrew (9), washer (9A), gasket (9B), and capscrew seal (9C). Remove impeller (11).
- Remove impeller key (12).
- Remove the O-ring (10). Remove the packing (and optional lantern ring).
- Remove capscrews (65), gland lamps (22) and gland halves (23).
- Unscrew capscrews (5) and remove cover assembly (26). The bore of the pump packing cover (26) should be checked for excessive wear.
- Shaft sleeve (25) is a slip fit on the shaft and should be easily removed unless the pump has been in service for a long time. In this case it may be necessary to use a puller. Take care to prevent damaging the surface of the sleeve. Replace the sleeve if it is grooved from wear.
- All packing (28) and lantern ring (29) (if used) must now be removed from the packing box, and the cavity thoroughly cleaned to allow new packing to fit properly.
- Thoroughly clean the shaft sleeve (25) and packing cover (26) seal cavity.
- Wear ring(s) (7 & 16) are pressed into their housings with an interference fit and must be removed with a puller if new rings are required.
PUMP REASSEMBLY:
- Replace the shaft sleeve (25) or packing cover (26) if there is evidence of surface damage like pitting, corrosion, nicks or scratches.
- Replace wear ring(s) (7 & 16) in casing (6) and cover (26). Rings should not be hammered into place. Use a press or clamp the parts in a bench vice using wooden blocks to protect the rings.
- Place one ring of packing (28) into the packing cover (26). On successive rings of packing stagger the packing joints to prevent excessive leakage through the packing box. If a lantern ring (29) is used, place a second ring of packing (28) into the cover before installing lantern ring. Refer to Fig. 10.
CAUTION:
There must be two (2) rings of packing in front of lantern ring (29) to assure proper alignment between the lantern ring and the sealing tube connection (3) in the cover (26). Install remaining packing rings (28). Each ring should be tapped firmly into place with a wood or metal bushing. - Slide the shaft sleeve (25) through the packing. Proceed to next step if only replacing packing.
- Replace gland halves (23) and place capscrews (65) through gland clamps (22). Tighten capscrews (65) finger tight into either cover assembly (26).
- Slide Packing Cover Assembly onto shaft.
NOTE: The slots in gland halves (23) should be diagonal to pump horizontal center line. - Install O-ring (10).
- Install a new impeller key (12).
- Install impeller, impeller washer (9A), new impeller washer gasket (9B), capscrew seal and capscrew (9). Tighten capscrew per torque chart (see Table 2).
WARNING: Lifting Hazard
The motor and pump assemblies may be very heavy. Use extreme caution and safe lifting equipment during the removal and assembly procedures. Failure to follow these instructions could result in serious personal injury, death or property damage. - Install new casing gasket (8). Then install the pump assembly into the volute.
- Tighten volute capscrews (5) per torque chart (see Table 2).
- Install foot support capscrews (62) and tighten per torque chart (see Table 2).
- Install coupling and align.
- Install drain plugs, close drain valve.
- Replace all relief, cooling, flush lines (1, 3, 2, 75), or drain lines from the pump including compression connections (1 and 2) and tubing (3).
- Reinstall the coupling guard.
- Open isolation valves and inspect pump for leaks.
- Return pump to service.
WARNING: Sudden Start-Up Hazard
Disconnect and lock out power source before servicing. Failure to follow these instructions could result in serious personal injury, death or property damage.
WARNING: Rotating Component Hazard
Do not operate pump without all guards in place. Failure to follow these instructions could result in serious personal injury or death and property damage.
STARTING PUMP AFTER REASSEMBLY:
Do not start pump until all air and vapor has been bled and until making sure that there is liquid in the pump to provide the necessary lubrication for the packing.
When the pump is returned to service, additional care must be given to packing box to ensure a proper packing life. It is necessary to allow 60120 drops leakage per minute through the packing for lubrication purposes. If the flow rate is other than this, the capscrews should be either loosened or tightened one quarter turn at a time to acquire the correct leakage (both capscrews must be turned equally to prevent cocking of the gland). It will take approximately ten minutes at any one gland setting before the leakage rate will stabilize. When in doubt, choose the greater leakage rate since overly tight packing will ruin not only the packing, but the sleeve as well.
POWER FRAME OR PUMP SHAFT DISASSEMBLY/REPLACEMENT:
Read and understand all safety warnings at the beginning of the manual before beginning installation or any repair work.
Follow steps 1 14 from main pump disassembly procedure.
15. Remove the power frame capscrews and bearing/shaft assembly from the packing cover. If replacing the shaft, continue to Step 16.
16. Remove the grease fittings (43) from the power frame.
17. Unscrew capscrews (48) and remove bearing cap (49). Remove O-ring (oil lubed only) and retainer ring (52).
18. Slide out shaft (55) and bearings (53 and 54). Since bearings (53 and 54) are press fitted on the shaft, they will have to be pulled or pressed off the shaft. Remove grease seals (51) from frame (57) and bearing cap (49).
19. Thoroughly clean the shaft (55), removing any oil or dirt.
POWER FRAME REASSEMBLY:
Reassembly will generally be in reverse order of disassembly. If disassembly was not complete, use only those steps related to your particular repair program.
- Press grease seals (51/51A) into frame (57), and bearing cap (49).
- Press bearings (53 and 54) onto shaft (55). Snap retainer ring (52) into place.
- Slide shaft (55) and bearings (53 and 54) into frame (57).
- Fasten bearing cap (49) in position with capscrews (48). Position slingers (47) on the shaft.
- Position bracket (35) on the frame (57) and secure with capscrews (5A). Tighten screws evenly to assure proper alignment.
Follow steps 1 through 18 from Pump Reassembly procedure to complete pump assembly.
Do not start pump until all air and vapor have been bled and until making sure that there is liquid in the pump to provide the necessary lubrication for the packing.
When the pump is returned to service, additional care must be given to packing box to ensure a proper packing life. It is necessary to allow 60120 drops leakage per minute through the packing for lubrication purposes. If the flow rate is other than this, the capscrews should be either loosened or tightened one quarter turn at a time to acquire the correct leakage (both capscrews must be turned equally to prevent cocking of the gland). It will take approximately ten minutes at any one gland setting before the leakage rate will stabilize. When in doubt, choose the greater leakage rate since overly tight packing will ruin not only the packing, but the sleeve as well.

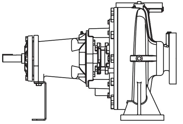
Model 1620F List of Parts
| 1 | Compression Fitting | 12 | Impeller Key | 48 | Capscrew |
| 2 | Compression Fitting | 16 | Back Wear Ring | 49 | Bearing Cap |
| 3 | Tubing | 22 | Gland Clamp | 51/51A. | Lip Seal |
| 4A/4B/4C. | Pipe Plug | 23 | Packing Gland | 52 | Retaining Ring |
| 5/5A/B/C. | Capscrew | 25 | Shaft Sleeve | 53 | Bearing |
| 6 | Casing | 26 | Pump Packing Cover | 54 | Bearing |
| 7 | Wear Ring | 28 | Packing | 55 | Shaft |
| 8 | Gasket | 29 | Lantern Ring | 57 | Frame |
| 9 | Impeller Screw | 33 | Nameplate Screw | 62 | Capscrew |
| 9A. | Washer | 34 | Nameplate | 63 | Washer |
| 9B. | Gasket | 35 | Motor Bracket | 64 | Foot Support |
| 9C. | Capscrew Seal | 42 | Key | 65 | Capscrew |
| 10 | O-Ring | 43 | Grease Fitting | 75 | Ball Valve |
| 11 | Impeller | 47 | Water Slinger |
FAIRBANKS NIJHUIS RESERVES THE RIGHT TO SUBSTITUTE MATERIALS WITHOUT NOTICE.
NOTE: WHEN ORDERING SPARE PARTS ALWAYS INCLUDE THE PUMP TYPE, SIZE, SERIAL NUMBER, AND THE PIECE NUMBER FROM THE EXPLODED VIEW IN THIS MANUAL. ORDER ALL PARTS FROM YOUR LOCAL AUTHORIZED DISTRIBUTOR, OR THE FACTORY AT NORTH AURORA, ILLINOIS.
12/26/12
Fairbanks Nijhuis™

WARNING: Lifting Hazard
















