WHR5H Submersible Sewage Pumps
Instruction Manual
SAFETY WARNINGS
Before Installation: This manual contains important information for the safe use of this product. Read this manual completely and follow the instructions carefully.
Reasonable care and safe methods relating to the installation and operation of this product should be practiced.
Check local codes and requirements before installation.
DANGER Risk of electrical shock and fire. May result in serious injury, death or fire hazard. Disconnect all electrical sources prior to installation, handling or servicing.
Only qualified personnel may install this system. NFPA 70/National Electric Code (NEC) or local codes must be followed. System must be properly grounded according to NEC. Do not lift pump by power cord.
DANGER Biohazard Risk. Once wastewater source has been connected to system, Biohazard Risk exists.
Installer(s) and/or service personnel must use proper Personal Protective Equipment and follow handling procedures per OSHA 29 CFR 1910.1030 when handling equipment after wastewater source has been connected to system.
DANGER Risk of Asphyxiation. Installer(s) and/or service personnel must use proper Personal Protective Equipment and follow OSHA 29 CFR 1910.146 or OSHA 29 CFR 1926. Pump may be installed in a location classified by OSHA as a confined space.
DANGER Risk of Fire or Explosion. Do not smoke or use open flames in or around this system. This system is not intended for use in hazardous locations per NFPA
DANGER 70 National Electric Code. Do not pump flammable liquids.
Cutting Risk. Risk of serious cutting or amputation exists. Disconnect all power sources prior to servicing pump. Pump may start without warning.
DO NOT modify the cord and plug. When using the cord and plug, plug into a grounded outlet only. When wiring to a system control, connect the pump ground lead to the system ground.
DO NOT run the pump dry. Dry running can overheat the pump (causing burns to anyone handling it) and will void the warranty.
The pump normally runs hot. To avoid burns, allow it to cool for 30 minutes after shutdown before handling it.
Submersible sewage pumps are not approved for use in swimming pools, recreational water installations, decorative fountains or any installation where human contact with the pumped fluid is common. Pump is designed to be installed in a sump or wet location where drainage collects.
DO NOT THROW AWAY OR LOSE THIS MANUAL. Keep it in a safe place so that you may refer to it often for the continued safe operation of the product.
CAUTION Single phase pumps with automatic heat sensor reset will restart without warning as the motor cools. Therefore, never do service work on the pump unless power supply is disconnected.
DANGER Risk of electric shock. Pumps without seal leak detectors are supplied with a grounding connector and grounding-type attachment plug on the power cord. To reduce the risk of electric shock, be certain that it is connected only to a properly grounded, grounding-type receptacle. DO NOT cut off ground pin or use an adapter fitting.
DO NOT use an extension cord with this pump. Entire plug may be cut off if a control panel is used. When wiring this pump follow all local electrical and safety codes and ordinances as well as the most recent National Electric Code (NEC-ANSI/NFPA 70).
All pumps have a GROUND WIRE that is connected to a screw in the metal motor housing. This wire goes to the receptacle or control box which must be connected to an
NEC approved ground.
California Proposition 65 Warning
WARNING This product and related accessories contain chemicals known to the State of California to cause cancer, birth defects or other reproductive harm.
GENERAL DESCRIPTION AND USES
The WHR Series are solids handling pumps that can be used to pump RAW SEWAGE for COMMERCIAL and DOMESTIC use, but are not intended to handle large rags, mop heads or strings. All pumps can be used for normal sewage duty where extra capacity is required.
RECESSED IMPELLERS
All of the pumps are of the recessed impeller type that provides a clear volute passage for solids as no solids pass through the impeller.
All of the pumps listed can be used to pump septic tank EFFLUENT or GROUND sewage as used in some pressure sewer systems.
WARNING THESE PUMPS ARE NOT APPROVED FOR, AND SHOULD NOT BE USED IN SWIMMING POOLS OR FOUNTAINS.AIR LOCKING
A sewage pump is air locked if water traps air in the pump and it cannot get out, thus preventing the pump from operating.
In installations of this type a 1/8″ hole should be drilled in the discharge pipe below the check valve. The check valve should be 12 to 18 inches above pump discharge.
Do not put check valve directly into pump discharge opening.
LEVEL CONTROLS
All pumps must use certified level control switches for automatic operation. Level control rating must be at least equal to the horsepower rating of the pump.
Plug-in cords can be used on all the single phase pumps without seal leak detector. This cord has a GROUND pin that plugs into a grounded receptacle. The grounded receptacle cannot be used in the wet sump or basin due to DANGER of current leakage.
Sealed junction boxes must be used in wet sumps or basins to make connections to motor cord.
MOTOR TYPES
All single phase pump motors have internal capacitors.
Automatic reset overload switches are attached directly to the motor windings on single phase pumps.
Three phase pump motors are squirrel cage induction type.
INSTALLATION
Pumps can be installed inside sealed basins with proper venting for either simplex or duplex systems. Simplex or duplex basin systems are available.
Basins are not intended for use with home septic systems. They are for use in office buildings and small industrial buildings and factories.
If raw sewage must be pumped from the home’s sewage system, use outside basins that connect with pressure sewer mains or gravity sewers, or run to septic tanks.
Basins can be used inside the home where extra capacity sump pumps are required for water softeners and wash water.
If an inside basin is used, it is usually installed at the time of pouring the concrete basement floor.
Pumps can be installed in a compartment of septic tanks for pumping to pressure sewer mains, gravity sewers, leach fields, or evaporation mounds.
PROPER VENTING FOR BASINS INSTALLED INSIDE
All inside sealed basins must have a 2″ or 3″ vent pipe installed in accordance with local codes. Basins for handling softener water, wash or drainage water do not have to be sealed or vented.
Outside basins are usually of fiberglass and from 4 to 8 feet deep and have a sealed cover. Pump is usually installed with a lift-out rail system so that pump can be removed without disturbing the discharge piping. The check valve comes out with pump for servicing. Complete lift-out systems mounted in fiberglass basins are available to meet customer specifications.
WARNING Basin must be vented in accordance with local plumbing codes. These pumps are not designed for and CANNOT be installed in locations classified as hazardous in accordance with the National Electric Code.
PIPING
Pumps are fitted with 2″ or 3″ female threaded pipe flange. Galvanized or PVC plastic pipe can be used.
Plastic pipe is preferred for raw sewage or septic tank effluent.
CHECK VALVES AND SHUT-OFF VALVES
All pumps must have check valves and shut-off valves in the discharge line. Check valves must be flapper type with outside spring or ball type. Shut-off valves can be ball or gate type. Plastic construction for both check and shut-off valves is preferred.
HOW TO SET CONTROLS FOR SIMPLEX SYSTEMS
- Automatic systems — These systems have the float switches mounted on the pump, so pump is installed in the basin and motor cord is plugged into GROUNDED receptacle. For sealed basin cover, power cord is brought through a split rubber plug in the basin cover.
- Where 2 float controls are used, the turn-on control is set 3″ to 6″ above top of motor, and the turn-off control is set about 6″ to 8″ above bottom of basin.
If a high level alarm control is used, it is set about 6″ above upper control. If basin depth will not allow these settings, closer spacing can be used.
HOW TO START SIMPLEX SYSTEMS
- For single-phase pumps with plug cords piggyback into receptacle and run water into basin until pump starts. Allow pump to make several on/off cycles.
Leave power cord plugged in.
If pump runs but does not pump it may be air locked.
Unplug cord and crack union in the discharge line, then restart pump. This should vent off any trapped air. Retighten union. - With 2 float controls turn on power at the control box and run water into basin. When level gets above top control, pump should start and continue to pump until level drops to lower control, stopping pump. Run pump through several cycles. If pump runs but does not pump, turn off power and check for an air lock.
Leave power on for automatic operation.
For all cases if motor does not start when water level is up, check for proper plug-in or that start switch is on, or if fuse is blown.
ALWAYS HAVE ELECTRICIAN MAKE ELECTRICAL CHECKS.
STARTING PUMP PIGGYBACK (AUTOMATIC) USING MECHANICAL SWITCH WITH SERIES PLUG SIMPLEX SYSTEM
- These pumps have a mechanical (mercury-free) float switch with a 20 ft. cord and a 115 volt or 230 volt series piggyback plug on 1/2 HP with switch mounted to the pump. On 3/4, 1, and 2 HP, it requires 20 ft. cord and 230 volt only.
- Plug the switch cord plug into a proper voltage, properly grounded outlet.
- Plug the pump power cord into the back of the switch cord series plug.
- Tape the cords to the discharge pipe every 12″.
- Run water into basin until pump starts. Be sure discharge line valve is open.
- Allow pump to operate through several on/off cycles.
HOW TO SET CONTROLS AND START DUPLEX SYSTEMS
CONTROL BOX MUST BE USED ON ALL DUPLEX SYSTEMS
- Four float controls are used for duplex systems. Set turn-on control 6″ to 8″ above pumps. Set turn-off control 8″ to 10″ above bottom of basin. Set override control 6″ to 8″ above turn-on control. Set high level alarm control about 6″ to 8″ above override control. Mark all control cords so that they can be connected correctly in the control box.
- Turn Hand-Off-Auto switches to OFF position and close circuit breaker.
- Turn both H-O-A switches to the AUTO position and run water into basin. When level rises and activates the turn-on switch, one pump should start and run. Pump will continue to run until lower control is exposed, stopping pump.
- Run water into sump again and when water level raises the turn-on control, opposite pump will start and run until level drops exposing lower control, stopping pump.
- Run this test several times to be sure pumps are alternating properly.
- To check high level alarm, again turn both switches to OFF and fill basin until level is above the alarm control. Turn switches to AUTO position and alarm buzzer should sound and alarm light should come on. When level drops below the alarm, control buzzer should stop.
- If pumps operate as described, then set both H-O-A to AUTO and pumps are ready to operate automatically.
CAUTION NEVER WORK ON PUMPS OR CONTROL BOXES UNTIL CIRCUIT BREAKERS ARE TURNED OFF. Always have a qualified electrician make electrical connections and service checks.
SPECIAL INSTRUCTIONS FOR 3-PHASE PUMPS
WARNING Only qualified persons shall service and install this pump. The pump must be wired by a qualified electrician, using an approved starter box and switching device.
WARNING Risk of electric shock. Do not remove cord and strain relief. Do not connect conduit to pump.- Three phase pumps are always installed with control boxes having magnetic starters with 3-leg overload protection. DO NOT TRY TO RUN THREE PHASE PUMPS DIRECTLY ACROSS THE LINE.
- To Connect Pump: Run wire from pump to the bottom of control box or appropriate junction box suitable for enclosing splice connections. A hole must be cut into the control box for the wires. With power to control box off, connect green (ground) line to ground lug. Connect black (power) wires to power lead terminals. Make sure that all wires are inside control box and not in a position to be pinched or shorted when the door is closed.
- All three phase motors can run either direction.
Rotation can be changed by interchanging any two line leads at magnetic starter. BE SURE CIRCUIT BREAKER IS OFF BEFORE MAKING THIS CHANGE.
To find if rotation is correct, operate pumps and check delivery operation. If flow and head are low, the rotation is wrong. With duplex pumps check operation of both pumps. - All pump impellers either single or three phase must turn counterclockwise when looking into pump inlet. If uncertain of rotation, TURN OFF POWER and lift pump from basin USING THE LIFTING RING (with cord connected) and lay pump on side so impeller can be seen. Turn on power and start pump using hand position of H-O-A switch. Turn on and off fast, so that coast of impeller can be seen.
DANGER RISK OF AMPUTATION WHEN PUMP STARTS. Never put hand or fingers on the impeller.
Interchange any two line leads at the magnetic starter to change rotation.
TROUBLESHOOTING
- Pump does not run or start when water is up in tank.
a. Check for blown fuse or tripped circuit breaker.
b. Check for defective level switch.
c. Where control panel is used be sure H-O-A switch is in the AUTO position. If it does not run, turn switch to the HAND position and if the pump runs then the trouble is in the automatic electrical system. Have an electrician make electrical checks.
d. Check for burned-out motor. Occasionally lightning can damage a motor even with lightning protection.
e. Where plug-in cords are used be sure contact blades are clean and making good contact. DO
NOT USE PLUG-IN CORDS INSIDE A BASIN OR WET WELL. - Pump runs but does not deliver flow.
a. Check for airlock. Start and stop pump several times. If this does not help it may be necessary to loosen a union in the discharge line to relieve airlock.
b. Check valve may be installed backward. Check flow arrow on valve body. Check shut-off valve. It may be closed.
c. Check vertical elevation of discharge pipe. It may be higher than pump can support.
d. Pump inlet may be plugged. Remove pump to check.
e. Level control ball or weight may be stuck on side of basin. Be sure it floats freely.
WARNING RISK OF ELECTRICAL SHOCK. Always unplug power cords or turn off all main and branch circuit breakers before doing any work on the pump.
If control panel is remote from pump, disconnect lead wires to motor so that no one can turn the circuit breaker back on.
WIRING DIAGRAMS

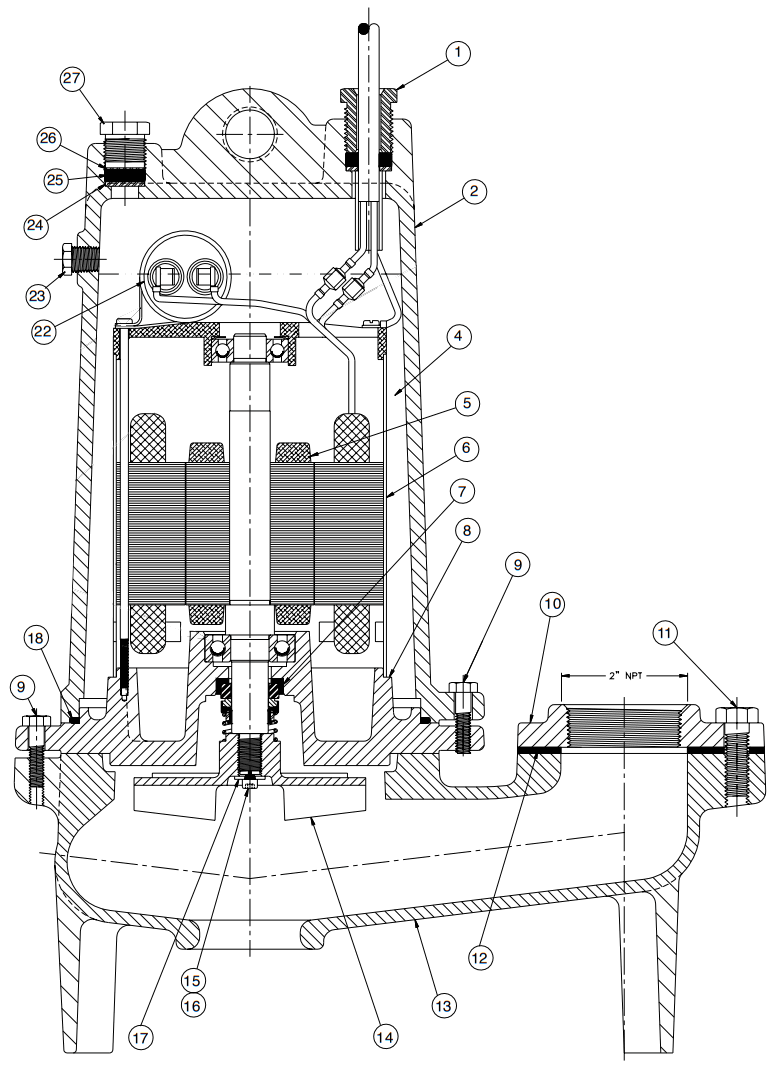
REPAIR PARTS LIST
| Ref. | Description | Qty. | Part Number |
| 1 | Cord, Power | 1 | See Chart |
| 2 | Housing Motor | 1 | 253270000P |
| 4 | Oil, Transformer (5 gal.) | .8-1 gal | RTF |
| 5&6 | Stator, Rotor shaft with shell | 1 | See Chart |
| 6A | Connectors (3 ph only) | 3-6 | 15781A001 |
| 7 | Seal, shaft | 1 | 25370A000 |
| 8 | Plate, brg & seal | 1 | 25367D000 |
| 9 | Screw, cap, 5/16 x 1-1/4 | 8 | 19100A012 |
| 10 | Flange, 2″ CI | 8 | 2080002 |
| 10 | Flange, 3″ CI alternate | 8 | 2070002 |
| 11 | Screw, cap, 1/2-13 x 1-1/2 | 2 | 19103A043 |
| 12 | Gasket, rubber | 1 | 3240011 |
| 13 | Case, volute | 1 | 27195E000 |
| Ref. | Description | Qty. | Part Number |
| 14 | Impeller, DI (std. series) | 1 | See Chart |
| 15 | Screw, Machine #10 x 3/8 | 1 | 06106A042 |
| 16 | Sealant (Grade 271 Loctite`) | 1 | 14550A001 |
| 17 | Washer, Impeller Retainer | 1 | 05030A262 |
| 18 | Gasket, tetraseal, 7×6-3/4×1/8 | 1 | 05014A181 |
| 22 | Capacitor (1 ph only) | 1 | See Chart |
| 23 | Plug, 1/4″ pipe | 1 | 05022A092 |
| 24 | Washer, 3/32″ Thk. | 1 | 05030A235 |
| 25 | Gasket, rubber | 1 | 05014A193 |
| 26 | Washer, 1/32″ Thk. | 1 | 05030A234 |
| 27 | Nut, cord plug, solid | 1 | 25341A002 |
*For units manufactured before Aug-2007, contact factory for parts.
VARIABLE PARTS CHART
| HP | Volts | ph | Power Cord w/ Plug | Power Cord No Plug | Cap. | Stator Rotor and Shaft Assembly | WHRH Impeller DI |
| 1/2 | 115 | 1 | 25338B004 | 25338B006 | 23839A000 | 25484D100 | 27194C002 |
| 1/2 | 208 | 1 | 25338B006 | 23839A000 | 25484D101 | 27194C002 | |
| 1/2 | 230 | 1 | 25338B005 | 25338B006 | 23839A000 | 25484D101 | 27194C002 |
| 1/2 | 208 | 3 | 25338B003 | 25484D102 | 27194C002 | ||
| 1/2 | 230 | 3 | 25338B003 | 25484D102 | 27194C002 | ||
| 1/2 | 460 | 3 | 25338B003 | 25484D102 | 27194C002 | ||
| 1/2 | 575 | 3 | 25338B003 | 25484D103 | 27194C002 | ||
| 1 | 208 | 1 | 25338B002 | 23838A000 | 25484D104 | 27194C001 | |
| 1 | 230 | 1 | 25338B001 | 25338B002 | 23838A000 | 25484D105 | 27194C001 |
| 1 | 208 | 3 | 25338B003 | 25484D106 | 27194C001 | ||
| 1 | 230 | 3 | 25338B003 | 25484D106 | 27194C001 | ||
| 1 | 460 | 3 | 25338B003 | 25484D106 | 27194C001 | ||
| 1 | 575 | 3 | 25338B003 | 25484D107 | 27194C001 | ||
| 1-1/2 | 208 | 1 | 25338B002 | 23838A000 | 25484D104 | 27194C004 | |
| 1-1/2 | 230 | 1 | 25338B001 | 25338B002 | 23838A000 | 25484D105 | 27194C004 |
| 1-1/2 | 208 | 3 | 25338B003 | 25484D106 | 27194C004 | ||
| 1-1/2 | 230 | 3 | 25338B003 | 25484D106 | 27194C004 | ||
| 1-1/2 | 460 | 3 | 25338B003 | 25484D106 | 27194C004 | ||
| 1-1/2 | 575 | 3 | 25338B003 | 25484D107 | 27194C004 | ||
| 2 | 208 | 1 | 25338B009 | 23839A000 | 25484D108 | 27194C011 | |
| 2 | 230 | 1 | 25338B009 | 26520A000 | 25484D109 | 27194C011 | |
| 2 | 208 | 3 | 25338B008 | 25484D111 | 27194C011 | ||
| 2 | 230 | 3 | 25338B008 | 25484D111 | 27194C011 | ||
| 2 | 460 | 3 | 25338B003 | 25484D111 | 27194C011 | ||
| 2 | 575 | 3 | 25338B003 | 25484D112 | 27194C011 |
DIMENSIONS [dimensions in mm]
TYPICAL SECTION DRAWING

Limited Warranty
F.E. MYERS warrants to the original consumer purchaser (“Purchaser” or “You”) of the products listed below, that they will be free from defects in material and workmanship for the Warranty Period shown below.
| Product | Warranty Period |
| Jet pumps, small centrifugal pumps, submersible pumps and related accessories | whichever occurs first: 12 months from date of original installation, or 18 months from date of manufacture |
| Fibrewound Tanks | 5 years from date of original installation |
| Steel Pressure Tanks | 5 years from date of original installation |
| Sump/Sewage/Effluent Products | 12 months from date of original installation, or 24 months from date of manufacture |
Our warranty will not apply to any product that, in our sole judgement, has been subject to negligence, misapplication, improper installation, or improper maintenance. Without limiting the foregoing, operating a three phase motor with single phase power through a phase converter will void the warranty. Note also that three phase motors must be protected by three-leg, ambient compensated, extra-quick trip overload relays of the recommended size or the warranty is void.
Your only remedy, and F.E. MYERS’s only duty, is that F.E. MYERS repair or replace defective products (at F.E. MYERS’s choice). You must pay all labor and shipping charges associated with this warranty and must request warranty service through the installing dealer as soon as a problem is discovered. No request for service will be accepted if received after the Warranty Period has expired. This warranty is not transferable.
F.E. MYERS SHALL NOT BE LIABLE FOR ANY CONSEQUENTIAL, INCIDENTAL, OR CONTINGENT DAMAGES WHATSOEVER. THE FOREGOING LIMITED WARRANTIES ARE EXCLUSIVE AND IN LIEU OF ALL OTHER EXPRESS AND IMPLIED WARRANTIES, INCLUDING BUT NOT LIMITED TO IMPLIED WARRANTIES OF MERCHANTABILITY AND FITNESS FOR A PARTICULAR PURPOSE. THE FOREGOING LIMITED WARRANTIES SHALL NOT EXTEND BEYOND THE DURATION PROVIDED HEREIN.
Some states do not allow the exclusion or limitation of incidental or consequential damages or limitations on the duration of an implied warranty, so the above limitations or exclusions may not apply to You. This warranty gives You specific legal rights and You may also have other rights which vary from state to state.
This Limited Warranty is effective June 1, 2011 and replaces all undated warranties and warranties dated before June 1, 2011.
F.E. MYERS
293 Wright Street, Delavan, WI 53115
Phone: 888-987-8677 • Fax: 800-426-9446 • www.femyers.com
In Canada: P. O. Box 9138, 269 Trillium Dr., Kitchener, Ontario N2G 4WS
Phone: 519-748-5470 • Fax: 888-606-5484


















