LIGHTING THE WAY FOR SIXTY YEARS
ASSEMBLY INSTRUCTION MODEL #9595—MK
9595-MK Light Chandelier

![]()
Al electrical components must be installed by a licensed electrician in accordance with the National Electric Code and the appropriate local electrical codes.
![]()
You will need 5 – Candy. Bulb 40 Watts Recommended 60 Watts Max USE LED BULBS FOR EXTENDED USE This fixture is dry rated
How to Install
- Place the frame on a soft cloth covered table before installation.
- Screw the loop onto the top of frame.
- Attach the support bar onto the inner cage using M6 using a screwdriver. screws. Tighten the screws
- Align the hole on support bar on inner cage with the hole on the top of outer cage. Secure with 8—32 screws.
- Attach the shade onto the frame using a nut.
- Attach the fixture to the chain using the top loop then mount the canopy to the ceiling.
WARNING: This product can expose you to Lead, which is known to the State of California to cause cancer and/or birth defects or reproductive harm. For more information go to www.P65Warnings.ca.gov

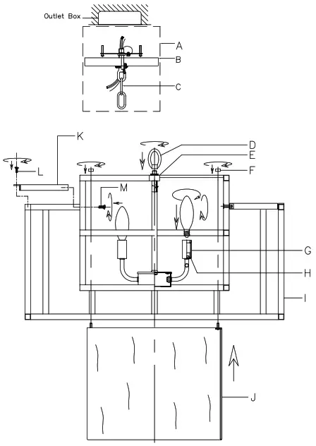
Part Number
Part Numbers
A. (1)-Mounting Hardware
B. (1)-Canopy; W7 “XH0.75″ XSU9595MKCAN7IN
C. (1)—Chain; 72″; 4.0mm; XSU9595MKCHA4MM
D. (1)-Top Loop
E. (1)—Inner Cage
F. (3)—Nut; XSU9595MKBALL
G. (5)—Candle Sleeve; $0.75″X1.75″; XSU9595MKCDL1.75IN
H. (5)—Socket
I. (1)=Outer Cage
J. (1)-Shade; #13″X10.875″; XSU9595MKSHA13IN
K. (3)—Support bar
L. (3)-8/32” Screw
M. (3)-M6 Screw
















