120V Brick Light
Instruction Manual
BEFORE YOU START
- Please check local Electrical codes before beginning
- Turn power off before installing
- Make sure to use properly rated wire
TOOLS NEEDED
- Keyhole or jig saw
- Phillips screwdriver
PARTS INCLUDED
- Brick Light Assembly
- Leveling Brackets
NOTE: DO NOT INSTALL IN ENVIRONMENT THAT IS OUTSIDE THE LISTED AMBIENT TEMPERATURE FOR THIS FIXTURE, AND IN AN AREA THAT IS NOT EASILY ACCESSIBLE FOR SERVICE REQUIREMENTS.

NOTE: WE RECOMMEND THAT YOU ENGAGE A QUALIFIED AND LICENSED ELECTRICIAN. OPERATING TEMP.: -4° TO 122°F (-20° TO +50°C). WET LOCATION INSTALLATION: BRICK LIGHT UTILIZES A
WATERPROOF ROUGH-IN HOUSING THAT INCLUDES A BUILT-IN GASKET. TAKE CARE NOT TO DAMAGE THE GASKET DURING INSTALLATION.
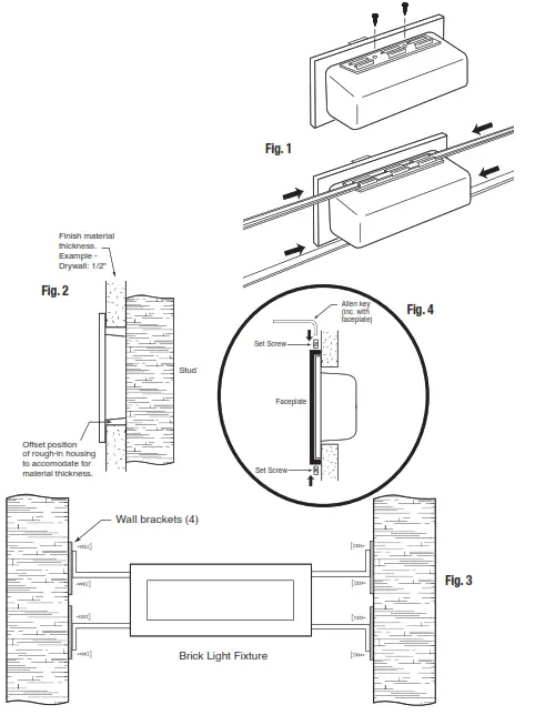
CONSULT BOTH DIAGRAMS ABOVE TO AID IN YOUR INSTALLATION. INSTALLING WITH HANGER-BARS INSTRUCTIONS ON NEXT PAGE.
- DETERMINE LOCATION. Cut out a 7.25”W x 2.5” aperture hole using the Rough-In Housing as a template for locating position of screws.
- NPS PLUG. Determine which of the 1/2” NPS holes will be used and remove plug(s). Secure Rough-In Housing using appropriate screws or fasteners depending on material that you are mounting to.
- CONNECT WIRING. Once the Rough-In Housing is secured, connect the LED Light Engine housing’s lead wires to source, matching polarity. black to black, white to white and green (ground) to green.
- SEAT LED LIGHT ENGINE HOUSING into the Rough-In Housing. Use leveling brackets to insure level installation. Place Brick Light Faceplate over the top to
be flush with mounting surface. Secure on either end with supplied allen-head screws. - AFFIX TRIM TO HOUSING using set screw and supplied allen wrench.
- POWER UP and make any adjustments to faceplate positioning. Make sure that scoop and louver trims are properly positioned facing down. Questions on installation? Please see our website or send an e-mail to: [email protected]
INSTALLING WITH HANGER-BARS (SOLD SEPARATELY) CAN BE ACHIEVED BY FOLLOWING THESE STEPS (DISCARD LEVELING BRACKETS IF USING THIS PROCEDURE):
- ATTACH ARM BRACKETS AND HANGER-BAR ARMS. Screw arm brackets in place on top and on bottom of rough-in housing (Fig. 1). Slide arms into guides
making sure that they can move freely. - DETERMINE DEPTH OF FINISH MATERIAL. Your finish material can be anything from drywall to sheet rock. Example: If drywall is 1/2”, back off the
flange so that it sits flush with mounting surface (Fig. 2). - MOUNT BRACKETS TO STUDS. Attach stud mounting bracket on stud, and then screw mounting brackets to studs. Use a level to insure correct placement. Finish surface as appropriate (Fig. 3).
- ATTACH FACE PLATE. See cross section detail (Fig. 4). Using set screws and allen key (supplied) tighten so that faceplate sits securely on rough-in housing.

©2021 GM Lighting Specifications are subject to change without notice.
18700 Ridgeland Ave.,
Tinley Park, IL 60477
Toll-Free: (866) 671-0811
FAX: (708) 478-2640
www.gmlighting.net
[email protected]



















