AL-KO 175F(D)S Gasoline Engine

Important Safety Instructions
Keep this owner’s manual handy, so you can refer to it at any time.
This owner’s manual is considered a permanent part of the engine and should remain with the engine if resold.
The information and specifications included in this publication were in effect at the time of approval for printing.
Only the D Type is equipped for both electric and manual starting.
READ THIS OWNER’S MANUAL CAREFULLY. Pay special attention to these symbols and any instructions that follow:
Indicates serious injury or death will result if instructions are not followed.
Indicates a strong possibility that serious injury or death could result if instructions are not followed.
Indicates a possibility that minor injury or an result if instructions are not followed.
Indicates that equipment or property damage can result if instructions are not followed.
NOTE: Gives helpful information.
If a problem should arise, or if you have any questions about your engine, consult your
engine dealer.
ENGINE SAFETY
IMPORTANT SAFETY INFORMATION
Most accidents with engines can be prevented if you follow all instructions in this manual and on the engine. Some of the most common hazards are discussed below, along with the best way to protect yourself and others.
Owner Responsibilities
- The engines are designed to give safe and dependable service if operated according to instructions. Read and understand this owner’s manual before operating the engine. Failure to do so could result in personal injury or equipment damage.
- Know how to stop the engine quickly, and understand the operation of all controls. Never permit anyone to operate the engine without proper instructions.
- Do not allow children to operate the engine. Keep children and pets away from the area of operation.
Refuel With Care
Gasoline is extremely flammable, and gasoline vapor can explode. Refuel outdoors, in a well-ventilated area, with the engine stopped. Never smoke near gasoline, and keep other flames and sparks away. Always store gasoline in an approved container. If any fuel is spilled, make sure the area is dry before starting the engine.
Hot Exhaust
- The muffler becomes very hot during operation and remains hot for a while after stopping the engine. Be careful not to touch the muffler while it is hot. Let the engine cool before storing it indoors.
- To prevent fire hazards and to provide adequate ventilation for stationary equipment applications, keep the engine at least 3 feet (1 meter) away from building walls and other equipment during operation. Do not place flammable objects close to the engine.
Carbon Monoxide Hazard
Exhaust gas contains poisonous carbon monoxide. Avoid inhalation of exhaust gas. Never run the engine in a closed garage or confined area.
Other Equipment
Review the instructions provided with the equipment powered by this engine for any additional safety precautions that should be observed in conjunction with engine startup,
shutdown, operation, or protective apparel that may be needed to operate the equipment.
COMPONENTS & CONTROL LOCATIONS

CONTROLS
Engine Switch
The engine switch enables and disables the ignition system. The engine switch must be put in for the engine to run. Putting out the engine switch to stops the engine.

KNOB FUEL SWITCH
The fuel valve knob opens and closes the passage between the fuel tank and the carburetor. The fuel valve knob must be in the ON position for the engine to run. When the engine is not in use, leave the fuel valve knob in the OFF position to prevent carburetor flooding and to reduce the possibility of fuel leakage.

Choke Lever
The choke lever opens and closes the choke valve in the carburetor.
The CLOSE position enriches the fuel mixture for starting a cold engine.
The OPEN position provides the correct fuel mixture for operation after starting, and for restarting a warm engine.

Recoil Starter Grip
Pulling the starter grip or using the starter motor operates the recoil starter to crank the engine.


Throttle Lever
The throttle lever controls engine THROTTLE LEVER speed.
Moving the throttle lever in the directions shown makes the engine run faster or slower
If engine have a turn off a switch in SLOW positon ,In the end of the low speed, the engine will stop.Label add” STOP” Symbol

Priming Pump
The Priming Pump supply more fuel to the carburetor when starting the engine in the low temperature.
When you put the Priming Pump ,you should not put more than three times.
CHECK BEFORE OPERATION
IS YOUR ENGINE READY TO GO?
For your safety, and to maximize the service life of your equipment, it is very important to take a few moments before you operate the engine to check its condition. Be sure to take care of any problem you find, or have your servicing dealer correct it, before you operate the engine.
Improperly maintaining this engine, or failing to correct a problem before operation, could cause a malfunction in which you could be seriously injured.
Always perform a preoperation inspection before each operation, and correct any problem.
Before beginning your preoperation checks, be sure the engine is level and the engine switch is out off the key hole.
Check the General Condition of the Engine
- Look around and underneath the engine for signs of oil or gasoline leaks.
- Remove any excessive dirt or debris, especially around the muffler and recoil starter.
- Look for signs of damage
- Check that all shields and covers are in place, and all nuts, bolts, and screws are tightened.
Check the Engine
Check the engine oil level. Running the engine with a low oil level can cause engine damage. Check the engine oil level before startup.
Check the air filter. A dirty air filter will restrict air flow to the carburetor, reducing engine performance.
Check the fuel level. Starting with a full tank will help to eliminate or reduce operating interruptions for refueling.
Check the Equipment Powered by This Engine
Review the instructions provided with the equipment powered by this engine for any precautions and procedures that should be followed before engine startup.
OPERATION
SAFE OPERATING PRECAUTIONS
Before operating the engine for the first time, please review the IMPORTANT SAFETY INFORMATION and the chapter titled BEFORE OPERATION.
Carbon monoxide gas is toxic.
Breathing it can cause unconsciousness and even kill you. Avoid any areas or actions that expose you to carbon monoxide.
STARTING THE ENGINE
- Move the fuel valve lever to the ON position

- To start a cold engine, move the choke lever to the CLOSE position.
To restart a warm engine, leave the choke lever in the OPEN position.
Some engine applications use a remotely-mounted choke control rather than the engine-mounted choke lever shown here.
- Move the throttle lever away from the SLOW position to FAST position.
Some engine applications use a remotely-mounted throttle control rather than the engine-mounted throttle lever shown here.
- Put the engine switch in the key hole.

- Priming Pump
In the low temperature environment, press down primer 3 times before start cold
engine; No need priming for hot engine.
- Rate the starter.
RECOIL STARTER (all engine types):
Pull the starter grip lightly until you feel resistance, then pull briskly.
Return the starter grip gently.
ELECTRIC STARTER (some engine types):
Plug the plug cap in electrical source carefully, then press the starter.
When the engine running, pull out the plug cap from the electric source.

To prevent damaging the electric starter, run it no ,more than 10 times at intervals of 5 seconds on, then 5 seconds off .If the engine does not start after this series of attempts, allow the starter to cool for at least 40 minutes before trying to start it again. If the engine still does not start, take the engine to an Authorized Service Dealer for service. - The choke lever has been moved to the CLOSE position to start the engine, gradually move it to the OPEN position as the engine warms up.

tarting the Engine, carefully note the following: Due to engine work in low-temprature, engine can marm up more than 30 s .If inconsistent engine speeds are experienced when Choke Lever is rotated Run Position:
- Move Choke Lever to Mid-Point Between Run and Start Positions and allow Engine to develop additional operating heat.
- After Engine has warmed up ,rotate Choke Lever to Run Position.
STOPPING THE ENGINE
To stop the engine in an emergency, simply pull out the engine switch. Under normal
conditions, use the following procedure.
- Move the throttle lever to the SLOW position.
Move the throttle lever to the SLOW position.
Some engine applications use a remotely-mounted throttle control rather than the engine-mounted throttle lever slow to stop here.
If engine have a turn off a switch in SLOW position ,In the end of the low speed, the engine will stop. Label add” STOP” Symbol
- Pull out the engine switch.

- Turn the fuel valve lever to the OFF position.

SETTING ENGINE SPEED
Position the throttle lever for the desired engine speed.
Some engine applications use a remotely-mounted throttle control rather than the engine-mounted throttle lever shown here.
For engine speed recommendations, refer to the instructions provided with the equipment powered by this engine
If engine have a turn off a switch in SLOW position ,In the end of the low speed, the engine will stop. Label add” STOP” Symbol.
MAINTENANCE
THE IMPORTANCE OF MAINTENANCE
Good maintenance is essential for safe, economical, and trouble-free operation. It will also help reduce air pollution
Improperly maintaining this engine, or failure to correct a problem before operation, can cause a malfunction in which you can be seriously hurt or killed. Always follow the inspection and maintenance recommendations and schedules in this owner’s manual.
To help you properly care for your engine, the following pages include a maintenance schedule, routine inspection procedures, and simple maintenance procedures using basic hand tools. Other service tasks that are more difficult, or require special tools, are best handled by professionals and are normally performed by a technician or other qualified mechanic.
The maintenance schedule applies to normal operating conditions. If you operate your engine under unusual conditions, such as sustained high-load or high-temperature operation, or use in unusually wet or dusty conditions, consult your servicing dealer for recommendations applicable to your individual needs and use.
MAINTENANCE SAFETY
Some of the most important safety precautions are as follows: However, we cannot warn you of every conceivable hazard that can arise in performing maintenance.
Only you can decide whether or not you should perform a given task.
Failure to properly follow maintenance instructions and precautions can cause you to be seriously hurt or killed.
Always follow the procedures and precautions in the owner’s manual.
Safety Precautions
- Make sure the engine is off before you begin any maintenance or repairs. This will eliminate several potential hazards:
- Carbon monoxide poisoning from engine exhaust.
Be sure there is adequate ventilation whenever you operate the engine. - Burns from hot parts.
Let the engine and exhaust system cool before touching. - Injury from moving parts.
Do not run the engine unless instructed to do so. - Read the instructions before you begin, and make sure you have the tools and skills required.
- To reduce the possibility of fire or explosion, be careful when working around gasoline. Use only a nonflammable solvent, not gasoline, to clean parts. Keep cigarettes, sparks and flames away from all fuel-related parts.
Remember that your servicing dealer knows your engine best and is fully equipped to maintain and repair it.
To ensure the best quality and reliability, use only new, genuine parts or their equivalents for repair and replacement.
MAINTENANCE SCHEDULE
| REGULAR SERVICE PERIOD Performed at every indicated month or operating hour interval, whichever comes first. | Each use | First month or 20 Hrs. | Every 3 months or 50 Hrs. | Every 6 months or 100 Hrs. | Every year or 150Hrs. | ||
| ITEM | |||||||
| ● | Engine oil | Check level | ○ | ||||
| Change | ○ | ○ | |||||
| ● | Sediment Cup | Clean | ○ | ||||
| ● | Spark plug | Check-Clean | ○ | ||||
| Replace | ○ | ||||||
| Spark arrester (optional parts) | Clean | ○ | |||||
| ● | Idle speed | Check-Adjust | ○ (2) | ||||
| ● | Valve clearance | Check-Adjust | ○ (2) | ||||
| ● | Fuel tank and strainer | Clean | ○ (2) | ||||
| ● | Combustion chamber | Clean | After every 150 Hrs. (2) | ||||
| ● | Fuel line | Check | Every 2 years (Replace if necessary) (2) | ||||
- Emission-related items.
☆ Replace the paper element type only.
(2)These items should be serviced by your servicing dealer unless you have the proper tools and are mechanically proficient. Refer to manual for service procedures
REFUELING
With the engine stopped, remove the fuel tank cap and check the fuel level. Refill the tank if the fuel level is low.
Gasoline is highly flammable and explosive. You can be burned or seriously injured when handling fuel.
- Stop the engine and keep heat, sparks, and flame away.
- Handle fuel only outdoors.
- Wipe up spills immediately

Refuel in a well-ventilated area before starting the engine. If the engine has been running, allow it to cool. Refuel carefully to avoid spilling fuel. Do not fill above the fuel strainer shoulder. After refueling, tighten the fuel tank cap securely.
Never refuel the engine inside a building where gasoline fumes may reach flames or sparks. Keep gasoline away from appliance pilot lights, barbecues, electric appliances, power tools, etc.
Spilled fuel is not only a fire hazard, it causes environmental damage. Wipe up spills immediately.
Fuel can damage paint and plastic. Be careful not to spill fuel when filling your fuel tank. Damage caused by spilled fuel is not covered under warranty.
FUEL RECOMMENDATIONS
Use unleaded gasoline with a pump octane rating of 86 or higher,You can also use other fuels, such as ethanol gasoline These engines are certified to operate on unleaded gasoline. Unleaded gasoline produces fewer engine and spark plug deposits and extends exhaust system life.
Never use stale or contaminated gasoline or an oil/gasoline mixture. Avoid getting dirt or water in the fuel tank.
Occasionally you may hear a light ‘‘spark knock’’ or ‘‘pinging’’ (metallic rapping noise) while operating under heavy loads. This is no cause for concern.
If spark knock or pinging occurs at a steady engine speed, under normal load, change brands of gasoline. If spark knock or pinging persists, see an authorized servicing dealer
Running the engine with persistent spark knock or pinging can cause engine damage.
Running the engine with persistent spark knock or pinging is considered misuse, and the Distributor’s Limited Warranty does not cover parts damaged by misuse. ENGINE OIL LEVEL CHECK Check the engine oil level with the engine stopped and in a level position.
- Remove the filler cap/dipstick and wipe it clean.

- Insert and remove the dipstick without screwing it into the filler neck. Check the oil level shown on the dipstick.
- If the oil level is low, fill to the edge of the oil filler hole with the recommended oil.
- Screw in the filler cap/dipstick secure
Running the engine with a low oil level can cause engine damage.
ENGINE OIL CHANGE
Drain the used oil while the engine is warm. Warm oil drains quickly and completely.
- Place a suitable container below the engine to catch the used oil, and then remove the filler cap and the drain plug.
- Allow the used oil to drain completely, and then reinstall the drain plug, and tighten it securely.
Please dispose of used motor oil in a manner that is compatible with the environment. We suggest you take used oil in a sealed container to your local recycling center or service station for reclamation. Do not throw it in the trash; pour it on the ground; or down a drain. - With the engine in a level position, fill to the outer edge of the oil filler hole with the recommended oil.

Engine oil capacities:
175F(D)S/180F(D)S:0.95 L
185F(D)S/190F(D)S:1.1L
Running the engine with a low oil level can cause engine damage.
The Oil Alert system (applicable engine types) will automatically stop the engine before the oil level falls below the safe limit.
However, to avoid the inconvenience of an unexpected shutdown, fill to the upper limit, and check the oil level regularly. - Screw in the filler cap/dipstick securely
ENGINE OIL RECOMMENDATIONS
Using the proper type and weight of oil in the engine is extremely important, as isdaily checking of oil level oil, or using dirty oil, will cause premature engine wear and failure.
Oil Type
When the ambient temperature is under -25℃, SAE 0W-30/40 is recommended for general use; when the ambient temperature is above -25℃ but under 4.4℃, SAE 5W-30 or 0W-30/40 is recommended for general use. The SA oil viscosity and service classification are in the API label on the oil container. We recommend that you use API SERVICE Category SF or higher class oil.
SPARK PLUG SERVICE
Recommended spark plugs: F7RTC or other equivalents
An incorrect spark plug can cause engine damage.
- Disconnect the spark plug cap, and remove any dirt from around the spark plug area.
- Remove the spark plug with a spark plug wrench.
- Inspect the spark plug. Replace it if the electrodes are worn, or if the insulator is cracked or chipped.
- Measure the spark plug electrode gap with a suitable gauge.
The gap should be 0.028 in -0.031 in (0.70 mm – 0.80 mm). Correct the gap, if necessary, by carefully bending the side electrode. - Install the spark plug carefully, by hand, to avoid cross-threading.
- After the spark plug seats, tighten with a spark plug wrench to compress the water. If reinstalling the used spark plug ,tighten 1/8 turn – 1/4 turn after the spark plug seats.
If installing a new spark plug, tighten 1/2 turn after the spark plug seats.
A loose spark plug can overheat and damage the engine. Over tightening the spark plug can damage the threads in the cylinder head - Attach the spark plug cap
IDLE SPEED ADJUSTMENT
- Start the engine outdoors, and allow it to warm up to operating temperature.
- Move the throttle lever to its slowest position.
- Turn the throttle stop screw to obtain the standard idle speed.
Standard idle speed: 2000 rpm±200 rpm
STORAGE/ TRANSPORTING
STORING YOUR ENGINE
Storage Preparation
Proper storage preparation is essential for keeping your engine trouble free and looking good. The following steps will help to keep rust and corrosion from impairing your engine’s function and appearance, and will make the engine easier to start after storage.
Cleaning
If the engine has been running, allow it to cool for at least half an hour before cleaning.
Clean all exterior surfaces, touch up any damaged paint, and coat other areas that may rust with a light film of oil.
Using a garden hose or pressure washing equipment can force water into the air cleaner or muffler opening. Water in the air cleaner will soak the air filter, and water that passes through the air filter or muffler can enter the cylinder, causing damage
Water contacting a hot engine can cause damage. If the engine has been running, allow it to cool for at least half an hour before washing
Fuel
Gasoline will oxidize and deteriorate in storage. Old gasoline will cause hard starting,
and it leaves gum deposits that clog the fuel system. If the gasoline in your engine deteriorates
during storage, you may need to have the carburetor and other fuel system components serviced or replaced.
The length of time that gasoline can be left in your fuel tank and carburetor without causing functional problems will vary with such factors as gasoline blend, your storage temperatures, and whether the fuel tank is partially or completely filled. The air in a partially filled fuel tank promotes fuel deterioration. Very warm storage/temperatures accelerate fuel deterioration. Fuel deterioration problems may occur within a few months, or even less if the gasoline was not fresh when you filled the fuel tank.
The Distributor’s Limited Warranty does not cover fuel system damage or engine performance problems resulting from neglected storage preparation.
You can extend fuel storage life by adding a fuel stabilizer that is formulated for that purpose, or you can avoid fuel deterioration problems by draining the fuel tank and carburetor
ADDING A FUEL STABILIZER TO EXTEND FUEL STORAGE LIFE
When adding a fuel stabilizer, fill the fuel tank with fresh gasoline. If only partially filled, air in the tank will promote fuel deterioration during storage. If you keep a container of gasoline for refueling, be sure that it contains only fresh gasoline.
- Add fuel stabilizer following the manufacturer’s instructions.
- After adding a fuel stabilizer, run the engine outdoors for 10 minutes to be sure that treated gasoline has replaced the untreated gasoline in the carburetor.
- Stop the engine, and move the fuel valve to the OFF position.
DRAINING THE FUEL TANK AND CARBURETOR
- Place an approved gasoline container below the carburetor, and use a funnel to avoid spilling fuel.
- Remove the carburetor drain bolt, and then pull out the fuel tube.

- After all the fuel has drain into the container, reinstall the drain bolt and fuel tube. Tighten them securely.
·The length of time that gasoline can be left in your fuel tank and carburetor without causing functional problems will vary with such factors as gasoline blend, your storage temperatures, and whether the fuel tank is partially or completely filled. The air in a partially filled fuel tank promotes fuel deterioration. Very warm storage temperatures accelerate fuel deterioration. Gasoline will oxidize and deteriorate in storage. Deteriorated gasoline will cause hard starting, and it leaves gum deposits that clog the fuel system. As a result, If the engine is not used for more than one month, the fuel oil shall be drained thoroughly to prevent from deterioration of the fuel in fuel system and carburetor. ·The failures of fuel system or engine performance arising from improper storage are beyond the scope of the warranty
Storage Precautions
- Change the engine oil.
- Remove the spark plugs
- Pour a tablespoon (5-10 cc) of clean engine oil into the cylinder.
- Pull the starter rope several times to distribute the oil in the cylinder.
- Reinstall the spark plugs.
- Pull the starter rope slowly until resistance is felt. This will close the valves so moisture cannot enter the engine cylinder. Return the starter rope gently.
If your engine will be stored with gasoline in the fuel tank and carburetor, it is important to reduce the hazard of gasoline vapor ignition. Select a well-ventilated storage area away from any appliance that operates with a flame, such as a furnace, water heater, or clothes dryer. Also avoid any area with a spark-producing electric motor, or where power tools are operated.
If possible, avoid storage areas with high humidity, because that promotes rust and corrosion.
Be sure all fuel has been drained from the fuel tank, to reduce the possibility of fuel leakage.
Position the equipment so the engine is level. Tilting can cause fuel or oil leakage. With the engine and exhaust system cool, cover the engine to keep out dust. A hot engine and exhaust system can ignite or melt some materials. Do not use sheet plastic as a dust cover. A nonporous cover will trap moisture around the engine, promoting rust and corrosion.
If equipped with a battery for an electric starter, recharge the battery once a month while the engine is in storage. This will help to extend the service life of the battery. Removal from Storage Check your engine as described in the chapter CHECK BEFORE OPERATION.
If the fuel was drained during storage preparation, fill the tank with fresh gasoline. If you keep a container of gasoline for refueling, be sure that it contains only fresh gasoline. Gasoline oxidizes and deteriorates over time, causing hard starting.
If the cylinders were coated with oil during storage preparation, the engine may smoke briefly at startup. This is normal.
TRANSPORTING
If the engine has been running, allow it to cool for at least 15 minutes before loading the engine-powered equipment on the transport vehicle. A hot engine and exhaust system can burn you and can ignite some materials.
Keep the engine level when transporting to reduce the possibility of fuel leakage.
TROUBLESHOOTING
| ENGINE WILL NOT START | Possible Cause | Correction |
| 1. Electric starting: check battery | Battery discharged. | Recharge battery. |
| 2. Check control positions | Choke OPEN. | Move lever to CLOSE unless engine is warm. |
| Engine switch pull out. | Put engine switch in. | |
| 3. Check fuel. | Out of fuel. | Refuel |
| Bad fuel; engine stored without treating or draining gasoline, or refueled with bad gasoline. | Drain fuel tank and carburetor. Refuel with fresh gasoline. | |
| 4. Remove and inspect spark plugs. | Spark plugs faulty, fouled, or improperly gapped. | Gap, or replace spark plugs. |
| Spark plugs wet with fuel (flooded engine). | Dry and reinstall spark plugs. Start engine with throttle lever in FAST position. | |
| 5. Take engine to an authorized servicing dealer, or refer to manual. | Fuel filter clogged, carburetor malfunction, ignition malfunction, valve stuck, etc. | Replace or repair faulty components as necessary. |
| Out of fuel. | Refuel |
| Bad fuel; engine stored without treating or draining gasoline, or refueled with bad gasoline. | Drain fuel tank and carburetor. Refuel with fresh gasoline. | |
| 2. Take engine to an authorized servicing dealer, or refer to manual. | Fuel filter clogged, carburetor malfunction, ignition malfunction, valve stuck, etc. | Replace or repair faulty components as necessary. |
TECHNICAL & CONSUMER INFORMATION
TECHNICAL INFORMATION

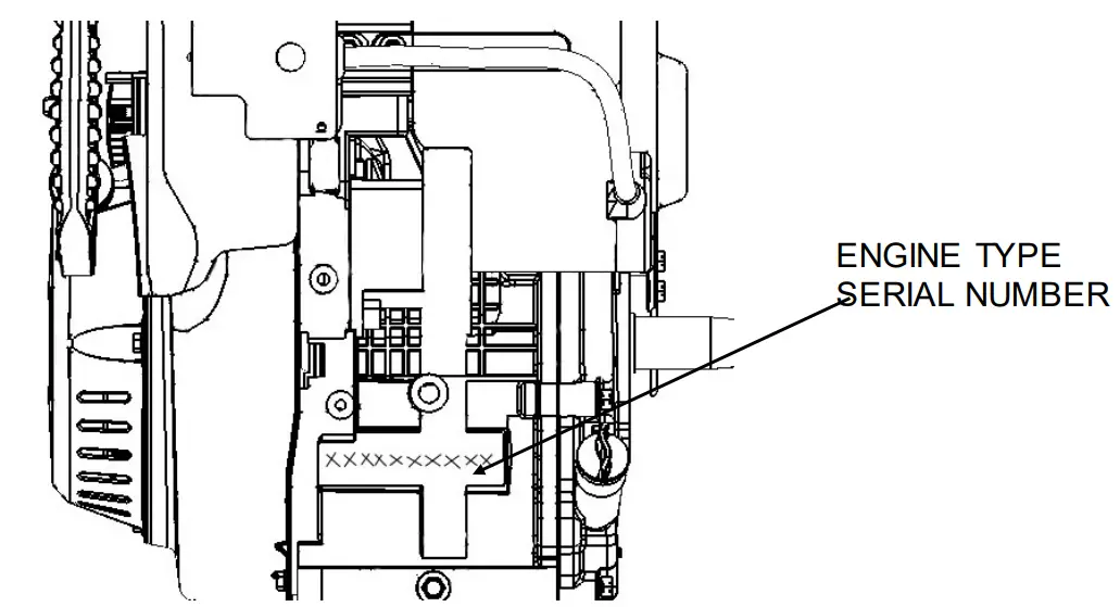
Record the engine serial number in the space below. You will need this serial number when ordering parts, and when making technical or warranty inquires.
Engine serial number:
Battery Connections for Electric Starter
Use a 12-volt battery with an ampere-hour rating of at least 14 Ah.
Be careful not to connect the battery in reverse polarity, as this will short circuit the battery charging system. Always connect the positive (+) battery cable to the battery terminal before connecting the negative (-) battery cable, so your tools cannot cause a short circuit if they touch a grounded part while tightening the positive (+) battery cable end.
A battery can explode if you do not follow the correct procedure, seriously injuring anyone nearby.
Keep all sparks, open flames, and smoking materials away from the battery
- Connect the battery positive (+) cable to the starter solenoid terminal as shown.
- Connect the battery negative (-) cable to an engine mounting bolt, frame bolt, or other good engine ground connection.
- Connect the battery positive (+) cable to the battery positive (+) terminal as shown.
- Connect the battery negative (-) cable to the battery negative (-) terminal as shown.
- Coat the terminals and cable ends with grease.

Control box of wiring

Carburetor Modification for High Altitude Operation
At high altitude, the standard carburetor air-fuel mixture will be too rich. Performance will decrease, and fuel consumption will increase. A very rich mixture will also foul the spark plug and cause hard starting. Operation at an altitude that differs from that at which this engine was certified, for extended periods of time, may increase emissions.
High altitude performance can be improved by specific modifications to the carburetor. If you always operate your engine at altitudes above 5,000 feet (1,500 meters), have your
servicing dealer perform this carburetor modification. This engine, when operated at high altitude with the carburetor modifications for high altitude use, will meet each emission standard throughout its useful life.
TECHNICAL & CONSUMER INFORMATION
Even with carburetor modification, engine horsepower will decrease about 3.5% for each
1,000-foot (300-meter) increase in altitude. The effect of altitude on horsepower will be greater than this if no carburetor modification is made
When the carburetor has been modified for high altitude operation, the air-fuel mixture will be too lean for low altitude use. Operation at altitudes below 5,000 feet (1,500meters) with a modified carburetor may cause the engine to overheat and result in serious engine damage. For use at low altitudes, have your servicing .
dealer return the carburetor to original factory specifications
Emission Control System Information
Source of Emissions
The combustion process produces carbon monoxide, oxides of nitrogen, and hydrocarbons. Control of hydrocarbons and oxides of nitrogen is very important because, under certain conditions, they react to form photochemical smog when subjected to sunlight. Carbon monoxide does not react in the same way, but it is toxic.
This utilizes lean carburetor settings and other systems to reduce the emissions of carbon monoxide, oxides of nitrogen and hydrocarbons.
Tampering and Altering
Tampering with or altering the emission control system may increase emissions beyond the legal limit. Among those acts that constitute tampering are:
- Removal or alteration of any part of the intake, fuel or exhaust systems.
- Altering or defeating the governor linkage or speed-adjusting mechanism to cause
the engine to operate outside its design parameters.
Problems That May Affect Emissions
If you are aware of any of the following symptoms, have your engine inspected and repaired by your servicing dealer.
- Hard starting or stalling after starting.
- Rough idle.
- Misfiring or backfiring under load.
- Afterburning (backfiring).
- Black exhaust smoke or high fuel consumption.
Replacement Parts
The emission control systems on your engine were designed, built. We recommend the use of genuine parts whenever you have maintenance done. These original-design replacement parts are manufactured to the same standards as the original parts, so you can be confident of their performance. The use of replacement parts that are not of the original design and quality may impair the effectiveness of your emission control system.
A manufacturer of an aftermarket part assumes the responsibility that the part will not adversely affect emission performance. The manufacturer or rebuilder of the part must certify that use of the part will not result in a failure of the engine to comply with emission regulations.
Maintenance
Follow the maintenance schedule. Remember that this schedule is based on the assumption that your machine will be used for its designed purpose. Sustained high-load or high-temperature operation, or use in unusually wet or dusty conditions, will require more frequent service .
Engine Tune-up
| ITEM | SPECIFICATION |
| Spark plug gap | 0.028 in -0.031 in (0.70 mm -0.80 mm) |
| Valve clearance | IN: 0.15 mm±0.02 mm (cold) EX: 0.20 mm±0.02 mm (cold) |
| Other specifications | No other adjustments needed |
CONSUMER INFORMATION
Publications
These publications will give you additional information for maintaining and repairing your engine. You may order them from your engine dealer.
Parts Catalog
This manual provides complete, illustrated parts lists.
QUICK REFERENCE INFORMATION
| Engine Oil | Type | SAE 5W-30,API SE or SF, for general use. Refer to engine oil recommendation. |
| Capacity | 175/180F (D)S: 0.95 L 185/190F (D)S: 1.1 L | |
| Spark Plug | Type | F7RTC or other equivalents. |
| Gap | 0.028-0.031 in (0.70-0.80 mm) | |
| Carburetor | Idle speed | 2000±200 rpm |
| Maintenance | Each use | Check engine oil. |
| First 20 hours | Change engine oil. | |
| Subsequent | Refer to the maintenance |
SPECIFLCATIONS
| Model | 175F(D)S | 180F(D)S | 185F(D)S | 190F(D)S |
| Type | Single cylinder, 4-Stroke, Forced Air Cooling, OHV | |||
| Net power(kW/3600rpm) | 5.3 | 6.2 | 7.8 | 9 |
| Net. torque (N·m/rpm) | 15.5/2500 | 18.5/2500 | 23.2/2500 | 26.5/2500 |
| Fuel consumption(g/kW·h) | ≤374 | |||
| Idle speed (rpm) | 2000 rpm±200 rpm | |||
| SpeedFluctuating Ratio | ≤10% | |||
| Noise(≤) | 70db(A) | |||
| Bore×Stroke(mm) | 75×60 | 80×60 | 85×66 | 90×66 |
| Displacement(cc) | 265 | 302 | 375 | 420 |
| Compression Ratio | 8.2:1 | 8.9:1 | 8.0:1 | 8.3:1 |
| Lubricating mode | Splash | |||
| Starting Mode | Recoil start( Recoil start / Electric starting) | |||
| Rotation | Anti-clockwise(from P.T.O. side) | |||
| Valve Clearance | input valve:0.10 mm ~0.15mm,output valve:0.15 mm ~0.2mm | |||
| Spark plug clearance | 0.7 mm ~0.8mm | |||
| Igniting Mode | Transistorized magneto Ignition | |||
| Dimension(LengthX Width X High)(mm) | 495X379X431 | 510X380X450 | ||
| Net weight(kg) | 30.5(32.5) | 33.5(36) | ||
The power rating of the engine indicated in this document is the net power output tested on a production engine for the engine model and measured in accordance with SAE J1349 at 3,600 rpm (Net Power) and at 2,500 rpm (Max. Net Torque). Mass production engines may vary from this value.
Actual power output for the engine installed in the final machine will vary depending on numerous factors, including the operating speed of the engine in application, environmental conditions, maintenance, and other variables.
WIRING DIAGRAMS
| Bl | BLACK | Br | BROWN |
| Y | YELLOW | R | RED |
| W | WHITE | G | GREEN |
Engine Type With 120V or 230V Electric starter
Circuit

Engine Type With 12V Electric starter

Circuit

Engine Type Without Electric starter

Circuit

OPTIONAL PARTS
BATTERY
Use a battery rated at 12V, 14Ah or more.
Do not reverse polarity. Serious damage to the engine and/or battery may occur.
A battery can explode if you do not follow the correct procedure, seriously injuring anyone nearby.
Keep all sparks, open flames, and smoking materials away from the battery.
Check the electrolyte level to be sure that it is between the marks on the case. If the level is below the lower mark, remove the caps and add distilled water to bring the electrolyte level to the upper mark. The cells should be equally full.






























