VESTA VRH-MILAN-30-36SS Millan Stainless Steel Wall Mounted Range Hood
Important Safety Notice
READ ALL INSTRUCTIONS BEFORE INSTALLING AND OPERATING THIS APPLIANCE
Important Safety Notice
- The installation in this manual is intended for qualified installers, service technicians or persons with similar qualified background. Installation and electrical wiring must be done by qualified professionals and in accordance with all applicable codes and standards, including fire-rated construction. installing the unit due to lack of appropriate electrical and technical background.
- DO NOT attempt to install this appliance yourself. Injury could result from necessary to remove any parts for installing, cleaning or servicing.
- Range hood may have very sharp edges; please wear protective gloves if it is
- Activating any switch ON before completing installation may cause ignition or an explosion.
- Due to the size and weight of this range hood, two people installation is recommended.
TO REDUCE THE RISK OF FIRE, ELECTRIC SHOCK, OR INJUR Y TO PERSONS:
- For general ventilating use only . DO NOT use to exhaust hazardous or explosive materials and vapors.
- The combustion air flow needed for safe operation of fuel-burning equipment may be affected by this unit’s operation.
Follow the heating equipment manufacturer’s guideline and safety standards such as those published by the National Fire Protection Association (NFPA), and the American Society of Heating , Refrigeration and Air Conditioning
Engineers (ASHRAE), and the local code authorities. - Before servicing or cleaning unit, switch power OFF at service panel and lock service panel to prevent power from being switched ON accidentally.
- Clean grease laden surfaces frequently.To reduce the risk of fire and to disperse air properly, make sure to vent air outside.
DO NOT vent exhaust into spaces between walls, crawl spaces, ceiling, attics or garages. - Ducted fans MUST always be vented to the outdoors.
- Use only metal ductwork and this unit MUST be grounded.
- Sufficient air is needed for proper combustion and exhausting of gases through the duct to prevent back drafting.
- When cutting or drilling into wall or ceiling, be careful not to damage electrical wiring or other hidden utilities.
- All electrical wiring must be properly installed, insulated and grounded.
- Old duct work should be cleaned or replaced if necessary to avoid the possibility of a grease fire.
- Check all joints on duct work to insure proper connection and all joints should be properly taped.
- Use this unit only in the manner intended by the manufacturer. If you have questions, contact the vendor.
TO REDUCE THE RISK OF A STOVE TOP GREASE FIRE:
- Keep all fan, baffle, spaces filter, grease tunnel, oil container and grease-laden surfaces clean. Grease should not be allowed to accumulate on fan, baffe, spaces filter, grease tunnel and oil container.
- Always turn range hood ON when cooking at high heat or when cooking flaming foods.
- Use high settings on cooking range only when necessary.
- Never leave surface units unattended at high settings. Boil overs cause smoking and greasy spill overs that may ignite.
- Heat oils slowly on low or medium settin.gs
- Clean ventilating fan frequently.
- Always use appropriate cook ware and utensils size.
Always use cookware appropriate for the size of the surface element.
TO REDUCE THE RISK OF INJURY TO PERSONS IN THE EVENT OF A STOVE TOP GREASE FIRE:
- SMOTHER FLAMES with a close-fitting lid, cookie sheet, or metal tray, then turn OFF the burner . BE CAREFUL TO PREVENT BURNS. NEVER PICK UP A FLAMING PAN—you may be burned.
KEEP FLAMMABLE OR COMBUSTIBLE MATERIAL AWAY FROM FLAMES.
If the flames DO NOT go out immediately, EVACUATEAND CALL THE FIRE DEPARTMENT or dial your local emergency service immediately. - DO NOT USE WATER, including wet dishcloths or towels — a violent steam explosion will result.
- Use an extinguisher ONLY if:
- You know you have a Class A, B, C extinguisher,and you already know how to operate it.
- The fire is small and contained in the area where it is started.
- The fire department is being called.
- You can fight the fire with your back to an exit.
TO REDUCE THE RISK OF INJURY TO PERSONS IN THE EVENT OF A GAS LEAKS:
- Extinguish any open flame.
- DO NOT turn on the range hood fan or any type of ventilator.
- DO NOT turn on the lights or any type of appliance
- Open all doors and windows to disperse the gas. If you still smell gas, call the gas company and fire department, or dial your local emergency service immediately.
- Your safety and the safety of others is very important. We have provided many important safety messages in this manual and on your appliance . Always read and obey all safety messages. All safety messages will tell you what the potential hazard is, tell you how to reduce the chance of injury, and tell you what can happen if the instructions are not followed.
This is the safety alert symbol. This symbol alerts you to potential hazards that can hurt you and others. All safety messages will follow the safety alert symbol and the word “WARNING”.
The manufacturer and/or distributor/reseller declines all responsibility in the event of failure to observe the instructions given here for installation, maintenance and
suit able use of the product.
The manufacturer and/or distributor/reseller further declines all responsibility for injury due to negligence and the warranty of theunit automatically expires due to improper maintenance.
The manufacturer and/or distributor/reseller will not be held responsible for any damages to personal property or real estate or any bodily injuries whether caused directly or indirectly by the range hood.
Tools Needed

Parts Supplied
- Range Hood×1

- Lower Chimney×1

- Upper Chimney×1

- Baffe Filter×2

- Flexible Duct Tube×1

- Chimney Mounting Bracket ×1

- A. 7pcs-ST5x40 screws
- B. 7pcs-Wall anchors
- C. 1pcs-ST5x16 screws
- D. 2pcs -M4x2 screws
- E. 2pcs- Rubber

Venting Requirements
Vent system must terminate to the outside (roof or side wall).
DO NOT terminate the vent system in an attic or other enclosed area.
DO NOT use 4” (10.2 cm) laundry-type wall caps.
Use metal/aluminum vent only. Rigid metal/aluminum vent is recommended.
DO NOT use plastic vent.
Always keep the duct clean to ensure proper airflow.
Calculate the following figures before installation:
- Distance from the floor to the ceiling.
- Distance between the floor to the countertop/stove (US Standard: 36”).
- Distance between the countertop/stove to the range hood (recommend *28” to 31”).
- Height of hood and duct cover.
For the most efficient & quiet operation:
A distance of 28”to 31” is recommended between stove top and the bottom of range hood.
It is recommended that the range hood be vented vertically through the roof through 6” (15.2 cm) or bigger round metal/aluminum vent work.
The size of the vent should be uniform.
Use no more than thr ee 90° elbows.
Make sure there is a minim um of 24” (61 cm) of straight vent between the elbows if more than one elbow is used.
DO NOT install two elbows together.
The length of vent system and number of elbows should be kept to a minimum to provide efficient performance.
The vent system must have a damper. If roof or wall cap has a damper, DO NOT use damper (if supplied) on top of the range hood.
Use silver tape or duct tape to seal all joints in the vent system.
Use caulking to seal exterior wall or roof opening around the cap.
Height & Clearance

Maximum ceiling clearance 110” at 31” hood mounting height above count ertop/stove (may vary with different model).
Chimney extensions available for higher ceilings.
Important
A minimum of 6” round (standard for this range hood) or 3-1/4x 10” rectangular duct (purchased separately) must be used to maintain maximum airflow efficiency.
Flexible 6” round duct provided for convenience , always use rigid type metal /alumni um ducts if available to maximize airflow when connecting to provided duct.
Please use Duct Run Calculation below to compute the total available duct run when using elbows, transitions and caps.
ALWAYS, when possible, reduce the number or transitions and turns. If long duct run is required, increase duct size from 6” to 7” or 8”. If a reducer is used, install a long reducer instead of a pancake reducer. Reducing duct size will restrict airflow and decrease airflow, thus reduce duct size as far away from opening as possible.
If turns or transitions are required: Install as far away from opening and as far apart, between 2, as possible.
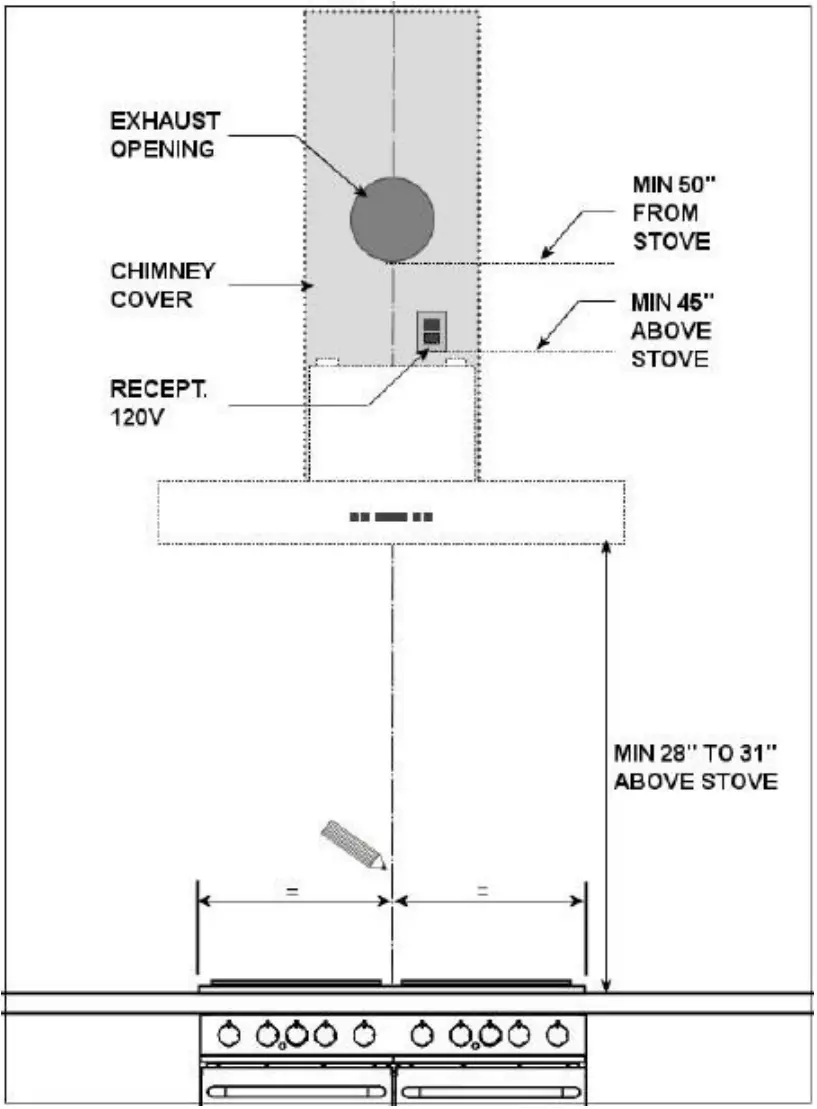
Minimum mount height between stove top to hood bottom should be no less than 28-inch.
Maximum mount height between stove top to hood bottom should be no higher than 31-inch.
It is important to install the hood at the proper mounting height.
Hoods mounted too low could result in heat damage and fire hazard; while hoods mounted too high will be hard to reach and will loose its performance and efficiency.
If available, also refer to stove top manufacturer’s height clearance requirements and recommended hood mounting height above range.
Due to different ceiling height configurations, recommended height may not
be applicable.
Minimum Duct Size:
Round – 6” minimum
Calculating Vent System Length
To calculate the length of the system you need, deduct the equivalent feet for each vent piece used in the system from the recommended maximum duct run.
| DUCT RUN CALCULATION: | |
| Recommended maximum run | |
| 6” or 3-1/4 × 10” duct | 50 ft |
| Vent piece deduction | |
| Each 90° elbow used | 9 ft |
| Each 45° elbow used | 5 ft |
| Each 6” to 3-1/4 × 10” transition used | 7 ft |
| Side wall cap with damper | 0 ft |
| Roof cap | 0 ft |
DUCT RUN CALCULATION EXAMPLE:
One roof cap, two 90º elbow, and one 45 º elbow used: 0ft + 9ft + 9ft + 5ft = 23ft used.
Deduct 23ft from 50ft, 27ft maximum available for straight duct run.
Venting Methods
This range hood is factory set for venting through the roof or wall.
Vent work can terminate either through the roof or wall.To vent through a wall, a 90° elbow is needed.
IMPORTANT:
NEVER exhaust air or terminate duct work into spaces between walls, crawl spaces, ceiling , attics or garages. All exhaust must be ducted to the outside. Use metal/aluminum duct work only.
Fasten all connections with sheet metal screws and tape all joints with certified Silver Tape or Duct Tape.
Use caulking to seal exterior wall or roof opening around the cap.
- OPTION 1:
VERTICAL ROOF VENTING
- OPTION 2:
HORIZONTAL WALL VENTING
Electrical Requirements
IMPORTANT: Observe all governing codes and or dinances. (Please consult with a qualified electrician for 110-Volt 60 Hz voltage). IT IS THE CUSTOMER’S RESPONSIBILITY:
To contact a qualifed electrical installer.
To assure that the electrical installation is adequate and in conformance with National Electrical Code, ANSI/ NFPA 70 —latest edition*, or CSA Standar ds C22. 1-94 , Canadian Electrical Code, Part 1 and C22. 2 No. 0-M91- latest edition ** and all local codes and or dinances.
If codes permit and a separate ground wire is used, it is recommended that a qualifed electrician determine that theground path is adequate.
A 120-volt, 60 H z,AC-onl y,fused electrical supply is required on a separate 15-amp circuit,fused on both sides of the line.
Do not ground to a gas pipe.
Do not have a fuse in the neutral or ground circuit.
RISK OF ELECTRICAL SHOCK. This range hood must be properly grounded. Check with a qualifed electrician if you are not surewhether the range hood is properly grounded. The range hood should be connect ed directly to the fused disconnect (or circuit breaker) box through flexible armored or non-metallic s heathed copper cable. A U.L.- or C.S.A.- listed strain relief must be provided at each end of the power supply cable . Do not use extension cord or adapter plug with this appliance. The range hood must be connected with copper wire/plug only. Always use plug provided. If not possible, connect three wires according to its color (black to hot, white to neutral, and green to ground) to house wires and cap with wire connect ors:

Wire sizes (copper wire only) and connections must conform with the rating of the appliance as specified on the model/serial rating label. Wire sizes must conform to the requirements of the National Electrical Code ANSI/NFPA 70 — latest edition*, or CSA Standards C22. 1-94, Canadian Electrical Code Part 1 and C22.2 No. 0-M91 – latest edition** and all local codes and ordinances. A U.L. – or C.S.A. – listed conduit connect or must be provided at each end of the power supply cable (at the range hood and at the junction box).
Copies of the standards listed may be obtained from:
National Fire Protection Association Battery march Park Road Quincy, Massachusetts 02269
CSA International
8501 East Pleasant Valley
Cleveland, Ohio 44131-5575
Preparation
Advanced Preparations:
- Read the entire installation guide and user manual thoroughly, understand instructions and warnings.
- Be familiar with the controls of the range hood by reading through Operations.
- Place the range hood on a flat, stable surface. Connect the range hood to a designated standard outlet (please refer to the product label for the suitable voltage of this unit) an d verify no debris has entered the vent openings, then turn on the range hood. verify all operations of the range hood by referring to Operations.
- Place all supplied parts and required hardware on a flat, stable surface and verify the existence of all supplied parts listed on Page 9.
- Carefully remove the white plastic protective coat from the chimney covers and range hood if any.
NOTE: TO AVOID DAMAGE TO YOUR HOOD, PREVENT DEBRIS FROM ENTERING THE VENT OPENING.
- Determine and mark the center line on the ceiling where the range hood will be installed. Make sure there is proper clearance within the ceiling or wall for exhaust vent.
- Due to the weight and size of this unit, please make sure that the support system or framework being used is stable and secure in the ceiling.
- Put a thick, protective covering over counter top, cooktop or range to protect from damage or dirt. Remove any hazardous objects around the area when installing.
- Mark the locations of the support mounting bracket holes vent cutout (if used) and power supply cable cutout on the ceiling. Use drill and saber saw or keyhole saw to cut openings for power supply cable and vent (see venting Methods and Electrical requirements, Pages 11-12).
- If venting to the outside install vent system (see venting Methods Page 11).
Use caulking to seal exterior wall or roof openings. - Disconnect main electrical supply, prepare and run electrical wiring through ceiling. Leave approximately 12” of electrical cord hanging from the ceiling.
Do not restore power until wiring is completed. - Disconnect power cord, remove the aluminum grease filters or stainless .steel baffle filters.
- Set aside the filters until the range hood is properly installed.
- If the range hood comes with a glass canopy and has not already been mounted to the hood, loosen the four canopy screws and washers from the hood top, carefully place the canopy on the hood top and loosely tighten the four canopy screws along with washers. DO NOT put excessive pressure against the glass.
WARNING
Require three or more person to move and install this range hood.
Spinal or other bodily injuries could occur if it is not followed.
WARNING
Hood may have very sharp edges. Please wear protective gloves if it is necessary to remove any parts for installing, cleaning or servicing.
Installation
DO NOT INSTALL THE RANGE HOOD BEFORE TESTING IT MECHANICAL DAMAGE MIGHT HAVE OCCURRED DURING TRANSPORTATION. Plug in the range hood to the USA/Canada 120V standard outlet, test the blower and the lights before installing it.
Installations (refer to Page 6 for parts):
Measure the distance between stove top and the bottom of range hood. A distance of 28” to 31” is recommended*.
Due to different ceiling height configurations, recommended height may not be applicable.
- Using references in Height & Clearance on Page 8, mark the leveling point of the hood.
Position two mounting screws on the wall, 8.07inchs distance between of two screws.
- Measure the width of the chimney then attach the chimney-mounting brackets to the wall as high as you want the upper chimney to be.
NOTE: Use threaded drywall anchors only when mounting the hood on sheet rock. Mounting the hood on wall studs or lumbars is highly recommended. - Align hood-mounting holes to the screws on the wall and hook the hood into place. Tighten screws to secure hood to the wall.
CAUTION: Make certain the range hood is secure before releasing! - Connect the venting duct between the hood and the exhaust opening either on the ceiling or wall. Use silver tape or duct tape to make all joints secure and air tight.
- Connect the range hood to a designated standard outlet (please refer the product label for the suitable voltage of this unit) or cut off the plug and connect three wires (black, white and green) to house wires and cap with wire connectors. Connect according to colors (i.e. black to black, white to white, and green to green).
SAFETY WARNING: Risk of electrical shock. This range hood must be properly grounded. Make sure this is done by qualified electrician in accordance with all applicable national and local electrical codes. Before connecting wires, switch. power off at service panel and lock service panel to prevent power from being switched on accidentally.
- Store excess wires in the wiring box.
- Install both chimneys and tight en screws to secure the lower chimney to the range hood as shown in Figure 5.
- To avoid scratching the chimney, extend the upper chimney slowly and carefully to the chimney-mounting bracket and tighten screws as shown in Figure 6.

- Turn power ON in control panel. Check all lights and fan operations.
- Make sure to leave this Installation Guide for the homeowner.
Operations & Wiring Diagram
Milan(3 Speed touch control)
CLOCK
Clock setting:
Touch and hold for approximately 3 seconds.
Touch
(Light button) to set minute.
Touch
(High Speed button) to set hour.
Touch one time to get the high speed, touch two times to get the middle speed, touch three times to get the low speed.
Touch to turn on/off the light.
Touch to select ON.
Touch 1 (one) time to select OFF during operation mode. The fan turns off automatically after 1 (one) minute.
Touch 2 (two) times to turn off the fan instantaneously.
Timer: When motor is working, touch
once to start 1 minute delay turn off mode, touch to set 1-59 minutes delay turn off.
24H or 12H setting
The default time system is 24 hours. After power on press light button for 3 seconds to set 24 Hour or 12 Hour. It will show 12H or 24H on the screen and ashing 5 seconds for conrmation, then reset time.
Trouble shooting
If the range hood or LED light does not work after installation
- Check if the range hood has been plugged in, make sure that all power has been turned back ON, fused not blown and all electrical wiring are properly connected.
- Swap out light assembly to working ones to determine whether it is caused by defective bulbs. See replacing the bulbs on Page 23.
The range hood vibrates when the blower is on - The range hood might not have been secured properly on to the ceiling or wall. Check with your installer.
The blower or fan seems weak
- Check that the duct sized used is at least 6”or 3-1/4 × 10″.
Range hood WILL NOT function efficiently with insufficient duct size.
For example: 8″ duct over 6” hole and loosely secured. - Check if duct is clogged or if damper unit (half-circular flapper) is not installed correctly or opening properly. A tight mesh on a side wall cap unit might also cause restriction to the airflow.
The lights work but the blower is not spinning at all, is stuck or is rattling.
The blower might be jammed or scraping the bottom due to shipping damage. Please contact us immediately.
The hood is not venting out properly.
- Make sure the distance between the stove top and the bottom of the hood is within * 28” and 31” in distance. Due to different ceiling height configurations, recommended height may not be applicable.
- Reduce the number of elbows and length of duct work.
Check if all joints are properly connected, sealed and taped. - Make sure the power is on high speed for heavy cooking.
Purpose of the slots/holes/openings near the top of the upper chimney: - These slots/holes/openings are used to exhaust cleaned air with optional re-circulating kit. If you did not install one, you do not need them.
NOTE: For all other inquiries, please contact your local reseller.
Wiring Diagram

Specifications
| Body | Stainless Steel / Tempered Glass |
| Power Rating | 120V/60Hz (USA & Canada standard) |
| General Input Power | 200W + # of Light x Voltage of Light |
| Motor Input Power | 200 W |
| Motor Revolution | 1200 RPM (±10%) to 1600 RPM (±10%) |
| Levels Of Speed Control | 3 |
| Maximum Airflow | 800 CFM |
| Air Pressure | 400 Pa (450 Pa Maximum) |
| Noise Level (dB) | Approximately 35 to 62 (Lowest to highest Speed) |
| Motor Type | Single Chamber Ultra Quiet |
| Fan Type | Centrifugal / Sirocco |
| Control Type | Electronic Touch Control |
| Filtration Type | Baffle Filter |
| Illumination | LED light 2Wx2 |
| Venting Size | Top, 6 inches Round |
| Interference Protection | Radio Frequency Interference Protected |
Subject to change without notice, please contact your local reseller for details.
Use and Care Information
Operations
Read and understand all instructions and warnings in this manual before operating the appliance. Save these instructions for future reference.
Always leave safety grills and filters in place. Without these components, operating blowers could catch on to hair, fingers and loose clothing.
NEVER dispose cigarette ashes ignitable substances, or any foreign objects into blowers.
NEVER leave cooking unattended. When frying, oil in the pan can easily overheat and catch fire. The risk of self-combustion is higher when the oil has been used several times.
NEVER cook on “open “flames under the range hood. Check deep-fryers during use: Superheated oil may be flammable.
Cleaning
The saturation of greasy residue in the blower and filters may cause increased inflammability. Keep unit clean and free of grease and residue build-up at all times to prevent possible fires.
Filters must be cleaned periodically and free from accumulation of cooking residue (see Maintenance on Page 33). Old and worn filters must be replaced immediately.
Do not operate blowers when filters are removed. Never disassemble parts to clean without proper instructions. Disassembly is recommended to be performed by qualified personnel only Read and underst and all instructions and warnings in this manual before proceeding.
Maintenance
SAFETY WARNING: Never put your hand into area housing the fan while the fan is operating!
For optimal operation, clean range hood and all baffle/spacer/filter/grease tunnel/oil container regularly. Regular care will help preserve the appearance of the range hood.
Cleaning Exterior surfaces
Clean periodically with hot soapy water and clean cotton cloth. Do not use corrosive or abrasive detergent (e.g. Comet Power Scruv®, EZ-Off® oven cleaner), or steel wool/scoring pads, which will scratch and damage the stainless steel surface. For heavier soil use liquid degrease such as “Forumla 409®” or “Fantastic®” brand cleaner
If hood looks splotchy (stainless steel hood),use a stainless steel cleaner to clean the surface of the hood. Avoid getting cleaning solution onto or into the control panel. Follow directions of the stainless steel cleaner. CAUTION: Do not leave on too long as this may cause damage to hood finish.Use soft towel to wipe off the cleaning solution, gently rub off any stubborn spots.Use dry soft towel to dry the hood.
After cleaning, you may use non abrasive stainless steel polish such as 3M® or ZEP®, to polish and buff out the stainless luster and grain.Always scrub lightly, with clean cotton cloth, and with the grain.
DO NOT allow deposits to accumulate or remain on the hood.
DO NOT use ordinary steel wool or steel brushes. Small bits of steel may adhere to the surface and cause rusting.
DO NOT allow salt solutions , disinfectants, bleaches, or cleaning compounds to remain in contact with stainless steel for extended periods. Many of these compounds contain chemicals, which may be harmful. Rinse with water after exposure and wipe dry with a clean cloth.
Cleaning Filters
IMPORTANT: Drain oil from oil containers before oil and residue overflow!
The metal filters fitted by the factory are intended to filter out residue and grease from cooking . It need not be replaced on a regular basis but are required to be kept clean.
Filters should be cleaned after every 30 hours of use.
Remove and clean by hand or dishwasher. Spray “Formula 409®” or equivalent degreasing detergent and leave to soak if heavily soiled. Dry filters and re-install before using hood.
Replacing Filters
Should aluminum grease filters wear out due to age and prolonged use , please contact your local reseller for replacement filters. (Note: Also replace damaged filter that has punctured or broken mesh, bent or broken frame.)
Replacing the light light
WARNING
Light bulb become extremely hot when turned on.
DO NOT touch bulb until switched off and cooled.
Touching hot bulbs could cause serious burns.
Replacing LED Light Fixture
This range hood uses LED light fixture: 2W Max 12V LED
Make sure the range hood is unplugged or turn OFF breaker and the lights are cool to touch.
Place a flat-head screwdriver between light housing and hood body, gently
pry up the light housing and search for the metal clip.
Apply force to the metal clip and pull out the light fixture.
Disconnect the power cable and discard the old light fixture.
Reverse the steps to install a new halogen light fixture. Turn ON breaker and range hood to test for operation.

Warranty
TO OBTAIN SERVICE UNDER WARRANTY:
You must present proof of original purchase date.
Please provide an original dated proof of purchase (sales receipt / invoice) in order to obtain service under warranty.
Lifetime Motor Warranty
The motor, which is covered by lifetime warranty, should be provided free of charge by your local reseller given it failed due to manufacturing defects. Subject to the conditions and limitations set forth below, your local reseller should, at its option, either repair or replace it with new or refurbished motor to be functionally equivalent to new. The consumer is responsible for all shipping costs.
One Year Parts Warranty
For one year from the date of original purchase, your local reseller will provide free of charge, non-consumable replacement parts or components that failed due to manufacturing defects. Subject to the conditions and limitations set forth below, your local reseller will, at its option, either repair or replace any part of its products that prove defective by reason of improper workmanship or materials.
Repaired parts or replacement products will be provided by your local reseller on an exchange basis, and will be either new or refurbished to be functionally equivalent to new. The consumer is responsible for all shipping costs. Consumable parts not covered by this warranty include but not limited to: Light bulbs metal, aluminum and charcoal filters.
Who is Covered
This warranty is extended to the original purchaser for products purchased for ordinary home use.
This Warranty Will Be Voided When:
Product damaged through negligence, improper installation, accident, abuse, misuse, natural disaster, insufficient or excessive electrical supply, abnormal mechanical or environmental conditions, or any unauthorized disassembly, repair, modification or failure to follow installation instructions. When product is used commercially or other than its intended purpose. Damaged because of improper connection with equipment of other manufacturers. Repaired or modified by anyone other than your local reseller’s authorized agents. This limited warranty also does not apply to any product on which the original identification information has been altered, obliterated or removed, has not been handled or packaged correctly or has been sold as second-hand.
What is Not Covered:
Consumable parts such as light bulbs, metal and charcoal filters. The natural wear of finish, and wear due to improper maintenance , use of corrosive and abrasive cleaning products, pads, and oven cleaner products. Chips, dents or cracks due to abuse , misuse, freight damage, or improper installation. Damage of product caused by accident, fire, floods or act of God. The manufacturer and or distributor is not liable for, and does not cover under warranty, any loss of properties or any costs associated with removing, servicing, installing, or determining the source of problems with this product. This warranty is valid in the country of the original purchase at retail. It is non-transferable and applies only to the original purchaser and does not extend to subsequent owners of this product. Any applicable implied warranties, including the warranty of merchantability, are limited in duration to a period of express warranty as provided herein beginning with the date of original purchase at retail and, no warranties, whether express or implied, shall apply to this product thereafter.
To obtain warranty service, you may contact your local reseller from which you purchased this product. Please confirm the terms of your local reseller’s policies prior to contacting. Typically, you must include product identification information, including model number and serial number with a detailed description of the problem you are experiencing. You must also include proof of the date of original retail purchase as evidence that the product is within the applicable warranty period.
Disclaimer
Carefully inspect all items for damages before accepting delivery. Note any damages on the freight bill or express receipt. Request name and signature of the carrier’s agent and keep copy to support your claim. Upon acceptance of items, owner assumes responsibility for its safe arrival. Report damages to the carrier and file a claim immediately. Failure to do so may result in the denial of your claim. The carrier will furnish you with necessary forms for filing a claim.
Damages caused during transit are not covered under our warranty. Please contact us to file an insurance claim.
Please inspect contents of package(s) carefully upon receiving! We must be notified of any damages and/or missing parts within five (5) days upon your receipt of package(s). Claims will not be accepted after five (5) days. NOTE: Items were thoroughly tested and carefully packed in our factory before shipping.
Products must be returned in good working condition with ALL original parts and documentation packed in ALL original cartons, fillers and shipping cartons.
A restocking fee of 15% will be charged for all approved return(s). Exchanges or returns may not be accepted if any packaging is missing.
Make sure to inspect the hood for damages and defects before installation.
Appearance flaws of the hood found after installation and not affecting hood performance is not covered under our warranty for returns or exchanges.
Service visits not covered under warranty will carry a service charge.
Before Installation: Return for exchange or refund (please see above for acceptable returns).After Installation: NO exchange or refund.
Contact Us
If you need any assistance, please contact us at +1 905-727-8688 or [email protected]. Please have your order number and model of the range hood ready . This information will help us better respond to your request.
If you need replacement parts, we recommend that you only use genuine parts.
Our accessories and parts are engineered and designed specifically for this series of range hood, each is rigorously tested assuring the utmost in durability and reliability providing a factory match, factory-installed appear ance and functionality tailored to each individual range hood model.






























