
VRH-COPENHAGEN-30 Copenhagen 800cm Wall Mounted Range Hood
User Manual

Copenhagen
VRH-COPENHAGEN-30/36SS
Important Safety Notice
READ ALL INSTRUCTIONS BEFORE INSTALLING AND OPERATING THIS APPLIANCE
- The installation in this manual is intended for qualified installers, service technicians, or persons with similar qualied backgrounds. Installation and electrical wiring must be done by qualified professionals and in accordance with all applicable codes and standards, including re-rated construction.
- DO NOT attempt to install this appliance yourself. The injury could result from installing the unit due to a lack of appropriate electrical and technical background.
- Range hood may have very sharp edges; please wear protective gloves if it is necessary to remove any parts for installing, cleaning or servicing.
- Activating any switch ON before completing installation may cause ignition or an explosion.
- Due to the size and weight of this range hood, two people installation is recommended.
TO REDUCE THE RISK OF FIRE, ELECTRIC SHOCK, OR INJURY TO PERSONS: - For general ventilating use only. DO NOT use to exhaust hazardous or explosive materials and vapors.
- The combustion air ow needed for the safe operation of fuel-burning equipment may be affected by this unit’s operation. Follow the heating equipment manufacturer’s guidelines and safety standards such as those published by the National Fire Protection Association (NFPA), the American Society of Heating, Refrigeration and Air Conditioning Engineers (ASHRAE), and the local code authorities.
- Before servicing or cleaning the unit, switch power OFF at the service panel and lock the service panel to prevent power from being switched ON accidentally.
- Clean grease-laden surfaces frequently. To reduce the risk of re and to disperse air properly, make sure to vent air outside. DO NOT vent exhaust into spaces between walls, crawl spaces, ceilings, attics, or garages.
- Ducted fans MUST always be vented to the outdoors.
- Use only metal ductwork and this unit MUST be grounded.
- Suf cient air is needed for proper combustion and exhausting of gases through the duct to prevent back drafting.
- When cutting or drilling into a wall or ceiling, be careful not to damage electrical wiring or other hid- den utilities.
- All electrical wiring must be properly installed, insulated, and grounded.
- Old ductwork should be cleaned or replaced if necessary to avoid the possibility of a grease re.
- Check all joints on ductwork to ensure proper connection and all joints should be properly taped.
- Use this unit only in the manner intended by the manufacturer. If you have questions, contact the vendor.
TO REDUCE THE RISK OF A STOVETOP GREASE FIRE:
- Keep all fan, baffle, spaces, filter, grease tunnel, oil container, and grease-laden surfaces clean. Grease should not be allowed to accumulate on the fan, baffie, spaces, filter, grease tunnel, and oil container.
- Always turn the range hood ON when cooking at high heat or when cooking among foods.
- Use high settings on cooking range only when necessary.
- Never leave surface units unattended at high settings. Boil overs cause smoking and greasy spillovers that may ignite. Heat oils slowly on low or medium settings.
- Clean ventilating fan frequently.
- Always use appropriate cookware and utensils size.
- Always use cookware appropriate for the size of the surface element.
TO REDUCE THE RISK OF INJURY TO PERSONS IN THE EVENT OF A STOVETOP GREASE FIRE: - SMOTHER FLAMES with a close-fitting filid, cookie sheet, or metal tray, then turn OFF the burner. BE CAREFUL TO PREVENT BURNS. NEVER PICK UP A FLAMING PAN–you may be burned. KEEP FLAMMABLE OR COMBUSTIBLE MATERIAL AWAY FROM FLAMES. If the names DO NOT go out immediately, EVACUATE AND CALL THE FIRE DEPARTMENT or dial your local emergency service immediately.
- DO NOT USE WATER, including wet dishcloths or towels — a violent steam explosion will result.
- Use an extinguisher ONLY if:
- You know you have a Class A, B, C extinguisher, and you already know how to operate it.
- The re is small and contained in the area where it is started.
- The re department is being called.
- You can get the fire with your back to an exit.
TO REDUCE THE RISK OF INJURY TO PERSONS IN THE EVENT OF A GAS LEAKS:
- Extinguish any open game.
- DO NOT turn on the range hood fan or any type of ventilator.
- DO NOT turn on the lights or any type of appliance.
- Open all doors and windows to disperse the gas. If you still smell gas, call the gas company and re department, or dial your local emergency service immediately.
- Your safety and the safety of others is very important. We have provided many important safety messages in this manual and on your appliance. Always read and obey all safety messages. All safety messages will tell you what the potential hazard is, tell you how to reduce the chance of injury, and tell you what can happen if the instructions are not followed.
This is the safety alert symbol. This symbol alerts you to potential hazards that can hurt you and others. All safety messages will follow the safety alert symbol and the word “WARNING”.
The manufacturer and/or distributor/reseller declines all responsibility in the event of failure to observe the instructions given here for installation, maintenance and suitable use of the product.
The manufacturer and/or distributor/reseller further declines all responsibility for injury due to negligence and the warranty of the unit automatically expires due to improper maintenance.
The manufacturer and/or distributor/reseller will not be held responsible for any damages to personal property or real estate or any bodily injuries whether caused directly or indirectly by the range hood.
Tools Needed

Parts Supplied

Venting Requirements
The vent system must terminate to the outside (roof or sidewall).
DO NOT terminate the vent system in an attic or other enclosed area.
DO NOT use 4″ (10.2 cm) laundry-type wall caps.
Use metal/aluminum vent only. Rigid metal/aluminum vent is recommended.
DO NOT use plastic vent.
Always keep the duct clean to ensure proper air ow.
Calculate the following guides before installation:
- Distance from the oor to the ceiling.
- Distance between the oor to the countertop/stove (US Standard: 36″).
- Distance between the countertop/stove to the range hood (recommend* 28″ to 31″).
- Height of hood and duct cover.
For the most efficient & quiet operation:
A distance of 28″ to 31″ is recommended* between the stovetop and the bottom of range hood.
It is recommended that the range hood be vented vertically through the roof through 6″ (15.2 cm) or bigger round metal/ aluminum vent work.
The size of the vent should be uniform.
Use no more than three 90° elbows. Make sure there is a minimum of 24″ (61 cm) of straight vent between the elbows if more than one elbow is used.
DO NOT install two elbows together.
The length of vent system and number of elbows should be kept to a minimum to provide ef client performance.
The vent system must have a damper. If the roof or wall cap has a damper, DO NOT use the damper (if supplied) on top of the range hood.
Use silver tape or duct tape to seal all joints in the vent system. Use caulking to seal the exterior wall or roof opening around the cap.
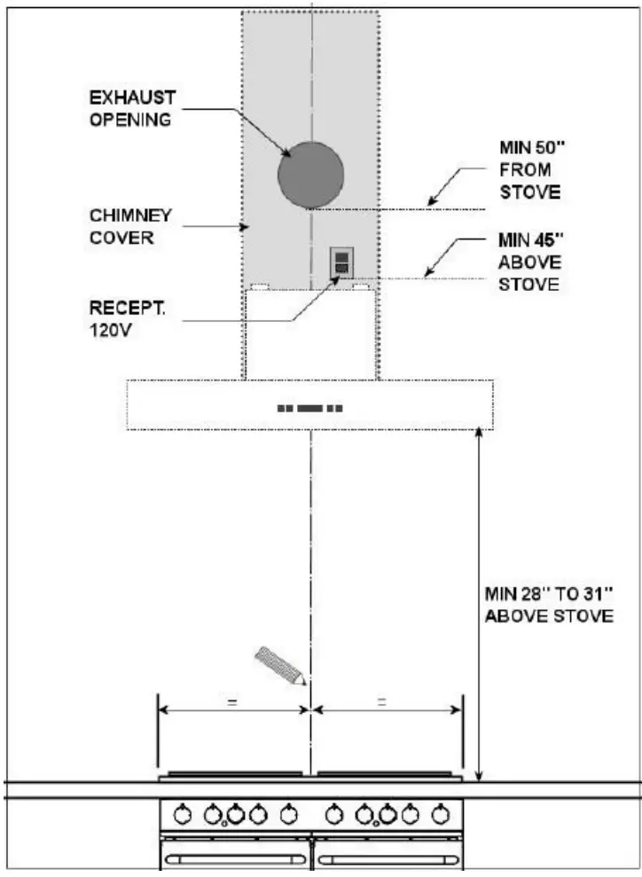
Height & Clearance
Maximum ceiling clearance 110″ at 31″ hood mounting height above countertop/stove (may vary with a different model). Chimney extensions are available for higher ceilings.
Important
- A minimum of 6″ round (standard for this range hood) or 3-1/4 x 10″ rectangular duct (purchased separately) must be used to maintain maximum air ow ef ciency.
- Flexible 6″ round duct provided for convenience, always use rigid type metal/aluminum ducts if available to maximize air ow when connecting to the provided duct.
- Please use Duct Run Calculation below to compute the total available duct run when using elbows, transitions, and caps.
- ALWAYS, when possible, reduce the number of transitions and turns. If a long duct run is required, increase duct size from 6″ to 7″ or 8″. If a reducer is used, install a long reducer instead of a pancake reducer. Reducing duct size will restrict air ow and decrease air ow, thus reduced size as far away from opening as possible.
- If turns or transitions are required: Install as far away from opening and as far apart, between 2, as possible.
- Minimum mount height between stovetop to hood bottom should be no less than 28-inch*.
- Maximum mount height between stovetop to hood bottom should be no higher than 31-inch*.
- It is important to install the hood at the proper mounting height. Hoods mounted too low could result in heat damage and hazard; while hoods mounted too high will be hard to reach and will lose their performance and ef ciency.
- If available, also refer to the stovetop manufacturer’s height clearance requirements and recommended hood mounting height above range.
- Due to different ceiling height con gurations, recommended height may not be applicable.
Minimum Duct Size:
Round – 6″ minimum
Calculating Vent System Length
To calculate the length of the system you need, deduct the equivalent feet for each vent piece used in the system from the recommended maximum duct run.
| DUCT RUN CALCULATION: | ||
| Recommended maximum run | ||
| 6″ or 3-1/4 x 10″ duct | I 50 ft | |
| ant piece deduction | ||
| Each 90° elbow used | 9 ft | |
| Each 45° elbow used | 5 ft | |
| Each 6″ to 3-1/4 x 10″ transition used | 7 ft | |
| Side wall cap with damper | 0 ft | |
| Roof cap | 0 ff | |
DUCT RUN CALCULATION EXAMPLE:
One roof cap, two 90º elbow, and one 45º elbow used: 0ft + 9ft + 9ft + 5ft = 23ft used.
Deduct 23ft from 50ft, 27ft maximum available for straight duct run.
Venting Methods
This range hood is factory set for venting through the roof or wall.
Vent work can terminate either through the roof or wall. To vent through a wall, a 90° elbow is needed.
IMPORTANT:
NEVER exhaust air or terminate ductwork into spaces between walls, crawl spaces, ceilings, attics, or garages. All exhaust must be ducted to the outside.
Use metal/aluminum ductwork only.
Fasten all connections with sheet metal screws and tape all joints with certified Silver Tape or Duct Tape.
Use caulking to seal the exterior wall or roof opening around the cap.
OPTION 1: VERTICAL ROOF VENTING
OPTION 2: HORIZONTAL WALL VENTING

Electrical Requirements
IMPORTANT: Observe all governing codes and ordinances. (Please consult with a quali ed electrician for 220-Volt 50 Hz voltage)
IT IS THE CUSTOMER’S RESPONSIBILITY:
To contact a qualified electrical installer.
To assure that the electrical installation is adequate and in conformance with National Electrical Code, ANSI/ NFPA 70 — latest edition*, or CSA Standards C22. 1-94, Canadian Electrical Code, Part 1 and C22. 2 No. 0-M91- latest edition** and all local codes and ordinances.
If codes permit and a separate ground wire is used, it is recommended that a qualified electrician determine that the ground path is adequate.
A 120-volt, 60 Hz, AC-only, fused electrical supply is required on a separate 15-amp circuit, fused on both sides of the line.
Do not ground to a gas pipe.
Do not have a fuse in the neutral or ground circuit.
RISK OF ELECTRICAL SHOCK. This range hood must be properly grounded. Check with a qualified electrician if you are not sure whether the range hood is properly grounded.
The range hood should be connected directly to the fused disconnect (or circuit breaker) box through exible armored or non-metallic sheathed copper cable. A U.L. – or C.S.A. – listed strain relief must be provided at each end of the power supply cable. Do not use an extension cord or adapter plug with this appliance.
The range hood must be connected with copper wire/plug only.
Always use plug provided. If not possible, connect three wires according to their color (black to hot, white to neutral, and green to ground) to house wires and cap with wire connectors:
Wire sizes (copper wire only) and connections must conform with the rating of the appliance as specified on the model/serial rating label. Wire sizes must conform to the requirements of the National Electrical Code ANSI/NFPA 70 — latest edition*, or CSA Standards C22. 1-94, Canadian Electrical Code Part 1 and C22. 2 No. 0-M91 – latest edition** and all local codes and ordinances. A U.L. – or C.S.A. – listed conduit connector must be provided at each end of the power supply cable (at the range hood and at the junction box).
Copies of the standards listed may be obtained from:
National Fire Protection Association
Batterymarch Park Road
Quincy, Massachusetts 02269
CSA International
8501 East Pleasant Valley
Cleveland, Ohio 44131-5575
Preparation
Advanced Preparations:
- Read the entire installation guide and user manual thoroughly, and understand instructions and warnings.
- Be familiar with the controls of the range hood by reading through Operations , Page 25.
- Place the range hood on an at, stable surface. Connect the range hood to a designated standard outlet (please refer the product label for the suitable voltage of this unit) and verify no debris has entered the vent openings, then turn on the range hood. Verify all operations of the range hood by referring to Operations , Page 25.
- Place all supplied parts and required hardware on an at, stable surface and verify the existence of all supplied parts listed on Page 9.
- Carefully remove the white plastic protective coat from the chimney covers and range hood if any.
Preparations:
NOTE: TO AVOID DAMAGE TO YOUR HOOD, PREVENT DEBRIS FROM ENTERING THE VENT OPENING.
- Determine and mark the centerline on the ceiling where the range hood will be installed. Make sure there is proper clearance within the ceiling or wall for exhaust vent.
- Due to the weight and size of this unit, please make sure that the support system or framework being used is stable and secure in the ceiling.
- Put a thick, protective covering over the countertop, cooktop or range to protect from damage or dirt. Remove any hazardous objects around the area when installing.
- Mark the locations of the support mounting bracket holes, vent cutout (if used) and power supply cable cutout on the ceiling. Use drill and saber saw or keyhole saw to cut openings for power supply cable and vent (see Venting Methods and Electrical requirements, Pages 16-17).
- If venting to the outside install a vent system (see Venting Methods, Page 16). Use caulking to seal exterior wall or roof openings.
- Disconnect main electrical supply, prepare and run electrical wiring through the ceiling. Leave approximately 12″ of electrical cord hanging from the ceiling. Do not restore power until wiring is completed.
- Disconnect the power cord, and remove the aluminum grease filters or stainless steel baffle filter.
- Set aside the filters until the range hood is properly installed.
- If the range hood comes with a glass canopy and has not already been mounted to the hood, loosen the four canopy screws and washers from the hood top, carefully place the canopy on the hood top, and loosely tighten the four canopy screws along with washers. DO NOT put excessive pressure against the glass.
WARNING Require three or more person to move and install this range hood. Spinal or other bodily injuries could occur if it is not followed.
WARNING Hood may have very sharp edges. Please wear protective gloves if it is necessary to remove any parts for installing, cleaning or servicing.
Installation
DO NOT INSTALL THE RANGE HOOD BEFORE TESTING IT. MECHANICAL DAMAGE MIGHT HAVE OCCURRED DURING TRANSPORTATION. Plugin the range hood to the USA/Canada 120V standard outlet, test the blower and the lights before installing it.
Installations (refer to Page 9 for parts):
Measure the distance between the stovetop and the bottom of the range hood. A distance of 28″ to 31″ is recommended*.
Due to different ceiling height con gurations, recommended height may not be applicable.
- Using references in Height & Clearance on Page 12, mark the leveling point of the hood. Position two mounting screws on the wall, 8.07inchs distance between of two screws..
- Measure the width of the chimney then attach the chimney mounting brackets to the wall as high as you want the upper chimney to be.
NOTE: Use threaded drywall anchors only when mounting the hood on sheetrock. Mounting the hood on wall studs or lumbars is highly recommended. - Align hood-mounting holes to the screws on the wall and hook the hood into place. Tighten screws to secure the hood to the wall. CAUTION: Make certain the range hood is secure before releasing!
- Connect the venting duct between the hood and the exhaust opening either on the ceiling or wall. Use silver tape or duct tape to make all joints secure and airtight.
- Connect the range hood to a designated standard outlet (please refer to the product label for the suitable voltage of this unit) or cut off the plug and connect three wires (black, white, and green) to house wires and cap with wire connectors. Connect according to colors (i.e. black to black, white to white, and green to green).
SAFETY WARNING: Risk of electrical shock. This range hood must be properly grounded. Make sure this is done by a qualified electrician in accordance with all applicable national and local electrical codes. Before connecting wires, switch power off at the service panel and lock the service panel to prevent power from being switched on accidentally.
Store excess wires in the wiring box. 23- Install both chimneys and tighten screws to secure the lower chimney to the range hood as shown in Figure 5.
- To avoid scratching the chimney, extend the upper chimney slowly and carefully to the chimney-mounting bracket and tighten screws as shown in Figure 6.
- Turn power ON in the control panel. Check all lights and fan operations.
- Make sure to leave this Installation Guide for the homeowner.

Operations & Wiring Diagram
Amsterdam (6 Speed Mechanical Control)

This range hood is designed to remove smoke, cooking vapors, and odors from the cooktop area. For best results, start the range hood before cooking and allow it to operate several minutes after the cooking is completed to clear all smoke and odors from the kitchen.
- Power: touch Power ON/OFF the range hood to turn on the machine touch again to enter delay timer ( 1-30 min is available) Touch Decrease /Increase value to “-” or light button to “+”
- Decrease/ Increase Value: touch this button to set the speed There are six-speed is available.
- Light: touch this speed to enter rst level light, touch again to enter the second level light, there is two-level for option.
- Hand wave lock: touch this button to turn on /off the hand wave function .
- Hand wave on wave the hand from the left side to right side to turn on the machine, and set the speed (1-6 speeds available) , wave the hand from right side to left side to enter 1 min timer, wave again to turn off the machine.
Troubleshooting
If the range hood or halogen light does not work after installation
- Check if the range hood has been plugged in, and make sure that all power has been turned back ON, fused not blown and all electrical wiring are properly connected.
- Swap out light assembly to working ones to determine whether it is caused by defective bulbs. See Replacing the light bulbs on Page 32.
The range hood vibrates when the blower is on
- The range hood might not have been secured properly onto the ceiling or wall. Check with your installer
The blower or fan seems weak
- Check that the duct size used is at least 6″ or 3-1/4 × 10″. Range hood WILL NOT function ef ciently with insufficient duct size. For example: 8″ duct over 6″ hole and loosely secured.
- Check if the duct is clogged or if the damper unit (half-circular appearance) is not installed correctly or opening properly. A tight mesh on a side wall cap unit might also cause restriction to the air ow.
The lights work but the blower is not spinning at all, is stuck, or is rattling
The blower might be jammed or scraping the bottom due to shipping damage. Please contact us immediately.
The hood is not venting out properly
- Make sure the distance between the stovetop and the bottom of the hood is within* 28″ and 31 ” in distance. Due to different ceiling height con gurations, recommended height may not be applicable.
- Reduce the number of elbows and length of ductwork. Check if all joints are properly connected, sealed, and taped.
- Make sure the power is on high speed for heavy cooking. Purpose of the slots/holes/openings near the top of the upper chimney:
- These slots/holes/openings are used to exhaust cleaned air with an optional re-circulating kit. If you did not install one, you do not need them.
NOTE: For all other inquiries, please contact your local reseller.
Wiring Diagram

Use and Care Information
Operations
Read and understand all instructions and warnings in this manual before operating the appliance. Save these instructions for future reference.
Always leave safety grills and filters in place. Without these components, operating blowers could catch on to hair, ngers, and loose clothing.
NEVER dispose cigarette ashes, ignitable substances, or any foreign objects into blowers.
NEVER leave cooking unattended. When frying, oil in the pan can easily overheat and catch re. The risk of self-combustion is higher when the oil has been used several times.
NEVER cook on “open” ames under the range hood. Check deep-fryers during use: Superheated oil may be amiable.
Cleaning
The saturation of greasy residue in the blower and filters may cause an increase in amiability. Keep unit clean and free of grease and residue build-up at all times to prevent possible res.
Filters must be cleaned periodically and free from the accumulation of cooking residue (see Maintenance on Page 33). Old and worn liters must be replaced immediately.
Do not operate blowers when filters are removed. Never disassemble parts to clean without proper instructions. Disassembly is recommended to be performed by qualied personnel only. Read and understand all instructions and warnings in this manual before proceeding.
Specifications
| Body | Stainless Steel |
| Power Rating | 120V/60Hz (USA & Canada standard) |
| General Input Power | 120W + # of Light voltage of Light |
| Motor Input Power | 220 W |
| Motor Revolution | 1200 RPM (±10%) to 1300 RPM (±10%) |
| Levels Of Speed Control | 6 |
| Maximum Airflow | 800 CFM |
| Air Pressure | 150 Pa (200 Pa Maximum) |
| Noise Level (dB / sone) | Approximately 35 / 0.7 to 67 /6.5 (Lowest to highest Speed) |
| MotorType | Single Chamber Ultra Quiet |
| Fan Type | Centrifugal / Sirocco |
| ControlType | ElectronicTouch Control |
| Filtration Type | Baffle Filter |
| Illumination | LED light 2Wx2 |
| tenting Size | Top, 6 inches Round |
| Interference Protection | Radio Frequency Interference Protected |
Maintenance
SAFETY WARNING: Never put your hand into area housing the fan while the fan is operating!
For optimal operation, clean range hood and all baffi e/spacer/ filter/grease tunnel/oil container regularly. Regular care will help preserve the appearance of the range hood.
Cleaning Exterior surfaces
Clean periodically with hot soapy water and clean cotton cloth. Do not use corrosive or abrasive detergent (e.g. Comet Power Scruv®, EZ-Off® oven cleaner), or steel wool/scoring pads, which will scratch and damage the stainless steel surface. For heavier soil use liquid degrease such as “Forumla 409®” or “Fantastic®” brand cleaner.If the hood looks splotchy (stainless steel hood), use a stainless steel cleaner to clean the surface of the hood. Avoid getting cleaning solution onto or into the control panel. Follow the directions of the stainless steel cleaner.
CAUTION: Do not leave on too long as this may cause damage to hood finish. Use a soft towel to wipe off the cleaning solution, and gently rub off any stubborn spots. Use a dry soft towel to dry the hood.
After cleaning, you may use nonabrasive stainless steel polish such as 3M® or ZEP®, to polish and buff out the stainless luster and grain. Always scrub lightly, with a clean cotton cloth, and with the grain.
DO NOT allow deposits to accumulate or remain on the hood.
DO NOT use ordinary steel wool or steel brushes. Small bits of steel may adhere to the surface and cause rusting.
DO NOT allow salt solutions, disinfectants, bleaches, or cleaning compounds to remain in contact with stainless steel for extended periods. Many of these compounds contain chemicals, which may be harmful. Rinse with water after exposure and wipe dry with a clean cloth.
Cleaning Filters
IMPORTANT: Drain oil from oil containers before oil and residue overflow!
The metal filters tted by the factory are intended to filter out residue and grease from cooking. It need not be replaced on a regular basis but is required to be kept clean.
Filters should be cleaned after every 30 hours of use.
Remove and clean by hand or dishwasher. Spray “Formula 409®” or equivalent degreasing detergent and leave to soak if heavily soiled. Dry filters and re-install before using the hood.
Replacing Filters
Should aluminum grease ers wear out due to age and prolonged use, please contact your local reseller for replacement ers. (Note: Also replace damaged er that has punctured or
broken mesh, bent or broken frame.)
Replacing the light bulb
WARNING
The light bulb becomes extremely hot when turned on. DO NOT touch the bulb until switched off and cooled. Touching hot bulbs could cause serious burns.
Replacing LED Light Fixture
This range hood uses LED light e: 2W Max 12V LED
Make sure the range hood is unplugged or turn OFF the breaker and the lights are cool to touch.
Place a screwdriver between the light housing and hood body, gently pry up the light housing and search for the metal clip.
Apply force to the metal clip and pull out the light fixture.
Disconnect the power cable and discard the old light fixture.
Reverse the steps to install a new halogen light fixture. Turn ON breaker and range hood to test for operation.


Warranty
TO OBTAIN SERVICE UNDER WARRANTY:
You must present proof of the original purchase date.
Please provide an original dated proof of purchase (sales receipt invoice) in order to obtain service under warranty
Lifetime Motor Warranty
The motor, which is covered by a lifetime warranty, should be provided free of charge by your local reseller given it failed due to manufacturing defects. Subject to the conditions and limitations set forth below, your local reseller should, at its option, either repair or replace it with the new or refurbished motor to be functionally equivalent to new. The consumer is responsible for all shipping costs.
One Year Parts Warranty
For one year from the date of original purchase, your local reseller will provide free of charge, non-consumable replacement parts or components that failed due to manufacturing defects. Subject to the conditions and limitations set forth below, your local reseller will, at its option, either repair or replace any part of its products that prove defective by reason of improper workmanship or materials. Repaired parts or replacement products will be provided by your local reseller on an exchange basis and will be either new or refurbished to be functionally equivalent to new. The consumer is responsible for all shipping costs. Consumable parts not covered by this warranty include but not limited to Light bulbs, metal, aluminum, and charcoal filters.
Who is Covered
This warranty is extended to the original purchaser for products purchased for ordinary home use.
This Warranty Will Be Voided When:
Product damaged through negligence, improper installation, accident, abuse, misuse, natural disaster, insufxcessive electrical supply, abnormal mechanical or environmental conditions, or any unauthorized disassembly, repair, modification, or failure to follow installation instructions. When a product is used commercially or other than its intended purpose. Damaged because of improper connection with equipment of other manufacturers. Repaired or modify anyone other than your local reseller’s authorized agents. This limited warranty also does not apply to any product on which the original identi information has been altered, obliterated, or removed, has not been handled or packaged correctly or has been sold as second-hand.
What is Not Covered:
Consumable parts such as light bulbs, metal, and charcoal filters. The natural wear of and wear due to improper maintenance, use of corrosive and abrasive cleaning products, pads, and oven cleaner products. Chips, dents, or cracks due to abuse, misuse, freight damage, or improper installation. Damage to the product caused by accident, fire, Themanufacturer and/or distributor/reseller is not liable for and does not cover under warranty, any loss of properties, or any costs associated with removing, servicing, installing, or determining the source of problems with this product.
This warranty is valid in the country of the original purchase at retail. It is non-transferable and applies only to the original purchaser and does not extend to subsequent owners of this product. Any applicable implied warranties, including the warranty of merchantability, are limited in duration to a period of express warranty as provided herein beginning with the date of original purchase at retail and, no warranties, whether express or implied, shall apply to this product thereafter.
To obtain warranty service, you may contact your local reseller from which you purchased this product. Please confirm the terms of your local reseller’s policies prior to contacting. Typically, you must include product identification, including model number and serial number with a detailed description of the problem you are experiencing. You must also include proof of the date of original retail purchase as evidence that the product is within the applicable warranty period.
Disclaimer
Carefully inspect all items for damages before accepting delivery. Note any damages on the freight bill or express receipt. Request the name and signature of the carrier’s agent and keep a copy to support your claim. Upon acceptance of items, the owner assumes responsibility for their safe arrival. Report damages to the carrier and claim immediately. Failure to do so may result in the denial of your claim. The carrier will furnish you with the necessary forms for the claim.
Damages caused during transit are not covered under our warranty. Please contact us to ance claim.
Please inspect the contents of the package(s) carefully upon receiving! We must be notified of damages and/or missing parts within e (5) days upon your receipt of the package(s). Claims will not be accepted after e (5) days. NOTE: Items were thoroughly tested and carefully packed in our factory before shipping.
Products must be returned in good working condition with ALL original parts and documentation packed in ALL original cartons, and tons. A restocking fee of 15% will be
charged for all approved return(s). Exchanges or returns may not be accepted if any packaging is missing.
Make sure to inspect the hood for damages and defects before installation. Appearance ws of the hood found after installation and not affecting hood performance is not covered under our warranty for returns or exchanges. Service visits not covered under warranty will carry a service charge.
Before Installation: Return for exchange or refund (please see above for acceptable returns). After Installation: NO exchange or refund.
Contact Us
If you need any assistance, please contact us at +1 905-7278688 or [email protected]. Please have your order number and model of the range hood ready. This information will help us better respond to your request.
If you need replacement parts, we recommend that you only use genuine parts. Our accessories and parts are engineered and designed specially for this series of range hoods, each is rigorously tested assuring the utmost in durability and reliability, providing a factory match, factory-installed appearance, and functionality tailored to each individual range hood model.

Venting Requirements
Store excess wires in the wiring box. 23


















