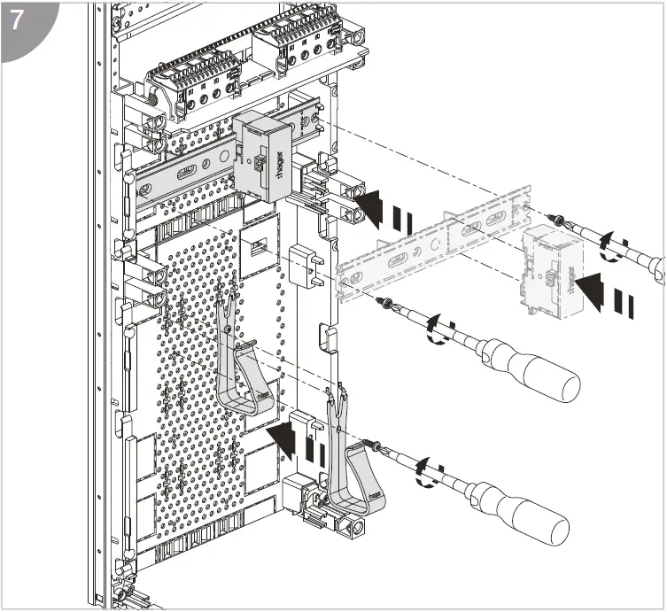
hager ZY450APZ Equipment Package

Mounting instructions
univers Z

ZY450APZ



















univers Z

ZY450APZ

















Download manual
Here you can download full pdf version of manual, it may contain additional safety instructions, warranty information, FCC rules, etc.