
HIGH EFFICIENCY
COMMERCIAL POOL HEATERS
START WITH A
SOLID FOUNDATION
750K BTU Copper-Fin Low NOx Heater
THE FOUNDATION OF LOCHINVAR BECOMES STRONGER
Copper-finned tube, non-condensing appliances are the foundation of Lochinvar’s success. In 1993, Lochinvar introduced the Copper-Fin², the first horizontal chassis, copper-finned tube pool heater to operate with fan-assisted combustion. Now, the Copper-Fin² is even better. Along with high thermal efficiency, gasketless heat exchangers and multiple venting options we have added Lochinvar’s exclusive SMART SYSTEM™ control.
Eight models from 500,000 to 2,070,000 Btu/hr input provide you with exceptional products with a long list of new features in addition to the established features that redefined the industry. The Copper-Fin² was the first proportional fired, fan assisted pool heater on the market. Every model features a small footprint for easy passage through a 36” door, low NOx – third party tested to less than 20 PPM, Stack Frames that can put twice the Btu/hr input in the same space and vent diameters up to 8” smaller than conventional atmospheric pool heaters.
THERMAL EFFICIENCY
Copper-Fin² pool heaters offer a remarkably high thermal efficiency, dramatically reducing the operating cost of the equipment. Copper-Fin² achieves this efficiency through the combination of an advanced fan assisted combustion system and a gasketless heat exchanger. The heat energy from the combustion process is transferred to the water as it passes through the copper finned tube heat exchanger. The sealed combustion design of the Copper- Fin² eliminates external heat losses, this means the energy dollars heat the water, not the mechanical room.
GASKETLESS HEAT EXCHANGER
In 1989, Lochinvar was the first manufacturer to offer gasketless copper-finned tube heat exchangers. Our unique gasketless design enhances reliability by eliminating o-rings and gaskets found on other brands. The heat exchanger features glass lined headers and copper-finned tubes with extruded integral fins spaced 7 fins per inch for exceptional heat transfer. The heat exchanger is built to ASME construction standards for 160 psi working ressure and is backed by a five year warranty.
SPACE SAVING, SERVICE FRIENDLY DESIGN
Our enhanced Copper-Fin² models offer the same reliable operation in a new service friendly design. The gas inlet, internal controls and Building Management connections have been repositioned to the front of the appliance for easier service and simpler installation. The built-in air filter reduces maintenance and improves performance with a field convertible option to install the air intake on the rear or the right side of the pool heater. In addition, Lochinvar was the first manufacturer to offer factory welded Stack Frames that allow you to put two pool heaters in the space for one.
MULTIPLE VENTING OPTIONS
The Copper-Fin² offers eight venting options to meet the most challenging installation requirements. The Copper-Fin² can vent vertically in Category I with double wall “B” vent or horizontally in Category IV with AL29-4C stainless steel vent material. Vent termination can be Rooftop or Sidewall with combustion air drawn naturally from the equipment room or via dedicated air intake piping. And if floor space is limited, the Copper-Fin² pool heater can be installed outdoors with an optional Outdoor Vent Cap.
HIGH EFFICIENCY COMMERCIAL POOL HEATERS
REFINED DESIGN PUTS MORE CONTROL AND INFORMATION AT YOUR FINGERTIPS
The most exciting addition to the Copper-Fin² is the SMART SYSTEM™ control. The SMART SYSTEM is an advanced, state of the art integrated operating control. We introduced the SMART SYSTEM control in 2005 and it has delivered proven operation in thousands of demanding commercial applications. The control provides the installer, owners and operators with precise temperature control and diagnostic information.
ADVANCED FEATURES INCLUDE:
- 2-Line, 16 Character LCD display of Setup, System Status and Diagnostic Data in Words, not codes
- Built-in Cascade sequencer controlling up to 8 Pool Heaters
- Modbus protocol – optional
PROPORTIONAL FIRING
Proportional firing divides a single manifold of multiple burners into smaller, independent stages.
With up to four stages of individual operation, the Smart System control can reduce the firing rate down to approximately 25% Btu/hr input. This simple but effective design matches the pool heater’s firing capacity to the heat loss of the pool or spa. Full fire or On/Off combustion systems often fire the entire gas train in short, inefficient bursts. Stage firing delivers the Btu’s required in smoother and longer burn cycles which will improve operation and reduce component fatigue.
AUTOMATIC PUMPED BYPASS
All Copper-Fin² pool heaters are equipped with an automatic pumped bypass ensuring proper flow and return water temperatures to the heat exchanger resulting in longer life and trouble free operation.
The automatic pumped bypass is provided as standard equipment in a horizontal configuration. A vertical configuration* is also available offering the flexibility to meet mechanical room space requirements or piping constraints.
* Horizontal shown
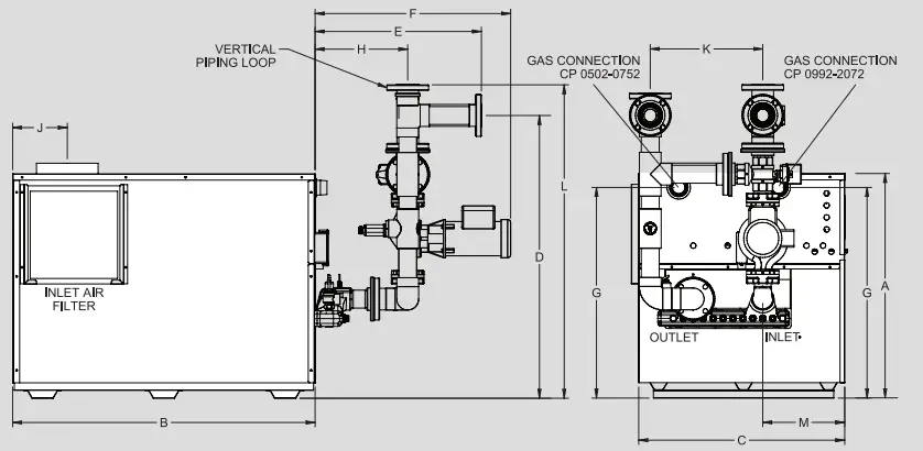
COMMERCIAL GAS POOL HEATER DIMENSIONS & SPECIFICATIONS

| Model Number | Input MBH | A | B | C | D | E | F | G | H | J | K | L | M | Vent Size | Air Inlet | Gas Conn | Ship Wt. |
| CPN502 | 500 | 31-1/2″ | 45-1/2″ | 22-1/4″ | 38″ | 20-1/4″ | 26-1/2″ | 29″ | 9-3/4″ | 7″ | 12-3/4″ | 41-1/4″ | 9″ | 6″ | 6″ | 1-1/4″ | 523 |
| CPN652 | 650 | 31-1/2″ | 56-3/4″ | 22-1/4″ | 38″ | 20-1/4″ | 26-1/2″ | 29″ | 9-3/4″ | 8-1/2″ | 12-3/4″ | 41-1/4″ | 9″ | 8″ | 8″ | 1-1/4″ | 665 |
| CPN752 | 750 | 31-1/2″ | 64″ | 22-1/4″ | 38″ | 20-1/4″ | 26-1/2″ | 29″ | 9-3/4″ | 8-1/2″ | 12-3/4″ | 41-1/4″ | 9″ | 8″ | 8″ | 1-1/4″ | 713 |
| CPN0992 | 990 | 36″ | 48-1/4″ | 33-1/2″ | 48-1/4″ | 26-3/4″ | 30-1/4″ | 33-1/4″ | 13-1/4″ | 8-1/2″ | 18-1/4 “ | 52″ | 13″ | 10″ | 10″ | 2″ | 864 |
| CPN1262 | 1,260 | 36″ | 58-1/2″ | 33-1/2″ | 48-1/4″ | 26-3/4″ | 30-1/4″ | 33-1/4″ | 13-1/4″ | 10-1/2″ | 18-1/4 “ | 52″ | 13″ | 12″ | 12″ | 2″ | 954 |
| CPN1442 | 1,440 | 36″ | 68-3/4″ | 33-1/2″ | 48-1/4″ | 26-3/4″ | 30-1/4″ | 33-1/4″ | 13-1/4″ | 10-1/2″ | 18-1/4 “ | 52″ | 13″ | 12″ | 12″ | 2″ | 1,042 |
| CPN1802* | 1,800 | 36″ | 82-1/4″ | 33-1/2″ | 48-1/4″ | 26-3/4″ | 30-1/4″ | 33-1/4″ | 13-1/4″ | 11″ | 18-1/4 “ | 52″ | 13″ | 14″ | 12″ | 2″ | 1,233 |
| CPN2072* | 2,070 | 36″ | 92-1/2″ | 33-1/2″ | 48-1/4″ | 26-3/4″ | 30-1/4″ | 33-1/4″ | 13-1/4″ | 11″ | 18-1/4 “ | 52″ | 13″ | 14″ | 12″ | 2″ | 1,285 |
Notes: Change ‘N’ to ‘L’ for LP gas models.
Water connections for models CP 0502-0752 are 2” flanged.
Performance data is based on manufacturer test results.
No deration on LP models.
Water connections for models CP 0992-2072 are 2-1/2” flanged *Cupro-Nickel Heat Exchanger is standard on these models.
STANDARD FEATURES
85% Thermal Efficiency
> Proportional Firing up to 4:1 Turndown
Hot Surface Ignition
Low NOx Operation
Sealed Combustion
Low Gas Pressure Operation
> Vertical & Horizontal Venting
Category I Venting
Double Wall “B” Vent Material
Category IV Venting
AL29-4C Stainless Steel Vent Material
> ASME Copper Finned Tube Heat Exchanger
ASME Certified, “H” Stamped
Gasketless design
160 psi working pressure
On/Off Switch
Adjustable High Limit w/ Manual Reset
Combustible Floor Rated (0992-2072)
Temperature & Pressure Gauge
Flow Switch
All Bronze Pump
Low Air Pressure Switch
Inlet & Outlet Temperature Sensors
Easy Access Terminal Strips
Downstream Test Cocks
150 psi ASME Temperature & Pressure Relief Valve
1 Year Warranty on Parts (See Warranty for Details)
5 Year Limited Warranty (See Warranty for Details)
SMART SYSTEM™ FEATURES
> SMART SYSTEM™ Operating Control
2 Line/16 Character LCD Display
Built in Cascading Sequencer for up to 8 heaters
Password Security
Low Water Flow Control & Indication
Inlet & Outlet Temperature Readout
Freeze Protection
Service Reminder
Time Clock
> Data Logging
Hours Running
Ignition Attempts
Last 10 Lockouts
> Pump Control
Pool Heater Pump
> High Voltage Terminal Strip
120 VAC / 60 Hertz / 1 Phase Power Supply
Pump Contacts with Pump Relay
> Low Voltage Terminal Strip
24 VAC Auxiliary Device Relay Output – Louvers
Auxiliary Proving Switch Contacts – Louvers
Alarm on Any Failure Contacts
Runtime Contacts
Contacts on Any Failure
Contacts for Air Louvers
Unit Enable/Disable Contacts
0-10V Rate Contacts
Pool Sensor Contacts
Pool Supply Sensor Contacts
Cascade Contacts
OPTIONAL EQUIPMENT
Vertical Bypass Loop
Alarm
High & Low Gas Pressure Switches w/ Manual Reset
Cupro-Nickel Heat Exchanger
Low Water Cut Off, Probe Type w/ Manual Reset & Test
Texas Pool Code (Outdoor Flow Switch and T&P Gauge)
Modbus Communications
Combustible Floor Kit (0502-0752)
Stack Frame
Bronze Headers (0992-2072)
FIRING CODES
M7 Firing Code – California Code
M9 Firing Code – Hot surface ignition with Electronic
Supervision
CERTIFICATIONS
ANSI Z21.56/CSA 4.7 certified
CSD1 / Factory Mutual / GE Gap compliant
South Coast Air Quality Management District registered
Texas Commission on Environmental Quality
For Ease In Ordering By Model Number
This heater is 500,000 Btu/hr natural gas Copper‑Fin 2 Pool Heater. It has M9 firing controls.
CPN-16 (Replaces CPN-15 6/20)
ASB 500 – 8/2021 – Printed in U.S.A.
Lochinvar, LLC
300 Maddox Simpson Parkway
Lebanon, Tennessee 37090
P: 615.889.8900 / F: 615.547.1000
Lochinvar.com![]()

![Lochinvar Copper-fin Ii & Iie Pool Heater Service Manual [models:502 - 2072] Lochinvar Copper-fin Ii & Iie Pool Heater Service Manual [models:502 - 2072]](https://static-data1.manualsee.com/1/img/463/70149/2021/02/Lochinvar-Copper-fin-II-amp-IIE-Pool-Heater-Service-Manual-Models502-2072.jpg)
















