TYLO 1105-105 Sauna Heater

INSTALLATION AND OPERATING INSTRUCTIONS 
Sauna Heaters
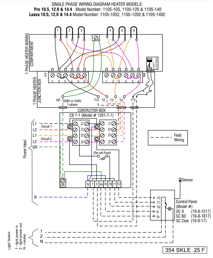
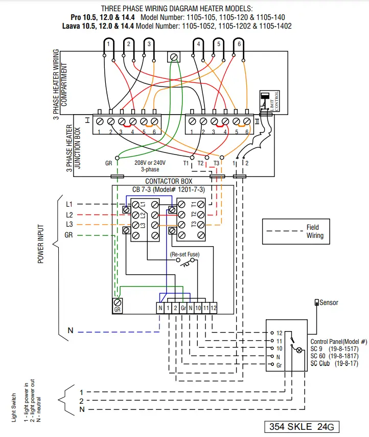
Pro 10.5, 12.0, & 14.4 (Model # 1105-105, 1105-120 & 1105-140) or
Laava 10.5, 12.0, & 14.4 (Model # 1105-1052, 1105-1202 & 1105-1402) or
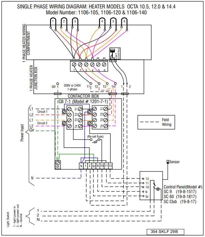
Octa 10.5, 12.0, & 14.4 (Model #1106-105, 1106-120, & 1106-140)
(With separate SC Control panel & contactor box)
Read all instructions carefully before installation. Please leave all instructions and warranty with the owner.
WARNING
Prolonged exposure to elevated temperatures is capable of inducing hyperthermia. Hyperthermia occurs when the internal temperature of the body reaches several degrees above the normal body temperature of 98.6°F. The symptoms of hyperthermia include an increase in the normal temperature of the body, dizziness, lethargy, drowsiness, and fainting. The effects of hyperthermia include failure to perceive heat, failure to recognize the need to exit the room, unawareness of impending hazard, fetal damage in pregnant women, physical inability to exit the room and unconsciousness.
WARNING
The use of alcohol, drugs, or medication is capable of greatly increasing the risk of fatal hyperthermia.
SECTION 1: GENERAL INFORMATION
These heaters are ETL approved by Intertek for permanent installations and electrical connections. Built with splash proof construction, the conducting parts are protected against water. All wiring must be performed in accordance with local codes. See Table 1 for wire and room size requirements. Slortnoc etarapes htiw roof eht ot deruces ,gnidnats eerf era sretaeh esehT. 4211-83-G 01-24-2022
WARNING:
Do not take a sauna if using alcohol, drugs or medications. Pregnant women or persons with poor health should consult their physician before using any sauna. esu ton oD :drazah er not UAC the sauna room for drying clothes, bathing suits, etc. Do not hang towels above heater or place any object other than the rocks supplied on the heater. If any darkening of the wall around the heater is noticed discontinue sauna use immediately. Inspect sauna regularly for required maintenance to heater, control and benches. Replace wood surfaces that show any signs of deterioration. The heater gets extremely hot during operation and should not be touched or burns may result. Minors should be adequately supervised whenever near a hot or warming sauna.
SECTION 2: MOUNTING OF SAUNA HEATER
Carefully locate the heater according to the dimensions shown in Diagram 1 and bolt it to the roo. (Bolts are not supplied with the heater.) Tighten to secure the heater in place.
SECTION 3: PLACING OF ROCKS
The rocks supplied with the heater have been chosen to provide the best heater performance. Use of any other type of rock may void the heaters warranty. Never operate the heater without rocks in place! Rinse the rocks with water before placing in the heater. Place the larger rocks between the elements and the smallest rocks between the elements and the inner rock compartment of the heater. Place the rocks loosely so the air can circulate. Continue adding rocks until there is 1 layer above the heating elements. Packing the rocks too tightly may cause the heater high limit switch to trip. Attach the rock guard with the screws provided.
SECTION 4: ELECTRICAL HOOK-UP
Electrical installation must be made by a licensed electrician in accordance with the National Electrical Code and local regulations. This heater is intended for use with SC Controls only. Use of any other control type will void the warranty and ETL listing. The control panel and contactor box must be installed in a dry location outside the sauna room. The control panel must be located to allow installation of the thermostat’s temperature sensor shown in Diagram 1. The sensor wire supplied is 9 feet, but it may be extended at the control end with 2 conductor wire. The model CB 7-3 contactor box is required for use with a three phase heater, the model CB 7-1 contactor box is required for use with a single phase heater. To determine the correct wire size, refer to Table 1. Use copper supply wire only, suitable for minimum 90 degrees C. The heater must be grounded! See the heater and control wiring diagrams for proper connections.
SECTION 5: TEMPERATURE SENSOR
Feed the “low voltage” sensor wire from the control to the sensor location. Sensor wire must be routed completely seperate (as per low voltage electrical wiring codes) from any wiring carrying over 50 volts. It may be necessary to drill holes to string the wire through the studs or ceiling joists. Route wires into control box and connect to terminals #2 and #3 at the thermostat terminal block. Using revirdwercs pit ta a, unsnap sensor cover from sensor as shown in Diagram 2. )2( owt gnisu retaeh evoba yltcerid llaw dehsin eht ot yllatnoziroh rosnes tnuoM screws (provided) as shown in Diagrams 1 & 3.C
SECTION 6: HEATER SCREEN (GUARD RAIL)
Install a wooden heater guard to prevent the sauna bather from accidentally touching the sauna heater. Install the heater guard rail with the height clearances and dimensions shown in Diagram 1.
WARNING:
Fire sprinkler systems used inside any sauna room should be properly rated for sauna room temperatures. Do not pour chlorinated pool or spa water on heater. Excessive water use on heater may cause damage and void warranty. Do not install a shower in sauna room.
Electric Shock Hazard – High voltage exists within this equipment. There are no user serviceable parts in this equipment. All installation and service to this equipment should be performed by ni lennosrep desnecil deilauq accordance with local and national codes. Do not construct sauna room wo ria tcirtser ot sa os through the bottom of the heater. Packing the rocks too tightly may cause the heater high limit switch to trip. 
Note 1: The contactor box may be mounted anywhere outside the sauna room. A location should be selected so the front cover is accessible for service and the noise of the contactor pulling in will not be a nuisance. Provide a service loop into the sauna room to the proposed heater location. 
Note 1: The contactor box may be mounted anywhere outside the sauna room. A location should be selected so the front cover is accessible for service and the noise of the contactor pulling in will not be a nuisance.
Provide a service loop into the sauna room to the proposed heater location. 
Note 1: The contactor box may be mounted anywhere outside the sauna room. A location should be selected so the front cover is accessible for service and the noise of the contactor pulling in will not be a nuisance.
Provide a service loop into the sauna room to the proposed heater location.
| Heater Model / Product Number |
KW | Minimum Room | Maximum Room |
Phase |
VAC |
* Amps | Copper Wire Size 90° C | |||||||||
|
Floor Area |
Wall Height |
Volume Cu.Ft. |
Wall Height |
Volume Cu.Ft. |
Contactor Model |
** Breaker # and Size | Power Supply to Contactor |
Contactor to Heater | Contactor to Heater High Limit |
Contactor to Control | Power Supply to Control Light Circuit | |||||
|
Pro 10.5 or Laava 10.5 or Octa 10.5 |
10.5 |
48 sq. ft. |
78″ |
390 |
96″ |
600 | 1 | 208 | 50.5 | CB 7-1 1201-7-1 | 2 x 40 Amps | 4 #8AWG +N+GR | 4 #8AWG +GR | 2 #14AWG | 3 #14AWG +N+GR |
See Note 1 Below |
| 1 | 240 | 43.8 | 2 x 30 Amps | 4 #10AWG +N+GR | 4 #10AWG +GR | 2 #14AWG | 3 #14AWG +N+GR | |||||||||
| 3 | 208 | 29.1 | CB 7-3 1201-7-3 | 1 x 40 Amps | 3 #8AWG +N+GR | 3 #8AWG +GR | 2 #14AWG | 3 #14AWG +N+GR | ||||||||
| 3 | 240 | 25.3 | 1 x 40 Amps | 3 #8AWG +N+GR | 3 #8AWG +GR | 2 #14AWG | 3 #14AWG +N+GR | |||||||||
|
Pro 12.0 or Laava 12.0 or Octa 12.0 |
12.0 |
63 sq. ft. |
78″ |
510 |
96″ |
740 | 1 | 208 | 57.7 | CB 7-1 1201-7-1 | 2 x 40 Amps | 4 #8AWG +N+GR | 4 #8AWG +GR | 2 #14AWG | 3 #14AWG +N+GR | |
| 1 | 240 | 50.0 | 2 x 30 Amps | 4 #8AWG +N+GR | 4 #8AWG +GR | 2 #14AWG | 3 #14AWG +N+GR | |||||||||
| 3 | 208 | 33.3 | CB 7-3 1201-7-3 | 1 x 40 Amps | 3 #8AWG +N+GR | 3 #8AWG +GR | 2 #14AWG | 3 #14AWG +N+GR | ||||||||
| 3 | 240 | 28.9 | 1 x 40 Amps | 3 #8AWG +N+GR | 3 #8AWG +GR | 2 #14AWG | 3 #14AWG +N+GR | |||||||||
|
Pro 14.0 or Laava 14.0 or Octa 14.0 |
14.4 |
78 sq. ft. |
78″ |
630 |
96″ |
950 | 1 | 208 | 69.2 | CB 7-1 1201-7-1 | 2 x 40 Amps | 4 #8AWG +N+GR | 4 #8AWG +GR | 2 #14AWG | 3 #14AWG +N+GR | |
| 1 | 240 | 60.0 | 2 x 40 Amps | 4 #8AWG +N+GR | 4 #8AWG +GR | 2 #14AWG | 3 #14AWG +N+GR | |||||||||
| 3 | 208 | 40.0 | CB 7-3 1201-7-3 | 1 x 50 Amps | 3 #6AWG +N+GR | 3 #6AWG +GR | 2 #14AWG | 3 #14AWG +N+GR | ||||||||
| 3 | 240 | 34.6 | 1 x 50 Amps | 3 #6AWG +N+GR | 3 #6AWG +GR | 2 #14AWG | 3 #14AWG +N+GR | |||||||||
Total amp draw of combined circuits. Single phase heaters are supplied power from two circuits which must be grouped and marked per NEC.
NOTE 1: Use separate 120V branch circuit protected for 15 or 20 amps if control light switch is to be used. 
SECTION 7: OPERATION
The heater is intended for use with a SC-9, SC-60 or SC-Club Control Panel only. Fytefas er dna htlaeh ro, never attempt to alter or bypass the timer or thermostat. If the sauna is to be used without an automatic timer provided, (Model SC-Club Control Panel) an attendant must be present at all times.
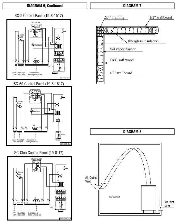
MODEL SC-9 CONTROL PANEL, Model Number 19-8-1517 ( 9 Hour Delay /1 Hour Operation) This control panel is equipped with a 60 minute timer with a 9 hour delay, an electronic thermostat, a light switch, and a pilot lamp that indicates when the heater is on. A pilot lamp in the sauna light switch indicates when the sauna light is on.
SETTING THE TEMPERATURE: The temperature can be adjusted by turning the thermostat knob. To raise the temperature, turn the knob clockwise; to lower the temperature, turn the knob counter-clockwise.
SETTING THE TIME: If you want the heater to begin heating immediately, tureeS( “1 ot OFF” delible notices dekagram tsr eht tsap esiwkcolc laid eht n Diagram 4), then turn the dial back (counter-clockwise) until you feel it “click”, near the on position, into the one hour operating zone. The heater has a “9 plus 1” timer, which means you can set the heater to begin heating after a delay of up to 9 hours. If you set the timer dial in the “1 to 9” zone, the heater will automatically turn on after the selected delay time has elapsed. Light Switch: Use the light switch to turn the sauna room light on and off.
MODEL SC-60 CONTROL PANEL, Model Number 19 – 8 – 1817 (60-minute timer ) This control panel is equipped with a 60-minute timer, an electronic thermostat, a light switch, and a pilot lamp that indicates when the heater is on. A pilot lamp in the sauna light switch indicates when the sauna light is on.
SETTING THE TEMPERATURE: The temperature can be adjusted by turning the thermostat knob. To raise the temperature, turn the knob clockwise; to lower the temperature, turn the knob counter-clockwise.
SETTING THE TIME: Use the timer to turn the heater on. To start the heater, turn the timer knob clockwise to the desired time setting. The maximum operating time is one hour.
Light Switch: Use the light switch to turn the sauna room light on and off.
WARNING: Do not locate benches over heater. Refer to Diagram 1 for minimum ceiling height. Minimum clearance from heater to wooden surfaces (benches, heater fence etc. Refer to Diagram 1) Use only copper wire of the size and type indicated in the Heater rahC noitacicepSt and the temperature rating indicated on the heater junction box. All heaters and controls must be grounded per NEC to prevent electrical shock in case of unit failure. Electrical outlets or receptacle must not be installed in a sauna room. A guardrail or fence is required around the heater to prevent burns from accidental contact.
DIAGRAM 4
ONE HOUR OPERATING ZONE FOR 9 HOUR DELAY TIMER This area from “OFF” to “ON” is the operating zone. This is the only time the heater is on. 
DELAY ZONE
This area from “9” to “ON” is the delay zone, meaning the heater can be programmed to come on up to nine hours later. The heater will not operate in this area.
SECTION 7: OPERATION, Continued
MODEL SC-Club CONTROL PANEL, Model Number 19 – 8 – 17 (Attendant Present Control, Thermostat Only) This control panel is equipped with a main on/off switch, an electronic thermostat, and a sauna light switch. A pilot lamp in the main on/off switch indicates when the sauna heater is on. A pilot lamp in the sauna light switch indicates when the sauna light is on.
SETTING THE TEMPERATURE: The temperature can be adjusted by turning the thermostat knob. To raise the temperature, turn the knob clockwise; to lower the temperature, turn the knob counter-clockwise.
TO START: To start the heater, turn on the main switch. To stop the heater, turn the main switch off. This control panel is intended for commercial use and an attendant must be present to monitor the sauna bather’s safety.
Light Switch: Use the light switch to turn the sauna room light on and off.
The sauna heater has a built-in High Limit control, which automatically turns off the heater if the temperature inside the sauna room rises to an abnormally high level.
To restart the heater, let the heater cool and the timer run down to zero
(off), then push the reset button on the bottom of the heater (See Diagram 1). If the high limit continually shuts off the heater, contact a service representative. Refer to Troubleshooting Section for information.
SECTION 9: HOW TO TAKE A SAUNA
- When taking a sauna, allow time to relax completely.
- Remove clothing and jewelry…if required, wear a towel loosely.
- After 10 minutes or when perspiration begins, leave sauna and relax in dressing area…follow with a cool shower.
- Cooling time should equal time spent in sauna. Enter sauna room again and stay 5 or 10 minutes.
- Repeat the cycle 2 or 3 times; end with a brisk shower…rinse in cool water.
- Dress when completely dry and perspiration has stopped.
- Some sauna bathers enjoy the soothing effect of steam by splashing water on the heated sauna rocks. Use only one dipper full (approx. ½ cup) at a time and take care to keep clear of the steam as it rises off the rocks.
- Do not smoke, exercise or drink alcoholic beverages in the sauna room.
- Do not pour chlorinated pool or spa water on the heater or corrosion damage may result.

DIAGRAM 6 




SECTION 10: WARNING PLACARDS
Secure the two metal placards at eye level with the screws that are included in the Installation Instruction Envelope packaged with every Sauna Heater. The CAUTION placard must be attached to the interior wall of the sauna room directly above the heater where it is visible to the bather. The WARNING placard must be attached to the outside of the door of the sauna room.
SECTION 11: ROOM CONSTRUCTION
- For safety and reliability, the following rules must be addressed.
- No permanent locking or latch system is to be used on the sauna door.
- gnirps ,sector noitcirf ,sehctac citengam :era sgnitt rood elbatpeccA or gravity loaded closures.
- The door must always open outwards.
- No shower may be installed in a sauna room.
- No electrical receptacle shall be installed inside the sauna room.
- The enclosed WARNING: Reduce the risk of overheating … warning plate must be mounted on or alongside the door outside the sauna room at about eye level.
- The enclosed CAUTION: Reb tsum etalp noituac … er fo ksir eht ecude mounted on the interior wall above the heater.
- dell ylreporp reniatnoc sti tuohtiw detarepo eb ton dluohs retaeh ehT with rocks and the rock guard in place.
- If an intercom speaker is installed, it should be away from the heater and .elbissop sa roo eht ot esolc sa
- Fire sprinkler systems installed inside any sauna room should be properly rated for sauna room temperatures.
- Always mount the heater according to these installation instructions.
- Minimum of R12 insulation in 16” on center 2×4 stud walls.
- R”8/5 fo ssenkciht gniroo muminim dednemmoce
“WARNING” placards must be mounted in accordance with Section 10. For safety purpose sauna door must open out and not lock.
Never use a wood stain, seal or preservative on the inside of your sauna room. rev teg serutx thgiLy hot during operation. Locate light a eb ton lliw ti erehw erutx burn hazard.
DIAGRAM 9: ROOM TEMPERATURES 
Non-Typical Ceiling Height
Notes:
Temperatures vary in a sauna room by height and distance from heater. Ventilation will help reduce it but will not eliminate temperature variations. The hottest part of the room is always at the ceiling directly above the sauna heater and should not exceed 194°F (90°C).
Air temperature will be 15°F to 25°F lower on the opposite side of the room from the heater close to the ceiling. The temperatures in the elevated view are general numbers. Each sauna room is different due to construction variations and ventilation. 
SECTION 12: VENTILATION
VENTILATION Ventilation shall be provided in a sauna, the air should be changed about 6 times an hour. This can be achieved by making a vent opening (fresh air inlet) in the sauna wall directly below the heater. The air outlet must be lower than the upper benches, as far as possible from the heater and about two feet higher than the fresh air inlet vent, See Diagram 8.
The minimum opening should be determined using one of the following formulas:
For R < 31, V ³ 9.4
For R ³ 31, V ³ 0.3R
SECTION 13: MAINTENANCE
Inspect sauna room at the end of each day the room to ensure the control and system is off.
The sauna, like a bathroom, should be kept clean and odor free. Towels or mats should always be used on benches rehto noitaripsrep sa roo dnawise penetrates the soft wood. To clean and remove perspiration stains, use soap or detergent in warm water, best applied with a scrub brush. Badly soiled surfaces may require sanding. Sand paper wrapped around a wooden block works well.
Air out the sauna often by keeping the door and vents open when the sauna is not in use. Saunas that are in daily use should be washed down at least once a week to keep them clean and the air fresh. Duckboard should be rennam lanoitnevnoc a ni deird dna deppom roo anuas eht ,anuas eht morf devomer, and the duckboard thoroughly scrubbed and dried before returning to the sauna room. The sauna heater should be wiped down occasionally with a damp cloth to remove lint and dust. The rocks should be removed once a year for cleaning and small or crumbled rocks replaced.
Benches and supporting structure must be inspected annually for potential deterioration due to age, dry rot or abuse. Any boards with signs of deteriorations should be replaced immediately to avoid possible injury.
SECTION 14: TROUBLESHOOTING
No Heat – Check timer, refer to Section 7 and Diagram 4 about timer operation.
Control Timer Light is On but No Heat – Press (reset) the high limit switch on the bottom of heater.
Slow Heat Time or High Limit Tripping – Check rock placement, they will break down over time and reduce the air retaeh eht ni wo. Refer to Diagram 10 for proper rock installation. Discard all rocks under the size of 3″ peices. Call the number below to order more rocks if needed.
CAUTION: Use only a contactor approved for 250,000 endurance Cylces /
ATTENTION: Utiliser uniquement un contacteur approuve pour 250,000 cycles de fonctionnement. For troubleshooting or service questions call 1-888-780-4427 and ask to speak with service. Prior to calling, please have the Model and Type number available. You may also email us at
[email protected]






















