PENTAIR Myers 2HP Simplex Grinder Pumps Owner

INSTALLATION AND SERVICE MANUAL
For 2 HP Simplex Grinder Pump with Lift-Out Rail System Installed in Fiberglass Basin, at Factory, as Complete System or Parts for Installing in Fiberglass or Concrete Basin by Customer
NOTE! To the installer: Please make sure you provide this manual to the owner of the equipment or to the responsible party who maintains the system.
NOTE – When complete packaged system, including fiberglass basin, is supplied from factory all parts are mounted in basin except pump and level controls. Piping and guide plates for pump are shipped in separate packages and must be ordered separately.
Level controls are to be ordered separately and must be mounted in the field. SM controls are specified at time of order so proper bracket is mounted in basin for supporting controls. Two SM controls and one SM alarm control is furnished as standard. Control box and pumps are ordered depending on voltage and phase required and if NEMA 4X or NEMA 3R enclosure is required.
CALIFORNIA PROPOSITION 65 WARNING
WARNING: This product and related accessories contain chemicals known to the State of California to cause cancer, birth defects or other reproductive harm.
STEPS TO INSTALL RAIL SYSTEM IN FIBERGLASS OR CONCRETE BASIN
- Unpack parts and check that all packages listed
are available. - If basin is concrete chip out any protruding rocks. Drop plumb line from top of basin for center line locations and mark center lines on basin wall with chalk. If basin is fiberglass it must be mounted on level surface with walls plumb before marking center lines. All parts should be installed in fiberglass basin before placing in ground.
- If basin is concrete, holes must be drilled in basin bottom and side walls for mounting parts. Use machine bolt expansion sleeves 1½” long 3/8″ size for mounting discharge case and flanges. Use 5/8″ carbide drill for holes. If basin is fiberglass, holes are drilled through bottom and special rubber seal washers are supplied to seal bolt heads where they pass through basin bottoms.
- Cut holes through concrete wall or fiberglass wall to locate flange. Make holes just large enough to clear flange hubs. If basin is concrete, support pipe and discharge pipe can be cemented into basin wall without using flanges, if desired. If pipes are cemented in, be sure all piping is plumb and correctly aligned and blocked before making final cement joint.
- Bolt discharge case to basin bottom. If basin is fiberglass, special seal washers are furnished to seal bolt heads where bolts pass through basin bottom. Bolt support flange and discharge flange in place. Do not tighten bolts too tight at this point as some adjustment may be necessary for final alignment when rails are installed. Be sure to use gaskets on flanges, either in concrete or fiberglass.
- Install discharge piping into discharge flange and vertical riser pipe from discharge casting. Be sure vertical piping is plumb so that it will not interfere with rails. Use slip coupling to join pipes.
- Install 1″ galvanized pipe guide rails. Stainless steel or other corrosion resistant pipe may be used as long as the O.D. is the same as 1″ standard pipe (1.315″ O.D.). In order to mount rails to support yoke in the 1″ rails, push the support nipple through the yoke and screw into flange. Bolts can be adjusted in flange to properly align the yoke. If support pipe that holds yoke is cemented into wall, be sure all piping is properly aligned and blocked before final cementing of the nipple. Use of the standard flange supplied is usually preferred, as alignment is easier, although some time is necessary to drill holes for anchor expansion bolts.
- Align 1″ guide rails plumb by using a level in both directions on pipe. Once rails are properly aligned, tighten bolts in flanges and tighten set screws that hold 1″ pipes in base casting.
- Mount level control support bracket and install level controls on bracket and adjust for proper pumping heights. Level control is always set so that pump will turn off when sump level is 1″ to 2″ above bottom
of pump. - Place cover on basin and bolt in place. If basin is concrete, expansion bolts will have to be set at proper location to hold cover.
- Inlet flange must be mounted to basin at depth required to get gravity flow into basin. Inlet flanges are available for 4″, 6″ or 8″ inlet pipe and more than one inlet may be used, if desired. Bottom of basin must be at least 36″ below inlet pipe. Inlet flanges are ordered separately to be mounted in the field.
ASSEMBLING PIPING TO PUMP
Pump grinder plate and pump discharge piping are supplied with other rail parts.
- Attach guide plate and piping to pump. Be sure piping is plumb, then tighten all set screws. Attach lifting chain to lifting eye with clevis supplied. Pumps can now be lowered into position with lifting chain. Retain power and control cords at surface as pump is lowered. When pumps are in place, attach cords to connection box. Remove slack from wires so that they will hang vertically without tangling.
- Connect level control cords to connection box.
- Install control box on cover and connect to cover with 4 x 4 mounting pedestal.
- Run wires to control box and connect to cords coming into connection box. Mark or trace each incoming wire so that it can be connected to
proper cord. - Do not pour sealing compound into fitting until pumps have been run, to be sure all connections
are correct. - Install hold-down guides and ½” galvanized hold-down pipe. Screw pipe into lower guide. Upper guides hold to rails and hold-down pipe with set screws. The hold-down pipe is necessary to prevent hydraulic pressure from lifting pump from base. The hydraulic pressure keeps the pumps suspended in operation so there is no side load on the rails and removal is easier when required.
MECHANICAL ASSEMBLY
INLET FLANGES
- There is available cast iron and 4″ or 6″ AdaptaFlex™ inlet hubs for SDR 35 PVC or Schedule 40 PVC pipe. More than one inlet may be used. Inlet flange must be mounted to basin at depth required to get gravity flow into basin. Bottom of basin must be at least 36″ below inlet pipe.
- AdaptaFlex™ hubs. Cut hole(s) the ough fiberglass basin at desired location using the correct size hole saw. For 4″inlets use a 5″ hole, for 6″ inlets use a 7″ hole. Select inlet which matches the type of pipe being used. Insert the inlet into the previously cut hole. Chamfer the ends of the plastic pipe for ease of installation. Lubricate pipe with soapy water. Insert pipe through inlet so that the pipe protrudes through the inlet approximately one inch.
BONDING DISCHARGE PIPE AND CONDUIT FLANGES IN BASIN ASSEMBLIES WITH PLASTIC LIFT-OUT SYSTEMS
- Have all the pipes cut to length and fit for assembly before bonding together.
- Pipe and flange must be clean and free of water and oil.
- End of pipe must be cut square and free of flash.
- Apply pipe cement completely around pipe and around the inside of mating flange.
- Insert pipe completely into flange, bottoming it out.
- Twist pipe and/or flange 360°.
- DO NOT run water through piping for 24 hours after bonding.
STARTING SYSTEM
- Open 1¼” PVC ball valve; turn counterclockwise to open. pump to operate until sump level drops, stopping pump.
- Set pump switch on AUTO position and run water into sump until level control starts pump. Allow
IMPORTANT – Level control should be set so that sump level drops to within 1″ or 2″ from bottom of pump before stopping pump.
- Turn pump switch to OFF and fill sump over alarm control. Indoor panel buzzer should sound, or if outside panel, red light should flash.
- Set pump switch to AUTO position and system is now ready for automatic operation.
IN CASE OF TROUBLE CHECK THE FOLLOWING
Pump will run but not deliver water
- Probably air lock. Start and stop pump several times. If this does not clear air, turn pump to OFF and run more water into sump 6″ to 12″ higher. If air still does not clear, it may be necessary to raise hold-down pipe and lift pump so that lower seal fitting is out of the discharge case to release air.
- Be sure shut-off valve is open in discharge line.
- If pump is 3 phase, be sure rotation is correct. Grinder impeller must rotate counterclockwise when looking at pump inlet.
Pump seal fitting does not hold tight
- Probably cut or broken O-ring. Replace if necessary. Trash may be caught in seal flange. Lift pump and open shut-off valve to back flush discharge casting. On installation where discharge line is not filled it may be necessary to lift pump until seal flange is out of discharge case, then run pump to flush casting. For all other problems with pump or control box refer to pump and control box instructions included with these items.
CAUTION – Never work on pumps or controls unless power is turned off. If pump is remote from control box, disconnect wires to pumps to be certain power cannot be turned on when working on pumps. Never put fingers near grinder impeller when pump cord is connected.

Example – 24″ diameter basin 8 feet deep requires 2 x 8 = 16 cubic feet of concrete to prevent flotation. If basin is installed in dry ground without surface water, 1/3″ of above values may be used.
INSTALLATION DRAWING FOR SIMPLEX LIFT-OUT RAIL SYSTEM
IN 24″ OR 30″ FIBERGLASS BASIN


SIMPLEX PACKAGED BASIN UNITS


A GUIDE RAILS • TOTAL DEPTH OF BASIN – 131/2″
B HOLD-DOWN PIPE • TOTAL DEPTH OF BASIN – 34″
C GUIDE PIPE • DISCHARGE DEPTH – 11″
D VALVE PIPE • DISCHARGE DEPTH – 13″
E LIFTING CHAIN • TOTAL DEPTH OF BASIN – 24″
F DISCHARGE PIPE • TOTAL DEPTH OF BASIN – (DISCHARGE DEPTH +11″)
- A GUIDE RAILS • TOTAL DEPTH OF BASIN – 131/2″
- B HOLD-DOWN PIPE • TOTAL DEPTH OF BASIN – 34″
- C GUIDE PIPE • DISCHARGE DEPTH – 11″
- D VALVE PIPE • DISCHARGE DEPTH – 13″
- E LIFTING CHAIN • TOTAL DEPTH OF BASIN – 24″
- F DISCHARGE PIPE • TOTAL DEPTH OF BASIN – (DISCHARGE DEPTH +11″)

RWG & RWGX 125 RAIL SYSTEM
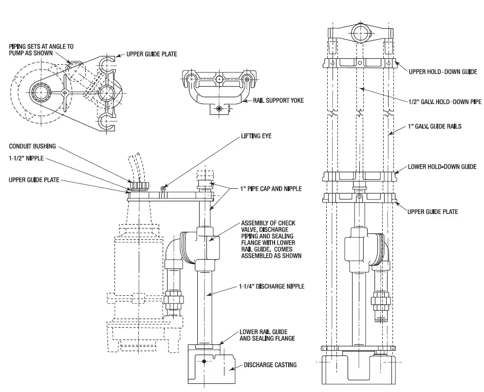
ASSEMBLING DISCHARGE PIPING AND RAIL GUIDES TO PUMP


- SCREW NIPPLE WITH HALF UNION INTO PUMP AND CONNECT TO PIPING. JUST TIGHTEN UNION SNUG.
- SCREW 1-1/2″ NIPPLE INTO CORD HOUSING CAP.
- PLACE UPPER GUIDE PLATE OVER 1-1/2 NIPPLE AND TURN PLATE UNTIL 1″ PIPE OPENING LINES WITH HOLE IN CHECK VALVE BODY.
- INSERT 1″ NIPPLE WITH CAP THROUGH GUIDE PLATE AND SCREW INTO VALVE BODY. TIGHTEN SET SCREWS IN GUIDE PLATE.
- TIGHTEN UNION
- IF LOWER RAIL GUIDE DOES NOT LINE WITHH UPPER PLATE, TURN 1-1/4″ DISCHARGE NIPPLE UNTIL GUIDE HOLES LINE UP.
- SCREW CONDUIT BUSHING ONTO PUMP CORD NIPPLE.
CONNECTION BOX, SIMPLEX GRINDER AND WHR SYSTEM, ALC SWITCH AND SM ALARM CONTROLS

- CONTROL CORD BLUE WIRE MAY BE OMITTED DEPENDING ON PRODUCTION DATE OF PUMP.
- IF BLUE WIRE IS USED CONNECT AS SHOWN, IF NOT USED OMIT BLUE WIRE CONNECTIONS.
- GAUGE DEPENDS ON HORSEPOWER OF PUMP.
NOTE: FOR “WHR” PUMP INSTALLATION DISREGARD CONTROL CORD CONNECTIONS.
CONNECTION BOX, SIMPLEX GRINDER AND WHR SYSTEM, SM 3 BALL CONTROL

- CONTROL CORD BLUE WIRE MAY BE OMITTED DEPENDING ON PRODUCTION DATE OF PUMP.
- IF BLUE WIRE IS USED CONNECT AS SHOWN, IF NOT USED OMIT BLUE WIRE CONNECTIONS.
- GAUGE DEPENDS ON HORSEPOWER OF PUMP
NOTE: FOR “WHR” PUMP INSTALLATION DISREGARD CONTROL CORD CONNECTIONS.
STANDARD LIMITED WARRANTY
Pentair Myers® warrants its products against defects in material and workmanship for a period of 12 months from the date of shipment from Pentair Myers or 18 months from the manufacturing date, whichever occurs first – provided that such products are used in compliance with the requirements of the Pentair Myers catalog and technical manuals for use in pumping raw sewage, municipal wastewater or similar, abrasive-free, noncorrosive liquids. During the warranty period and subject to the conditions set forth, Pentair Myers, at its discretion, will repair or replace to the original user, the parts that prove defective in materials and workmanship. Pentair Myers reserves the right to change or improve its products or any portions thereof without being obligated to provide such a change or improvement for prior sold and/or shipped units. Start-up reports and electrical schematics may be required to support warranty claims. Submit at the time of start- up through the Pentair Myers website: http://forms.pentairliterature.com/startupform/startupform.asp?type=m. Warranty is effective only if Pentair Myers authorized control panels are used. All seal fail and heat sensing devices must be hooked up, functional and monitored or this warranty will be void. Pentair Myers will cover only the lower seal and labor thereof for all dual seal pumps. Under no circumstance will Pentair Myers be responsible for the cost of field labor, travel expenses, rented equipment, removal/reinstallation costs or freight expenses to and from the factory or an authorized Pentair Myers service facility. This limited warranty will not apply: (a) to defects or malfunctions resulting from failure to properly install, operate or maintain the unit in accordance with the printed instructions provided; (b) to failures resulting from abuse, accident or negligence; (c) to normal maintenance services and parts used in connection with such service; (d) to units that are not installed in accordance with applicable local codes, ordinances and good trade practices; (e) if the unit is moved from its original installation location; (f) if unit is used for purposes other than for what it is designed and manufactured; (g) to any unit that has been repaired or altered by anyone other than Pentair Myers or an authorized Pentair Myers service provider; (h) to any unit that has been repaired using non factory specified/OEM parts. Warranty Exclusions: Pentair MYERS MAKES NO EXPRESS OR IMPLIED WARRANTI ES TH AT EXTEND BEYOND TH E DESCRIPTION ON TH E FACE HEREOF. Pentair MYERS SPECIFICALLY DI SCLAIMS TH E IMPLIED WARRANTI ES OF MERCHANT ABI LIT Y AND FITN ESS FOR ANY PARTI CULAR PURPOSE. Liability Limitation: IN NO EVENT SHALL Pentair MYERS BE LIABLE OR RESPON SIB LE FOR CON SEQUENTI AL, IN CID ENT AL OR SPECIAL DAMAGES RESULTIN G FROM OR RELATED IN ANY MANN ER TOTO ANY Pentair MYERS PRODU CT OR PARTS TH EREOF. PERSON AL IN JURY AND /OR PROPERTY DAMAGE MAY RESULT FROM IMPROPER IN STALLATION . Pentair MYERS DI SCLAIMS ALL LIABI LIT Y, IN CLUDIN G LIABI LIT Y UND ER THI S WARRANT Y, FOR IMPROPER IN STALLATION . Pentair MYERS RECOMMEND S IN STALLATION BY PROFESSION ALS. Some states do not permit some or all of the above warranty limitations or the exclusion or limitation of incidental or consequential damages and therefore such limitations may not apply to you. No warranties or representations at any time made by any representatives of Pentair Myers shall vary or expand the provision hereof.
1101 MYERS PARKWAY 490 Pinebush Road, Unit #4 ASHLAND , OHIO , USA 44805 CAMBRID GE, ONT ARIO , CANADA N1T 0A5 419-289-1144 800-363-PUMP WWW.FEMYERS.COM




















