Myers MODEL 4V, 4R, 4VH, 6VH, 4VC, 6VC,
SOLIDS HANDLING PUMPS
RAIL SYSTEMS WITH CHECK VALVE
INSTALLATION AND SERVICE MANUAL
Myers 4V Solids Handling Pumps
NOTE! To the installer: Please make sure you provide this manual to the owner of the equip ment or to the responsible party who maintains the system.
CALIFORNIA PROPOSITION 65 WARNING:
This product and related accessories contain chemicals known to the State of California to cause cancer, birth defects or other reproductive harm.
CHECK VALVE
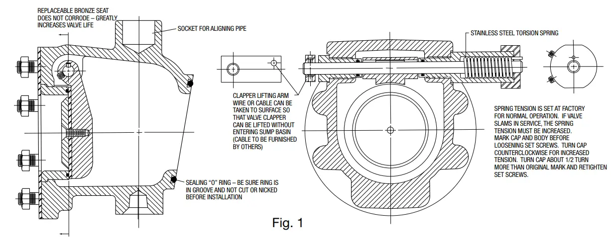
All pump models can be supplied with a spring loaded check valve for mounting directly onto pump discharge flange. No parts protrude on inside of valve and clapper to atch trash. Valve has replaceable bronze valve seat. See drawing, Fig. 1, for valve construction. We do not recommend installing check valve and shut-off valve in the basin.
With the Myers check valve that lifts out with the pump and an outside water works shut-off valve installed with curb box, it is never necessary to enter basin to service pump or valves.
CAUTION: In the initial installation before sewage is admitted to basin, there, of course, is no danger of entering sump, but after sewage has been in the basin, there is DANGER. SEWAGE WATER GIVES OFF METHANE AND HYDROGEN SULFIDE GASES, BOTH OF WHICH ARE HIGHLY POISONOUS. NEVER ENTER ET WELL UNLESS COVER IS OPEN FOR A PERIOD TO ALLOW FRESH AIR TO ENTER BASIN. AN OUTSIDE BLOWER SHOULD BE USED TO PUMP CLEAN AIR INTO BASIN. U.L. RECOMMENDS THE MAN IN THE BASIN WEAR A HARNESS WITH ROPE SO THAT HE CAN BE PULLED OUT IN CASE OF ASPHYXIATION.
This is why Myers recommends the lift-out check valve so that no service is required in the basin.
AIR VENTING As check valve is installed directly on the pump discharge flange and is spring loaded, air tends to trap in the pump case when water rises in sump or when pump is lowered into water after service. To vent off this air, a small hole is drilled into the volute casting. BE SURE THIS VENT HOLE IS CLEAN AFTER ANY SERVICE WORK ON PUMP. Air venting is not a problem after initial start. See drawing, Fig. 2. Lifting arm on check valve will also vent off any air trapped. See check valve, Fig. 1.
LIFTING ARM ON CHECK VALVE
The check valve has an outside arm fastened to valve clapper shaft. It is provided with a hole for attaching wire or cable that can be operated from the surface.
This allows clapper to be lifted to flush off any trash that may get lodged on valve face. To flush valve, turn off pump switch and close outside shut-off valve.
Then lift clapper and slowly open shut-off valve to allow back flow. It may be necessary to repeat this operation several times to clean face. After cleaning, open shut-off valve and turn pump to auto position. Valve arm can also be lifted to relieve air lock. See Fig. 1.
SHUT-OFF VALVES
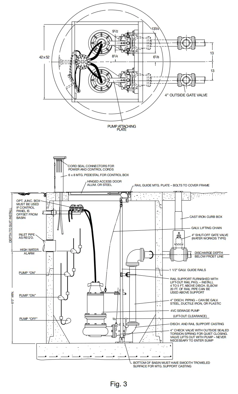
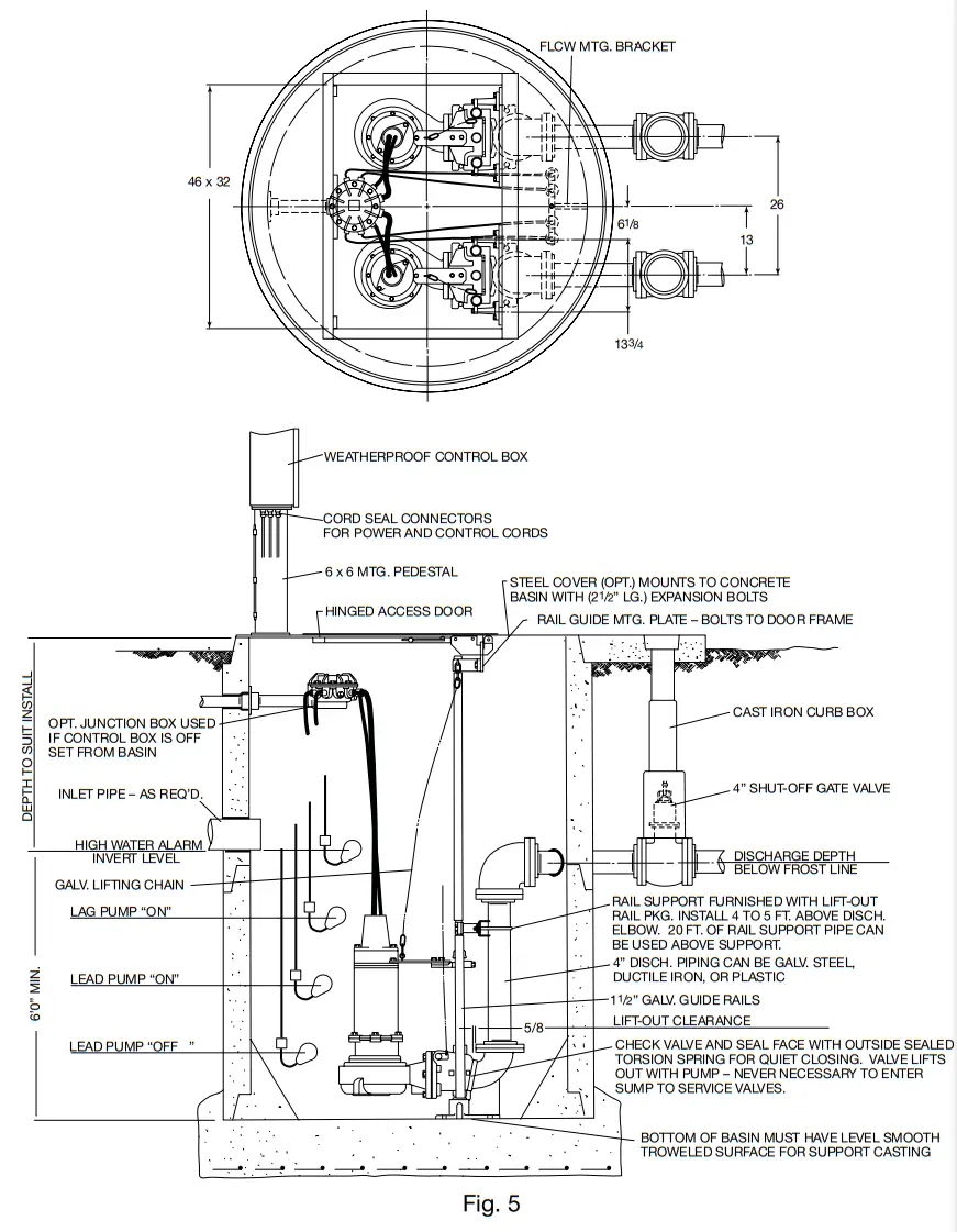
It is recommended that all shut-off valves be mounted outside the pump – either in a valve box or with a cast iron curb box. See typical drawings, Fig’s. 3, 4, 5. Shut-off valves should be of the water works approved type with resilient rubber disk seat.
IMPORTANT – HAVING THE MYERS LIFTOUT CHECK VALVE AND OUTSIDE SHUT-OFF VALVE, IT IS NEVER NECESSARY TO ENTER SUMP TO REPAIR OR CLEAN VALVES. SEE TYPICAL DRAWINGS, FIG’S. 6, 9. THE COST OF INSTALLATION IS CONSIDERABLY LESS THAN USING AN OUTSIDE VALVE BOX.
BASIN BOTTOM
All concrete pipe basins must have a smooth level troweled bottom for level mounting of discharge casting.
BASIN COVERS
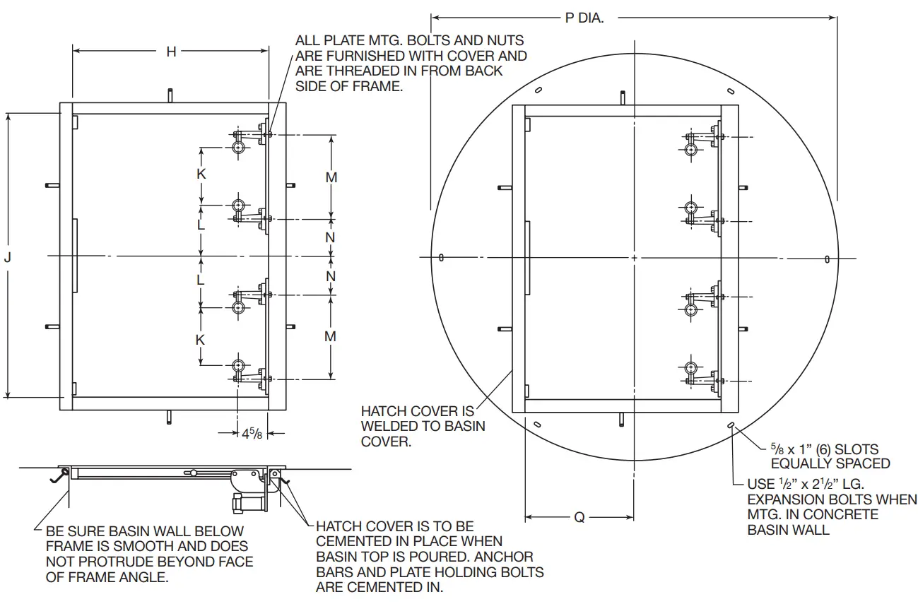
Basin hatch type covers are made in either aluminum or steel and for mounting on a concrete basin top or an aluminum or steel basin cover. When hatch cover is to be mounted on concrete top it is generally poured in place with the concrete top. Pin lugs are provided to hold the cover in place. Bolts for mounting rail guide plates are screwed through the cover flange angles from the back side. This allows the bolts to be cemented in with basin top. All bolts are stainless steel and nuts are provided for securing the brackets. See Fig. 6. If other than Myers hatch covers are used, dimensions must be similar to the Myers hatch drawing shown, Fig. 6. Cover should be drilled and tapped at dimensions shown, Fig. 6 and stainless steel bolts installed for mounting rail guide brackets. When complete basin cover is steel or aluminum the cover is secured to concrete basin wall with expansion bolts.
INSTALLING RAIL SYSTEM PARTS
MOUNTING COVER AND DISCHARGE ELBOW
Mounting Hatch Cover, Discharge Elbow, Discharge Pipe and Rails–Use the following steps.
- Set concrete cover with hatch opening in position. If basin cover is to be steel or aluminum, secure the cover to basin walls with expansion bolts, see Fig. 6.
- Bolt rail guide plates to frame as shown in Fig. 6.
Guide plate Fig’s. 8 and 9. Stainless steel bolts are screwed through frame angles when shipped and nuts are provided to hold the plate. Brackets have vertical slots so that it can be adjusted for final fit on rails and horizontal slots to allow for side movement. Plate for 6″ lift-out has longer slot so plates can be moved to obtain 28″ center between plates. See drawing, Fig’s. 6, 8 and 9. - Drop a plumb line from center of tapered rail fitting casting to basin bottom. Mark these points on the concrete.
IMPORTANT – Concrete bottom must be level and mooth for mounting discharge. - Set discharge elbow casting so that centers of rail guide holes are centered on marks from the plumb line.
- With casting properly aligned, mark positions of hold-down bolts. Remove casting and drill concrete bottom for expansion bolts. Use 3/4″ bolts 2-1/2″ long.
- Set discharge elbow casting in place and secure with bolts.
- Recheck with plumb line to be sure rail alignment will be correct.
- Now install discharge pipe to height required.
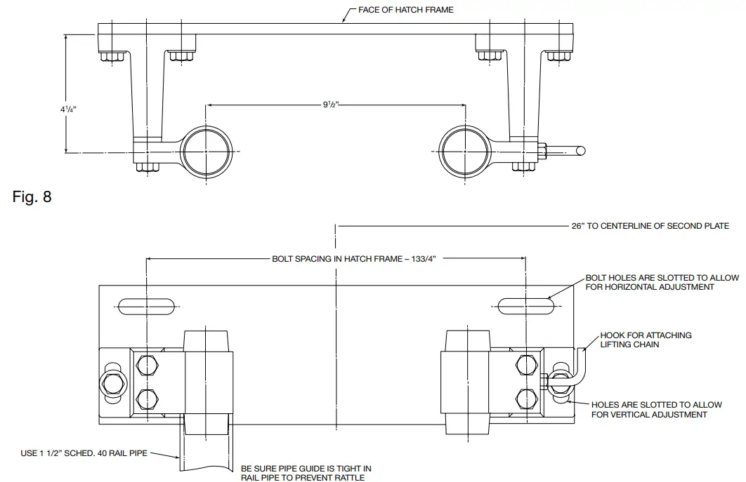
NOTE – Discharge elbow flange is tapped so cap screws must be used on lower flange. Use (5/8″-11) x 2-1/4″ long cap screws for 4″ flange and (3/4 x 10″) x 2-1/4″ long cap screw for 6″ flange. Discharge pipe can be schedule 40 galvanized steel, schedule 80 plastic pipe or ductile iron pipe. - Cut rail pipes. All installations must use rail guide bracket. This guide bracket is furnished in the liftout rail package. Figure 7 If basin depth is more than 25 feet deep, a second guide bracket must be used. This second bracket must be ordered separately if required.
- Lower rail guide pipes are cut 5 to 6 feet long, and both must be exactly the same length. Rail pipes are schedule 40 galvanized or schedule 40 stainless steel and 1-1/2″ size for 4″ pump systems and 2″ for 6″ pump systems.
- Set the lower rail support bracket in position with tapered guides into lower pipes. Put U-bolt around pipe and tighten lightly. Align pipe plumb and tighten U-bolt nuts. Tighten set screw in base casting against rails.
- Measure from joint on tapered plug on lower support bracket to joint of tapered plug on top holding plate and cut two rails to this length. Put rails in place and tighten screws in upper guide plate. Holes in plate are slotted to adjust for any error in rail pipe length.
- Recheck rails; they must be plumb and straight. Move lower guide bracket if necessary to perfectly align rails. Upper guide plate can also be moved 1/2″ either way horizontally.
- If basin depth is more than 25 feet deep, two guide brackets must be used. Set the second bracket 10 to 15 feet above lower bracket or at less height if discharge pipe is shorter. 21 feet of rail pipe can be used above top bracket.
- IMPORTANT – If one size larger discharge pipe is required, such as 6″ pipe on 4″ lift-out system and 8″ pipe on 6″ lift-out systems, an eccentric flanged reducer must be used on the discharge elbow. Also, a special U-bolt must be used in the lower support bracket. This larger U-bolt must be ordered separately. The support plate is also drilled for the larger U-bolt. See Fig.7.
- If not possible to use hatch cover, a special rail bracket can be furnished for mounting directly to basin wall with yoke assembly. This bracket is set and aligned with discharge elbow the same as described for rail mounting plate on cover frame, which is to set yoke first, then drop plumb line to align discharge elbow in bottom of basin.
MOUNTING CHECK VALVE OR STRAIGHT FLOW THROUGH FITTING TO PUMP
The check valve face or through flow fitting also acts as the sealing flange. An O-ring is used in the face for leak-tight seal. Be sure O-ring is properly in groove and not cut or nicked. All bolts and gaskets are supplied with valve. Use following steps to mount valve and aligning plate. See Fig. 2.
- Bolt check valve to pump discharge flange.
- Install galvanized pipe guide into check valve socket. Secure set screw, but do not tighten tight.
- Install guide plate over pipe and connect plate arm to top of pump. Remove bolt in pump and replace with longer bolt furnished to hold plate arm in position. See Fig. 2.
- Remove adjusting bar and tighten set screw into guide pipe.
- Check all parts to be sure guide pipe is vertical in line with pump. Loosen bolts in check valve flange to move valve if necessary for alignment. Play in the bolt holes allows for some alignment.
- Now tighten all bolts and set screws and reinstall adjusting bar.
- Set adjusting bar so that there is a gap of about 1/4″ between bar and guide plate. See Fig. 2.
- Attach lifting chains to eye bolt in plate arm with clevis furnished. Lifting chain is 20 feet long as standard and has an open ring every six feet so that bar can be inserted to hold pump while changing lift hook on hoist if necessary. This allows tripod and hand hoist to be used to lift pump.
- 4VC and 6VC pumps use a two leg chain at pump for easier lifting. The short leg of chain is installed on valve side of pump. Chains are fastened into eye bolts with clevis furnished.
- A hook is placed in top guide bracket to hold chain. See typical drawings.
LOWERING PUMP TO
DISCHARGE ELBOW
Use following steps:
- Check pump rotation if 3 phase. Connect power cords to motor control panel and lay pump on side so that impeller can be seen. Turn all switches to OFF position.
- Close main circuit breaker, then jog manual switch to ON, then OFF. Note rotation of impeller. Impeller must turn counterclockwise or in direction of arrow on top of pump.
- If rotation is wrong interchange any two line leads to motor. BE SURE MAIN BREAKER IS OFF WHEN THIS CHANGE IS MADE. MARK WIRES SO THEY CAN BE REPLACED IN SAME ORDER FOR FINAL CONNECTION LATER.
- Lower pump on rails down to elbow. Lower slowly to be sure pump clears all discharge flanges. If there are any projections on flanges, they must be removed so the pump can slide freely to elbow.
- When pump is set on elbow, check space between check valve face and discharge elbow face. This space must be about 1/32″. If more than 1/32″, tighten screw on adjusting bar to bring pump in closer to flange. Further adjustment may be necessary on start-up if flange leaks. See Fig. 2.
- To adjust bar, loosen spacing set screws and tighten bolts, then reset the set screws. See Fig. 2.
- Make final pump and level control connections and pump is ready to operate.
LIFT-OUT CHECK VALVE ASSEMBLY
4” AND 6” PUMPS

TYPICAL DIMENSIONS – 4” AND 6” LIFT-OUT DIMENSIONS

TYPICAL INSTALLATION FOR DUPLEX
4VC SOLIDS HANDLING SUBMERSIBLE IN 72” BASIN WITH OUTSIDE SHUT-OFF VALVE

TYPICAL INSTALLATION FOR 6” SOLIDS HANDLING DUPLEX 72” DIS. BASIN WITH OUTSIDE VALVE BOX

TYPICAL INSTALLATION FOR DUPLEX 4” SOLIDS HANDLING SUBMERSIBLES – 60” BASIN

TYPICAL DIMENSIONS FOR BASIN HATCH WHEN MOUNTED IN CONCRETE ALSO SHOWN W/OPTIONAL STEEL COVER

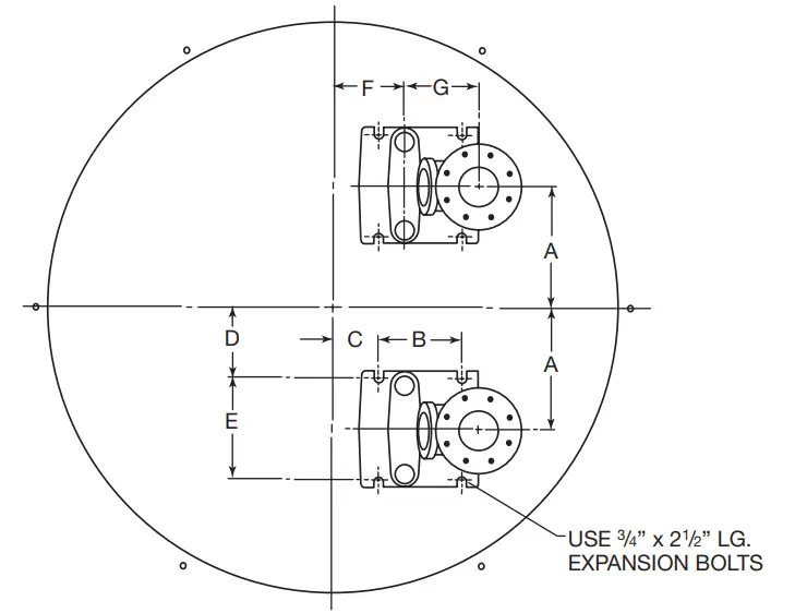
DISCHARGE ELBOW LOCATIONS
| DISCHARGE ELBOW MTG. DIMENSIONS | ||||||||
| BASIN SIZE | DISCH. SIZE | “A” | “B” | “C” | “D” | ,,E, | “F” | “G” |
| 60″ | 4″ | 13″ | 83/4″ | 67/8″ | 73/18″ | 10w | 95/8″ | 73/4″ |
| 72″ | 4″ | 13″ | 83/4″ | 1 1 5/8″ | 73M” | 1 07/8″ | 143/8″ | 73/4″ |
| 72″ | 6″ | 14″ | 12″ | 93/4″ | 71/18″ | 137/8″ | 143/a” | 91/4″ |

TYPICAL DIMENSIONS FOR BASIN HATCH WHEN MOUNTED IN CONCRETE ALSO SHOWN w/OPTIONAL STEEL COVER
NOTES:
- 4VC SEWAGE PUMPS (DUPLEX) WILL NOT FIT IN 60” BASIN
- AS SHOWN – HATCH IS NOT DIRECTLY CENTERED OVER BASIN DIA.
- HATCHES ARE AVAILABLE IN ALUMINUM OR STEEL, COVER w/HATCH IS STEEL ONLY
| DISCHARGE ELBOW MTG. DIMENSIONS | |||||||||
| PUMP SIZE | COVER STYLE | “H” | ” r | “K” | “L” | “M” | “NI, | “P” | Oit |
| 4R, 4V, 4VH SOUDS HANDUNG | HCD-60, HCR-60, HS-60, HA-60 | 32″ | 46″ | 91/2″ | 81/4″ | 133/4″ | 61/8″ | 66″ | 173/4″ |
| 4VC SEWAGE | HCD-72, HCR-72, HS-72, HA-72 | 42″ | 52″ | 91/2″ | 81/4″ | 133/4″ | 61/8″ | 78″ | 23″ |
| 6VH, 6VC SEWAGE | HCD-72, HCR-72, HS-72, HA-72 | 42″ | 52″ | 12″ | 8″ | 133/4″ | 61/8″ | 78″ | 23″ |
Fig. 6
LOWER RAIL GUIDE BRACKET
4” AND 6” RAIL SYSTEMS

TOP RAIL GUIDE PLATE FOR 4” LIFT-OUT SYSTEM

TOP RAIL GUIDE PLATE FOR 6” LIFT-OUT SYSTEM

4″ & 6″ LIFT-OUT RAIL ASSEMBLIES REPAIR PARTS LIST
4V, 4R, 4VH, 6VH, 4VC & 6VC

4″ LIFT-OUT RAIL ASSEMBLIES REPAIR PARTS LIST

6″ LIFT-OUT RAIL ASSEMBLIES REPAIR PARTS LIST

STANDARD LIMITED WARRANTY
Pentair Myers ® warrants its products against defects in material and workmanship for a period of 12 months from the date of shipment from Pentair Myers or 18 months from the manufacturing date, whichever occurs first – provided that such products are used in compliance with the requirements of the Pentair Myers catalogue and technical annuals for use in pumping raw sewage, municipal wastewater or similar, abrasive-free, noncorrosive liquids. during the warranty period and subject to the conditions set forth, Pentair Myers, at its discretion, will repair or replace to the original user, the parts that prove defective in materials and workmanship. Pentair Myers reserves the right to change or improve its products or any portions thereof without being obligated to provide such a change or improvement for prior sold and/or shipped units. Start-up reports and electrical schematics may be required to support warranty claims. Submit at the time of start- up through the Pentair Myers website: http://forms.pentairliterature.com/startupform/startupform.asp?type=m.
Warranty is effective only if Pentair Myers authorized control panels are used. All seal fail and heat sensing devices must be hooked up, functional and monitored or this warranty will be void. Pentair Myers will cover only the lower seal and labor thereof for all dual seal pumps. under no circumstance will Pentair Myers be responsible for the cost of field labor, travel expenses, rented equipment, removal/re-installation costs or freight expenses to and from the factory or an authorized Pentair Myers service facility.
this limited warranty will not apply:
(a) to defects or malfunctions resulting from failure to properly install, operate or maintain the unit in accordance with the printed instructions provided;
(b) to failures resulting from abuse, accident or negligence;
(c) to normal maintenance services and parts used in connection with such service;
(d) to nits that are not installed in accordance with applicable local codes, ordinances and good trade practices;
(e) if the unit is moved from its original installation location;
(f) if unit is used for purposes other than for what it is designed and manufactured;
(g) to any unit that has been repaired or altered by anyone other than Pentair Myers or an authorized Pentair Myers service provider;
(h) to any unit that has been repaired using non factory specified/EM parts.
Warranty Exclusions: PENTAIR MYERS MAKES NO EXPRESS OR IMPLIED WARRANTIES THAT EXTEND BEYOND THE DESCRIPTION ON THE FACE HEREOF. PENTAIR MYERS SPECIFICALLY DISCLAIMS THE IMPLIED WARRANTIES OF MERCHANTABILITY AND FITNESS FOR ANY PARTICULAR PURPOSE.
Liability Limitation: IN NO EVENT SHALL PENTAIR MYERS BE LIABLE OR RESPONSIBLE FOR CONSEQUENTIAL, INCIDENTAL OR SPECIAL DAMAGES RESULTING FROM OR RELATED IN ANY MANNER TO ANY PENTAIR MYERS PRODUCT OR PARTS THEREOF. PERSONAL INJURY AND/OR PROPERTY DAMAGE MAY RESULT FROM IMPROPER INSTALLATION. PENTAIR MYERS DISCLAIMS ALL LIABILITY, INCLUDING LIABILITY UNDER THIS WARRANTY, FOR IMPROPER INSTALLATION. PENTAIR MYERS RECOMMENDS INSTALLATION BY PROFESSIONALS.
Some states do not permit some or all of the above warranty limitations or the exclusion or limitation of incidental or consequential damages and therefore such limitations may not apply to you. No warranties or representations at any time made by any representatives of Pentair Myers shall vary or expand the provision hereof.
1101 MYERS PARKWAY 490 Pine Bush Road, unit #4
Cam Bridge, Ontario, Canad A n1t 0A5
800-363-PuMP
AShLAnd, ohio, uSA 44805 419-289-1144
WWW.FEMYERS.CoM
Warranty Rev. 12/13


















