BFT RANCH C 275 600CN Fixed Traffic Bollard
GENERAL
The deterrent bollard is the ideal solution for protecting and safeguard private areas in compliance with modern urban furnishing requirements.
TECHNICAL SPECIFICATIONS
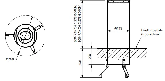
- Overall dimensions……… Ø500 x 960H (RANCH C 275/600CN) ……………………………………….Ø500 x 1160H (RANCH C 275/800CN)
- Rod…………………………………………….Ø273 x h. 600/800 x th. 6 mm
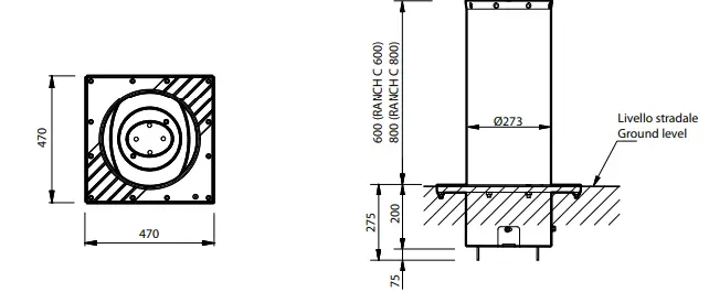
- Flange (optional)………………………………………………… 470 x 470 mm
- Light power supply (optional) ………….24 Vac ±10%, 50-60 Hz
- Bollard net weight ………………….. 40 kg (RANCH C 275/600CN) ……………………………………………………… 48 kg (RANCH C 275/800CN) Bollard gross weight ……………….. 46
- kg (RANCH C 275/600CN) ……………………………………………………… 55 kg (RANCH C 275/800CN) Flange net weight (optional) ………………………………………….. 15 kg Flange
- gross weight (optional) ………………………………………. 18 kg
KIT COMPOSITION
FLANGE
BOLLAR WITHOUT FLANGE
OVERALL DIMENSIONS
BOLLARD PREPARATION

INSTALLATION

BOLLAR WITH FLANGE
OVERALL DIMENSIONS
BOLLARD PREPARATION


INSTALLATION

LIGHT VERSION
ELECTRICAL CONNECTIONS LIGHT CAP (Optional)
MAINTENANCE LOG
NEED HELP
SPAIN
- BFT GROUP ITALIBERICA DE
- AUTOMATISMOS SL
- Camí de Can Bassa, 6, 08401
- Granollers, Barcelona, spagna
FRANCE
- AUTOMATISMES BFT FRANCE SAS
- 50 rue jean zay
- 69800 Saint-Priest, Francia
GERMANY
- BFT ANTRIEBSSYSTEME GMBH
- Faber-Castell-Stra ße 29, 90522
- Oberasbach, Germania
IRELAND
- BFT AUTOMATION IRELAND
- Unit D3 City Link Business Park, Old Naas
- Road, Dublin













![Bst Brs Eld User Manual [lhb Trucking] Bst Brs Eld User Manual [lhb Trucking]](https://static-data1.manualsee.com/1/img/459/123406/2021/04/BST-BRS-ELD-User-Manual-LHB-Trucking-FEATURED-1568x766.png)






