BAST-421C-B2
BACnet Communicating Thermostat for Modulating Fan Coil Operation
BASstat
Modulating Thermostat User Manual
#UM-15093000-AA2
Trademarks
BASautomation, Contemporary Controls, and CTRLink are registered trademarks of Contemporary Control Systems, Inc. BACnet is a registered trademark of the American Society of Heating, Refrigerating and Air-Conditioning Engineers, Inc. Powered by Sedona Framework is a trademark of Tridium, Inc. Other product names may be trademarks or registered trademarks of their respective companies.
Copyright
© Copyright 2021, by Contemporary Control Systems, Inc. All rights reserved. No part of this publication may be reproduced, transmitted, transcribed, stored in a retrieval system, or translated into any language or computer language, in any form or by any means, electronic, mechanical, magnetic, optical, chemical, manual, or otherwise, without the prior written permission of:
Contemporary Control Systems, Inc.
2431 Curtiss Street
Downers Grove, Illinois 60515 USA
Tel: +1-630-963-7070
Fax: +1-630-963-0109
E-mail: [email protected]
Disclaimer
Contemporary Control Systems, Inc. reserves the right to make changes in the specifications of the product described within this manual at any time without notice and without obligation of Contemporary Control Systems, Inc. to notify any person of such revision or change.
Introduction
The BAST-421C-B2 is a member of the BASstat BACnet Communicating Thermostat series. It provides modulated heating and cooling control in an attractive wall-mounted enclosure with a large LCD display. Intended for use with 4-pipe heated/chilled water fan coil units (FCUs), the thermostat can control 2 analog modulating water valve actuators and one binary supply fan. This BASstat is BACnet compliant and BTL listed to ensure seamless integration into a BACnet network, using BACnet/MSTP over 2-wire RS-485, and can be routed to BACnet/IP clients using a Contemporary Controls BASrouter (BASRT-B). A large and easy to read LCD display indicates setpoint, space temperature and current mode of operation using graphical icons.
The BASstat has a built-in space temperature sensor with provision for remote wired 3kΩ NTC thermistor sensor or temperature value can be sent by another communicating device over the BACnet network. The BASstat is configurable locally using the Engineering Menu or via a network connection to a BACnet client. Contemporary Controls’ free BACnet Discovery Tool can be used for initial discovery and configuration of the thermostat over BACnet. Control algorithm parameters such as deadband, proportional gain, integral rate and trip points are all configurable. This BASstat also features configurable fan control and occupancy selection. All states are indicated by graphical icons on the thermostat display.
The numerous features available in the BASstat can be configured by the systems integrator to meet user requirements in two different ways. One way is using a button sequence on the thermostat in order to enter the Engineering Menu – which requires physical access to the thermostat. Optionally, the buttons could be locked to limit user access to Engineering Menu after installation is complete. The second method is configuring the thermostat over the BACnet network using a BACnet client device or software such as Contemporary Controls’ free BACnet Discovery Tool (BDT). All features available are configurable using both methods.
NOTE: 2-pipe heat/cool applications and floating-type valve actuators are not supported by this device.
Features and Benefits
- Stand-alone thermostat algorithm or fully BACnet network-controllable
- BTL listed with B-ASC device profile for integration into BACnet networks
- 24VAC (+/-10%) power input
- BACnet MS/TP with baud rate selections up to 76.8kbps
- Suitable for 4-pipe modulating heat/cool control applications with manual or automatic changeover NOTE: 2-pipe heat/cool applications and floating-type valve actuators are not supported by this device
- Adjustable algorithm applied to modulating valve control
- Effective run time accumulation for energy consumption metering
- Full configurable control parameters such as deadband, proportional gain, integral rate and cycle time
- Adjustable minimum/maximum set point ranges
- Three options for temperature reading:
- Built-in temperature sensor, or
- Remote sensor (RS) input for wiring in a remote temperature sensor (NTC 3kΩ), or
- BACnet network temperature override
- Occupancy status can be switched (1) locally by the user, (2) by using a separate occupancy sensor, or (3) by using BACnet network command.
- Separate adjustable occupied and unoccupied set points for heating and cooling mode
- Fan can be set to run continuously or automatically
- Non-volatile memory retains user settings during power outage
- Thermostat buttons are lockable to prevent tampering
- °C or °F display
- Energy Savings Input (ESI) for local occupancy control
- Control outputs disabled during “OFF” state for safety
Product Image and Main Features
BASstat 421C-B2 and BASstat 421C-BW2

Specifications
2.1 Inputs
| Item | Description |
| Temperature Display Range | -22 to 248 °F (-30 to 120.0°C) with suitable sensor |
| Temperature Display Resolution | 0.1°F (0.1°C) |
| Temperature Accuracy | ±1.8°F (±1.0°C) with all outputs off |
| Energy Savings Input | Provision for external occupancy sensor |
| Setpoint Range | 32-122°F (0-50°C) in 0.5° (°F or °C) increments |
| Remote Temperature Sensor | Provision for NTC Type 3kΩ thermistor |
2.2 Outputs
| Item | Description |
| Relay Output | Fan |
| Analog Outputs | 0-10v modulating AO1 (cooling), AO2 (heating) |
| Contact Rating | SPST 2A at 30 VAC with inductive load |
| Minimum contact life | 100,000 cycles |
2.3 Communication
| Item | Description |
| Protocol Compliance | BACnet/MSTP with B-ASC, BTL Listed |
| Physical Layer | RS-485 2-wire |
| Baud Rate | 9.6, 19.2, 38.4, 76.8 kbps (default 38.4kbps) N81 format |
| Cabling | Shielded single-pair twisted 24 GA AWG |
2.4 Electrical
| Item | Description |
| Supply Voltage and Current | 24 VAC (±10%) 5 VA |
| Power Source Class | NFPA 70 (NEC) Article 725 Part III Class 2 |
| Internal Power Supply | Half-wave rectified and filtered DC |
2.5 Environmental
| Item | Description |
| Operating Temperature | 32 to 122°F (0 to 50°C) |
| Storage Temperature | 14 to 140°F (-10 to +60°C) |
| Relative Humidity | 5 to 95% non-condensing |
2.6 Electromagnetic Compatibility
The BAST-421C-B2 complies with the following specifications and bears the CE mark in accordance with the provisions of the Electromagnetic Compatibility (EMC) Directive 2004/108/EC based on the following specifications:
| Standard | Test Method | Description |
| EN 61000-6-2 | IEC 61000-4-2 | Electrostatic Discharge Immunity |
| EN 61000-6-2 | IEC 61000-4-3 | Radiated, Radio-Frequency, Electromagnetic Field Immunity |
| EN 61000-6-2 | IEC 61000-4-4 | Electrical Fast Transit/Burst Immunity |
| EN 61000-6-2 | IEC 61000-4-5 | Voltage Surge Immunity |
| EN 61000-6-2 | IEC 61000-4-6 | Immunity to Conducted Disturbances |
| EN 61000-6-2 | IEC 61000-4-8 | Power Frequency Magnetic Field Immunity |
| EN 61000-6-2 | IEC 61000-4-11 | Voltage Dips and Interruptions |
| EN 61000-6-3 | IEC 61000-3-2 | Limits for Harmonic Current Emissions |
| EN 61000-6-3 | IEC 61000-3-3 | Limitation of Voltage Fluctuations and Flicker in Low Voltage Supply Systems |
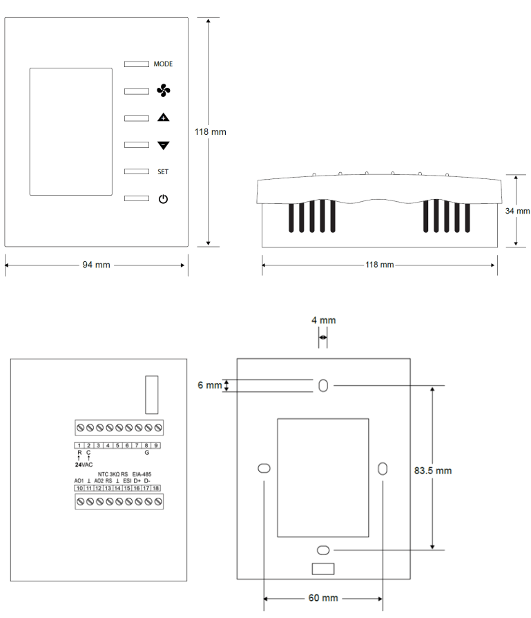
2.7 Mechanical (all dimensions are in mm)
Mounts directly onto wall, panel, standard 65×65mm junction box (hole pitch 60 mm) or standard 2×4-inch vertical junction box (hole pitch 83.5mm).
Width: 94mm
Height: 118mm
Depth: 34mm

Installation
The BASstat 421C-B2 is intended for surface-mount installation on an interior wall, away from direct sunlight or direct air movement. The display (top half) can be removed from its base by loosening the small Philips screw at the bottom of the display. Once the display is removed from the base, the base can be mounted onto the wall with appropriate fasteners. If a singlegang electrical junction box is to be used, the top and bottom mounting holes will align with the screw holes in the junction box.
3.1 Terminal Block Pin Assignments
Two terminal blocks provide for all field connections. BACnet MS/TP data communication connections can be found at terminals 16 and 17 and are polarity sensitive. This BASstat does not provide End-of-Line termination. If the BASstat-421C-B2 is the first or last device on the MS/TP bus, a termination resistor (120Ω) must be applied across pins 16 and 17 of the input terminal. The remote sensor input (RS) is at terminals 13 and 14. The remote occupancy (ESI) input is a dry contact closure input located at terminals 14 and 15.
| Number | Mark | Comment | Number | Mark | Comment |
| 1 | R | 24 VAC high-side | 10 | AO1 | Cooling Device |
| 2 | C | 24 VAC common | 11 | COM | |
| 3 | 12 | AO2 | Heating Device | ||
| 4 | 13 | RS | Remote Sensor Input | ||
| 5 | 14 | COM | Sensor Common | ||
| 6 | 15 | ESI | Energy Saving Input | ||
| 7 | 16 | D+ | RS-485 Positive | ||
| 8 | G | Fan | 17 | D- | RS-485 Negative |
| 9 | 18 |
3.2 Limited Power Source
The BASstat is intended to be powered by a Class 2 compliant power source and only accepts 24VAC with no more than 5VA of power consumption. It should be powered by a Class 2 power source complying with the requirements of the National Electric Code (NEC) article 725. The transformer or power supply complying with the Class 2 rating must carry a corresponding listing from a regulatory agency such as Underwriters Laboratories (UL).
3.3 Power Supply Precautions
Internally, the BASstat utilizes a half-wave rectifier and can share the same AC power source with other half-wave rectified devices. Sharing AC power with full-wave rectified devices is NOT recommended. AC power sources that power several half-wave devices have a common secondary connection called COMMON, LO, or GROUND. Connect the HOT side of the secondary to the 24 VAC high side input on the BASstat and the LO side to 24 VAC common.
WARNING: Devices powered from a common AC source could be damaged if a mix of halfwave and full-wave rectified devices are both present. If you are not sure of the type of rectifier used by another device, do not share the AC source with it.
3.4 Wiring Diagram 
Operation
4.1 User Mode
User-side control is accomplished with six buttons – MODE (Heat, Cool, or Ventilate), FAN (Auto or On), UP, DOWN, SET, and POWER. There are also options to lock the panel buttons to limit user access if so required. A large LCD display indicates setpoint, space temperature, occupancy status, and current mode of operation using graphical icons.
System modes (Cool, Heat, Ventilate) available to the user are dependent on control type chosen from Engineering Menu (tyPE) or BACnet object [MSV7] Control Type. See section 4.2 Control Type of this manual).
System modes and button operation may be limited by installation engineer, especially if the thermostat is completely controlled over BACnet network.
The first tier of operation includes the following settings as shown below. To operate the thermostat:
- The POWER button
toggles between ON or OFF states to start / stop the thermostat. This will disable control (ON/OFF control can be accomplished over BACnet as well). - At power ON, press any button to start the User Mode operation. Press the MODE button
to toggle between different HVAC operating modes such as Cool, Heat, or Ventilate@Cool and Ventilate@Heat. Press the UP/ DOWN buttons
to adjust temperature setpoint or rotate the values of a setting. Press the FAN button
to toggle fan modes of AUTO or CONTINUOUS On. If no AUTO icon is displayed, the fan will run continuously until commanded off using button on thermostat or BACnet command. If AUTO icon is flashing, the fan is operating under delay timer and will shut off automatically when delay timer expires. Press the SET button
and use UP/ DOWN buttons
to toggle the unit between Occupied or Unoccupied states when outside of scheduled operation. Use SET or MODE to apply (SET button can be locked in applications forbidding occupancy state user control). - Thermostat will return to normal display with the last known setting if there’s no button pressed for 10 seconds.
User Mode Thermostat Operation
| # | Item | Description | Remarks |
| 1 | Normal Display | Display current room or set-point temperature | Use the (SP) parameter in the Engineering Menu or [MSV6] Display to choose Current room or Set- point temperature on display. |
| 2 | Temperature Setpoint Setting using Up/Down Arrows | Set the desired temperature | The [AV0] / [AV3] Cool / Heat Occupied and [AV8] / [AV9] Unoccupied Cool / Heat temperature setpoints BACnet objects can be used to write or force the setpoint to a desired value from BACnet supervisor. |
| 3 | Mode Select | Select the working mode: Cooling ( Ventilating. | After pressing the MODE button, press the UP/ DOWN button to rotate the selections. Dependent on Control Type. |
| 4 | Fan Auto/ Continuous | Change the Fan mode between Auto or Continuous On. | When AUTO is displayed, the fan is handled automatically. When AUTO is flashing, the fan is working under a delay timer. When FAN icon is spinning but AUTO is not displayed, the fan will run continuously until commanded off. |
| 5 | Occupancy Setting | Press SET, Used UP and DOWN arrows to toggle between the Occupied and Unoccupied setting. Use MODE or SET buttons to apply. | The SET button could be locked for applications forbidding user occupancy state control. |
User Mode Flow Chart

4.2 Control Type
Control Type, System Mode and Algorithm Configuration
System modes available to the user are dependent on control type.
4-Pipe Cooling or Heating with Auto Changeover – This the default control type in this thermostat. Mostly used for standalone operation. The thermostat will switch between Cool and Heat modes automatically. In this control type, the user will be presented with a choice of Heat or Ventilation@Heat when the thermostat is in Heat mode (automatic), and Cool or Ventilation@Cool when the thermostat is in Cool mode (automatic).
4-Pipe Cooling or Heating with Manual Changeover – In this control type the thermostat will wait for a command from user or BACnet supervisor to switch between Cool and Heat modes. The user will be presented with a choice of Heat or Ventilation@Heat when the thermostat is in Heat mode, and Cool or Ventilation@Cool when the thermostat is in Cool mode. The user can choose to switch between Cool and Heat modes using the MODE button.
BACnet controlled – In this control type the built-in thermostat algorithm can be bypassed, and the thermostat can be controlled over the BACnet network with commands from the supervisor device. The logic executing in the supervisor (such as Niagara or Sedona logic) can control the thermostat over the BACnet network. To put the thermostat in BACnet network control mode, use the Lock [AV18] object bit 9: Control DOs by thermostat algorithm “0” (default) or BACnet supervisor “1” (add decimal=512).
Cool Only and Heat Only modes (nullified/disabled in firmware) are control types listed in the BACnet object and Engineering Menu object but are not available for use.
Control type is only configurable by the installer using Engineering Mode Menu or BACnet supervisor. The installer must decide the control type suitable for the application, set it to a static value, or program the BACnet supervisor to change the control type automatically. The default control type is set to 4-Pipe Cooling or heating with Auto Changeover. Manual Changeover can be used to prevent excessive automatic changeover between cooling and heating system modes.
Algorithm
- A PID adaptive control algorithm is applied to minimize overshoot, in addition to proportional band (Stage Width) and derivative (Differential) calculation.
- When the thermostat is active (either the heating or cooling stage is on), a “Working ()” icon will be shown on the LCD.
System Mode
- The default control type, modulating cooling and heating with automatic changeover, allows the thermostat to operate as fully stand-alone. Manual Changeover allows restriction of mode selection to Cool only or Heat only where necessary. Control Type can be selected in (tyPe) or [MSV8].
- For manual changeover control, cooling or heating system modes can be selected by pressing the MODE button or using a BACnet command to object [MSV1]. In application where user control needs to be limited, the lock button function can be used to disable MODE button.
- Occupied Cooling [AV0] and Heating [AV3] set points and Unoccupied Cooling [AV8] and Heating [AV9] setpoints can be set individually. Minimum deadband [AV7] can be programmed as well.
Modulating Valve Offset
- The minimum control analog output voltage (low limit) for the modulating valves (AO1 and AO2) is set to 0 volts. These values can be changed at [AV11] for AO1 and [AV27] for AO2. The setting is measured as an LSB range of 0~125.
Assigned Current Temperature
- A current temperature value can be assigned thru BACnet AV-1 to take place of the onboard temperature sensor value. The assigned value is valid if BACnet communication is driving a flip-flop signal to (BV-16: heartbeat signal) within the (AV-29: Heartbeat Rate time) period (in seconds). Otherwise, the assigned temperature will revert back to the onboard sensor reading.

Floating Deadband
- The Heat and Cool temperature setpoints could be “attached” together. This means that as one setpoint is adjusted and “hits” against the deadband region, it will “push” the deadband region and the other setpoint along the temperature setpoint axis to allow for adjustment while maintaining the configured deadband. If the setpoint is adjusted back the other way, it will “pull” the deadband region and the other setpoint along the temperature setpoint axis.
Minimum Cooling Setpoint and Maximum Heating Setpoint
- Minimum Cooling Setpoint will be confined by set point low limit plus dead band and Minimum cooling setpoint [AV-39] Default 18°C/ 65°F
- Maximum Heating Setpoint will be confined by set point high limit minus dead band and Maximum heating setpoint [AV-40] Default 25°C/ 77°F
Fan Control Output
- Lowest Fan Speed is the speed the fan will default to after a control action (Heating or Cooling) with fan in AUTO mode. If the lowest fan speed [MSV4] is set as “Stop (1)”, the fan will automatically shut off after the control action plus a 2-minute fan-off time delay. During this delay, the AUTO icon will flash. If lowest fan speed is set to “Low (2)” the fan will run continuously after a control action
- Fan Mode can be toggled between AUTO or ON by using the FAN button on the thermostat or BACnet object [MSV0] Fan Mode (BACnet supervisor). By default, this value is set to “Auto(1)”, the AUTO icon is displayed, and fan operation will be controlled automatically. To put the fan in ON mode set [MSV0] to “Low(2)”. This will cause the fan to run continuously (no AUTO icon is displayed). Fan icon spins when fan is active. The FAN button can be locked to limit user access to this feature or the BACnet supervisor can be programmed to default the thermostat to certain state at the end of an occupancy cycle.
Occupancy Setting
There are several ways to define thermostat occupancy state. Note: Occupancy will be detected by ESI contact by default.
- Energy Savings Input (ESI) This is a dry contact input meant for communication from a customer supplied occupancy sensor. (default)
- Occupancy status (occupied/unoccupied) can be set by a BACnet supervisor using writable object ESI Contact Definition [BV14]. “0” for occupied, and “1” for unoccupied. E12/AV18 must be set with a value of 64 (disabled) in advance (E12/AV18 is set as 0 by default)
- User control of occupancy state is allowed from the SET button if E12/ AV18 Lock has the ESI Contact disabled. Pressing the SET button and UP/DOWN buttons will toggle the occupancy state. Press SET button to confirm. The SET button can work in conjunction with BACnet occupancy Command [BV14] on last-write-wins basis. The SET button could be locked to limit user control (use Lock [AV18] BACnet object or (LOC) engineering menu item to lock SET button). In this case only the BACnet supervisor can set occupancy states.
- Occupancy Status [BI0] is a read-only BACnet object indicating current occupancy state -“0” for occupied, and “1” for unoccupied. (AV18 is set as 0 by default).
- When in unoccupied state, a Moon ( ) icon will be displayed on the LCD and the thermostat will change the set-point temperatures to the Unoccupied Cool and Unoccupied Heat setpoints [AV8 – 9]. When the state changes back to occupied, the thermostat will return to the occupied set-point values for Cooling and Heating Temperature Setpoint [AV0, AV3] and a sunlight icon () will be displayed to indicate occupied state on LCD.
4.3 Engineering Mode Menu
Thermostat configuration can be performed using the engineering menu or by controlling BACnet objects using a BACnet client tool such as Contemporary Controls free BACnet Discovery Tool (BDT). It is highly suggested that engineering mode be operated by trained installers only because it is related to system parameters that will affect the control results.
Operation of Engineering Menu
- At power “ON,” press and hold both the UP and DOWN buttons simultaneously for 5 seconds to enter Engineering Mode menu.
- Press the UP or DOWN buttons to rotate through the menu items. The last item loops back to first item at the end of items in menu. Press the MODE button to enter a submenu item.
- Press the UP or DOWN button to change the setting in the submenu item.
Press the MODE button to confirm the setting and return to menu item selection. If no button is pressed for 10 seconds, the display will return to the menu item selection. After another 10 seconds, the display will return back to User mode. Settings are not changed unless confirmed using the MODE button. - To leave Engineering Mode, rotate till (End) menu item appears and press the MODE button. Alternately, pressing no buttons for 10 seconds will return the thermostat back to User mode
Engineering Menu Flow Chart

Engineering Menu Items Table BAST-421C-BW2
| Item | Mnemonic | Description | °C Scale | °F Scale | Step | ||
| Default | Range | Default | Range | ||||
| E1 | db | Deadband | 2.0 | 0~10 | 4.0 | 0~18 | 0.5 (°C/°F) |
| E2 | ESIC | Unoccupied(ESI) cooling set point | 28 | 25~35 | 82.5 | 77~95 | 1.0 (°C/°F) |
| E3 | ESIH | Unoccupied(ESI) heating set point | 15 | 10.0~22.0 | 59 | 50.0~72.0 | 1.0 (°C/°F) |
| E4 | I-t | Integral Time and Output Cycle Time (seconds) | 60 | 0~500 | 60 | 0-500 | 10 (Sec.) |
| E5 | OPL1 | Minimum output voltage in digital value for AO1 when reach Low limit | 0(0V) | 0~125 | 0(0V) | 0~125 | 1 (LSB) (0.044V) |
| E6 | SPA1 | AO1 Span Offset | -20(10V) | -55~0 | -20(10V) | -55~0 | 1 (LSB) (0.044V) |
| E7 | SP-L | Low limit for temperature set point | 10 | 0~50 | 50 | 32~122 | 1.0 (°C/°F) |
| E8 | SP-H | High limit for temperature set point | 30 | 0~50 | 95 | 32~122 | 1.0 (°C/°F) |
| E9 | OFSt | Current temperature offset | 0.0 | -10.0~10.0 | 0.0 | -18.0~18.0 | 0.1 (°C/°F) |
| E10 | Pb | Proportional band or stage width | 1.5 | 0~10.0 | 3.0 | 0~18.0 | 0.1 (°C/°F) |
| E11 | diFF | Stage differential | 0.5 | 0.1~1.0 | 1.0 | 0.1~1.8 | 0.1 (°C/°F) |
| E12 | LOC | Bit Definition: 0: MODE button (dec=1) 1: Down buttons (dec=2) 2: Up button (dec=4) 3: FAN SPEED button (dec=8) 4: Power On/Off button (dec=16) 5: SET (or ℃/℉) button (dec=32) 6: ESI contact detection (dec=64) 7: Door/Window contact detection (dec=128) 8: Modification for communication parameters (dec=256) i.e. baud rate, MAC addr, device inst. 9: Control DOs by thermostat algorithm (0) or BACnet sup. (1) (dec=512) 10~15: reserved/unused Bit Value 0: Unlock / enable 1: Lock / disable Examples (add dec values to lock multiples) Unlock/enable all (0) Lock MODE Button (1) Lock Down Button (2) Lock MODE & Down Buttons (3 = 1+2) Lock Power On/Off button (4) Lock MODE & Power & Down (7 = 1+2+4) Lock SET button (32) Lock MODE & Down & Power & SET (39 = 1+2+4+32) ESI contact disable (64) Lock the modification for communication parameters (256) DOs control commanded by BACnet (512) | 64 | 0-1023 | 64 | 0-1023 | 1 |
| Item | Mnemonic | Description | °C Scale | °F Scale | Step | ||
| Default | Range | Default | Range | ||||
| E13 | ESI | ESI (DI1) digital sensor contact definition | 0 | 0~1 | 0 | 0~1 | 0: N.O. 1: N.C. |
| E14 | rE-C | Modulating Cooling direct/ reverse signal output | 0 | 0~1 | 0 | 0~1 | 0 (direct) 1 (reverse) |
| E15 | rE-H | Modulating Heating direct/ reverse signal output | 0 | 0~1 | 0 | 0~1 | 0 (direct) 1 (reverse) |
| E16 | rS | Present Temperature is getting from built-in temperature Sensor, remote temperature sensor, or assigned through communication | 0 | 0~2 | 0 | 0~2 | 0: built-in 1: remote sense 2: assigned through BACnet |
| E17 | -SP- | Display present temperature value of or current set-point for LCD | 0 | 0~1 | 0 | 0~1 | 0: display PV 1: display SP |
| E18 | door | Door or Windows contact definition (not applicable to all models) | 0 | 0~1 | 0 | 0~1 | 0: N.O. 1: N.C. |
| E19 | LFAn | Lowest Fan speed in Auto fan mode | 0 | 0~1 | 0 | 0~1 | 0: stop 1: low |
| E20 | Pct | Output Percentage (not used) | 0 | 0~100 | 0 | 0~100 | 1% |
| E21 | Baud** | Baud Rate | 38.4 (depends on Model Number.) | 9.6 kbps 19.2kbps 38.4kbps 57.6kbps 76.8kbps | 38.4 (depends on Model Number.) | 9.6 kbps 19.2kbps 38.4kbps 57.6kbps 76.8kbps | |
| E22 | Addr** | MS/TP MAC Address | 1 | 0~AdrH (Default: 0~127) | 1 | 0~AdrH (Default: 0~127) | |
| E23 | devH | Device instance no. – Hi bytes | 100 | 0~4194 | 100 | 0~4194 | 1 |
| E24 | dEUL** | Device instance no. – Low bytes | 1 | 0~999 (ifID-H <= 4193) 0~302 ( if ID- H= 4194) | 1 | 0~999 (ifID-H <=4193) 0~302 ( if ID-H = 4194) | 1 |
| E25 | AdrH** | Max_Master — The highest allowable address for master nodes. | 127 | 1~127 | 127 | 1~127 | 1 |
| E26 | rHSt | Relative Humidity Offset | 0 | 0 | -30.0~30.0 | 0.1%RH | |
| E27 | F-Ht | Fan Output for Heating | 0 | 0/1 | 0 | 0/1 | 0: Disable 1: Enable |
| E28 | dLyC | Cooling Stage Delay | 3 | 1~3 | 3 | 1~3 | 1 (minutes) |
| E29 | cycC | Cooling Maximum Cycles per Hour | 4 | 2~6 | 4 | 2~6 | 1 (cycles/hour) |
| E30 | dLyH | Heating Stage Delay | 3 | 0~3 | 3 | 0~3 | 1 (minutes) |
| E31 | cycH | Heating Maximum Cycles per Hour | 4 | 2~255 | 4 | 2~255 | 1 (cycles/hour) |
| Item | Mnemonic | Description | °C Scale | °F Scale | Step | ||
| Default | Range | Default | Range | ||||
| E32 | tyPE | Control Type | 2 | 1~2 | 2 | 1~2 | 1: 4-Pipe cooling or heating Manual Changeover 2: 4-Pipe heating and cooling auto Changeover |
| E33 | OPL2 | Minimum Output for AO2 | 0(0V) | 0~125 | 0 (0v) | 0~125 | 1 (LSB) (0.044V) |
| E34 | SPA2 | Span Offset for AO2 | 0(0V) | 0~125 | 0 (0v) | 0~125 | 1 (LSB) (0.044V) |
| E35 | Hrtr | Communication Heartbeat Minimum Rate | 60 | 10~3600 | 60 | 10~3600 | 10s |
| E36 | rhPB | Humidity Control PB | |||||
| E37 | rhdF | Humidity Control Diff. | |||||
| E38 | PB2 | Proportional Band or Stage Width 2 | |||||
| E39 | CO2F | CO2 Offset Value | |||||
| E40 | AFtH | After Hour Extension Time (not used) | |||||
| E41 | VALL | Input Low Value of Valve Feedback (not used) | |||||
| E42 | VALH | Input High Value of Valve Feedback (not used) | |||||
| E43 | OPts | Options (not used) | |||||
| E44 | dlAb | DI contact Defination (not used) | |||||
| E45 | Hrt | Communication Heartbeat Flip-Flop | 0 | 0/1 | 0 | 0/1 | 0: Off 1: On |
| E46 | CSPL | Minimum Cooling Temperature Setpoint | 18.0 | 0.0- 50.0 | 65.0 | 32.0-122.0 | 0.1(°C/°F) |
| E47 | HSPH | Maximum Heating Temperature Setpoint | 25.0 | 0.0-50.0 | 77.0 | 32.0-122.0 | 0.1(°C/°F) |
| E48 | nFAn | Minimum Fan Output (not used) | |||||
| E49 | hFAn | Maximum Fan Output (not used) | |||||
| E50 | FAnL | Low Fan Speed Setting (not used) | |||||
| E51 | FAn2 | Med. Fan Speed Setting (not used) | |||||
| E52 | FAnH | Hi Fan Speed Setting (not used) | |||||
| E53 | ObAb | Reversing Valve Polarity | |||||
| E54 | OFFt | Minimum Off Time | 180 | 0~600 | 180 | 0~600 | 5 (seconds) |
| E55 | On-t | Minimum On Time | 0 | 0~600 | 0 | 0~600 | 5 (seconds) |
| E56 | It-2 | Integral Time and Output Cycle Time 2 | 60 | 0~500 | 60 | 0~500 | 10 (Seconds) |
| E57 | tESt | Self-Diagnostic | |||||
| E58 | rSt | Reset all parameters as factory default | |||||
| E59 | End | Exit Engineer Mode | |||||
** NOTE:
1. Changing these values needs to unlock modification for communication parameters in advance. Please refer to the parameter LOC(Lock, AV17) for details.
2. Device instance number = “devH” *1000 + “devL” = 0~4194302. ex. If “devH” is 100 and devL” is 001then the Device instance number = 100001.
Lock Function Setup and Examples
The 16-bit binary encoded decimal register accessed through Lock [AV17] BACnet object and LOC engineering menu item is used to enable/disable features in the thermostat. The first 10 bits are used (bit 0 ~ bit 9), bits 10~15 are reserved/unused. Bits are represented by their decimal values and are added or subtracted to toggle from “0” to “1”. Add a bit’s decimal value to toggle to “1” or subtract a bit’s decimal value to toggle to “0”. See table below.
| Bit Definition: | Decimal Value to Write: |
| 0: MODE button | (dec=1) |
| 1: DOWN button | (dec=2) |
| 2: UP button | (dec=4) |
| 3: FAN SPEED button | (dec=8) |
| 4: POWER On/Off button | (dec=16) |
| 5: SET (or ℃/℉) button | (dec=32) |
| 6: ESI contact detection | (dec=64) |
| 7: Door/Window contactdetection (unused) | (unused) |
| 8: Modification for communication parameters | (dec=256) |
| i.e., baud rate, MAC addr, device inst.(0) or BACnet sup. (1) 9: Control DOs by thermostat algorithm | (dec=512) |
| 10~15: reserved/unused | (unused) |
Bit Value:
0: Unlock / enable
1: Lock / disable
Add decimal values to lock multiples. Bold decimal number is the example value to write to Lock object. Examples:
Unlock/enable all (0) – this will also enable ESI DI1 (add 64 to all values below to maintain default occupancy selection over BACnet).
Lock MODE button (1) Lock DOWN button (2)
Lock MODE & DOWN (3 = 1+2)
Lock UP button (4)
Lock MODE & DOWN & UP (7 = 1+2+4)
Lock FAN SPEED button (8)
Lock MODE & DOWN & UP & FAN (15 = 1+2+4+8)
Lock POWER button (16)
Lock MODE & DOWN & UP & FAN & POWER (31 = 1+2+4+8+16)
Lock SET button (32)
Lock MODE & DOWN & UP & FAN & POWER & SET (63 =1+2+4+8+16+32)
ESI contact disable (64 – default). When the default value of 64 is maintained, occupancy is set over BACnet and SET user button.
Lock MODE & DOWN & UP & FAN & POWER & SET & disable ESI DI1 (127 = 1+2+4+8+16+32+64)
Door/Window contact detection (unused)
Lock the modification for communication parameters such as baud rate and mac address (256)
Lock MODE & DOWN & UP & FAN & POWER & SET & disable ESI DI1 & modification for communication parameters (383 =1+2+4+8+16+32+64+256)
DOs control commanded by BACnet (512)
4.4 BACnet Objects and Network Configuration
Transmission types
- Physical layer: EIA-485
- Protocol: BACnet MS/TP
- Baud rate: 38400 bps (default). MAC address: 1 (default)
- Device Instance: 700001 (default)
Initial Configuration
All configuration parameters are settable through use of the buttons on thermostat by entering the Engineer Menu, or once installed on the BACnet network, configuration can also be altered using BACnet commands. Network command-based configuration can also be accomplished using a Wi-Fi enabled laptop/computer/tablet/smart phone and Contemporary Controls’ free BACnet Discovery Tool.
BACnet Object Table BAST-421C-B2
| Object name | Type & Instance | Object Property (Readable/Writable) | Range |
| BACnet Thermostat | Device 700001 | Model Name (R) | 788C |
| Application Software Version (R) | Aug 6 2021 | ||
| Object Identifier (R) | |||
| Object Name (R/W) | 32 characters (max.) | ||
| Object name | Type & Instance | Readable/ Writable | Description | Range and Definition |
| Current Temperature | AI 0 | R | Current Temperature | -999~9999: -99.9~999.9 ℃/°F |
| Active Temperature Setpoint | AI 1 | R | Active Temperature Set- Point | °C :0~500 (0.0~50.0℃) °F : 320~1220 (32.0~122.0°F) |
| Built-in Temperature Sensor | AI 2 | R | Built-in Temperature Sensor Reading | -999~9999:-99.9~999.9 ℃/°F |
| Remote Temperature Sensor | AI 3 | R | Remote Temperature Sensor Reading | -999~9999:-99.9~999.9 ℃/°F |
| Object name | Type & Instance | Readable/ Writable | Description | Range and Definition |
| Current Humidity | AI 4 | R | Current Humidity | 0~1000: 0.0~100.0%RH |
| Current Dew Point | AI 5 | R | Current Dew Point | -999~9999: -99.9~999.9 °C/°F |
| Current CO2 Reading | AI 6 | R | Current CO2 Reading | 0~3000: 0~3000 ppm |
| Control Valve Feedback | AI 7 | R | Control Valve Feedback | 0~1000 (0.0%~100.0%) |
| Modulating/ Floating Output 1 | AI 8 | R | Modulating/ Floating Output 1 (Cooling) | 0~100: 0~100 % |
| Modulating/ Floating Output 2 | AI 9 | R | Modulating/ Floating Output 2 (Heating) | 0~100: 0~100 % |
| Modulating Fan Output | AI 10 | R | Modulating Fan Output | 0~100: 0~100 % |
| Control Output Percentage | AI 11 | R | CO2 Control Output Percentage | 0~100: 0~100 % |
| Voltage Input Value | AI 12 | R | Voltage Input Value | 0~150 (0.0~15.0 VDC) |
| AI 1 Percentage | AI 13 | R | Analog Input 1 Percentage Value | 0~1000 (0.0%~100.0%) |
| 2nd Remote Temperature | AI 14 | R | 2nd remote temperature Value | -999~9999:-99.9~999.9℃/°F |
| 3rd Remote Temperature | AI 15 | R | 3rd Remote Temperature Sensor Reading Value | -999~9999:-99.9~999.9℃/°F |
| Cooling Temperature Setpoint | AV 0 | R/W | Cooling Temperature Set Point | °C :0~500 (0.0~50.0℃) °F: 320~1220 (32.0~122.0°F) |
| Space Temperature via BACnet | AV 1 | R/W | BACnet Assigned Current Temperature | -999~9999 (-99.9~999.9℃/°F) |
| Timer Off | AV 2 | R/W | Timer Off (Only for Models with Countdown Timer | 0~24: 0~24 Hours Count Down |
| Heating Temperature Setpoint | AV 3 | R/W | Heating Temperature Set Point | -999~9999: -99.9~999.9 ℃/°F |
| Object name | Type & Instance | Readable/ Writable | Description | Range and Definition |
| Hr-Running Time | AV 4 | R/W | Running Time of Valve (Hr.) | 0~65535 (Hr.) For Reading But 0~30000 (Hr.) For Writing. |
| M-Running Time | AV 5 | R/W | Running Time of Valve (M.) | 0~59 (Minute) |
| Sec-Running Time | AV 6 | R/W | Running Time of Valve (Sec.) | 0~59 (Sec.) |
| Deadband | AV 7 | R/W | Deadband | 0-18° (default 4°) |
| Unoccupied Cool Setpoint | AV 8 | R/W | Unoccupied Cooling Setpoint | °C: 250~300 (25.0~30.0°C) °F: 770~860 (77.0~86.0°F) |
| Object name | Type & Instance | Readable/ Writable | Description | Range and Definition |
| Unoccupied Heat Setpoint | AV 9 | R/W | Unoccupied Heating Setpoint | °C: 100~220 (10.0~22.0°C) °F: 500~715(50.0~71.5°F) |
| Integral-Cycle Time | AV 10 | R/W | Integral Time and Output Cycle Time | 0~500 (Sec.) |
| Analog Minimum Output for AO1 | AV 11 | R/W | Minimum Output Voltage in Digital Value When Reach Low Limit for AO1 | 0~125 (LSB) |
| Span Offset for AO1 | AV 12 | R/W | Span Offset for AO1 | -55~0 (LSB) |
| Low Setpoint Limit | AV 13 | R/W | Low Limit for Set-Point Temperature | °C :0~500 (0.0~50.0℃) °F: 320~1220(32.0~122.0°F) |
| High Setpoint Limit | AV 14 | R/W | High Limit for Set-Point Temperature | °C :0~500 (0.0~50.0℃) °F: 320~1220(32.0~122.0°F) |
| Temperature Offset | AV 15 | R/W | Offset for Current Temperature | °C: -100~100 (- 10.0~10.0°C) °F: -180~180 (-18.0~18.0°F) |
| Proportional Band- Stage Width | AV 16 | R/W | Proportional Band or Stage Width | °C :0~100 (00~10.0 °C) °F: 0~180 (00~18.0 °F) |
| Stage Differential | AV 17 | R/W | Stage Differential | °C :1~10 (0.1~1.0 °C) °F: 1~18 (0.1~1.8 °F) |
| Object name | Type & Instance | Readable/ Writable | Description | Range and Definition |
| Lock | AV 18 | RW | LOCK | Bit Definition: 0: MODE button (dec=1) 1: Down button(dec=2) 2: Up button (dec=4) 3: FAN SPEED button (dec=8) 4: Power On/Off button (dec=16) 5: SET (or ℃/℉) button (dec=32) 6: ESI contact detection (dec=64) 7: Door/Window contact detection (dec=128) 8: Modification for communication parameters (dec=256) i.e. baud rate, MAC addr, device inst. 9: Control DOs by thermostat algorithm (0) or BACnet sup. (1) (dec=512) 10~15: reserved/unused Bit Value 0: Unlock / enable 1: Lock / disable Examples (add dec values to lock multiples) For more details see Lock Function Setup and Examples section of this manual |
| Control Out Percentage | AV 19 | R/W | Percentage of Modulating/ Floating Control Output | 0~100 (0%~100%) |
| MAC Address | AV 19 | R/W | MAC Address | 0~127 |
| Device Instance | AV 21 | R/W | Device Instance | 0~4194302 (Note: Before changing this value unlock modification for communication parameters i.e. AV17=0~255 or 512~768. Please refer to LOCK(AV17) for details) |
| Humidity Offset | AV 22 | R/W | Humidity Offset Value (CH models only) | -300~300 (-30.0~30.0 %RH) |
| Object name | Type & Instance | Readable/ Writable | Description | Range and Definition |
| Cooling Short Cycle Delay | AV 23 | R/W | Cooling Short Cycle Delay | 1~3 Minutes |
| Cooling Maximum Cycles per Hour | AV 24 | R/W | Cooling Maximum Cycles per Hour | 2~6 Cycles |
| Heating Short Cycle | AV 25 | R/W | Heating Short Cycle Delay | 0~3 Minutes |
| Heating Maximum Cycles per Hour | AV 26 | R/W | Heating Maximum Cycles per Hour | 2~8 Cycles |
| Analog Minimum Output for AO2 | AV 27 | R/W | Minimum Output Voltage in Digital Value When Reach Low Limit for AO2 | 0~125 (LSB) |
| Span Offset for AO2 | AV 28 | R/W | Span Offset for AO2 | -55~0 (LSB) |
| Heartbeat Rate | AV 29 | R/W | Communication Heartbeat Minimum Rate | 10~3600 s |
| Humidity Proportional Band- Stage Width | AV 30 | R/W | Proportional Band or Stage Width for Humidity Control Output | 0~1000 (0.0~100.0) %RH |
| Humidity Stage Differential | AV 31 | R/W | Stage Differential for Humidity Control Output | 0~1000 (0.0~100.0) %RH |
| Proportional Band or Stage Width 2 | AV 32 | R/W | Proportional Band or Stage Width 2 | °C :0~100 (00~10.0 °C) °F: 0~180 (00~18.0 °F) |
| CO2 Offset | AV 33 | R/W | CO2 Offset Value | -1000~2000 ppm |
| After Hour Extension Run Time | AV 34 | R/W | After Hour Extension Run Time | 5~20(0.5~2.0) Hour |
| Input Low Value | AV 35 | R/W | Input Low Value | -1000~1000 (-100.0~100.0 %) |
| Input High Value | AV 36 | R/W | Input High Value | 0~1000 (0.0~100.0 %) |
| Options | AV 37 | R/W | Options | Bit Definition — Bit 0: T or SP Bit 1~15: Reserved |
| DI Contact Definition | AV 38 | R/W | DI Contact Definition | Bit Definition — Bit 0: DI-1 1: DI-2 Bit 2~15: Reserved *Bit value:0-NO, 1-NC |
| Minimum Cooling Setpoint | AV 39 | R/W | Minimum Cooling Setpoint | °C:0~500 (0.0~50.0℃) °F: 320~1220 |
| Maximum Heating Setpoint | AV 40 | R/W | Maximum Heating Setpoint | °C:0~500 (0.0~50.0℃) °F: 320~1220 |
| Minimum Fan Output | AV 41 | R/W | Minimum Fan Output at Auto Fan Mode (for Modulating Fan Application) | 0%~Reg 51 |
| Object name | Type & Instance | Readable/ Writable | Description | Range and Definition |
| Object name | Type & Instance | Readable/ Writable | Description | Range and Definition |
| Maximum Fan Output | AV 42 | R/W | Maximum Fan Output at Auto Fan Mode (for Modulating Fan Application) | Reg 50~100% |
| Low Fan Speed Setting | AV 43 | R/W | Low Fan Speed Setting (for Modulating Fan | 0%~Reg 53 |
| Med. Fan Speed Setting | AV 44 | R/W | Med. Fan Speed Setting (for Modulating Fan Application) | Reg 52~Reg54 |
| Hi Fan Speed Setting | AV 45 | R/W | Hi Fan Speed Setting (For Modulating Fan | Reg 53~100% |
| Minimum Off Time | AV 46 | R/W | Minimum Off Time | 0~600 seconds |
| Minimum On Time | AV 47 | R/W | Minimum On Time | 0~600 seconds |
| Integral-Cycle Time 2 | AV 48 | R/W | Integral Time and Output Cycle Time 2 | 0~500 (Sec.) |
| Set Point for Humidity | AV 49 | R/W | Set Point for Humidity Control | 0~1000 (0.0~100.0%RH) |
| Dew Point Set Point | AV 50 | R/W | Dew Point Temperature Set Point | -999~9999: -99.9~999.9 ℃/°F |
| Occupancy Status | BI 0 | R | Status of Occupancy | 0: Room Occupied 1: Room Unoccupied |
| Window-Door Status | BI 1 | R | Window/ Door Status | 0: Door/Window Closed 1: Door/Window Open |
| Cooling-heating Status | BI 2 | R | Status of Cooling/Heating Control Output | 0: Close & Off 1: Open & On |
| Relay 1 Status | BI 3 | R | Status of Relay 1 | 0: Off, 1: On |
| Relay 2 Status | BI 4 | R | Status of Relay 2 | 0: Off, 1: On |
| Relay 3 Status | BI 5 | R | Status of Relay 3 | 0: Off, 1: On |
| Relay 4 Status | BI 6 | R | Status of Relay 4 | 0: Off, 1: On |
| Relay 5 Status | BI 7 | R | Status of Relay 5 | 0: Off, 1: On |
| Relay 6 Status | BI 8 | R | Status of Relay 6 | 0: Off, 1: On |
| Relay 7 Status | BI 9 | R | Status of Relay 7 Fan | 0: Off, 1: On |
| Dl 1 Status | BI 10 | R | Status of Digital Input 1 | 0: Off, 1: On |
| Dl 2 Status | BI 11 | R | Status of Digital Input 2 | 0: Off, 1: On |
| Object name | Type & Instance | Readable/ Writable | Description | Range and Definition |
| Dl 3 Status | BI 12 | R | Status of Digital Input 3 | 0: Off, 1: On |
| Dl 4 Status | BI 13 | R | Status of Digital Input 4 | 0: Off, 1: On |
| Dl 5 Status | BI 14 | R | Status of Digital Input 5 | 0: Off, 1: On |
| Dl 6 Status | BI 15 | R | Status of Digital Input 6 | 0: Off, 1: On |
| Dl 7 Status | BI 16 | R | Status of Digital Input 7 | 0: Off, 1: On |
| Fan Status | BI 17 | R | Fan Status | 0: Off, 1: On |
| Flow Switch Status | BI 18 | R | Differential Pressure (Air Flow) Switch Status | 0: Off, 1: On |
| Trip Status | BI 19 | R | Trip Alarm Status | 0: Off, 1: On |
| Filter Status | BI 20 | R | Filter Dirty Alarm Status | 0: Off, 1: On |
| Smoke/ Fire Alarm Status | BI 21 | R | Smoke/ Fire Alarm Status | 0: Off, 1: On |
| Status | BI 22 | R | Current Status | 0: Off, 1: On |
| Valve Status | BI 23 | R | Valve Status | 0: Off, 1: On |
| Alarm | BI 24 | R | Alarm Status | 0: Off, 1: On |
| Frozen Alarm Status | BI 25 | R | Frozen Alarm Status | 0: Off, 1: On |
| After Hour Status | BI 26 | R | After Hour Status | 0: Normal Hour 1: After Hour |
| Occupancy Contact Definition | BV 0 | R/W | Occupancy(DI1) Contact Definition | 0: N.O. = Occupied 1: N.C. = Occupied |
| Cooling Direct- Reverse Acting | BV 1 | R/W | Modulating Cooling Direct/ Reverse Signal Output | 0: Direct (0 To10v) 1: Reverse (10 To 0V) |
| Heating Direct- Reverse Acting | BV 2 | RW | Modulating Heating Direct/ Reverse Signal | 0: Direct (0 To10v) 1: Reverse (10 To 0V) |
| Reversing Valve Polarity | BV 3 | R/W | Reversing Valve Polarity | Cooling/ Heating 0: N.O./ N.C. |
| Window-Door Contact Definition | BV 4 | R/W | Door or Windows(DI2) Contact Definition | 0: N.O. 1: N.C. |
| On-Off Control | BV 5 | R/W | On/Off Status of Thermostat | 0: Off, 1: On |
| Temperature Scale | BV 6 | R/W | °C/ °F | 0: °C 1: °F |
| Object name | Type & Instance | Readable/ Writable | Description | Range and Definition |
| Relay 1 Control | BV 7 | R/W | On/Off Control of Relay 1 | 0: Off, 1: On |
| Relay 2 Control | BV 8 | R/W | On/Off Control of Relay 2 | 0: Off, 1: On |
| Relay 3 Control | BV 9 | R/W | On/Off Control of Relay 3 | 0: Off, 1: On |
| Relay 4 Control | BV 10 | R/W | On/Off Control of Relay 4 | 0: Off, 1: On |
| Relay 5 Control | BV 11 | R/W | On/Off Control of Relay 5 | 0: Off, 1: On |
| Relay 6 Control | BV 12 | R/W | On/Off Control of Relay 6 | 0: Off, 1: On |
| Relay 7 Control | BV 13 | R/W | On/Off Control of Relay 7 (Fan) | 0: Off, 1: On |
| Occupancy Command | BV 14 | R/W | Room Occupancy Setting | 0: Occupied, 1: Unoccupied |
| Fan Output for Heating | BV15 | R/W | Disable/ Enable Fan Output for Heating | 0: Disable 1: Enable |
| Heartbeat | BV16 | R/W | Communication Heartbeat Flip-Flop | 0: Off 1: On |
| Fan Mode | MSV 0 | R/W | Fan Mode | 1: Auto 2: Low 3: Med. 4: Hi |
| System Mode | MSV 1 | R/W | Working Mode: Heat, Cool or Ventilation | 1: Cool Mode 2: Heat Mode 3: Ventilation @ Cool Mode 4: Ventilation @ Heat Mode |
| Sleep | MSV 2 | R/W | Sleep (Only for Models with Sleep Function Available). | 1: Disable, 2: 0 Hr. Sleep 3: 0.5 Hr. Sleep 4: 1 Hr. Sleep 5: 1.5 Hrs. Sleep, 6: 2 Hrs. Sleep |
| Temperature Source | MSV3 | R/W | Current Temperature Source | 1: Built-In Temp. Sensor 2: Remote Temp. Sensor 3: Assigned through BACnet |
| Lowest Fan Speed | MSV 4 | R/W | Lowest Fan speed in Auto Fan mode | 1: Stop 2: Low 3: Med. 4: Hi |
| Fan Speed Status | MSV 5 | R | Fan Speed Status | 0: Stop 1: Low 2: Med 3: Hi |
| Object name | Type & Instance | Readable/ Writable | Description | Range and Definition |
| Object name | Type & Instance | Readable/ Writable | Description | Range and Definition |
| Baud Rate | MSV6 | R/W | Baud Rate (BPS for MS/TP) | 1: 9600 bps 2: 19200 bps 3: 38400 bps 4: 57600 bps 5: 76800 bps |
| Display Options | MSV 7 | R/W | LCD Display Options | 1: T & Time (if available) 2: SP & Time (if available) 3: T & CO2 (if available) 4: CO2 & Time (if available) 5: SP & CO2 (if available) 6: T & RH (if available) 7: T & Valve (if available) |
| Control Type | MSV 8 | R/W | Control Type Selection | 2: 4-Pipe Cooling or Heating Manual Changeover 3: 4-Pipe Cooling and Heating Auto Changeover |
Warranty
Contemporary Controls (CC) warrants this product to the original purchaser for two years from the product shipping date. Product returned to CC for repair is warranted for one year from the date the repaired product is shipped back to the purchaser or for the remainder of the original warranty period, whichever is longer.
If the product fails to operate in compliance with its specification during the warranty period, CC will, at its option, repair or replace the product at no charge. The customer is, however, responsible for shipping the product; CC assumes no responsibility for the product until it is received.
CC’s limited warranty covers products only as delivered and does not cover repair of products that have been damaged by abuse, accident, disaster, misuse, or incorrect installation. User modification may void the warranty if the product is damaged by the modification, in which case this warranty does not cover repair or replacement.
This warranty in no way warrants suitability of the product for any specific application. IN NO EVENT WILL CC BE LIABLE FOR ANY DAMAGES INCLUDING LOST PROFITS, LOST SAVINGS, OR OTHER INCIDENTAL OR CONSEQUENTIAL DAMAGES ARISING OUT OF THE USE OR INABILITY TO USE THE PRODUCT EVEN IF CC HAS BEEN ADVISED OF THE POSSIBILITY OF SUCH DAMAGES, OR FOR ANY CLAIM BY ANY PARTY OTHER THAN THE PURCHASER.
THE ABOVE WARRANTY IS IN LIEU OF ANY AND ALL OTHER WARRANTIES, EXPRESSED OR IMPLIED OR STATUTORY, INCLUDING THE WARRANTIES OF MERCHANTABILITY, FITNESS FOR PARTICULAR PURPOSE OR USE, TITLE AND NONINFRINGEMENT.
Returning Products for Repair
Return the product to the location where it was purchased or follow the instructions at the URL below: www.ccontrols.com/rma.htm
Declaration of Conformity
Additional compliance documentation can be found on our website. www.ccontrols.com
![]()
| United States Contemporary ControlSystems, Inc. Tel: +1-630-963-7070 Fax: +1-630-963-0109 [email protected] | China Contemporary Controls(Suzhou) Co. Ltd Tel: +86 512 68095866 Fax: +86 512 68093760 [email protected] |
| United Kingdom Contemporary Controls Ltd Tel: +44 (0)24 7641 3786 Fax:+44 (0)24 7641 3923 [email protected] | Germany Contemporary Controls GmbH Tel: +49 341 520359 0 Fax: +49 341 520359 16 [email protected] |
www.ccontrols.com
UM-15093000-AA2



















