power soak 44324 Power Prep Unlimited User Manual
THIS MANUAL MUST BE RETAINED FOR FUTURE REFERENCE. READ, UNDERSTAND AND FOLLOW THE INSTRUCTIONS AND WARNINGS CONTAINED IN THIS MANUAL.
NOTIFY CARRIER OF DAMAGE AT ONCE
It is the responsibility of the consignee to inspect the container upon receipt of same and to determine the possibility of any damage, including concealed damage. Unified Brands suggests that if you are suspicious of damage to make a notation on the delivery receipt. It will be the responsibility of the consignee to file a claim with the carrier. We recommend that you do so at once.
PRE-UNCRATING CHECKLIST
WARNING: DO NOT CONNECT THE MACHINE USING A POWER CORD AND PLUG OR AN EXTENSION CORD OF ANY KIND.
WARNING: KITCHENS ARE WET ENVIRONMENTS WHICH REQUIRE ALL ELECTRICAL CONNECTIONS TO BE “LIQUID TIGHT”. ELECTRICAL INSTALLATION MUST CONFORM TO ALL APPLICABLE LOCAL WIRING CODES. ALL ELECTRICAL CONNECTIONS MUST BE “LIQUID TIGHT” AND READILY ACCESSIBLE FOR INSPECTION AFTER INSTALLATION WITHOUT MOVING THE POWER PREP UNLIMITED MACHINE.
VERIFYING SYSTEM REQUIREMENTS
Prior to completely removing the Power Prep Unlimited unit from the crate, it is necessary to verify certain requirements. Remove only the lid of the crate at this time.
Verifying System Direction
Left To Right Unit
Right To Left Unit
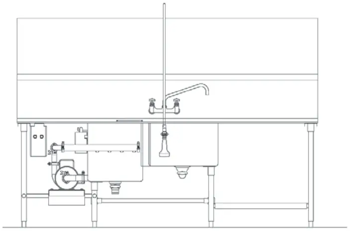
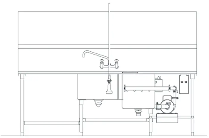
The Power Prep Unlimited can be built as a “Left to Right” or as a “Right to Left” configuration with a variety of options. Look inside the crate and verify that the configuration of the machine matches the specifications of the order description.
Verifying the Electrical Requirements
The electrical requirements for the machine are on the machine identification tag located on the side of the wash sink, next to the motor.
The electrical service in the facility where the machine is to be installed must be rated for the capacity shown on the identification tag. This machine will require a permanently mounted disconnect that is in a “liquid tight” enclosure. Do not use an in-line plug for disconnecting the machine from the electrical source.
Contact a licensed and certified electrician to make the enclosure installation, determine the appropriate circuit breaker (overcurrent protection), and wire size for the machine’s electrical service.
The electrical requirements of your new system are on the serial number plate located on the end of the wash sink near the front, adjacent to the control panel enclosure. They are also shown inside the control panel enclosure itself.
The system is completely pre-wired and tested at the factory, and a hard-wired connection from an appropriate power source is all that is required.
The installer is to provide a NEMA 3X disconnect that should be incorporated in the fixed wiring.
Properly sized watertight conduit, fittings and parts are required, as well as the appropriate gauge wire.
If your system is a “left-to-right” unit, you should locate the disconnect at the left end of the system. (The opposite would be true for a “right-to-left” system.)
Ideally, the disconnect should be located on the wall directly behind the pump motor and control panel provided this location is easily accessible by the operator and does not interfere with the faucet.
A wiring diagram is located in the system’s control panel enclosure.
WARNING: DO NOT CONNECT THE MACHINE USING A POWER CORD AND PLUG OR AN EXTENSION CORD OF ANY KIND.
WARNING: KITCHENS ARE A WET ENVIRONMENT WHICH REQUIRE ALL ELECTRICAL CONNECTIONS TO BE “LIQUID TIGHT”. ELECTRICAL INSTALLATION MUST CONFORM TO ALL APPLICABLE LOCAL WIRING CODES. ALL ELECTRICAL CONNECTIONS MUST BE “LIQUID TIGHT” AND READILY ACCESSIBLE FOR INSPECTION AFTER INSTALLATION WITHOUT MOVING THE POWER PREP MACHINE.
REMOVAL OF EXISTING UNIT
If the new Power Prep Unlimited is not replacing an existing sink, skip this section. If the removal of an existing sink is necessary, continue with this section.
WARNING: FAILURE TO SHUT OFF THE ELECTRICAL AND WATER SUPPLY WILL RESULT IN PERSONAL INJURY, INCLUDING SERIOUS INJURY OR DEATH, AND EXTENSIVE EQUIPMENT DAMAGE.
IMPORTANT: BE SURE TO LEAVE ENOUGH OF THE EXISTING PIPING FOR THE INSTALLATION OF NEW SHUTOFF VALVES. SEE “PRE-PLUMBING” SECTION FOR REFERENCE.
Existing Supply Lines
The water and electrical source must be shut off before disconnecting or cutting the water or electric lines.
Disconnect any electrical cord that is connected to the existing sink. Disconnect the cold and hot water lines at the fittings on the existing sink.
Existing Sink Removal
Detach any fasteners holding the existing sink in place and remove the existing sink along with any shelves that may interfere with the installation of the Power Prep Unlimited. Discard all unwanted materials in an appropriate container or disposal area.
Wall Preparation
Clean the wall(s) where the new Power Prep Unlimited will be installed. Fill all existing holes with an appropriate filler material. Be sure that any outlet that will be covered by the sink has been disconnected and a water tight cover has been installed over the opening.
MPORTANT: IT IS RECOMMENDED THAT NEW ½” OR LARGER MINIMUM I.D. BALL-TYPE SHUT OFF VALVES BE INSTALLED. USE A MINIMUM NUMBER OF ELBOWS IN THE COLD WATER SUPPLY IN ORDER TO PROVIDE THE LEAST AMOUNT OF RESTRICTION IN THE LINE.
IMPORTANT: WASTE PLUMBING MUST CONFORM TO LOCAL BUILDING CODES.
PRE-PLUMBING
Supply and Waste Lines
The supply and waste lines must meet the following requirements:
- Hot and cold water supply must be ½” diameter or larger.
- Centerlines of the hot and cold water supply must be 10” or less above the floor to access the shutoff valves when the machine is installed.
- Waste drain must be 1-1/2” minimum diameter.
- Centerline of the waste drain must be 11” or less above the floor to allow the sink to drain properly.
Install new shutoff valves on the hot and cold water supply lines.
Grease Trap
It may be necessary to relocate and/or replace the existing grease trap. Be sure that the grease trap meets or exceeds the local plumbing codes.
POST-UNCRATING INSTRUCTIONS
UNCRATING
Remove From Crate
Remove the Power Prep Unlimited from the shipping crate. Sharp staples and nails are used to crate the machine, and care must be taken in handling boards and other packing materials to keep from creating a puncture wound or other injury to people or damage to the equipment. Discard the crating materials in an appropriate disposal area or container.
Inspect the unit and packages shipped in the sink to be certain there was no damage created by the shipping company. If there are signs of shipping damage, contact the shipping company before proceeding.
Remove the packages from the wash sink and locate the box labeled “OPEN FIRST”. This box will contain the fasteners and sealant that will be required for assembly of the Power Prep Unlimited.
IMPORTANT: DO NOT BEND THE EDGE OF THE BACKSPLASH WHEN LAYING THE SINK ON ITS BACK.
COMPONENT INSTALLATION
Faucet Installation
Open the faucet package and locate the water connection elbows, faucet body and escutcheon assemblies. Apply Teflon tape to the threads of the elbows and insert them though the backsplash of the sink.
Loosely fit the escutcheons to the elbows and the faucet body. When the alignment of the body with the sink is confirmed, tighten the escutcheons onto the elbows and faucet body. From the back side of the backsplash, tighten the brass nuts on the elbows when the faucet body is parallel with the rim of the sink.
IM-POWER PREP UNLIMITED
Complete the faucet assembly according to the manufacturer’s instructions which are included with the faucet. Attach water lines to the faucet so that the lines extend below the sink. This will make the plumbing easier to complete when the machine is placed against the wall.
COMPLETING THE INSTALLATION
IMPORTANT: THE POWER PREP UNLIMITED SINK ASSEMBLY MUST BE LEVEL FROM SIDE TO SIDE AND FRONT TO REAR WITH ALL THE FEET MAKING FIRM CONTACT WITH THE FLOOR.
FINAL INSTALLATION STEPS
Machine Placement
Position the Power Prep Unlimited so that the back splash rests against the wall and is placed according to the floor plan or customer’s selected location. Examine the drain and water supply lines to determine that the plumbing can be completed when the Power Prep Unlimited is in the final location. Verify that the plumbing from the faucet can be reached with the sink against the wall.
Downturned-Backsplash (“Z-Clip” Installation)
If the Power Prep has an upturned backsplash, skip this step.
If the Power Prep has a backsplash that is downturned, it will be necessary to attach the provided Z-Clips to the wall. Using a level, adjust the feet on the Power Prep until the front rim and the rear rim of the sink are level. The sink must also be level front to back. Measure from the floor to the top edge of the backsplash, and then move the sink away from the wall. Locate the Z-Clips by marking a level line on the wall approximately 3/32” below the height of the backsplash top edge. Locate the wall studs and mark the locations. Align top edge of Z-Clips to the marked line and securely fasten the Z-Clips to the wall, using fasteners provided. Install screws directly to the wall’s studs whenever possible. The Z-Clips should be spaced as evenly as possible. Move the sink to the wall and lift the back edge over the Z-Clips.
Upturned-Backsplash
If the Power Prep has a downturned backsplash, skip this step.
Using a level, adjust the feet on the Power Prep until the front rim and the rear rim of the sink are level. The sink must also be level front to back. Locate the wall studs and mark their location on the top edge of the back splash. Measure down ¾” from the top of the backsplash and then drill ¼” diameter holes through the back splash in line with the center of the studs. Use the included #10 stainless steel screws to attach the Power Prep directly to the wall.
Seal around the Backsplash and Screws
Examine the installation to see that the wall and backsplash are clean and free of dust and oils. Seal the top and sides of the backsplash to the wall using the clear NSF approved sealant provided with the Power Prep. Seal around the screw heads to be sure they do not allow water to leak behind the backsplash. Wipe off all excess sealant leaving a smooth, clean and sanitary bead of sealant on all the edges.
Rinse Riser and Anchor Installation
Follow the faucet manufacturer’s directions on the assembly of the faucet and riser. Position the riser supports on the wall using the flange plate provided with the riser assembly. It may be necessary to cut the support rods to a shorter length in order to fit between the wall and the riser. Attach the riser support to the wall with screws.
MPORTANT: INSTALLER IS RESPONSIBLE FOR ALL PLUMBING TO CONFORM TO LOCAL BUILDING CODES WHICH MAY BE DIFFERENT FROM ILLUSTRATIONS SHOWN IN THIS MANUAL.
Plumbing Connections
Connect the water supply lines to the faucets. Connect all the drains to the waste drain connection.
DO NOT USE HOSES to make the pressure connections to the faucets. Maximum water inlet pressure is not to exceed 125 psi (8.6 Bar), minimum water pressure to be not less than 50 psi (1.2 Bar).
Electrical Connections
The final electrical connections between the Power Prep and the electrical supply must be made by a licensed electrician.
The Power Prep has several options for motors. Review the information tag for determining the specific requirements of the machine being installed (see the table in this instruction booklet for voltage and current requirements of your unit).
Shelving
Reinstall any shelving that was removed for convenience of installation. If the shelving is damaged or corroded, it is recommended that the shelving be replaced. Remember that whatever equipment or supplies are located above the sink might accidentally fall into the food being processed by the Power Prep Unlimited.
VALIDATING THE INSTALLATION
IMPORTANT: MOTOR ROTATION MUST BE CORRECT FOR THE MACHINE TO OPERATE CORRECTLY.
TESTING THE COMPONENTS
Check for Leaks
- Turn on the water supply and inspect all joints for leaks.
- Close the drain valve(s), fill the sink(s) with water, and inspect the drain fittings for leaks.
- Open the drain valve(s) and inspect the drain joins for leaks as the water is draining from the sink.
Check the Electrical Installation
- Check that the electrical connection conforms to the values listed below
HP PHASE HZ SYSTEM VOLTAGE MIN. OVERCURRENT PROTECTIVE DEVICE (AMPS) 2 1 60 208 15 2 1 60 230 15 2 3 60 208 10 2 3 60 230 10 2 3 60 460 10 - Verify that there are no loose wires or open holes in the electrical enclosure.
- Check motor rotation for the correct direction as indicated by the arrow on the pump housing.
- Fill the wash sink with water and press the “ON“ button. Have a qualified electrician verify that the amp draw on the electrical supply is within the specifications on the identification tag.

Check the Faucet Operation
- Open each faucet knob and verify that water flows from each hand control. Verify that hot and cold water are running from the correct hand control.
- With the water valves open, turn the center knob to see that it will shut off flow to the faucet and that the hand sprayer is still functional.
- Purge the water lines according to local code requirements.
Service
The information in this document is Confidential and shall not be disclosed to any third party without the express written consent of Unified Brands.
Information contained in this document is known to be current and accurate at the time of printing/creation. Unified Brands recommends referencing our product line websites, unifiedbrands.net, for the most updated product information and specifications.
© 2022 Unified Brands. All Rights Reserved.




















