B METER Hydroclima 2

Preface
This installation manual contains the rules, information and advice concerning the correct installation of B METERS HC2 heat cost allocators. Before beginning installation, please read this manual. Failure to comply with the instructions contained in this manual will lead to faster parts wear, measurement errors, and may be the basis for the rejection of any future warranty claims.
Safety and warranty
Important information
This product must be assembled in a professional manner, in compliance with the specified installation guidelines; due to the above, the installation may be only carried out by qualified and trained personnel.
Symbols
The document contains the following symbols:
![]() | Attention warnings |
![]() | Tips and information |
Preliminary caution
Any installation work must be carried out in compliance with general Health and Safety rules.
Safety measurements
It is recommended to use personal protective equipment in the form of protective glasses and gloves, especially when mounting the allocators with the welding method.
Use according to specification
The purpose of the heat cost allocator is to indirectly measure the consumption of thermal energy emitted by a radiator. The device may be used only for this purpose.
Any use other than that described above or any modifications to the device shall be deemed to constitute improper use.
Notes concerning the safety of lithium batteries
The allocator is supplied with a lithium battery. This type of battery is classified as dangerous
In all cases you must comply with the applicable regulations concerning transport and storage!
How to store lithium batteries
- keep batteries in a dry room
- do not heat up a battery up to temperatures exceeding 110°C and do not throw it into a fire
- do not cause a short circuit
- do not open and do not damage a battery
- do not charge the battery
- store in places out of the reach of children
General information
Hydroclima 2 is a 2nd generation two-sensor electronic heat cost allocator. It is used to indirectly measure the consumption of thermal energy emitted by a radiator.
The allocator calculates dimensionless consumption units according to the radiator temperature and room temperature. It can also register historical data concerning temperature, heat consumption and other statistics. All data can be sent via Wireless M-Bus protocol, based on Bmetering software configuration.
Intended use
The device is designed for the metering of central heating systems with vertical heating medium distribution. The building’s heating costs are calculated based on the units registered by the allocator.
Packaging content
- a heat cost allocator Hydroclima 2
- an aluminum heat sink
- a protective seal for the heat cost allocator
Additional elements:
- user’s manual*
- installation manual*
- a leaflet for a final user*
- fixing elements **
available on website or on request if ordered with the heat cost allocator
Installation
General installation rules
- The allocator is installed on the radiator in two steps. First the aluminium heat sink must be attached to the radiator.
- The electronic heat cost allocator (heat sink) should be installed at 75% of the radiator’s height, counting from the bottom. (i.e. at 3/4 of the radiator’s height) and exactly in the middle of its width. Exceptions from this rule are presented further in this document. The installation error margin is ±1 cm. (See image below)

- If it is not possible to install the allocator (heat sink) precisely in the middle of the radiator’s width, move it closer to the side on which the heating medium supply pipe is located. Detailed information regarding this type of situation can be found in this document.
- If the total height of the radiator is less than 470 mm, the allocator (heat sink) should be installed in the middle of its height.
- The installation height of the heat sink must be measured from the hole in the middle of the heat sink.

- Install the heat sink according to the installation technique (see point 4 – Installation techniques), aligning the special groove with the previously measured installation point.
- Place the allocator on the heat sink.
- Close the allocator with a seal at the bottom.
- To ensure the heating cost calculation is correct, it is necessary to install all allocators of a given radiators at the same height.
- When performing the installation or stocktaking of allocators, the rooms in which they are located should be described in clockwise order. (See image below)

Installation on radiator heaters
The allocator (heat sink) should be installed using a properly selected mounting bracket. Please consult the following installation cases:
- In the case of an even number of heating elements the allocator (heat sink) should be installed in the middle of the width and at 75% of the height measured from the bottom of the radiator:

- In the case of an even number of heating elements, when the radiator’s mounting pin is located in the middle, the width and at 75% of the height measured from the bottom of the radiator:

- In the case of an odd number of heating elements and when it is not possible to install the allocator in the middle of the radiator’s width, and when the mounting pin is located closer to the radiator’s supply, the allocator (heating sink) is moved one heating element further. The installation height should remain the same (75%):

- In the case of heaters with 20 or more elements 1 allocator should be installed. The rules of installation do not change and remain the same as in the cases described above:

Installation of a heating cost allocator with remote sensor
The installation of the Hydroclima 2 allocator with a remote sensor is shown in the figures below. The cost allocator should be mounted on the wall at a height of 1.5 meters. The heat sink with the sensor is mounted with the handle at the level of 75% of the height and 50% of the width of the radiator, any deviations from the assumed mounting position are the same as described in section “Installation” point 2.

Installation on towel warmers
The allocator (heat sink) should be installed at 75% of the radiator’s height, on the opposite collector from the power supply, in accordance with the figures below. The cost allocator should be mounted on a vertical profile (welding or gluing), if the profile is not available or the round allocator should be mounted horizontally on the ladders next to the main collector with the use of grips.

Installation on tubular radiators
The allocator (heat sink) should be glued to the radiator on a straight segment without any ribs to ensure the largest possible contact surface between the radiator and the heat sink.
- In the case of a single-element radiator the allocator should be installed (before the ribbing) from the side of the supply vertically or (if the radiator’s diameter is small) horizontally. An example of such an installation is presented below.

- In the case of a 2-element radiator the allocator (heat sink) should be installed in the middle of the length of the elements’ connection. An example of such an installation is presented below.

- In the case of a 3-element radiator the allocator (heat sink) should be installed in the middle of the length of the connection of the first two elements from the side of the supply. An example of such an installation is presented below.

- In the case of a 4-element radiator the allocator (heat sink) should be installed in the middle of the length of the first and third elements connection from the side of the supply. An example of such an installation is presented below.

Installation techniques
Mounting brackets
Installation with mounting brackets is the most common type of allocator installation. It is important to match the type and size of the brackets to the radiator.
The installation itself is relatively simple. It involves the preliminary selection of the installation location according to the guidelines presented above, followed by inserting the mounting bracket between the ribs/pipes of the radiator and finally tightening the screws securing the heat sink.
CAUTION!
The tightening torque value should be sufficiently high to prevent the allocator from being dislocated through being “knocked down” or rotating. Using too much force can cause irreversible damage by bending the mounting bracket.
After tightening the screws you must secure the allocator with a seal at the bottom.
The below table presents all the installation parts:
| N° | Bracket code | Description | |
|
1 | ![]() | ![]() | |
|
2 |
BRR 2 | ![]() | ![]() |
|
3 |
BRR 3 | ![]() | ![]() |
|
4 |
BRR 4 | ![]() | ![]() |
|
5 | BRR 25 | ![]() | Nut M3 |
| N° | Bracket code | Description | |
|
7 |
BRR 15 | ![]() | ![]() |
|
8 |
Studs for welding machine available |
M3 | 6 mm, 8 mm, 10 mm, 12 mm, 15 mm (recommended), 20 mm, 25 mm, 30 mm |
|
9 | BRR 26 Wall-mounted cover of the allocator EXT | ![]() | ![]() |
|
10 | BRR 22 External temperature sensor for the allocator EXT | ![]() | |
|
11 |
BRR 23 Expansion board | ![]() | ![]() |
|
12 |
BRR 24 Rosette | ![]() | ![]() |
| Type of radiator | Installation method | Attachment | Dimension |
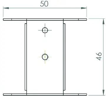
| Cast iron radiator (CR) | Bracket | BRR 15 (encased) | 50 mm x 46 mm |
![]() | ![]() | ![]() | ![]() |
| Steel radiator (SR) | Bracket | BRR 15 (encased) | 50 mm x 46 mm |
![]()
| ![]() | ![]() | ![]() |
| Alluminium radiator (SR) | Gluing | Attachment/Dimension | |
![]() | ![]() | ![]() | |
| Bracket | BRR 3 x2 | 37 mm x 5 mm | |
![]() | ![]() ![]() Installation should be made with two BRR3 holders – it prevents the allocator from rotating. Flat side to the radiator. In addition, it is recommended to apply a small amount of quick-drying glue to the handles. | ![]()
| |
| Type of radiator | Installation method | Attachment | Dimension |
| Rail-based towel warmer (TW) | Bracket | BRR 2 | ![]() |
|
| ![]() |
| |
| Bracket | BRR 4 |
| |
![]() | ![]() |
Gluing
- Measure the heat sink installation points on the radiator according to “General installation rules”.
- Before starting gluing degrease and clean the gluing area on the radiator.
- Apply around 3 cm strips of Loctite AA 330 glue (yellow tube) on contact points between the heat sink and the radiator (see image above).

- Apply the SF 7386 activator to the glue strips.
- Apply the quick drying Loctite 454 glue (blue tube) in select spots (see image above) before the Loctite AA 330 glue fully hardens and bonds with the activator (around 15 minutes).
- Place the heat sink on the measured installation point and press for about a minute.
- Place the allocator on the heat sink.
- Close and secure the allocator with a seal at the bottom.
CAUTION: the glue bonding time can be longer if the radiator is cold
Welding
- Ensure the spacing between the electrodes is in line with the spacing of the allocator heat sink holes (40 mm).
- Gently remove the paint from the radiator in the pins mounting area.
- Degrease, for instance using a solvent, the areas on which the welded connection will be made.
- Perform the weld according to the device’s guidelines.
CAUTION: Welding must be done between the water channels. Improper welding can permanently damage the radiator.
- Adjust the pin length to the depth of the water channels.
- Mount the heat sink on the pins.
- Using the dedicated M3 (BRR 6) nut and the BRR 7 driver, secure the heat sink to the radiator.
- Place the allocator on the heat sink.
- Close the allocator with a seal at the bottom.
CAUTION: Improper preparation of the welding surface or incorrect welding technique will result in the damage of the connection. This often causes permanent damage to the radiator. You should also pay attention to the quality of the pin. It can also result in unrepairable radiator defect. It is recommended to issue prior notice to the tenants and secure items in the immediate surroundings of the heaters.
CAUTION: Welding may be used, for instance, in the case of panel heaters or ribbed heaters.
Configuration
Programming and configuration of the device is carried out by radio, using an RFM-RX2 and BMetering software. To trigger the configuration procedure, the BMetering software must be properly configured:
- for the factory state of the allocator, press the button for < 1s
for the allocator already configured, press the button for > 5s, until the display shows
the message “rF”. The method of configuration the allocator has been described in the documentation concerning the Bmetering software user manual.
Contacts
B METERS srl
Via Friuli, 3 • Gonars 33050 (UD) • ITALY
Tel: +39 0432 931415
Tel: +39 0432 1690412
Fax: +39 0432 992661
E-mail (sales/info): [email protected] E-mail (support): [email protected] Web: www.bmeters.com





























































