
HHT6300/2X
CookerHood
InstructionManual
SAFETYINSTRUCTIONS
Thismanual explains theproper installation and use of your cooker hood, please read it carefully before using even if you are familiar with the product. Themanual should be kept in a safe place for future reference.
Never to do:
- Do not try to use the cooker hood without the grease filters or if the filters are excessively greasy!
- Do not install above a cooker with a high-level grill.
- Do not leave frying pans unattended during use because overheated fats or oils might catch fire.
- Never leave naked flames under the cooker hood.
- If the cooker hood is damaged, do not attempt to use it.
- Do not flambé under the cooker hood.
- CAUTION: Accessible parts may become hot when used with cooking appliances.

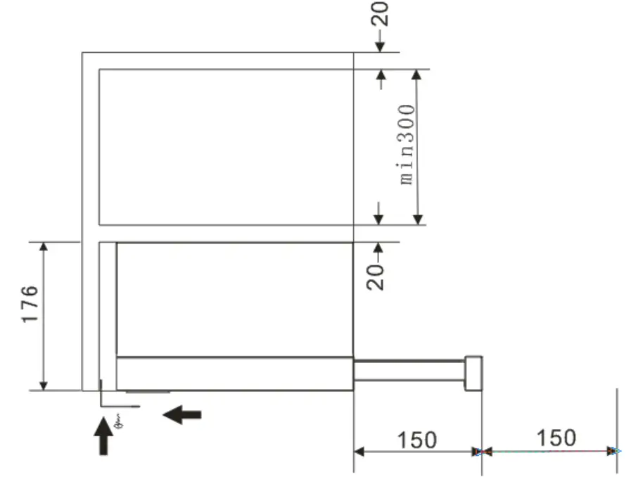
- The minimum distance between the supporting surface for the cooking vessels on the hob and the lowest part of the cooker hood. (When the cooker hood is located above a gas appliance, this distance shall be at least 65 cm)
- The air must not be discharged into a flue that is used for exhausting fumes from appliances burning gas or other fuels.

Always to do:
- Important! Always switch off the electricity supply at the mains during installation and maintenance such as light bulb replacement.
- The cooker hood must be installed in accordance with the installation instructions and all measurements followed.
- All installation work must be carried out by a competent person or qualified electrician.
- Please dispose of the packing material carefully. Children are vulnerable to it.
- Pay attention to the sharp edges inside the cooker hood, especially during installation and cleaning.
- Make sure the ducting has no bends sharper than 90 degrees as this will reduce the efficiency of the cooker hood.
- Warning: Failure to install the screws or fixing the device in accordance with these instructions may result in electrical hazards
- Warning: Before obtaining access to terminals, all supply circuits must be disconnected.
- Always put lids on pots and pans when cooking on a gas cooker.
- When in extraction mode, the air in the room is being removed by the cooker hood. Please make sure that proper ventilation measures are being observed. The cooker hood removes odors from the room but not steam.
- The cooker hood is for domestic use only.

- If the supply cord is damaged, it must be replaced by the manufacturer, its service agent or similarly qualified persons in order to avoid a hazard.
- This appliance can be used by children aged 8 years and above and persons with reduced physical, sensory or mental capabilities or lack of experience and knowledge if they have been given supervision or instruction concerning the use of the appliance in a safe way and understand the hazards involved.
- Children shall not play with the appliance. Cleaning and user maintenance shall not be made by children without supervision.

- Warning: Before obtaining access to terminals, all supply circuits must be disconnected.
- Caution: The appliance and its accessible parts can become hot during operation. Be careful to avoid touching the heating elements. Children younger than 8 years old should stay away unless they are under permanent supervision.
- There shall be adequate ventilation of the room when the cooker hood is used at the same time as appliances burning gas or other fuels.
- There is a fire risk if cleaning is not carried out in accordance with the instructions
- Regulations concerning the discharge of air have to be fulfilled.
- Clean your appliance periodically by following the method given in the chapter MAINTENANCE.
- For safety reasons, please use only the same size of fixing or mounting screws which are recommended in this instruction manual.
- Regarding the details about the method and frequency of cleaning, please refer to the maintenance and cleaning section in the instruction manual.
- Cleaning and user maintenance shall not be made by children without supervision.
- When the cooker hood and appliances supplied with energy other than electricity are simultaneously in operation, the negative pressure in the room must not exceed 4 Pa (4 x 10-5 bar).
- WARNING: Danger of fire: do not store items on the cooking surfaces.
- A steam cleaner is not to be used.
- NEVER try to extinguish a fire with water, but switch off the appliance and then cover flame e.g. with a lid or a fire blanket.
INSTALLATION(VENTOUTSIDE)
MOUNTING OF THE V-FLAP
Note: ‘
- The following models include the v-flapRHT6300/2LIN, RHT6300/ 2LRB, and RHT6300/2 LPN
- The v-flap is optional for model HHT6300/2X. If the cooker hood does not have an assembled V-flap 1, you should mount the half parts to its body. The images only show an example of how to mount the V-flap, the outlet may be varied according to different models and configurations.
To mount the V-flap 1 you should:
- Mount two half-parts 2 into the body 6 a pin 3 should be top oriented;
- axis 4 should be inserted in the holes 5 on the body;
- repeat all the operations for the 2nd half-part
Note: The product is provided with a v-flap accessory. This accessory is not mandatory for the installation, operation, and use of the product.
INSTALLATION(WallMounting)
- Decide the location of the holes for fixing the cooker hood.

- Install the L-shaped bracket on the top of the hood by two screws (4mm x 10mm)

- The cooker hood is wall mounted by 4 screws (4mm x 30mm) and wall plugs. Mount the cooker hood on the wall on the back of the cooker hood by 2 screws (4mm x 30mm) and wall plugs. Then fix the cooker hood on the wall by 2 screws (4mm x 30mm) and wall plugs through the small L-shaped bracket.

- Fix the one-way valve to the air outlet of the cooker hood.

INSTALLATION(CabinetMounting)
- Fix the one-way valve to the air outlet of the cooker hood.

- Mount the cooker hood on the cabinet by 6 screws (4x35mm) and flat washers.





If there is a gap between the wall and the cooker hood, you may install the L-shaped bracket on the bottom of the hood by two screws (3 x 12mm). The installation of the L-shaped bracket is optional.
WARNING:
For safety reasons, please use only the same size of fixing or mounting screws which is recommended in this instruction manual.
Failure to install the screws or fixing the device in accordance with these instructions may result in electrical hazards.
Start Using Your Cooker Hood
Rocker switch
Rocker switches
- Insert the power plug into the socket.
- Push the switch to the lamp will be on; push the switch to”0″, and the lamp will be off.
- Push the switch into”III”, the motor will be on”low-high” two speeds, push into”0″, the motor will be off.
- The power will be connected when pulling out the front panel. Conversely, the power will be automatically disconnected.
TROUBLESHOOTING
| Fault | Possible Cause | Solution |
| Light on, but the motor does not work | The fan switch turned off | Select a fan switch position. |
| Fan switch failed | Contact service center. | |
| Motor failed | Contact service center. | |
| Light does not work, the motor does not work | House fuses blown | Reset/replace fuses. |
| Power cord lose or disconnected | Refit the cord to a power outlet. Switch the power outlet on. | |
| Oil leakage | One way valve and the outlet are not tightly sealed | Takedown the one-way valve and seal with sealant. |
| Leakage from the connection of chimney and cover | Take the chimney down and seal it. | |
| Lights not working | Broken/Faulty globes | Replace globes as per this instruction. |
| Insufficient suction | The distance between the i cooker hood and the gas top is too far | Refit the cooker hood to the correct distance. |
| The Cooker hood inclines | The fixing screw is not tight enough | Tighten the hanging screw and make it horizontal. |
NOTE:
Any electrical repairs to this appliance must conform to your local, state, and federal laws. Please contact the service center if in any doubt before undertaking any of the above. Always disconnect the unit from the power source when opening the unit.
MAINTENANCE AND CLEANING
Caution:
- Before maintenance or cleaning is carried out, the cooker hood should be disconnected from the main power supply. Ensure that the cooker hood is switched off at the wall socket and the plug removed.

- External surfaces are susceptible to scratches and abrasions, so please follow the cleaning instructions to ensure the best possible result is achieved without damage.
GENERAL
Cleaning and maintenance should be carried out with the appliance cold especially when cleaning. Avoid leaving alkaline or acid substances (lemon juice, vinegar etc.) on the surfaces.
STAINLESS STEEL
The stainless steel must be cleaned regularly (e.g.weekly) to ensure long life expectancy. Dry with a clean soft cloth. A specialized stainless steel cleaning fluid may be used.
NOTE:
Ensure that wiping is done along with the grain of the stainless steel to prevent any unsightly crisscross scratching patterns from appearing.
CONTROL PANEL SURFACE
The inlay control panel can be cleaned using warm soapy water. Ensure the cloth is clean and well wrung before cleaning. Use a dry soft cloth to remove any excess moisture left after cleaning.
Important
Use neutral detergents and avoid using harsh cleaning chemicals, strong household detergents, or products containing abrasives, as this will affect the appliance appearance and potentially remove any printing of artwork on the control panel and will void the manufacturer warranty.
GREASE MESH FILTERS
The mesh filters can be cleaned by hand. Soak them for about 3 minutes in water with a grease-loosening detergent then brush it gently with a soft brush. Please do not apply too much pressure, avoid damaging it. (Leave to dry naturally out of direct sunlight)
Filters should be washed separately from crockery and kitchen utensils. it is advisable not to use a rinse aid.
INSTALLING GREASE MESH FILTERS
· To install filters for the following four steps.
– Angle the filter into slots at the back of the hood.
– Push the button on the handle of the filter.
– Release the handle once the filter fits into a resting position.
– Repeat to install all filters.
CARBON FILTER- not supplied
An activated carbon filter can be used to trap odors. Normally the activated carbon filter should be changed at three or six months according to your cooking habit. The installation procedure of the activated carbon filter is as below.
- Slide the front part of the cooker hood.
- The al filter should be detached first. Press the lock and pull it downward.
- Take out the carbon filter by rotating the carbon filter anti-clockwise.
- Replace the new carbon filter.

NOTE:
Make sure the filter is securely locked. Otherwise, it would loosen and cause danger.
When an activated carbon filter is attached, the suction power will be lowered.
BULB REPLACEMENT
Important:
- The bulb must be replaced by the manufacturer, its service agent, or similarly qualified persons.
- Always switch off the electricity supply before carrying out any operations on the appliance. When handling the bulb, make sure it is completely cool down before any direct contact with hands.
- When handling globes hold with a cloth or gloves to ensure perspiration does not come in cont act with the globe as this can reduce the life of the globe.
- Switch off the appliance and unplug it.
- Slide the front part of the cooker hood.
- The al filter should be detached first. Press the lock and pull it downward.
- Replace with the same type of light.
ILCOS D code for this lamp is: DBS-2/65-H-120/33.
Max wattage: 2W
Voltage range: AC 110-240V
Dimensions:

ENVIRONMENTAL PROTECTION:
This product is marked with the symbol on the selective sorting of waste electronic equipment. This means that this product must not be disposed of with household waste but must be supported by a system of selective collection in accordance with Directive 2012/19/EU. It will then be recycled or dismantled to minimize impacts on the environment, electrical and electronic products are potentially dangerous for the environment and human health due to the presence of hazardous substances.For more information, please contact your local or regional authorities.
NOTE: The following shows how to reduce total environmental impact (e.g. energy use) of the cooking process).
- Install the cooker hood in a proper place where there is efficient ventilation.
- Clean the cooker hood regularly so as not to block the airway.
- Remember to switch off the cooker hood light after cooking. “
- Remember to switch off the cooker hood after cooking.
INFORMATION FOR DISMANTLING
Do not dismantle the appliance in a way that is not shown in the user manual. The appliance could not be dismantled by the user. At the end of life, the appliance should not be disposed of with household waste. Check with your Local Authority or retailer for recycling advice.
































