Miele KM 7200 FR Ceramic Induction Cooktop

Installation
Safety instructions for installation
- Damage risk from incorrect installation
Incorrect installation can cause damage to the hob. The hob must only be installed by a qualified person. - Risk of electric shock.
Incorrect connection to the mains supply may result in an electric shock. The hob must be connected to the electrical supply by a qualified person only. - Damage from falling objects.
Take care not to damage the hob when fitting wall units or a cooker hood above it. Fit the wall units and the cooker hood before the hob. - The veneer or laminate coatings of worktops (or adjacent kitchen units) must be treated with 100 °C heat-resistant adhesive which will not dissolve or distort. Any backmoulds must be of heat-resistant material.
- The hob must not be installed over a fridge, fridge-freezer, freezer, dishwasher, washing machine, washer-dryer or tumble dryer.
- This hob must not be installed above ovens or cookers unless these have a built-in cooling down fan.
- After installation, ensure that nothing can come into contact with the connection cable and that it is without hindrance.
- The electrical cable may not come into contact with any moving kitchen component (e.g. a drawer) or be subject to mechanical obstruction which could damage it.
- Observe carefully the safety clearances listed on the following pages.
Safety distances
Safety distance above the hob
- The safety distance specified by the manufacturer of the cooker hood must be maintained between the hob and the cooker hood above it.
- If combustible objects are installed above the hob (e.g., cabinets, utensil rail, etc.), a minimum safety distance of 600 mm must be maintained.
- When two or more appliances which have different safety distances are installed together below a cooker hood, you should observe the greatest specified safety distance.
Safety distances to the sides and back of the appliance
- It is advisable to install the hob with plenty of space either side of it. The minimum distance shown below must be maintained between the back of the hob and a tall unit or wall.
- The minimum distance shown below must be maintained between a tall unit or a wall to the left or right of the hob with a minimum distance of 300 mm on the opposite side.
- The minimum distance between the back of the worktop cut-out and the rear edge of the worktop: 50 mm
- The minimum distance between the worktop cut-out and a wall or tall unit to the right of it: 50 mm.
- Minimum distance between the worktop cut-out and a wall or tall unit to the left of it: 50 mm.


Minimum safety distance underneath the hob
To ensure sufficient ventilation to the hob, a minimum safety distance must be left between the underside of the hob and any oven, intermediate shelf or drawer.
The minimum safety distance between the underside of the hob and
- Upper edge of oven: 15 mm
- Upper edge of intermediate shelf: 15 mm
- Upper edge of drawer: 5 mm
- Base of drawer: 75 mm
Intermediate shelf
It is not necessary to fit an intermediate shelf underneath the hob, but one may be fitted if you wish.
Leave a gap of 10 mm at the back between the cabinet and the intermediate shelf to accommodate the power cable.
A gap of 20 mm is recommended at the front between the cabinet and intermediate shelf for better ventilation of the hob.
Safety distance when installing the appliance near a wall with additional niche cladding
- A minimum safety distance must be maintained between the worktop cut-out and any niche cladding to protect it from heat damage.
- If the niche cladding is made from a combustible material (e.g. wood) a minimum safety distance of 50 mm must be maintained between the cut-out and the cladding.
- If the niche cladding is made from a non-combustible material (e.g. metal, natural stone, ceramic tiles) the minimum safety distance between the cut-out and the cladding will be 50 mm less the thickness of the cladding.
- Example: 15 mm niche cladding 50 mm – 15 mm = minimum safety distance of 35 mm
Flush-fitted hobs
Hob with frame or beveled edge
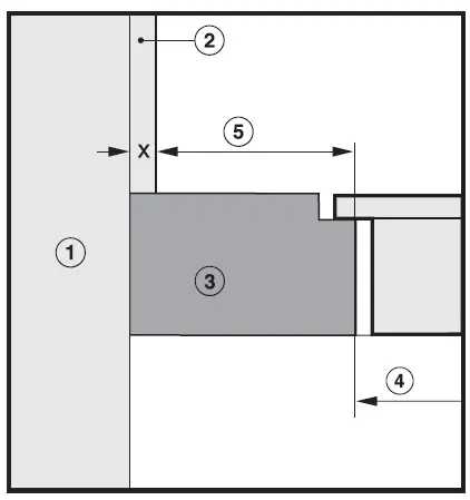
- Masonry
- Niche cladding dimension x = thickness of the niche cladding material c Worktop
- Worktop cut-out
- Minimum distance to combustible materials 50 mm non-combustible materials 50 mm – dimension x
Installation notes
Seal between the hob and the worktop
- Damage caused by incorrect installation.
- Using sealant under the hob could result in damage to the hob and the worktop if the hob ever needs to be removed for servicing.
- Do not use sealant between the hob and the worktop.
The sealing strip under the edge of the hob provides a sufficient seal for the worktop. - Sealing strip
Dismantling the hob for service purposes may damage the sealing strip underneath the edge of the hob.
Always replace the sealing strip before reinstalling the hob.
Tiled worktops
Grout lines and the hatched area underneath the hob frame must be smooth and even. If they are not the hob will not sit flush with the worktop and the sealing strip underneath the hob will not provide a good seal between the hob and the worktop.
Building-in dimensions
All dimensions are given in mm. KM 7200 FR 
- Front
- Mains connection box The mains connection cable (L = 1440 mm) is supplied loose
KM 7201 FR


Installation
- Create the worktop cut-out. Remember to maintain the minimum safety distances (see “Installation –Safety distances”).
- Seal any cut surfaces on wooden worktops with a special varnish, silicone sealant or resin to prevent the wood from swelling as a result of moisture ingress. The sealant must be heat-resistant. Make sure that the sealant does not come into contact with the top of the worktop.
- Stick the supplied sealing strip under the edge of the hob. Do not apply the sealing strip under tension.
Risk of damage from incorrect connection. The hob electronics may be damaged if a short-circuit occurs. The power cable must be connected to the hob by a qualified electrician. - Connect the power cable by following the instructions in the wiring diagram on the hob (see “Installation –Electrical connection”).
- Feed the power cable for the hob down through the worktop cut-out.
- Place the hob centrally in the cut-out. When doing this, make sure that the seal of the appliance sits flush with the worktop on all sides. This is important to ensure an effective seal all round. If the seal does not sit flush with the worktop in the corners, the corner radius (≤ R4) can be carefully cut to fit using a jigsaw.
- Connect the hob to the electricity supply (see “Installation – Electrical connection”).
- Check that the hob works.
Electrical connection
Risk of damage from incorrect connection. Unauthorised installation, maintenance and repairs can cause considerable danger for the user. Miele cannot be held liable for damage or injury caused by unauthorised installation, maintenance or repair work, or by an inadequate or faulty on-site earthing system (e.g. electric shock).
- This hob must be connected to the electrical supply by a qualified electrician.
- The electrician must be familiar with and comply with the national regulations and any additional regulations of the local electricity provider.
- After installation, ensure that all electrical components are shielded and cannot be accessed by users.
Total power rating
See data plate
Connection data
The connection data is quoted on the data plate. Please ensure these match the household mains supply.
Please see wiring diagrams for connection.
Disconnecting devices
It must be possible to disconnect the hob from the mains at all poles using disconnecting devices. A contact distance of at least 3 mm must be observed in the switched-off state. The disconnecting devices are overcurrent protection devices and residual current protection devices.
Disconnecting from the mains
- Risk of electric shock. There is a risk of electric shock if the appliance is connected to the mains supply during repair or service work.
- After disconnection, ensure the appliance cannot be switched back on by mistake.
- To disconnect the appliance from the mains power supply, do one of the following depending on installation:
Safety fuses
Completely remove fuses.
Automatic circuit breakers
Press the (red) test button until the middle (black) button springs out.
Built-in circuit breakers
Circuit breakers at least type B or C: Switch the lever from 1 (on) to 0 (off).
Residual current device (RCD)
Switch the main switch from 1 (on) to 0 (off) or press the test button.
Mains connection cable
The hob must be connected to the electrical supply with a special connection cable, type H 05 VV-F (PVC insulated) with a suitable diameter.
Please see wiring diagram for connection.
See the data plate on the hob for the correct voltage and frequency.
Replacing the mains connection cable
Risk of electric shock. Incorrect connection to the power supply may result in an electric shock.
The main cable must only be replaced by a qualified electrician.
When replacing the mains cable only use cable type H 05 VV-F with a suitable cross-section. A suitable connection cable is available from your Miele dealer.




























