Wireless Decora 0-10V Wall Dimmer
User Guide
Description
The ZS057 is a robust rocker manual switch with a dimming bar used to provide wireless control of lighting loads including high inrush LED loads. The ZS057 is compatible with other Leviton wireless products.
Requires use with Lumina™ RF Keypad Room Controller or GreenMAX® DRC Wireless Keypad Room Controller.
Features
- Use as a standalone dimmer or as part of a wireless system
- Compatible with multiple load types—any 0-10V controlled load, ex: LED, HID, inductive, fluorescent
- Integrated H.I.S. (High Inrush Stability) Relay—for ON/OFF control
- Aesthetically pleasing intuitive design—rocker switch and slender raise/lower sidebar for ON/OFF, raise/lower control
- Wireless mesh network—self-healing mesh network has no hardwired backbone and connects all products together for a more robust and reliable wireless system
- Requires a room controller to wirelessly operate within a mesh network
- Robust and reliable—mechanically held latching relay for high inrush (LED) and large commercial loads
- LED flexibility—enable, disable or turn OFF LED lights after five seconds for applications where brightness is a factor (i.e. hospitality)
- LED Indicator—inconspicuous LED light level indicator for locating in a dark room
- 3-way switching
- Standard size for seamless installation—fits in a standard single-gang wall box
- Available in White with Color Change Kit available for Ivory and Light Almond
- Complies with IEEE 802.15.4 standards—for domestic and international wireless networks
- Can be used as a component in a system to meet energy code requirements for IECC, ASHRAE 90.1, and 2019 Title 24, Part 6 space/area control, dimming, manual- ON/OFF occupancy/vacancy control and automatic shutoff requirements
Wiring Diagram

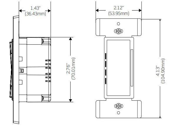
Dimensions Diagram

User Interface

Specifications
| Electrical | ZS057-D0Z | ZS057-30Z |
| Input Voltage | 120-277VAC, 50/60Hz, +/- 5% | 347VAC +/- 8%, 60Hz +/- 5% |
|
Load Rating | Current Rating: 8A@120VAC for Electronic and Magnetic Ballast, @277VAC and CFL, LED Loads Incandescent/Tungsten: 120VAC, 50/60Hz, 800W Ballast: 1200VA @120VSV, 2700VA @277VAC | Current Rating: 4A for Electronic and Magnetic Ballast, CFL, LED Loads Incandescent/Tungsten: 347VAC, 60Hz, 800W Ballast: 347VAC, 60Hz, 1200VA |
| Motor Load | 1/4HP @ 120VAC, 1/3HP @ 277VAC | 347VAC, 60Hz, 1/4 HP |
| Radio Frequency | 2.4GHz | |
| Environmental | ||
| Operating Temperature Range | 32° to 104° F (0° to 40° C), 0-90% non-condensing humidity | |
| Storage Temperature Range | 14° to 185° F (-10° to 85° C) | |
| Usage | Indoors only | |
| Header | ||
| Energy Codes | Can be used as a component in a system to meet energy code requirements for IECC, ASHRAE 90.1, and 2019 Title 24, Part 6 space/area control, dimming, manual-ON/OFF, occupancy control, and automatic shutoff requirements | |
| Listings | FCC ID: QGH-B167601; IC: 2473A-B167601; UL Listed; NOM Certified, IC Certified Canada) | |
| Dimensions | 4.13” x 2.12” x 1.43” (104.90mm x 53.95mm x 36.43mm) | |
| Weight | 0.25lbs (0.11kg) | |
| Warranty | 2-Year Limited | |
Ordering Information
| Product Name | |
| Cat. No. | Description |
| ZS057-D0Z | Wireless Decora 0-10V Wall Dimmer, 2.4GHz, 120-277VAC, 50/60Hz, 8A Load, 0-10V Sinking, 50mA, Available in White with Color Change Kit available for Ivory and Light Almond |
| ZS057-30Z | Wireless Decora 0-10V Wall Dimmer, 2.4GHz, 347VAC, 50/60Hz, 4A Load, 0-10V Sinking, 50mA, Available in White with Color Change Kit available for Ivory and Light Almond |
Leviton Manufacturing Co., Inc. Lighting & Controls
10385 SW Avery Street, Tualatin, OR 97062 tel 503-404-5500 tech line (8:30 AM-7:30 PM ET Mon-Fri) 800-824-3005
Visit our Website at: www.leviton.com/greenmaxdrc
©2022 Leviton Manufacturing Co., Inc. All rights reserved. Subject to change without notice.



















