Empava Free-Standing Bathtub Installation Guide
Product Drawing
EMPV-FT215

EMPV-FT1503


EMPV-FT1516

EMPV-FT1518

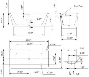
EMPV-59FT1505


EMPV-59FT1511

EMPV-FT1603

Specifications
EMPV-FT215

| Model No. | EMPV-FT215 |
| Size | 67 inch |
| Drain Placement | Center |
| Capacity (Gallon) | 58 gallon |
| Material | 100% Glossy White |
| Outer Size (Inch) | 66.92″L x 31.7″W x 22.8″H |
EMPV-FT1503

| Model No. | EMPV-FT1503 |
| Size | 71 inch |
| Drain Placement | Center |
| Capacity (Gallon) | 56 gallon |
| Material | 100% Glossy White |
| Outer Size (Inch) | 71 “L x 35.43″W x 22.83″H |
EMPV-FT1516

| Model No. | EMPV-FT1516 |
| Size | 67 inch |
| Drain Placement | Center |
| Capacity (Gallon) | 56 gallon |
| Material | 100% Glossy White |
| Outer Size (Inch) | 67 “L x 31.49″W x 22.83″H |
EMPV-FT1518

| Model No. | EMPV-FT1518 |
| Size | 67 inch |
| Drain Placement | Center |
| Capacity (Gallon) | 58 gallon |
| Material | 100% Glossy White |
| Outer Size (Inch) | 67 “L x 31.49″W x 22.83″H |
EMPV-59FT1505

| Model No. | EMPV-59FT1505 |
| Size | 59 inch |
| Drain Placement | Center |
| Capacity (Gallon) | 53 gallon |
| Material | 100% Glossy White |
| Outer Size (Inch) | 59″L x 31.5W x 22.83″H |
EMPV-59FT1511

| Model No. | EMPV-59FT1511 |
| Size | 59 inch |
| Drain Placement | Center |
| Capacity (Gallon) | 56 gallon |
| Material | 100% Glossy White |
| Outer Size (Inch) | 59″L x 29.52W x 22.83″H |
EMPV-FT1603

| Model No. | EMPV-FT1603 |
| Size | 67 inch |
| Drain Placement | Center |
| Capacity (Gallon) | 58 gallon |
| Material | 100% Glossy White |
| Outer Size (Inch) | 69″L x 28.74″W x 26.77″H |
Installation Steps
Remove the Bath from the carton.
Ensure the Bath does not come into contact with rough surfaces. Rough surfaces will scratch your Bath. Always ensure that the Bath is placed on cardboard or carpets during installation. Place the Bath in position for installation.

Adjust the feet make sure the Bath is level.
Only if the Bath is level will all water drain to the waste outlet. Please ensure legs are adjusted in line with the base of bath. Check the sits flat.

Connect the Bath to the waste outlet.

Finally you need to do a final test for drainage.
Ensure that the thin masking plastic adhered to your bath during manufacture has been removed. Fill the Bath with water and check that ALL the water flows freely to the waste outlet. A small amount of water may pool owing to surface tension.

Apply a thick layer of silicon sealant around the bath outline allow it set 24 hours.
This installation guide, the installation of waste connection should be only suitably by qualified person.
Cleaning and Maintenance Tips
- In time to clean. To clean convenient, it is suggested that immediately wash the bath after taking a bath. This time will be expanded easily to remove dirt and soapsuds, after a long time will accumulate in the tub wall and difficult to remove, especially in places where hard water quality in high calcium content, after a long time will form macular at the bottom of the tub wall and faucet.
- Cleaning method. Use soft cloth with neutral detergent or soap water.
- Some attentions. It is strictly prohibited to use sharp objects or hard clean tool friction bath, in order to avoid scratch the bath surface, away from open flame, high temperature bulb, cigarette butts etc, so as not to burn the bath surface, Avoid the use of the paint, varnish removal agent such as acetone and chloroform organic volume, these organic volume may cause the bath surface to soften, dissolve or crack.
- Self curing. If there any cut or scratch because of careless. Please coated car polish or metal polishing agent on the surface of the injured, with soft cloth to wipe a few times more hard, if the scratch is deep, can use 1000# water sand paper remove the scratched, and then use the above method to polished it get bright surface.
Caution
- WARNING: Risk of personal injury.
Do not permit children to use this unit without adult supervision. - WARNING: Risk of electric shock.
Do not permit electrical appliances (hair dryer, telephone, radio, etc.) within 60 inches (1524mm) of this unit. - WARNING: Risk of hyperthermia and possible drowning.
People using medications and/or having adverse medical history should consult a physician before using this product. - WARNING: Risk of personal injury.
Do not overfill unit before entering. Entering tub when filled more than 2/3 can cause overflow and slippery conditions. Exercise caution when entering and exiting. - WARNING: No Food or Alcoholic Beverages.
Use of your bathtub immediately after meals is not recommended. Avoid alcohol consumption before or during bathing. Alcoholic beverages can cause drowsiness or hyperthermia resulting in loss of consciousness or even drowning. - WARNING: Pregnancy.
If you are or think you may be pregnant, consult your physician before using the bathtub.
Distributed by:
Empava Appliances Inc.
15253 Don Julian Rd,
City of Industry, CA 91745 USA
www.empava.com



















