
GAS COOKTOP
COS-GRT366, COS-GRT486G

Installation & User Manual
IMPORTANT SAFETY INSTRUCTIONS: Carefully read the following important information regarding installation safety and maintenance. Keep these instructions for future reference.
THANK YOU FOR YOUR PURCHASE
Thank you for your purchase! We know that you have many brands and products to choose from and we are honored to know that you have decided to take one of our products into your home and hope that you enjoy it.
COSMO appliances are designed according to the strictest safety and performance standards for the North American market. We follow the most advanced manufacturing philosophy. Each appliance leaves the factory after thorough quality inspection and testing. Our distributors and our service partners are ready to answer any questions you may have regarding how to install, use and care for your products. We hope that this manual will help you learn to use the product in the safest and most effective manner.
If you have any questions or concerns, please contact the dealer from whom you purchased it, or contact our Customer Support Team at 1-888-784-3108, or visit cosmoappliances.com. Please read the important safety instructions before using the appliance for your own safety, and to reduce the risk of hazards such as injury, fire and electrical shock.
Please keep this manual for future use.
Once again, thank you!
APPLIANCES
SAFETY & WARNINGS
- Read this entire installation manual carefully prior to installation and save it for the local inspector’s reference. Keep this installation manual for future reference.
- This installation must be completed by a qualified appliance installer, service company, or gas supplier.
- Features and specifications are subject to change at any time without notice. If you have any questions, visit cosmoappliances.com or call Cosmo Customer Service at: 1-888-784-3108.
- The appliance must be installed in accordance with National Electrical Codes, as well as all state, municipal and local codes. The correct voltage, frequency, and amperage must be supplied to the appliance from a dedicated, grounded circuit breaker or time-delay fuse.
- This Cosmo Gas Cooktop is manufactured for use with natural gas or liquid propane gas (LP) with an optional conversion kit, sold separately.
To ensure the safe use of Cosmo appliances, please take note of the following types of highlighted information throughout this guide:
IMPORTANT states important information that needs your attention.
CAUTION indicates a situation where minor injury or product damage may occur if instructions are not followed.
WARNING states a hazard that may cause serious injury or death if precautions are not followed.
WARNING!: If the information in this manual is not followed exactly as instructed, a fire or explosion may result, causing property damage, personal injury, or death.
IMPORTANT!- Installation and service must be performed by a qualified installer, service agency, or gas supplier.
- Warranty service must be performed by a Cosmo Appliances authorized service partner.
- Do not store or use gasoline or other flammable vapors and liquids in the vicinity of this or any other appliance.
- A ventilation hood is recommended for use with the Cosmo Gas Cooktop.
- In Massachusetts: Installations and repairs must be performed by a qualified or licensed contractor, plumber or gasfitter qualified or licensed by the state, province, or region where this appliance is being installed. Only use gas shut-off valves approved for use within the state, province, or region where this appliance is being installed. A flexible gas connector, when used, must not exceed 3 feet (0.9 meters).
WARNING! WHAT TO DO IF YOU SMELL GAS:
- DO NOT try to light any appliance.
- DO NOT touch any electrical switch.
- DO NOT use any phone in your building.
- Call your gas supplier immediately from a neighbor’s phone. Follow the instructions from the gas supplier for your own safety.
- Call your local fire department if you cannot reach your gas supplier.
WARNING!
- Children should not play with packaging material. Dispose of the carton and plastic bags after the range top is unpacked. Cartons covered with rugs, bedspreads, or plastic sheets can become air-tight chambers.
- Remove all staples from the carton. Staples can cause severe cuts and destroy finishes if they come in contact with other appliances or furniture.
- Be safety conscious. The preparation of food on a range top requires temperatures that could cause severe burns.
- Proposition 65: The California Safe Drinking Water and Toxic Enforcement Act of 1986 (Proposition 65) requires the Governor of California to publish a list of substances known to the State of California to cause cancer or reproductive harm.
- Burning of gas can result in exposing a low level of listed substances, including formaldehyde, benzene, soot, and carbon monoxide. This is caused primarily by the incomplete combustion of natural gas or LP gas. Properly adjusted burners will minimize incomplete combustion. Opening a window or using a ventilating range hood / fan can minimize exposure to these substances.
- DO NOT store any flammable materials near surface burners. The type of materials includes paper, plastic, and flammable liquids.
- DO NOT store explosives, such as aerosol cans, on or near the range top
- Failure to follow this owner’s manual could lead to serious injury or damage to the product.
- DO NOT TOUCH SURFACE BURNERS OR AREAS NEAR BURNERS. Surface burners may be hot after use, even though the flame is not visible or contact the surface directly. Areas near surface burners may become hot enough to cause burns during and after use.
- Do not let clothing or other flammable materials contact with areas near surface burners until they have had sufficient time to cool down.
- NEVER use this appliance as a space heater to heat or warm the room. Doing so may result in carbon monoxide poisoning.
INSTALLATION & SAFETY
- Cosmo Gas Cooktop must be properly installed and grounded by a qualified technician in accordance with the National Fuel Gas Code ANSI Z223.1latest edition, and the National Electrical Code ANSI/NFPA No.70-latest edition.
- Ask your dealer to recommend a qualified technician and an authorized repair service. Have the technician familiarize you with the locations of the manual gas shut-off valve and gas meter in the event it is necessary to shut off the gas supply to the range top during an emergency.
- DO NOT REPAIR OR REPLACE any part of the appliance unless specifically recommended by the owner’s manual or customer service department. Repair service should be done by a Cosmo-authorized technician/service partner only. This will reduce the risk of personal injury and damage to the product.
INSTALLATION INSTRUCTIONS
Be sure the cooktop is properly installed and grounded by a qualified technician. It is the responsibility of the technician to make certain that your cooktop is properly installed. Situations caused by the improper installation are not covered under the warranty. Any expenses incurred due to such situations will not be paid by the manufacturer of the cooktop. Leak testing of the appliance shall be conducted according to the manufacturer’s instructions, or according to local building codes and gas regulations in your area.
GAS CONNECTIONS (All Units)
NOTICE TO MASSACHUSETTS APPLIANCE DEALERS: Be sure this document is included in all gas cooktop appliances sold to consumers in the State of Massachusetts. Massachusetts law requires the following:
- Appliances must be installed by a licensed plumber or gas fitter.
- Appliances must be connected with a three (3) foot (36″ maximum length) flexible gas connector
- A “T” handle type manual gas valve in the gas supply line to the appliance
Have the dealer where you purchase your new cooktop install it or have them recommend a qualified installer. Installation must conform to local codes. In the absence of local codes, the installation must conform with the National Fuel Gas Code, ANSI Z223.1-Latest Edition in the U.S.A. or the CAN/CGA B149.1 or .2 Installation Codes in Canada.
The cooktop should be connected to the supply line with a 1/2 inch black iron pipe or a certified flexible-type stove connector. To prevent gas leaks, put an approved sealing compound that is resistant to liquefied petroleum gases on all threaded connections.
IMPORTANT!: Do not apply pressure directly to the cooktop manifold pipe when tightening supply connections. The manifold pipe should be held securely at the pressure regulator to prevent twisting. Hold the pressure regulator with a wrench during the tightening of the connection, or the manifold pipe may be twisted and split and cause a dangerous leak.
The installation of cooktops designed for manufactured (mobile) home installation must conform with the Manufactured Construction and Safety, Title 24 CFR, Part 3280, [formerly the Federal standard for Mobile Home Construction and Safety, Title 24, HUD (Part 280)] in the U.S.A. or C.S.A. Standard CAN/CGA Z240.4.2 in Canada or, when such standards are not applicable, with local codes.
The installation of cooktops designed for recreational vehicle installation must conform with state or other codes or, in the absence of such codes, with the standard for recreational vehicles. ANSI A119.2.21982 in the U.S.A. or CAN/CGA Z240.4.2 in Canada.
The installation of appliances designed for recreational park trailers must conform with state or other codes or, in the absence of such codes, with the standard for recreational park trailers, ANSI A119.5.
NOTE: Check all piping connections in the unit for leaks. Never use an open flame to check for gas leaks. Use a soap solution, 75% water, 25% dishwashing soap. It is possible for connections made at the factory to leak, due to vibration encountered in transportation. Make certain you have checked them all, and repair any connections that leak.
The appliance and its individual shut-off valve must be disconnected from the gas supply piping system during any pressure testing of that system at test pressures in excess of 1/2 PSIG. The appliance must be isolated from the gas supply piping system by closing its individual manual shut-off valve during any pressure testing of the gas supply piping system at test pressures equal to or less than 1/2 PSIG.
GAS LINE SHUT-OFF VALVE
- To reduce the possibility of gas leaks, apply Teflon tape or a thread compound approved for use with LP or Natural gases to all threaded connections.
- Install a manual gas line shut-off valve in the gas line in an easily accessed location outside the range in the gas piping external to the appliance for the purpose of turning on or shutting off gas to the appliance.
- Install male 1/2”(30 or 36-inch cooktop) or 3/4″ (48-inch cooktop) flare union adapter to 1/ 2″ or 3/4” NPT internal thread elbow at the inlet of the regulator. Use a wrench on the regulator fitting to avoid damage.
- Install male 1/2″ or 3/4″ flare union adapter to the NPT internal thread of the manual shut-off valve, taking care to secure the shut-off valve to keep it from turning.
- Check for leaks using a leak detector or soapy water, 75% water, 25% dishwashing soap.
INSTALLATION / CLEARANCES
All units must be installed in accordance with the minimum rear and side wall clearances and clearances extended vertically above the cooktop which are stated on the serial plate (the serial plate is located on the back of the unit.)
Make sure that the wall coverings, countertops, and cabinets around the cooktop can withstand temperatures of up to 200°F / 93°C generated by the cooktop. It is the responsibility of the installer to make certain that the cooktop is properly adjusted at the time of installation. Situations caused by improper adjustments or improper installation are not covered under the warranty. Any expenses incurred due to such situations will not be paid by the manufacturer of the appliance.
Installation without a range hood
- NOTE: All measurements are based on 24″ (61 cm) deep cabinet
- This cooktop may be installed directly adjacent to existing 36″ (91.4 cm) high base cabinets.
- The cooktop CANNOT be installed directly adjacent to sidewalls, tall cabinets, tall appliances, or other side vertical surfaces above 36″ (91.4 cm) high. There must be a minimum of 6″ (15.2 cm) side clearance from the cooktop to such combustible surfaces above the 36″ (91.4 cm) counter height.
- Within the 6″ (15.2 cm) side clearance to combustible vertical surfaces above 36″ (91.4 cm), the maximum wall cabinet depth must be 13″ (33.0 cm) and wall cabinets within this 6″ (15.2 cm) side clearance must be 18″ (45.7 cm) above the 36″ (91.4 cm) high countertop.
- Wall cabinets above the cooktop must be a minimum of 42″ (106.7 cm) above the cooktop cooking surface for the full width of the cooktop. This minimum height requirement does not apply if a range hood is installed over the cooking surface.
CAUTION!: Items of interest to children should not be placed in cabinets above the cooktop. Children climbing on the cooktop to reach items could be seriously injured.
Installation with a range hood
- NOTE: Minimum clearance for the back wall is 0″ with backsplash (backguard) or high shelf.
- If a range hood is installed above the cooktop, maintain a 30″ (76.2 cm) minimum clearance between the cooktop and the bottom of the range hood.
- The range hood must exhaust outside.
- For best smoke elimination, the minimum clearance of the range hood should be installed 30″ to 36″ above the cooktop surface. Recommended CFM should be 600 CFM for the 30″ cooktop.
- Do not install with a downdraft ventilation system.
Installation in an island
- NOTE: There must be a minimum of 6″ (15.2 cm) clearance from the rear of the cooktop to a combustible wall. Clearances from non-combustible materials are not part of the ANSI Z21.1 scope and are not certified by CSA. Clearances to non-combustible materials must be approved by the authority having jurisdiction.
- This cooktop may be installed directly adjacent to existing 36″ (91.4 cm) high base cabinets.
- The cooktop CANNOT be installed directly adjacent to sidewalls, tall cabinets, tall appliances, or other side vertical surfaces above 36″ (91.4 cm) high. There must be a minimum of 6″ (15.2 cm) side clearance from the cooktop to such combustible surfaces above the 36″ (91.4 cm) counter height.
- Within the 6″ (15.2 cm) side clearance to combustible vertical surfaces above 36″ (91.4 cm), the maximum wall cabinet depth must be 13″ (33.0 cm) and wall cabinets within this 6″ (15.2 cm) side clearance must be 18″ (45.7 cm) above the 36″ (91.4 cm) high countertop. · Wall cabinets above the cooktop must be a minimum of 42″ (106.7 cm) above the cooktop cooking surface for the full width of the cooktop. This minimum height requirement does not apply if a cooktop hood is installed over the cooking surface.
ELECTRICAL REQUIREMENTS
- Cosmo Gas Cooktop requires 110 volts, 50/60 Hz electrical supply to operate the ignition system.
- The power cord is a 3-prong grounding plug. The plug must be plugged into a mating outlet.
- Make sure there is a power outlet within the reach of the range top’s power supply cable (within 36″/9 1cm from the right side of the range top). The outlet should be accessible with the range top installed.
- Cooktop must be properly grounded for safe operation.
- DO NOT ground the cooktop to any of gas line/gas pipe.

Wiring Diagrams
- Cable terminal
- Ignition switch
- Spark generator
- Ignition spark L. Black N. White T. Green (earth)

COOKTOP INSTALLATION
Installation and service must be performed by a qualified installer, service agency or the gas supplier.
- Remove the cooktop from its package and set aside all burners, burner caps and cooking grates.
- Gently slide in the range top half into the cut-out, make sure your gas connection and electrical power plug are properly installed.
- Once this is done you’re now ready to slide the cooktop all the way back to the wall.
- Install all burners and burner caps
- Install all grates.


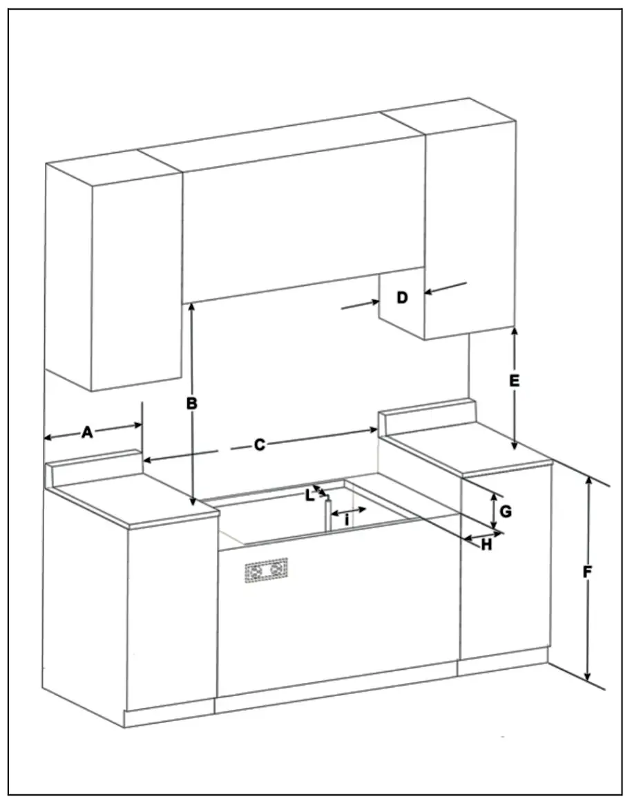
CUTOUT DIMENSIONS
| A.) 6 in. / 152mm (min.) B.) 30 in. min. -36 in. (max.) C+.) 36 in. / 48 in. (Cutout) C-.) 35.8 / 47.8 (Cooktop Size) D.) 13 in. / 330mm (max.) E.) 18 in. / 457mm | F.) 36 in. / 914mm G.) 6.5 in. / 165mm H.) 1 in. / 25mm (min.) I.) 0.56 in. / 18mm L.) 2 in. / 51mm (min.) |
ATTACHING THE COOKTOP
To prevent liquids from leaking accidentally into the underlying storage space, the appliance is equipped with a special gasket. To apply this gasket:
- Lay out the protective sealing strips along the edges of the opening in the countertop and carefully overlap the strip end.
- Insert the cooktop into the countertop opening.
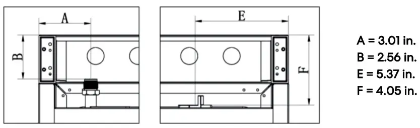
- With a screwdriver, assemble brackets to the cooktop bottom with the screws (See below diagram).
- Slide the hooks into position and secure them with the screws.
- Trim the part of the sealing strips which extend beyond the hotplate base.

CONNECTING GAS TO COOKTOP
Before installing the cooktop consider the location of the gas supply and routing the gas line.

- This cooktop is designed to operate at a pressure of 4″ of the water column on natural gas or 10″ of the water column on propane gas (LPG).
- This cooktop can be converted for use with Liquid Propane gas (LPG). When using this cooktop with LPG gas, the conversion must be made by a qualified installer before attempting to operate the cooktop with that gas. LP kit can be purchased from an authorized Cosmo dealer or contact Cosmo Customer Service for further assistance.
- For correct operation, the pressure of natural gas supplied to the regulator should be between 4″ and 5″ of the water column. For LP gas, the pressure supplied must be between 10″ and 12″ of the water column.

- For NG: The gas supply is connected to the regulator loose. The inlet connection has a 1/2″ B.S.P. male thread. IT IS ESSENTIAL THAT THE ELBOW ON THE APPLIANCE BE HELD FIRMLY WITH A SPANNER WHEN CONNECTING THE SUPPLY. DO NOT OVER TIGHTEN. The regulated pressure for NG is 4″ W.C. (See diagram).
- For LPG: The gas supply is connected to the regulator loose. The inlet connection has a 1/ 2″ B.S.P. male thread. IT IS ESSENTIAL THAT THE ELBOW ON THE APPLIANCE BE HELD FIRMLY WITH A SPANNER WHEN CONNECTING THE SUPPLY. DO NOT OVER TIGHTEN. The regulated pressure For LPG is 10″ w.c. (See diagram).
- When checking for the correct operation of the regulator, the inlet pressure must be at least 1″ more than the operating manifold pressure as given above.
- The pressure regulator located at the inlet of the cooktop manifold must remain in the supply line regardless of Natural (NG) or Liquid Propane (LP) gas is being used.
- A flexible metal appliance connector used to connect the cooktop to the gas supply should be 3 feet/91.4 cm max. in length for easy installation. In Canada, flexible connectors should be single-wall metal connectors less than 6 feet / 182.9 cm in length.
- Shut off the main gas supply valve before removing the old cooking appliance (if applicable) and leave it off until the new hook-up has been completed. Don’t forget to relight the pilots on other gas appliances when you turn the gas back on.
- Because hard piping restricts the movement of the cooktop, the use of a CSA-certified flexible metal appliance connector is recommended unless local codes require a hardpiped connection. Never reuse an old connector when installing a new cooktop. If the hard piping method is used, you must carefully align the pipe.
To prevent gas leaks, use pipe joint compound resistant to NG gases on all-male external pipe threads.
- In an easily accessible location, install a service manual gas shut-off valve. Be sure everyone operating the cooktop knows where and how to shut off the gas supply to the cooktop.
- Use a flexible gas line to connect to the 1/2″ fitting, located on the bottom righthand corner underneath the cooktop. For gas inlet position, refer to diagrams below.


- When all connections have been made, be sure all cooktop controls are in the OFF position and turn on the main gas supply valve. Check for gas leaks by using a 75% water, 25% dishwashing soap solution. If a gas leak is present, shut off the gas immediately, tighten all connections, and retest for leaks.
NOTE: Any opening in the wall behind the appliance and in the floor under the appliance shall be sealed.
Rubber Pad Installation on Back Panel
To prevent the cooktop from coming into contact with the wall, 2 rubber pads are included with the cooktop. To install the pads to the back panel of the cooktop:
- Locate the installation kit packed with the appliance.

- Install the 2 rubber pads on the back of the cooktop as shown:

Adjustable Leg Installation
The cooktop include adjustable feet. To install the adjustable feet to the bottom of the cooktop:
- Locate the installation kit packed with the appliance.

- Arrange the cooktop on the floor with soft material for protection. Set aside all the cooking grates, burners, and griddle cover to avoid any potential damage.
- Lift up the front side of the cooktop, and install the front three legs; the legs are installed by turning counterclockwise.
- Lay down the cooktop back on the floor, then lift the backside to install the back three legs; the legs are installed by turning counterclockwise.

NATURAL GAS (NG) TO LIQUEFIED PETROLEUM (LP) GAS CONVERSION
INSTALLATION AND SERVICING MUST BE PERFORMED BY A QUALIFIED INSTALLER. SAVE THIS MANUAL FOR THE LOCAL INSPECTOR’S USE. READ AND SAVE THESE INSTRUCTIONS FOR FUTURE REFERENCE.
WARNING!: This conversion kit must be installed by a qualified service technician in accordance with the manufacturer’s instructions and all applicable codes and requirements of the authority having jurisdiction. Failure to follow instructions may result in fire, explosion or production of carbon monoxide causing property damage, personal injury or loss of life. The qualified service agency is responsible for the proper installation of this kit. The installation is not proper and complete until the operation of the converted appliance is checked as specified in the manufacturer’s instructions supplied with this kit.
WARNING!: Before proceeding with the conversion, shut off the gas supply before disconnecting electrical power to the range. Be sure power supplies are off before installing the conversion kit. Failure to do so could cause serious bodily injury.
Determine the combination of top burners that are featured on your cooktop. Identify the parts you need from this kit to complete the LP conversion. To order the LP Conversion Kit for your cooktop model, please visit cosmoappliances.com.
Changing the Burner Nozzles
Lift up the burners and unscrew the nozzles using an adjustable 7mm wrench, then replace with nozzles designed for the gas supply you are converting to.
IMPORTANT!: Save the nozzles/orifices removed from the cooktop for future use.


Burner BTU & Orifice Sizes (From NG to LP)
COS-GRT366
- Left Front, 18,000 BTU: 1.2 4 mm
- Left Rear, 9 ,000 BTU: 0.8 8 mm
- Mid Front, 12 ,0 00 BTU: 1.0 mm
- Mid Rear, 12 ,0 00 BTU: 1.0 mm
- Right Front, 18 ,000 BTU: 1.2 4 mm
- Right Rear, 9 ,0 00 BTU: 0.8 8 mm
COS-GRT486G
- Left Front, 12,000 BTU: 1.0 mm
- Left Rear, 12,000 BTU: 1.0 mm
- Griddle, 15,000 BTU: 1.16 mm
- Mid Front, 18,000 BTU: 1.24 mm
- Mid Rear, 12,000 BTU: 1.0 mm
- Right Front, 12,000 BTU: 1.0 mm
- Right Rear, 12,000 BTU: 1.0 mm
Pressure Regulator Adjustment for Gas Conversion
The pressure regulator supplied with the cooktop is a convertible pressure regulator for use with Natural Gas (NG) at a nominal outlet pressure of 5 ” W.C., or Liquefied Petroleum Gas (LP) at a nominal outlet pressure of 10″ W.C.

Your cooktop is shipped from the factory set for use with NG. It can be converted for use with LP by following steps below.
(NOTE: The agency performing this work assumes responsibility for the conversion.)
- Unscrew, by hand, the upper metal stopper of the regulator.
- Unscrew, by hand, the white plastic piece screwed under the above-mentioned metal stopper. Next, screw back in the white plastic piece in the OPPOSITE way under the metal stopper (For gas reference, see the written “LP” and “NAT” with relative indicating arrows on the white piece).
- Screw back in, by hand, the metal stopper in the original position on the regulator.

REGULATE BURNER FLAME INTENSITY
To regulate the minimum flame on the burners, carry out the following procedure indicated below:
- Turn on the burner and put the knob onto position MINIMUM (small flame).
- Remove the knob of the tap which is set for standard pressure. The knob is found on the shaft of the valve itself.
- Besides the valve shaft, use a small screwdriver that fits the gold-colored screw found on the lower part of the tap and turn the adjustment clock-wise or counter clock-wise until the minimum flame reaches the desired intensity level.
- Make sure that that the flame does not go out when changing the position quickly from MAXIMUM to the MINIMUM position. If it does, the minimum flame intensity needs to be increased.

PRODUCT DIAGRAM
GRT366


GRT486G


OPERATING INSTRUCTIONS
GUIDELINES FOR USING COOKTOP BURNERS
WARNING!: Keep cooktop area clear and free from combustible materials, gasoline, and other flammable vapors and liquid.
WARNING!: DO NOT use the cooktop as a room/space heater; this may result in carbon monoxide poisoning.
- This appliance is intended for cooking food; it must NOT be used for any other purpose.
- Never leave the range top unattended when in use. Boil over causes smoking and greasy spills that may ignite.
- Never allow flames to extend beyond cookware or curl up its sides. This could discolor and damage the utensil and you may get burned by a hot handle.
- Keep handles out of the way. Turn handle so that they don’t extend over the edge of the range or another burner that is on.
- Use caution when deep-frying. Oil or fat can overheat very quickly, particularly on a high setting.
- Make sure that all burner parts are properly in place and ensure burner caps are installed correctly. Incorrectly or incompletely assembled burners may produce dangerous flames. see “Care & Maintenance”, Page 25.
- Keep the burners clean. Especially after a spill or boil over, make sure you clean the affected burners before using them again. Food residue may clog the igniter and the notches of the flame spreader, stopping the burner from functioning correctly. See “Care & Maintenance” on Page 25.
- Check that the burner flames are regular. They should be blue with no yellow tipping and burn without fluttering all around the burner cap. For burner troubleshooting, see Page 2/.
- DO NOT store dangerous or flammable material in the cabinet areas above the cooktop.
- DO NOT use aerosol sprays in the vicinity of the cooktop while it’s operating.
- DO NOT use unstable or deformed cookware to avoid safety hazards, such as spillovers.
- Always ensure that the knobs are in the “OFF” position when the cooktop is not in use.
- The cooktop must be regularly cleaned and maintained for safe use; see Page 25.
- Before maintenance and cleaning, disconnect the appliance from power and allow it to cool completely.
- Ensure that air can circulate around the gas cooktop; poor ventilation can result in a lack of oxygen and extinguish the flame.
- The cooktop produces heat and humidity in the room where it is installed.
- There are dual burners that have the same low turn-down setting (SIM) for gentle simmering (620 BTU/hour). Use the SIM setting for melting chocolate and butter, cooking rice and delicate sauces, simmering soups and stews, and keeping cooked food hot.
- Ensure the room where the cooktop is installed is well-ventilated. Keep adequate natural ventilation or install a range hood with a discharge tube.
- Supply the cooktop with the type of gas stamped on the relevant label situated in the immediate vicinity of the gas connection tube.
SURFACE BURNER IGNITION
Light the burners before placing pans on the grid and check that the flame is regular.
- Push and turn the appropriate control knob counter-clockwise to the “IGNITE” position; you will hear a clicking noise the sound of the electric spark igniting the burner.
- Once burner ignition has been achieved, then turn the burner control knob to adjust the desired heat setting (See diagram). Reduce the flame size by turning the knob counter-clockwise to your desired flame height.

If the burner does not light, turn the knob to its original position and try again. Always lower the flame or turn it off before removing the pan.
NOTE: When first used, the gas burner will not ignite immediately. Hold the knob pressed down for an extended time for the gases to fully fill the operating system.
NOTE: When one burner is turned to the “HI” position, the burner igniters will spark.
Do not attempt to disassemble or clean around any burner while another burner is on. Do not touch any burner cap, burner base, or igniter while the igniters are sparking.
GRIDDLE IGNITION (FOR 48 IN. MODELS ONLY)
Before using the Griddle
- Clean the griddle thoroughly with warm, soapy water to remove dust or protective coating. Rinse with clean water and wipe off to dry with a soft, clean, lint-free cloth.
- Remove the stainless steel griddle cover before turning the griddle on.
- Make sure the grease tray is under the front edge of the griddle; position the tray under the griddle overhang to catch grease or food residue.
Using the Griddle
- Push and turn the control knob counter-clockwise to the preferred cooking temperature.
- Preheat the griddle for approximately 10-12 minutes.
- When the griddle is preheated to the desired temperature, the indicator light will turn on.
- Place the food on the griddle to cook.
TIP: Butter or cooking oil can be added for more flavor.
CAUTION!: The griddle surface will be hot after use; allow it to cool before cleaning.
TIPS FOR USING POTS & PANS CORRECTLY
Always ensure that the bottom and handles of pots and pans do not overextend from the cooktop. When cooking with flammable fat such as oil, do not leave the range unattended. Use pots of the appropriate size on each burner using the following chart:
BURNER & RECOMMENED POT/PAN SIZE
- Auxiliary: 3 1/2 – 5 1/2 in. (9O – 140mm)
- Semi Rapid: 5 1/2 – 10 1/4 in. (140 – 260mm)
- Rapid: 7 1/8 – 10 1/4 in. (180 – 260mm)
- Dual Burner: 8 2/3 – 10 1/4 in. (220 – 260mm)
When boiling liquids, turn the knob to the MINIMUM position once boiling is reached to avoid overflow. Always use pots with a matching lid. Dry the bottom of cookware before cooking. Use pots with a flat, thick bottom (except for wok cooking).

WOK COOKING
Always use the wok adapter supplied with the range. Wok pan external diameter shall not be smaller than 10″ (25cm) and larger than 16″ (40cm).
WARNING!: DO NOT use an open flame when checking for leaks.
CARE & MAINTENANCE
CLEANING THE COOKTOP
Periodically clean the burner heads, the cast iron grates, and the burner caps using warm water. Remove burned food and fat residue with a rubber spatula. If food residue prevents the smooth operation of the knob controls, please contact Cosmo Customer Service to schedule service by a factory-trained professional (See Page 28).
CLEANING THE STAINLESS STEEL
For best results, use a_ stainless steel cleaning product with a soft sponge or wipe. Alternatively, use a soft sponge or cloth with a warm soap and water solution. Never use abrasive powders or liquids.
CLEANING THE BURNER CAPS
Lift the burner caps from the burner heads and wash them with soap and warm water. Dry thoroughly before use. Before reinstalling them on the burner head, check that the gas flow holes are not clogged with food or cleaning product residue.
See diagram to properly install the burner caps.
SERVICE & MAINTENANCE
Service and maintenance must carried out by authorized professionals only. To replace parts such as burners, valves, and electric components, the cooktop must be removed from the countertop by releasing the attachment hooks, loosening the attachment screws of each burner, unscrewing the cooktop attachment nuts which are visible at the bottom of the surface, removing the cooktop stainless steel top, and finally replacing the defective parts.
NOTE: If the valves must be replaced, first disassemble the ignition switches wires. It is recommended to replace the valve gaskets each time the valve is replaced, ensuring a perfect seal between the body and the gas manifold.
WARNING!: Disconnect power before servicing unit.
WARNING!: After the initial installation of the appliance or after any service concerning main gas parts of the appliance, perform a leak test using water with soap on the gas connections in order to verify proper installation (See Page 14). Do not use fire/open flames to test for gas leaks.
GREASING THE VALVES
If it becomes difficult to operate the valve, it should be greased immediately by following the steps below:
- Disassemble the valve body by loosening the two screws located on the body of the valve.
- Extract and clean the seal cone and its housing with a rag soaked with thinners.
- Lightly grease the cone with special grease.
- Insert the cone, moving it several times, remove it again, remove the excess grease and make sure that the gas passageways are unobstructed.
- Replace all the pieces in reverse order and check that the valve operates correctly.

TROUBLESHOOTING
| PROBLEM | POSSIBLE CAUSE | SOLUTION |
| Burners will not light | Burner parts or igniters may be wet, dirty or misaligned | Check burner parts are clean. dry and correctly assembled. Check igniters are clean and dry: see Page 25 |
| Top burner will not stay lit | Failed thermocouple | Replace thermocouple |
| Flames do not burn all around the burner cap | Burner parts may be dirty or misaligned | See “Care & Maintenance”. Page 25 |
| Burner flames are very large and yellow | • Burner bezel ports are clogged. Burner ports or burner caps are not positioned properly • Range top is being operated with the wrong type of gas • Regulator is not Installed, is faulty. or is set for the wrong type of gas | • Clean burner bezel ring ports with straightened paper clip. needle, or wire • Remove and carefully reinstall burner bezel and caps • Ensure that the type of range top matches the gas supply • Check installation, replace regulator, or set regulator for proper gas |
| Igniters are sparking but burners are not igniting | Gas shut-off valve is in the “OFF” position | Turn shut-off valve to the “ON’ position |
| Burner flame goes out at low setting | • Low gas pressure • Air intake holes around burners are obstructed | • Contact gas company • Remove obstruction from air intake holes |
| The flames have suddenly gone out | A draft or spill has extinguished the flame | Turn the burners off, cleaning the burners and the sump area. Once clean, reignite top burners |
| No ignition spark | Dead batteries or ignition | Replace batteries and |
| module failed | attempt ignition; if there is still no spark ignition. the range top burners can still be used. To light them: 1.)Holding a lit match to the flame spreader. push in on the control knob and turn counter clockwise to LIGHT 2.)When the flame is burning all the way around the burner, you may adjust the heat | |
| Cracking” or ‘popping” sound is heard coming from cooktop | This is the sound of metal heating and cooling | This is normal, no action is necessary |
WARRANTY AND SERVICE
For full warranty details on this product please visit: htto://www.cosmoappliances.com/warranty
TO RECEIVE WARRANTY SERVICE, YOUR PRODUCT MUST BE REGISTERED. TO REGISTER, VISIT:
WWW.COSMOAPPLIANCES.COM/WARRANTY
SCAN TO REGISTER
https://cosmoappliances.com/WARRANTY
IMPORTANT
Do Not Return This Product To The Store If
you have a problem with this product, please contact
Cosmo Customer Support at
+1(888)784-3108
DATED PROOF OF PURCHASE, MODEL #, AND SERIAL #
REQUIRED FOR WARRANTY SERVICE
Correct Disposal of this product:
This marking indicates that this appliance should not be disposed with other household wastes. To prevent possible harm to the environment or human health from uncontrolled waste disposal, recycle it responsibly to promote the sustainable reuse of material resources.
APPLIANCES
Cosmo is constantly making efforts to improve the quality and performance of our products, so we may make changes to our appliances without updating this manual.
Electronic version of this manual is available at: www.cosmoappliances.com


































