
AX PRO M2H
Quick Start Guide




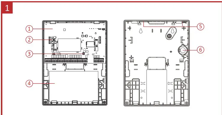
Appearance
| 1. Main Board 2. Power Switch 3. Tamper Switch | 4. Battery 5. Antenna Position 6. Loudspeaker |
Installation and Wiring
Note: Power down the control panel before installation and wiring.
- Loosen the screws and open the case.
- Take out the upper main board.
- Take out the lower main board.
- Fix the rear case on the wall. Install the lower main board and the loudspeaker.
- (Wiring before install the upper main board.)
Install the antennas and the upper main board. - Connect the power supply and turn on the switch.
- Close the case and tighten the screws.
Set-Up
- Add the AX PRO to Hik-ProConnect or Hik-Connect APP.
- Enroll the peripheral to the AX PRO.
User Manual
Specification
| Basic | RF frequency | 915 Mhz |
| Keyfob | 48 | |
| Wireless sounder | 6 | |
| Keypad | 8 (Including Tag reader) | |
| Wireless repeater | 4 | |
| Tag | 48 | |
| Zone | Up to 96 (including 48 PIRCAMs & 16 onboard Wired Zones & onboard Wired Outputs) | |
| Transmitter | Up to 96 (Single), up to 5 (Multi) | |
| Onboard video clip | 4 | |
| User | Admin, installer, user | 1, 120, 46 |
| Software | Area | 32 |
| LEDs indication | Arm/Disarm, Alarm, Alert, Cloud, Power | |
| Memory Log stored | Alarm&abnormal (3000), user operation (1500), user management (200) | |
| Programming tool | Hik-Connect/I-lik-ProConnect/Web Portal/ IVMS4200/ Convergence Cloud | |
| Communication | Network | Wired network, Wi-FI, 4G on board |
| ARC protocol | SIA DC09 (SIA level 2, Contact ID), ISUP, ISAPI (SDK), CSV-IP, FSK Module | |
| Hik-IP Receiver & Hik-IP Receiver Pro (Sur-Gard & Ademco 685) | ||
| Supports video verification and remote control | ||
| SIM slot | Dual | |
| Hardware | Power supply | 100 to 240V-, 50/60 Hz, 0.66A to 0.3A |
| Battery type | 12v 7Ah storage battery (sold separately), up to 36 hours | |
| Others | Operation temperature | -10 °C to 40 °C |
| Dimension (WxHxD) | 261 mm x 199 mm x 86.4 mm | |
| Weight | 1083g (No battery) |
FCC Information
Please take attention that changes or modification not expressly approved by the party responsible for compliance could void the user’s authority to operate the equipment.
FCC compliance: This equipment has been tested and found to comply with the limits for a Class B digital device, pursuant to part 15 of the FCC Rules. These limits are designed to provide reasonable protection against harmful interference in a residential installation. This equipment generates, uses, and can radiate radio frequency energy and, if not installed and used in accordance with the instructions, may cause harmful interference to radio communications. However, there is no guarantee that interference will not occur in a particular installation. If this equipment does cause harmful interference to radio or television reception, which can be determined by turning the equipment off and on, the user is encouraged to try to correct the interference by one or more of the following measures:
- Reorient or relocate the receiving antenna.
- Increase the separation between the equipment and receiver.
- Connect the equipment into an outlet on a circuit different from that to which the receiver is connected.
- Consult the dealer or an experienced radio/TV technician for help.
This equipment should be installed and operated with a minimum distance 20cm between the radiator and your body.
FCC Conditions
This device complies with part 15 of the FCC Rules. Operation is subject to the following two conditions:
- This device may not cause harmful interference.
- This device must accept any interference received, including interference that may cause undesired operation
©2021 Hangzhou Hikvision Digital Technology Co., Ltd. All rights reserved.
About this Manual
The Manual includes instructions for using and managing the Product. Pictures, charts, images, and all other information hereinafter are for description and explanation only. The information contained in the Manual is subject to change, without notice, due to firmware updates or other reasons. Please find the latest version of this Manual at the Hikvision website (https://www.hikvision.com/).
Please use this Manual with the guidance and assistance of professionals trained in supporting the Product.
Trademarks
and other Hikvision’s trademarks and logos are the properties of Hikvision in various jurisdictions. Other trademarks and logos mentioned are the properties of their respective owners.
Disclaimer
TO THE MAXIMUM EXTENT PERMITTED BY APPLICABLE LAW, THIS MANUAL AND THE PRODUCT DESCRIBED, WITH ITS HARDWARE, SOFTWARE, AND FIRMWARE, ARE PROVIDED “AS IS” AND “WITH ALL FAULTS AND ERRORS”. HIKVISION MAKES NO WARRANTIES, EXPRESS OR IMPLIED, INCLUDING WITHOUT LIMITATION, MERCHANTABILITY, SATISFACTORY QUALITY, OR FITNESS FOR A PARTICULAR PURPOSE. THE USE OF THE PRODUCT BY YOU IS AT YOUR OWN RISK. IN NO EVENT WILL HIKVISION BE LIABLE TO YOU FOR ANY SPECIAL, CONSEQUENTIAL, INCIDENTAL, OR INDIRECT DAMAGES, INCLUDING, AMONG OTHERS, DAMAGES FOR LOSS OF BUSINESS PROFITS, BUSINESS INTERRUPTION, OR LOSS OF DATA, CORRUPTION OF SYSTEMS, OR LOSS OF DOCUMENTATION, WHETHER BASED ON BREACH OF CONTRACT, TORT (INCLUDING NEGLIGENCE), PRODUCT LIABILITY, OR OTHERWISE, IN CONNECTION WITH THE USE OF THE PRODUCT, EVEN IF HIKVISION AS BEEN ADVISED OF THE POSSIBILITY OF SUCH DAMAGES OR LOSS.
YOU ACKNOWLEDGE THAT THE NATURE OF THE INTERNET PROVIDES FOR INHERENT SECURITY RISKS, AND HIKVISION SHALL NOT TAKE ANY RESPONSIBILITIES FOR ABNORMAL OPERATION, PRIVACY LEAKAGE, OR OTHER DAMAGES RESULTING FROM CYBER-ATTACK, HACKER ATTACK, VIRUS INFECTION, OR OTHER INTERNET SECURITY RISKS; HOWEVER, HIKVISION WILL PROVIDE TIMELY TECHNICAL SUPPORT IF REQUIRED. YOU AGREE TO USE THIS PRODUCT IN COMPLIANCE WITH ALL APPLICABLE LAWS, AND YOU ARE SOLELY RESPONSIBLE FOR ENSURING THAT YOUR USE CONFORMS TO THE APPLICABLE LAW. ESPECIALLY, YOU ARE RESPONSIBLE, FOR USING THIS PRODUCT IN A MANNER THAT DOES NOT INFRINGE ON THE RIGHTS OF THIRD PARTIES, INCLUDING WITHOUT LIMITATION, RIGHTS OF PUBLICITY, INTELLECTUAL PROPERTY RIGHTS, DATA PROTECTION, AND OTHER PRIVACY RIGHTS. YOU SHALL NOT USE THIS PRODUCT FOR ANY PROHIBITED END-USES, INCLUDING THE DEVELOPMENT OR PRODUCTION OF WEAPONS OF MASS DESTRUCTION, THE DEVELOPMENT OR PRODUCTION OF CHEMICAL OR BIOLOGICAL WEAPONS, ANY ACTIVITIES IN THE CONTEXT RELATED TO ANY NUCLEAR EXPLOSIVE OR UNSAFE NUCLEAR FUELCYCLE, OR IN SUPPORT OF HUMAN RIGHTS ABUSES.
IN THE EVENT OF ANY CONFLICTS BETWEEN THIS MANUAL AND THE APPLICABLE LAW, THE LATTER PREVAILS.
CAUTION
In the use of the product, you must be in strict compliance with the electrical safety regulations of the nation and region.
The equipment shall not be exposed to dripping or splashing and that no objects filled with liquids, such as vases, shall be placed on the equipment. The socket outlet shall be installed near the equipment and shall be easily accessible.
Ensure correct wiring of the terminals for connection to an AC mains supply.
indicates hazardous life and the external wiring connected to the terminals requires installation by an instructed person.
The equipment has been designed when required, modified for connection to an IT power distribution system.
No naked flame sources, such as lighted candles, should be placed on the equipment.
The serial port of the equipment is used for debugging only.
This equipment is not suitable for use in locations where children are likely to be present.
Install the equipment according to the instructions in this manual.
To prevent injury, this equipment must be securely attached to the floor/wall in accordance with the installation instructions.
To prevent possible hearing damage, do not listen at high volume levels for long periods.
The additional force shall be equal to three times the weight of the equipment but not less than 50N. The equipment and its associated mounting means shall
remain secure during the installation. After the installation, the equipment, including any associated mounting plate, shall not be damaged.
BATTERY CAUTION
- This equipment is not suitable for use in locations where children are likely to be present.
- CAUTION: Risk of explosion if the battery is replaced by an incorrect type.
- Improper replacement of the battery with an incorrect type may defeat a safeguard (for example, in the case of some lithium battery types).
- Do not dispose of the battery into fire or a hot oven, or mechanically crush or cut the battery, which may result in an explosion.
- Do not leave the battery in an extremely high temperature surrounding environment, which may result in an explosion or the leakage of flammable liquid or gas.
- Do not subject the battery to extremely low air pressure, which may result in an explosion or the leakage of flammable liquid or gas.
- Dispose of used batteries according to the instructions.
- + identifies the positive terminal(s) of equipment which is used with, or generates direct current. – identifies the negative terminal(s) of equipment which is used with, or generates direct current.
- identifies the battery holder itself and identifies the positioning of the cell(s) inside the battery holder.


















