R410A Split Series Room Air Conditioner
Installation Guide
MODELS
FDMQ09RVJU FDMQ12RVJU FDMQ15RVJU
FDMQ18RVJU FDMQ24RVJU
SAFETY CONSIDERATIONS
Read these SAFETY CONSIDERATIONS for Installation carefully before installing an air conditioner or heat pump. After completing the installation, make sure that the unit operates properly during the startup operation.
Instruct the user on how to operate and maintain the unit.
Inform users that they should store this installation manual with the operation manual for future reference.
Always use a licensed installer or contractor to install this product.
Improper installation can result in water or refrigerant leakage, electric shock, fire, or explosion.
Meanings of DANGER, WARNING, CAUTION, and NOTE Symbols:
DANGER………..
Indicates an imminently hazardous situation that, if not avoided, will result in death or serious injury.
WARNING……….
Indicates a potentially hazardous situation that, if not avoided, could result in death or serious injury.
CAUTION………..
Indicates a potentially hazardous situation that, if not avoided, may result in minor or moderate injury. It may also be used to alert against unsafe practices.
NOTE……………..
Indicates situations that may result in equipment or property-damage accidents only.
DANGER
- The refrigerant gas is heavier than air and replaces oxygen.
A massive leak can lead to oxygen depletion, especially in basements, and an asphyxiation hazard could occur leading to serious injury or death. - Do not ground units to water pipes, gas pipes, telephone wires, or lightning rods as incomplete grounding can cause a severe shock hazard resulting in severe injury or death. Additionally, grounding to gas pipes could cause a gas leak and potential explosion causing severe injury or death.
- If refrigerant gas leaks during the installation, ventilate the area immediately. Refrigerant gas may produce toxic gas if it comes into contact with fire. Exposure to this gas could cause severe injury or death.
- After completing the installation work, check that the refrigerant gas does not leak throughout the system.
- Do not install units in an area where flammable materials are present due to the risk of explosions that can cause serious injury or death.
- Safely dispose of all packing and transportation materials in accordance with federal/state/local laws or ordinances. Packing materials such as nails and other metal or wood parts, including plastic packing materials used for transportation may cause injuries or death by suffocation.
WARNING
- Only qualified personnel must carry out the installation work. Installation must be done in accordance with this installation manual. Improper installation may result in water leakage, electric shock, or fire.
- When installing the unit in a small room, take measures to keep the refrigerant concentration from exceeding allowable safety limits. Excessive refrigerant leaks, in the event of an accident in a closed ambient space, can lead to oxygen deficiency.
- Use only specified accessories and parts for installation work. Failure to use specified parts may result in water leakage, electric shock, fire, or the unit falling.
- Install the air conditioner or heat pump on a foundation strong enough that it can withstand the weight of the unit. A foundation of insufficient strength may result in the unit falling and causing injuries.
- Take into account strong winds, typhoons, or earthquakes when installing. Improper installation may result in the unit falling and causing accidents.
- Make sure that a separate power supply circuit is provided for this unit and that all electrical work is carried out by qualified personnel according to local, state, and national regulations. An insufficient power supply capacity or improper electrical construction may lead to electric shock or fire.
- Make sure that all wiring is secured, that specified wires are used, and that no external forces act on the terminal connections or wires. Improper connections or installation may result in fire.
- When wiring, position the wires so that the electrical wiring box cover can be securely fastened. Improper positioning of the electrical wiring box cover may result in electric shock, fire, or the terminals overheating.
- Before touching electrical parts, turn off the unit.
The circuit must be protected with safety devices in accordance with local and national codes, i.e. a circuit breaker. - Securely fasten the outdoor unit terminal cover (panel). If the terminal cover/panel is not installed properly, dust or water may enter the outdoor unit causing fire or electric shock.
- When installing or relocating the system, keep the refrigerant circuit free from substances other than the specified refrigerant (R410A) such as air. Any presence of air or other foreign substance in the refrigerant circuit can cause an abnormal pressure rise or rupture, resulting in injury.
- Do not change the setting of the protection devices. If the pressure switch, thermal switch, or other protection device is shorted and operated forcibly, or parts other than those specified by Daikin are used, fire or explosion may occur.
CAUTION
- Do not touch the switch with wet fingers. Touching a switch with wet fingers can cause electric shock.
- Do not allow children to play on or around the unit to prevent injury.
- The heat exchanger fins are sharp enough to cut. To avoid injury wear gloves or cover the fins while working around them.
- Do not touch the refrigerant pipes during and immediately after operation as the refrigerant pipes may be hot or cold, depending on the condition of the refrigerant flowing through the refrigerant piping, compressor, and other refrigerant cycle parts. Your hands may suffer burns or frostbite if you touch the refrigerant pipes. To avoid injury, give the pipes time to return to normal temperature or, if you must touch them, be sure to wear proper gloves.
- Install drain piping to proper drainage. Improper drain piping may result in water leakage and property damage.
- Insulate piping to prevent condensation.
- Be careful when transporting the product.
- Do not turn off the power immediately after stopping operation. Always wait for at least 5 minutes before turning off the power. Otherwise, water leakage may occur.
- Do not use a charging cylinder. Using a charging cylinder may cause the refrigerant to deteriorate.
- Refrigerant R410A in the system must be kept clean, dry, and tight.
(a) Clean and Dry — Foreign materials (including mineral oils such as SUNISO oil or moisture) should be prevented from getting into the system.
(b) Tight — R410A does not contain any chlorine, does not destroy the ozone layer, and does not reduce the earth’s protection again harmful ultraviolet radiation.
R410A can contribute to the greenhouse effect if it is released. Therefore take proper measures to check for the tightness of the refrigerant piping installation. Read the chapter Refrigerant Piping Work and follow the procedures. - Since R410A is a blend, the required additional refrigerant must be charged in its liquid state. If the refrigerant is charged in a state of gas, its composition can change and the system will not work properly.
- The indoor unit is for R410A. See the catalog for indoor models that can be connected. Normal operation is not possible when connected to other units.
- Remote controller (wireless kit) transmitting distance can be shorter than expected in rooms with electronic fluorescent lamps (inverter or rapid start types). Install the indoor unit far away from fluorescent lamps as much as possible.
- Indoor units are for indoor installation only. Outdoor units can be installed either outdoors or indoors. This unit is for indoor use.
- Do not install the air conditioner or heat pump in the following locations:
(a) Where a mineral oil mist or oil spray or vapor is produced, for example, in a kitchen. Plastic parts may deteriorate and fall off or result in water leakage.
(b) Where corrosive gas, such as sulfurous acid gas, is produced. Corroding copper pipes or soldered parts may result in refrigerant leakage.
(c) Near machinery emitting electromagnetic waves. Electromagnetic waves may disturb the operation of the control system and cause the unit to malfunction.
(d) Where flammable gas may leak, where there is carbon fiber, or ignitable dust suspension in the air, or where volatile flammables such as thinner or gasoline are handled. Operating the unit in such conditions can cause a fire. - Take adequate measures to prevent the outdoor unit from being used as a shelter by small animals. Small animals making contact with electrical parts can cause malfunctions, smoke, or fire. Instruct the user to keep the area around the unit clean.
NOTE
- The indoor unit should be positioned where the unit and inter-unit wires (outdoor to indoor) are at least 3.3ft (1m) away from any televisions or radios. (The unit may cause interference with the picture or sound.) Depending on the radio waves, a distance of 3.3ft (1m) may not be sufficient to eliminate the noise.
- Dismantling the unit, treatment of the refrigerant, oil and additional parts must be done in accordance with the relevant local, state, and national regulations.
- Do not use the following tools that are used with conventional refrigerants: gauge manifold, charge hose, gas leak detector, reverse flow check valve, refrigerant charge base, vacuum gauge, or refrigerant recovery equipment.
- If the conventional refrigerant and refrigerator oil are mixed in R410A, the refrigerant may deteriorate.
- This air conditioner or heat pump is an appliance that should not be accessible to the general public.
- As the design pressure is 604 psi, the wall thickness of field-installed pipes should be selected in accordance with the relevant local, state, and national regulations.
BEFORE INSTALLATION
When unpacking the indoor unit or moving the unit after unpacked, hold the hangers (4 places) and do not apply force to other parts (particularly refrigerant piping, drain piping).
- For installation of the outdoor unit, refer to the installation manual attached to the outdoor unit.
- Do not throw away the accessories until the installation work is completed.
- After the indoor unit is carried into the room, to avoid the indoor unit from getting damaged, take measures to protect the indoor unit with packing materials.
(1) Determine the route to carry the unit into the room.
(2) Do not unpack the unit until it is carried to the installation location.
Where unpacking is unavoidable, use a sling of soft material or protective plates together with a rope when lifting, to avoid damage or scratches to the indoor unit. - Have the user actually operate the air conditioner while looking at the operation manual. Instruct the user how to operate the air conditioner (particularly operation procedures, and temperature adjustment).
- Do not use the air conditioner in a salty atmosphere such as coastal areas, vehicles, vessels or where voltage fluctuation is frequent such as factories.
- Take off static electricity from the body when carrying out wiring and the electrical wiring box cover is removed.
The electric parts may be damaged.
ACCESSORIES

OPTIONAL ACCESSORIES
- A remote controller is required for the indoor unit.
- Select a remote controller from the table below according to user request and install in an appropriate place.
| Remote controller type | |
| Wired type | BRC1E73 |
| Wireless type | BRC082A43 |
- The indoor unit can be switched to lower suction.
(Refer to 4. PREPARATION BEFORE INSTALLATION.)
The side cover plate (KDBD63A160) is required in the case of wiring from the bottom for underside suction.
For installation work, refer to the instruction sheet provided with the side cover plate.
CARRY OUT THE WORK GIVING CAUTION TO THE FOLLOWING ITEMS AND AFTER THE WORK IS COMPLETED CHECK THESE AGAIN.
- Items to be checked after the installation work is completed
Items to be checked Symptom Check Are the indoor and outdoor units rigidly fixed? Drop • vibration • noise Are the installation works of the outdoor and indoor units completed? Does not operate burnout Is the insulation of refrigerant piping and drain piping completely carried out? Water leakage Does the drain flow out smoothly? Water leakage Is the power supply voltage identical to that stated in the manufacturer’s label on the air conditioner? Does not operate • burnout Are you sure that there is no wrong wiring or piping or no loose wiring? Does not operate burnout Is grounding completed? Danger in case of leakage Are the sizes of electric wiring according to the specification? Does not operate • burnout Are any of air outlets or inlets of the indoor and outdoor units blocked with obstacles? (It may lead to capacity drop due to fan speed drop or malfunction of equipment.) Does not cool / Does not heat Is the external static pressure set correctly? Does not cool / Does not heat - Items to be checked at the time of delivery
Items to be checked Check Have you carried out field setting? (if necessary) Are the electrical wiring box cover, air filter, suction grille attached? Does the cool air discharge during the COOL operation and the warm air discharge during the HEAT operation? Does the indoor unit make the unpleasant sound of air discharge? Did you explain operations while showing the operation manual to your user? Have you explained the description of COOL, HEAT, DRY, and AUTOMATIC (cooling/heating) given in the operation manual to the user? If you set the fan speed at the thermostat OFF, did you explain the set fan speed to the user? Did you hand the operation manual over to the user? Have you checked that there is no generation of abnormal noise (i.e., noise resulting from contamination or missing parts)? Is the printed circuit board switch not on the emergency (EMG.) side?
The switch is factory set to the normal (NORM.) side.If an optional accessory is in use, did you check the operation of the optional accessory and make field settings as needed? Have you explained failure examples of
3. CHOOSING AN INSTALLATION SITE?Items to be checked at the time of delivery
Test items Check Did you explain operations while showing the operation manual to the user? Did you hand the operation manual over to the user?
Points for an explanation about operations
The items with
WARNING and
CAUTION marks in the operation manual are the items pertaining to possibilities for bodily injury and material damage in addition to the general usage of the product. Accordingly, it is necessary that you make a full explanation about the described contents and also ask the users to read the operation manual.
Note to the installer
Be sure to instruct customers how to properly operate the unit (especially operating different functions, and adjusting the temperature) by having them carry out operations while looking at the manual.
CHOOSING AN INSTALLATION SITE
Hold the hangers at 4 locations to move the indoor unit when unpacking or after unpacked, and do not apply force to the piping (refrigerant and drain) and air outlet flange.
If the temperature and humidity in the ceiling is likely to exceed 86°F (30°C), RH80%, use the additional insulation stick to the indoor unit.
Use insulation such as glass wool or polyethylene that has a thickness of 3/8 inch (10mm) or more. However, keep the insulated outside dimension smaller than the ceiling opening so that the unit may go through the opening at installation.
Select the installation location that meets the following conditions and get the approval of the user.
- Where the cool and warm air spreads evenly in the room.
- Where there are no obstacles in the air passage.
- Where drainage can be ensured.
- Where the ceiling’s lower surface is not remarkably inclined.
- Where there is sufficient strength to withstand the mass of the indoor unit. (If the strength is insufficient, the indoor unit may vibrate and get in contact with the ceiling and generate unpleasant chattering noise.)
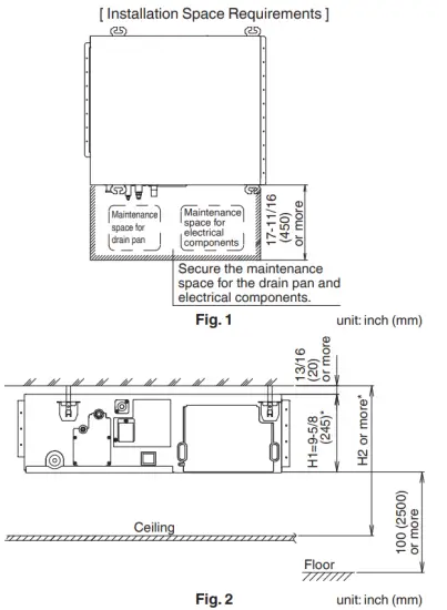
- Where a space sufficient for installation and service can be ensured. (Refer to Fig. 1 and Fig. 2)
- Where the piping length between the indoor and the outdoor units is ensured within the allowable length.
(Refer to the installation manual attached to the outdoor unit.) - Where there is no risk of a flammable gas leak.

- * Dimension H1 indicates the product height.
- * Secure a downward slope of at least 1/100 specified in
7. DRAIN PIPING WORK and determine dimension H2.
<Failure example>
If there is an obstacle in the airflow path or proper installation space is not provided, the indoor unit will cause air volume reduction and take in air blown out of the indoor unit, thus resulting in performance degradation or turning the thermostat OFF frequently.
CAUTION
- Install the indoor and outdoor units, power supply wiring, remote controller wiring, and transmission wiring at least 1 meter away from televisions or radios to prevent image interference or noise.
(Depending on the radio waves, a distance of 1 meter may not be sufficient to eliminate the noise.) - Install the indoor unit as far as possible from fluorescent lamps.
If a wireless remote controller kit is installed, the transmission distance may be shorter in a room where an electronic lighting type (inverter or rapid start type) fluorescent lamp is installed.
Use suspension bolts to install the unit.
Check whether or not the ceiling is strong enough to support the weight of the unit. If there is a risk that the ceiling is not strong enough, reinforce the ceiling before installing the unit.
PREPARATION BEFORE INSTALLATION
- Check the relation of location between the ceiling opening and the indoor unit suspension bolts. (unit: inch (mm))
• Provide one of the following service spaces for the maintenance and inspection of the electrical wiring box and drain pump or for other services.
1. Inspection ports 1 and 2 (17-11/16 inch (450mm) × 17-11/16 inch (450mm)) (Fig. 3-2) and a minimum space of 11-13/16 inch (300mm) at the bottom of the product (Fig. 3-1).
2. Inspection port 1 (17-11/16 inch (450mm) × 17-11/16 inch (450mm)) on the electrical wiring box side and inspection port 2 on the bottom of the product. (Fig. 4, arrow A-1)
3. Inspection port 3 on the bottom of the product and on the bottom side of the electrical wiring box. (Fig. 4, arrow A-2)

Table 1B C D E 09/12 27-9/16 29-1/16 39-3/8 class 0 (700) (738) (1000) 15/18/24 39-3/8 40-7/8 51-3/16 class 1-15/16 (50) (1000) (1038) (1300) - Mount canvas ducts to the air outlet and inlet so that the vibration of the indoor unit will not be transmitted to the ducts or ceiling. Furthermore, attach sound absorbing material (thermal insulation material) to the duct inner walls and anti-vibration rubber to the suspension bolts (refer to 8. DUCTWORK).
- The indoor unit is set to standard external static pressure.
• If external static pressure is higher or lower than the standard set value, the remote controller may be used to make an on-site setting change in the external static pressure.
Refer to 10. FIELD SETTING. - Open installation holes
(in the case of installation onto the existing ceiling).
• Open the installation holes on the ceiling of the installation location, and work on the refrigerant piping, drain piping, remote controller wiring, and wiring between the indoor and outdoor units to the piping connection port and wiring connection port of the indoor unit (refer to each piping and wiring procedure items).
• Ceiling framework reinforcement may be required in order to keep the ceiling horizontal and prevent ceiling vibration after opening the ceiling holes. For details, consult your building and upholstery work contractors. - Install the suspension bolts.
• Use M8 or M10 bolts for hanging the indoor unit.
Use hole-in-anchors for the existing bolts and embedded inserts or foundation bolts for new bolts, and fix the indoor unit firmly to the building so that it may withstand the mass of the unit.
In addition, adjust clearance (1-15/16 inch (50mm) – 3-15/16 inch (100mm)) from the ceiling in advance.
- In the case of changing the preset suction to underside suction, replace the chamber cover and the suction flange. (Refer to Fig. 5)
1. Remove the suction flange and chamber cover.
2. Replace the suction flange and the chamber cover.
CAUTION
• Secure a sufficient maintenance space for the drain pan and electrical components before installing the indoor unit.
• Secure a sufficient maintenance space for the filter chamber, and peripheral components before installing the indoor unit.
INDOOR UNIT INSTALLATION
Depending on the optional parts, it may be easier to attach them before installing the indoor unit. Refer to also the installation manual attached to the optional parts. As for the parts to be used for installation work, be sure to use the provided accessories and specified parts designated by our company.
- Install the indoor unit temporarily.
• Fix the hanger to the suspension bolt.
Make sure to securely fix the hanger with the nut and the washer for the hanger bracket (11) from the upper and lower side. (Refer to Fig. 6)
If the washer fixing plate (9) is used, the upper side washer for the hanger bracket (11) may be protected from falling off. (Refer to Fig. 7)
[ Fix the hanger ]
• Keep the air outlet covered with a protective sheet to prevent weld spatter and other foreign materials from entering the indoor unit and damaging the resin drain pan.
(If holes or cracks are generated in the resin drain pan, water can leak.) - Adjust the height of the unit.
- Check the unit is horizontally level. (Refer to Fig. 8)
- Remove the washer fixing plate (9) used for preventing the washer for hanger bracket (11) from dropping and tightening the upper side nut.

CAUTION
- Install the indoor unit leveled.
If the indoor unit is inclined and the drain piping side gets high, it may cause malfunction of the float switch and result in water leakage. - Attach nuts on the upper and lower side of the hanger.
If there is no upper nut and the lower nut is over-tightened, the hanger and the top plate will deform and cause abnormal sound. - Do not insert materials other than that specified into the clearance between the hanger and the washer for the hanger bracket (11).
Unless the washers are properly attached, the suspension bolts may come off from the hanger.
WARNING
The indoor unit must be securely installed on a place that can withstand the mass.
If the strength is insufficient, the indoor unit may fall down and cause injuries.
REFRIGERANT PIPING WORK
Refer to the installation manual for the outdoor unit also.
- Carry out insulation of both gas and liquid refrigerant piping securely. If not insulated, it may cause water leakage. For gas piping, use insulation material of which heat resistant temperature is not less than 230°F (110°C). For use under high humidity, strengthen the insulation material for refrigerant piping. If not strengthened, the surface of the insulation material may sweat.
Flaring the pipe end
- Cut the pipe end with a pipe cutter.
- Remove burrs with the cut surface facing downward, so that the filings do not enter the pipe.
- Put the flare nut on the pipe.
- Flare the pipe.
- Check that the flaring has been done correctly.

WARNING
- Do not apply mineral oil to the flare.
- Prevent mineral oil from getting into the system as this would reduce the service life of the units.
- Never use piping that has been used for previous installations. Only use parts that are delivered with this unit.
- Never install a dryer on this R410A unit in order to guarantee its service life.
- The drying material may dissolve and damage the system.
- Incomplete flaring may result in refrigerant gas leakage.
CAUTION
- Use the flare nut fixed to the main unit. (This is to prevent the flare nut from cracking as a result of deterioration over time.)
- Use a pipe cutter and flare suitable for the type of refrigerant.
- To prevent gas leakage, apply refrigeration oil only to the inner surface of the flare. (Use refrigeration oil for R410A.) (Refer to Fig. 10)
- Use a torque wrench when tightening the flare nuts to prevent damage to the flare nuts and gas leakage.
- Protect the open end of the pipe against dust and moisture.
- Do not allow anything other than the designated refrigerant to get mixed into the refrigerant circuit, such as air, etc. If any refrigerant gas leaks while working on the unit, ventilate the room thoroughly right away.
- Use only the flare nuts attached to the air conditioner. If other flare nuts are used, it may cause refrigerant leakage.
Refrigerant piping
- To prevent gas leakage, apply refrigeration machine oil only to the inner surface of the flare. (Use refrigeration oil for R410A)
- Align the centers of both flares and tighten the flare nuts 3 or 4 turns by hand, then tighten them fully with a spanner and a torque wrench.
• Use a torque wrench when tightening the flare nuts to prevent damage to the flare nuts and gas leakage. (Refer to Fig. 9)Flare nut tightening torque Gas side Liquid side 3/8 inch
(9.5mm)1/2 inch
(12.7mm)5/8 inch
(15.9mm)1/4 inch
(6.4mm)24.1-29.4ft•lbf
(32.7-39.9N•m)36.5-44.5ft•lbf
(49.5-60.3N•m)45.6-55.6ft•lbf
(61.8-75.4N•m)10.4-12.7ft•lbf (14.2-17.2N•m) • The refrigerant is pre-charged in the outdoor unit.
Tighten
CAUTION
Do not have oil adhere to the screw fixing part of resin parts.
If oil adheres, it may weaken the strength of the screwed part.
Do not tighten flare nuts too tight.
If a flare nut cracks, the refrigerant may leak.
Insulation of field piping must be carried out up to the connection inside the casing.
If the piping is exposed to the atmosphere, it may cause sweating, burn due to touching the piping, electric shock or a fire due to the wiring touching the piping.
- After the leak test, referring to Fig. 11, insulate both the gas and liquid piping connection with the attached fitting insulation (4) and (5) to prevent the pipings from getting exposed. Then, tighten both the ends of the insulating material with the clamp (8).
- Wrap the sealing pad (Medium) (7) around the fitting insulation (4) and (5) (flare nut section), both the gas and liquid piping.
- Make sure to bring the seam of fitting insulation (4) and (5) to the top.
Gas Piping Insulation Procedure
NOTE![]()
- In case of refrigerant shortage due to forgetting additional refrigerant charge etc., it will result in malfunction such as does not cool or does not heat.
Refer to the outdoor unit installation manual or technical document for refrigerant piping.
DRAIN PIPING WORK
- Carry out drain piping.
Carry out drain piping so that drainage is ensured.
• Select the piping diameter equal to or larger than (except for riser) that of the connection piping (polyvinyl chloride piping, nominal diameter 1 inch (25mm), outside diameter 1-1/4 inch (32mm)).
• Install the drain piping as short as possible with a downward inclination of 1/100 or more and without such that air may not stagnate. (Refer to Fig. 12) (It may cause abnormal sounds such as bubbling noise.)
CAUTION
If the drain stagnates in the drain piping, the piping may be clogged.
- If sufficient downward inclination cannot be ensured, carry out upward drain piping.
- Install supports at a distance of 40 to 60 inches (1000 to 1500mm) so that the piping may not deflect. (Refer to Fig. 12)
- Make sure to use the attached drain hose (2) and the clamp metal (1).
Insert the drain hose (2) into the drain socket up to the point where the socket diameter becomes larger.
Put the clamp metal (1) to the taped hose end and tighten the clamp metal (1) with torque 10.6~13.3lbf • ft (120~150 N·cm).
CAUTION
- Do not tighten the clamp metal (1) with the torque more than the specified value.
The drain hose (2), the socket, or the clamp metal (1) may be damaged. - Wrap the vinyl tape around the end of the clamp metal (1) so that the sealing pad (Large) (6) to be used at the next process may not be damaged with the clamp end or bend the tip of the clamp metal (1) inward as shown. (Refer to Fig. 14)

< Caution to be taken when carrying out upward drain piping (Refer to Fig. 15) >
- The maximum height of the drain riser is 29-9/16 inches (675mm). Since the drain pump mounted on this indoor nit is a high head type, from the characteristic point of view, the higher the drain riser the lower the draining noise.
Therefore, a drain riser of 11-13/16 inches (300mm) or higher is recommended. - For upward drain piping, keep the horizontal piping distance of 11-13/16 inches (300mm) or less between the drain socket root to the drain riser.

CAUTION
- To avoid the attached drain hose (2) getting excessive force, do not bend nor twist it.
It may cause water leakage. - As for drain piping connection, do not connect the drain hose directly to sewage that gives off an ammonia odor.
(The ammonia in the sewage may go through the drain piping and corrode the heat exchanger of the indoor unit.) - In the case of centralized drain piping, carry out piping work according to the procedure shown in the following Fig. 16.

- As for the size of centralized drain piping, select the size that meets the capacity of indoor units to be connected.
(Refer to the technical document) - Positioning the upward drain piping at an angle may cause float switch malfunction and lead to water leakage.
- While replacing with a new indoor unit, use the attached new drain hose (2) and the clamp metal (1).
If an old drain hose or a clamped metal is used, it may cause water leakage.
After piping work is finished, check if drainage flows smoothly.
[When the electric wiring work is finished]
- Gradually pour 1/4 gal of water from the inspection port at the bottom of the drain socket on the left side of the drain socket into the drain pan giving caution to avoid splashing water on the electric components such as drain pump and confirm drainage by operating the indoor unit under cooling mode according to
10. FIELD SETTING. (Refer to Fig. 17)
[When the electric wiring work is not finished]
• The electric wiring works (including grounding) must be carried out by a qualified electrician.
• If a qualified person is not present after the electric wiring work is finished, check the drainage according to the method specified in
[When the electric wiring work is finished].
1. Open the electrical wiring box cover and connect the ground wiring to the ground terminal.
2. Make sure the electrical wiring box cover is closed before turning on the power supply.
• Throughout the whole process, carry out the work giving caution to the wiring around the electrical wiring box so that the connectors may not come off.
3. Gradually pour 1 liter of water from the air outlet on the left side of the drain socket into the drain pan giving caution to avoid splashing water on the electric components such as the drain pump. (Refer to Fig. 17)
4. When the power supply is turned on, the drain pump will operate. Drainage can be checked at the transparent part of the drain socket.
(The drain pump will automatically stop after 10 minutes.)
The drainage of water can be confirmed with water level change in the drain pan through the access window.
• Do not connect the drain piping directly to the sewage that gives off the ammonia odor.
The ammonia in the sewage may go through the drain piping and corrode the heat exchanger of the indoor unit.
• Do not apply external force to the float switch. (It may result in malfunction)
• Do not touch the drain pump.
Touching the drain pump may cause electric shock.
5. Turn off the power supply after checking drainage, and remove the power supply wiring.
6. Attach the electrical wiring box cover as before.
Sweating may occur and result in water leakage.
Therefore, make sure to insulate the following 2 locations (drain piping that laid indoors and drain sockets).
- Use the provided sealing pad (large) (6), and perform the thermal insulation of the clamp metal (1) and drain hose (2) after checking the drainage of water. (Refer to Fig. 18)

DUCTWORK
Pay the utmost attention to the following items and conduct the ductwork.
- Check that the duct is not in excess of the setting range of external static pressure for the unit. (Refer to the technical datasheet for the setting range.)
- Attach a canvas duct each to the air outlet and air inlet so that the vibration of the equipment will not be transmitted to the duct or ceiling.
Use a sound-absorbing material (insulation material) for the lining of the duct and apply vibration insulation rubber to the suspension bolts. - At the time of duct welding, perform the curing of the duct so that the sputter will not come in contact with the drain pan for the filter.
- If the metal duct passes through a metal lath, wire lath, or plate of a wooden structure, separate the duct and wall electrically.
- Be sure to heat insulate the duct for the prevention of dew condensation. (Material: Glass wool or styrene foam; Thickness: 1 inch (25mm))
- Be sure to attach the field supply air filter to the air inlet of the unit or field supply inlet in the air passage on the air suction side. (Be sure to select an air filter with a duct collection efficiency of 50 weight percent.)
- Explain the operation and washing methods of the locally procured components (i.e., the air filter, air inlet grille, and air outlet grille) to the user.
- Locate the air outlet grille on the indoor side for the prevention of drafts in a position where indirect contact with people.
- The air conditioner incorporates a function to adjust the fan to rated speed automatically. (10. FIELD SETTING)
Therefore, do not use booster fans midway in the duct.
Connection method of ducts on air inlet and outlet sides.
- Connect the field supply duct in alignment with the inner side of the flange.
- Connect the flange and unit with the duct flange connection screw (3).
- Wrap aluminum tape around the flange and duct joint in order to prevent air leakage.

CAUTION
Connect the flange and unit with the flange connection screw (3) regardless of whether the duct is connected to the air inlet side.
ELECTRIC WIRING WORK
GENERAL INSTRUCTIONS
- Make certain that all electrical wiring work is carried out by qualified personnel according to the applicable legislation and this installation manual, using a separate dedicated circuit.
Insufficient capacity of the power supply circuit or improper electrical construction may lead to electric shock or fire. - Make sure to install a ground fault circuit interrupter.
Failure to do so may cause electric shock and fire. - Do not turn on the power supply (branch switch, branch overcurrent circuit breaker) until all the works are finished.
- Multiple indoor units are connected to one outdoor unit. Name each indoor unit as A-unit, B-unit ….., and the like. When these indoor units are wired to the outdoor unit, always wire the indoor unit to the terminal indicated with the same symbol on the terminal block. If the wiring and the piping are connected to the different indoor units and operated, it will result in a malfunction.
- Make sure to ground the air conditioner.
Grounding resistance should be according to applicable legislation. - Do not connect the ground wiring to gas or water pipings, lightning conductor or telephone ground wiring.
- Gas piping …………….. Ignition or explosion may occur if the gas leaks.
- Water piping ………….. Hard vinyl tubes are not effective grounds.
- Lightning conductor or telephone ground wiring ……………
Electric potential may rise abnormally if struck by a lightning bolt. - For electric wiring work, refer to also the “WIRING DIAGRAM” attached to the electrical wiring box cover.
- Carry out wiring between the outdoor units, indoor units, and the remote controllers according to the wiring diagram.
- Carry out installation and wiring of the remote controller according to the “installation manual” attached to the remote controller.
- Do not touch the Printed Circuit Board assembly. It may cause malfunction.
WARNING
- Do not use tapped wires, extension cords, or starburst connections, as they may cause overheating, electric shock, or fire.
- Do not use locally purchased electrical parts inside the product. (Do not branch the power for the drain pump, etc., from the terminal block.) Doing so may cause electric shock or fire.
- Do not connect the power wire to the indoor unit. Doing so may cause electric shock or fire.
CAUTION
- When clamping wiring, use the included clamping material to prevent outside pressure from being exerted on the wiring connections and clamp firmly. When doing the wiring, make sure the wiring is neat and does not cause the electrical wiring box cover to stick up, then close the cover firmly.
- Outside the unit, separate the low voltage wiring (remote controller wiring) and high voltage wiring (wiring between units, ground, and another power wiring) at least 2 in. so that they do not pass through the same place together. Proximity may cause electrical interference, malfunctions, and breakage.
WIRING EXAMPLE
For the wiring of outdoor units, refer to the installation manual attached to the outdoor units.
Confirm the system type.
- Multi-system: 2 through 6 (The number of connectable units will vary according to model) indoor units connect to 1 outdoor unit. The indoor unit is controlled by a remote controller connected to each indoor unit.

NOTE![]()
- All transmission wiring except for the remote controller wires is polarized and must match the terminal symbol.
- In case a shielding wire is to be used, connect a shielded portion with the
a remote control terminal block. (Also, connect the ground for the remote control to a grounded metal part.)
SPECIFICATION FOR FIELD WIRE
Table 2
| Wire | Size | Length (ft.) | |
| Wiring between units | Wire size and length must comply with local codes. | — | — |
| Remote controller wiring | Sheathed (2 wire) | AWG 18 – 16 | Max.1640* |
| Wiring to the ground terminal | Wire size and length must comply with local codes. | — | — |
* This will be the total extended length in the system when doing group control.
WIRING CONNECTION METHOD
CAUTION FOR WIRING
- For connection to the terminal block, use ring-type crimp-style terminals with an insulation sleeve or insulate the wirings properly.

- Connect the terminal as shown in Fig. 22.
When installing a single core wire. - Do not carry out a soldering finish when stranded wirings are used. (Otherwise, the loosening of wiring may result in abnormal heat radiation.)
(Abnormal heating may occur if the wirings are not tightened securely.) - Use the required wirings, connect them securely and fix these wirings securely so that external force may not apply to the terminals.
- Use a proper screwdriver for tightening the terminal screws. If an improper screwdriver is used, it may damage the screw head and a proper tightening cannot be carried out.
- If a terminal is over-tightened, it may be damaged. Refer to the table shown below for tightening torque of terminals.
Table 3Tightening torque Terminal block for remote controller (6P) 0.58 -1. (0.79 – 0.98) Terminal block for power supply (4P) 0.87 -1. (1.18 – 1.44) - Do not carry out a soldering finish when stranded wirings are used.
WARNING
When wiring, form the wirings orderly so that the electrical wiring box cover can be securely fastened. If the electrical wiring box cover is not in place, the wirings may come out or be sandwiched by the box and the lid and cause electric shock or fire.
- Remove the electrical wiring box cover.

- Attach the conduit to the conduit mounting plate (12).
• Attach the wire sealing pad (small) (10) to the conduit, the wiring between the indoor and outdoor units, and the ground wiring.
• Loosen the screws (2 points) in part A.
• Insert the hook part of the conduit mounting plate (12) into part B and secure the conduit mounting plate (12) with the screws loosened (2 points).
NOTE
Remove the wiring fixture if you have difficulty performing this step.
- Connect the wiring into the electrical wiring box through the wiring intake besides the electrical wiring box.

- Follow the instructions below and perform wiring in the electrical wiring box.
NOTE
Secure the wiring between the wiring intake and conduit with the clamp (8) so that the wiring will not become loose. - Mount the electrical wiring box cover and wrap the wire sealing pad (small) (10) so that the wiring through-hole will be covered by the sealing pad.
• Seal the clearance around the wirings with putty or insulating material (field supply).
(If insects and small animals get into the indoor unit, short-circuiting may occur inside the electrical wiring box.)
- Securely fix each wiring with the provided clamp material (8).
• See the installation manual supplied with the outdoor unit.
FIELD SETTINGS
CAUTION
Before carrying out field setting, check the items mentioned in
- Items to be checked after the installation work is completed on page 3.
• Check if all the installation and piping works for the air conditioner are completed.
• Check that the outside panel and piping cover of the indoor and outdoor units are closed.
< FIELD SETTINGS >
After turning on the power supply, carry out field setting from the remote controller according to the installation state.
- Carry out setting at 3 places, “Mode No.”, “FIRST CODE No.” and “SECOND CODE No.”.
The settings shown by
in the following tables indicate those when shipped from the factory. - The method of setting procedure and operation is shown in the installation manual attached to the remote controller.
NOTE![]()
- Though the setting of “Mode No.” is carried out as a group, if you intend to carry out individual setting by each indoor unit or confirmation after setting, carry out setting with the Model No. shown in the parenthesis().
- Ask the user to keep the manual attached to the remote controller together with the operation manual.
- Do not carry out settings other than those shown in the table.
- Settings are performed by selecting “Mode No.”, “FIRST CODE No.”, and “SECOND CODE No.”.
SETTINGS FOR EXTERNAL STATIC PRESSURE
- Make settings in either method (a) or method (b).
(a) Make settings with Air volume automatic adjustment function.
“Air volume automatic adjustment” function: The air volume is adjusted to the rated air volume automatically.
CAUTION
Be sure to check that the external static pressure is within the specification range before making settings. The external static pressure will not be automatically adjusted and air volume insufficiency or water leakage may result if the external static pressure is outside the range. (Refer to the technical documentation for the setting range of external static pressure.)
- Check that the electrical wiring and ductwork have been completed.
(If the closing damper is set midway, be sure to check that the damper is opened. Furthermore, check that the air passage on the suction side is provided with an air filter (field supply)). - If the air conditioner has more than one air outlet and air inlet, be sure to make adjustments so that the air volume ratio of each air outlet and the corresponding air inlet will conform to the designed air volume ratio.
In that case, set the operating mode to “Fan”. (In the case of changing the air volume, press the fan speed button on the remote controller and change the current selection to “High”, “Medium”, or “Low”.) - Make settings to adjust the air volume automatically.
After setting the operating mode to “Fan”, set the air conditioner to field setting mode with the operation of the air conditioner stopped. Select Mode No. [21] (11 in the case of batch settings), select FIRST CODE No. “7”, and set the SECOND CODE No. to “03”. Return to the “Basic screen” (“Normal mode” if a wireless remote controller is used), and press the ON/OFF button. The operation lamp is lit, and the indoor unit will go into fan operation for air volume automatic adjustments (at which time, do not adjust the opening of the air outlet or inlet).
The air volume adjustments will automatically terminate approximately 1 to 15 minutes after the indoor unit comes into operation, and the operation lamp will be OFF and the indoor unit will come to a stop.
Table 4
| Model No. | FIRST CODE | No. Setting content | SECOND CODE-No. | ||
| 1 | 2 | 3 | |||
| 11(21) | 7 | Air volume adjustment | OFF | Air volume adjustment completion | Air volume adjustment start |
CAUTION
- If airflow pathway changes, such as duct and air outlet changes, are made after air volume adjustments, be sure to make “Air volume automatic adjustment” again.
- If airflow pathway changes, such as duct and air outlet changes, are made after 11. TRIAL OPERATION AND TESTING or air conditioner relocation, contact your dealer.
(b) Select external static pressure with the remote controller.
Check with Mode No. [21] per indoor unit that the SECOND CODE No. for the above “Air volume adjustment” is set to “01” (OFF). (The SECOND CODE No. is factory set to “01” (OFF).) Change the SECOND CODE No. by referring to the table below according to the external static pressure of the duct to be connected.
Table 5 09/12 class
Table 5 15/18/24 class

SETTING WHEN AN OPTIONAL ACCESSORY IS ATTACHED
- For setting when attaching an optional accessory, refer to the installation manual attached to the optional accessory.
SETTING FILTER SIGN
- A message to inform the air filter cleaning time will be indicated on the remote controller.
- Set the SECOND CODE No. shown in Table 6 according to the amount of dust or pollution in the room.
- The periodical filter cleaning time can be shortened depending on the environment.
Table 6
* Use “No indication” setting when cleaning indication is not necessary such as in the case of periodical cleaning being carried out.
REMOTE CONTROL SETTINGS
<In the case of using a wireless remote controller>
- In the case of using a wireless remote controller, address settings for the wireless remote controller are required. For settings, refer to the installation manual provided with the wireless receiver kit.
TRIAL OPERATION AND TESTING
TRIAL OPERATION AND TESTING
Trial operation should be carried out in either COOL or HEAT operation.
- Measure the supply voltage and make sure that it is within the specified range.
- In COOL operation, select the lowest programmable temperature; in HEAT operation, select the highest programmable temperature.
- Carry out the trial operation following the instructions in the operation manual to ensure that all functions and parts, are working properly.
• To protect the air conditioner, restart operation is disabled for 3 minutes after the system has been turned off. - After trial operation is complete, set the temperature to a normal level (78°F to 82°F (26°C to 28°C) in COOL operation, 68°F to 75°F (20°C to 24°C) in HEAT operation).
• When operating the air conditioner in COOL operation in winter, or HEAT operation in summer, set it to the trial operation mode using the following method.
Refer to For wired remote controller on page 16.
Refer to For wireless remote controller on page 17.
For wired remote controller
- Set to COOL or HEAT operation using the remote controller.
- Press and hold the Cancel button for 4 seconds or longer.
The service settings menu is displayed. - Select Test Operation in the service settings menu, and press the Menu/OK button. The basic screen returns and “Test Operation” is displayed at the bottom.
- Press the On/Off button within 10 seconds, and the test operation starts.
Monitor the operation of the indoor unit for a minimum of 10 minutes. During test operation, the indoor unit will continue to cool/heat regardless of the temperature setpoint and room temperature.
• In the case of the above-mentioned procedures 3) and 4) in reverse order, test operation can start as well. - Press and hold the Cancel button for 4 seconds or longer on the basic screen.
The service settings menu is displayed. - Select Test Operation in the service settings menu, and press the Menu/OK button. Basic screen returns and normal operation is conducted.
• Test operation will stop automatically after 15-30 minutes. To stop the operation, press the On/Off button.
Basic screen

For wireless remote controller
- Press
and select the COOL or HEAT operation. - Press
twice. “Test” is displayed. ON-OFF - Press
within 10 seconds, and the test operation starts.
Monitor the operation of the indoor unit for a minimum of 10 minutes. During test operation, the indoor unit will continue to cool/heat regardless of the temperature setpoint and room temperature.
• In the case of the above-mentioned procedures 1) and 2) in reverse order, test operation can start as well.
• Test operation will stop automatically after 15 – 30 minutes.
To stop the operation, press
.
• Some of the functions cannot be used in the test operation mode.
Precautions
- Refer to “11-2 HOW TO DIAGNOSE FOR MALFUNCTION” if the unit does not operate properly.
HOW TO DIAGNOSE FOR MALFUNCTION
- If the air conditioner does not operate normally after installing the air conditioner, a malfunction shown in the table below may happen.
Wired remote controller display Description No display • Power outage, power voltage error or open-phase
• Incorrect wiring (between indoor and outdoor units)
• Indoor PC-board assembly failure
• Remote controller wiring not connected
• Remote controller failure
• Open fuse or tripped circuit breaker (outdoor unit)“Checking the connection. Please stand by.” * • Indoor PC-board assembly failure
• Wrong wiring (between indoor and outdoor units)* “Checking the connection. Please stand by” will be displayed for up to 90 seconds following the application of power to the indoor unit. This is normal and does not indicate a malfunction.
• Diagnose with the display on the liquid crystal display remote controller.
With the wired remote controller
When the operation stops due to a malfunction, the operation lamp blinks, and the malfunction code is indicated on the liquid crystal display. In such a case, diagnose the fault contents by referring to Error History in the service settings menu. In the case of group control, unit No. is displayed so that the indoor unit with the trouble can be identified.
With the wireless remote controller
(Refer also to the operation manual attached to the wireless remote controller)
When the operation stops due to a malfunction the display on the indoor unit blinks. In such a case, diagnose the fault contents with the error code which can be found by following procedures.
- Press the INSPECTION/TEST OPERATION button, “is displayed, and “
” blinks.
2 Press the TEMPERATURE SETTING button and find unit No. which stopped due to trouble.
Number of beeps
3 short beeps ……………..Perform all the following operations
1 short beep ……………… Perform (3) and (6)
1 long beep ……………….. No trouble - Press the OPERATION MODE SELECTOR button and the upper figure of the error code blinks.
- Continue pressing the TEMPERATURE SETTING button until it makes 2 short beeps and finds the upper code.
- Press the OPERATION MODE SELECTOR button and the lower figure of the error code blinks.
- Continue pressing the TEMPERATURE SETTING button until it makes a long beep and finds the lower code.
• A long beep indicates the error code.
MALFUNCTION CODE
- For places where the malfunction code is written in white, the “
” indication is not displayed. Though the system continues operating, be sure to inspect the system and make repairs as necessary. - Depending on the type of indoor or outdoor unit, the malfunction code may or may not be displayed.
| Malfunction code | Descriptions and measures | Remarks |
| Al | Indoor Printed Circuit Board failure | |
| A3 | Drain level abnormal | |
| A5 | High-pressure control or freeze-up protector | |
| A6 | Indoor fan motor overload, over current, lock | |
| Indoor Printed Circuit Board connection failure | ||
| AS | Indoor unit power supply voltage abnormal | |
| AJ | Capacity setting failure | A capacity setting adapter or capacity data error, or disconnection of the capacity setting adapter, failure to connect the adapter, or the capacity is not set to the data-retention IC. |
| Cl | Transmission error between indoor Printed Circuit Board (Master) and indoor Printed Circuit Board (Slave) | |
| C4 | Indoor heat exchanger liquid pipe temperature sensor malfunction | The abnormal stop is applied depending on the model or condition. |
| C5 | Indoor heat exchanger condenser/evaporator temperature sensor malfunction | The abnormal stop is applied depending on the model or condition. |
| C9 | Suction air thermistor malfunction | The abnormal stop is applied depending on the model or condition. |
| CJ | Remote controller air thermistor malfunction | Remote controller thermo does not function, but body thermo operation is enabled. |
| EO | The action of safety device (Outdoor unit) | |
| El | Outdoor Printed Circuit Board failure (Outdoor unit) | |
| E5 | Compressor motor lock malfunction (Outdoor unit) | |
| E6 | Compressor motor lock by overcurrent (Outdoor unit) | |
| E7 | Outdoor fan motor lock malfunction (Outdoor unit) | |
| Outdoor fan instant overcurrent malfunction (Outdoor unit) | ||
| E8 | Input overcurrent (Outdoor unit) | |
| EA | Cooling/heating switch malfunction (Outdoor unit) | |
| F3 | Discharge piping temperature malfunction (Outdoor unit) | |
| F6 | High-pressure control (in cooling) (Outdoor unit) | |
| F8 | Operation halt due to compressor internal temperature abnormality | |
| HO | Sensor fault for inverter (Outdoor unit) | |
| H6 | Operation halt due to faulty position detection sensor | |
| H8 | CT abnormality (Outdoor unit) | |
| H9 | Outdoor air thermistor system malfunction (Outdoor unit) | The abnormal stop is applied depending on the model or condition. |
| J3 | Discharge piping thermistor system malfunction (Outdoor unit) | The abnormal stop is applied depending on the model or condition. |
| J6 | Outdoor heat exchanger distributor liquid piping thermistor malfunction (Outdoor unit) | The abnormal stop is applied depending on the model or condition. |
| L3 | Reactor thermistor malfunction (Outdoor unit) | |
| L4 | Overheated heat-radiating fin (Outdoor unit) | Inverter cooling failure. |
| L5 | Instantaneous overcurrent (Outdoor unit) | The compressor engines and turbines may be experiencing a ground fault or short circuit. |
| P4 | Heat-radiating fin thermistor malfunction (Outdoor unit) | An abnormal stop is applied depending on the model or condition. |
| UO | Suction piping temperature abnormal (Outdoor unit) | The refrigerant may be insufficient. The abnormal stop is applied depending on the model or condition. |
| U2 | Power voltage malfunction (Outdoor unit) | The inverter open-phase or main circuit condenser may be malfunctioning. The abnormal stop is applied depending on the model or condition. |
| U4 UF | Transmission error (between indoor and outdoor units) | Wiring error between indoor and outdoor unit. Or Indoor and outdoor Printed Circuit Board failure. |
| U5 | Transmission error (between indoor and remote controller units) | Transmission between i the indoor unit and remote controller is not performed properly. |
| U7 | Transmission error of the inverter module | |
| UA | Field setting error | System setting error of the simultaneous on/off multi-split type. |
| UE | Transmission error (between indoor unit and centralized remote controller) | |
| UC | Remote controller address setting error |
CAUTION
After the test operation is completed, check the items mentioned in clause 2 2. Items to be checked at time of delivery on page 4.
If the interior finish work is not completed when the test operation is finished, for protection of the air conditioner, ask the user not to operate the air conditioner until the interior finish work is completed.
If the air conditioner is operated, the inside of the indoor units may be polluted by substances generated from the coating and adhesives used for the interior finish work and cause water splash and leakage.
To the operator carrying out test operation
After test operation is completed, before delivering the air conditioner to the user, confirm that the electrical wiring box cover is closed.
In addition, explain the power supply status (power supply ON/OFF) to the user.
DAIKIN NORTH AMERICA LLC
19001 Kermier Road
Houston, TX 77484
https://www.northamerica-daikin.com/
3P500432-1G
M17B179A (2102) HT
The two-dimensional bar code is a manufacturing code.
00_CV_3P500432-1G.pdf 2021/1/26/09:15 01_EN_3P500432-1G.pdf 2021/2/3/14:11 02_FR_3P500432-1G.pdf 2021/2/3/16:38 03_ES_3P500432-1G.pdf 2021/2/3/14:19



Table 1

• Keep the air outlet covered with a protective sheet to prevent weld spatter and other foreign materials from entering the indoor unit and damaging the resin drain pan.







[When the electric wiring work is not finished]



(Abnormal heating may occur if the wirings are not tightened securely.)
• Attach the wire sealing pad (small) (10) to the conduit, the wiring between the indoor and outdoor units, and the ground wiring.
• Loosen the screws (2 points) in part A.
• Insert the hook part of the conduit mounting plate (12) into part B and secure the conduit mounting plate (12) with the screws loosened (2 points).

NOTE
• See the installation manual supplied with the outdoor unit.



















