
PHZC32C 32 Inch Vent-Free Circulating Firebox Insert
User Guide

PHZC32C 32 Inch Vent-Free Circulating Firebox Insert
USE AND CARE GUIDE
UNVENTED FIREBOX
MODEL #PHZC32C / PHZC36C / PHZC42C / PHZC32F / PHZC36F / PHZC42F
WARNINGS
If the information in this manual is not followed exactly, a fire or explosion may result causing property damage, personal injury or loss of life.Do not store or use gasoline or other flammable vapors and liquids in the vicinity of this or any other appliance.
– WHAT TO DO IF YOU SMELL GAS
- Do not try to light any appliance.
- Do not touch any electrical switch; do not use any phone in your building.
- Immediately call your gas supplier from a neighbor’s phone. Follow the gas supplier’s instructions.
- If you cannot reach your gas supplier, call the fire department.
– Installation and service must be performed by a qualified installer, service agency or the gas supplier.
Carefully review the instructions supplied with the decorative type unvented room heater for the minimum fireplace size requirement.
DO NOT INSTALL AN APPLIANCE IN THIS FIREBOX UNLESS THIS FIREBOX MEETS THE MINIMUM DIMENSIONS REQUIRED FOR THE INSTALLATION.
US
ANS Z21.11.2-2019
For use with a listed gas-fired unvented decorative room heater not to exceed 40,000 BTU/hr. Do Not Build a Wood Fire.
INSTALLER: Leave this manual with the appliance.
CONSUMER: Retain this manual for future reference.
Questions, problems, missing parts? Before returning to your retailer, call our customer service department at 877-447-4768 8:30 a.m. – 4:30 pm CST,
Monday – Friday. or email us at [email protected]
WARNING
This product and the fuels used to operate this product (liquid propane or natural gas), and the products of combustion of such fuels, can expose you to chemicals including benzene, which is known to the State of California to cause cancer and reproductive harm. For more information go to www.p65Warnings.ca.gov
Important Safety Information
WARNING!
- Any change to this heater or its controls can be dangerous .
- Improper installation or use of the heater can cause serious injury or death from fire, burns, explosion or carbon monoxide poisoning .
- Do not allow fans to blow directly into the fireplace . Avoid any drafts that alter burner flame patterns .
- Do not use a blower insert, heat exchanger insert or other accessory, not approved for use with this heater where applicable .
- Due to high temperatures, the firebox should be located out of traffic and away from furniture and draperies .
- Children and adults should be alerted to the hazard of high surface temperature and should stay away to avoid burns or clothing ignition .
- Young children should be carefully supervised when they are in the same room with the firebox .
- Do not place clothing or other flammable material near the fireplace when the firebox is in use .
- Any safety screen or guard removed for servicing, must be replaced prior to operating a heater within the firebox .
- Installation and repair should be done by a qualified service person .
- To prevent malfunction and/or sooting, an unvented gas heater/firebox should be cleaned at least annually by a professional service person. More
frequent cleaning may be required due to excessive lint from carpeting, etc . It is imperative that control compartments, burners and circulating air
passageways be kept clean. - CARBON MONOXIDE POISONING: Early signs of carbon monoxide poisoning are similar to the flu with headaches, dizziness and/or nausea . If you have these signs, obtain fresh air immediately . Have the heater serviced as it may not be operating properly .
- The installation must conform with local codes or, in the absence of local codes, with the National Fuel Gas Code, ANSI Z223 .l/ NFPA54 .
- This unit complies with ANS Z21.11.2-2019 ventless firebox enclosures for gas-fired unvented decorative room heaters .
- Do not install the unvented heater in a bathroom.
- Do not install the unvented heater in a bedroom unless the maximum input rating is equal to or less than 10,000 Btu/hr .
- Correct installation of the ceramic fiber logs, proper location of the heater, and annual cleaning are necessary to avoid potential problems with sooting . Sooting, resulting from improper installation or operation, can settle on surfaces outside the fireplace. See log placement instructions for proper installation .
- Avoid any drafts that alter burner flame patterns . Do not allow fans to blow directly into fireplace. Do not place a blower inside burn area of firebox . Ceiling fans may create drafts that alter burnerflame patterns . Sooting and improper burning will occur.
- CAUTION:Candles, incense, oil lamps, etc . produce combustion byproducts including soot. Vent-free appliances will not filter or clean soot producedby these types of products . In addition, the smoke and/or aromatics (scents) may be re-burnt in the vent-free appliance which can produce odors . It is recommended to minimize the use of candles, incense, etc . while the vent-free appliance is in operation .
- An unvented gas-fired heater uses air (oxygen) from the room in which it is installed. Provisions for adequate combustion and ventilation air must be
provided . See installation guidelines. - Keep room area clear and free from combustible materials, gasoline and other flammable vapors and liquids.
- Unvented gas heaters are a supplemental zone heater. They are not intended to be a primary heating appliance.
- Unvented gas heaters emit moisture into the living area. In most homes of average construction, this does not pose a problem . In houses of extremely tight construction, additional mechanical ventilation is recommended.
- During manufacturing, fabricating and shipping, various components of this appliance are treated with certain oils, films or bonding agents. These chemicals are not harmful but may produce annoying smoke and smells as they are burned off during the initial operation of the appliance; possibly causing headaches, or eye or lung irritation. This is a normal and temporary occurrence. The initial break-in operation should last two to three hours with the burner at the highest setting. Provide maximum ventilation by opening windows or doors to allow odors to dissipate. Any odors remaining after this initial break-in period will be slight and will disappear with continued use.
- Input ratings are shown in BTU per hour and are for elevations up to 2,000 feet. For elevations above 2,000 feet, input ratings should be reduced 4
percent for each 1,000 feet above sea level . Refer to the National Fuel Gas Code. - The appliance and its appliance main gas valve must be disconnected from the gas supply piping system during any pressure testing of that system at test pres-sures in excess of 1/2 psig (3.5 kPa).
- The appliance must be isolated from the gas supply piping system by closing its equipment shutoff valve durin.
- Do not use this room heater if any part has been under water . Immediately call a qualified service technician to inspect the room heater and to replace any part of the control system and any gas control which has been under water .
- Never burn solid fuels in a fireplace where an unvented room heater is installed .
- Always have a fireplace screen in place when the appliance is in operation, and unless other provisions for combustion air are provided, the screen shall have an opening(s) for induction of combustion air .
- Do not fill spaces around the firebox with insulation or other materials . These spaces must be maintained to prevent the firebox from coming in contact with combustible materials . g any pressure testing of the gas supply piping system at test pressures equal to or less than 1/2 psig (3.5 kPa).
WARNING!
Do not attempt to burn solid wood fuels, vented gas log sets, or any other combustible in this unvented firebox . Also, do not install a vent-free gas log set in this firebox if the minimum clearance and height requirements of the log set are too large for the firebox .
Notice: Illustrations shown in this manual reflect “typical” installations with nominal dimensions and are for design and framing reference only . Actual installations may vary due to individual design preferences . However, always maintain minimum clearances to combustible materials and do not violate any specific installation requirements .
We recommend that our gas hearth products be installed and serviced by professionals who are certified in the U .S .
General Installation Information
The PHZC32F, PHZC36F, and PHZC42F models are radiant vent-free fireboxes .
The PHZC32C, PHZC36C, and PHZC42C feature a self contained heat-circulating system .
This installation manual will enable you to obtain a safe, efficient and dependable installation of your vent-free fireplace system .
Do not alter or modify the firebox or its components under any circumstances . Any modification or alteration of the firebox system, including but not limited to the firebox and accessories, may void the warranty, listings and approvals of this system and could result in an unsafe and potentially dangerous installation.
BEFORE YOU START
Carefully inspect the contents for shipping damage. If any parts are missing or damaged, immediately inform the dealer from whom you
purchased the appliance. Do not attempt to install any part of the appliance unless you have all the parts in good condition.
MAKE SURE YOU HAVE RECEIVED ALL PARTS
Check your packing list to verify that all listed parts have been received . You should have the following:
- Vent-Free Gas Firebox
- Canopy/Hood
- Installation and Operating Instructions
- Three (3) sheet metal screws for canopy/hood
- Six (6) standoff brackets, (4) side mounted and (2) top mounted
- Twelve (12) sheet metal screws for standoff brackets
WHAT YOU WILL NEED FOR INSTALLATION TOOLS and BUILDING SUPPLIES
- Phillips screwdriver
- Square
- Framing materials
- Hammer
- Saw and / or saber saw
- Tee joint
- Level
- Pipe wrench
- Measuring tape
- Pliers
- Electric drill and bits
- Fireplace surround materials (noncombustible)
- Caulking material (noncombustible)
- Wall finishing materials
- Piping complying with local codes
- Pipe sealant approved for use with propane/L .P .G . (resistant to sulfur compounds)
Refer to the installation instructions provided with the log sets for items required for log set installation .
In planning the installation for the appliance it is necessary to determine where the unit is to be installed and whether optional accessories are desired. Gas supply piping should also be planned . The following steps represent the normal sequence of installation . Each installation is unique, how-ever, and might require a different sequence.
- Position firebox prior to framing or into prepared framing .
- Field wire main power supply to models with fan kit . (Electrical connections should only be performed by an experienced, licensed / certified tradesman) .
- Plumb gas line . (Gas connections should only be per-formed by an experienced, licensed/certified tradesman) .
- Install vent-free gas log heater per the instructions provided with the vent-free gas log heater .
- Complete finish wall material, surround and optionalhearth extension to your individual taste .
Firebox Dimensions and Firebox Location

| FIREBOX DIMENSIONS | |||
| DIMENSION | P4WCF32C / PHZCF32R | PHZCF36C / PHZCF368 | PHD742C/ W2CF421t |
| WI | 35 7/8′ | 39 7/8″ | 45 7/8″ |
| W2 | 323/16″ | 363/16′ | 423/16′ |
| W3 | 18 1/16 | 22 1/16″ | 28 1/16′ |
| W4 | 20-1/80 | 24-1/80 | 30-1/80 |
| W5 | 20.7/86 | 24-7/88 | 30-7/86 |
Figure 1 – Minimum Hearth Dimensions
LOCATION OF FIREBOX
Carefully select the best location for installation of your vent-free firebox . The following factors should be taken into consideration:
- Clearance to side wall, ceiling, woodwork and windows . See “Clearances/Height Requirements on page 8. Minimum clearances to combustibles must be maintained.
- Location must not be affected by drafts caused by kitchen exhaust fans, ceiling fans, return air registers for forced air furnaces/air conditioners, windows or doors.
- Installation must provide adequate ventilation and combustion air .
- Location should be out of high traffic or windy or drafty areas .
- DO NOT INSTALL WHERE CURTAINS, FURNITURE, CLOTHING OR OTHER FLAMMABLE OBJECTS ARE LESS THAN 42” FROM FRONT OF HEATER.
- Never obstruct the front opening of the vent-free firebox or restrict the flow of combustion and ventilation air .
- Minimize modifications to existing construction . Refer to Figure 2 below for location suggestions .
- Do not install in the vicinity where gasoline or other flammable liquids may be stored . The vent-free firebox must be kept clear and free from these combustible materials .

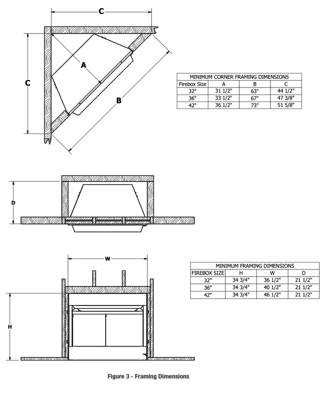
Framing Dimensions

Minimum Clearances
Ensure that minimum clearances shown in Figures 4 through 8 are maintained . Left and right clearances are determined when facing the front of the firebox .
Follow these instructions carefully to ensure safe installation.
Failure to follow these requirements may create a fire hazard.
- Sidewall clearances:
The clearance from the outside of the appliance to any combustible wall should not be less than 9” . Figure 4 and Figure 6 - Ceiling clearance:
The ceiling must be at least 42” from the top of the firebox opening. Figure 4 - Back wall clearance:
The appliance must have 1/4” MIN . clearance to a combustible back wall. - Mantel clearances:
The canopy/hood supplied with the unit must be installed . If a combustible mantel is installed, it must meet the clearance requirements as shown in Figure 5

Minimum Clearances and Framing
5 . Floor clearance: This inner chamber firebox floor must be installed at least 5” above any combustible flooring material, such as carpeting or asphalt tile, which is closer than 14” to the base of the firebox . Figure 7
OR
The inner chamber firebox floor may be installed nearer to the floor if a minimum of 14” of noncombustible material such as slate or marble is installed between the base of the firebox and the combustible flooring . Figure 8 
Fig. – Minimum Noncombustible Hearth dimension for firebox to sit at Floor Level Figure 8 – Minimum clearance above Combustible Flooring with
Noncombustible Material Installed at Base of Fireplace
Consult your local Building codes for information on insulating the “Chase” enclosure . Proper insulation will reduce cold air drafts when the Fireplace is not in operation.
FIREBOX FRAMING
Firebox framing can be built before or after the appliance is set in place . Construct firebox framing following Figure 3 for your specific installation requirements . See Figure 3 on Page 7 for firebox dimensions . The framing headers may rest on the top of the firebox .The firebox may be installed directly on a combustible floor or raised on a platform of an appropriate height . When the firebox is installed directly on carpeting, tile, or other combustible material, other than wood flooring, the firebox shall be installed on a metal or wood panel extending the full width and depth of the enclosure .
The classification “noncombustible material” includes, but is not limited to: stone, brick, and mortar . Noncombustibles are safe to overlay the black-painted metal face, including radiant plates, and do not pose a fire hazard . Any noncombustible finish material must not extend past or interfere with the fireplace opening.
The classification “combustible material” includes, but is not limited to: plywood, drywall, and particle board . Combustible materials may contact the sides, bottom, or back of the firebox . Do not overlay the black painted face with combustible materials.
WARNING!
Do not fill spaces around firebox with insulation or other materials . This could cause a fire.
WARNING!
The fireplace must be installed giving full consideration to the clearance and height requirements identified in this manual.
Fireplace and Canopy/Hood Installation

Standoff Installation Instructions:
- Position the Standoff Bracket as shown and start both mounting screws.
Push the Standoff Bracket forward and tighten both mounting screws to position the Firebox for 1/2” Drywall.
Pull the Standoff Bracket backward and tighten both mounting screws to position the Firebox for 9/16” Drywall. Repeat process for all four Standoff Brackets. - Slide the firebox into prepared framing or position firebox in its final position and frame later .
- Level the firebox by checking the top edge of the firebox . Shim if necessary.
- Anchor firebox to the side framing members using 8d nails or other suitable fasteners. Figure 9.
- The canopy/hood must be installed for safe operation of theheater.
INSTALLING CANOPY/HOOD
A canopy/hood is furnished with each firebox and MUST be installed for safe operation . Figure 11
- Align the canopy/hood with the holes in the top frame .
- Insert all 3 screws slightly but do not tighten .
- Push the canopy/hood toward Firebox to insure there is no gap between the canopy/hood and Firebox as shown in Figure 11a.
- Then tighten all screws securely.
WARNING!
Close fireplace screen panel before operating a decorative type unvented room heater .
WARNING!
The firebox canopy must not be modified or replaced with a canopy that may be provided with the unvented decorative room heater.
Gas Line Installation
WARNING!
Plumbing connections should only be performed by a qualified, licensed plumber . Main gas supply must be off when plumbing gas line to fireplace or performing service .
Consult all local codes. All gas piping must be installed to comply with local codes, or in the absence of local codes, with the latest edition of the National Fuel Gas Code ANSI Z223 .1/NFPA54.
The 1/2” gas line may enter either from the left side or right side of the firebox . Gas access holes are provided on both sides of the firebox.
A listed manual shutoff valve must be installed upstream of the appliance . A union tee and plugged 1/8” NPT pressure tapping point should be installed upstream of the appliance.
IMPORTANT: Install main gas valve (equipment shutoff valve) in an accessible location. The main gas valve is for turning on or shutting off the gas to the fireplace.
A sediment trap may be upstream of the heater to prevent moisture and contaminants from passing through trap to the heater controls and burners . Failure to do so could prevent the heater from operating reliably. Consult applicable codes. An external regulator must be used on all propane/L .P .G . heaters, in addition to the regulator fitted to the heater, to reduce the supply tank pressure to 13” w .c . (maximum).
Any copper tubing used to supply propane / L .P .G . from the tank must be internally tinned.
NOTE:
When connecting propane / L.P.G. vent-free room heaters, you must use pipe sealant resistant to propane / L.P.G.
IMPORTANT: Hold heater regulator with a wrench to prevent movement when connecting to inlet piping.
Check gas type: The gas supply must be the same as stated on the heater’s rating plate. If the gas supply is different, DO NOT INSTALL THE HEATER. Contact your dealer for the correct model
WARNING!
Connecting directly to an unregulated propane / L .P .G . tank can cause an explosion.
WARNING!
Do no connect directly to natural gas 1/2 PSI or 2 PSI systems.
Always make sure natural gas pressure is regulated 10 .5 w .c . (maximum before operating the unit).
After completing connection, test all gas joints from the gas meter to the gas heater regulator for leaks. Using soap and water solution or a gas sniffer. DO NOT USE AN OPEN FLAME.
Combustion Air
COMBUSTION AIR
- Locate combustion air assembly at an exterior location which is not likely to be accidentally blocked in any manner . Locate assembly a min. of 12” above the snow line to prevent blockage by snow accumulation.
- Never mount the combustion air inlet assembly in a garage or storage area where combustible fumes such as gasoline might be drawn into the fireplace.
- Combustion air can be drawn from the crawl space under a house when an adequate supply of air is provided by open ventilation.
- CAUTION: Do not take combustion air from attic space or garage space.
- Locate air supply inlet at least 3’ away from any appliance vent terminal.
- Avoid extremely long runs and numerous turns in the duct leading from the fireplace to the combustion air assembly.
These conditions increase the resistance to the free flow of air through the duct.
The use of outside air for combustion is optional unless required by building codes . It is only necessary to supply outside combustion air to one side of the fireplace . Use the open air kit.
OUTSIDE AIR KIT ASSEMBLY (OAK100)
- Place the insulation gasket between the open air kit starting collar and fireplace wall .
- Place the starting collar (4”) on the side of fireplace . Fasten it in place with the four sheet metal screws provided .
NOTE: When the air starting collar is securely attached, it will form a seal against the fireplace wall. - Attach outside duct to starting collar with duct clamp or screws.
- Cut a 6-inch diameter opening for the open air kit in the outside wall covering where the outside vent is to be located.
- Select and cut a piece of duct long enough to attach to the fireplace and stick out at least 3” beyond the face of the wall to which the open air kit inlet air vent will be attached. Cut duct with a standard pocket knife.
WARNING!
Do not use a combustible duct . Always use UL Listed Class 0 or 1duct material . - If the duct is the insulated type, push the insulation back from one end of the duct approximately 2”.
- Slip the exposed end of the duct over the starting collar on the fireplace.
- Using the sheet metal screws provided, secure the duct end to the collar attached to the fireplace.
- Nail or screw the combustion air assembly to the surface of the wall.
Notice: If you do not install an outside air kit be sure to keep the lever in the “closed” position to avoid cold air drafts.
Optional Equipment
OPTIONAL BLOWER (ZCB100)
If you are installing the forced air kit on PHZC32C, PHZC36C, and PHZC42C models, see the installation instructions provided with the kit for electrical wiring requirements, or the blower installation section. The firebox must be connected to main power supply at time of firebox installation. The blower should be installed prior to the installation of the vent-free heater but can be installed after installation if the electrical connections have already been installed. The electrical connections must be made before the firebox is framed and enclosed in the finished walls.
WARNING!
Electrical connections should only be performed by a qualified, licensed electrician, main power must be off when connecting to main electrical power supply or performing
service.
The blower when installed, must be electrically grounded in accordance with local codes or in the absence of local codes, with the National Electrical Code ANSI/NFPA 70 .
IF ANY ORIGINAL WIRING SUPPLIED WITH THIS HEATER MUST BE REPLACED, IT MUST BE TYPE AWG 105C WIRE OR ITS EQUIVALENT EXCEPT AS INDICATED.
SI SE DEBE REEMPLAZAR UN CABLEADO ORIGINAL PROVIEIDO CON EL CALENTADOR, DEBE SER CABLE TIPO AWG 105C O SU EQUIVALENTE, EXCEPTO SI SE INDICA DE OTRA MANERA. DRAWN DanDowning 2/14/2018
WARNING!
Never use an extension cord to power the blower .
Replacement Parts
PHZC32C / PHZC36C / PHZC42C

FIREBOX COMPONENTS
| Ref. | Description | Qty | PHZC32C | PHZC36C | PHZC42C |
| 1 | Canopy/Hood | 1 | ZCF-7018 | ZCF-5018 | ZCF-3018 |
| 2 | Center Panel | 1 | ZCF-7036 | ZCF-5036 | ZCF-3036 |
| 3 | LH Panel | 1 | ZCF-5038 | ZCF-5038 | ZCF-5038 |
| 4 | RH Panel | 1 | ZCF-5037 | ZCF-5037 | ZCF-5037 |
| 5 | Curtain Screen Rod | 1 | ZCF-5016 | ZCF-5017 | ZCF-3017 |
| 6 | Curtain Screen | 2 | ZCF-5035 | ZCF-5035 | ZCF-3035 |
| 7 | Top Grill Assembly | 1 | ZCF-A7019 | ZCF-A5019 | ZCF-A3019 |
| 8 | Bottom Grill Assembly | 1 | ZCF-A7002 | ZCF-A5012 | ZCF-A5012 |
OPTIONAL FIREBOX COMPONENTS (Sold separately)
| Ref. | Description | Qty. | PHZC32F | PHZC36F | PHZC42F |
| 9 | Outside Air Kit | 1 | OAK100 | OAK100 | OAK100 |
| 10 | Optional Blower | 1 | ZCB100 | ZCB100 | ZCB100 |
Replacement parts available at GHP Group Inc . Call Customer Service Dept . at 877-447-4768 or email us at [email protected].
Replacement Parts
PHZC32F / PHZC36F / PHZC42F
FIREBOX COMPONENTS
| Ref. | Description | Qty. | PHZC32F | PHZC36F | PHZC42F |
| 1 | Canopy/Hood | 1 | ZCF-7018 | ZCF-5018 | ZCF-3018 |
| 2 | Curtain Screen Rod | 1 | ZCF-5016 | ZCF-5017 | ZCF-3017 |
| 3 | Curtain Screen | 2 | ZCF-5035 | ZCF-5035 | ZCF-3035 |
OPTIONAL FIREBOX COMPONENTS (Sold separately)
| Ref. | Description | Qty. | PHZC32F | PHZC36F | PHZC42F |
| 4 | Outside Air Kit | 1 | OAK100 | OAK100 | OAK100 |
| 5 | Brick Panel Sets | 1 | ZRP320 | ZRP360 | ZRP420 |
| 1-May | Center Panel | 1 | ZCF-7036 | ZCF-5036 | ZCF-3036 |
| 2-May | Left Panel | 1 | ZCF-5038 | ZCF-5038 | ZCF-5038 |
| 3-May | Right Panel | 1 | ZCF-5037 | ZCF-5037 | ZCF-5037 |
Replacement parts available at GHP Group Inc . Call Customer Service Dept . at 877-447-4768 or email us at [email protected] .
Warranty
1-YEAR WARRANTY LIMITED WARRANTY:
GHP Group Inc . warrants this product to be free from defects in materials and components for ONE (1) year from the date of first purchase, provided that the product has been properly installed, operated and maintained in accordance with all applicable instructions, to make a claim under this warranty, the Bill of Sale or cancelled check must be presented .
RESPONSIBILITY OF OWNER:
This warranty is extended only to the original retail purchaser . This warranty covers the cost of part(s) required to restore this heater to proper operating condition. Warranty part(s) MUST be obtained through GHP Group, Inc . who will provide original factory replacement parts. Failure to use original factory replacement parts voids this warranty . The heater MUST be installed by a qualified installer in accordance with all local codes and instructions furnished with the unit .
WHAT IS NOT COVERED
This warranty does not apply to parts that are not in original condition because of normal wear and tear or parts that fail or become damaged as a result of misuse, accidents, lack of proper maintenance or defects caused by improper installation. Travel, diagnostic cost, labor, transportation and any and all such other costs related to repairing a defective heater will be the responsibility of the owner.
TO THE FULL EXTENT ALLOWED BY THE LAW OF THE JURISDICTION THAT GOVERNS THE SALE OF THE PRODUCT, THIS EXPRESS WARRANTY
EXCLUDES ANY AND ALL OTHER EXPRESSED WARRANTIES AND LIMITS THE DURATION OF ANY AND ALL IMPLIED WARRANTIES. INCLUDING
WARRANTIES OF MERCHANTABILITY AND FITNESS FOR A PARTICULAR PURPOSE TO ONE (1) YEAR ON ALL COMPONENTS FROM THE DATE OF
FIRST PURCHASE. GHP GROUP INC. LIABILITY IS HEREBY LIMITED TO THE PURCHASE PRICE OF THE PRODUCT AND GHP GROUP, INC . SHALL NOT BE LIABLE FOR ANY OTHER DAMAGES WHATSOEVER INCLUDING INDIRECT. INCIDENTAL OR CONSEQUENTIAL DAMAGES.
Some states do not allow a limitation on how long an implied warranty lasts or an exclusion or limitation of accidental or consequential damages, the above limitation on implied warranties, or exclusion or limitation on damages may not apply to you. This warranty gives you specific legal right, and you may also have other rights that vary from state to state.
1-877-447-4768
www.ghpgroupinc.com
6440 W . Howard Street, Niles, Illinois 60714
The ceiling must be at least 42” from the top of the firebox opening. Figure 4


















