
56165 Residual Current Protection Relay
Instruction Manual
56165 Residual Current Protection Relay
Protection or monitoring relay

Safety instructions
PLEASE NOTE
- Electrical equipment should be installed, operated, serviced, and maintained only by qualified personnel.
- No responsibility is assumed by Schneider Electric for any consequences arising out of the use of this material.
![]()
DANGER
HAZARD OF ELECTRIC SHOCK, EXPLOSION, OR ARC FLASH
- This device is designed to protect personnel and equipment.
- This equipment must only be installed and serviced by qualified electrical personnel.
- Turn off all power supplying this equipment before working on or inside equipment. Lock the switchgear in the isolated position.
- Always use a properly rated voltage sensing device to confirm power is off.
- Put back all devices, doors, and covers before turning on power to this device.
Failure to follow these instructions will result in death or serious injury.
Unpacking

The product’s manufacture date is coded PP-YYYY-Www-D, where:
- PP: plant code
- YYYY: year of manufacture
- Www: week of manufacture
- D: weekday of manufacture (Monday = 1)
Eg: 7Q-2014-W19-3 = product manufactured at plant 7Q on Wednesday 7 May 2014.
Description

A Power supply terminals
B Green power LED
C Red fault LED
D Set point and time delay settings
E Test and Reset buttons
F Sealing cover
Installation


Connection
Relay supply

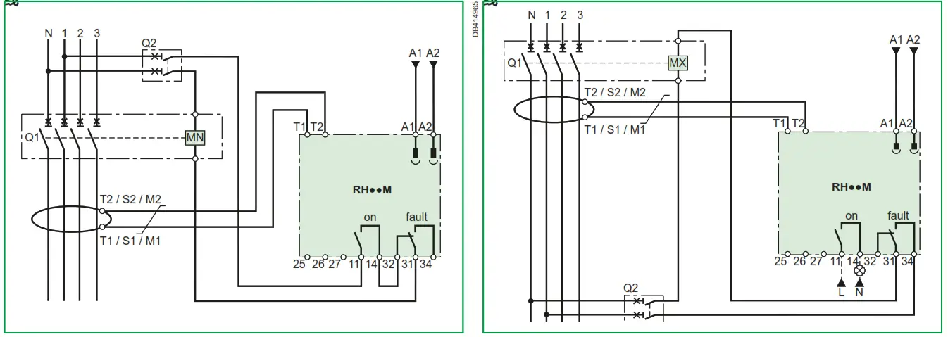
Cabling with MN

| All the diagrams are shown with the circuits “de-energised”, all the devices “open” and the relays in the “released” position. | |
| MIN | Undervoltage release |
| MX | Shunt release |
| Q1 | Main circuit protection circuit-breaker |
| Q2 | DPN circuit breaker |
| Q3 | 1A circuit-breaker C or D curve |
| T | Class 2 insulation transformer compulsory for VA, A2 24 V AC |
| T1 -T2, S1-S2, M1 -M2 | A or OA type toroid or rectangular sensor (if lAn 500 mA) |
| Z | The DC supply must be galvanically insulated from the network |
| RH••M Al -A2 | Auxiliary supply |
| T1-T2 | Sensor |
| 11-14 | “Supply voltage presence” relay |
| 26-25 | Device Test |
| 27-25 | “Fault” status Reset |
| 31-32-34 | “Fault” changeover relay |
Terminal capacity
| Cable max. length | ||||||
| RH10M, RH21M, RH86M, RH99M | ||||||
| 11, 14 | – | 0.2…4 mm² AWG 24-12 | 0.2. 2.5 mm² |AWG 24-14 | 8 mm (0.31 in) | 0.6 N.m. (5.3 Ib-in) | |
| 31,32,34 | – | |||||
| A1, A2 | – | 0.2. 2.5 mm² AWG 24-14 | 0.25. 2.5 mm² AWG 24-14 | 7 mm (0.27 in) | 0.6 N.m. (5.3 Ib-in) | |
| T1, T2 (1) | – | 0.14. 1.5 mm² AWG 26-16 | 0.14…1 mm² AWG 26-18 | 0.2. 0.5 mm² AWG 24-20 | 5 mm (0.19 in)
| 0.25 N.m. (2.2 Ib-in) |
| 25, 26, 27 (2) | < 10 m (30 ft) | |||||
| Rectangular sensors | ||||||
| L1: 280 x 115 L2: 470 x 160 | 10 m (30 ft) | 0.5. 2.5 mm² AWG 20-14 | 8…9 mm (0.33 in) | – | ||
| Toroids | ||||||
| TA30, PA50, IA80, MA120, SA200, GA300, POA, GOA TOA80, TOA120 | 18 m (60 ft) | 0.22 mm2 (AWG 22) (3) | 6…7 mm (0.25 in) | – | ||
| 60 m (197 ft) | 0.75 mm2 (AWG 18) (3) | |||||
| 80 m (262 ft) | 1 mm2 (AWG 18) (3) | |||||
| 100 m (328 ft) | 1.5 mm2 (AWG 16) (3) | |||||
- Twisted pair
- 3 twisted wires
- Wire cross-section for a resistance Rmax. = 3 Ω
Test cabling and remote Reset
Use pushbuttons with “low level” contacts adapted to load of 1 mA at 4 V.

Compatibility of the various sensors
| Toroids | VigiPacT RH●●M |
| TA30, PA50, IA80, MA120, SA200, GA300, POA, GOA , TOA80, TOA120 | OK |
| Rectangular sensors | VigiPacT RH●●M |
| L1: 280 x 115 | I∆n u 0.3 A |
| L2: 470 x 160 |
Setting

If I∆n is set to 30 mA tripping is instantaneous (∆t = 0s).
Test with tripping
PLEASE NOTE
A test with tripping is compulsory on installation startup.

OFF
ON
- RH99M signalling: resetting is automatic
Test without tripping
PLEASE NOTE
A test with tripping is compulsory on installation startup.

OFF
ON
- RH99M signalling: resetting is automatic
Commissioning
| Dielectric test | Sealing |
![]() | |
NOTICE
HAZARD OF PRODUCT DAMAGE
The power supply A1-A2 must be disconnected before dielectric test. Failure to follow these instructions can result in equipment damage.
Status LEDs
| On | Fault | Meaning |
| Normal operation | ||
| Fault current detected | ||
| Faulty sensor-relay link | ||
| No power or device not working | ||
| Anomaly detected |
| OFF | ON | flashing |
Characteristics
- Type of network to monitor: < 1000 V AC; 50 Hz, 60 Hz, 400 Hz
- Overvoltage category: 4
- Storage temperature: -55…+85° C(-67 … +185° F)
- Operating temperature: -35…+70° C (-31 … +158° F)
- Measurement accuracy: 7 %
- Maximum consumption: 4 VA
- Degree of protection: IP 20

Schneider Electric Industries SAS
35 rue Joseph Monier
CS 30323
F – 92506 Rueil Malmaison Cedex
www.se.com
Schneider Electric Limited
Stafford Park 5
Telford, TF3 3BL
United Kingdom
www.se.com/uk
51005191AA-09
© 2022 Schneider Electric. All rights reserved.
Printed on recycled paper.



















