EATON EASY-Ec4-UC-12RC1 Nano Programmable Logic

Dimensions
EASY-E4-…-12…C1(P), EASY-E4-…-12…CX1(P) + ZB4-101-GF1 Mounting position 45 mm (1.77″)

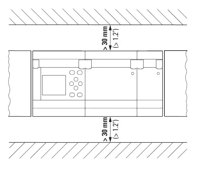
Mounting position

![EATON EASY-E4-UC-12RC1 Nano Programmable Logic fig 4]](https://static-data1.manualsee.com/1/img/9/1969172/2022/02/EATON-EASY-E4-UC-12RC1-Nano-Programmable-Logic-fig-4.jpg)
Mounting
IEC/EN 60715

Screw fixing
Accessories ZB4-101-GF1
Dismounting

Interface
MicroSD MEMORY-SDU-A1
AC/DC/UC OFF!



Ethernet




Power supply



Standard connection
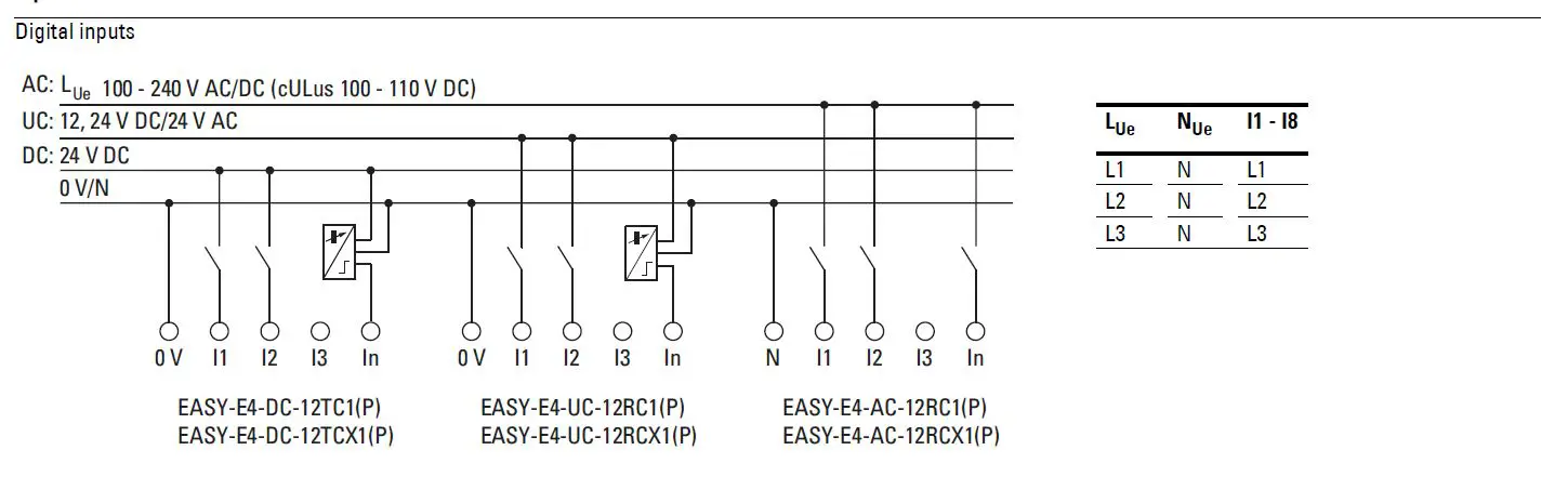
Inputs

Digital input counter

Analog inputs

Outputs
Relay outputs

Transistor outputs

HAZARDOUS LOCATION – CSA (Canadian Standards Association) Certification
SUITABLE FOR USE IN CLASS 1, DIVISION 2, GROUPS A, B, C AND D HAZARDOUS LOCATIONS, OR NON-HAZARDOUS LOCATIONS ONLY.
WARNING: EXPLOSION HAZARD – DO NOT CONNECT OR DISCONNECT EQUIPMENT UNLESS POWER HAS BEEN SWITCHED OFF OR THE AREA IS KNOWN TO BE
NON-HAZARDOUS.




















