
OUTDOOR REFRIGERATOR
RF24RE4, RF24LE4
USER/INSTALLATION GUIDE
US CA
Important Safety Instructions
Warnings and safety instructions appearing in this guide are not meant to cover all possible conditions and situations that may occur. Common sense, caution, and care must be exercised when installing, maintaining, or operating this appliance.
Recognize Safety Symbols, Words, and Labels.
WARNING
WARNING-You can be killed or seriously injured if you do not follow these instructions.
CAUTION
CAUTION-Hazards or unsafe practices which could result in personal injury or property/product damage.
NOTE
NOTE-Important information to help assure a problem free installation and operation.
State of California Proposition 65 Warnings:
WARNING: This product contains one or more chemicals known to the State of California to cause cancer.
WARNING: This product contains one or more chemicals known to the State of California to cause birth defects or other reproductive harm.
WARNING
WARNING -This unit contains R600a (Isobutane) which is a flammable hydrocarbon. It is safe for regular use. Do not use sharp objects to expedite defrosting. Do not damage refrigerant circuit.
UNPACKING YOUR APPLIANCE
WARNING
EXCESSIVE WEIGHT HAZARD
Use two or more people to move product. Failure to do so can result in personal injury.
Remove Interior Packaging
Your appliance has been packed for shipment with all parts that could be damaged by movement securely fastened. Remove internal packing materials and any tape holding internal components in place. The owners manual is shipped inside the product in a plastic bag along with the warranty registration card, and other accessory items.
Important
Keep your carton and packaging until your appliance has been thoroughly inspected and found to be in good condition. If there is damage, the packaging will be needed as proof of damage in transit. Afterwards please dispose of all items responsibly.
CAUTION
Dispose of the plastic bags which can be a suffocation hazard.
Note to Customer
This merchandise was carefully packed and thoroughly inspected before leaving our plant. Responsibility for its safe delivery was assumed by the retailer upon acceptance of the shipment. Claims for loss or damage sustained in transit must be made to the retailer.
NOTE
DO NOT RETURN DAMAGED MERCHANDISE TO THE MANUFACTURER – FILE THE CLAIM WITH THE RETAILER.
CAUTION
If the appliance was shipped, handled, or stored in other than an upright position for any period of time, allow the appliance to sit upright for a period of at least 24 hours before plugging in. This will assure oil returns to the compressor. Plugging the appliance in immediately may cause damage to internal parts.
A Message To Our Customers
Thank you for selecting this DCS Outdoor Refrigerator. Because of this appliances’ unique features we have developed this Use and Care and Installation Guide. It contains valuable information on how to properly install, operate and maintain your new appliance for years of safe and enjoyable operation.
For your convenience, product questions can be answered by a DCS Customer Care Representative at
1-888-936-7872, or email: [email protected]
NOTE: Please write the Model, Code, and Serial Number on this page for references (the serial plate is located on the upper left side, inner wall).
MODEL NUMBER:
CODE:
SERIAL NUMBER:
NOTE: Inspect the product to verify that there is no shipping damage. If any damage is detected, call the shipper and initiate a damage claim. DCS by Fisher & Paykel is not responsible for shipping damage.
DO NOT discard any packing material (box, pallet, straps) until the unit has been inspected.
CAUTION
Help Prevent Tragedies
Child entrapment and suffocation are not problems of the past. Junked or abandoned refrigerators are still dangerous – even if they sit out for “just a few hours”.
If you are getting rid of your old refrigerator, please follow the instructions below to help prevent accidents.
Before you throw away your old refrigerator or freezer:
- Take off the doors or remove the drawers.
- Leave the shelves in place so children may not easily climb inside.
INSTALLING YOUR APPLIANCE
Select Location
The proper location will ensure peak performance of your appliance. We recommend a location where the unit will be out of direct sunlight and away from heat sources. To ensure your product performs to specifications, the recommended installation location temperature range is from 50 to 100°F (10 to 38°C).
Cabinet Clearance
Ventilation is required from the bottom front of the appliance. Keep this area open and clear of any obstructions. Adjacent cabinets and counter top can be installed around the appliance as long as the front grille remains unobstructed.
CAUTION
Front Grille Do not obstruct the front grille. The openings within the front grille allow air to flow through the condenser heat exchanger. Restrictions to this air flow will result in increased energy usage and loss of cooling capacity. For this reason it is important this area not be obstructed and the grille openings kept clean (See Figure 1). The use of a custom made grille is not recommended as it may restrict air flow.

Leveling Legs
Adjustable legs at the front and rear corners of the appliance should be set so the unit is firmly positioned on the floor and level from side to side and front to back. The overall height of your appliance may be adjusted between the minimum, 33 3 ⁄4″ (85.7 cm), by turning the leveling leg in (CW ↷) and the maximum, 34 3 ⁄4″ (88.3 cm) by turning the leveling leg out (CCW ↶).
To adjust the leveling legs, place the appliance on a solid surface and protect the floor beneath the legs to avoid scratching the floor. With the assistance of another person, lean the appliance back to access the front leveling legs. Raise or lower the legs to the required dimension by turning the legs. Repeat this process for the rear by tilting the appliance forward using caution. On a level surface check the appliance for levelness and adjust accordingly.
The front grille screws may be loosened and the grille adjusted to the desired height. When adjustment is complete tighten the two front grille screws. (See Figure2).


WARNING
Electrical Shock Hazard
- Do not use an extension cord with this appliance. They can be hazardous and can degrade product performance.
- This appliance should not, under any circumstances, be installed to an un-grounded electrical supply.
- Do not remove the grounding prong from the power cord. (See Figure 3).
- Do not use an adapter. (See Figure 4).
- Do not splash or spray water from a hose on the appliance. Doing so may cause an electrical shock, which may result in severe injury or death.
Electrical Connection
A grounded 115 volt, 15 amp dedicated circuit is required.
This product is factory equipped with a power supply cord that has a three-pronged, grounded plug. It must be plugged into a mating grounding type receptacle in accordance with the National Electrical Code and applicable local codes and ordinances (see Figure 5). If the circuit does not have a grounding type receptacle, it is the responsibility and obligation of the customer to provide the proper power supply. The third ground prong should not, under any circumstances, be cut or removed.
NOTE
Ground Fault Circuit Interrupters (GFCI) are prone to nuisance tripping which will cause the appliance to shut down. GFCI’s are generally not used on circuits with power equipment that must run unattended for long periods of time, unless required to meet local building codes and ordinances.
INSTALLING THE ANTI TIP DEVICE
FOR FREESTANDING INSTALLATIONS
WARNING
• ALL APPLIANCES CAN TIP RESULTING IN INJURY.
• INSTALL THE ANTI-TIP BRACKET PACKED WITH THE APPLIANCE.
• FOLLOW THE INSTRUCTIONS BELOW
Anti-Tip Device
WARNING
If your refrigerator is not located under a counter top (free standing), you must use an anti-tip device installed as per these instructions. If the refrigerator is removed from its location for any reason, make sure that the device is properly engaged with the anti-tip bracket when you push the refrigerator back into the original location. If the device is not properly engaged, there is a risk of the refrigerator tipping over, with the potential for property damage or personal injury.
NOTE
If installing on a concrete floor, concrete fasteners are required, (not included with the anti-tip kit).
CAUTION
Any finished flooring should be protected with appropriate material to avoid damage when moving the unit.
Floor Mount Installation
The anti-tip bracket is to be located on the floor in the left or right rear corner of the refrigerator as shown in Figure 6.

Step by step instructions for locating the position of the bracket:
- Decide where you want to place the refrigerator. Slide it into place, being careful not to damage the floor, leaving 1″ (2.5 cm) of clearance from the rear wall to allow room for the anti-tip bracket.
- Raise the rear leveling legs approximately ¼” (6 mm) to allow engagement with the anti-tip bracket. Level the unit by adjusting all the leveling legs as required. Turning the leveling leg counterclockwise will raise the unit and clockwise will lower the unit.
- Make sure the refrigerator is in the desired location, then mark on the floor the rear and side corner of the cabinet where the anti-tip bracket will be installed. If the installation does not allow marking the rear corner of the cabinet, then make temporary lines on the floor marking the front corner of the cabinet, excluding the door. Slide the refrigerator out of the way. From the temporary line extend the sidewall line back 21 ½” (54.6 cm) as shown in Figure 7.
- Align the anti-tip bracket to the marks on the floor so the side of the bracket lines up with the side of the cabinet mark, and the “V” notches on the anti-tip bracket line up with the end of the 21 ½” (54.6 cm) line (Rear of cabinet line).
- Fasten the anti-tip bracket to the floor using the supplied screw. (See Figure 7). 6) Slide the cabinet back into position, making sure the rear cabinet leveling leg slides under the anti-tip bracket engaging the slot.
NOTE
When the floor mounted anti-tip bracket is used the minimum adjusted height of the cabinet is increased by 3/8″ (9 mm).

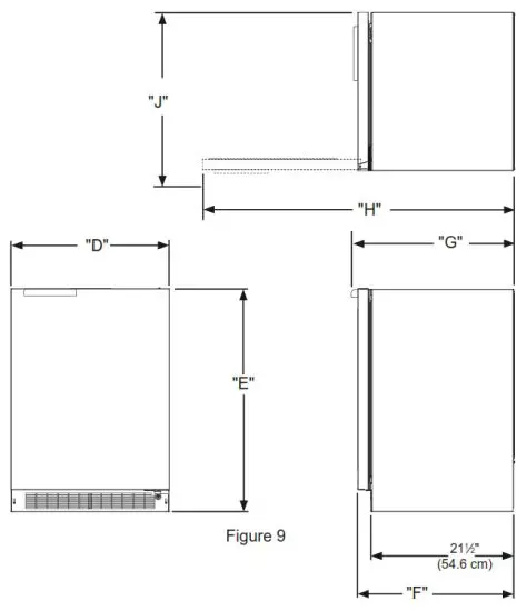
PRODUCT DIMENSIONS
| ROUGH-IN OPENING DIMENSIONS | CABINET DIMENSIONS | ||||||||
MODEL | “A” | “B” | “C” | “D” | “E” | “F” | “G” | “H” | “J” |
| RF24RE RF24LE | 24″ (61 cm) 241/2″ (62 cm ) (with optional DCS side trim kit) | **34″ to 35″ (86.4 to 88.9 cm) | * | 237/8 ” (60.7 cm) | 333/4″ to 343/4″ (85.7 to 88.3 cm) | 2323/32” (60.2 cm) | 26 7/32” (66.6 cm) | 4613/32” (117.9 cm) | 261/4″ (66.7 cm) |

If necessary to gain clearance inside the rough-in opening a hole can be cut through the adjacent cabinet and the power cord routed through this hole to a power outlet. Another way to increase the available opening depth is to recess the power outlet into the rear wall to gain the thickness of the power cord plug.
* Depth dimension of rough-in opening may vary depending on each individual installation. To recess entire door “F” dimension plus 1″ (2.5 cm) for thickness of power cord plug is required.
** Minimum rough-in opening required is to be larger than the adjusted height of the cabinet.
*** A grounded 15 amp dedicated circuit is required. Follow all local building codes when installing electrical and appliance.
| PRODUCT DATA | ||
| MODEL | ELECTRICAL REQUIREMENTS *** | PRODUCT WEIGHT |
| RF24RE RF24LE | 115V/60Hz/15A | 140 lbs (63.6 kg) |

WARNING
Floor mount Anti-tip Bracket must be installed for freestanding applications. Not required for built in applications.
USING YOUR ELECTRONIC CONTROL

Control Function Guide
| Function | Command | Notes |
| ON/OFF | Press | Unit will immediately turn ON or OFF. |
| Leave Interior Light On | Press | After 12 hours, factory default is restored; light will turn on when door is open. |
| Adjust Temperature | Press | When the display is flashing, press |
| Toggle Between °F / °C | Hold | The display will change units. |
| Enable Sabbath Mode | Press | The °F / °C symbol will flash briefly after 5 seconds. Interior light and display will go dark and remain so until user resets mode – unit continues to operate. |
| Disable Sabbath Mode | Press | Display and interior light return to normal operation. |
| Showroom Mode | Hold | Display will show SH for 2 seconds. Interior light and display will function normally, but the compressor and fans will not be energized. Repeat command to return to normal operation. Display will show EH for 2 seconds. |
NOTE
Temperature displayed reflects actual temperature inside unit. If the temperature displayed is different than selected, the unit is progressing towards the selected temperature. Time to reach set point varies based upon ambient temperature, temperature of product loaded, door openings, etc. Northland recommends allowing the unit to reach set points before loading.
INTERNAL LAYOUT
Loading Tips and Suggestions
Your appliance is equipped with a cantilever shelf system which provides maximum adjust ability and customizing of the shelving arrangements listed below.
Refrigerator:
24″ (61 cm) Wide Models:
With a solid door. Figure 11.
Your product comes with:
- 1 half width perforated stainless steel cantilever shelf.
- 2. full width perforated stainless steel cantilever shelves.
- 1 half width door storage rack.
- 2 full width door storage racks.

To Add or Remove a Shelf
Remove stored product from the shelf. Do not try to remove a loaded shelf from the appliance. Grasp the shelf front with both hands, rotate the front upward and lift out. (See Figure 11). To install a shelf insert the shelf in the appliance and insert the top hooks into the shelf support slots and drop the shelf down so the hooks drop over the bottom of the slots.
CAUTION
Never try to move a loaded shelf, remove everything from the shelf before moving. Use both hands when moving the shelf.
CAUTION
Make sure your cantilever shelf is secure on the shelf supports by pressing down on the shelf before loading.

CARE AND CLEANING
Front Grille
Be sure that nothing obstructs the required air flow openings in front of the cabinet. At least once or twice a year, brush or vacuum lint and dirt from the front grille area (see page 4).”
CAUTION
SHOCK HAZARD: Disconnect electrical power from the appliance before cleaning with soap and water.
Cabinet
The stainless steel cabinet can be washed with mild soap and water and thoroughly rinsed with clean water. See “Stainless Steel Maintenance” on page 14.
Interior
Wash interior compartment with mild soap and water. Do NOT use an abrasive cleaner, solvent, polish cleaner or undiluted detergent.
Care of Appliance
- Avoid leaning on the door, you may bend the door hinges or tip the appliance.
- Exercise caution when sweeping, vacuuming or mopping near the front of the appliance. Damage to the grille can occur.
- Periodically clean the interior of the appliance as needed.
In the Event of a Power Failure
If a power failure occurs, try to correct it as soon as possible. Minimize the number of door openings while the power is off so as not to adversely affect the appliance’s temperature.
Light assembly replacement
All models use LED lamps to illuminate the interior of the appliance. This component is very reliable, but should one fail, contact a qualified service technician for replacement of the LED.
Outdoor Product
Long-Term Storage /Winterization:
- Time to Winterize, when the daily low ambient temperature is at or below 38°F (3.3°C).
CAUTION
Operation of the unit at ambient temperatures below the recommended Winterization temperature will void your warranty.+ - Turn unit off, (see page 10)
- Remove all contents.
- If necessary, move the unit so you can gain access to the rear of the product.
- Unplug the unit from the power outlet.
- It is also recommended that the power to the outlet be turned-off if the circuit is not required for other items during the Winter season.
- When cleaning unit pay particular attention to any cracks and crevices that may have accumulated dirt and debris.
- Remove the front toe-grille, and use a brush and vacuum to clean dirt and debris from beneath the unit.
- Thoroughly clean the toe-grille and re-install on the unit.
- Remove the rear access cover, and use a brush and vacuum to clean dirt and debris from the machine compartment.
• If the plastic defrost drain pan located under the compressor contains water, use a sponge to remove as much water as possible. - Thoroughly clean the rear access cover and re-install on the unit.
- Wipe down all interior surfaces with anti-bacterial cleaner to be followed with clean rinse water to remove any residual chemicals which could cause staining. Do not use any abrasive cleaners or scouring pads.
- Leave the door open and allow to completely dry out before closing the door.
- Thoroughly clean the door gasket with anti-bacterial cleaner to be followed with clean rinse water to remove any residual chemicals.
- Thoroughly clean the exterior with a cleaner approved for stainless steel. Do not use any abrasive cleaners or scouring pads. See “Stainless Steel Maintenance” on page
- Any mounting hardware / fasteners that are showing signs of corrosion should be replaced.
- Once the exterior has been thoroughly cleaned, you may want to apply a coating of car wax to help protect against spotting from moisture, dirt, and debris that may accumulate on the surfaces during the Winterization period.
After completion of the above, you may choose to store the unit indoors, although this is not required.
Start-Up After Long-Term Storage:
- If stored outside, it is recommended that the unit again be thoroughly inspected per the storage instructions above to address any dirt or debris from the weather and/or animals/insects.
- Connect the unit to electrical power.
- Turn unit on and confirm your desired control settings.
- Allow 24-hrs for the unit to stabilize before loading contents.
STAINLESS STEEL MAINTENANCE AND ENERGY SAVING TIPS
Background
Stainless steel does not stain, corrode, or rust as easily as ordinary steel, but it is not stain or corrosion proof. Stainless steels can discolor or corrode if not maintained properly. Stainless steels differ from ordinary carbon steels by the amount of chromium present. It is this chromium that provides an invisible protective film on the surface called chrome-oxide. This protective chrome-oxide film on the surface can be damaged or contaminated, which may result in discoloration, staining, or corrosion of the base metal.
Care & Cleaning
Routine cleaning of the stainless steel surfaces will serve to greatly extend the life of your product by removing contaminants. This is especially important in coastal areas which can expose the stainless to severe contaminants such as halide salts, (sodium chloride).
It is strongly recommended to periodically inspect and thoroughly clean crevices, weld points, under gaskets, rivets, bolt heads, and any locations where small amounts of liquid could collect, become stagnant, and concentrate contaminates. Additionally, any mounting hardware that is showing signs of corrosion should be replaced.
Frequency of cleaning will depend upon the installation location, environmental, and usage conditions.
Choosing a Cleaning Product
The choice of a proper cleaning product is ultimately that of the consumer, and there are many products from which to choose. Depending upon the type of cleaning and the degree of contamination, some products are better than others.
Typically the most effective and efficient means for routine cleaning of most stainless steel products is to give the surfaces a brisk rubbing with a soft cloth soaked in warm water and a gentle detergent, or mild mixture of ammonia. Rubbing should, to the extent possible, follow the polish lines of the steel, and always insure thorough rinsing after cleaning.
Although some products are called “stainless steel cleaners,” some may contain abrasives which could scratch the surface, (compromising the protective chrome-oxide film), and some many contain chlorine bleach which will dull, tarnish or discolor the surface if not completely removed.
After the stainless surfaces have been thoroughly cleaned, a good quality car wax may be applied to help maintain the finish.
Note: Stainless steel products should never be installed, or stored in close proximity to chlorine chemicals.
Whichever cleaning product you chose, it should be used in strict accordance with the instructions of the cleaner manufacturer.
Energy saving tips:
The following suggestions will minimize the cost of operating your refrigeration appliance.
- Do not install your appliance next to a hot appliance (cooker, dishwasher, etc.), heating air duct, or other heat sources.
- Install product out of direct sunlight.
- Ensure the front grille vents at front of appliance beneath door are not obstructed and kept clean to allow ventilation for the refrigeration system to expel heat.
- Plug your appliance into a dedicated power circuit. (Not shared with other appliances).
- When initially loading your new product, or whenever large quantities of warm contents are placed within refrigerated storage compartment, minimize door openings for the next 12 hours to allow contents to pull down to compartment set temperature.
- Maintaining a relatively full storage compartment will require less appliance run time than an empty compartment.
- Ensure door closing is not obstructed by contents stored in your appliance.
- Allow hot items to reach room temperature before placing in product.
- Minimize door openings and duration of door openings.
- Use the warmest temperature control set temperature that meets your personal preference and provides the proper storage for your stored contents.
- When on vacation or away from home for extended pe riods, set the appliance to warmest acceptable tem perature for the stored contents.
- Set the control to the “off” position if cleaning the appliance requires the door to be open for an extended period of time.
OBTAINING SERVICE
How to Obtain Service:
For warranty service, please contact your local service provider or DCS Customer Care at (888) 936-7872. Before you call, please have the following information ready:
- Model Number (the serial plate is located on the upper left side, inner wall).
- Serial Number (the serial plate is located on the upper left side, inner wall).
- Code (the serial plate is located on the upper left side, inner wall).
- Date of installation
- A brief description of the problem
Your satisfaction is of the utmost importance to us. If a problem cannot be resolved to your satisfaction, please write or email us at:
Write:
Fisher & Paykel and DCS
Appliances Inc 695 Town Centre Drive, Suite #180 Costa Mesa
CA 92626-1902
USA
Email: [email protected]
Before You Call for Service:
Check troubleshooting on page 17.
TROUBLESHOOTING
Before You Call for Service
If the appliance appears to be malfunctioning, read through this manual first. If the problem persists, check the troubleshooting guide below. Locate the problem in the guide and refer to the cause and its remedy before calling for service. The problem may be something very simple that can be solved without a service call. However, it may be required to contact your dealer or a qualified service technician.
WARNING
Electrocution Hazard
- Never attempt to repair or perform maintenance on the appliance until the main electrical power has been disconnected. Turning the appliance control “OFF” does not remove electrical power from the unit’s wiring.
- Replace all parts and panels before operating.
| Problem | Possible Cause | Remedy |
| Appliance not cold enough (See “Adjusting the temperature” on page 10) |
|
|
|
| |
|
| |
|
| |
| Appliance too cold (See “Adjusting the Temperature” on page 10) |
|
|
|
| |
| No interior light. |
|
|
| Light will not go out when door is closed |
|
|
|
| |
|
| |
| Noise or Vibration |
|
|
|
| |
| Appliance will not run. |
|
|
|
| |
|
|
WARRANTY
Limited Warranty
When you purchase any new DCS Refrigeration Product, you automatically receive a One Year Limited Warranty covering parts and labor for servicing within the 48 mainland United States, Hawaii, Washington, D.C. and Canada. In Alaska the Limited Warranty is the same except that you must pay to ship the Product to the service shop or for the service technician’s travel to your home. Products for use in Canada must be purchased through the authorized Canadian distribution channel to ensure regulatory compliance.
You receive an additional Four Year Limited Warranty (for a total of Five Years) covering parts for the sealed refrigeration system (compressor, evaporator, condenser, filter dryer, and connecting tubing) within the 48 mainland United States, Hawaii, Washington, D.C. and Canada. In Alaska the Limited Warranty for the sealed refrigeration system is the same except that you must pay to ship the Product to the service shop or the service technician’s travel to your home.
Fisher & Paykel Undertakes to:
Repair without cost to the owner either for material or labor any part of the Product, the serial number of which appears on the Product, which is found to be defective. In Alaska, you must pay to ship the Product to the service shop or for the service technician’s travel to your home.
If we are unable to repair a defective part of the Product after a reasonable number of attempts, at our option we may replace the part or the Product, or we may provide you a full refund of the purchase price of the Product (not including installation or other charges).
This warranty extends to the original purchaser and any succeeding owner of the Product for products purchased for ordinary single-family home use.
All service under this Limited Warranty shall be provided by Fisher & Paykel Appliances Inc. or its Authorized DCS Service Agent during normal business hours.
Limited Warranty
How Long Does this Limited Warranty Last?
Our liability under this Limited Warranty expires One Year from the date of purchase of the Product by the first consumer.
Our liability for repair of defects in any sealed refrigeration system (compressor, evaporator, condenser, filter dryer, and connecting tubing) extends an additional Four Years, for a total of Five Years from the date of purchase of the Product by the first consumer.
Our liability under any implied warranties, including the implied warranty of merchantability (an unwritten warranty that the Product is fit for ordinary use) also expires One Year (or such longer period as required by applicable law) from the date of purchase of the Product by the first consumer. Some states do not allow limitations on how long an implied warranty lasts, so this limit on implied warranties may not apply to you.
This Warranty Does Not Cover
A. Service calls that are not related to any defect in the Product. The cost of a service call will be charged if the problem is not found to be a defect of the Product. For example:
- Correct faulty installation of the Product.
- Instruct you how to use the Product.
- Replace house fuses, reset circuit breakers, correct house wiring or plumbing, or replace light bulbs.
- Correct fault(s) caused by the user.
- Change the set-up of the Product.
- Unauthorized modifications of the Product.
- Noise and vibration that is considered normal e.g. drain sounds, regeneration noises and user warning beeps.
- Correcting damage caused by pests e.g. rats, cockroaches etc.
- Used in commercial applications.
B. Defects caused by factors other than:
- Normal domestic use or
- Use in accordance with the Product’s Use and Care Guide.
C. Defects to the Product caused by accident, neglect, misuses, fire, flood or Act of God.
D. The cost of repairs carried out by non-authorized repairers or the cost of correcting such unauthorized repairs.
E. Travel Fees and associated charges incurred when the product is installed in a location with limited or restricted access.(i.e. airplane flights, ferry charges, isolated geographic areas).
F. Normal recommended maintenance as set forth in the Product’s Use and Care Guide. If you have an installation problem contact your dealer or installer. You are responsible for providing adequate electrical, exhausting and other connection facilities. We are not responsible for consequential or incidental damages (the cost of repairing or replacing other property damaged if the Product is defective or any of your expenses caused if the Product is defective). Some states do not allow the exclusion or limitation of incidental or consequential damages, so the above limitation or exclusion may not apply to you.
How to get service
Please read this Use and Care Guide. If you then have any questions about operating the Product, need the name of your local DCS Authorized Service Agent, or believe the Product is defective and wish service under this Limited Warranty, please contact your dealer or call us at:
TOLL FREE 1-888-936-7872 or contact us through our web site: www.dcsappliances.com You may be required to provide reasonable proof of the date of purchase of the Product before the Product will be serviced under this Limited Warranty.
Commercial use
This warranty applies to appliances used in residential applications; it does not cover their use in commercial situations.
No other warranties
This Limited Warranty is the complete and exclusive agreement between you and Fisher & Paykel Appliances Inc. regarding any defect in the Product. None of our employees (or our Authorized Service Agents) are authorized to make any addition or modification to this Limited Warranty.
Warrantor: Fisher & Paykel Appliances, Inc.
If you need further help concerning this Limited Warranty, please call us at the above number, or write to:
Fisher & Paykel and DCS
Appliances Inc
695 Town Centre Drive, Suite #180 Costa Mesa
CA 92626-1902
USA
This Limited Warranty gives you specific legal rights, and you may also have other rights which vary from state to state.
Fisher & Paykel Appliances Inc. is a leading manufacturer of premium quality cooking and specialty appliances under the Fisher & Paykel and DCS brands.
DCSOUTDOOR.COM
© Fisher & Paykel Appliances 2021. All rights reserved.
The models shown in this guide may not be available in all markets and are subject to change at any time.
The product specifications in this guide apply to the specific products and models described at the date of issue. Under our policy of continuous product
improvement, these specifications may change at any time.
For current details about model and specification availability in your country, please go to our website or contact your local Fisher & Paykel dealer.
592494A 04.21



















