LYNX LN24DWR OUTDOOR DRAWER REFRIGERATOR Installation Guide
Important Safety Instructions
Warnings and safety instructions appearing in this guide are not meant to cover all possible conditions and situations that may occur. Common sense, caution, and care must be exercised when installing, maintaining, or operating this appliance.
Recognize Safety Symbols, Words, and Labels.
WARNING – You can be killed or seriously injured if you do not follow these instructions.
CAUTION-Hazards or unsafe practices which could result in personal injury or property / product damage.
NOTE-Important information to help assure a problem free installation and operation.
WARNING - This unit contains R600a (Isobutane) which is a flammable hydrocarbon. It is safe for regular use. Do not use sharp objects to expedite defrosting. Do not damage refrigerant circuit.
WARNING: State of California Proposition 65 Warning: This product contains one or more chemicals known to the State of California to cause cancer.
WARNING: State of California Proposition 65 Warning: This product contains one or more chemicals known to the State of California to cause birth defects or other reproductive harm..
UNPACKING YOUR APPLIANCE
WARNING: EXCESSIVE WEIGHT HAZARD Use two or more people to move product. Failure to do so can result in personal injury.
Remove Interior Packaging
Your appliance has been packed for shipment with all parts that could be damaged by movement securely fastened. Remove internal packing materials and any tape holding internal components in place. The owners manual is shipped inside the product in a plastic bag along with the warranty registration card, and other accessory items.
Important
Keep your carton and packaging until your appliance has been thoroughly inspected and found to be in good condition. If there is damage, the packaging will be needed as proof of damage in transit. Afterwards please dispose of all items responsibly.
WARNING – Dispose of the plastic bags which can be a suffocation hazard.
Note to Customer
This merchandise was carefully packed and thoroughly inspected before leaving our plant. Responsibility for its safe delivery was assumed by the retailer upon acceptance of the shipment. Claims for loss or damage sustained in transit must be made to the retailer.
NOTE: DO NOT RETURN DAMAGED MERCHANDISE TO THE MANUFACTURER – FILE THE CLAIM WITH THE RETAILER
CAUTION: If the appliance was shipped, handled, or stored in other than an upright position for any period of time, allow the appliance to sit upright for a period of at least 24 hours before plugging in. This will assure oil returns to the compressor. Plugging the appliance in immediately may cause damage to internal parts.
Warranty Registration
It is important you send in your warranty registration card immediately after taking delivery of your appliance or you can register online at: www.lynxgrills.com/support/registration
The following information will be required when registering your appliance. Service/Model Number Serial Number Date of Purchase Dealer’s name and address
The service/model number and serial number can be found on the serial plate which is located inside the cabinet on the bottom of the liner toward the left side. Open the bottom drawer to view it. See Figure 1.
WARNING – Help Prevent Tragedies Child entrapment and suffocation are not problems of the past. Junked or abandoned refrigerators are still dangerous – even if they sit out for “just a few hours”. If you are getting rid of your old refrigerator, please follow the instructions below to help prevent accidents. Before you throw away your old refrigerator or freezer:
- Take off the doors or remove the drawers.
- Leave the shelves in place so children may not easily climb inside.
INSTALLING YOUR APPLIANCE
Select Location
The proper location will ensure peak performance of your appliance. We recommend a location where the unit will be out of direct sunlight and away from heat sources. To ensure your product performs to specifications, the recommended installation location temperature range is from 50 to 100°F (10 to 38°C).
Cabinet Clearance
Ventilation is required from the bottom front of the appliance. Keep this area open and clear of any obstructions. Adjacent cabinets and counter top can be installed around the appliance as long as the front grille remains unobstructed.
CAUTION
Front Grille
Do not obstruct the front grille. The openings within the front grille allow air to flow through the condenser heat exchanger. Restrictions to this air flow will result in increased energy usage and loss of cooling capacity. For this reason it is important this area to not be obstructed and the grille openings kept clean. Lynx Grills does not recommend the use of a custom made grille as air flow may be restricted. (See Figure 2).

Leveling Legs
Adjustable legs at the front and rear corners of the appliance should be set so the unit is firmly positioned on the floor and level from side to side and front to back. The overall height of your Lynx appliance may be adjusted between the minimum, 333 ⁄4″ (85.7 cm), by turning the leveling leg in (CW ↷) and the maximum, 343 ⁄4″ (88.3 cm) by turning the leveling leg out (CCW ↶).
To adjust the leveling legs, place the appliance on a solid surface and protect the floor beneath the legs to avoid scratching the floor. With the assistance of another person, lean the appliance back to access the front leveling legs. Raise or lower the legs to the required dimension by turning the legs. Repeat this process for the rear by tilting the appliance forward using caution. On a level surface check the appliance for levelness and adjust accordingly.
The front grille screws may be loosened and the grille adjusted to the desired height. When adjustment is complete tighten the two front grille screws. (See Figure 5)
INSTALLING YOUR APPLIANCE



WARNING: Electrical Shock Hazard
- Do not use an extension cord with this appliance. They can be hazardous and can degrade product performance.
- This appliance should not, under any circumstances, be installed to an un-grounded electrical supply.
- Do not remove the grounding prong from the power cord. (See Figure 3).
- Do not use an adapter. (See Figure 4).
- Do not splash or spray water from a hose on the appliance. Doing so may cause an electrical shock, which may result in severe injury or death.
Electrical Connection

A grounded 115 volt, 15 amp dedicated circuit is required.
This product is factory equipped with a power supply cord that has a three-pronged, grounded plug. It must be plugged into a mating grounding type receptacle in accordance with the National Electrical Code and applicable local codes and ordinances (see Figure 6). If the circuit does not have a grounding type receptacle, it is the responsibility and obligation of the customer to provide the proper power supply. The third ground prong should not, under any circumstances, be cut or removed.
NOTE: Ground Fault Circuit Interrupters (GFCI) are prone to nuisance tripping which will cause the appliance to shut down. GFCI’s are generally not used on circuits with power equipment that must run unattended for long periods of time, unless required to meet local building codes and ordinances.
INSTALLING THE ANTI TIP DEVICE (FREESTANDING INSTALLATIONS)
WARNING
- ALL APPLIANCES CAN TIP RESULTING IN INJURY.


- INSTALL THE ANTI-TIP BRACKET PACKED WITH THE APPLIANCE.
- FOLLOW THE INSTRUCTIONS BELOW
Anti-Tip Device
WARNING:
If your refrigerator is not located under a counter top (free standing), you must use an anti-tip device installed as per these instructions. If the refrigerator is removed from its location for any reason, make sure that the device is properly engaged with the anti-tip bracket when you push the refrigerator back into the original location. If the device is not properly engaged, there is a risk of the refrigerator tipping over, with the potential for property damage or personal injury.
NOTE: If installing on a concrete floor, concrete fasteners are required, (not included with the anti-tip kit).
CAUTION: Any finished flooring should be protected with appropriate material to avoid damage when moving the unit.
Floor Mount Installation
The anti-tip bracket is to be located on the floor in the left or right rear corner of the refrigerator drawer as shown in Figure 7.
Step by Step Instructions
For locating the position of the bracket:
- Decide where you want to place the drawer refrigerator. Slide it into place, being careful not to damage the floor, leaving 1″ (2.5 cm) of clearance from the rear wall to allow room for the anti-tip bracket.
- Raise the rear leveling legs approximately 1 ⁄4″ (6 mm) to allow engagement with the anti-tip bracket. Level the unit by adjusting all the leveling legs as required. Turning the leveling leg counterclockwise will raise the unit and clockwise will lower the unit.
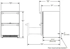
- Make sure the refrigerator is in the desired location, then mark on the floor the rear and side corner of the cabinet where the anti-tip bracket will be installed. If the installation does not allow marking the rear corner of the cabinet, then make temporary lines on the floor marking the front corner of the cabinet, excluding the drawer. Slide the refrigerator out of the way. From the temporary line extend the sidewall line back 211 ⁄2″ (54.6 cm) as shown in Figure 8.
- Align the anti-tip bracket to the marks on the floor so the side of the bracket lines up with the side of the cabinet mark, and the “V” notches on the anti-tip bracket line up with the end of the 211 ⁄2″ (54.6 cm) line (Rear of cabinet line).
- Fasten the anti-tip bracket to the floor using the supplied screw. (See Figure 8).
- Slide the cabinet back into position, making sure the rear cabinet leveling leg slides under the anti-tip bracket engaging the slot.
NOTE: When the floor mounted anti-tip bracket is used the minimum adjusted height of the cabinet is increased by 3 ⁄8″ (9 mm).

PRODUCT DIMENSIONS
| ROUGH-IN OPENING DIMENSIONS | CABINET DIMENSIONS | |||||||
| MODEL | “A” | “B” | “C” | “D” | “E” | “F” | “G” | “H” |
| LN24DWR | 24″ (61 cm) | **34″ to 35″ (86.4 cm to 88.9 cm) | * | 237⁄8″ (60.7 cm) | 333⁄4″ to 343⁄4″ (85.7 cm to 88.3 cm) | 2323⁄32″ (60.2 cm) | 263⁄4″ (67.9 cm) | 395⁄32″ (99.5 cm) |
If necessary to gain clearance inside the rough-in opening a hole can be cut through the adjacent cabinet and the power cord routed through this hole to a power outlet. Another way to increase the available opening depth is to recess the power outlet into the rear wall to gain the thickness of the power cord plug. Not all recessed outlet boxes will work for this application as they are too narrow, but a recessed outlet box equivalent to Arlington #DVFR1W is recommended for this application, (see Figure 10).

| PRODUCT DATA | ||
| MODEL | ELECTRICAL REQUIREMENTS # | PRODUCT WEIGHT |
| LN24DWR | 115V/60Hz/15A | 130 lbs (59 kg) |


- Depth dimension of rough-in opening may vary depending on each individual installation. To recess entire drawer “F” dimension plus 1″ (2.5 cm) for thickness of power cord plug is required.
- Minimum rough-in opening required is to be larger than the adjusted height of the cabinet.
A grounded 15 amp dedicated circuit is required. Follow all local building codes when installing electrical and appliance.
WARNING Floor mount Anti-tip Bracket must be installed for freestanding applications. Not required for built in applications.
USING YOUR ELECTRONIC CONTROL

Control Function Guide
| Function | Command | Notes |
| ON/OFF | Press and hold for 5 seconds. | Unit will immediately turn ON or OFF. |
| Leave Interior Light On | Press and release to leave interior light on for 3 hours; press again to deactivate. | After 12 hours, factory default is restored; light will turn on when door is open. |
| Adjust Temperature | Press or and release. | When the display is flashing, press or to adjust the set point temperature. Note: temperature displayed is the actual temperature inside unit. |
| Toggle Between oF / oC | Hold and for 5 seconds. | The display will change units. |
| Enable Sabbath Mode | Press and hold for 5 seconds and release. | The oF / oC symbol will flash briefly after 5 seconds. Interior light and display will go dark and remain so until user resets mode – unit continues to operate. |
| Disable Sabbath Mode | Press , hold for 5 seconds and release. | Display and interior light return to normal operation. |
| Showroom Mode | Hold and for 5 seconds. | Display will show for 2 seconds. Interior light and display will function normally, but the compressor and fans will not be energized. Repeat command to return to normal operation. Display will show for 2 seconds. |
NOTE
Temperature displayed reflects actual temperature inside unit. If the temperature displayed is different than selected, the unit is progressing towards the selected temperature. Time to reach set point varies based upon ambient temperature, temperature of product loaded, door openings, etc. Lynx recommends allowing the unit to reach set points before loading.
CARE AND CLEANING AND ENERGY SAVING TIPS
NOTE: After a high temperature alarm condition, check all perishables to ensure they are safe for consumption.
NOTE: The temperature alarm may occur as a result of high usage or introduction of warm contents to the storage compartment. If the temperature alarm continues to occur, your unit may require service.
Alarm Mute
Press any key to mute the audible portion of an alarm.
Note: This action will only mute the alarm. If the condition that caused the alarm continues, the alarm code will continue to flash and will sound for 20 seconds every 60 minutes.
WARNING: Electrocution Hazard
- Never attempt to repair or perform maintenance on the appliance until the main electrical power has been disconnected. Turning the appliance control “OFF” does not remove electrical power from the unit’s wiring.
- Replace all parts and panels before operating.
Care of Appliance
- Avoid leaning on the drawer, you may bend the drawer hinges or tip the appliance.
- Exercise caution when sweeping, vacuuming or mopping near the front of the appliance. Damage to the grille can occur.
- Periodically clean the interior of the appliance as needed.
Front Grille
Be sure that nothing obstructs the required air flow openings in front of the cabinet. At least once or twice a year, brush or vacuum lint and dirt from the front grille area.
CAUTION: SHOCK HAZARD Disconnect electrical power from the
appliance before cleaning with soap and water.
Cabinet
The stainless steel cabinet can be washed with either a mild soap and water and thoroughly rinsed with clear water. See “Stainless Steel Maintenance”.
Interior
Wash interior compartment with mild soap and water. Do NOT use an abrasive cleaner, solvent, polish cleaner or undiluted detergent.
In the Event of a Power Failure
If a power failure occurs, try to correct it as soon as possible. Minimize the number of drawer openings while the power is off so as not to adversely affect the appliance’s temperature.
Light Assembly Replacement
All models use an LED to illuminate the interior of the appliance. This component is very reliable, but should it fail, contact a qualified service technician for replacement of the LED.
CARE AND CLEANING
Long Term Storage/Winterization
- Time to Winterize, when the daily low ambient temperature is at or below 38°F (3.3°C)
CAUTION: Operation of the unit at ambient temperatures below the recommended Winterization temperature will void your warranty. - Turn unit off, (see page 10)
- Remove all contents.
- If necessary, move the unit so you can gain access to the rear of the product.
- Unplug the unit from the power outlet.
- It is also recommended that the power to the outlet be turned-off if the circuit is not required for other items during the Winter season.
- When cleaning unit pay particular attention to any cracks and crevices that may have accumulated dirt and debris.
- Remove the front toe-grille, (see Figure 14), and use a brush and vacuum to clean dirt and debris from beneath the unit. 9. Thoroughly clean the toe-grille and re-install on the unit. (See Figure 14).
- Remove the rear access cover, (see Figure 15), and use a brush and vacuum to clean dirt and debris from the machine compartment.
- Thoroughly clean the rear access cover and re-install on the unit.
- Wipe down all interior surfaces with anti-bacterial cleaner to be followed with clean rinse water to remove any residual chemicals which could cause staining. Do not use any abrasive cleaners or scouring pads.
- Leave the drawers open and allow to completely dry out before closing the drawers.
- Thoroughly clean the drawer gaskets with anti-bacterial cleaner to be followed with clean rinse water to remove any residual chemicals.
- Thoroughly clean the exterior with a cleaner approved for stainless steel. Do not use any abrasive cleaners or scouring pads. See “Stainless Steel Maintenance” on
- Any mounting hardware / fasteners that are showing signs of corrosion should be replaced.
- Once the exterior has been thoroughly cleaned, you may want to apply a coating of car wax to help protect against spotting from moisture, dirt, and debris that may accumulate on the surfaces during the Winterization period.
- Do not place a cover on the unit, as this can trap condensation.
After completion of the above, you may choose to store the unit indoors, although this is not required.


Start-up after Long Term Storage
- If stored outside, it is recommended that the unit again be thoroughly inspected per the storage instructions above to address any dirt or debris from the weather and/or animals/insects.
- Connect the unit to electrical power.
- Turn unit on and confirm your desired control settings.
- Allow 24-hrs for the unit to stabilize before loading contents.
STAINLESS STEEL MAINTENANCE
WARNING: Electrocution Hazard
- Never attempt to repair or perform maintenance on the appliance until the main electrical power has been disconnected. Turning the appliance control “OFF” does not remove electrical power from the unit’s wiring.
- Replace all parts and panels before operating.
Stainless Steel Maintenance
Stainless steel does not stain, corrode, or rust as easily as ordinary steel, but it is not stain or corrosion proof. Stainless steels can discolor or corrode if not maintained properly.
Stainless steels differ from ordinary carbon steels by the amount of chromium present. It is this chromium that provides an invisible protective film on the surface called chrome-oxide. This protective chrome-oxide film on the surface can be damaged or contaminated, which may result in discoloration, staining, or corrosion of the base metal.
Care and Cleaning
Routine cleaning of the stainless steel surfaces will serve to greatly extend the life of your product by removing contaminants. This is especially important in coastal areas which can expose the stainless to severe contaminants such as halide salts, (sodium chloride).
It is strongly recommended to periodically inspect and thoroughly clean crevices, weld points, under gaskets, rivets, bolt heads, and any locations where small amounts of liquid could collect, become stagnant, and concentrate contaminates. Additionally, any mounting hardware that is showing signs of corrosion should be replaced. Frequency of cleaning will depend upon the installation location, environmental, and usage conditions.
Choosing a Cleaning Product
The choice of a proper cleaning product is ultimately that of the consumer, and there are many products from which to choose. Depending upon the type of cleaning and the degree of contamination, some products are better than others.
Typically the most effective and efficient means for routine cleaning of most stainless steel products is to give the surfaces a brisk rubbing with a soft cloth soaked in warm water and a gentle detergent, or mild mixture of ammonia. Rubbing should, to the extent possible, follow the polish lines of the steel, and always insure thorough rinsing after cleaning.
Although some products are called “stainless steel cleaners,” some may contain abrasives which could scratch the surface, (compromising the protective chrome-oxide film), and some many contain chlorine bleach which will dull, tarnish or discolor the surface if not completely removed.
After the stainless surfaces have been thoroughly cleaned, a good quality car wax may be applied to help maintain the finish.
NOTE: Stainless steel products should never be installed, or stored in close proximity to chlorine chemicals.
Whichever cleaning product you chose, it should be used in strict accordance with the instructions of the cleaner manufacturer.
Energy Saving Tips
The following suggestions will minimize the cost of operating your refrigeration appliance.
- Do not install your appliance next to a hot appliance (cooker, dishwasher, etc.), heating air duct, or other heat sources.
- Install product out of direct sunlight.
- Ensure the front grille vents at front of appliance beneath drawer are not obstructed and kept clean to allow ventilation for the refrigeration system to expel heat.
- Plug your appliance into a dedicated power circuit. (Not shared with other appliances).
- When initially loading your new product, or whenever large quantities of warm contents are placed within refrigerated storage compartment, minimize drawer openings for the next 12 hours to allow contents to pull down to compartment set temperature.
- Maintaining a relatively full storage compartment will require less appliance run time than an empty compartment.
- Ensure drawer closing is not obstructed by contents stored in your appliance.
- Allow hot items to reach room temperature before placing in product.
- Minimize drawer openings and duration of drawer openings.
- Use the warmest temperature control set temperature that meets your personal preference and provides the proper storage for your stored contents.
- When on vacation or away from home for extended periods, set the appliance to warmest acceptable temperature for the stored contents.
- Set the control to the “off” position if cleaning the appliance requires the drawer to be open for an ex- tended period of time.
OBTAINING SERVICE
If Service is Required
- If the product is within the first year warranty period please contact your dealer or call Lynx Grills Customer Service at 888.289.5969 for directions on how to obtain warranty coverage in your area.
- If the product is outside the first year warranty period, Lynx Grills Customer Service can provide recommendations of service centers in your area.
- In all correspondence regarding service, be sure to give the service/model number, serial number, and proof of purchase.
- Try to have information or description of nature of the problem, how long the appliance has been running, the room temperature, and any additional information that may be helpful in quickly solving the problem.
- Table A is provided for recording pertinent information regarding your product for future reference.
| For Your Records | |
| Date of Purchase | |
| Dealer’s name | |
| Dealer’s Address | |
| Dealer’s City | |
| Dealer’s State | |
| Dealer’s Zip Code | |
| Appliance Serial Number | |
| Rev. Letter | |
| Appliance Service/Model Number | |
| Date Warranty Card Sent (Must be within 10 days of purchase). | |
Before You Call for Service
If the appliance appears to be malfunctioning, read through this manual first. If the problem persists, check the troubleshooting guide below. Locate the problem in the guide and refer to the cause and its remedy before calling for service. The problem may be something very simple that can be solved without a service call. However, it may be required to contact your dealer or a qualified service technician.
WARNING: Electrocution Hazard
- Never attempt to repair or perform maintenance on the appliance until the main electrical power has been disconnected. Turning the appliance control “OFF” does not remove electrical power from the units wiring.
- Replace all parts and panels before operating.
CAUTION
In the unlikely event you lose cooling in your unit, do not unplug the product from the electric supply, but do call a qualified service technician immediately. It is possible that the loss of cooling capacity is a result of excessive frost build-up on the evaporator cooling coil. In this case, removing power to the unit will result in the melting of this excessive quantity of ice, which could generate melt water that exceeds the capacity of the defrost drain system and could result in water damage to your home. The end-user will be ultimately responsible for any water damage caused by prematurely turning the unit off without appropriately managing the excess water run-off.
TROUBLESHOOTING
| Problem | Possible Cause | Remedy |
| Appliance not cold enough
(See “Adjusting the temperature” on page 10) | • Control set too warm • Content temperature not stabilized. | • Adjust temperature colder. Allow 24 hours for temperature to stabilize. |
| • Excessive usage or prolonged drawer openings. | • Allow temperature to stabilize for at least 24 hours. | |
| • Airflow to front grille blocked. | • Airflow must not be obstructed to front grille. See “clearances” on page 4. | |
| • Drawer gasket not sealing properly. | • Adjust or replace drawer gasket. | |
| Appliance too cold
(See “Adjusting the Temperature” on page 10) | • Control set too cold | • Adjust temperature warmer. Allow 24 hours for temperature to stabilize. |
| • Drawer gasket not sealing properly. | • Adjust or replace drawer gasket. | |
| No interior light. | • Failed LED light assembly or light switch. | • Contact a qualified service technician. |
| Light will not go out when drawer is closed | • Drawer not activating light switch. | • Appliance not level, level appliance, (See page 4, “leveling legs”) |
| • Failed light switch | • Contact a qualified service technician. | |
| Noise or Vibration | • Appliance not level | • Level appliance, see “Leveling Legs” on page 4. |
| • Fan hitting tube obstruction. | • Contact a qualified service technician. | |
| Appliance will not run. | • Appliance turned off | • Turn appliance on. See “Starting your appliance” on page 10. |
| • Power cord not plugged in. | • Plug in power cord. | |
| • No power at outlet. | • Check house circuit. |
HOUSEHOLD PRODUCT WARRANTY
UNDERCOUNTER DRAWER REFRIGERATOR WARRANTY
TWO YEAR FULL WARRANTY
Undercounter drawer refrigerators and all of their component parts, except as detailed below*†, are warranted to be free from defective materials or workmanship in normal residential use for a period of two (2) years from the date of original retail purchase. Lynx, warrantor, agrees to repair or replace, at its option, any part which fails or is found to be defective during the warranty period.
FULL NINETY (90) DAY COSMETIC WARRANTY: Product is warranted to be free from cosmetic defects in materials or workmanship (such as scratches on
stainless steel, paint/porcelain blemishes, etc.) for a period of ninety (90) days from the date of original retail purchase or closing date for new construction, whichever period is longer. Any defects must be reported to the selling dealer within ninety (90) days from date of original retail purchase. Lynx uses high quality processes and materials available to produce all color finishes. However, slight color variation may be noticed because of the inherent differences in painted parts and porcelain parts as well as differences in kitchen lighting, product locations, and other factors. Therefore, this warranty does not apply to color variation attributable to such factors.
FULL NINETY (90) DAY WARRANTY IN “RESIDENTIAL PLUS” APPLICATIONS: Lynx products are designed and certified for residential use only. They are not intended for use in commercial applications. Lynx products should only be used in accordance to national and local codes. Lynx is not responsible for property damage or injury resulting from use in a commercial application. To support the manufacturing quality of its appliance’s Lynx will provide a full 90 day warranty for products used in “Residential Plus “applications. This “Residential Plus” warranty applies to applications where use of the product extends beyond residential use but is in compliance with national and local code. In some jurisdictions these applications are zoned as residential. Examples of, but not limited to, such applications covered by this warranty are bed and breakfasts, fire stations, private clubs, churches, condominium/ apartment common areas etc. Under this “Residential Plus” warranty, the product, its components and accessories are warranted to be free from defective material or workmanship for a period of ninety (90) days from the date of original retail purchase. Lynx warranter, agrees to repair or replace, at its option, any part which fails or is found to be defective during the warranty period. This warranty covers parts and labor. This warranty excludes use of the product in all commercial locations such as restaurants, food service locations and institutional food service locations.
SIX YEAR FULL WARRANTY ON SEALED REFRIGERATION PARTS AS LISTED
Any sealed refrigeration system component, as listed below, is warranted to be free from defective materials or workmanship in normal household use during the third through the sixth year from the date of original retail purchase. Lynx, warranter, agrees to repair or replace, at its option, any part which fails or is found to be defective during the warranty period.
Sealed Refrigeration System Components: Compressor, Evaporator, Condenser, Connecting Tubing, Dryer/Strainer
TWELVE YEAR LIMITED WARRANTY ON SEALED REFRIGERATION PARTS AS LISTED
Any sealed refrigeration system component, as listed above, which fails due to defective materials or workmanship in normal household use during the seventh through the twelfth year from the date of original retail purchase will be repaired or replaced, free of charge for the part itself, with the owner paying all other costs, including labor.
WARRANTY TERMS
This warranty extends to the original retail purchaser of the product warranted hereunder and to each transferee owner of the product during the term of the original purchaser’s warranty. the warranty is transferable by the original retail purchaser via home sale only. If a transferee owner is unable to provide proof of purchase from the original purchaser and the product has not been previously registered, the production date of the product, located in the serial number of the product, will serve as the effective warranty start date.
The activation date of the warranty begins from the date of original retail purchase. In the case of new product purchase via building development sales, activation begins from the earlier date of either certificate of occupancy or 24 months from date of manufacture. Note date of manufacture is identified by serial tag on product.
This warranty does not cover units purchased as b-stock, liquidation, salvage, seconds, refurbished, as-is, used products.
This warranty shall apply to products purchased in the United States and Canada. Products must be purchased in the country where service is requested. Warranty service must be performed by a Lynx authorized service agency or representative. Warranty shall not apply to damage resulting from abuse, accident, natural disaster, loss of electrical power to the product for any reason, alteration, improper installation, improper operation, or repair service of the product by anyone other than a Lynx authorized service agency or representative. This warranty does not apply to commercial usage. Warrantor is not responsible for consequential or incidental damage whether arising out of breach of warranty, breach of contract or otherwise. Some jurisdictions do not allow the exclusion or limitation of incidental or consequential damages, so the above limitations do not apply to you.
Owner shall be responsible for proper installation, providing normal care and maintenance, providing proof of purchase upon request, and making the product reasonably accessible for service. If the product or one of its component parts contains a defect or malfunction during the warranty period, after a reasonable number of attempts by the warrantor to remedy the defects or malfunctions, the owner is entitled to either a refund or replacement, at the warrantor’s discretion of the product or its component part or parts. Warrantor’s liability on any claim of any kind, with respect to the goods or services covered hereunder, shall in no case exceed the price of the goods or service or part thereof which gives rise to the claim.
WARRANTY SERVICE
Under the terms of this warranty, service must be performed by a Lynx authorized service agent or representative. Service will be provided during normal business hours Labor performed at overtime or premium rates shall not be covered by the warranty. To obtain warranty service contact Lynx Customer Care at 1-888-289-5969. Please have model number, serial number, and date of original purchase available when calling. IMPORTANT: Retain proof of original purchase to establish warranty period. The return of the owner registration card is not a condition of warranty coverage. You should, however, return the owner registration card so Lynx can contact you should any question of safety arise which could affect you. Any implied warranties of merchantability and fitness applicable to the above described burner assemblies, infrared rotisserie burners, grill grates, and stainless steel parts are limited in duration to the period of coverage of the applicable express written limited warranties set forth above. Some jurisdictions do not allow limitations on how long an implied warranty lasts, so the above limitations may not apply to you. This warranty gives you specific legal rights, and you may also have other rights which may vary from jurisdiction to jurisdiction. Specifications subject to change without notice.
The best outdoor kitchen products come from: Lynx Grills 62201 Highway 82 West, Greenwood, MS 38930
Service: (888)-289-5969
www.lynxgrills.com






















