RBROHANT JK0053 Brushed Gold Brass Shower System

INSTALLATION INSTRUCTIONS
Installation Manual

CERTIFICATE OF LISING
BEFORE INSTALLATION
This product has been inspected and debugged by the factory to the best condition. Please do not disassemble and assemble it yourself.
Before installing the product, please be sure to remove sundries and sludge from the water pipe to prevent sundries from blocking the product.
- Please read the manual firstly before installation;
- Please check the condition of all the parts, and the installation tools are not included, please prepare it by yourself;
- User manual includes matters needing attention during installation, please keep it properly;
- The size chart in the manual is for reference only, please refer to the actual product that you receive.

Recommend Tools
- PTFE Tape

- Hex Key

- Slotted Screwdriver

- Phillips Screwdriver

- The sundries at the connection area must be cleared before installation to avoid blockage or leakage;
- Connect the inlet pipe correctly as shown in the figure;
- The maximum temperature of hot water is not higher than 80°C (176°F);
- Please contact seller for consultation if you need to install in other method.
INSTALLATION STEPS
- First bury the main part in the wall.

- Please install other parts in the order as shown in the figure below when the valve mounted to the wall:
1 ). Remove the protective cover.
2). Cover the panel.
3). Install the handle.
- Install the shower arm and shower head. Install the lower water outlet.
1 ). Attach the cover plate to the longer tail of the shower arm.
2). Shower arm longer thread with PTFE tape.
3). Screw the shower head clockwise onto the lower end of the shower pipe.
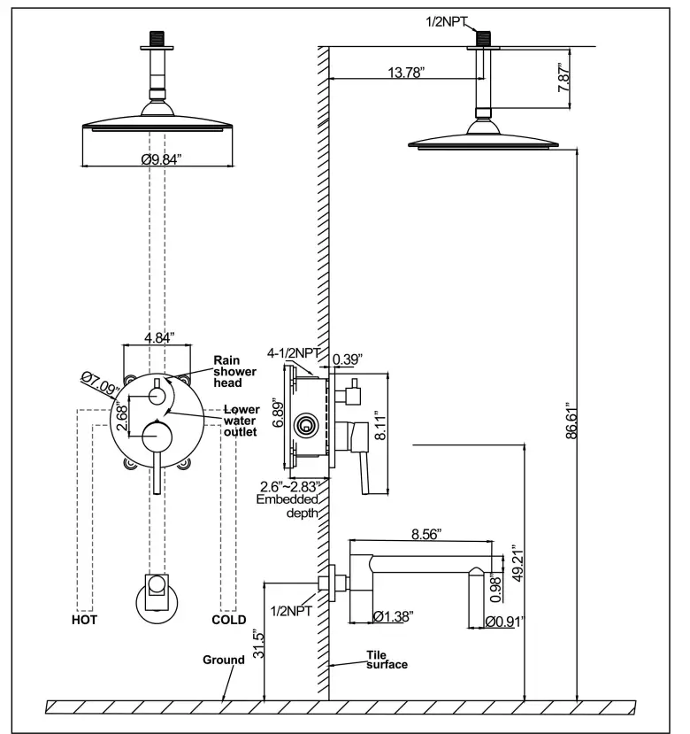
INSTALLATION DIMENSION

The picture is for reference only, you can install it according to your own requirements.
CLEANING CARE
In order to keep the appearance of product clean, bright and good ~ ei performance, please take care of the product as follows; Acio
- Rinse with water only and dry with soft cotton cloth;
- Use mild liquid and colorless glass cleaner to remove surface dirt and scale film, or use polish without abrasive effect;
- Do not use abrasive detergent, polish, emery cloth, paper towel or scraper, etc.;
- Do not use acid cleaner, or cleaner and soap with insoluble gran etc.;
- ln the process of use, mud my accumulate in the bubbler and make the water flow show,
The bubbler can be unscrewed, rinsed with water, and then installed back in place.
Please feel free to contact us if you have any questions. We will help to solve the issue together with you. OUR EMAIL: [email protected]

CUSTOMER SUPPORT
Service Contact:
+1(801) 800-9309
[email protected]
Made in China



























