
Thermoelectric Temperature Controller
TEC24VCNTLRN, TEC48VCNTLRN Models
INSTRUCTION MANUAL
WARRANTY AND RETURN POLICY
https://hoffman.nvent.com/en/hoffman/warranty-information
INSTALLATION INSTRUCTIONS
The Thermoelectric Temperature Controller is designed to mount directly on all Thermoelectric Cooler (TEC) models, or it can be mounted in any convenient location near the TEC using the included bracket and screws. The location should take into consideration the desired position of the thermistor sensing bead and the 36 in. (915 mm) length of the supplied thermistor harness. It is recommended, but not required, that the thermistor sensing bead be located at the inlet of the inside fan.
First determine the controller mounting location, either directly on the TEC or another suitable location. If mounting on the TEC, use the existing 0.136 in. diameter holes in the heat sink cover. If mounting to something other than the TEC, the bracket can be
used as a template for locating the mounting holes. Drill 0.136 in. diameter holes (#29 drill bit) if required, and mount the bracket to the selected location using the supplied (2) #8-18 Type AB tapping screws. Next mount the controller to the bracket using the four supplied #4-40 screws.
POWER SUPPLY
A SELV power source is required.
WIRING
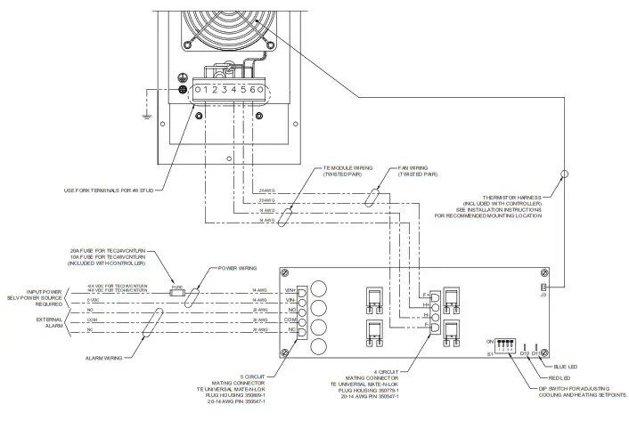
Connect the controller and TEC as shown in the wiring diagrams. Wire harnesses and the fuse are both included with the controller. See Table 1 – Inline Fuse Specification for replacement fuse specifications. Ensure that higher potential input power conductor
is connected to the (VIN+) terminal and lower potential is connected to the (VIN–) terminal. Input power conductors shall be no longer than 10 feet. TE module and fan wires between the controller and TEC each shall be twisted pairs, no longer than 3 feet.
Table 1 – Inline Fuse Specification
| Controller Kit Model | Fuse Rating | Fuse Part Number |
| TEC24VCNTLRN | 20 A | Littelfuse 314020P or Cooper Bussman ABC-20-R |
| TEC48VCNTLRN | 10:00 AM | Littelfuse 314010P or Cooper Bussman ABC-10-R |
NOTE: Fuse supplied with the controller must be installed in the inline fuseholder in the power harness.
WIRING DIAGRAM

SETUP
Cooling and heating temperature setpoints are factory set to 95 F/35 C for cooling and 59 F/15 C for heating.
These setpoints can be changed by adjusting the 4-position dip switch on the printed circuit board assembly (S1). See Table 2 – Cooling and Heating Setpoints.
Note: The heating function includes a disabled position.
Table 2 – Cooling and Heating Setpoints
| Cooling Setpoint (°C) | S1 Position 1 | S1 Position 2 | S1 Position 3 | S1 Position 4 | BLUE LED at Startup |
| 35 Factory Default | ON | ON | See Heating Setpoint below | Blinks 1 | |
| 30 | ON | OFF | Blinks 2 | ||
| 25 | OFF | ON | Blinks 3 Times | ||
| 23. | OFF | OFF | Blinks 4Times | ||
| Heating Setpoint (°C) | S1 Position 1 | S1 Position 2 | S1 Position 3 | S1 Position 4 | RED LED at Startup |
| 15 Factory Default | Setpoint above | ON | ON | Blinks 1 | |
| 5 | See Cooling | ON | OFF | Blinks 2 | |
| -5 | OFF | ON | Blinks 3 Times | ||
| No Heat | OFF | OFF | Blinks 4 Times | ||
Table 3 – Design Data
| Technical Data | Part Number | |
| TEC24VCNTLRN | TEC48VCNTLRN | |
| Rated Voltage (VDC) | 24 | 48 |
| Operating Range (VDC) | 18 to 30 | 40 to 60 |
| Maximum Current @ Rated Voltage (Amps) ** | 17.2 | 8.6 |
| Operating Temperature (°F/°C) | -40 to +149/ -40 to +65 | |
| Alarm Contact Rating | 1)0.5 Amax@ 24 VDC – from same source of power as unit, SELV, non-power limited (greater than 15 W); OR 2) 0.5 A max @ 24 VAC – from SELV, Class 2 safety isolating transformer. | 1) 0.5 Amax@ 48 VDC – from same source of power as unit, SELV, non-power limited (greater than 15 W); OR 2) 0.5 Amax@ 24 VAC – from SELV, Class 2 safety isolating transformer. |
| Temperature Accuracy (°F/°C) | ±3.6/2 | |
| High Temperature Alarm (°F/°C) | 27/15 above cooling setpoint | |
| Low Temperature Alarm (°F/°C) | *18/10 below heating setpoint, N/A if heating is disabled. | |
* If heating is disabled, there is no low temp alarm.
** Actual current draw will depend on the TEC model connected.
DETAIL DRAWING

OPERATION
Each time power is applied, the controller will step though a start-up sequence. This consists of indicating the current cooling and heating settings, and turning on the cooling and heating function such that proper operation of the TEC can be verified. The
sequence is as follows:
- The blue cooling LED blinks for a half second ON and half second OFF for the appropriate number of times (see Table 2 – Cooling and Heating Setpoints).
- The red heating LED blinks for half second ON and half second OFF for the appropriate number of times (see Table 2 – Cooling and Heating Setpoints).
- The TEC ramps up in cooling mode for 5 seconds. The blue cooling LED flashes rapidly.
- The TEC ramps up in heating mode for 5 seconds. The red heating LED flashes rapidly.
The controller will command the TEC to cool if the temperature read by the thermistor is above the cooling setpoint, and to heat if the temperature is below the heating setpoint. If heating is called for, the controller will automatically reverse the DC voltage to the TE modules. During cooling, H+ is a higher potential than H-. During heating, H- is a higher potential than H+. The controller logic will slowly ramp power to the peltier chips. If the temperature read by the thermistor is between the cooling and heating setpoints, the controller will be in a standby mode with no power applied to the TEC modules. The normally open (NO) alarm dry contact will close when an alarm occurs, including loss of power. The normally closed (NC) contact will open when an alarm occurs.
Table 4 – LED and alarm connection status
| Status | Red | Blue | Com-NO | Com-NC |
| OFF | OFF | OFF | Closed | Open |
| Start up sequence – see Table 2 – Cooling and Heating Setpoints | Flashes | Flashes | Toggles | Toggles |
| ON – Standby | OFF | OFF | Open | Closed |
| ON – Cooling | OFF | ON | Open | Closed |
| ON – Cooling/High Temp Alarm | Flashing | ON | Closed | Open |
| ON – Heating | ON | OFF | Open | Closed |
| ON – Heating/Low Temp Alarm | ON | Flashing | Closed | Open |
| ON – Temp Sensor Failure | Flashing | Flashing | Closed | Open |
nVent
2100 Hoffman Way
Anoka, MN 55303 USA
+1.763.422.2211
+1.763.576.3200
nVent.com
Rev. E
© 2018 nVent
P/N 89109826
89109826












