HARVIA D29SE Delta Combi Electric Sauna Heater

D29SE


These instructions for installation and use are intended for the owner or the person in charge of the sauna, as well as for the electrician in charge of the electrical installation of the heater. After completing the installation, the person in charge of the installation should give these instructions to the owner of the sauna or to the person in charge of its operation. Please read the instructions for use carefully before using the heater.
The heater is designed for the heating of a sauna room to bathing temperature. It is not to be used for any other purpose.
Congratulations on your choice!
Guarantee
- The guarantee period for heaters and control equipment used in saunas by families is two (2) years.
- The guarantee period for heaters and control equipment used in saunas by building residents is one (1) year.
- The guarantee period for heaters and control equipment used in saunas by institutions is three (3) months.
- The guarantee does not cover any faults resulting from failure to comply with installation, use or maintenance instructions.
- The guarantee does not cover any faults resulting from the use of stones not recommended by the heater manufacturer.
INSTRUCTIONS FOR USE
Piling of the Sauna Stones
The piling of the sauna stones has a great effect on the functioning of the heater (figure 1).
Important information on sauna stones:
- The stones should be 5–10 cm in diameter.
- Use solely angular split-face sauna stones that are intended for use in a heater. Peridotite, olivine-dolerite and olivine are suitable stone types.
- Neither light, porous ceramic “stones“ nor soft soapstones should be used in the heater. They do not absorb enough heat when warmed up. This can result in damage in heating elements.
- Wash off dust from the stones before piling them into the heater.
Please note when placing the stones:
- Do not drop stones into the heater.
- Do not wedge stones between the heating elements.
- Place the stones sparsely to ensure that air can circulate between them.
- Pile the stones so that they support each other instead of lying their weight on the heating elements.
- Do not form a high pile of stones on top of the heater.
- No such objects or devices should be placed inside the heater stone space or near the heater that could change the amount or direction of the air flowing through the heater.

Maintenance
Due to large variation in temperature, the sauna stones disintegrate in use. Rearrange the stones at least once a year or even more often if the sauna is in frequent use. At the same time, remove any pieces of stones from the bottom of the heater and replace any disintegrated stones with new ones. By doing this, the heating capability of the heater stays optimal and the risk of overheating is avoided.
Heating of the Sauna
When operating the heater for the first time, both the heater and the stones emit smell. To remove the smell, the sauna room needs to be efficiently ventilated.
If the heater output is suitable for the sauna room, it will take about an hour for a properly insulated sauna to reach the required bathing temperature ( 2.3.). The sauna stones normally reach the bathing temperature at the same time as the sauna room. A suitable temperature for the sauna room is about 65–80 °C.
Before switching the heater on always check that there isn’t anything on top of the heater or inside the given safety distance. 1.8.
Throwing Water on Heated Stones
The air in the sauna room becomes dry when warmed up. Therefore, it is necessary to throw water on the heated stones to reach a suitable level of humidity in the sauna. The effect of heat and steam on people varies – by experimenting, you can find the levels of temperature and humidity that suit you best.
The maximum volume of the ladle is 0.2 litres.
If an excessive amount of water is poured on the stones, only part of it will evaporate and the rest may splash as boiling hot water on the bathers. Never throw water on the stones when there are people near the heater, because hot steam may burn their skin.
The water to be thrown on the heated stones should meet the requirements of clean household water (table 1). Only special aromas designed for sauna water may be used. Follow the instructions given on the package
| Water property | Effect | Recommendation |
| Humus concentration | Colour, taste, precipitates
| <12 mg/l |
| Iron concentration | Colour, odour, taste, precipitates
| <0,2 mg/l |
| Hardness: most important substances are manganese (Mn) and lime, i.e. calcium (Ca) | Precipitates | Mn: <0,05 mg/l Ca: <100 mg/l |
| Chlorinated water | Health risk | Forbidden to use
|
| Seawater | Rapid corrosion | Forbidden to use
|
Table 1. Water quality requirements
Heating of the Sauna Using the Steamer With the Combi heater, the sauna can be heated either in the usual way or by using its evaporator.
- Always fill the water reservoir before use!
- The evaporator has a 5 l water tank (D-SE: 2 l) so it can be on continuously for approximately 2 hours. The tank should be filled when the heater is cold.
- To ensure ideal humidity, the sauna temperature should be quite low, preferably about 40 ºC, and the evaporator should be left on for approximately 1 hour to heat the sauna.
- Filling the Water Reservoir, Cold Steamer Fill the reservoir with clean household water. The maximum capacity of the reservoir is approximately 5 litres (D-SE: approx. 2 litres). Figure 2.
- Filling the Water Reservoir, Hot Steamer When the steamer is hot, filling or adding water should be avoided, because the hot steam and hot steamer may cause burns. If, however, you have to fill the water tank while it is hot, proceed as follows, exercising extreme caution:
- Switch the steamer off.
- Pour cold water carefully onto the grille of the water reservoir. The water runs into the reservoir cooling down the hot water inside.
- Drain off the cool water from the reservoir into a can or bucket and pour it down the drain.
- Fill the water reservoir as instructed in section 1.3.1.
- Draining the Water Reservoir
In order to ensure faultless operation of the steamer, the water reservoir must always be emptied after use. This procedure removes impurities condensed in the reservoir as result of evaporation.
Because the water in the reservoir is very hot immediately after use, it should be drained only after the water has cooled for a few hours after switching the steamer off. Figure 2.
Please also see subsections 1–3 of section 1.3.2.
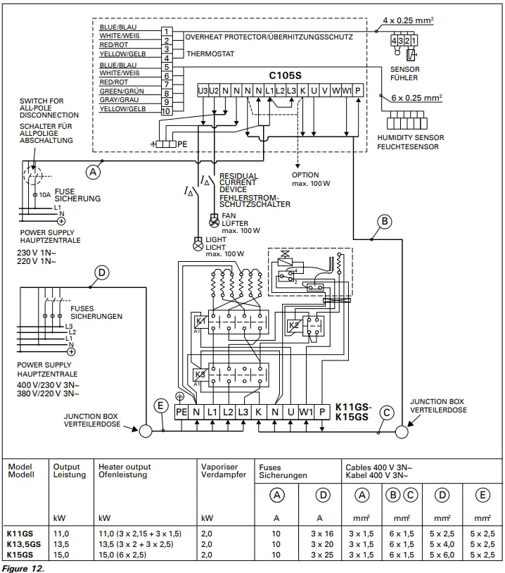
- Combi Heaters with an Automatic Water Filling System (KV50SEA–KV90SEA, T7CA–T9CA, K11GS-K15GS)
Combi heaters that have an automatic water filling system fill the tank automatically if the evaporator switch (2) is in the ON-position. Close the tank drainage valve and open the filling shut-off valve of the tank. See pictures 2 and 7.
Close the shut-off valve once you have ended bathing. See also 1.3.3. - The Use of Fragrances – does not apply Delta Combi (D-SE) and Club Combi (K-GS) Liquid fragrances and fragrance bags can be used in the steamer. Liquid fragrances are poured into the stone cups in the steamer. Fragrance bags are placed on top of the steam grating.
When using fragrances, mind the hot steam evaporating from the steamer as it may burn. Avoid adding of water and placing of fragrances to a hot steamer.
The stone cups must be washed with running water as often as necessary. - Drying the Sauna Room
The sauna room must always be allowed to dry thoroughly after the steamer has been used. In order to speed up the drying process, the heater can be left on with the sauna ventilation also on to the maximum.
If the heater is used to help dry out the sauna room, remember to switch it off after the given period of time. - Cleaning the Steamer
Impurities from water, e.g. lime, will accumulate on the walls of the steamer’s water reservoir. For decalcification we recommend decalcifying agents intended for household appliances, e.g. coffeemakers and water kettles. These agents are to be used as instructed by the manufacturer. The outside of the steamer can be cleaned with the damp cloth. When cleaning the outside, ensure that the steamer’s operating switch is OFF. - Instructions for Bathing
- Begin by washing yourself.
- Stay in the sauna for as long as you feel comfortable.
- Forget all your troubles and relax.
- According to established sauna conventions, you must not disturb other bathers by speaking in a loud voice.
- Do not force other bathers from the sauna by throwing excessive amounts of water on the stones.
- Cool your skin down as necessary. If you are in good health, you can have a swim if a swimming place or pool is available.
- Wash yourself after bathing.
- Rest for a while and let your pulse go back to normal. Have a drink of fresh water or a soft drink to bring your fluid balance back to normal.
- Warnings
- Staying in the hot sauna for long periods of time makes the body temperature rise, which may be dangerous.
- Keep away from the heater when it is hot. The stones and outer surface of the heater may burn your skin.
- Keep children away from the heater.
- Do not let young, handicapped or ill people bathe in the sauna on their own.
- Consult your doctor about any health-related limitations to bathing.
- Consult your child welfare clinic about taking little babies to the sauna.
- Be very careful when moving in the sauna, as the platform and floors may be slippery.
- Never go to a hot sauna if you have taken alcohol, strong medicines or narcotics.
- Never sleep in a hot sauna.
- Sea air and a humid climate may corrode the metal surfaces of the heater.
- Do not hang clothes to dry in the sauna, as this may cause a risk of fire. Excessive moisture content may also cause damage to the electrical equipment.
- Troubleshooting
If the steamer does not work, check the following:- is the water level in the reservoir sufficient?(see section 1.3.)
- has the overheat protector engaged? (reset button on bottom of steamer)
- is the humidity in the sauna too high?
- is the steamer thermostat set at maximum?If the heater does not heat, check the following:
- the electricity has been switched on
- the thermostat shows a higher figure than the temperature of the sauna.
- he fuses to the heater are in good condition.
SAUNA ROOM
Sauna Room Structure
- Insulation wool, thickness 50–100 mm. The sauna room must be insulated carefully so that the heater output can be kept moderately low.
- Moisture protection,e.g. aluminium paper. Place the glossy side of the paper towards the sauna. Tape the seams with aluminium tape.
- Vent gap of about 10 mm between the moisture protection and panel (recommendation).
- Low mass 12–16 mm thick panel board. Before starting the panelling, check the electric wiring and the reinforcements in the walls required by the heater and benches.
- Vent gap of about 3 mm between the wall and ceiling panel.
- The height of the sauna is usually 2100– 2300 mm. The minimum height depends on the heater (see table 2). The space between the upper bench and ceiling should not exceed 1200 mm.
- Use floor coverings made of ceramic materials and dark joint grouts. Particles disintegrating from the sauna stones and impurities in the sauna water may stain and/or damage sensitive floor coverings.
NOTE! Check from the fire authorities which parts of the firewall can be insulated. Flues which are in use must not be insulated.
NOTE! Light protective covers which are installed directly to the wall or ceiling may be a fire risk.
NOTE! Make sure that the water dripping onto the sauna floor enters the floor drain.
Blackening of the Sauna Walls
It is perfectly normal for the wooden surfaces of the sauna room to blacken in time. The blackening may be accelerated by
- sunlight
- heat from the heater
- protective agents on the walls (protective agents have a poor heat resistance level)
- fine particles disintegrating from the sauna stones which rise with the air flow.
Sauna Room Ventilation
The air in the sauna room should change six times per hour. Figure 4 illustrates different sauna room ventilation options.

- A. Supply air vent location. If mechanical exhaust ventilation is used, place the supply air vent above the heater. If gravity exhaust ventilation is used, place the supply air vent below or next to the heater. The diameter of the supply air pipe must be 50–100 mm. Do not place
the supply air vent so that the air flow cools the temperature sensor (see the temperature sensor installation instructions in the control unit installation instructions)! - B. Exhaust air vent. Place the exhaust air vent near the floor, as far away from the heater as possible. The diameter of the exhaust air pipe should be twice the diameter of the supply air pipe.
- C. Optional vent for drying (closed during heating and bathing). The sauna can also be dried by leaving the door open after bathing.
- D. If the exhaust air vent is in the washroom, the gap underneath the sauna door must be at least 100 mm. Mechanical exhaust ventilation is mandatory.
Heater Output
When the walls and ceiling are covered with panels and insulation behind the panels is adequate, the heater output is defined according to the volume of the sauna. Non-insulated walls (brick, glass block, glass, concrete, tile, etc.) increase the need for heater output. Add 1,2 m³ to the volume of the sauna for each non-insulated wall square meter. For example, a 10 m³ sauna room with a glass door equals the output requirement of about a 12 m³ sauna room. If the sauna room has log walls, multiply the sauna’s volume by 1,5. Choose the correct heater output from Table 2.
Sauna Room Hygiene
Bench towels should be used during bathing to prevent sweat from getting onto the benches.
The benches, walls and floor of the sauna should be washed thoroughly at least every six months. Use a scrubbing brush and sauna detergent.
Wipe dust and dirt from the heater with a damp cloth. Remove lime stains from the heater using a 10% citric acid solution and rinse.
INSTRUCTIONS FOR INSTALLATION
Before Installation
Before installing the heater, study the instructions for installation. Check the following points:
- Is the output and type of the heater suitable for the sauna room? The cubic volumes given in table 2 should be followed.
- Is the supply voltage suitable for the heater?
- The location of the heater fulfils the minimum requirements concerning safety distances given in fig. 5 and table 2.
- It is absolutely necessary to ensure that the installation is carried out according to these values. Neglecting them can cause a risk of fire.
- Only one electrical heater may be installed in the sauna room.
- The heater should be installed so that the warning texts can also be read without difficulty after the installation.
- The heaters must not be mounted in a recess.
Heater Ofen Model and dimensions Modell und Maße
Output Leistung Vaporizer Verdampfer Sauna room Saunakabine Minimum distances Min. Abstand des Ofen Connecting cable Anschlußkabel Fuse Sicherung Output Leistung
Max. vaporisation efficiency Verdampfungs- leistung Cubic vol Rauminhalt
Height Höhe
A
B
To ceiling Zur Decke To floor Zum Boden 400 V 3N~
Width/Breite 505 mm Depth/Tiefe kW kW kg/h min m³ max m³ min mm *) mm mm mm mm mm² A 490 mm Height/Höhe 700 mm
2.3.!
See fig. 5. Siehe Abbildung 5.
See fig. 8. Siehe Abb. 8.
Weight/Gewicht 30 kg K11GS 11,0 2,0 4,5 9 16 1900 70 50 1200 – 5 x 1,5+6 x 1,5 3 x 16 Stoneamount/ Steinkammer
K13,5GS 13,5 2,0 4,5 11 20 2100 100 50 1400 – 5 x 2,5+6 x 1,5 3 x 20 K15GS 15,0 2,0 4,5 14 24 2100 100 50 1400 – 5 x 2,5+6 x 1,5 3 x 25 max. 60 kg Width/Breite 345 mm Depth/Tiefe 465 mm Height/Höhe 660 mm
**) Weight/Gewicht 21 kg Stoneamount/ Steinkammer
T7C T7CA 7,0 2,0 2,5 6 9 1900 80 60 1250 – 5 x 2,5+2 x 2,5 3 x 16 T9C 9,0 2,0 2,5 8 14 1900 120 80 1250 – 5 x 2,5+2 x 2,5 3 x 16 max. 35 kg T9CA Width/Breite 400 mm Depth/Tiefe KV50SE KV50SEA 5,0 2,0 2,5 3 6 1900 35 20 1100 150 5 x 1,5+2 x 1,5 3 x 10 6,0 2,0 2,5 5 8 1900 50 60 1100 150 5 x 1,5+2 x 1,5 3 x 10 360 mm Height/Höhe 640 mm
KV60SE KV60SEA 8,0 2,0 2,5 7 12 1900 100 90 1100 150 5 x 2,5+2 x 2,5 3 x 16 Weight/Gewicht KV80SE 16 kg Stoneamount/ Steinkammer
KV80SEA KV90SE 9,0 2,0 2,5 8 14 1900 120 100 1100 150 5 x 2,5+2 x 2,5 3 x 16 max. 20 kg KV90SEA Width/Breite 340 mm Depth/Tiefe 200 mm Height/Höhe 635 mm Weight/Gewicht 8 kg Stoneamount/ Steinkammer max. 11 kg 230 V 1N~
D29SE 2,9 1,0 1,0 1,5 4 1900 10 – 900 150 3 x 2,5 1 x 16 (1 x 13)
Table 2. Installation details of a Combi heater


Fastening the Heater
D29SE
Note! Connect the connecting cable to the heater before fastening the heater to its wall rack. 3.6.
The installation rack is fastened to the heater.
Remove the locking screw and detach the rack from the heater.
- Fasten the installation rack to the wall using the screws which come with the rack. Observe the minimum safety distances specified in figure 5.
The installation dimensions of the rack are shown in fig. 6.
NOTE! There must be a support, e.g. a board, behind the panel, so that the fastening screws can be screwed into a thicker wooden material than the panel. If there are no boards behind the panel, the boards can also be fastened on the panel. - Lift the heater onto the rack installed on the wall so that the fastening hooks at the bottom of the rack go behind the edge of the heater body and the groove at the top of the heater is pressed on top of the rack.
- Lock the heater to the rack using a screw at the top edge.
KV50SE-KV90SE
- Fasten the wall-mounting rack on the wall by using the screws which come with the rack. Observe the minimum safety distances given in table 2 and fig. 5. The fastening of the mounting rack is shown in fig. 6.
NOTE! There must be a support, e.g. a board, behind the panel, so that the fastening screws can be screwed into a thicker wooden material than the panel. If there are no boards behind the panel, the boards can also be fastened on the panel. - Lift the heater onto the rack on the wall so that the ends of the fastening bars go into the holes in the bottom of the heater.
- Fasten the upper part of the heater to the wallmounting rack by using the fastening clamp.
T7C-T9C, K11GS-K15GS
The heater is fixed to the floor at its two legs, at the legs’ fixing points.
Before fixing the heater, the minimum safety distances to combustible materials must be taken into consideration. See Table 2 and Figure 5.
Safety Railing
If a safety railing is built around the heater, the minimum distances given in fig. 5 and table 2 must be observed.
Installation of the control unit and sensors
The control unit includes detailed instructions for mounting the unit on the wall.
Automatic filling (KV50SEA-KV90SEA,
T7CA-T9CA, K11GS-K15GS)
Connect the heater to cold water mains using a flexible hose. Make sure that the connection has a shut-off valve. See picture 7. The sauna and/or washing facilities should have a floor drain in case of hose damage or leaks.

Electrical Connections
The heater may only be connected to the electrical network in accordance with the current regulations by an authorised, professional electrician.
- The heater is semi-stationarily connected to the junction box (figure 8: 1) on the sauna w all.
- The junction box must be splash-proof, and its maximum height from the floor must not exceed 500 mm.
- The connecting cable (figure 8: 2) must be of rubber cable type H07RN-F or its equivalent.
NOTE! Due to thermal embrittlement, the use of PVC-insulated wire as the connecting cable of the heater is forbidden. - If the connecting and installation cables are higher than 1000 mm from the floor in the sauna or inside the sauna room walls, they must be able to endure a minimum temperature of 170 °C when loaded (for example, SSJ). Electrical equipment installed higher than 1000 mm from the sauna floor must be approved for use in a temperature of 125 °C (marking T125).
Electric Heater Insulation Resistance
When performing the final inspection of the electrical installations, a “leakage” may be detected when measuring the heater’s insulation resistance. The reason for this is that the insulating material of the heating elements has absorbed moisture from the air (storage, transport). After operating the heater for a few times, the moisture will be removed from
the heating elements. Do not connect the power feed for the heater through the RCD (residual current device)!































