HARVIA D23XE Electric Sauna Heater

Purpose of the electric heater:
The Delta XE heater is designed for the heating of small family saunas to bathing temperature. It is forbidden to use the heater for any other purposes.
- The guarantee period for heaters and control equipment used in saunas by families is two(2) years.
- The guarantee period for heaters and control equipment used in saunas by building residents is one (1) year.
- Please read the user’s instructions carefully before using the heater.
NOTE!
These instructions for installation and use are intended for the owner or the person in charge of the sauna, as well as for the electrician in charge of the electrical installation of the heater.
After completing the installation, the person in charge of the installation should give these instructions to the owner of the sauna or to the person in charge of its operation. Congratulations on your choice!
INSTRUCTIONS FOR USE
Piling of the Sauna Stones
The sauna stones for an electric heater should be 4–8 cm in diameter. The heater stones should be solid blocks of stone specially intended for use in the heater. Neither light, porous ceramic “stones“ of the same size nor soft potstones should be used in the heater, because they may cause the resistance temperature to rise too high as a result of which the resistance may be broken.
Stone dust should be washed off before piling the stones. The stones should be piled into the stone compartment over the grating, between the heat-ing elements (resistances) so that the stones sup-port each other. The weight of the stones should not lie on the heating elements.
The stones should not be piled too tightly, so that air can flow through the heater. The stones should be fitted loosely, and not wedged between the heating elements. Very small stones should not be put into the heater at all.
The stones should completely cover the heating elements. However, they should not form a high pile on the elements. See fig. 1.
The stones disintegrate with use. Therefore, they should be rearranged at least once a year or even more often if the sauna is in frequent use. At the same time, any pieces of stones should be removed from the bottom of the heater, and disintegrated stones should be replaced with new ones.
The guarantee does not cover any faults caused by the use of stones not recommended by the plant. Neither does the guarantee cover any faults caused by disintegrated or too small stones blocking the heater ventilation.
No such objects or devices should be placed in-side the heater stone space or near the heater that could change the amount or direction of the air flowing through the heater, thus causing the resistance temperature to rise too high, which may set the wall surfaces on fire!
Heating of the Sauna
When the heater is switched on for the first time, both the heater and the stones emit smell. To remove the smell, the sauna room needs to be efficiently ventilated.
The purpose of the heater is to raise the temperature of the sauna room and the sauna stones to the required bathing temperature. If the heater output is suitable for the sauna room, it will take about an hour for a properly insulated sauna to reach that temperature. See item 2.1. A suitable temperature for the sauna room is about + 65 °C – +80 °C.
The sauna stones normally reach the required bathing temperature at the same time as the sauna room. If the heater capacity is too big, the air in the sauna will heat very quickly, whereas the temperature of the stones may remain insufficient; consequently, the water thrown on the stones will run through. On the other hand, if the heater capacity is too low for the sauna room, the room will heat slowly and, by throwing water on the stones, the bather may try to raise the temperature of the sauna. However, the water will only cool down the stones quickly, and after a while the sauna will not be warm enough and the heater will not be able to provide enough heat.
In order to make bathing enjoyable, the heater capacity should be carefully chosen to suit the size of the sauna room. See item 2.3. ”Heater Output”.

Using the Heater
When the heater is connected to the power supply and the main switch is switched on, the heater is in standby mode and ready for use. I/O button’s background light glows on the control panel.
WARNING! Before switching the heater on always check that there isn’t anything on top of the heater or inside the given safety distance.
Heater On
Start the heater by pressing the heater I/O button on the control panel.
When the heater starts, the top row of the display will show the set temperature and the bottom row will show the set on time for five seconds.
When the desired temperature has been reached in the sauna room, the heating elements are automatically turned off. To maintain the desired temperature, the heater will automatically turn the heating elements on and off in periods.
Heater Off
The heater turns off and switches to standby-mode when
- the I/O button is pressed
- the on-time runs out or
- an error occurs.
NOTE! It is essential to check that the heater has turned off after the on-time has elapsed or the heater has been switched off manually.
Changing the Settings
The settings menu structure and changing the settings is shown in figures 3a and 3b.
The programmed temperature value and all values of additional settings are stored in memory and will also apply when the device is switched on next time.
Using Accessories
Lighting can be started and shut down separately from other functions. Figure 7.
Lighting
The lighting of the sauna room can be wired so that it can be controlled from the control panel. (Max 100 W.)
Switch the lights on/off by pressing the control panel button.
Safety and door switch
Safety switch refers to e.g. Harvia SFE, a safety device installed above or integrated to the heater, preventing the heater from heating should any object (e.g. towel, piece of clothing) drop or be placed on top of the heater and cause a fire hazard.
Door switch refers to a magnetic switch installed in the sauna room door frame, opening its circuit when the sauna room door is opened.
The switches are connected to the heater according to their manuals. See also figure 12 in this manual.
Remote switch
To remotely control the heater’s power input, the heater can be equipped with an on/off remote switch (e.g. building automation). For more information, see section 1.7.
Control panel lock
![]() | Press and hold the heater and light buttons for three seconds. |
![]()
| -CL- is shown on the display. Panel lock can be activated only in standby mode. Panel lock also prevents remote start. |
![]() | Basic mode (heater on) The top row shows the sauna room temperature. The bottom row shows the remaining on-time. Both indicator lights glow. |
![]() | Press the MENU button to open the settings menu. | |
![]() | Sauna room temperature The display shows the sauna room temperature setting. Temperature indicator light blinks. • Change the setting to the desired temperature with the – and + buttons. The range is 40–110 ºC. | |
![]() | Press the MENU button to access the next setting. | |
![]() | Remaining on-time Press the + and – buttons to adjust the remaining on-time. | |
| Example: the heater will be on for 3 hours and 40 minutes. | ||
![]() | Pre-setting time (timed switch-on) •Press the + button until you overstep the maximum on-time. Temperature indicator light switches off. Pre-setting time symbol blinks on the screen. •Select the desired pre-setting time using the – and + buttons. The time changes in 10 minute steps. | |
| Example: the heater will start after 10 minutes. | ||
![]() | Press the MENU button to exit. | |
![]() | Basic mode (pre-setting time running, heater off) The decrease of remaining pre-setting time is shown until zero appears, after which the heater is switched on. |
Figure 3a. Settings menu structure, basic settings
ADDITIONAL SETTINGS
![]() | Heater standby I/O button’s background light glows on the control panel. |
![]() | Open the settings menu by simultaneously pressing the locations of the buttons –, MENU and + (see figure 2). Press for 5 seconds. The buttons do not glow when the heater is in standby mode. | ||
![]() | Setting the remote use The remote use setting can be changed with the — and + buttons. The options are “OFF” (remote control disabled), “SAFE” (safety switch) and “door” (door switch).Confirm the selection with the MENU button. Setting pause time. Enable or disable the pause time feature with buttons + and -. Pause time must be enabled, if the heater is remotely started by an automated schedule (e.g. a weekly timer). | ||
![]() | Press the MENU button to access the next setting. | ||
![]() | Maximum on-time The maximum on-time can be changed with the – and + buttons. The range is 1–12 hours (6 hours*)). | ||
| Example: the heater will be on for 6 hours from the start. (Remaining on-time can be changed, see figure 3a.) | |||
![]() | Press the MENU button to access the next setting. | ||
![]() | Sensor reading adjustment The reading can be corrected by +/- 10 units. The adjustment does not affect the measured temperature value directly, but changes the measuring curve. | ||
![]() | Press the MENU button to access the next setting. | ||
![]() | Memory for power failures The memory for power failures can be turned ON or OFF *). | ||
![]() | Press the MENU button. The heater switches to standby-mode. | ||
Figure 3b. Settings menu structure, additional settings
*) Factory setting
Remote control
According to the product standard IEC/EN 60335 -2-53 regulating electrical sauna heaters, a control panel can be used to remotely control the heater once the heater or sauna room door is equipped with a secure switch (a safety or a door switch).
Using with a safety switch: the heater can be turned on remotely, if the safety switch circuit is closed. If the circuit is open, “SAFE” is displayed and the heater will not start.
Using with a door switch: remote use mode must be activated by pressing the heater button for three seconds. If the door switch circuit is open, “door OPEn” is displayed and the heater returns into standby mode. If the circuit is closed, the remote use mode is activated and “rc on” is displayed while the heater button blinks. The heater can now be turned on with a remote switch. If, during remote use mode, the door is opened, “door OPEn” is displayed and the heater returns into standby mode.
Pause time: These features are limited by a pause time that prevents the heater from turning on if it has been less than 6 hours since the heater was last turned off. Trying to remotely turn the heater on during the pause time period (6 hours), text ”rESt” is displayed. The heater can be remotely started after the pause time has elapsed and ”rc” is displayed.
Memory for power failures: the heater resumes operation, if the remote switch has remained in ON position.
Preset time: if the heater is on preset delay time, it cannot be controlled with a remote switch. After the preset delay has passed and the heater is turned on, it can be turned off with a remote switch.
| Water properties | Effect | Recommendation |
| Humus | Color, taste, precipitates | <12 mg/l |
| Iron concentration | Color, odor, taste, precipitates | <0,2 mg/l |
| Manganese (Mn) concentration | Color, odor, taste, precipitates | <0,10 mg/l |
| Hardness: most important substances are manganese (Mn) and calcium (Ca) | Precipitates | Mg: <100 mg/l Ca: <100 mg/l |
| Chloride (Cl) containing water | Corrosion | Cl: <100 mg/l |
| Chlorinated water | Health risk | Forbidden to use |
| Seawater | Rapid corrosion | Forbidden to use |
| Arsenic and radon concentration | Health risk | Forbidden to use |
Table 1. Water quality requirements
Power saving mode
If no buttons are pressed in 30 minutes, power saving mode is activated. Only the heater button (and “rc on”, if remote use mode is active) is lit.
Throwing Water on Heated Stones
The air in the sauna room becomes dry when warmed up. Therefore, it is necessary to throw water on the heated stones to reach a suitable level of humidity in the sauna. The effect of heat and steam on people varies – by experimenting, you can find the levels of temperature and humidity that suit you best.
You can adjust the nature of the heat from soft to sharp by throwing water either to the front of the heater or straight on top of the stones.
The maximum volume of the ladle is 0.2 liters.
If an excessive amount of water is poured on the stones, only part of it will evaporate and the rest may splash as boiling hot water on the bathers. Never throw water on the stones when there are people near the heater, because hot steam may burn their skin.
The water to be thrown on the heated stones should meet the requirements of clean household water (table 1). Only special aromas designed for sauna water may be used. Follow the instructions given on the package.
Instructions for Bathing
- Begin by washing yourself.
- Stay in the sauna for as long as you feel comfortable.
- Forget all your troubles and relax.
- According to established sauna conventions, you must not disturb other bathers by speaking in a loud voice.
- Do not force other bathers from the sauna by throwing excessive amounts of water on the stones.
- Cool your skin down as necessary. If you are in good health, you can have a swim if a swimming place or pool is available.
- Wash yourself after bathing.
- Rest for a while and let your pulse go back to normal. Have a drink of fresh water or a soft drink to bring your fluid balance back to normal.
Warnings
- Staying in the hot sauna for long periods of time makes the body temperature rise, which may be dangerous.
- Keep away from the heater when it is hot. The stones and outer surface of the heater may burn your skin.
- Keep children away from the heater.
- Do not let young, handicapped or ill people bathe in the sauna on their own.
- Consult your doctor about any health-related limitations to bathing.
- Consult your child welfare clinic about taking little babies to the sauna.
- Be very careful when moving in the sauna, as the platform and floors may be slippery.
- Never go to a hot sauna if you have taken alcohol, strong medicines or narcotics.
- Never sleep in a hot sauna.
- Sea air and a humid climate may corrode the metal surfaces of the heater.
- Do not hang clothes to dry in the sauna, as this may cause a risk of fire. Excessive moisture content may also cause damage to the electrical equipment.
- Do not clean the sauna heater with a water jet.
Symbols descriptions
Read operators manual.
Do not cover.
Troubleshooting
All service operations must be done by professional maintenance personnel.
The heater does not heat.
- Check that the fuses to the heater are in good condition.
- Check that the connection cable is connected.
- Check that the control panel shows a higher figure than the temperature of the sauna.
- Check that the overheat protector has not gone off. ( 3.6.)
The sauna room heats slowly. The water thrown on the sauna stones cools down the stones quickly.
- Check that the fuses to the heater are in good condition.
- Check that all heating elements glow when the heater is on.
- Turn the temperature to a higher setting.
- Check that the heater output is sufficient ( 2.3.).
- Check the sauna stones ( 1.1.). Too tightly piled stones, the settling of stones with time or wrong stone type can hinder the air flow through the heater, which results in reduced heating efficiency.
- Check that the sauna room ventilation has been arranged correctly ( 2.2.).
The sauna room heats quickly, but the temperature of the stones remain insufficient. Water thrown on the stones runs through.
- Check that the heater output is not too high ( 2.3.).
- Check that the sauna room ventilation has been arranged correctly ( 2.2.).
Panel or other material near the heater blackens quickly.
- Check that the requirements for safety distances are fulfilled ( 3.).
- Check the sauna stones ( 1.1.). Too tightly piled stones, the settling of stones with time or wrong stone type can hinder the air flow through the heater, which may result in overheating of surrounding materials.
- Check that no heating elements can be seen behind the stones. If heating elements can be seen, rearrange the stones so that the heating elements are covered completely ( 1.1.).
- Also see section 2.1.1.
The heater emits smell.
- See section 1.2.
The hot heater may emphasize odors mixed in the air that are not, however, caused by the sauna or the heater.
Examples: paint, glue, oil, seasoning.
| Description | Remedy | ||
| E1 | Temperature sensor’s measuring circuit broken. | Check the red and yellow wires to the temperature sensor and their connections for faults. | |
| E2 | Temperature sensor’s measuring circuit short-circuited. | Check the red and yellow wires to the temperature sensor and their connections for faults. | |
| E3 | Overheat protector’s measuring circuit broken. | Press the overheat protector’s reset button ( 3.6.). Check the blue and white wires to the temperature sensor and their connections for faults. | |
| E9 | Connection failure in the system. | Switch the power off from the main switch. Check the data cable, sensor cable/s and their connections. Switch the power on. | |
| STATUS MESSAGES | |||
| door open | Door switch circuit is open | Close the sauna room door | |
| SAFE | Safety switch circuit is open | Remove the object from atop the safety switch | |
| rEST | Pause time active | – | |
| rc on | Remote control activated | – | |
SAUNA ROOM

Sauna Room Structure
- A. Insulation wool, thickness 50–100 mm. The sauna room must be insulated carefully so that the heater output can be kept moderately low.
- B. Moisture protection, e.g. aluminum paper. Place the glossy side of the paper towards the sauna. Tape the seams with aluminum tape.
- C. Vent gap of about 10 mm between the moisture protection and panel (recommendation).
- D. Low mass 12–16 mm thick panel board. Before starting the paneling, check the electric wiring and the reinforcements in the walls required by the heater and benches.
- E. Vent gap of about 3 mm between the wall and ceiling panel.
- F. The height of the sauna is usually 2100–2300 mm. The minimum height depends on the heater (see table 2). The space between the upper bench and ceiling should not exceed 1200 mm.
- G. Use floor coverings made of ceramic materials and dark joint grouts. Particles disintegrating from the sauna stones and impurities in the sauna water may stain and/or damage sensitive floor coverings.
NOTE! Check from the fire authorities which parts of the firewall can be insulated. Flues which are in use must not be insulated.
NOTE! Light protective covers which are installed directly to the wall or ceiling may be a fire risk.
Blackening of the Sauna Walls
It is perfectly normal for the wooden surfaces of the sauna room to blacken in time. The blackening may be accelerated by
- sunlight
- heat from the heater
- protective agents on the walls (protective agents have a poor heat resistance level)
- fine particles disintegrating from the sauna stones which rise with the air flow.
Sauna Room Ventilation
The air in the sauna room should change six times per hour. Figure 5 illustrates different sauna room ventilation options.
- Supply air vent location. If mechanical exhaust ventilation is used, place the supply air vent above the heater. If gravity exhaust ventilation is used, place the supply air vent below or next to the heater. The diameter of the supply air pipe must be 50–100 mm. Do not place the supply air vent so that the air flow cools the temperature sensor!
- Exhaust air vent. Place the exhaust air vent near the floor, as far away from the heater as possible. The diameter of the exhaust air pipe should be twice the diameter of the supply air pipe.
- Optional vent for drying (closed during heating and bathing). The sauna can also be dried by leaving the door open after bathing.
- If the exhaust air vent is in the washroom, the gap underneath the sauna door must be at least 100 mm. Mechanical exhaust ventilation is mandatory.

Heater Output
When the walls and ceiling are covered with panels and insulation behind the panels is adequate, the heater output is defined according to the volume of the sauna. Non-insulated walls (brick, glass block, glass, concrete, tile, etc.) increase the need for heater output. Add 1,2 m³ to the volume of the sauna for each non-insulated wall square meter. For example, a 10 m³ sauna room with a glass door equals the output requirement of about a 12 m³ sauna room. If the sauna room has log walls, multiply the sauna’s volume by 1,5. Choose the correct heater output from Table 2.
Sauna Room Hygiene
Bench towels should be used during bathing to prevent sweat from getting onto the benches.
The benches, walls and floor of the sauna should be washed thoroughly at least every six months. Use a scrubbing brush and sauna detergent.
Wipe dust and dirt from the heater with a damp cloth. Remove lime stains from the heater using a 10% citric acid solution and rinse.
INSTRUCTIONS FOR INSTALLATION
Prior to Installation
Prior to installing the heater, study the instructions for installation, as well as checking the following points:
- Is the output and type of the heater suitable for the sauna room?
The cubic volumes given in table 2 should be followed.
- Are there a sufficient number of high quality sauna stones?
- Is the supply voltage suitable for the heater?
- The location of the heater fulfils the minimum requirements concerning safety distances given in fig. 7 and table 2.
It is absolutely necessary to ensure that the installation is carried out according to these values. Neglecting them can cause a risk of fire. Only one electrical heater may be installed in the sauna room.
| Heater/Ofen Model and dimensions | Output | Sauna room | Connecting cable/Fuse | |||||
| Cubic vol. | Height | 400 V 2N~ | Fuse | 230 V 1N~ | Fuse | |||
| Width340 mm Height 635 mm Weight 8 kg Stones |
kW | See item 2.3. | mm2 | A | mm2 | A | ||
| min. m3 | max. m3 | min. mm | ||||||
| D23XE (* | 2,3 | 1,3 | 2,5 | 1700 | 4 x 1,5 | 2 x 10 | 3 x 1,5 | 1 x 10 |
| D36XE (* | 3,6 | 2,0 | 4,5 | 1700 | 4 x 1,5 | 2 x 10 | 3 x 2,5 | 1 x 16 |
Table 2. Installation details of DXE-heater

Figure 7. Safety distances from the heater 
Fastening the heater to the wall
Note! Connect the connecting cable to the heater before fastening the heater to its wall rack. See the figures 8 and 11.
The installation rack is fastened to the heater. Re-move the locking screw and detach the rack from the heater.
- Fasten the installation rack to the wall using the screws which come with the rack. Observe the minimum safety distances specified in figure 7. The installation dimensions of the rack are shown in fig. 8.
NOTE! There should be a support, e.g. plywood or a board, behind the panel, so that the fastening screws can be screwed into thicker wooden material than the panel. If there is no plywood or board behind the panel, the boards can also be fastened on the panel. Note! The heater must not be sup-ported by just the panels! - Lift the heater onto the rack installed on the wall so that the fastening hooks at the bottom of the rack go behind the edge of the heater body and the groove at the top of the heater is pressed on top of the rack.
- Lock the heater to the rack using a screw at the top edge.
Safety railing
If a safety railing is built around the heater, the minimum distances given in figures 7 and 9 must be observed.
The minimum distance specified in figure 9 applies below the top edge of the outer casing.
Installation of the control panel (Figure 10.)
The control panel is splash roof and has a small operating voltage. The panel can be installed in the washing or dressing room, or in the living quarters. If the panel is installed in the sauna room, it must be at the minimum safety distance from the heater and at a maximum height of one meter from the floor.
Conductor tubing (ø 30 mm) inside the wall structure allows you to thread the data cable hidden within the wall – otherwise the installation will have to be on the wall surface. We recommend you to install the control panel embedded in to the wall and far away from possible splashes.
- Thread the data cable through the hole in the back cover.
- Fasten the back cover to a wall with screws.
- Push the data cable to the connector.
- Press the front cover into the back cover.
Figure 10. Fastening the control panel


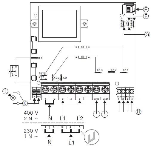
- E Control panel
- F Remote switch
- G Safety switch
- H Temperature sensor
- I Lighting (max 100 W)
- K Residual current device
Kuva 12. Electrical connections of the heaters
Electrical connections
The heater may only be connected to the mains in accordance with the current regulations by an authorized, professional electrician.
The heater is semi-stationarily connected to the junction box on the sauna wall. See figure 13. The connection cable must be of rubber cable type H07RN-F or its equivalent.
NOTE! Due to thermal embrittlement, the use of PVC-insulated wire as the connection cable of the heater is forbidden. The junction box must be splash proof, and its maximum height from the floor must not exceed 50 centimetres.
If the connection and installation cables are higher than 100 centimetres from the floor in the sauna or inside the sauna room walls, they must be able to endure a minimum temperature of 170 °C when loaded (for example, SSJ). Electrical equipment installed higher than 100 centimetres from the sauna floor must be approved for use in an ambient temperature of 125 °C (marking T125). Detailed instructions for exceptional installations are available from the local electrical authorities. The electric connections of the heater are shown in the figure 12
Resetting the overheating limiter
The components of the sensor box monitor the functioning of the control center. The temperature sensor and the overheating limiter are located in the sensor box. The temperature is sensed by an NTC thermistor, and the overheating limiter is a fuse, which in the case of a malfunction will cut off the heater power permanently. The fuse can be reset by pressing the reset button, see figure 14. Note! The reason for the going off must be determined before the button is pressed.
Electric heater insulation resistance
When performing the final inspection of the electrical installations, a “leakage” may be detected when measuring the heater’s insulation resistance. The reason for this is that the insulating material of the heating resistors has absorbed moisture from the air (storage transport). After operating the heater for a few times, the moisture will be removed from the resistors.
Do not connect the power feed for the heater through the RCD (residual current device)!
- Connection box
- Junction box
- Connection cable
Figure 13. Connections of the heater


Installing the temperature sensor near the ventilation valves.
SPARE PARTS

We recommend to use only the manufacturer’s spare parts.
| 1 | Heating element | 1800W/230V | ZSN-160 | D36XE (2 pcs/stk) |
| 2 | Heating element | 1150W/230V | ZSN-150 | D23XE (2 pcs/stk) |
| 3 | Thermostat / Overheat protector | WX248 | D23XE, D36XE | |
| 4 | Control panel | WX380 | D23XE, D36XE | |
| 5 | Data cable, 5 m | WX311 | D23XE, D36XE | |
| 6 | Circuit board | WX683 | D23XE, D36X7E | |
| 7 | End of connection box | ZST-350 | D23XE, D36XE |
P.O.Box 12 Teollisuustie 1-7 40951 Muurame FINLAND
+358 207 464 000 [email protected]
Адрес уполномоченного лица: ООО «Харвия Рус»
196006, Россия.Санкт-Петербург г, пр-кт Лиговский, д. 266, стр.
1, помещ. 2.1-Н.50
ОГРН 1157847200818
телефон: +78123258294
Е-mail: [email protected]


































