A575
Aluminum
Geared Hinge
Instruction Manual
Standard Features:
- Full Surface, Heavy Duty
- 1/16” Door Inset
- For narrow-faced frames
- 48” Door Width Maximum
- 450 lbs. Door Weight Maximum
- Frame Side Leaf Countersunk for Stainless Steel Flat Head Screws
Fasteners:
- Frame: 12-24 x ⅝” Phillips FH Undercut Self-Drilling, Machine Screws, Stainless Steel
- Door: ¼” – 20” X 1¼” x ⅜” dia. sex bolts & ¼” – 20” x 1¼” Phillips head shoulder screws.
Standard Lengths:
- 83”, 95” and 120”
Finishes:
- Clear Anodized – Stocked (48 hour shipping)
- Dark Bronze Anodized – Stocked (48 hour shipping)
- Black Anodized – Stocked (48 hour shipping)
- Champagne
- Light Bronze
- Medium Bronze
* Custom Powder Coating Available
Fire Rating:
- Approved for use on metal swinging type fire doors rated up to and including 90 minutes (Specify “FR” option for 3 hour rating)
- Approved for use on wood swinging type fire doors rated up to and including 60 minutes (Specify “FR” option for 90 minutes rating)
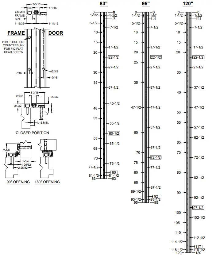
A575 – ALUMINUM GEARED HINGE,
NARROW FRAME LEAF, 1/16 INSET, FULL SURFACE

NOTES:
- HINGES CUT TO CUSTOM LENGTH ARE CUT FROM THE BOTTOM. PLEASE SPECIFY HANDING.
- ALL DIMENSIONS ARE IN INCHES.
- ALL DIMENSIONS ARE TO CENTERLINE OF HOLES.
- TWO SET SCREWS PROVIDED ON DOOR CAP
- XX” DENOTES LOCATOR HOLE.
STANDARD HINGE SIZES & SCREW DETAIL
| NOMINAL DOOR HEIGHT | 7’0″ | 8’0″ | 10’0″ | |
| ACTUAL HINGE LENGTH | 83″ | 95″ | 120″ | |
| FRAME | 12-24 x 5/8″ PHILLIPS FLAT HEAD, UNDERCUT, SELF DRILLING MACHINE SCREW, S.S. | 14 | 15 | 18 |
| DOOR | 1/4-20 x 1-1/4″ x 3/8 DIA. SEX BOLT & 1/4-20 x 1-1/4″ PH. HEAD SHOULDER SCREW | 10 | 11 | 14 |
| 12-24 x 3/4″ PH. PN. HD. SELF DRILLING TEK SCREW (LOCATOR HOLE) | 4 | 4 | 4 | |
INSTALLATION INSTRUCTIONS FOR FULL SURFACE HINGES
A210HD, A570HD & A571HD
A. All uncut standard length hinges are non-handed and can be used for right or left hand doors.
B. Standard length hinges are supplied slightly shorter than nominal door height to accommodate threshold and carpeting clearances.
CUTTING THE HINGE TO FIT
- Keep hinge in the closed position. If necessary remove door/frame leaf caps.
- Cut one end of the hinge only. The hinge must be installed with the cut end at the bottom to keep the templated hole pattern at the top.
- Use a Metal Cutting Saw cut through the gear cap first.
Note: If cut length interferes with a set screw bearing remove it and switch it with a plain bearing above the cut location.
ATTACHING THE HINGE TO THE FRAME
- Shim the hinge to be 1/8″ below the header.
- Hold hinge in the open position and align frame leaf withe the inner edge of the door frame.
- Mark or Center Punch hole locations: two holes at the top and two at the bottom.
- Using the provided Self Drilling/Thread Forming Screws please proceed to fasten the frame leaf in marked holes.
Note: If using wood screws drill a 5/32″ pilot hole.
PREPARE THE DOOR - Position Door in the opening and shim for proper clearances.
- Align the top end of the hinge to be absolutely flush with the top of the door.
- Mark the four LOCATOR HOLE locations (shown on template) using the provided small center punch.
- Using a #3 philips head bit, attach the door leaf to the door through the LOCATOR HOLES with the provided pan head screws
- Remove any shims and check for proper clearances and door operation.
- If door sags slightly, note amount of adjustment needed to bring door back into alignment.
DO NOT PROCEED UNTIL DOOR OPERATES PROPERLY - Locate and mark for the thru-bolts in the door using the large punch provided.
- Remove door and use a 3/8″ drill bit to drill holes at marked locations
ATTACHING DOOR TO THE HINGE - Fasten the door to door leaf using the provided sex bolts and shoulder screws
Note: Always install the shoulder screws on the secured side of the door - Mark or Center Punch the remaining frame leaf hole locations. Using the provided flathead or pan head self drilling/thread forming screws completely fasten the frame leaf.
INSTALL THE LEAF COVERS
Note: Before installing the door leaf cover make sure the the set screws do not protruded into the interior of the cover. - Line up the end of the door leaf cover with the top end of the hinge
- Starting at the top, apply pressure along the length of the cover and snap into place as you go down the length of the hinge.
- When the cover is on tighten the set screw to secure it.
- Install the frame leaf cover by first hooking it onto the outside edge of the frame leaf.
- Starting at the top, apply pressure along the length of the cover and snap into place as you go down the length of the hinge.
Note: If using a hammer, use a block of wood to protect the cover.
REINFORCING AND RIVNUTS
- No reinforcing is necessary except on extremely high-frequency, extremely heavy or extra-wide doors.
- Rivnuts are recommended for use in the frame when the door exceeds 450lbs.
Note:RIVNUTS are not to be used with Fire Rated Hinges
GROUT/SLUSHED-IN FRAMES
It is recommended that a mudguard be installed behind the frame for ease of installation. Do not use self-drill screws with grouted steel frames without a mudguard. If no mudguard has been used, drill holes through frame and remove grout for screw clearances. Do not oversize hole.
SCREW DETAIL
| FRAME | 12-24 x 3/4″ PHILLIPS FLAT HEAD, UNDERCUT, SELF DRILLING, THREAD FORMING TEK MACHINE SCREW |
| FRAME | 12-24 x 1″ PHILLIPS PAN HEAD, SELF DRILLING, THREAD FORMING TEK MACHINE SCREW |
| DOOR | 1/4-20 x 1-1/4″ x 3/8 DIA. SEX BOLT & 1/4-20 x 1-1/4″ PH. HEAD SHOULDER SCREW |
| 12-24 x 1″ PH. PN. HD. SELF DRILLING TEK SCREW (LOCATOR HOLE) |
The following actions will void any warranty, expressed or implied.
- Failure to Install the hinge according to ABH’s specifications and requirements
- Use of Fasteners other than those supplied with the hinge.
- Unauthorized field modifications including removing any of the bearings, altering the original finish or painting the hinge.
www.abhmfg.com
HS INSTALLATION-05.DWG HALF SURFACE
E-mail: [email protected]
INSTALLATION Architectural Builders Hardware Mfg., Inc.
INSTRUCTIONS 1222 Ardmore Ave., Itasca, IL 60143
PAGE 1 OF 1 630.875.9900; FAX 800.9FAXABH (932.9224) REVISED 10/15/20
© 2020 ABH Mfg Inc.
printed in USA
Architectural Builders Hardware Manufacturing, Inc. | 630-875-9900 | Fax (800) 932-9224
www.abhmfg.com | [email protected] | [email protected]
ABH20210301



















