WATERWARE UF182 Underfloor Mixing Panel

Function
The set point regulating unit performs the function of keeping the flow temperature constant, at the set value in a low temperature underfloor heating system. In this particular series, the temperature is regulated by a specific hydraulic unit equipped with a thermostatic three-way valve with a built-in sensor.
Operating Description
The regulator element inside the thermostatic three-way valve consists of a temperature sensor fully immersed in the mixed water outlet chamber. By expanding and contracting, it continuously ensures a correct proportioning of hot water, coming from the boiler, and water returning from the panel circuit. The water intake is regulated by a shaped obturator that slides inside a special cylinder placed between the hot water flow and the water returning from the circuit. Even if the thermal load of the secondary circuit or the inlet temperature from the boiler change, the mixing valve automatically adjusts the flow rates until it obtains the set temperature.
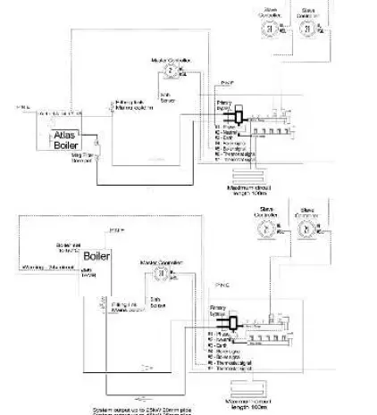
Hydraulic / Electrical Diagram

Pump
- Three-speed pump: model UPS 25-60
- Pump body: cast iron GG 15/20
- Electric supply: 230 V – 50 Hz
- Maximum ambient humidity: 95%
- Maximum ambient temperature: 80°C
- Protection class: IP 44
- Pump center distance: 130 mm
- Pump connections: 1 1/2” union nut
Power consumption
- Setting 1 0.40A 90W 1800 rpm
- Setting 2 0.30A 65W 1100 rpm
- Setting 3 0.20A 45W 700 rpm

Technical Specifications
- Medium: water, glycol solutions
- Maximum percentage of glycol: 30%
- Control temperature range: 25–55°C
- Accuracy: ±2°C
- Primary inlet maximum temperature: 90°C
- Maximum working pressure: 4 bar
- Panel manifold differential by-pass setting: 25 kPa
- Liquid crystal digital thermometer scale: 24–48°C
- Pressure gauge scale: 0–10 bar
- Connections to regulating unit: 3/4” M with union
- Pipe to manifold connection: 16x2mm connector (included)
- Panel circuit outlet connections: 3/4” coupling adapter (included)
- Outlet center distance: 50 mm
- Centre distance between primary circuit connections: 60 mm
Safety Thermostat
- Factory set: 55°C ±3°C
- Protection class: IP 55
- Contact rating: 10 A / 240 V
Temperature Adjustment and Locking
The control knob is used to adjust temperature in a full turn (360°) between minimum and maximum. It also has tamper protection for locking the temperature at the set value. To set, turn the knob onto the required number, unscrew the upper screw, remove the knob and put it back on so that the internal reference couples with the protrusion on the knob carrier ring nut.
Terminal Schedule
- Phase in
- Neutral in
- Earth in
- Boiler signal out
- Boiler signal out
- Master stat in
- Master stat in
- Internal wiring

Diesel / Gas Boiler Applications
These diagrams are a guide only, for a full system design contact us.
WARRANTY
If any material defect arising from the manufacturing process is found in a new tap or valve Waterware Services Ltd. will undertake to repair or replace it (at its option). This undertaking will not apply if:
- The defect is brought to Waterware’s attention later than 3 years from the date of manufacture.
- Failure by any person to follow installation instructions or installation in an environment outside the recommended limitations or relevant NZ and or Australian Standards and local plumbing codes. No installation should proceed without installation instructions and claims instructions were missing are not accepted as a means of avoiding this condition.
- Evidence cannot be produced confirming the relevant tap or valve was purchased from a known customer of Waterware Services Ltd.
- Repair work is undertaken without prior arrangement with Waterward Services Ltd.
- Normal maintenance requirements, refer to specific product maintenance guides.
Waterware Services Ltd. shall in no way be liable for any loss, damage (direct, indirect or consequential), cost or expense suffered or incurred by- in addition to all other rights and remedies had by the Purchaser in law in respect of the valve and does not limit the right the Consumer may have under the Consumers Guarantee Act 1993.
- subject to the exceptions and conditions previously listed. All expressed or implied conditions, statements or warranties as to the quality or fitness on any purpose of a tap or valve or otherwise are hereby expressly excluded to the fullest extent permitted by law except under conditions and warrants which cannot be legally excluded by law and which are intended in the contract for the supply of the valve by the Trade Practises and any other Act of Law.



















