WATERWARE HSSFHWK Formentera Hot Water Kit

Fitting instructions
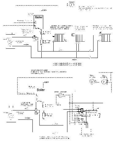
Fit the NTC sensor into the thermostat tank pocket.
Activate hot water duty
To activate hot water duty;
- Press and hold reset and mode buttons together for 3 seconds.
- Press the CH+ button till P03 is displayed.
- Press OK to edit value.
- Press CH+ button to change the value to 3
- Press OK to save.
- Press reset to return to main menu.
Operating Description
An electronically operated valve controls the passage of heating water to either the coil in the hot water cylinder or to the space heating system. It automatically gives priority to the hot water, only switching over to the space heating after the hot water is satisfied. Priority is decided by the controls on the boiler using the NTC sensor.
When the unit is connected in accordance with the drawings the following performance is expected :
- System draws power from the boiler & will not operate until the boiler is live.
- When the HWC temperature is below its set point, the boiler will start and the system pump will run, the water will flow though the cylinder in the coil by default.
- Once the hot water sanitary load has been satisfied, and if the Central Heating thermostat signals that heat is required, the Salus valve will modulate into the AB-A position, the boiler will continue to run and water will flow out to the space heating system.
- Once both loads are satisfied the boiler turns off, Salus valve will return to the AB-B position and the pump will continue to run until core temperature of the boiler is lowered below set point.
Testing the System
With the wiring completed and thermostats in place, operate the power switch and check that the boiler lamp operates. Set the HWC set point to its highest setting and set the room thermostat to its lowest setting. The boiler should fire and the cylinder will start to heat. The pipe feeding the coil to the hot water cylinder should climb in temperature.
Once the boiler has reached set point switch the central heating room thermostat to on. The boiler should be running and the Salus valve will modulate to the central heating position. The pipe feeding the space heating system should climb in temperature.
The system has now been checked in its operating modes. Reset both the HWC and the central heating set points to their desired values. The boiler should be set to 70ºC, the cylinder to 60ºC, and the central heating system should be programmed to the users specifications. The system should now be checked in its running mode to ensure that it operates correctly at its set points.
Wiring connections
WARNING!! It is the installers care to activate hot water and change P03 = 3.
Terminal schedule
- CH thermostat #L or mixing panel #4
- CH thermostat #SL or mixing panel #5
- HWC NTC probe
- HWC NTC probe
- 3 way valve Live
- 3 way valve Neutral
Installers care
230V PNE for boiler
Earth feed for hot water cylinder & UF pump. Activate hot water and change P03 = 3.
Hydraulic connections
Connect the three way zone valve in the following manner. Port A: Flow to heating circuit.
Port B: Flow to calorifier circuit.
Port A/B: Flow from boiler.
Hydraulic diagram is indicative only, if a full design is required contact Waterware for this service


















