nVent T-Series Air Conditioner

Product Information
- Model: T62
- Part Number: 10-1008-239
- Order Number: 88047465
- Voltage: 230V
- Frequency: 50/60Hz
- Full Load Amps: 15.4/17.0
- Phase: 1
- BTU/Hr. @ Max Ambient: 20,500/23,500
- Max Ambient Temperature: 131/55°F
- Shipping Weight: 218 lb./99.1 kg
The T-SERIES Air Conditioner, model t62, is designed for outdoor use with a height of approximately 62 inches. It has a voltage rating of 230V and operates at a frequency of 50/60Hz. The air conditioner has a full load current of 15.4/17.0 Amps and is single-phase. It provides a cooling capacity of 20,500/23,500 BTU/Hr. at maximum ambient temperatures of 131/55°F. The air conditioner weighs 218 lb./99.1 kg.
Product Usage Instructions
- Before mounting the air conditioner, inspect it to ensure correct functionality. Refer to the “HANDLING AND TESTING THE AIR CONDITIONER” section on page 3 for more details.
- Use the provided mounting gasket kit to install gaskets on the air conditioner. Refer to the “Mounting Cutout Dimensions” section on page 5 for guidance.
- Mount the air conditioner on the enclosure, taking care not to damage the mounting gasket. The mounting gasket ensures a water-tight seal between the air conditioner and the enclosure. Avoid dragging the air conditioner on the enclosure with the gasket attached to prevent rips or tears.
- To prevent cross-threading, start tightening the mounting bolts by hand before using a wrench or ratchet driver.
- Allow the air conditioner to remain upright for at least five (5) minutes before starting it. It is important to keep the air conditioner in an upright position during operation.
- Refer to the nameplate on the air conditioner for electrical requirements. Wire the unit to a properly grounded power supply. Ensure that the electrical circuit is fused with a slow blow or HACR circuit breaker.
- The air conditioner requires a remote-mounted thermostat and has an alarm feature. Wire the thermostat and alarm outputs to the appropriate terminals on the 24VAC terminal strip, as indicated in the wiring diagram.
- Set the thermostat to the desired cabinet temperature. Refer to the “Standard and Optional Component Operation” section on page 6 for further instructions.
Please note that specific model numbers may vary based on desired options. Consult the factory for accurate model numbers.
How to Read Model Numbers
The model number of the air conditioner provides information about its type, capacity, voltage, frequency, and accessories. Here is how to interpret the model number:
- The type/family of air conditioner and approximate height are identified. For example, T62 represents an outdoor family with a height of about 62 inches.
- The listed capacity of the air conditioner in BTU/hr at rated conditions is specified. For instance, 22 indicates a capacity of 22,000 BTU/Hr. at a temperature of 131/131°F.
- A numeric code denotes the voltage: 1 for 115 Volt, 2 for 230 Volt, and 4 for 460 Volt.
- The frequency is represented by a number: 6 for 50/60 Hz or 60 Hz only.
- A unique set of numbers identifies the accessories present on a specific model.
NOTE: Some of the information in this manual may not apply if a special unit was ordered. If additional drawings for a special unit are necessary, they have been inserted. Contact nVent Equipment Protection if further information is required.
WARRANTY AND RETURN POLICY
https://hoffman.nvent.com/en/hoffman/warranty-information.
RECEIVING THE AIR CONDITIONER
Inspect the air conditioner. Check for concealed damage that may have occurred during shipment. Look for dents, scratches, loose assemblies, evidence of oil, etc. Damage evident upon receipt should be noted on the freight bill. Damage should be brought to the attention of the delivering carrier — NOT to nVent Equipment Protection — within 15 days of delivery. Save the carton and packing material and request an inspection. Then file a claim with the delivering carrier.
nVent Equipment Protection cannot accept responsibility for freight damages; however, we will assist you in any way possible.
HANDLING AND TESTING THE AIR CONDITIONER
If the air conditioner has been in a horizontal position, be certain it is placed in an upright, vertical or mounting position for a minimum of five (5) minutes before operating.
CAUTION
Do not attempt to operate the air conditioner while it is horizontal or on its side, back or front. The refrigeration compressor is filled with lubricating oil. This will cause permanent damage to the air conditioner and also voids the warranty.
- TEST FOR FUNCTIONALITY BEFORE MOUNTING THE AIR CONDITIONER TO THE ENCLOSURE.
- Refer to the nameplate for proper electrical current requirements, and then connect the power cord to a properly grounded power supply. Minimum circuit ampacity should be at least 125% of the amperage shown in the design data section for the appropriate model. No other equipment should be connected to this circuit to prevent overloading.
- Immediately after applying power the evaporator blower (enclosure air) should start running. Operate the air conditioner with the compressor running for five (5) to ten (10) minutes.
- Condenser air temperatures should be warmer than normal room temperatures within a few minutes after the condenser air blower starts.
- The compressor is provided with automatic reset thermal overload protection. This thermo-switch is located and mounted inside the plastic enclosure clipped to the compressor. The switch operates when the compressor overheats due to clogged or dirty inlet air filter or if ambient air temperatures exceed nameplate rating or if enclosure dissipated heat loads exceed the rated capacity of the air conditioner. The thermal overload switch will actuate and stop compressor operation. The blowers will continue to operate and the compressor will restart after it has cooled to within the thermal overload cut-in temperature setting.
INSTALLATION INSTRUCTIONS
- Inspect the air conditioner and verify correct functionality before mounting the air conditioner. See HANDLING AND TESTING THE AIR CONDITIONER on page 3.
- Using the mounting gasket kit provided with the unit, install gaskets to the air conditioner. See Mounting Cutout Dimensions on page 5 of this manual.
- Mount air conditioner on enclosure taking care not to damage the mounting gasket. The mounting gasket is the seal between the air conditioner and the enclosure. Avoid dragging the air conditioner on the enclosure with the mounting gasket attached as this could cause rips or tears in the gasket and risk losing the water tight seal.
- To avoid cross-threading mounting inserts, start bolts by hand before tightening with a wrench or ratchet driver.
- Allow unit to remain upright for a minimum of five (5) minutes before starting. Caution! Air conditioner must be in upright position during operation.
- Refer to the nameplate for electrical requirements. Wire the unit to a properly grounded power supply. Electrical circuit should be fused with slow blow or HACR circuit breaker.
- The air conditioner requires a remote mounted thermostat and has an alarm feature. Wire the thermostat and alarm outputs to the appropriate terminals on the 24VAC terminal strip (note locations on the wiring diagram).
- Set thermostat for required cabinet temperature. See Standard and Optional Component Operation on page 6.
DESIGN DATA
| Model | Voltage | Hz | Full Load Amps | Phase | BTU/Hr. @ Max Ambient Temperature | Max Ambient Temperature (°F/°C) | Shipping Weight (lb./kg) |
| T6222263XXX | 230 | 50/60 | 15.4/17.0 | 1 | 20,500/23,500 | 131/55 | 218/99.1 |
XXX will be replaced with a three-digit number designating all desired options. Consult the factory for specific model numbers.
HOW TO READ MODEL NUMBERS
| T62 | – | 22 | 2 | 6 | – | G150 |
| 1 | 2 | 3 | 4 | 5 |
- Identifies the type/family of air conditioner and the approximate height (i.e. T62 = Outdoor family about 62” high).
- This is the air conditioner’s listed capacity in Btu/hr at rated conditions. (i.e. 22 = 22,000 BTU/Hr. at 131/131 F)
- 1 = 115 Volt, 2 = 230 Volt, 4 = 460 Volt.
- 6 = 50/60 Hz or 60 Hz only.
- Unique set of numbers for each air conditioner which identifies the accessories on a model.
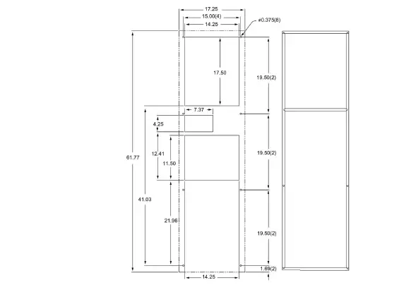
DIMENSIONAL DRAWING
MOUNTING CUTOUT DIMENSIONS
NOTE: Dashed lines represent air conditioner
Mounting Gasket kit, 62-1000-50 included. Apply gasket to back of air conditioner before mounting to enclosure.
TECHNICAL INFORMATION
SEQUENCE OF OPERATION
The air conditioner comes standard with two internally mounted thermostats. There are two modes of operation; heating and cooling. During heating and cooling modes the evaporator fan will be running.
HEATING
When the enclosure temperature is below the heating thermostat setpoint, power is applied to the heaters. When the enclosure temperature is 10 degrees above the setpoint the heater is powered off.
COOLING
- When the enclosure temperature is above the cooling thermostat setpoint, power is applied through the dual pressure control, then to the time delay relay. After the delay time the contactor is energized and the compressor starts. The condenser fan will start once the condenser discharge air temperature gets above 70 F. Component specific information is listed below.
- Operating the air conditioner below the minimum ambient temperature or above the maximum ambient temperatures indicated on the nameplate voids all warranties.
- The moisture that the enclosure air can contain is limited. If moisture flows from the drain tube continuously this can only mean that ambient air is entering the enclosure. Be aware that frequent opening of the enclosure’s door admits humid air that the air conditioner must then dehumidify.
STANDARD AND OPTIONAL COMPONENT OPERATION
THERMOSTAT
The T62 air conditioner uses a 10-1061-16 thermostat. The thermostat setpoint equals the temperature that the air conditioner turns off. The thermostat has a 10 F differential from setpoint until it calls for
cooling or heating. An example of operation is shown below.
For cooling (75-100 F range):
- Tstat setpoint = 75 F
- Cooling turns on at 85
- Cooling turns off at 75 F
For heating (55-65 F range):
- Tstat setpoint = 55 F
- Heating turns on at 55 F
- Heating turns off at 65 F
Note: For testing purposes only, the thermostat stop screw may be removed (on units so equipped) to allow settings below 70 F. After testing, replace the stop screw and verify that the thermostat can not be set below 70 F. Extended operation below 70 F can cause coil freeze ups resulting in reduced load and/or unit damage.
DUAL PRESSURE CONTROL
LP cutout 30 psi, HP cutout 520 psi
The dual pressure control will prevent the compressor from operating when the system experiences low pressure (i.e. loss of charge) or high pressure (i.e. a blocked condenser coil). The low pressure cutout is an automatic reset and the high pressure cutout is a manual reset. An optional alarm relay will be activated if this event occurs.
TIME DELAY RELAY
- Factory set for 3 minutes (top dial at 1-10 minutes, bottom dial at 3).
- The purpose of the time delay relay is to prevent short cycling of the compressor.
HEAD PRESSURE CONTROL
- Unit is set at the factory, no adjustment necessary.
- At condenser discharge temperatures below 70 F, the condenser fan is not powered and the LED’s are not lit.
- At temperatures between 70-100 F the yellow LED is lit and the fan is being regulated under full speed.
- At temperatures above 100 F the green LED is lit and the fan is operating at full speed.
CONTACTOR
The contactor on this model uses a 230V coil.
TRANSFORMER
The transformer is 24V and is used to power the fan speed control and time delay circuit.
REFRIGERANT PROPERTIES CHART (R407C)
| °F | °C | Bubble Pt | Dew Point | °F | °C | Bubble Pt | Dew Point | |
| -40 | -40 | 2.9 | 4.5 | 60 | 15.6 | 117.7 | 96.8 | |
| -35 | -37.2 | 5.2 | 0.7 | 65 | 18.3 | 128.7 | 106.7 | |
| -30 | -34.4 | 7.9 | 1.7 | 70 | 21.1 | 140.2 | 117.2 | |
| -25 | -31.7 | 10.7 | 4 | 75 | 23.9 | 152.5 | 128.4 | |
| -20 | -28.9 | 13.9 | 6.5 | 80 | 26.7 | 165.5 | 140.4 | |
| -15 | -26.1 | 17.3 | 9.3 | 85 | 29.4 | 179.2 | 153.1 | |
| -10 | -23.3 | 21.1 | 12.4 | 90 | 32.2 | 193.6 | 166.5 | |
| -5 | -20.6 | 25.2 | 15.8 | 95 | 35 | 208.8 | 180.8 | |
| 0 | -17.8 | 29.6 | 19.5 | 100 | 37.8 | 224.9 | 195.8 | |
| 5 | -15 | 34.4 | 23.6 | 105 | 40.6 | 241.8 | 211.8 | |
| 10 | -12.2 | 39.6 | 28 | 110 | 43.3 | 259.6 | 228.7 | |
| 15 | -9.4 | 45.2 | 32.7 | 115 | 46.1 | 278.2 | 246.5 | |
| 20 | -6.7 | 51.3 | 37.9 | 120 | 48.9 | 297.8 | 265.3 | |
| 25 | -3.9 | 57.8 | 43.6 | 125 | 51.7 | 318.3 | 285.2 | |
| 30 | -1.1 | 64.7 | 49.6 | 130 | 54.4 | 339.9 | 306.1 | |
| 35 | 1.7 | 72.2 | 56.2 | 135 | 57.2 | 362.4 | 328.2 | |
| 40 | 4.4 | 80.2 | 63.2 | 140 | 60 | 386 | 351.4 | |
| 45 | 7.2 | 88.7 | 70.7 | 145 | 62.8 | 410.7 | 375.9 | |
| 50 | 10 | 97.8 | 78.8 | 150 | 65.6 | 436.5 | 401.7 | |
| 55 | 12.8 | 107.5 | 87.5 |
UNIT CHARACTERISTICS
| Model | T62-2226-GXXX |
| Dimensional Data | |
| Height | 61.8 in / 1570 mm |
| Width | 17.4 in / 442 mm |
| Depth | 19.9 in / 505 mm |
| Unit Weight | 218 lbs / 99 kg |
| Unit Protection Rating | Type 12, 4 |
| Cooling Data | |
| Refrigerant | R-407c |
| Refrigerant Charge | 42 oz / 1306 g |
| Cooling Capacity at 95 F enclosure 95 F ambient (Btu/hr / W) | 18,550 / 5,432 |
| Cooling Capacity at Max Conditions (Btu/hr / W) | 23,930 / 7,007 |
| Maximum Ambient Temp | 131 F / 55 C |
| Minimum Ambient Temp | -40 F / -40 C |
| Enclosure Airflow | 673 cfm |
| External Airflow | 1,797 cfm |
| Condensate Management | Hose discharge |
| Heating Data | |
| Capacity | 2,000 W |
| Electrical Data | |
| Rated Voltage (50/60 Hz) | 200 V / 230 V |
| Rated Frequency | 50 / 60 Hz |
| Voltage Range | +/-10% of rated |
| Cooling Amps at Max Conditions (50/60 Hz) | 19.0 / 22.0 A |
| Heating Amps | 8.7 A |
| Compressor RLA / LRA | 10.8 / 56 A |
| Evaporator Fan RLA | 1.3 A |
| Condenser Fan RLA | 1.7 A |
FUNCTIONAL DATA
| Evaporator Air In (°F) | Unit Amps | Evaporator Pressure (psi) | Condenser Pressure (psi) | Evaporator Delta (°F) | Condenser Delta (°F) |
| 65-80 | 10-12 | 45-75 | 175-225 | 15-25 | 18-28 |
| 80-100 | 11.5-15 | 60-100 | 210-320 | 15-25 | 18-28 |
WIRE DIAGRAM
SERVICE DATA
COMPONENT LIST
| Part Description | Part Number |
| Blower Motor, Condenser | 10-1020-14 |
| Blower Motor, Evaporator | 10-1020-15 |
| Capacitor, Condenser Blower | 52-6084-05 |
| Capacitor, Evaporator Blower | 52-6084-00 |
| Capacitor, Compressor, Run | 52-6032-06 |
| Capacitor, Compressor Start | 10-1032-08 |
| Time Delay Relay | 10-1005-71 |
| Coil, Condenser | 62-1001-00 |
| Coil, Evaporator | 62-1001-03 |
| Compressor | 89073502 |
| Contactor, Compressor | 89088986 |
| Controller, Head Pressure | 10-1106-108 |
| Evaporator Outlet Filter (Optional) | 10-1000-01 |
| Filter/Dryer | 52-6028-09 |
| Grille, Condenser fan | 13-1014-03 |
| Switch, Dual Pressure | 52-6104-59 |
| Thermal Expansion Valve | 10-1040-46 |
| Transformer | 10-1006-143 |
| Thermostat | 10-1061-16 |
MAINTENANCE
COMPRESSOR
The compressor requires no maintenance. It is hermetically sealed, properly lubricated at the factory and should provide years of satisfactory operating service.
CONDENSER AND EVAPORATOR BLOWER MOTORS
Blower motors require no maintenance. All bearings, shafts, etc. are lubricated during manufacturing for the life of the motor.
CAUTION
Operation of the air conditioner in areas containing airborne caustics or chemicals can rapidly deteriorate condenser coils, blowers and motors, etc. Contact nVent Equipment Protection for special recommendations.
REFRIGERANT LOSS
- Each air conditioner is thoroughly tested prior to leaving the factory to insure against refrigeration leaks. Shipping damage or microscopic leaks not found with sensitive electronic refrigerant leak detection equipment during manufacture may require repair or recharging of the system. This work should only be performed by qualified professionals, generally available through a local, reputable air conditioning repair or service company.
- Should the refrigerant charge be lost, recharging ports (access fittings) on the suction and discharge
sides of the compressor are provided for recharging and/or checking suction and discharge pressures. - Under no circumstances should the access fitting covers be loosened, removed or tampered with. Breaking of seals on compressor access fittings during warranty period will void warranty on hermetic
system. - Recharging ports are provided for the ease and convenience of reputable refrigeration repair service personnel for recharging the air conditioner.
- Refer to the data on the nameplate that specifies the type of refrigerant and the charge size in ounces.
NOTE: Before recharging, make sure there are no leaks and that the system has been properly evacuated into a deep vacuum. Technician must weigh in charge according to the nameplate specifications.
TROUBLESHOOTING
BASIC AIR CONDITIONING TROUBLESHOOTING CHECKLIST
- Check manufacturer’s nameplate located on the unit for correct power supply.
- Turn on power to the unit. The evaporator (Enclosure or “COLD” air) fan should come on. Is there airflow?

- Check thermostat setting and adjust thermostat to the lowest setting. This should turn the condenser fan and the compressor on. Did condenser fan and compressor come on when the thermostat was turned on?

- Are both fans and the compressor running? If not the unit will not cool properly.
- Check condenser (Ambient or “HOT” air) fan for airflow. Is there airflow?

- Carefully check the compressor for operation – motor should cause slight vibration, and the outer case of the compressor should be warm. Is the compressor showing signs of this?

- Make sure the coils are clean. Then check evaporator “air in” and “air out” temperatures. If the temperatures are the same:

- To check for a bad thermostat, turn power to the unit off. Remove the control box cover and place both thermostat wires onto one terminal (replace control box cover for safety). This will activate the switch in the thermostat. Turn the power on and if both fans and the compressor come on, the thermostat needs to be replaced
SYMPTOMS AND POSSIBLE CAUSES
| SYMPTOM | POSSIBLE CAUSE |
|
Unit won’t cool | Clogged fins on coil(s) |
| Dirty filter | |
| Impellers/fans not running | |
| Compressor not running | |
| Compressor runs, but has bad valves | |
| Loss of refrigerant | |
|
Compressor tries to start but won’t run | Low line voltage at start. Should be +/-10% rated voltage. |
| Compressor motor stuck | |
| Bad contactor | |
| Bad overload switch | |
| Bad run/start capacitor | |
| Unit blows breakers | Undersized breaker/fuse or not time delayed |
| Short in system | |
|
Getting water in enclosure | Drain plugged |
| Drain tube kinked | |
| Enclosure not sealed (allowing humidity in) | |
| Mounting gasket damaged | |
For additional technical information (i.e., amp draw, pressures, temperatures) , contact nVent Equipment Protection at 800-896-2665.
F-GAS INFORMATION
| T622226GXXX T622246GXXX | |
| Refrigerant Kühlmittel Chłodziwo | R407C |
| GWP | 1774 |
| Factory Charge Füllmenge durch Hersteller Opłata Fabryczna | 1300 Grams 1300 Gramm 1300 Gramów |
| CO2 Equivalent CO2 Equivalent CO2 Ekwilalent | 2.31 Tons 2,31 Tonnen 2,31 Tony |
nVent
2100 Hoffman Way Anoka, MN 55303 USA
+1.763.422.2211
+1.763.576.3200
nVent.com




























