a
SAMSUNG WF53BB8900 Bespoke 5.3 cu. ft. Ultra Capacity Front Load Washer Installation Guide

WF53BB8900

Features
- Bespoke Design
- 5.3 cu. ft. Ultra Capacity
- AI OptiWash™
- Auto Dispense System
- Super Speed Wash
- AI Smart Dial
- MultiControl™
- ENERGY STAR® Most Efficient
- Shallow Closet-Depth Fit1
- Flexible Installation
- Wi-Fi Connectivity2
- Steam
- Antimicrobial Technology3
- Self Clean+
- Premium Tempered Glass Door
- Vibration Reduction Technology+
- Swirl+ Drum Interior
- Internal Drum Light
- ADA Compliant4
- 1200 RPM Maximum Spin Speed
- Direct Drive Motor
- 25 Total Washing Cycles
- 18 Options
Ratings

CEE Tier 3
IMEF = 3.1
IWF = 2.9
103 kWh/yr
Electrical Requirements
120 V / 60 Hz
15 Amps
Specifications
25 Total Washing Cycles:
Normal, AI OptiWash, Heavy Duty, Bedding, Permanent Press, Delicates, Activewear, Wool, Towels, Eco Cold, Rinse + Spin, Self Clean+, Small Load, Colors, Spin Only, Outdoor, Denim, Super Speed, Steam Sanitize, Steam Allergen, Steam Normal, Power Steam, Steam Whites, Steam Bulky, Power Rinse
18 Additional Washing Options:
Presoak, Extra Rinse, My Cycles, Delay End, Smart Control, Super Speed, Drum Light, Dose per Wash, Dose per Rinse, Child Lock, Detergent Concentration Level, Softener Concentration Level, AI Pattern, Alarm, Calibration, Wi-Fi, Language, Factory Reset
5 Temperature Settings:
Extra Hot, Hot, Warm, Cold, Tap Cold
7 Spin Settings:
Extra High, High, Medium, Low, Extra Low, No Spin, No Drain
5 Soil Settings:
Extra Heavy, Heavy, Normal,
Light, Extra Light
Warranty
One (1) Year Parts and Labor
Three (3) Years Stainless Tub Part (Part Only)
Washing DIT (Digital Inverter Motor)
Motor Part (Part Only):
Ten (10) Years
Twenty (20) Years Limited to “U.S.-Assembled”
Washers Only
Product Dimensions & Weight (WxHxD)
Dimensions: 27″ x 383/4″ x 341/2″
Weight: 227.1 lbs
Shipping Dimensions & Weight (WxHxD)
Dimensions: 293/8″ x 4215/16″ x 361/4″
Weight: 233.7 lbs


1 Designed to fit a 38″ installation depth.
2 Requires wireless network, Samsung account and Samsung SmartThings App. The Samsung SmartThings App supports Android OS 4.0 (ICS) or later which is optimized for Samsung smartphones (Galaxy S and Galaxy Note series). This app also supports iOS 7 or later for iPhone models. Samsung SmartThings App available in App Store and Play Store.
3 Antimicrobial treatment does not protect users or other items against bacteria, viruses, germs, or other disease organisms.
4 ADA Compliant when using 27″ wide riser. (Riser model codes: WE272NV, WE272NW, WE272NC)
Dimensions
Required dimensions for installation with pedestal:

Installation Specifications – Side-by-Side
If the washer and dryer are installed together or the dryer alone, the closet front must have two unobstructed air openings for a combined minimum total area of 72-inch2. Your washer alone does not require a specific air opening.
Alcove or closet installation
Minimum clearance for closet and alcove installations:

Connection Dimensions
Back view of washer


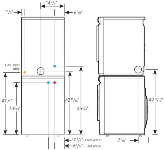
Installation Specifications – Stacked Pair
Clearances indicated are for stacked pairs. The closet front must have two unobstructed air openings for a combined minimum total area of 72-inch2.

Connection Dimensions
Back and side views of stacked pair


Actual color may vary. Design, specifications, and color availability are subject to change without notice. Non-metric weights and measurements are approximate.
©2022 Samsung Electronics America, Inc.,
85 Challenger Road, Ridgefield Park, NJ 07660.
Tel: 800-SAMSUNG. samsung.com. Samsung is a registered trademark of Samsung Electronics Co., Ltd.
Read More About This Manual & Download PDF:



















