
Installation plan
Washing machine 
PWM 506 DV MOPSTAR 60
PWM 508 DV POPSTAR 80
To avoid the risk of accidents or damage to the machine, it is essential to read operating and installation instructions before installation and commissioning. This prevents both personal injury and damage to the machine.
United Kingdom
Miele Co. Ltd., Fairacres, Marcham Road
Abingdon, Oxon, OX14 1TW
Professional Sales, Tel: 0845 365 6608
E-mail: [email protected]
Internet: www.miele.com.au/professional
Australia
Miele Australia Pty. Ltd.
ACN 005 635 398, ABN 96 005 635 398
1 Gilbert Park Drive, Knoxfield, VIC 3180
Tel: 1300 731 411
Internet: www.miele.com.au/professional
E-mail: [email protected]
China Mainland
Miele Appliances Ltd.
Miele Electrical Appliances Co., Ltd.
1-3 Floor, No. 82 Shi Men Yi Road
Jing’ a District, 200040 Shanghai, PRC
Tel: +86 21 6157 3500, Fax: +86 21 6157 3511
E-mail: [email protected], Internet: www.miele.cn
Hong Kong, China
Miele (Hong Kong) Ltd.
41/F – 4101, Manhattan Place
23 Wang Tai Road, Kowloon Bay, Hong Kong
Tel: (852) 2610 1025, Fax: (852) 3579 1404
Email: [email protected]
Website: www.miele.hk
India
Miele India Pvt. Ltd.
1st Floor, Copia Corporate Suites,
Commercial Plot 9, Mathura Road, Jasola,
New Delhi – 110025
E-mail: [email protected], Website: www.miele.in
Ireland
Miele Ireland Ltd.
2024 Bianconi Ave., Citywest Business Campus, Dublin 24
Tel: (01) 461 07 10, Fax: (01) 461 07 97
E-Mail: [email protected], Internet: www.miele.ie
Manufacturer: Miele & Cie. KG
Carl-Miele-Straße 29, 33332 Gütersloh, Germany
Malaysia
Miele Sdn Bhd
Suite 12-2, Level 12
Menara Sapura Kencana Petroleum
Solaris Dutamas No. 1, Jalan Dutamas 1
50480 Kuala Lumpur, Malaysia
Phone: +603-6209-0288
Fax: +603-6205-3768
New Zealand
Miele New Zealand Limited
IRD 98 463 631
8 College Hill
Freemans Bay, Auckland 1011, NZ
Tel: 0800 464 353
Internet: www.miele.com.au/professional
E-mail: [email protected]
Singapore
Miele Pte. Ltd.
29 Media Circle, #11-04 ALICE@Mediapolis
Singapore 138565
Tel: +65 6735 1191, Fax: +65 6735 1161
E-Mail: [email protected]
Internet: www.miele.sg
South Africa
Miele (Pty) Ltd
63 Peter Place, Bryanston 2194
P.O. Box 69434, Bryanston 2021
Tel: (011) 875 9000, Fax: (011) 875 9035
E-mail: [email protected]
Internet: www.miele.co.za
United Arab Emirates
Miele Appliances Ltd.
Showroom 1, Eiffel 1 Building
Sheikh Zayed Road, Umm Al Sheif
P.O. Box 114782 – Dubai
Tel. +971 4 3044 999, Fax. +971 4 3418 852
800-MIELE (64353)
E-Mail: [email protected], Website: www.miele.ae
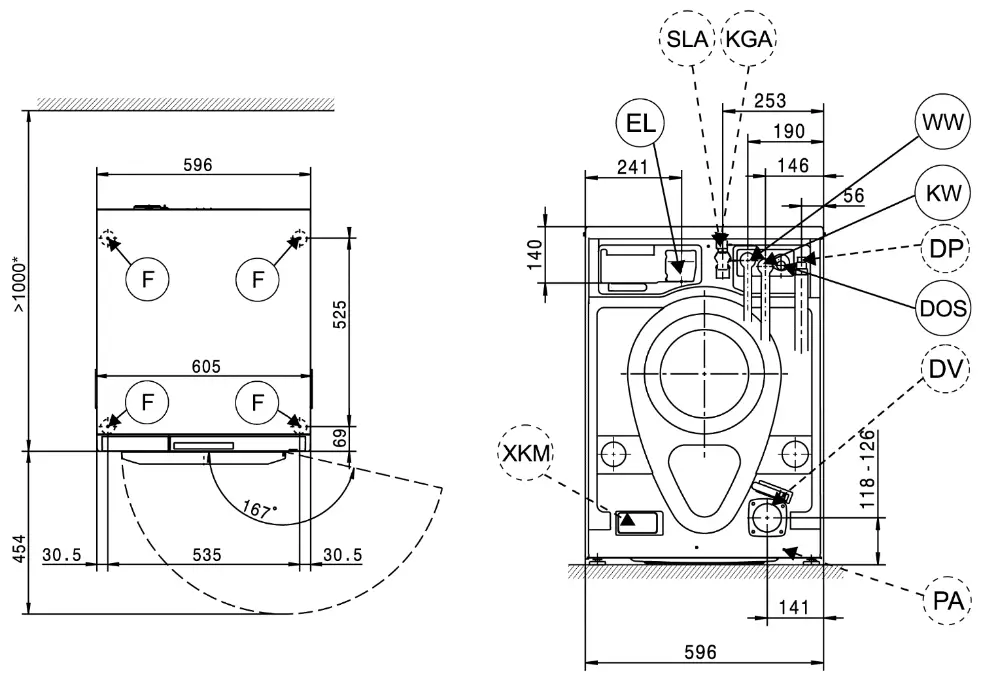
Key:
AV Drain valve | Connection optional or required, depending on modelKW Cold water connection LP Drain pump PA Equipotential bonding SLA Peak-load connection APCL SST Box plinth APCL OB Open plinth APCL 001 Washer-dryer stacking kit WW Hot water connection KXM Communication module |
All rights reserved.
PWM 506/508
Appliance dimensions
* The distances between the machine and the wall are recommendations to help make it easier to carry out service work. If installation space is limited, the machine can also be pushed up against the wall.


Installation
* The distances between the machine and the wall are recommendations to help make it easier to carry out service work. If installation space is limited, the machine can also be pushed up against the wall.
* The distances between the machine and the wall are recommendations to help make it easier to carry out service work. If installation space is limited, the machine can also be pushed up against the wall.
Installation with FFK 01
* The distances between the machine and the wall are recommendations to help make it easier to carry out service work. If installation space is limited, the machine can also be pushed up against the wall.

* The distances between the machine and the wall are recommendations to help make it easier to carry out service work. If installation space is limited, the machine can also be pushed up against the wall.

* The distances between the machine and the wall are recommendations to help make it easier to carry out service work. If installation space is limited, the machine can also be pushed up against the wall.
Technical data
| PWM 506 DV | PWM 508 DV | ||
| Drum volume | l | 57 | 73 |
| Load capacity | kg | 6.0 | 8.0 |
| Door opening diameter | mm | 300 | 300 |
| Max. spin speed | rpm | 1400 | 1400 |
| g-factor | 540 | 540 | |
| Residual moisture (standard load per DIN 60456) | % | <25 | <25 |
Electrical connection (EL)
| Standard voltage | 2N AC 400 V | 2N AC 400 V | |
| Frequency | Hz | 50 | 50 |
| Total rated load | kW | 4.8 | 4.8 |
| Fuse rating (B trip rating according to EN 60898) | A | 2 x 16 | 2 x 16 |
| Supply lead min. cross-section | mm² | 4 x 1.5 | 4 x 1.5 |
| Supply lead without plug | |||
| Length of supply lead | mm | 2000 | 2000 |
| Alternative voltage (convertible by Service) | 1N AC 230 V | 1N AC 230 V | |
| Total rated load | kW | 2.5 | 2.5 |
| Fuse rating (B trip rating according to EN 60898) | A | 1 x 16 | 1 x 16 |
| Supply lead min. cross-section | mm² | 3 x 1.5 | 3 x 1.5 |
| Standard voltage (DK and S only) | 3N AC 400 V | 3N AC 400 V | |
| Frequency | Hz | 50 | 50 |
| Total rated load | kW | 4.8 | 4.8 |
| Fuse rating (B trip rating according to EN 60898) | A | 3 x 10 | 3 x 10 |
| Supply lead min. cross-section | mm² | 5 x 1.5 | 5 x 1.5 |
| Supply lead without plug | |||
| Length of supply lead | mm | 2000 | 2000 |
| Standard voltage (N only) | 1N AC 230 V | 1N AC 230 V | |
| Frequency | Hz | 50 | 50 |
| Total rated load | kW | 2.96–3.45 | 2.96–3.45 |
| Fuse rating (B trip rating according to EN 60898) | A | 1 x 16 | 1 x 16 |
| Supply lead min. cross-section | mm² | 3 x 1.5 | 3 x 1.5 |
| Supply lead with plug | |||
| Length of supply lead | mm | 2000 | 2000 |
| Alternative voltage (convertible) | 3 AC 230 V | 3 AC 230 V | |
| Total rated load | kW | 5.5 | 5.5 |
| Fuse rating (B trip rating according to EN 60898) | A | 3 x 20 | 3 x 20 |
| Supply lead min. cross-section | mm² | 4 x 2.5 | 4 x 2.5 |
| Alternative voltage (convertible) | 2N AC 400 V | 2N AC 400 V | |
| Total rated load | kW | 5.5 | 5.5 |
| Fuse rating (B trip rating according to EN 60898) | A | 2 x 16 | 2 x 16 |
| Supply lead min. cross-section | mm² | 4 x 1.5 | 4 x 1.5 |
| PWM 506 DV | PWM 508 DV | ||
| Standard voltage (B only) | 2N AC 230 V | 2N AC 230 V | |
| Frequency | Hz | 50 | 50 |
| Total rated load | kW | 4.8 | 4.8 |
| Fuse rating (B trip rating according to EN 60898) | A | 2 x 16 | 2 x 16 |
| Supply lead min. cross-section | mm² | 4 x 2.5 | 4 x 2.5 |
| Supply lead without plug | |||
| Length of supply lead | mm | 2000 | 2000 |
| Alternative voltage (convertible) | 3 AC 230 V | 3 AC 230 V | |
| Total rated load | kW | 4.8 | 4.8 |
| Fuse rating (B trip rating according to EN 60898) | A | 3 x 20 | 3 x 20 |
| Supply lead min. cross-section | mm² | 4 x 2.5 | 4 x 2.5 |
| Alternative voltage (convertible) | 1N AC 230 V | 1N AC 230 V | |
| Total rated load | kW | 2.5 | 2.5 |
| Fuse rating (B trip rating according to EN 60898) | A | 1 x 16 | 1 x 16 |
| Supply lead min. cross-section | mm² | 3 x 1.5 | 3 x 1.5 |
| Standard voltage (AUS only) | 1N AC 230 V | ||
| Frequency | Hz | 50 | |
| Total rated load | kW | 4.8 | |
| Fuse rating | A | 1 x 25 | |
| Supply lead min. cross-section | mm² | 3 x 2.5 | |
| Supply lead without plug | |||
| Length of supply lead | mm | 2000 | 2000 |
| Coldwater (KW) | |||
| Permissible water flow pressure | hPa | 100–1000 | 100–1000 |
| Required flow rate (cold water connection only) | l/min | 11 | 11 |
| Required flow rate (with additional hot water connection) | l/min | 10 | 10 |
| Average water consumption (60 °C standard programs) | l/h | 36 | 36 |
| Connection to be provided on-site, external thread according to DIN 44991 (flat seal) | Inch | ¾” | ¾” |
| Connection hose ½” with ¾” threaded union | |||
| Connection hose length | mm | 1550 | 1550 |
| Hot water (WW) | |||
| Max. water intake temperature | °C | 60 | 60 |
| Permissible water flow pressure | hPa | 100–1000 | 100–1000 |
| Required flow rate | l/min | 11 | 11 |
| Average water consumption (60 °C standard programs) | l/h | 13 | 13 |
| Connection to be provided on-site, external thread according to DIN 44991 (flat seal) | Inch | ¾” | ¾” |
| Connection hose ½” with ¾” threaded union | |||
| Connection hose length | mm | 1550 | 1550 |
| Drain valve (DV) | |||
| Connection (ext. diameter) | mm | 75 (DN 70) | 75 (DN 70) |
| Max. drainage temperature | °C | 90 | 90 |
| Max. transient flow rate | l/min | 62 | 62 |
| Equipotential bonding (PA) | ||
| Machine connection (with installation kit) | Ο | Ο |
| XCI-Box / XCI -AD interface |
| Peak load/energy management (SLA) | ||
| Machine connection (with XCI-Box) | Ο | Ο |
| Communication module (KXM) | ||
| Communication module XKM 3200 WL PLT | Ο | Ο |
= standard,Ο= optional, + = only on request, – not available
| PWM 506 DV | PWM 508 DV
| |
| Liquid dispensing (DOS) | ||
| Connection for liquid detergents | ||
| Max. no. of dispenser pumps | 6 | 6 |
| XCI-Box interface | Ο | Ο |
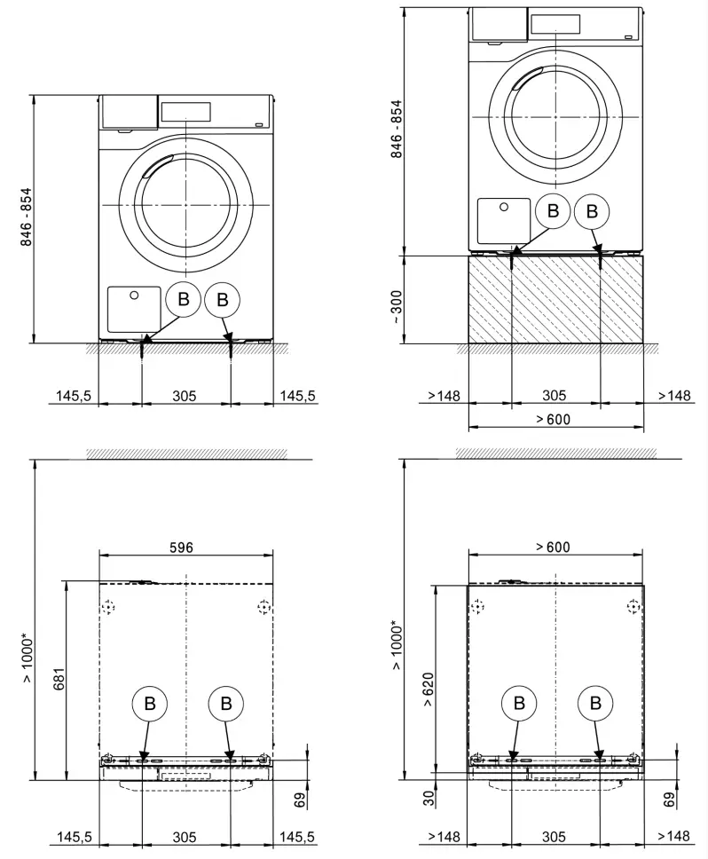
| Installation on machine feet (F) | |||
| No. of machine feet | No. | 4 | 4 |
| Machine foot, height-adjustable with thread | mm | +8 | +8 |
| Diameter of machine feet | mm | 40 | 40 |
| Anchoring (B) | |||
| Standard anchoring | |||
| Floor anchor kit (for 2 machine feet) with anchors | |||
| Wood screws according to DIN 571 | mm | 6 x 50 | 6 x 50 |
| Rawl plugs (diameter x length) | mm | 8 x 40 | 8 x 40 |
| Anchoring of Miele plinths | |||
| Accessory: Miele plinth (fasteners included) | Ο | Ο | |
| Required anchor points | No. | 4 | 4 |
| Wood screws according to DIN 571 | mm | 8 x 65 | 8 x 65 |
| Rawl plugs (diameter x length) | mm | 12 x 60 | 12 x 60 |
| Plinth floor anchoring (to be provided on-site) | |||
| Machine installation on permanent plinth (concrete or masonry) | Ο | Ο | |
| Plinth installation footprint (W/D) | mm | 600/650 | 600/650 |
| Wood screws according to DIN 571 | mm | 6 x 50 | 6 x 50 |
| Rawl plugs (diameter x length) | mm | 8 x 40 | 8 x 40 |
| Machine data | |||
| Overall machine dimensions (H/W/D) | mm | 850/605/714 | 850/605/714 |
| Casing dimensions (H/W/D) | mm | 850/596/678 | 850/596/678 |
| Site-access dimensions (H/W) | |||
| Min. site-access (excl. packaging) | mm | 900/605 | 900/605 |
| Installation dimensions | |||
| Side gap | mm | 20 | 20 |
| Recommended side gap – washer-dryer stack | mm | >300 | >300 |
| Recommended distance to the opposite wall from machine front | mm | 1000 | 1000 |
| Weights and floor loads | |||
| Machine weight (net weight) | kg | 99 | 101 |
| Max. floor load in operation | N | 2820 | 2820 |
| Max. floor load, static | N | 1380 | 1380 |
| Max. floor load, dynamic | N | 1365 | 1365 |
| Emissions | |||
| Emission sound pressure level (in accordance with EN ISO 11203/11204) | dB(A) | <70 | <70 |
| Heat dissipation rate to the installation site | W | 250 | 250 |
= standard, Ο = optional, + = only on request, – not available
Installation and planning notes
Installation requirements
Electrical connection should only be made to a power supply provided in accordance with all appropriate local and national legislation and regulations.
In addition, all regulations issued by the appropriate utilities as well as standards relating to occupational safety, and all applicable valid regulations and technical standards must be observed!
Transportation and site access
The washing machine must not be moved without the transit bars in place. Keep the transit bars in a safe place. They must be re-fitted if the machine is to be moved again (e.g. when relocating the machine).
General operating conditions
Ambient temperature in installation room: +2 °C to +35 °C.
Depending on the nature of the installation site, sound emissions and vibration may occur. Miele recommends consulting a specialist if particular requirements apply at the installation site with respect to sound emissions.
Electrical connection
Depending on the model, the machine is delivered with a supply lead with/without a plug.
The appliance may only be connected to an electrical system that conforms to the national and local codes and regulations (BS 7671 in the UK). The installation must be performed by a qualified electrician.
The data plate indicates the nominal power consumption and the appropriate fuse rating. Compare the specifications on the data plate with those of the electrical power supply.
It is always recommended to make an electrical connection via a plug and socket so that electrical safety checks, e.g. during repair or service work, can be carried out easily.
The machine can be hard-wired or connected using a switched connection in accordance with IEC 60309-1. If the machine is hard wired, a dual circuit breaker must be provided on-site. When switched off there must be an all-pole contact gap of at least 3 mm in the isolator switch (including circuit breaker, switch, fuses and relays according to IEC/EN 60947).
The plug connector or isolator switch should be easily accessible at all times. If the machine is disconnected from the electricity supply, the isolator must be lockable or the point of disconnection must be monitored at all times.
New connections, modifications to the system, or servicing of the ground conductor, including determining the correct fuse amperage, must be carried out by a qualified electrician, as they are familiar with the pertinent regulations and the specific requirements of the electric utility company.
If converting the appliance to an alternative voltage, observe the instructions in the wiring diagram. The conversion must be performed by the Miele Customer Service Department or by an authorized service technician. The heater rating must also be adapted.
The washing machine should be connected directly to an electrical supply outlet. The use of extension leads to power the washing machine is not permitted and must not be used.
References to cable cross-sections in the technical data refer only to the required supply lead. Please consult relevant local and national regulations when calculating any other wire gauges.
For installation in GB
Both the hot and cold water hose must be connected to the mains water supply with the use of the provided double check valves.
Coldwater connection
The washing machine should be connected to a mains water supply in accordance with current local and national safety regulations. The German authorities do not require it to have a non-return valve as the washing machine has been designed to comply with current local and national regulations on water safety.
Connection to the water supply should be carried out by a qualified plumber using a stopcock with a threaded union. If a stopcock is not available, a qualified plumber should connect the machine to the water supply.
A suitable connection hose with a threaded union is provided with the appliance.
Longer hoses (2.5 or 4.0 m in length) are available from your Miele dealer or the Miele Customer Service Department as separate items.
Hot water connection
The same connection requirements as for cold water also apply to hot water (max. 60 °C).
A suitable connection hose with a threaded union is provided with the appliance.
The hot water connection appliance also requires a cold water connection.
In the event that hot water is not available on-site, the connection of the second hose must be made to a cold water supply.
Alternatively, the hot water connection should be blocked using the enclosed blind stopper and the machine controls set to cold water intake.
The required amount of hot water should be added to the cold water volume.
Drain valve
The machine is drained using a motorized drain valve. The machine can be connected directly to the on-site drainage system (without a siphon) or via a floor drain (gully with odor trap).
A vented drainage system is vital for unimpeded drainage. If on-site venting is insufficient, a vent kit (Mat. no. 05 239 540) is available from your Miele dealer or the Miele Customer Service Department.
If several machines are connected to a single drain pipe, this should be sufficiently large to allow all machines to drain simultaneously.
Equipotential bonding
If necessary, equipotential bonding with good galvanic contact must be guaranteed in compliance with all applicable local and national installation specifications. Connection material for equipotential bonding must be provided on-site or using a kit available from the Miele Customer Service Department.
Peak load/energy management
The appliance can be connected to a peak-load or energy management system using an optional kit.
When the peak-load function is activated, the heating is deactivated.
An appropriate message appears in the display.
Liquid dispensing connection
External liquid dispenser pumps with a “container empty” indicator can be used to dispense liquid detergents.
The dispenser pumps can only be programmed with MDU.
It is particularly important to observe the manufacturer’s instructions when using a combination of detergents, additives, and special-purpose products.
Interface
The appliance can be fitted with a KXM 3200 WL PLT communication module.
This module can be used as a WiFi or LAN interface.
The LAN interface provided via the module complies with SELV (Safety Extra Low Voltage) in accordance with EN 60950. Connected appliances must also comply with SELV. The LAN connection uses an RJ45 connector in accordance with EIA/TIA 568-B.
Installation
The machine must be installed on a perfectly smooth, level, and firm surface which is able to withstand the quoted loads.
The floor load created by the machine is concentrated and transferred to the installation footprint via the machine’s feet.
The machine should be leveled in both directions with the aid of adjustable feet.
Plinth installation
The washing machine can be installed on a machine plinth (open or box plinth, available as an optional Miele accessory) or on a concrete plinth to be provided on-site.
The quality of the concrete and its strength must be assessed according to the machine load. Ensure that any raised concrete plinth is adequately bonded to the concrete floor below!
If the washing machine is installed on a concrete or masonry plinth, it must be secured using the anchors supplied with the machine. Otherwise, there is the danger of the washing machine moving about during spinning and falling off a plinth.

The anchors provided can be used to bolt the machine to the floor by both front feet. The material provided is intended for use in bolting the machine to a concrete floor.
Bolts and fasteners for all other floor types must be provided on-site.
Washer-dryer stack
The washing machine can be installed as a washer-dryer stack together with a Miele tumble dryer. A stacking kit (optional accessory) is required for this.
Installation of the stacking kit must be performed by the Miele Customer Service Department or an authorized Miele service technician.
References
professional.com.au
Miele Official UAE | Premium Domestic Appliances Online.
美诺Miele官网
Miele Professional - Welcome to our website
Miele | Home Appliances South Africa
Miele Professional Australia
Home
Welcome to Miele – Immer Besser.
Miele India | Luxury Home Appliances, Buy Kitchen Appliances Products
Miele Singapore - Premium and Luxury home appliances
Connection optional or required, depending on model


















