TPC MSP3550 Mirage 2.0 Swing Mount Delivery System

Unpacking and Inventory
Each Mirage 2.0 Delivery system will contain the following items in each box.
- Flex arm box. This is the largest box that you will receive with the delivery unit.
- Delivery unit flex arm
- Junction Box
- Silicone Skid Pad
- Chair Bracket
- Master controls
- Optional LP100 light post.
- Light post
- Extension post
- Washer / Bearing assembly & Nut
- Optional 3550 Rear assistance Vacuum package
- Rear Vacuum package.
- HAVE / SE valves and tubing.
- Rear cover for M4000-SW chair
- Mounting bracket
- Replacement TPC labels for rear covers
- If at any time you have questions regarding your installation, please don’t hesitate to contact TPC toll-free @ 800-560-8222 or via Email @[email protected]
Installation Instructions
- Insert the mounting hub through the mounting plate as shown and secure in place using (3) of the included (3mm) Allen screws.


- Locate the four (6mm) mounting bolts/lock washers that were included with the dental chair adaptor. The secure bracket is shown in the image below. Place Nylon Spacer over the top mounting hub (figure 3).



- Grease the needle bearing and install one set of needle bearing/washers on the chair bracket hub as shown. Recline the dental chair backrest to increase the clearance between
the chair seat frame and mounting bracket. Place delivery unit arm onto chair bracket hub (figure 2). Place (Washer Bearing Washer) assembly on the top of the hub. Grease the needle bearing (figure 3).
- Verify the Allen set screws are loose in the spanner nut. Hand-tight the spanner nut in place on the hub. Use the supplied spanner nut wrench and tighten the spanner nut onto the hub. Once tightened secure Allen stop screws in the spanner nut to prevent the spanner nut from becoming loose. Install stop bolts as shown to prevent the swing arm from hitting the plastic covers on each side of the chair (figure 3).

- Route the umbilical from the delivery unit into the chair as shown. NOTE: The umbilical must be installed under the chair roller as shown (Figure 3).

- Run the umbilical through the center access hole as shown, then run it down the center of the cantilever to the pump location. Secure to the side of the cantilever using zip ties.

- Make the following connections from your foot control to the tubing within the junction box. Large yellow to large Grey on the foot control. Large Grey to Regulated air from mini regulator. Small grey from foot control to dark blue tubing “water relay” connection. Black signal air to air pilot valve on master control. Light blue to water out from mini regulator on water air pilot valve mini regulator

- Remove the side label covers (TPC) from the side covers to access the Phillip head screws to remove the side covers. Install the rear vac pack bracket using (4) of the 6mm Allen bolts.

- Place the new rear chair cover over the bracket as shown. Mount the rear vac pack to the rear mounting hub. The arms should be separated using the nylon washers. Secure in place using the included nut. Route the umbilical through the access hole down to the junction box. Secure the umbilical to the cantilever frame

Operation Instructions
- Air Coolant adjustment. You can adjust the air coolant to the handpiece by adjusting the air coolant knob on the right side of the delivery unit head figure 3. Turn the knob clockwise to decrease, counterclockwise to increase

- Flush Function. To perform an HP flush, Remove all three Handpieces from the delivery unit handpiece holders. Place the HP tubing in a bucket or container to catch the water that will be purged from the tubings. Use a suitable shock treatment and add it to the water bottle system. Toggle and Hold the flush option on the side of the delivery unit head. This will force the water to flush directly from the water bottle system through the water lines in the unit head figure 4

- Variable speed wet dry foot control. Depress the disc on the foot control to supply air to the unit head. If a handpiece is removed from its holder, that will be the active handpiece. Using the toggle on the foot control will turn the water on / off to the unit’s handpiece positions. Note: the blue dot on the shroud indicates the water is in the “ON” position.

- To adjust the handpiece pressure, use the adjustment knobs on the bottom of the unit. Figure 6. Turning the adjustment knobs clockwise will decrease the pressure. Turning the adjustment knobs counterclockwise will increase the pressure. To reference the HP pressure to the HP position you can use the pressure gauge on the side of the delivery unit head Figure 6.1.

- To adjust the handpiece water flow, use the adjustment knobs on the bottom of the unit. Figure 7. Turning the adjustment knobs clockwise will decrease the water flow. Turning the adjustment knobs counterclockwise will increase the water flow.

- The mirage 2.0 delivery system has two air brake releases for the arm. Press and hold either the left or right brake release button to unlock the arm. Move the arm to the desired position and release the button to lock the arm in place

Junction Box Connections
- Before making any connections in the junction box, be sure to clear the supply lines. If there is any debris in the airline it will collect on the micron filter. Verify the line is clear.
- Once the line is verified and cleared, you may connect the master controls. The master controls are similar looking. One is for the Air which is identified by the large yellow tubing that exits the back end of the master control valve. The master control for the water line is identified by the large blue line that exits the back of the master control valve.
- Once the connections are made you may open the angle stops or equivalent shut-off valve. Once the valve is open you may check the mater control gauges and verify that the pressures are set accordingly. Air pressure should read approximately 80 PSI. Water pressure should read 40 PSI

- Once air and water pressure are set, you may now adjust the syringe block if necessary. Also, check your handpiece pressure and adjust accordingly
Tension Adjustments
- In a situation where you need to add tension to the delivery unit flex arms please see the following locations. NOTE: tension adjustments are only a temporary fix for drifting arms. If your arms are drifting first verify the PMU is level. Check the light post to verify its plum. If the light post is not level make the proper adjustments by re-leveling the unit.

Tension spring adjustment
- If you need to make adjustments to the tension spring in the flex arm, follow the procedure below.
- Remove the flex arm cap cover.
- Use an 8 mm Allen wrench on the adjustment bolt.
- Turn clockwise to increase the tension
- Turn counterclockwise to decrease tension.
- Only make adjustments in half-turn increments
delivery head leveling and tilt adjustments
- If you need to level the unit head or adjust the tilt use the following adjustments.
- Loosen the 4 Allen screws that attach the unit head to the short control arm. See image. Once the screws are loose, use the two adjustment screws in the center on each side to level the head

- Loosen the 4 Allen screws that attach the unit head to the short control arm. See image. Once the screws are loose, use the two adjustment screws in the center on each side to level the head
- To adjust the unit head tilt, remove the flex arm end cap closest to the delivery unit head. Using a wrench turn the adjustment screw clockwise to increase the tilt of the delivery unit head. Turn the adjustment screw counterclockwise to decrease the tilt.

*Adjustment Screw
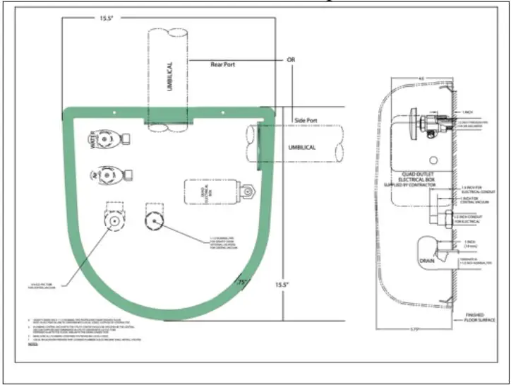
Junction box template
TPC 5-YEAR LIMITED WARRANTY
Warranty Information All of our products sold are guaranteed to be free from defects in workmanship and materials for a 1-year from the date of purchase unless otherwise stated. TPC will repair or replace any defective part at no charge. TPC will not be responsible for labor charges or shipping charges to/from the TPC facility. This guarantee does not cover normal wear or stains on the surface finish. The guarantee does not cover damage resulting from improper installation, misuse or accidents incurred in shipping and handling. All claims against the freight carrier must be initiated at the time the damaged items are received. The claim is the responsibility of the customer. We are improving our products on a continuous basis. We reserve the right to make modifications without the need for prior notification and are not obliged to modify previously manufactured items. Main hydraulic pumps and hydraulic parts are covered under the 5-year warranty. Main chair PCB, transformer, and solenoids are also covered under a 5-year warranty. Major cast components are covered under the TPC limited 5-year warranty. Upholstery, arm rests and any plastic components are covered under a 1-year warranty. Only authorized service technicians should attempt to service TPC equipment. Service performed by any unauthorized technicians may result in a voided warranty
5 Year Limited Warranty
Covered under a 5-year warranty:
- Flex Arm
- Rigid Arm
- Light Post
- Brake assembly
- The unit head frame and holder bar
- PMU (excluding plastic covers- top, front, sides)
- Tri Block
Covered under 1-year warranty:
- Handpiece tubing
- Syringe tubing
- Have & Saliva ejector tubing
- Internal plumbing (only defects in workmanship)
- Plastics (hangers, unit headcover, side box covers, 4 position asst holder, arm caps, j box frame, and cover)
- Air brake push-button valve
- Have & Se valves & 3-way syringe
- Block gasket
- Cuspidor bowl and frame assembly
- Telescoping assistants’ arm








































