Cooker Hood
CBT6130/3X
Instruction Manual

SAFETY INSTRUCTIONS
This manual explains the proper installation and use of your cooker hood, please read it carefully before using it even if you are familiar with the product. The manual should be kept in a safe place for future reference. These instructions shall also be available in an alternative format, e.g. on a website or on request from the user in a format such as a DVD.
Never to do:
- Do does not try to use the cooker hood without the grease filters or if the filters are excessively greasy!
- Do not install above a cooker with a high-level grill.
- Do not leave frying pans unattended during use because overheated fats or oils might catch fire.
- Never leave naked flames under the cooker hood.

- If the cooker hood is damaged, do not attempt to use.
- Do not flambé under the cooker hood.
- CAUTION: Accessible parts may become hot when used with cooking appliances.
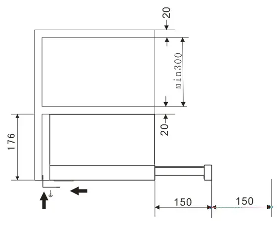
- The minimum distance between the supporting surface for the cooking vessels on the hob and the lowest part of the cooker hood. (When the cooker
hood is located above a gas appliance, this distance shall be at least 65 cm) - The air must not be discharged into a flue that is used for exhausting fumes from appliances burning gas or other fuels.

Always to do:
- Important! Always switch off the electricity supply at the mains during installation and maintenance such as light bulb replacement.
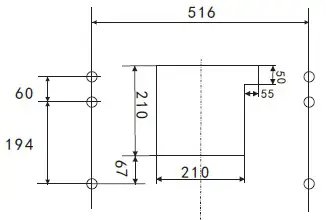
- The cooker hood must be installed in accordance with the installation instructions and all measurements followed.
- All installation work must be carried out by a competent person or qualified electrician.
- Please dispose of the packing material carefully. Children are vulnerable to it.
- Pay attention to the sharp edges inside the cooker hood especially during installation and cleaning.
- When the cooker hood is located above a gas appliance, the minimum distance between the supporting surface for the cooking vessels on the hob and the lowest part of the cooker hood that distance must be:
Gas cookers: 75 cm
Electric cookers: 65 cm
Coal or oil cookers: 75 cm - Make sure the ducting has no bends sharper than 90 degrees as this will reduce the efficiency of the cooker hood.
- Warning: Failure to install the screws or fixing device in accordance with these instructions may result in electrical hazards
- Warning: Before obtaining access to terminals, all supply circuits must be disconnected.
- Always put lids on pots and pans when cooking on a gas cooker.
- When in extraction mode, air in the room is being removed by the cooker hood. Please make sure that proper ventilation measures are being observed. The cooker hood removes odors from the room but not steam.
- The cooker hood is for domestic use only.

- If the supply cord is damaged, it must be replaced by the manufacturer, its service agent, or similarly qualified persons in order to avoid a hazard.
- This appliance can be used by children aged 8 years and above and persons with reduced physical, sensory or mental capabilities or lack of experience and knowledge if they have been given supervision or instruction concerning use of the appliance in a safe way and understand the hazards involved. Children shall not play with the appliance. Cleaning and user maintenance shall not be made by children without supervision.
Warning: Before obtaining access to terminals, all supply circuits must be disconnected. - Caution: The appliance and its accessible parts can become hot during operation. Be careful to avoid touching the heating elements. Children younger than 8 years old should stay away unless they are under permanent supervision.
- There shall be adequate ventilation of the room when the cooker hood is used at the same time as appliances burning gas or other fuels.
- There is a fire risk if cleaning is not carried out in accordance with the instructions
- Regulations concerning the discharge of air have to be fulfilled.
- Clean your appliance periodically by following the method given in the chapter MAINTENANCE.
- For safety reasons, please use only the same size of fixing or mounting screws which is recommended in this instruction manual.
- Regarding the details about the method and frequency of cleaning, please refer to the maintenance and cleaning section in the instruction manual.
- Cleaning and user maintenance shall not be made by children without supervision.
- When the cooker hood and appliances supplied with energy other than electricity are simultaneously in operation, the negative pressure in the room must not exceed 4 Pa (4 x 10-5 bar).
- WARNING: Danger of fire: do not store items on the cooking surfaces.
- A steam cleaner is not to be used.
- NEVER try to extinguish a fire with water, but switch off the appliance and then cover flame e.g. with a lid or a fire blanket.
INSTALLATION (VENT OUTSIDE)
MOUNTING OF THE V-FLAP(Optional)
If the cooker hood does not have an assembled V-flap 1, you should mount the half part to its body. The images only show an example of how to mount the V-flap,the outlet may be varied according to different models and configurations.
To mount the V-flap 1 you should:
- Mount two half-parts 2 into the body 6
- a pin 3 should be top oriented;
- the axis 4 should be inserted in the holes 5 on the body;
- repeat all the operations for the 2nd half-par

INSTALLATION (Wall Mounting)
- Decide the location of the holes for fixing the cooker hood.

- Install the L-shaped bracket on the top of the hood by two screws (4mm x 10mm)

- The cooker hood is wall mounted by 4 screws (4mm x 30mm) and wall plugs.
Mount the cooker hood on the wall on the back of the cooker hood by 2 screws (4mm x 30mm) and wall plugs. Then fix the cooker hood on the wall by 2 screws (4mm x 30mm) and wall plugs through the small L-shaped bracket.
- Fix the one-way valve to the air outlet of the cooker hood.

INSTALLATION (Cabinet Mounting)
- Fix the one-way valve to the air outlet of the cooker hood.

- Mount the cooker hood on the cabinet by 6 screws (4x35mm) and flat washers.

![]() | ![]() |
![]() | ![]() |
If there is gap between the wall and the cooker hood, you may install the L-shaped bracket on the bottom of the hood by two screws (3 x 12mm).
The installation of the L-shaped bracket is optional.
Note: The expansion pipe is not included in the product.
WARNING:
|
|
Start Using Your Cooker Hood
Rocker switch

- Insert the power plug into the socket.
- Push switch ① to , the lamp will be on; push switch ① to “0”, the lamp will be off.
- Push the switch ② into “I、II”, the motor will be on “low、high” two speeds, push into “0”, the motor will be off.
- The power will be connected when pull out the front panel. Conversely, the power will be automatically disconnected.
TROUBLESHOOTING
| ault | Possible Cause | Solution |
| Light on, but the motor does not work | Fan switch turned off | Select a fan switch position. |
| Fan switch failed | Contact service center. | |
| Motor failed | Contact service center. | |
| Light does not work, the motor does not work | House fuses blown | Reset/replace fuses. |
| Power cord lose or disconnected | Refit cord to a power outlet. Switch power outlet on. | |
| Oil leakage | One way valve and the outlet are not tightly sealed | Takedown the one-way valve and seal with sealant. |
| Leakage from the connection of chimney and cover | Take the chimney down and seal. | |
| Lights not working | Broken/Faulty globes | Replace globes as per this instruction. |
| Insufficient suction | The distance between the cooker hood and the gas top is too far | Refit the cooker hood to the correct distance. |
| The Cooker hood inclines | The fixing screw is not tight enough | Tighten the hanging screw and make it horizontal. |
NOTE:
Any electrical repairs to this appliance must conform to your local, state and federal laws. Please contact the service center if in any doubt before undertaking any of the above. Always disconnect the unit from the power source when opening the unit.
MAINTENANCE AND CLEANING
Caution:
- Before maintenance or cleaning is carried out, the cooker hood should be disconnected from the main power supply. Ensure that the cooker hood is switched off at the wall socket and the plug removed.
- External surfaces are susceptible to scratches and abrasions, so please follow the cleaning instructions to ensure the best possible result is achieved without damage.

GENERAL
Cleaning and maintenance should be carried out with the appliance cold especially when cleaning. Avoid leaving alkaline or acid substances (lemon juice, vinegar etc.) on the surfaces.
STAINLESS STEEL
The stainless steel must be cleaned regularly (e.g.weekly) to ensure long life expectancy. Dry with a clean soft cloth. A specialized stainless steel cleaning fluid may be used.
NOTE: Ensure that wiping is done along with the grain of the stainless steel to prevent any unsightly crisscross scratching patterns from appearing.
CONTROL PANEL SURFACE
The inlay control panel can be cleaned using warm soapy water. Ensure the cloth is clean and well wrung before cleaning. Use a dry soft cloth to remove any excess moisture left after cleaning.
Important
Using neutral detergents and avoid using harsh cleaning chemicals, strong household detergents or products containing abrasives,as this will affect the appliance appearance and potentially remove any printing of artwork on the control panel and will void manufacturers, warrantee.
GREASE MESH FILTERS
The mesh filters can be cleaned by hand. Soak them for about 3 minutes in water with a grease-loosening detergent then brush it gently with a soft brush. Please do not apply too much pressure, avoid damaging it. (Leave to dry naturally out of direct sunlight)
Filters should be washed separately to crockery and kitchen utensils. it is advisable not to use rinse aid.

INSTALLING GREASE MESH FILTERS
- To install filters for the following four steps .
– Angle the filter into slots at the back of the hood.
– Push the button on the handle of the filter.
– Release the handle once the filter fits into a resting position.
– Repeat to install all filters.
CARBON FILTER
An activated carbon filter can be used to trap odors. Normally the activated carbon filter should be changed at three or six months according to your cooking habit. The installation procedure of the activated carbon filter is as below.
- Put the carbon filter on the backside of the aluminum filter.
- Insert the steel wire into the frame of the aluminum filter, one on each side. You need to bend it to insert it into the other end of the frame.
- Make sure the steel wire fix the carbon filter onto the aluminum filter.

NOTE:
- Make sure the filter is securely locked. Otherwise, it would loosen and cause danger.
- When an activated carbon filter is attached, the suction power will be lowered.
BULB REPLACEMENT
| Important :
|
|
Changing the light
Use the screwdriver to loosen the ST4*8MM self-tapping screw (2pcs) from the lighting panel, take out the lighting fixture. Open the terminal box that is connected with the wire, disconnect the wire connector and replace the lamp.
- ILCOS D code for this lamp is: DBS-2/65-H-120/33
– LED modules –rectangle lamp
– Max wattage: 1X2 W
– Voltage range: AC 220-240V
– Dimensions:

ENVIRONMENTAL PROTECTION:
![]() | This product is marked with the symbol on the selective sorting of waste electronic equipment. This means that this product must not be disposed of with household waste but must be supported by a system of selective collection in accordance with Directive |
NOTE:
The following shows how to reduce the total environmental impact (e.g. energy use) of the cooking process).
- Install the cooker hood in a proper place where there is efficient ventilation.
- Clean the cooker hood regularly so as not to block the airway.
- Remember to switch off the cooker hood light after cooking.
- Remember to switch off the cooker hood after cooking.
INFORMATION FOR DISMANTLING
Do not dismantle the appliance in a way that is not shown in the user manual. The appliance could not be dismantled by the user. At the end of life, the appliance should not be disposed of with household waste. Check with you Local Authority or retailer for recycling advice.



Warning: Before obtaining access to terminals, all supply circuits must be disconnected.




























