CANDY CDG6MBGG Cooker Hood

Information and advice
CAUTION: Accessible parts may become hot when used with cooking appliances.
In certain circumstances electrical appliance may be a danger hazard.
- There must be adequate ventilation of the room when the cooker hood is used at the same time as appliances burning gas or other fuels.
- Do not check the status of the filters while the cooker hood is operating.
- Do not touch the light bulb within half an hour after appliance has been use.
- Do not light a flame under the cooker hood.
- Avoid opening gasometer when there is no pan on the stove, as it is damaging for the filters and a fire hazard.
- Constantly check food frying to avoid overheated oil splashing and becoming a fire hazard.
- Disconnect the electrical plug prior to any maintenance.
- Regulations concerning the discharge of air have to be fulfilled.
- When the range hood and appliances supplied with energy Other than electricity are simultaneously in operation. The negative pressure in the room must not exceed 4 Pa (4×10 bar)¯5
- If the supply cord is damaged, it must be replaced by the manufacturer, its service agent or similarly qualified persons in order to avoid a hazard.
- This appliance can be used by children aged from 8 years and above and persons with reduced physical, sensory or mental capabilities or lack of experience and knowledge if they have been given supervision or instruction concerning use of the appliance in a safe way and understand the hazards involved. Children shall not play with the appliance. Cleaning and user maintenance shall not be made by children unless they are older than 8 and supervised.
- the range hood is intended to be installed over a hob having no more than four hob elements.
- Indoor use and household use only
- When the appliance is not in use and before cleaning, unplug the appliance from the outlet.
- Attention ! Observe the warning in the instruction sheet concerning the operation of the appliance when air is discharged from the room
- There is a fire risk if cleaning is not carried out in accordance with the instructions.
Know your cooker hood
Please read these instructions Before using your cooker hood

- Oil Filter
- Filter assembly
- Air duct assembly
- Glass
- Main body assembly
- Outer chimney
- Also included
- Chimney fixed bolster
- Drill hole stencil
- User instructions
Information
Congratulations on the purchase of our Cooker hood, which is designed to include many superior features that permit you the fullest expression of your livin9 Before installing and/or using the cooker hood carefully read all the instructions.
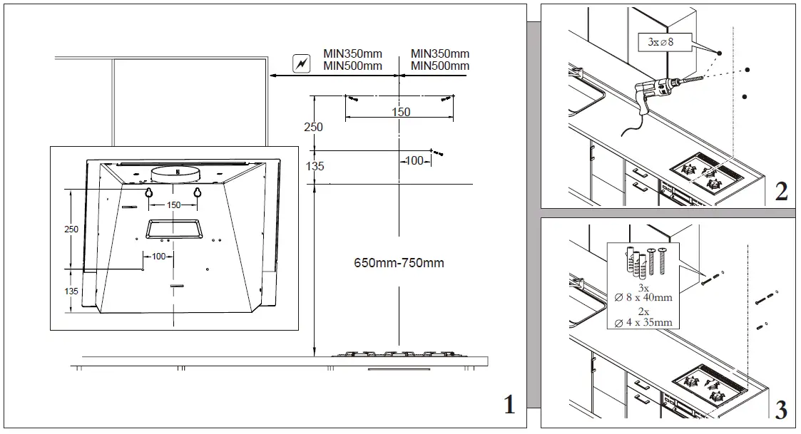
Installation
Ensure the power has been turned off before beginning this installation





Press the switch of light to be on, the left and right bulbs light on. otherwise the bulbs don’t work. When press the push button -s;: on, the motor runs at low speed. When press the push button ~.,on, the motor runs at middle speed. When press the push button Of on, the motor runs at high speed. When press the push button -o- on, the motor stops running.
Information
Do not touch the light bulb within half an hour after appliance use. The lamp shall not be covered with thermal insulation or other material
Charcoal filter installation Care and Maintenance

- IMPORTANT: DO NOT ATTEMPT TO MAINTAIN OR CLEAN THE EXTRACTOR WITHOUT FIRST SWITCHING OFF THE ELECTRICITY SUPPLY.
- To ensure the best performance from your cooker hood, the charcoal filter should be replaced every 3-4 months, dependent on use. Check with your local retailer or dealer for information on how to obtain replacement charcoal filters.
- This charcoal filter is non-washable and must be replaced as required. To install a new charcoal filter, first remove the grease filter, as shown in Fig.13.
Replacement and maintenance
If the supply cord is damaged, it must be replaced by the manufacturer, its service agent or similarly qualified persons in order to avoid a hazard
CAUTION: LED lights replacement must be done by a qualified electrician.
- Remove the LED lamp by flat-head screwdriver.
- Pull out the LED lamp. Unplug the lamp wire connector. Replace the LED lamp.
- Plug wire connector with new lamp.
Push the LED lamp into the hole with sound of snap.
Information
The power of bulb must not be more than 1W.

- It is recommendable to clean the metallic filter every three months by carrying out the following instructions:
- Remove the metallic filter from the cooker hood and wash it in a solution of water and neutral liquid detergent, leaving to soak
- Rinse thoroughly with warm water and leave to dry.
- The metallic filter may also be washed in the dishwasher. The metallic filter may alter in color after several washes. This is not cause for customer complaint nor replacement of metallic filter.
Information
There is a fire risk if cleaning is not carried out in accordance with the instructions.
This appliance is labelled in accordance with European Directive 2012/19/EU on Waste Electrical and Electronic Equipment Regulations 2013 regarding electric and electronic appliances (WEEE). The WEEE contain both polluting substances (that can have a negative effect on the environment) and base elements (that can be reused). It is important that the WEEE undergo specific treatments to correctly remove and dispose of the pollutants and recover all the materials. Individuals can play an important role in ensuring that the WEEE do not become an environmental problem; it is essential to follow a few basic rules:
- the WEEE should not be treated as domestic waste;
- the WEEE should be taken to dedicated collection areas managed by the town council or a registered company.
ln many countries, domestic collections may be available for large WEEEs. When you buy a new appliance, the old one can be returned to the vendor who must accept it free of charge as a one-off, as long as the appliance is of an equivalent type and has the same functions as the purchased appliance.
The manufacturer shall decline all responsibility if the foregoing recommendations and instruction regarding installation, maintenance and use are not observed and respected when using the cooker hood.

















