robern Murray Hill Collection

GENERAL INFORMATION
This instruction manual contains information on how to mount a Murray Hill Series framed cabinet. This series comes in different sizes. Refer to the specific model numbers for dimensions. The framed cabinets can only be recess mounted.
Save these instructions for future use and reference. An improper installation voids the warranty. Installed cabinets cannot be returned. If you experience any problems with your cabinet, contact your dealer or Robern directly.
Limited Warranty — One Year Term
SAFETY
IMPORTANT SAFETY INSTRUCTIONS
DANGER: Read all instructions before using this cabinet.
CAUTION: Maximum shelf load 34lbs/15.4kg
When using an electrical furnishing, basic precautions should always be followed, including the following:
WARNING: To reduce the risk of burns, fire, electric shock, or injury to persons:
- Use this furnishing only for its intended use as described in these instructions.
- Do not use attachments not recommended by the manufacturer.
- Never drop or insert any object into any opening.
- Do not use outdoors.
WARNING: Risk of electric shock. Connect this furnishing to a properly grounded circuit only. See Grounding instructions.
GROUNDING INSTRUCTIONS
Electrical option cabinet must be connected to a grounded metal, permanent wiring system, or an equipment-grounding conductor must be run with the circuit conductors and connected to the equipment-grounding terminal or lead on the product.
WARNING: Electrical option cabinet must be wired to a Class A 20 Amp GFCI (Ground Fault Circuit Interrupter) protected circuit when used in bathrooms and all other locations required by the National Electric Code.
SAVE THESE INSTRUCTIONS
TOOLS NEEDED
ACCESSORIES
Scan the available QR codes to learn more about these accessories at Robern.com
[P2ELECTRIC*] Portray Electric Upgrade
For Electric Upgrade Instructions:
[QUICKCADDY*] Portray Quick Caddy
For Quick Caddy Instructions:
[DLB-20]
IQ Digital Lock Box
For Digital Lock Box Instructions:
*Murray Hill models ending in “TP” include the Portray Electric Upgrade and Quick Caddy.
PARTS
Hardware
[216-1237] Frame Hardware Bag
[216-1201] Cabinet Hardware Bag
[P2PUSHKIT] Push-to-Open Hardware Bag

DIMENSIONS
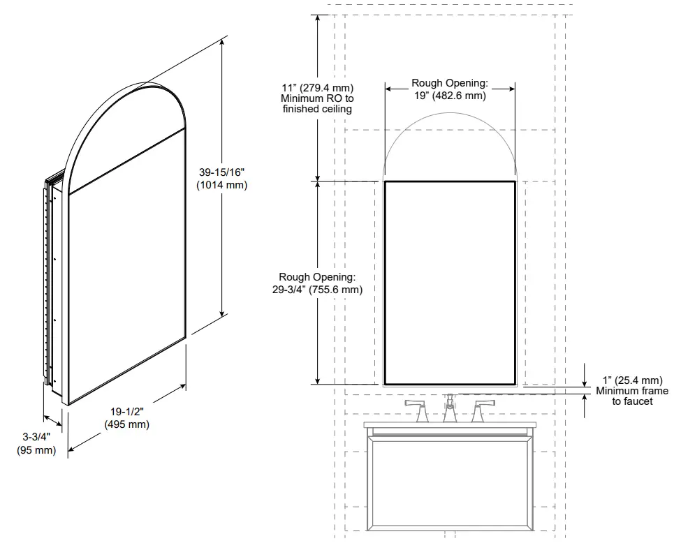
ARCH DIMENSIONS
Using the views shown below, determine rough-in dimensions.
PILL DIMENSIONS
Using the views shown below, determine rough-in dimensions.
MOUNT THE FRAME
NOTE: The frame comes wrapped in a protective film. Partial removal of the protective film will protect the frame during installation and make removal easier at the end of installation.
- Insert the frame into the rough opening. Square and plumb the frame, shimming as needed to hold it’s position in the opening.
- Holding a level to the frame, attach the frame to one side of the rough-in using the included flat head screws [203-1435]. Shim behind the screw locations to avoid overtightening the screws.
Pro tip: Add a layer of masking tape to the level to avoid scratching the frame surfaces. - Insert and tighten the opposite hand upper and lower screws to level the frame. Shim behind the screw locations to avoid overtightening the screws.
- Holding a level to the frame, insert and tighten the remaining screws. To avoid overtightening and potentially damaging the frame, shim behind the remaining screw locations as required.

MOUNT THE CABINET
NOTE: The cardboard sleeve attached to the door protects the edges and corners of the door during installation.
- Remove door from cabinet by taking the hinges off of the mounting plates.
- Peel the adhesive from each included alignment angle [211-1453] and attach to the lower corners of the frame opening.
NOTE: The alignment angles protect the frame as well as align the cabinet box vertically in the opening. - Insert the cabinet box into the frame with the hinges on the desired side (right-hand hinge orientation shown).
Electrical Option Cabinets: Provide a separate electrical connections for electrical options. Pull electric wire through the cabinet hole. Be sure to provide enough wire to make proper and safe connections to Portray Electric Upgrade.
WARNING: An Electrical option cabinet must be wired to a Class A 20 Amp GFCI (Ground Fault Circuit Interrupter) protected circuit when used in bathrooms and all other locations required by the National Electric Code. - Use the included 2″ screws [SS674] to mount the cabinet box, two screws per side.
- Once the cabinet box has been mounted inside the frame, remove the alignment angles.

PUSH-TO-OPEN INSTALLATION
- Position the supplied drill jig [220-1236] in the bottom corner of the cabinet, opposite the hinges. Be sure the flange of the jig is pressed against the flange of the cabinet as shown. Using the supplied #31 (0.120″) drill bit [203-1546], drill three holes into the side of the cabinet using the jig holes as a guide.
- Remove the jig and position the push-to-open base plate as shown so all three screw holes line up with the drilled holes. Using a #2 Phillips-head screwdriver, insert the supplied #6-32 screws [203-1493] and mount the base plate in place.
- Clip the push-to-open cover onto the baseplate, starting in the back, then pressing inward until an audible click is heard.
- Insert the push-to-open mechanism into the cover’s opening.
- Swing the cover closed until an audible click is heard.
- Press the push-to-open mechanism inward until the front face is flush with the outer cover. Rotate the push-to-open mechanism to adjust the door’s position when closed.


- Lay the cabinet door on a flat, protected surface and remove the lower plastic corner by pushing firmly on the bumper until the corner slides out of the channel.
- Insert and press the included push-to-open door corner [right-hand corner shown, 211-1412] into the channel until completely seated and secure.


FINAL ASSEMBLY
- Align the door and reattach hinges to mounting plates until audible click is heard. Ensure all hinges are fully seated before attempting to adjust door.
- If desired, the slow close feature can be deactivated on one of the hinges. Swing the door closed once for the deactivation to be complete. To reactivate, move switch back to original position.
NOTE: The door hinges have a three-way adjustment feature. These adjustments can be made using a #2 Phillips-head screwdriver.- 3A. Side adjustment – Rotate front screw to increase or decrease door overlay.
- 3B. Height adjustment – Rotate cam screw on mounting plate to adjust door.
- 3C. Depth adjustment – Rotate rear spiral tech cam screw to adjust door gap.

- Press the shelf hole plugs [SS143] into the unused holes inside the cabinet. Place the screw head caps [SS672] over any exposed screw heads.
- Install a Robern logo coverplate [211-1329] into each unused electrical access hole.
- Insert clear shelf clips [221-1376 and 211-1377] into the holes in the back channel on the sides of the cabinet.
- Push the back of the shelf into both the left and right clips (A). Snap the shelf down into the clips (B).


USE AND MAINTENANCE
CAUTION: Maximum shelf load 34 LBS
The cabinet door and interior are constructed of mirrored glass and aluminum. Use only a damp cloth to clean. Ammonia or vinegar-based cleaners can damage mirrors.
A 50/50 solution of water and isopropyl alcohol is recommended for cleaning the mirrors. A mild detergent may be used on the surfaces. When cleaning, spray the cloth, not the cabinet, mirror, or surround surfaces. Do not use abrasive cleansers on any part of the product.
NOTE: Do not store items in the cabinet area directly behind the hinge as damage may occur to cabinet or items.
WARRANTY
Limited Warranty One Year Term
ROBERN warrants to the original purchaser that, it will, at its election repair, replace, or make appropriate adjustment to products made by this company shown to have significant defects in material or workmanship which are reported to ROBERN in writing
within one (1) year from the date of delivery. ROBERN is not responsible for installation costs. The warranty is void in the event the product is damaged in transit, or if damage or failure is caused by abuse, misuse, abnormal usage, faulty installation, damage in an accident, improper maintenance, or any repairs other than those authorized by ROBERN. At the expiration of the one year warranty period, ROBERN shall be under no further obligation under any warranty, expressed or implied, including the implied warranty of merchantability. ROBERN shall not be liable for any consequential damages arising out of or in connection with the use or performance of its products. Some states do not allow limitations on how long an implied warranty lasts or do not allow the exclusion or limitation of incidental or consequential damages, so the above limitation or exclusion may not apply to you. Any liability against ROBERN under any implied warranty, including the warranty of merchantability, is expressly limited to the terms of this warranty. Permission to return any merchandise under this warranty must be authorized by ROBERN and returned prepaid by the purchaser. Claims under this warranty should be sent directly to your dealer.
©2022 ROBERN, INC.
ALL RIGHTS RESERVED
© 2022 Robern, Inc. 701 N. Wilson Ave. Bristol, PA 19007 U.S.A. 800.877.2376 www.robern.com
Scan the QR code to see the entire Murray Hill Series of cabinets. 
Use the camera app on your mobile device to look at this and other QR codes. This will allow you to quickly access web pages and other relevant documents.
















