11 930 740 Bottom Mount Unit
User Manual

To prevent accidents and machine damage, read these instructions before installation or use.
IMPORTANT SAFETY INSTRUCTIONS
This refrigeration appliance complies with current safety requirements. Inappropriate use can, however, lead to personal injury and material damage.
Please read the operating and installation instructions carefully before using the refrigeration appliance for the first time. They contain important information on safety, installation, use, and maintenance. This is to protect yourself from injury, and from damaging your refrigeration appliance.
Miele expressly and strongly advises that you read and follow the instructions in the chapter on installing the refrigeration appliance as well as in the “IMPORTANT SAFETY INSTRUCTIONS”.
Miele cannot be held liable for injury or damage caused by noncompliance with these instructions.
Keep these instructions in a safe place and pass them on to any future owner.
Appropriate use
- This appliance is intended for use in domestic households and similar residential environments such as – staff kitchen areas in shops, offices and other working environments
– farm houses and by clients in hotels, motels and other residential type environments
– bed and breakfast type environments
– catering and similar non-retail applications.
This appliance is not intended for use outdoors, in damp environments or in places exposed to rain. - This appliance is intended for domestic use only for cooling and storing food and drink as well as for storing deep frozen food, freezing fresh food and for making ice. Any other usage is not supported by the manufacturer and could be dangerous.
- This refrigeration appliance is not suitable for storing and keeping cool medicines, blood plasma, laboratory preparations, or other similar substances or products that are subject to the Medical Device Directive. Incorrect use of the refrigeration appliance for such purposes may cause deterioration of the items stored. The refrigeration appliance is also not suitable for use in areas where there is a risk of explosion. Miele cannot be held liable for damage resulting from incorrect or improper use or operation.
- This refrigeration appliance may only be used by people (including children) with reduced physical, sensory, or mental capabilities or lack of experience and knowledge if they are supervised while using it.
The refrigeration appliance may only be used by these people without supervision if they have been shown how to use it in a safe way and recognize and understand the consequences of incorrect operation.
Safety with children - Children should be supervised in the vicinity of the appliance.
- Children ages eight and up may only use the appliance even without supervision if they have been shown how to use it in a safe manner, and if they are able to recognize and understand the potential risks of improper use.
- Children must not clean or service the appliance unless they are under supervision.
- To reduce the risk of injury, do not allow children to play in, on or near the appliance.
- Ensure that any packing material is disposed of safely and kept out of the reach of children. DANGER of suffocation!
Technical safety - The coolant circuit has been checked for leaks. The refrigeration appliance complies with statutory and regulatory requirements.
The symbol is located on the compressor and indicates the danger of inflammable materials. Do not remove the label.
WARNING! This refrigeration appliance contains the coolant Isobutane (R600a), a natural gas which is environmentally friendly, but flammable. Although it is combustible, it does not damage the ozone layer and does not contribute to the greenhouse effect. The use of this coolant has, however, led to a slight increase in the noise level of the appliance. In addition to the noise of the compressor, you might be able to hear the coolant flowing around the cooling circuit. Unfortunately, this cannot be avoided, but it does not affect the performance of the refrigeration appliance.
WARNING! When transporting and installing the refrigeration appliance, ensure that no parts of the cooling circuit are damaged. Splashes of coolant can damage the eyes. In the event of damage: – Avoid open flames or anything which creates a spark.
– Disconnect the refrigeration appliance from the power supply.
– Ventilate the room where the refrigeration appliance is located for several minutes.
– Contact Miele Customer Service.- The more coolant there is in a refrigeration appliance, the larger the room it should be installed in. In the event of a leakage, if the appliance is in a small room, there is the danger of a combustible gas/air mixture building up. For every 11 g of coolant, at least 1 m of room space is required. The amount of coolant in the refrigeration appliance is stated on the data plate inside the appliance. 3
- To avoid the risk of damage to the appliance, make sure that the connection data (fuse rating, frequency and voltage) on the data plate corresponds to the household supply. Check that this is the case before connecting the appliance. Consult a qualified electrician if in any doubt.
- The electrical safety of the appliance can only be guaranteed when correctly grounded. It is essential that this standard safety requirement is met. If in any doubt please have the electrical installation tested by a qualified electrician.
- Temporary or permanent operation on an autonomous power supply system or a power supply system that is not synchronized with the grid power supply (e.g., island networks, back-up systems) is possible. A prerequisite for operation is that the power supply system complies with national and local codes. The function and operation of the protective measures provided in the domestic electrical installation and in this Miele product must also be maintained in isolated operation or in operation that is not synchronized with the grid power supply, or these measures must be replaced by equivalent measures in the installation.
- If the power cord supplied is damaged, it must only be replaced by an original part to prevent a hazard for the user. Miele can only guarantee the safety of the appliance when original Miele parts are used.
- Do not connect the appliance to the electrical supply with a power bar or extension cord. These are a fire hazard and do not guarantee the required safety of the appliance.
- If moisture gets into electrical components or into the power cord, it could cause a short circuit. Therefore, do not operate the machine in areas where there may be moisture or splashing water (e.g., garages, laundry rooms).
- This appliance must not be installed and operated in mobile installations (e.g. on a ship).
- Do not use a damaged appliance. It could be dangerous. Check the appliance for visible signs of damage.
- For safety reasons, this appliance may only be used after it has been built in.
- The machine must be disconnected from the power supply during installation, maintenance, and repair work, and installation work on the fresh water connection. The machine is only completely isolated from the power supply when:
– the fuses have been switched off, or
– the circuit breaker has been removed completely, or
– the power cord has been unplugged. Pull on the plug and not on the power cord when disconnecting it from the power supply. - Unauthorized installation, maintenance, and repairs, or a faulty fresh water connection can cause considerable danger for the user. Installation, maintenance, and repairs, installation work on the fresh water connection, and all repairs on the ice/water outlet must only ever be carried out by a Miele authorized technician.
- The ice cube maker must only be connected to a cold water line.
- Miele cannot be held liable for damage caused by a faulty connection to the fresh water supply.
- Any manufacturer’s warranty may be void if the appliance is not repaired by a Miele approved service technician.
- Faulty components must only be replaced by genuine Miele replacement parts. Miele can only guarantee the safety standards of the appliance when Miele replacement parts are used.
- This refrigeration appliance is supplied with a special bulb to cope with particular conditions (e.g., temperature, moisture, chemical resistance, abrasion resistance, and vibration). This bulb must only be used for the purpose for which it is intended. The bulb is not suitable for room lighting. Replacement bulbs may only be installed by an authorized technician or by Miele Customer Service.
Proper installation - When installing the refrigeration appliance, it is a mandatory requirement to follow the installation instructions supplied with it.
- Two people are required to install the appliance.
- Change the door hinging (if necessary) as described in these installation instructions.
- Only install the refrigeration appliance in a solid, rectangular, and level housing unit, positioned on an even and level floor.
Correct use
- This refrigeration appliance is designed for use within specific ambient temperatures (climate range). Do not use in ambient temperatures for which it is not designed. The climate range is stated on the data plate in the interior cabinet of the refrigeration appliance. A lower ambient temperature will cause the compressor to switch off for longer periods, meaning that the refrigeration appliance is unable to maintain the required temperature.
- WARNING! DANGER of overheating! Do not cover or block the air vents. This can impair the efficiency of the appliance, increase the power consumption and cause damage to the appliance.
- If storing food which contains a lot of fat or oil in the appliance, make sure that it does not come into contact with plastic components as this could cause stress cracks or break the plastic.
- Risk of fire and explosion. Do not store any explosive materials or products containing flammable propellants (e.g., spray cans) in the appliance. Electrical components can cause flammable mixes of gases to ignite.
- WARNING! Risk of explosion. Do not operate any electrical equipment (e.g., an electric ice-cream maker) inside the refrigeration appliance. Risk of sparking and explosion.
- Risk of injury and damage. Do not store cans or bottles containing carbonated drinks or liquids which could freeze in the freezer section. Otherwise they could burst.
- Risk of injury and damage. When chilling drinks in the freezer section, make sure that bottles are not left in for more than one hour. Otherwise they could burst.
- Risk of injury. Never handle frozen food or the metal parts of the appliance with wet hands. Your hands may freeze to the frozen food or to the metal.
- Risk of injury. Do not take ice cubes out with your bare hands and never place ice cubes or ice pops in your mouth straight from the freezer section. The very low temperature of the frozen food can cause frost burn to the lips and tongue.
- Do not refreeze partially or fully defrosted food. Consume defrosted food as soon as possible, as it will lose its nutritional value and spoil if left for too long. Defrosted food may only be refrozen after it has been cooked.
- When eating stored food, there is a danger of food poisoning. Storage times will depend on several factors, including the freshness and quality of the food, as well as the temperature at which it is stored. Observe the manufacturer’s “use-by” dates and storage instructions.
Accessories and parts
- Use only genuine original Miele parts. If parts or accessories from other manufacturers are used, the warranty may become invalid.
- Miele will guarantee to supply functional spare parts for a minimum of 10 years and up to 15 years following the discontinuation of your refrigeration appliance.
Cleaning and maintenance
- Do not use any oil or grease on the door seals. They can cause the seals to deteriorate over time.
- WARNING! DANGER of injury and damage! Do not use any mechanical or other types of aids which are not recommended by the manufacturer to accelerate the defrosting process.
- Never use a steam cleaner to clean the appliance. The steam can reach the electrical components and cause a short circuit.
- Sharp edged or pointed objects will damage the evaporator, causing irreversible damage to the appliance. Do not use sharp edged or pointed objects to
– remove frost or ice,
– separate frozen foods or remove ice trays. - Never place electric heaters or candles in the appliance to defrost it. These can damage the plastic parts.
- Do not use defrosting sprays or deicers, as they could contain substances which could damage the plastic parts or which might cause the build-up of gases and pose a danger to health. Transport
- To avoid damage to the appliance, always transport it upright and in its packaging.
- Risk of injury and damage. The refrigeration appliance is very heavy and must be transported by two people. Disposal of your old appliance
- DANGER. Risk of child entrapment! Children could become trapped in the machine and could suffocate.
– Remove the machine doors.
– Remove the drawers.
– Leave the adjustable shelves in the machine so children cannot easily climb inside. - DANGER of electric shock!
– Cut the plug off the power cord.
– Cut the power cord off the old appliance. - Dispose of them separately from the appliance.
- Ensure that the appliance is not stored in the vicinity of gasoline or inflammable gases and liquids during and after disposal.
- WARNING! Make sure that the coolant pipework is not damaged during disposal to avoid uncontrolled leakage of oil and coolant (see data plate for coolant type).
- If your old refrigeration appliance has a door lock, destroy it. This will prevent the risk of children playing accidentally locking themselves in and endangering their lives.
- Splashes of coolant can cause damage to the eyes. Be careful not to damage any part of the pipework while awaiting disposal, e.g. by
– puncturing the coolant channels in the evaporator,
– kinking any pipework,
– scratching the surface coating.
Symbol on the compressor (depending on model)
This information is only relevant for recycling. There is no risk during normal operation.
- The oil in the compressor can be fatal if swallowed or if it penetrates the airways.
Symbol on the rear of the appliance (depending on model)
This label or a similar one is only relevant for recycling. Do not remove the lable.
This information refers to the foamed-in panels in the door and/or the housing.
Caring for the environment
Disposal of packaging material
The packaging is designed to protect the appliance from damage during transportation. The packaging materials used are selected from materials which are environmentally friendly for disposal and should be recycled.
Ensure that any plastic wrappings, bags, etc. are disposed of safely and kept out of the reach of children. Return the packaging to your dealer.
Disposing of your old appliance
Electrical and electronic appliances contain many valuable materials. They also contain certain materials, compounds, and components which were essential for their correct functioning and safety. These could be hazardous to your health and to the environment if disposed of with household trash or if handled incorrectly. Please do not, therefore, dispose of your old appliance with household trash.
Follow the local regulations or the disposal of appliances. Instead, please make use of officially designated collection and disposal points to dispose of and recycle electrical and electronic appliances. By law, you are solely responsible for deleting any personal data from the appliance prior to disposal.
Take care not to damage your refrigeration appliance’s pipework before or during transportation to an authorized collection depot. This is to ensure that coolant in the cooling circuit and oil in the compressor is contained, and will not leak into the environment.
Installation
Installation location
WARNING! Risk of damage and injury due to the refrigeration appliance tipping over. This refrigeration appliance is very heavy and can tip forward when the door is open. Keep the appliance door(s) closed until the refrigeration appliance has been built in. The refrigeration appliance must be secured in its building in niche in accordance with the operating and installation instructions.
Fire hazard and risk of damage from appliances that give off heat. Appliances that give off heat can catch fire and set fire to the refrigeration appliance. This refrigeration appliance must not be installed underneath a cooktop.
Fire hazard and risk of damage from open flames. Open flames can set fire to the refrigeration appliance. Keep open flames (such as a candle) away from the refrigeration appliance.
This appliance should be installed in a dry, well-ventilated room. When deciding where to install your refrigeration appliance, please bear in mind that it will use more energy if installed near to a heater, a range, or another appliance that gives off heat. Avoid direct sunlight. The higher the ambient temperature, the longer the compressor runs and the higher the energy consumption is. When installing the appliance, please note:
– IMPORTANT! The power plug must be easily accessible so that the appliance can be disconnected from the mains quickly in an emergency. It must not be behind the back of the appliance.
– The plug and power cord must not touch the back of the appliance as they could be damaged by vibrations from the appliance.
– Do not plug other appliances into electrical outlets behind this appliance.
Risk of damage due to high humidity. In environments with high humidity, condensation can build up on external refrigeration-appliance panels. This condensate can cause corrosion on external appliance panels. Install the refrigeration appliance in a dry and/or air-conditioned room with sufficient ventilation.
After installation please make sure that the appliance door(s) closes (close) properly and the refrigeration appliance is installed in accordance with these installation instructions. The specified ventilation specifications must be observed.
Side-by-side combinations
Risk of damage due to condensation on external appliance panels. In environments with high humidity, condensation can build up on external appliance panels, which can cause corrosion.
Do not place different refrigeration appliances directly next to or on top of one other.
Exception: your refrigeration appliance can be installed next to another refrigeration appliance with an integrated heating unit if each appliance is built into a separate niche. Please contact your dealer for specific information about which combinations will work with your refrigeration appliance.
Climate class
This refrigeration appliance is designed for use within specific ambient temperatures (climate range). Do not use in ambient temperatures for which it is not designed. The climate range is stated on the data plate in the interior cabinet of the refrigeration appliance.
| Climate class | Ambient temperature |
| SN | 50 to 90°F/ +10 to +32°C |
| N | 60 to 90°F/ +16 to +32°C |
| ST | 60 to 100°F/ +16 to +38°C |
| T | 60 to 109°F/ +16 to +43°C |
A lower ambient temperature leads to the compressor switching off for longer periods. This can cause the internal temperature in the refrigeration appliance to rise with the risk of food deteriorating and going off.
Ventilation
WARNING! Fire hazard and risk of damage due to insufficient ventilation. If the refrigeration appliance is not ventilated sufficiently, the compressor will run more frequently and for longer periods. This causes increased energy consumption and an increased compressor operating temperature, which can result in damage to the compressor. Please ensure that there is adequate ventilation around the refrigeration appliance. It is essential to observe the required ventilation gaps. The ventilation gaps must never be obstructed. They must also be cleaned on a regular basis to remove dust. There must be a gap of at least ½ inch (13 mm) between the back of the appliance and the rear wall. If this gap is not maintained, this will result in increased energy consumption. Air at the back of the refrigeration appliance gets warm. The appliance housing unit must therefore be constructed to allow sufficient space for ventilation (see “Installation dimensions” and the installation instructions provided).
- To ensure ventilation an air channel of a minimum 1 1/2″ (40 mm) depth must be provided at the back of the appliance.
- The ventilation slits in the toe-kick, in the cabinet and under the top of the cabinet must provide a total passage volume of at least 31″² (200 cm² ) to allow the warm air to dissipate unimpeded.
- If you wish to fit a grille in the ventilation openings, the ventilation openings must be larger than 31″² (200 cm² ). The passage volume of 31″² (200 cm² ) is the total area of the opening slits in the grille.
- Important! The larger the ventilation slits, the more economically the appliance will work.
Lower ventilation slit
The appliance can be ventilated via the cabinet plinth with the ventilation grille supplied or with a minimum ventilation opening of 31 in² cross-section area. When using the grille supplied, please proceed as follows:

- Cut an opening in plinth 2 as shown in the diagram.
- Place ventilation grille 1 in the opening.
- Push snap fasteners 3 into the ventilation grille from behind until the hooks touch the plinth.
- Reinstall the plinth with the ventilation grille.
Cabinet doors
An upper cabinet door for the refrigerator section and a lower cabinet door for the freezer section are required.
The cabinet doors must be at least 5/8“ (16 mm) / 3/4” (19 mm) thick.
– Weight of the door panel
If the door panel is too heavy damage can occur.
Installing a door panel which is heavier than the maximum permitted weight could damage the hinges. This can cause subsequent functional problems.
Before installing the door panel, ensure that the weight of the door panel does not exceed the maximum permitted weight.
The maximum permissible weights of the door panels in lb (kg) are:
| Appliance | Upper | Lower |
| door | door | |
| panel | panel | |
| KFN(S) 7795 D | 39.7 (18) | 26.5 (12) |
Calculation of cabinet door size
The width of the cabinet door depends on the style of the kitchen and the gap between the unit door panels.
When calculating the height of the cabinet door, remember that the top edge of the door must be at the same height as that of the doors of the adjacent units.
The cabinet door must be fitted correctly and not under tension.
Horizontal and vertical gaps
Depending on the style of kitchen cabinetry, the thickness and edge radius of the custom door panel and the gap that runs around the door, vertically and horizontally, are specified.
It is essential to pay attention to the following:
– Horizontal gap The gap between the door panel and the housing-unit door above or below it must be at least 1/8″ (3 mm).
– Vertical gap
If the gap between the refrigeration appliance door panel and the adjoining housing-unit door or wall on the hinged side is too small, the appliance door could collide with the adjoining housing-unit door or wall when opened. It may be necessary to adjust the size of this gap to suit the thickness and edge radius of the door panel.
This must be taken into consideration when planning your kitchen and when replacing an old refrigeration appliance with a new one to ensure the installation conditions required are met.
| Door panel thick- ness A [in (mm)] | Gap X [in (mm)] for different edge radii B | |||
| R0 | R1.2 | R2 | R3 | |
| ≥5/8″- | min. 1/8″ (3) | |||
| 3/4″ | ||||
| (16–19) | ||||
| 13/16″ | 3/16″ | 3/16″ | 3/16″ | 1/8″ |
| (20) | (5) | (4) | (4) | (3.5) |
| 13/16″ | 3/16″ | 3/16″ | 3/16″ | 3/16″ |
| (21) | (5.5) | (5) | (4.5) | (4) |
| 7/8″ (22) | 1/4″ (6.5) | 1/4″ (6) | 3/16″ (5.5) | 3/16″ (5) |

Adjoining housing-unit door
A = Door-panel thickness
B = Edge radius
X = Gap

Adjoining side wall
A = Door-panel thickness
B = Edge radius
X = Gap
Tip: Fit a spacer between the housing unit body and the side wall. This way you will get a sufficiently wide gap.
Tip: Please also see the diagram and information on the following pages on calculating the cabinet door height.
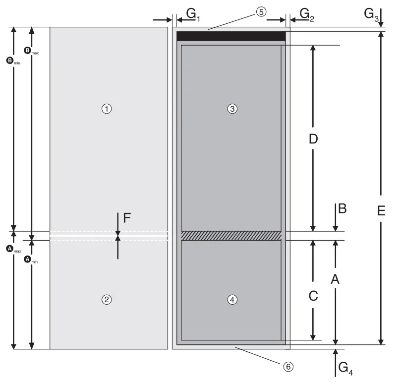
Cabinet door dimensions

/
height of freezer section cabinet door
/
height of refrigerator section cabinet door
- Refrigerator section cabinet door
- Freezer section cabinet door
- Refrigerator section appliance door
- Freezer section appliance door
- Fitted unit cover panel
- Fitted unit cabinet base
| A | 27 3/8″ (695 mm) |
| B | 9/16″ (15 mm) |
| C | 24 3/4″ (629 mm) |
| D | 38 15/16″ (989 mm) |
| E | 70 3/8″ (1788 mm) |
| F | approx. 1/8″ (3 mm) |
| G1-4 | 3/4″ (19 mm) |
Calculating the height of the cabinet doors
These examples are based on the following measurements, which may vary depending on the design of the kitchen:
– The horizontal gap between cabinet doors 1 and 2 is F = approx. 1/8″ (3 mm). This gap must be within the hatched area (see drawing).
– The thickness of the cover panel 5 and the base 6 of the fitted unit is usually 3/4″ (19 mm).
– Height of freezer section cabinet door 2
- The freezer section cabinet door must be at least A = 27 3/8″ (695 mm) to cover the bottom section of the appliance.
- To cover the front of the cabinet floor panel 6 , add the height of the cabinet base to height A:
= A + G₄ = 28 1/8″ (714 mm). - The height of the cabinet door may need to be altered depending on the adjacent kitchen units:
= A + G₄ + D – 1/8″ (3 mm) = 28 9/16” (726 mm).
– Height of refrigerator section cabinet door 1
This height is calculated on the basis of the freezer section cabinet door 2 height:
- Height of freezer section cabinet door =
:
= A + G₃ + G₄ –
1/8“ (3 mm) = 43 3/16” (1097 mm) - Height of freezer section cabinet door =
:
= A + G₃ + G₄ –
1/8“ (3 mm) = 43 11/16” (1109 mm)
Installation dimensions
Installation in a tall cabinet/side view
All dimensions are given in inches (mm).

* The declared energy consumption was achieved with a niche depth of 22 1/16″ (560 mm). The refrigeration appliance is fully capable of functioning at a niche depth of 21 5/8″ (550 mm) but will consume slightly more energy.
Before installation, ensure the housing-unit dimensions are the correct size.
Connections and ventilation
All dimensions are given in inches (mm).
The specified ventilation cross-sections must be adhered to in order to ensure the correct functioning of the refrigeration appliance.

- Front view
- Power cord, length = 7′ 2″ (2,200 mm)
A longer power cord is available to order from Miele Customer Service. - Water connection, length = 6′ 6″ (2,000 mm)
- Ventilation cut-out min. 31″² (200 cm²)
- Ventilation
- No connections permitted in the rear panel
Limiting the opening angle of the appliance doors
The door hinges are set to enable the appliance doors to be opened wide.
If the opening angle of the doors needs to be limited to approx. 90°, the hinge can be adjusted to accommodate this.
The locking pins for limiting the door opening must be installed before the appliance is installed.
The refrigerator-section door must be taken off in order to insert the pins into the upper hinge of the freezer-section door (see the installation instructions provided).

- Insert the locking pins supplied for limiting the door opening into the hinges from above.
This will limit the opening angles of the appliance doors to approx. 90°.
Water connection
Information on the plumbed-water connection
Risk of injury and appliance damage if appliance is not connected properly. Failing to connect the appliance properly can result in personal injury and/or material damage. The appliance may only be connected to the plumbed-water connection by qualified specialists.
Disconnect the refrigeration appliance from the power supply before connecting it to the water supply. Close the shut-off valve before connecting the refrigeration appliance to the water supply.
WARNING! Risk to health and risk of damage due to contaminated water!
The quality of the incoming water must conform to the requirements for drinking water in the country where the refrigeration appliance is being used.
Connect the refrigeration appliance to the drinking-water supply.
This appliance meets the requirements of IEC 61770 and EN 61770.
Connection to the water supply must comply with the applicable regulations in the country where the appliance is being installed. All appliances and systems used to supply water to the refrigeration appliance must also comply with the applicable regulations in the respective country.
For correct functioning (dispensing rate, size of ice cubes, noise level) the water connection pressure needs to be between 21.7 psi and 90 psi (1.5 bar and 6.2 bar).
If the water connection pressure exceeds 90 psi (6.2 bar), a pressure reducing valve must be fitted.
The water supply line and the inlet solenoid valve on the refrigeration appliance are suitable for a water connection pressure of up to 145 psi (10 bar).
Use fresh water to ensure that the quality of the ice cubes remains high. Connect the stainless steel hose to the fresh-water supply and avoid connection to a water supply in which the water might stagnate.
Only use the hose supplied. The hose must not be shortened, extended, or replaced by a different hose. Dispose of old hoses.
The hose must only be replaced by an original Miele spare part. The food-grade hose is available to order from the Miele online shop, from Miele Customer Service, or from your local Miele dealer.
A shut-off valve must be provided between the hose and the plumbed-water connection to ensure that the water supply can be cut off if necessary.
Make sure that the shut-off valve is still accessible after the appliance has been installed.
Water supply
Ensure that the connections are tight and leak-proof.
Risk of damage to the hose.
The water supply from the shut-off valve to the ice-cube maker has been interrupted. Do not bend or damage the hose.
A shut-off valve with a metric R3/4 thread must be incorporated when connecting to the water supply.
The solenoid valve is located at the back of the refrigeration appliance on the bottom right. It also has a metric R3/4 thread.
– Connecting the hose to the refrigeration appliance

- Pull the cover off the thread of the solenoid valve.
- Position the angled end of the hose 2 horizontally on the holder 3 and hold onto it securely.
- Screw the nut 1 onto the thread by hand until it is securely in place.
– Connecting the hose to the shut-off valve

- Connect the nut 4 to the shut-off valve 5.
– Checking the plumbed-water connection
Test the water connection for leaks before installing the appliance in the niche.
- Slowly open the shut-off valve 5 and check the screw connections.
Lead-free certificate
![]()
This product is tested and certified by WQA against NSF/ANSI 372 for “lead free” compliance.
Miele & Cie. KG
Carl-Miele-Strasse 29
D-33332 Gütersloh
Electrical connection
The refrigeration appliance must only be connected to a grounded outlet using the power cord supplied. The outlet must be easily accessible after the refrigeration appliance has been installed. If the outlet is not easily accessible, ensure that a suitable means of disconnection is provided on the installation side for each pole.
Risk of fire from overheating. Connecting the refrigeration appliance to a power bar or to an extension cord can overload the cord. For safety reasons, do not use a power bar or an extension cord.
The electrical installation must comply with VDE 0100.
For safety reasons, we recommend using a type
residual current device (RCD) in the assigned electrical installation for connecting the refrigeration appliance.
If the power cord is damaged, it must only be replaced with a specific cord of the same type (available from Miele Customer Service). For safety reasons, such replacement may only be carried out by a qualified technician or Miele Customer Service.
These operating instructions and the data plate indicate the nominal power consumption and the appropriate fuse rating. Compare this information with the data of the on-site electrical connection.
If in any doubt, consult a qualified electrician.
Temporary or permanent operation on an autonomous power supply system or a power supply system that is not synchronized with the grid power supply (e.g., island networks, back-up systems) is possible. A prerequisite for operation is that the power supply system complies with the specifications of EN 50160 or an equivalent standard. The function and operation of the protective measures provided in the domestic electrical installation and in this Miele product must also be maintained in isolated operation or in operation that is not synchronized with the grid power supply, or these measures must be replaced by equivalent measures in the installation. As described, for example, in the current version of VDE-AR-E 2510-2.
Connecting the appliance

- Insert the electrical plug into the back of the refrigeration appliance. Make sure that the electrical plug has clicked into position correctly.
- Insert the electrical plug of the refrigeration appliance into the socket.
The refrigeration appliance is now connected to the electricity supply.
Saving energy
How to save energy:
| Installation location | The refrigeration appliance has to cool more often at higher ambient temperatures and consumes more energy in the process. Therefore, you should: – Install the refrigeration appliance in a well-ventilated room. – Do not install the refrigeration appliance near to a heat source (heater element, range). – Protect the refrigeration appliance from direct sunlight. – Ensure an ideal ambient temperature of 68°F (20°C). – Clean the ventilation gaps on a regular basis to remove any dust. |
| Temperature setting | The colder the temperature, the higher the energy consumption. The following settings are recommended: – 39 to 41°F (4 to 5°C) in the refrigerator section. – Perfect Fresh Active zone just above 32°F (0°C). – 0°F (-18°C) in the freezer section. |
| Use | Energy consumption is increased by heat input and impeded air circulation. Therefore, you should: – Only open the appliance door(s) when necessary and for as short a time as possible. Arrange the food in such a way that makes it easy to find in the appliance. – Always close the appliance door(s) properly after opening them. – Allow hot food and drinks to cool down before placing them in the refrigeration appliance. – Store food well packaged or covered. – Do not overfill the compartments to allow air to circulate. – Place frozen food in the refrigerator section to defrost. – Keep drawers and shelves arranged as they were when the appliance was delivered. |
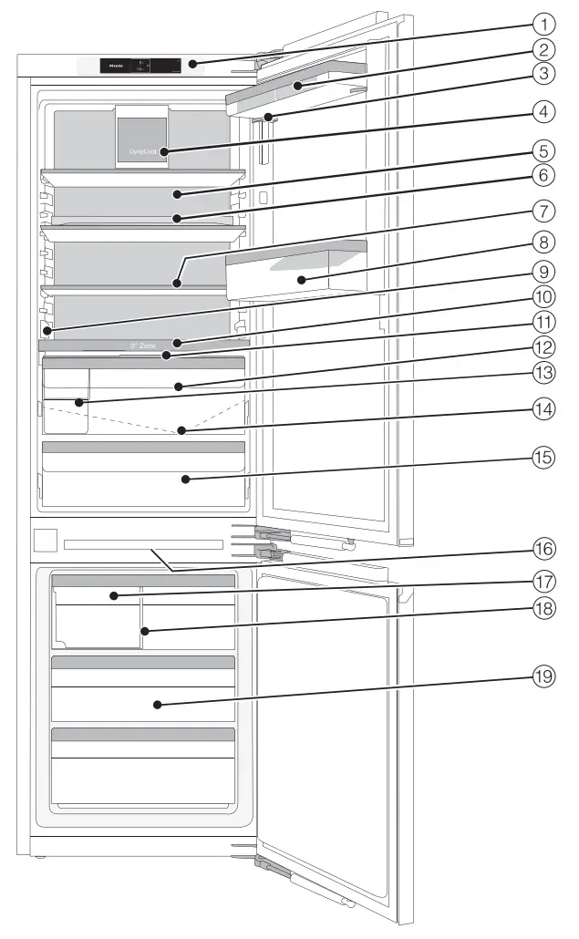
Guide to the appliance

- Display
- Egg tray
- Door shelf with fine adjustment
- Fan with lighting
- Dry back wall
- Adjustable shelf with pivot able glass shelf (Flexibility)
- Adjustable shelf with lighting (Flexibility 2.0)
- Bottle shelf with bottle holder
- Space for a baking tray (Comfort Size)
- Dividing plate with bottle rack; with humidifier and water container for the humidity-controlled compartment
- Lid for setting the moisture level in the humidity-controlled compartment
- Humidity-controlled compartment for fruit and vegetables (Perfect Fresh Active zone)
- Organization box
- Condensate channel and drain hole
- Dry compartment with low temperature for food which goes off quickly (Perfect Fresh Active zone)
- Freezer-section ceiling lighting
- Ice-cube maker with integrated ice cube tray and light
- Ice-cube drawer with adjustable partition
- Freezer drawers
Status display
The touch display can be scratched by pointed or sharp objects, e.g., pens.
Only touch the display with your fingers.
If your fingers are cold, the touch display may not react.

- Temperature display for the refrigerator section
- Temperature display for freezer section
- Settings mode sensor control
for adjusting various settings in Settings mode - Display for Miele@home connection status
(only visible when the Miele@home function has been set up) - Demo-mode display
(only visible when the Demo-mode function has been switched on)
Using the appliance
- Touch the area/symbol you want on the status display.
- Swipe left or right across the display until the value/symbol you want is shown in the middle.
- Tap on the option you want on the display to confirm.
The selected value/symbol will light up orange (except for a few exceptions). - To leave the Settings level, tap on
or OK.
Settings mode ![]()
In Settings mode, you can select the following appliance functions and alter their settings to some extent:
| Symbol | Function | Factory default |
| Switching the Party-mode function on or off (see “Selecting additional settings”) | Off | |
| Switching the Vacation-mode function on or off (see “Selecting additional settings”) | Off | |
| Switching the ice-cube maker on and off (see “Making ice cubes”) | Off | |
| Switching the system lock on or off (see “Selecting additional settings”) | (Off) | |
| Switching the refrigeration appliance off (see “Switching on and off”) | ||
| Switching the Sabbath-mode function on or off (see “Selecting additional settings”) | Off | |
| Calling up information on the Sabbath-mode function (see “Selecting additional settings”) | — | |
| Changing the time before the door alarm is triggered (see “Selecting additional settings”) | 1:00 | |
| Adjusting the temperature in the Perfect Fresh Active zone (see “The correct temperature”) | 5 | |
| Switching the humidifier on or off or adjusting its intensity (see “Storing food in the Perfect Fresh Active zone”) | Off | |
| Setting up the Miele@home function for the first time, activating and deactivating WiFi, or resetting the network configuration (see “Selecting additional settings”) | APP | |
| Switching the keypad tone on or off | On | |
| Changing the volume of the alarms and audible signals or switch them off entirely (see “Selecting additional settings”) | On /level 5 | |
| Changing the display brightness (see “Selecting additional settings”) | Level 4 | |
| ºC/ºF | Changing the temperature unit (°Celsius or °Fahrenheit) | ºC |
| Switching the Demo-mode function off (only visible when switched on) (see “Selecting additional settings”) | Off | |
| Resetting to default settings (see “Selecting additional settings”) | — | |
| Calling up information (model identifier and serial number) about your refrigeration appliance (see “Selecting additional settings”) | — | |
| Switching on the reminder to change the carbon filter (see “Optional accessories”) (see “Selecting additional settings”) | Off | |
| Setting the cleaning position of the ice-cube tray (only appears if the ice-cube maker is switched on) (see “Cleaning and care”). | — | |
| Switching Cleaning mode on or off (see “Cleaning and care”) | Off |
Adjusting the interior fittings
Using the door-shelf fine adjustment
Use the fine adjustment if you need greater height clearance on the door shelf/bottle shelf.
You can change the height of the door shelf while it is loaded.

- Hold the door shelf in both hands, press the gray buttons on both sides under it and move it.
Repositioning the door shelf with fine adjustment
Only move the door/bottle shelves in the appliance door when they are empty.

- Take hold of the sides of the door shelf with both hands so that you are touching each of the gray buttons underneath it.
- Press the gray buttons at the same time and slide the door shelf up and off the guide rails.

- Remove the guide rail from the lugs and move it to the desired position.
- Move the second guide rail parallel to the first rail.
- Push the shelf down onto the guide rails.
Moving the door shelf/bottle shelf
Only move the door/bottle shelves in the appliance door when they are empty.
- Push the door/bottle shelves upward, then remove them by pulling them forward.
- Replace the door/bottle shelves at the required height.
Clipping the egg trays on
- Clip the egg trays onto the rear edge of the door shelf.
Adjusting or removing the bottle holder
The non-slip fins of the bottle holder make bottles more secure when you open and close the appliance door.

The bottle holder can be moved left or right to create more room for drink cartons.
The bottle holder can be removed completely, e.g., for cleaning:
- Pull the bottle holder up to remove it.
Moving the shelf/shelf with lighting
The shelves can be adjusted according to the height of the food.

- Raise the shelf slightly at the front and pull it forward a little.
- Lift it until the notches at the side are in line with the shelf supports. The shelf can then be raised or lowered to the required level.
- Push the shelf in.
Make sure that the shelf with lighting clicks into position.
Stops prevent the shelves from being dislodged by mistake.
Moving the adjustable shelf with pivot able glass shelf (Flexi Tray)
Risk of damage caused by loading too much food and not distributing items evenly.
Loading too much food and not distributing items evenly can damage the pivot able glass shelf.
Do not exceed the maximum load size of 17.6 lb (8 kg). Arrange food items evenly across the full surface of the shelf.
The pivot able glass shelf can be turned 180° clockwise, improving access to the food placed at the back.

Danger of injury from dropping the glass shelf.
The pivot able glass shelf can come out when removing the adjustable shelf, causing the glass shelf to drop out of the tray and break.
Keep hold of the pivot able glass shelf when removing the adjustable shelf.
You can move the adjustable shelf with pivot able glass shelf as you wish.
Using the bottle rack in the dividing plate
In the dividing plate, either the bottle rack or the glass shelf can be used.

- Remove the glass shelf at the back of the dividing plate and keep it in a safe place.
- Place the bottles as far back as possible with the bases at the back of the appliance.
Tip: If the bottles hang over the edge of the bottle rack, adjust the bottom bottle shelf by moving it upward.
Removing and reinserting the organization box
The additional organization box in the Perfect Fresh Active zone makes it easier for you to organize your food.
- Lift the box at the rear first when you want to remove it.
- To reinsert the organization box in the drawer, place the front section in first.
Inserting the adapters for the baking tray
The supplied adapters enable you to insert a baking tray in your refrigerator section with ease. The baking tray can be no more than 18 3/8″ (466 mm) wide, 4 7/16″ 386 mm) deep, and 2″ (50 mm) high.

- Snap the adapters into place on the lowermost shelf supports on the side walls of the refrigerator section.
- Open the appliance door as far as it will go.

- Place the baking tray on the adapters in the refrigerator section and slide it in as far as it will go.
Tip: Let the baking tray cool down to room temperature before putting it in the refrigerator section.
Moving the carbon filter
KKF-FS carbon filters with holder (Active Air Clean) are available as optional accessories (see “Optional accessories”).
When you are storing very strong smelling food (e.g., cheese):
- Place the holder with the carbon filters on the adjustable shelf where this food is being kept.
- Change the carbon filters sooner if necessary.
- Use more carbon filters (with holders) in the appliance (see “Optional accessories”).
The holder for the carbon filters sits on a protective strip at the back of the adjustable shelf.
- To move the carbon filter, pull the holder up and off the protective strip.
- Then pull the protective strip off the shelf.
- Reinstall it on the shelf you wish to use it on.

- Reinstall the holder on the protective strip.
Optional accessories
A range of useful Miele accessories and care products are available for your appliance.
KKF-FS carbon filter with holder (Active Air Clean)
Carbon filters neutralize unpleasant odors in the refrigerator section for improved air quality.
KKF-RF replacement filters (Active Air Clean)
Replacement filters to fit the holder are available. We recommend replacing the carbon filters every 6 months.
Bottle rack

Bottles can be stored horizontally using the bottle rack to save space.
The bottle rack can be placed at different positions in the appliance.
Organization box
For a description, see “Guide to the appliance – Adjusting the interior fittings”.
Optional accessories can be ordered from the Miele webshop. These products can also be ordered from Miele (see the end of these operating instructions) or your Miele dealer.
Switching on and off
Before using for the first time
- Remove all packaging material and protective film.
- Clean the inside of the appliance and the accessories (see “Cleaning and care”).
Connecting the appliance
- Connect the refrigeration appliance to the electricity supply as described in “Electrical connection”.
Miele will then appear on the appliance display, followed by
.
Filling and inserting the water container for the humidifier
- Fill the water container for the humidifier with fresh drinking water (see “Storing food in the Perfect Fresh Active zone – Humidity-controlled compartment”).
- Place the water container in the dividing plate between the refrigerator section and Perfect Fresh Active zone (see “Storing food in the Perfect Fresh Active zone – Humidity-controlled compartment”).
Switching on the appliance
- Open the appliance door.
- Tap
on the display.
The refrigeration appliance will start to cool and the interior lighting will come on when the appliance door is opened.
When the set freezer temperature is reached, the
symbol disappears, the temperature display of the freezer section lights up constantly and the alarm stops.
- If the alarm annoys you, tap
.
The alarm will stop.
The refrigeration appliance will gradually reach the preset temperatures.
To enable the temperature to get sufficiently cold inside the refrigeration appliance, allow the appliance to run for a few hours. Do not place food in the refrigeration appliance until it has reached the preset temperature.
Do not place food in the freezer section until it has reached the preset temperature (min. 0°F/-18°C).
Switching off the appliance
You can only switch the entire refrigeration appliance off in Settings mode
.
- Tap
. - Swipe left or right until
is shown in the middle. - Tap
.
The cooling and interior lighting are switched off.
will appear in the display.
Please note: the refrigeration appliance is not disconnected from the power supply when it is switched off.
Turning off the refrigerator section separately
The refrigerator section can be switched off without having to switch off the freezer section. This is useful, e.g., while of vacation.
- Touch the temperature display for the refrigerator section.
- Swipe right until
is shown in the middle. - Tap
.
The temperature display for the refrigerator section will go out.
will appear in the display.
The refrigerator section will be turned off.
The temperature display for the freezer section remains lit up.
Switching the refrigerator section back on again separately
- Tap
in the temperature display for the refrigerator section. - Tap
.
The refrigerator section switches back on.
To note when switching off for longer periods of time
If, during a long absence, the refrigeration appliance is switched off but not cleaned and the door is left shut, there is a danger of bacteria building up inside the appliance. It is essential to clean the refrigeration appliance.
If the refrigeration appliance is not going to be used for a longer period of time, observe the following:
- Turn the appliance off.
- Unplug the appliance’s electrical plug or switch off the breaker.
- Take the water container for the humidifier out of the appliance, empty it, then clean and dry it.
- Empty the ice-cube drawer.
Risk of damage to the ice-cube maker.
If the water supply is cut off while the ice-cube maker is still in use, the water-intake pipe can freeze up.
Turn the ice-cube maker off if the water supply is interrupted (e.g., while on vacation). - Close the water-supply shut-off valve.
- Clean the refrigeration appliance and leave the door open to air the appliance and avoid odors building up inside.
The correct temperature
It is also advisable to carry out the last two instructions if you are switching the refrigerator section off for a longer period of time.
It is very important to set the correct temperature to ensure the shelf life of food. Reducing the temperature reduces the growth rate of microorganisms. Food does not spoil as quickly.
The temperature in the appliance will rise:
- the more often the appliance door is opened and the longer it is kept open
- the more food that is stored in it
- the warmer the food is that is being put into it
- the higher the ambient temperature surrounding the refrigeration appliance is. This refrigeration appliance is designed for use within specific ambient temperatures (climate range). Do not use in ambient temperatures for which it is not designed.
… in the freezer section
To freeze fresh food, a temperature of 0°F (-18°C) is required. This will prolong the storage life of your food and retain its quality.
As soon as the temperature rises above 14°F (-10°C), the bacteria become active in the food again so it cannot be kept as long. For this reason, partially defrosted or defrosted food must not be re-frozen. Food may be re-frozen once it has been cooked (boiled or roasted), as the high temperatures achieved when cooking destroy most bacteria.
Temperature display
In normal operation, the temperature display shows the current average refrigerator section temperature and the maximum freezer section temperature.
Depending on the ambient temperature and the temperature setting, it can take the appliance a few hours to reach the temperature required and for this temperature to then be shown as a constant temperature on the display.
Setting the temperature in the refrigerator/freezer sections
- Touch the temperature display for the section you want to change.
- Swipe left or right until the temperature you want is shown in the middle.
- Tap on the temperature you want to confirm.
The temperature display will then change back to the current refrigerator and freezer temperature in the refrigeration appliance.
Possible temperature settings
- Refrigerator section: 37 to 48°F (3 to 9°C)
- Freezer section: 5 to 15°F (-15 to -26°C)
Adjusting the PerfectFresh Active zone temperature
The temperature in the PerfectFresh Active zone is automatically maintained between 32 and 37°F (0 and 3°C).
However, if you would like it to be warmer or colder, e.g., when storing fish, you can adjust the temperature slightly in increments.
- Tap
. - Swipe left or right until
is shown in the middle. - Tap
. - Swipe left or right until the setting you want (1: lowest temperature; 9: highest temperature) is shown in the middle.
- Tap on the setting you want to confirm.
The default setting for the temperature is 5.
Under certain circumstances, a setting from 1 to 4 can cause negative temperatures to be reached. This can cause food to freeze.
Check the temperature setting.
If you change the temperature setting:
- Check the temperature display after a few hours. It will take this long for an accurate reading to be given.
– Wait for approx. 6 hours if the refrigeration appliance is not very full.
– Wait for approx. 24 hours if the refrigeration appliance is full.
If, after this time, the temperature is still too high or too low: - Adjust the temperature again.
Using Automatic Super Cool and Super Freeze
Automatic Super Cool
When switched on, the Automatic Super Cool function
can be used to rapidly reduce the temperature in the refrigerator section to its lowest setting (depending on the ambient temperature). The refrigeration appliance will work at full power and lower the temperature. Select this function for the rapid chilling of large amounts of fresh food or drink.
When the Automatic Super Cool function
is switched on, the appliance may make more noise than usual.
The Automatic SuperCool function
should be switched on 4 hours before placing food or drinks in the refrigerator section.
The Automatic SuperCool function
will switch itself off automatically after approx. 12 hours. The appliance will then run at normal power again.
Tip: To save energy, you can switch the Automatic Super Cool function
off yourself once food and drinks are sufficiently chilled.
Switching Automatic SuperCool
on and off
- Touch the temperature display for the refrigerator section.
- Touch
to switch the Automatic SuperCool function on and off again.
When the Automatic SuperCool function is switched on,
will light up orange.
- Tap on the temperature display to leave the Settings level.
SuperFreeze ![]()
When switched on, the SuperFreeze function
can be used to rapidly reduce the temperature in the freezer section to its lowest setting (depending on the ambient temperature). The refrigeration appliance will work at full power and lower the temperature. Select this function before freezing fresh food. Fresh food will be frozen quickly, so that the nutritional value, vitamin content, appearance, and taste are maintained.
When the SuperFreeze function
is switched on, the appliance may make more noise than usual.
SuperFreeze should be switched on approx. 6 hours before placing food in the freezer section.
When freezing the maximum amount of food, the SuperFreeze function
should be switched on 24 hours beforehand.
The SuperFreeze function
will switch itself off automatically after a maximum of 72 hours. The appliance will then run at normal power again. The exact amount of time will vary according to how much fresh food is placed in the freezer.
Tip: To save energy, you can switch the SuperFreeze function off yourself once food and drinks are sufficiently chilled.
You do not need to switch on the SuperFreeze function:
- When you place food that is already frozen in the freezer.
- If you are only freezing up to 4.4 Ib (2 kg) of fresh food daily.
Switching SuperFreeze
on and off
- Touch the temperature display for the freezer section.
- Tap
to switch the SuperFreeze function on and off again.
When the SuperFreeze function is switched on,
will light up orange.
- Tap on the temperature display to leave the Settings level.
Selecting additional settings
Explanation of the different settings
Only the settings that require further explanation are described below.
The door alarm and other warnings are automatically suppressed when you are in Settings mode
.
Party mode ![]()
The Party-mode function
is recommended if you wish to chill or freeze large amounts of fresh food or drink quickly or want to make ice cubes.
Tip: Switch on the Party-mode function
approx. 4 hours before placing food and drinks in the appliance.
When Party mode
is switched on, the following are switched on automatically:
- the Automatic SuperCool and SuperFreeze
functions - the ice-cube maker (ice cubes will be produced)
Party mode
cannot be switched on if the refrigerator section is switched off or if Vacation mode
is switched on.
The Party-mode function
will switch itself off automatically after approx. 24 hours. However, you can switch the Party-mode function
off early at any time.
Vacation mode ![]()
The Vacation-mode function
is useful when you go on vacation, for example, if you do not wish to switch off the refrigerator section completely or do not need a high degree of cooling.
If Vacation mode
is switched on, this will be indicated on the status display. It can be switched off via the status display or Settings mode
.
The refrigerator section is regulated at a temperature of 59°F (15°C), which automatically sets the temperature in the PerfectFresh Active zone to between 48 and 53°F (9 and 12°C). The refrigerator section remains in operation while saving energy.
The freezer section remains switched on at the previously set temperature.
Food which does not go off quickly can be stored in the refrigeration appliance for some time at this moderate refrigerator temperature. Energy consumption is lower than in normal operation.
This also prevents the build-up of odors and bacteria which can occur if the refrigerator section is switched off and the appliance door is closed.
Health risk caused by decomposing food.
The usability and quality of food in the refrigerator section may deteriorate if the temperature remains above 37°F (4°C) for an extended period. Only ever switch on the Vacation mode function
for a limited period.
Do not store any temperature-sensitive food which spoils easily, such as fruit, vegetables, fish, meat, and dairy products, during this time.
Switching the safety lock function
on
When the safety lock function is switched on, it protects the refrigeration appliance from being switched off unintentionally and being adjusted unintentionally by unauthorized persons, e.g., children.
- Tap
. - Swipe left or right until
is shown in the middle. - Tap
.
When the safety lock function is switched on,
will light up orange.
- Close the appliance door. Only then will the safety lock function
be active.
Deactivating the safety lock function
temporarily
If you want to adjust the temperature, for example, you can deactivate the safety lock function temporarily:
- Touch the temperature display for the section you want to adjust.
- Touch
for approx. 6 seconds.
The display switches to the temperature controls.
- Now select the required settings.
Closing the appliance door will reactivate the safety lock function
.
Switching the safety lock function
off completely
- Tap
. - Touch
for approx. 6 seconds. - Swipe left or right until
is shown in the middle. - Tap
.
When the safety lock function is switched off,
will light up.
Sabbath mode ![]()
The appliance features a Sabbath mode for the purposes of religious observance.
If Sabbath mode
is switched on, this will be indicated on the status display.
The display switches off after 3 seconds.
When Sabbath mode
is switched on, you cannot make any settings on your refrigeration appliance.
Ensure that the appliance doors are properly closed, as audible and visual alarms are turned off.
The Sabbath-mode function
will switch off automatically after approx. 120 hours.
When Sabbath mode
is switched on, the following are deactivated:
- the interior lighting when the appliance door is opened
- all audible and visual signals
- temperature display
All other functions switched on previously remain activated.
Health risk caused by decomposing food.
As power failures are not indicated while Sabbath mode
is active, food may be exposed to increased temperatures for a certain period of time. This will reduce the storage life of the food.
If there is a power failure during Sabbath mode
, check the quality of the food.
Switching Sabbath mode
off
- Tap on the black display.
will appear on the display. - Tap
.
lights up orange. - Tap on the
symbol in Settings mode
.
When Sabbath mode is switched off, the
symbol will light up white.
Information on Sabbath mode ![]()
This product is certified by Star-K, an international institute for kosher certification.
You can find the Star-K certification version here.
Changing the time before the door alarm
is triggered
You can set how quickly the door alarm should sound after an appliance door has been opened.
- Tap
. - Swipe left or right until
is shown in the middle. - Tap
. - Swipe left or right until the time you want between 30 seconds and 3 minutes 30 seconds is shown in the middle.
- Tap on the setting you want to confirm.
Miele@home
Your refrigeration appliance is equipped with an integrated WiFi module.
Networking is deactivated at the factory.
To use this feature, you will need:
- a WiFi network
- the Miele app
- a Miele user account You can create a user account via the Miele app.
The Miele app will guide you as you connect your refrigeration appliance to your home WiFi network.
Once the refrigeration appliance is connected to your WiFi network, you can use the app to carry out the following activities, for example:
- Call up information on the operating status of your refrigeration appliance.
- Change the settings on your refrigeration appliance.
Connecting your refrigeration appliance to your WiFi network will increase energy consumption, even when the appliance is switched off.
Make sure that the signal of your WiFi network is sufficiently strong in the place where you want to set up your refrigeration appliance.
Availability of the WiFi connection
The WiFi connection shares a frequency range with other appliances (including microwave ovens and remote control toys). This can cause sporadic or even complete connection failures. Therefore, the availability of featured functions cannot be guaranteed.
Miele@home availability
The ability to use the Miele app depends on the availability of the Miele@home service in your country.
The Miele@home service is not available in every country.
For information about availability, please visit www.miele.com.
Miele App
The Miele App is available to download free of charge from the Apple App Store® or from the Google Play Store™.
Setting up Miele@home for the first time
- Tap
. - Swipe left or right until
is shown in the middle. - Tap
. - Tap on the connection method you wish to use (app or WPS).
After you have successfully logged in,
will appear on the status display.
If a connection could not be created,
will appear.
- In this case, start the process again.
Deactivating or activating the WiFi connection
- Tap
. - Swipe left or right until
is shown in the middle. - Tap
. - Tap
to deactivate the WiFi connection.
will appear on the display. - Tap
to reactivate the WiFi connection. - Tap
to exit the menu level.
When the WiFi connection is active,
will light up on the status display.
Resetting the network configuration
- Tap
. - Swipe left or right until
is shown in the middle. - Tap
. - Swipe right until
is shown in the middle. - Tap
. - Tap OK.
All entered settings and values for Miele@home are reset to the default settings.
The WiFi connection has been deactivated.
will go out on the status display.
Reset the network configuration if you are disposing of or selling your refrigeration appliance, or if you are putting a used refrigeration appliance into operation. All personal data is removed from the refrigeration appliance. This will also ensure that a previous owner is no longer able to access the refrigeration appliance.
Changing the volume of the alarms and audible signals ![]()
You can change the volume of the alarms and audible signals (e.g., in the event of a door alarm or a fault message). Alternatively, you can switch the alarms and audible signals off if you find them annoying.
- Tap
. - Swipe left or right until
is shown in the middle. - Tap
. - Swipe left or right until the volume you want is shown in the middle.
- Confirm the volume you want by tapping on the segment bar.
When the alarms and audible signals are switched off,
will appear.
Adjusting the display brightness ![]()
You can adjust the display brightness to the lighting conditions in the room.
- Tap
. - Swipe left or right until
is shown in the middle. - Tap
. - Swipe left or right until the brightness you want is shown in the middle.
- Confirm the brightness you want by tapping on the segment bar.
Switching off Demo mode ![]()
Demo mode
allows the refrigeration appliance to be presented in the showroom without the cooling system being switched on. Do not activate this setting for domestic use.
If Demo mode has been switched on as a default setting,
will show on the status display.
- Tap
. - Tap
. - Swipe left or right until
is shown in the middle. - Tap
.
After Demo mode
has been switched off, the refrigeration appliance shuts down and must be switched on again.
Resetting the settings to their default settings ![]()
All settings made on the refrigeration appliance will be reset to default settings (for settings; see “Guide to the appliance”).
- Tap
. - Swipe left or right until
is shown in the middle. - Tap
. - will appear on the display.
- Touch OK.
The refrigeration appliance shuts down and must be switched on again.
Information ![]()
Appliance data (model identifier and serial number) is shown on the display.
Tip: This data is important when reporting an appliance fault to Miele Customer Service (see “Customer Service”).
Carbon-filter change indicator ![]()
After inserting the carbon filter (optional accessory), you must activate the carbon-filter change indicator
in Settings mode
.
The carbon-filter change indicator
on the status display will remind you to replace the carbon filter approx. every 6 months (see “Cleaning and care
– Replacing the carbon filters”).
Cleaning mode ![]()
Cleaning mode
makes it easier to clean the refrigerator section (see “Cleaning and care”). The interior lighting remains switched on, even though the refrigerator section is switched off. The audible signal will stop and the symbols on the display will also go out.
If Cleaning mode
is switched on, this will be indicated on the status display.
After cleaning, Cleaning mode
must be switched off. If the appliance door is closed for more than 10 minutes, Cleaning mode
switches itself off automatically.
Temperature and door alarm
Health risk caused by decomposing food.
If the temperature in the freezer remains above 0°F (-18°C) for a long time, the frozen food may start to defrost. This will reduce the storage life of the food.
Check whether the frozen food has started to defrost. If it has, use the food as soon as possible or cook it before freezing it again.
Temperature alarm
The refrigeration appliance has been equipped with a warning system so that the temperature in the freezer section cannot rise unnoticed.
If the temperature in the freezer section becomes too warm,
will light up red in the freezer-section temperature display.
An alarm will also sound until the cause of the alarm is rectified or the alarm is switched off.
The temperature the appliance is set at determines the temperature the appliance recognizes as being too warm.
The audible and visual signals may be activated in the following situations:
- You switch on the refrigeration appliance and the temperature in a temperature zone differs greatly from the set temperature.
- A lot of warm room air enters the freezer section when you are rearranging or taking out frozen food.
- You are freezing large amounts of food at once.
- You are freezing warm food.
- There was a power failure.
- The refrigeration appliance has a fault.
Before you switch the temperature alarm off, you must determine the cause and rectify it.
If the alarm disturbs you, it can be turned off early.
- Tap
.
The alarm message is confirmed:
goes out and the alarm stops.
The start screen appears in the display: the warmest temperature recorded in the freezer section will flash for about 1 minute in the display. Then the temperature display will change to the current temperature in the freezer section.
Door alarm
The refrigeration appliance is equipped with a warning system to avoid increased energy consumption and food becoming warm if the appliance door is left open.
If an appliance door is left open for a longer period of time,
will light up yellow on the relevant temperature display. An alarm will also sound.
You can change the time before the door alarm is triggered. However, the door alarm can also be turned off (see “Selecting additional settings”).
The alarm will stop and
will go out on the display as soon as the door is closed.
Turning the door alarm off early
If the alarm disturbs you, it can be turned off early.
- Touch and hold
in the display for a few seconds.
The alarm tone will stop and the
symbol will go out.
If the appliance door is not closed, the alarm will sound again after 3 minutes.
Storing food in the refrigerator section
Do not load more than a maximum of 35 lb (16 kg) of food in the appliance door.
Risk of fire from electrical appliances.
Operating electrical devices in the appliance can cause sparks to form.
Do not operate any electrical devices inside the appliance.
Risk of explosion due to flammable mixes of gases.
Electrical components can cause flammable mixes of gases to ignite.
Do not store any explosive materials or products containing flammable propellants (e.g., spray cans) in the appliance. The spray cans in question can be identified by the contents printed on the can or by a flame symbol. Electrical components can cause escaping gases to ignite.
Risk of damage due to greasy or oily foods.
If storing food which contains a lot of fat or oil in the refrigeration appliance or the appliance door, make sure that it does not come into contact with plastic components as this could cause stress cracks or break the plastic.
Make sure that no fat or oil leaks onto the plastic parts of the refrigeration appliance.
If there is insufficient air circulation, the cooling performance will decrease and energy consumption will increase.
To allow air to circulate efficiently, do not pack food too closely together in the appliance.
Do not cover the fan in the rear wall of the appliance.
Different storage zones
Due to natural air circulation, there are different temperature zones in the refrigerator section.
Cold, heavy air sinks to the lowest section of the refrigeration section. Make use of the different zones when placing food in the appliance.
This appliance has Dynamic Cooling, which helps to keep an even temperature when the fan is running. When Dynamic Cooling is turned on, the difference between the various zones is less pronounced.
Warmest area
The warmest area in the refrigerator section is in the top section of the door. Use this for storing butter so that it remains spreadable and cheese so that it retains its flavor.
Coldest area
The coldest area in the refrigerator section is directly above the PerfectFresh Active zone dividing plate and at the back of the appliance. The temperature in the PerfectFresh Active zone compartments is even colder.
Use these areas in the refrigerator section and in the PerfectFresh Active zone for all delicate and highly perishable food, e.g.,:
- fish, meat, poultry
- cold cuts, ready-made meals
- dishes or baked goods containing eggs or cream
- fresh dough, cake mixtures, pizza dough, or pie dough
- raw-milk cheese and other raw-milk products
- pre-packed vegetables
- other fresh food (with a label stating it should be kept at a temperature of approx. 39°F [4°C])
Food which is not suitable for storage in the fridge zone
Not all food is suitable for refrigeration at temperatures below 40°F (5°C) because it is sensitive to cold.
Foods which are sensitive to cold include:
- pineapples, avocados, bananas, pomegranates, mangoes, melons, papayas, passion fruit, citrus fruits such as lemons, oranges, mandarins, grapefruits
- fruit (which is not yet ripe)
- eggplant, cucumbers, potatoes, peppers, tomatoes, zucchini
- hard cheeses (e.g., Parmesan)
Notes on buying food
The freshness of the food when it is first placed in the appliance is the most important factor for how long it stays fresh.
Take into account the use-by date and the correct storage temperature.
Time out of the fridge, e.g., transporting food in a warm car, should be kept to a minimum.
Storing food correctly
Ensure that food stored in the refrigerator section is in packaging or covered properly (some exceptions apply in the PerfectFresh Active zone). This will prevent food odors from affecting other food, stop food from drying out, and also prevent any cross-contamination of bacteria. This is particularly important when storing meat products. Make sure that food such as raw meat and fish in particular does not come into contact with other food.
By ensuring that the temperature settings are correct and by taking appropriate hygiene measures, you can prolong the storage life of your food considerably. This prevents food waste.
Storing food in the PerfectFresh Active zone
PerfectFresh Active zone The PerfectFresh Active zone satisfies the requirements of a chill compartment to DIN EN 62552:2020.
The PerfectFresh Active zone provides ideal storage conditions for fruit, vegetables, fish, meat, and dairy products. Food stays fresh considerably longer while retaining both flavor and vitamins.
The temperature in the PerfectFresh Active zone is controlled automatically and maintained at 32 to 37°F (0 to 3°C). While lower than the temperature in a standard refrigerator section, this is the optimum temperature range for storing fresh food which is not sensitive to cold.
The humidity level in the PerfectFresh Active zone can also be regulated to suit the food being stored. If the humidifier
is switched on, water vapor is supplied to the stored fruit and vegetables. The humidifier
switches on approximately every 90 minutes and each time the appliance door is opened. Food retains its own moisture if stored at a higher humidity and so does not dry out as quickly.
Remember that the fresher the food when it is placed in the appliance, the longer it will stay fresh.
Take food out of the PerfectFresh Active zone approx. 30 to 60 minutes before using it. The aroma and taste do not fully develop until the food has reached room temperature.
Humidity-controlled compartment
The upper humidity-controlled compartment has a temperature of 32 to 37°F (0 to 3°C), and the humidity level is increased depending on the position of the compartment lid:
not increased or
increased.
Low humidity ![]()
When the
setting is used, the humidity-controlled compartment becomes a dry compartment (see “Dry compartment”).
Increased humidity ![]()
When this setting is used, the compartment is suitable for storing fruit and vegetables.
Increased moisture in the humidity controlled compartment can cause a build-up of condensate.
If you find that too much condensate has formed and this is affecting the food, proceed as follows:
Wipe off any condensate with a cloth.
Open the compartment lid by moving it to the low humidity
position. Switch the humidifier
off.
Selecting increased humidity ![]()
When the
setting is used, the humidifier
should be switched on.
The energy consumption does increase slightly when the humidifier
is switched on. The appliance may also make more noise than usual.
- Tap
. - Swipe left or right until
is shown in the middle. - Tap
. - Swipe left until the humidifier intensity you want (1: low humidity; 3: maximum humidity) is shown in the middle.
- Tap the setting you want to confirm.
The
symbol lights up orange. - Open the drawer of the humidity-controlled compartment.

- Slide the compartment lid backward as far as it will go.
The compartment lid is closed and the humidity remains in the compartment
.
Selecting low humidity ![]()
When the
setting is used, the humidifier
should be switched off.
- Tap
. - Swipe left or right until
is shown in the middle. - Tap
. - Swipe right and tap
.
The
symbol lights up white. - Open the drawer of the humidity-controlled compartment.

- Pull the compartment lid forward as far as it will go.
The compartment lid is open and the humidity drops
.
If the food is higher than the edge of the drawer, pushing in the drawer may alter the position of the compartment lid, causing it to close.
When filling the drawer, take care to ensure that the food does not touch the compartment lid.
Humidifier ![]()
When the humidifier
is switched on, water vapor is supplied to the fruit and vegetables stored in the humidity-controlled compartment each time the appliance door is opened and approximately every 90 minutes. The water vapor provides additional humidity in the humidity-controlled compartment.
The humidifier and its water container are located in the dividing plate between the refrigerator section and PerfectFresh Active zone.
Check and pay attention to the following before switching the humidifier on (see “Selecting additional settings”):
- The water container must have been cleaned, filled with water, and inserted securely.
- The lid for the humidity-controlled compartment must be closed (
setting).
The water in the water container should last for approx. 4 months.
The water container will only need to be refilled if the humidifier is no longer producing any water vapor.
Risk of damage due to incorrectly filled water container.
Liquids containing sugar can damage the humidifier.
Use only fresh drinking water to fill the water container.
Risk to health due to contaminated water.
Using contaminated water can lead to poisoning.
Use only fresh drinking water to fill the water container.
Risk to health due to contaminated water.
Bacteria can develop in water which has been sitting in the water container for too long. This poses a risk to your health.
Clean the water container for the humidifier and fill it with fresh drinking water if the refrigeration appliance, the refrigerator section, or the humidifier has been switched off for an extended period of time (more than 2 days).
Clean the water container for the humidifier and fill it with fresh drinking water if Vacation mode
has been switched on for an extended period of time (more than 2 weeks).
Filling the water container for the humidifier
- Press on the outer corners at the back of the glass shelf ①.
The glass shelf will lift up at the front. - Lift up the shelf and fold it back.
The glass shelf will stand upright. - Push the slider ② to the left.
The water container ③ will spring out of the recess. - Remove the water container and fill it up to the marker with drinking water.
- Reinsert the water container.
- Fold the glass shelf ① back down.
Dry compartment![]()
The lower dry compartment has a temperature of 32 to 37°F (0 to 3°C) and the humidity is not increased
.
The dry compartment is suitable for storing perishable foods such as:
- fresh fish and shellfish
- meat, poultry, and sausage
- deli salads
- dairy products such as yogurt, cheese, cream, etc.
- Any type of food can in fact be stored in this compartment, as long as it is packaged.
Please note that foods rich in protein deteriorate faster than others.
Shellfish, for example, deteriorates faster than fish, and fish deteriorates faster than meat.
Always keep these foods covered or wrapped.
Observe the following tips if you find that food you have stored does not keep well (e.g., food becomes limp or wilts after only being stored for a short time):
- Only place fresh food in the appliance as the initial condition of the food is crucial to maintaining freshness.
- Clean the compartments in the PerfectFresh Active zone before storing food in them.
- Very wet food should be dried off before storing it.
- Do not store food which is sensitive to cold in the PerfectFresh Active zone (see “Storing food in the refrigerator section – Food which is not suitable for storage in the refrigerator section”).
- Select the correct PerfectFresh Active compartment for the food as well as the correct position for the compartment lid (low humidity
or humidity increased
). - An increased humidity level
in the humidity-controlled compartment is achieved with the moisture present in the food being stored if the food is stored unwrapped. The more food stored in the compartment, the higher the humidity. - Do not overfill the compartments.
- If you find that too much condensate has formed when using the
setting and this is affecting the food:
– Wipe off any condensate with a cloth.
– Place a rack or similar item in the compartment so that excess moisture can drain away.
– Open the compartment lid by moving it to the low humidity
position and switch the humidifier
off. - If the humidity level is too low despite the
setting, wrap the food in airtight packaging. - If you think that the temperature in the PerfectFresh Active zone is too high or too low, try regulating it slightly first by changing the temperature in the refrigerator section by 1 or 2°F. If ice crystals start to form on the floor of the PerfectFresh Active compartments, increase the temperature as otherwise the cold temperature will damage the food.
- If adjusting the temperature in the refrigerator section does not remedy the problem, adjust the temperature in the PerfectFresh Active zone (see “The correct temperature”).
Freezing and storing food
Always observe USDA food safety guidelines.
Risk of fire from electrical appliances.
Operating electrical devices in the appliance can cause sparks to form.
Do not operate any electrical devices inside the appliance.
What happens when you freeze fresh food?
Health risk caused by decomposing food.
If the temperature in the freezer remains above 0°F (-18°C) for a long time, the frozen food may start to defrost. This will reduce the storage life of the food.
Check whether the frozen food has started to defrost. If it has, use the food as soon as possible or cook it before freezing it again.
Fresh food should be frozen as quickly as possible so that the nutritional value of the food, its vitamin content, appearance, and flavor are maintained.
If food is frozen quickly, the cells have less time to lose moisture, so they shrink significantly less. As there is not so much moisture loss, it is easier for the food to reabsorb it during the defrosting process, and very little water collects around the defrosted food.
Maximum freezing capacity
To ensure that fresh food placed in the freezer freezes through to the core as quickly as possible, the maximum freezing capacity must not be exceeded. The maximum freezing capacity for freezing within a 24hour period is given on the data plate: “Freezing capacity … lbs/24 hrs”.
Storing frozen food
When buying frozen food to store in your freezer, make sure to check:
– that the packaging is not damaged
– the expiration date
– that the temperature at which the frozen food is being stored in the shop is 0°F (-18°C) or colder
- Where possible, transport frozen food in an insulated bag and then store it quickly in the refrigeration appliance.
Home freezing
Before placing food in the freezer
- When freezing more than 4.4 lb (2 kg) of fresh food, switch on the SuperFreeze function
for 6 hours before placing the food in the freezer. - When freezing even larger amounts of food, switch on the SuperFreeze function
for 24 hours before placing the food in the freezer.
This helps frozen food which is already stored in the freezer to stay frozen. - Only freeze food that is fresh and in good condition.
Please note that some food is not suitable for freezing. These include, for example, vegetables that are usually eaten raw, such as lettuce or radishes.
Tip: To retain color, taste, aroma, and vitamin C, vegetables should be blanched before they are frozen. To do so, place them portion by portion into boiling water for 2–3 minutes. Then, remove and plunge the vegetables into ice-cold water to cool quickly. Leave the vegetables to drain.
Packaging food for freezing
- Freeze food in portions.
Tip: Use suitable packaging to avoid freezer burn (such as freezer containers). - Expel as much air as possible from the packaging and close it tightly.
- Label the packaging with the contents and the date of freezing.
Placing food in the freezer
Risk of damage due to heavy loads.
Loading food which is too heavy can cause damage to the freezer drawers/glass shelves.
Do not exceed the relevant maximum load:
Freezer drawer = 26 Ib (12 kg)
Glass shelf = 77 lb (35 kg)
Unfrozen food should not touch frozen food as this will cause the frozen food to begin to thaw.
- To prevent food sticking together when frozen, make sure that the packaging and containers are dry.
To ensure that food freezes through to the core quickly, do not exceed the following packaging and container sizes:
– fruit and vegetables: max. 2.2 lb (1 kg)
– meat: max. 5.5 lb (2.5 kg)
– Freezing small amounts of food
Place the food in the upper freezer drawers.
- Place the food flat in the bottom of the upper freezer drawers so that it freezes through to the core as quickly as possible.
– Freezing the maximum amount of food (see data plate)
If the ventilation slots are obstructed, the cooling performance will decrease and energy consumption will increase.
When placing food in the freezer, make sure that the ventilation slots are not blocked.
Tip: You can expand the space available in the freezer section. If you wish to freeze large items, such as turkey or game, you can remove the glass plates between the freezer drawers.
- Remove the upper freezer drawers.
- Place the food flat on the upper glass plates so that it freezes through to the middle as quickly as possible.
Once the food has frozen:
- Switch the SuperFreeze function
off. - Place the frozen food in the freezer drawers and push them back in.
Storage time for frozen food
| Food group | Storage time (Months) |
| Ice cream | 2 to 6 |
| Bread, baked goods | 2 to 6 |
| Cheese | 2 to 4 |
| Fish, oily | 1 to 2 |
| Fish, lean | 1 to 5 |
| Sausage, ham | 1 to 3 |
| Game, pork | 1 to 12 |
| Poultry, beef | 2 to 10 |
| Vegetables, fruit | 6 to 18 |
| Herbs | 6 to 10 |
The storage times given are guidelines only.
Where the storage time given on the packaging differs, follow the advice on the packaging.
By keeping the freezer section at a constant temperature of 0°F (-18°C) and taking appropriate hygiene measures you can maximize the storage life of your food and avoid food waste.
Cooling drinks quickly
To cool drinks quickly in the refrigerator section, switch on the Automatic SuperCool function
.
If you want to cool a large amount of drinks, or if you want to cool drinks in the freezer section, select Party mode
in Settings mode
.
When cooling drinks quickly in the freezer, make sure bottles are not left in for more than one hour. Otherwise they could burst.
Making ice cubes
Check and pay attention to the following before switching the ice-cube maker on:
- The ice-cube maker must be clean.
- The refrigeration appliance must be switched on.
- The ice-cube drawer contains an adjustable partition. You can adjust the size of the area in which the ice cubes will collect depending on the amount of ice you require.
- The drawer area below the ice-cube maker must be empty.
- Ice cubes can only be made when the ice-cube drawer is completely closed.
Risk to health due to contaminated water.
Bacteria can develop in water which has been sitting in the water-supply lines for too long. This poses a risk to your health.
Throw away the first 3 batches of ice cubes made after the ice-cube maker is started up, as the water will have been used for the initial rinsing of the water-supply line.
This applies to the initial commissioning as well as when using the ice-cube maker again after it has been switched off for an extended period of time (more than 5 days).
When using the appliance for the first time, it can take up to 24 hours for the first ice cubes to drop out of the ice cube maker and collect in the drawer.
After the ice-cube maker has been turned off and on again, it can take up to 6 hours for this process to be completed.
Only make normal domestic quantities of ice cubes with the ice-cube maker.
The ice-cube maker can make up to approx. 2.6 lb (1.2 kg) of ice cubes in 24 hours.
The amount of ice cubes made by the appliance depends on the temperature in the freezer section. The lower the temperature, the more ice cubes are produced.
Switching the ice-cube maker
on and off
- Tap
. - Swipe left or right until
is shown in the middle. - Tap
.
will light up orange when the ice cube maker is switched on.
Once the freezer section has cooled down to its set temperature, the ice cube maker will fill with water.

As soon as ice cubes are produced, they will empty automatically from the integrated ice-cube tray and into the drawer. The ice-cube tray cannot be removed.
Ice-cube production is halted automatically when the ice-cube drawer is full. The drawer will not fill up to the top edge.
Tip: Empty the ice-cube drawer at regular intervals, or if you have not produced any ice for more than a week. This will ensure that you always have fresh ice and the ice cubes will not form a clump.
The ice-cube maker can be turned off independently of the freezer section if you do not want to make any ice cubes.
If the ice-cube maker is switched off, food up to a maximum height of 4″ (10 cm) can be placed in the ice cube drawer and frozen.
Defrosting
WARNING! DANGER of injury and damage!
Do not use any mechanical or other types of aids which are not recommended by the manufacturer to accelerate the defrosting process.
Refrigerator section and PerfectFresh Active zone
The refrigerator section and the PerfectFresh Active zone defrost automatically.
The condensate drains through a channel and drain hole into an evaporation system at the back of the refrigeration appliance. The warmth generated by the compressor causes the condensate to evaporate automatically.
Keep the condensate channel and drain hole clean to enable this. The condensate must always be able to drain properly.
Freezer section
The appliance is equipped with a “No Frost” system. The freezer defrosts automatically.
The moisture generated in the appliance collects on the condenser and is automatically defrosted and evaporates periodically.
This automatic defrosting system enables the Freezer Zone to remain permanently ice-free. However, the food stored in the freezer will not defrost.
Cleaning and care
WARNING! DANGER of electric shock! Unplug the appliance or trip the circuit breaker.
WARNING! Fire hazard! Do not damage the coolant pipework.
The data plate located inside the interior cabinet of the refrigeration appliance must not be removed. It contains information which is required in the event of a service call.
Do not let water get into the electronic or the lighting.
Risk of damage due to moisture penetration.
The steam from a steam cleaner can damage plastic and electrical components.
Do not use a steam cleaner to clean the refrigeration appliance.
Cleaning water must not get into the drain hole.
Cleaning agents
Cleaning and care products used in the interior cabinet of the refrigeration appliance must be food safe.
To avoid damaging the surfaces of your appliance, do not use the following:
- cleaning agents containing soda, ammonia, acids, or chloride
- cleaning agents containing limescale remover
- abrasive cleaning agents, such as scouring powder, scouring liquid, or pumice stones
- cleaning agents containing solvents
- stainless steel cleaners
- dishwasher cleaning agents
- oven sprays
- glass cleaners
- hard, abrasive sponges and brushes, such as pot scrubbers
- eraser sponges
- sharp metal scrapers
We recommend using a clean sponge, lukewarm water with a little liquid dish soap to clean the surfaces of the appliance.
Preparing the refrigeration appliance for cleaning
Cleaning the refrigerator section only:
Switch Cleaning mode
on. The cooling system in the refrigerator section is switched off, but the interior lighting remains switched on.
- Tap
. - Swipe left or right until
is shown in the middle. - Tap
. - To leave this Settings level, tap
.
If Cleaning mode
is switched on, this will be indicated on the status display.
- Take any food out of the refrigerator section and store it in a cool place.
- Take out any removable accessories for cleaning (see “Removing, dismantling, and cleaning accessories”).
Cleaning the freezer section/the entire refrigeration appliance:
- Turn the appliance off.
appears in the display and the cooling system is switched off. - Take any food out of the freezer section/refrigeration appliance and store it in a cool place.
- Take out any removable accessories for cleaning (see “Removing, dismantling, and cleaning accessories”).
Cleaning the interior of the appliance
Clean the appliance regularly, or at least once a month.
If soiling is left on for any length of time, it may become impossible to remove under certain circumstances. Surfaces may become discolored or damaged.
It is therefore best to remove any soiling immediately.
- Clean the interior with a clean sponge, lukewarm water, and a little liquid dish soap.
- After cleaning, wipe with clean water and dry with a soft cloth.
- Clean the condensate channel and drain hole frequently using a cotton swab or similar item to ensure that condensate can drain away freely.
- Leave the door open to air the refrigeration appliance sufficiently for a short while and to prevent odor buildup.
Cleaning accessories by hand or in the dishwasher
The following components must be cleaned by hand only:
- the stainless steel trims or strips
- door shelf with fine adjustment
- the plastic parts of the adjustable shelf with pivot able glass shelf (Flexi Tray)
- adjustable shelf with printing
- the dividing plate and bottle rack
- all drawers and compartment lids (these vary depending on model)
- the flexible bottle rack (available as an optional accessory)
- the organization box
The following components are dishwasher-safe:
Risk of damage due to high dishwasher temperatures.
Parts of the refrigeration appliance may become unusable, e.g., deform, if they are washed in the dishwasher at more than 130°F (55°C).
For dishwasher-safe components, always select dishwasher programs with a maximum temperature of 130°F (55°C).
Contact with natural dyes from carrots, tomatoes, and ketchup, etc., may discolor the plastic parts in the dishwasher. This discoloration does not affect the stability of the parts.
- bottle holder, egg tray
- shelves and bottle shelves in the appliance door (without stainless steel trim)
- door shelf with fine adjustment
- the adjustable shelves (without the strips or printing)
- the glass shelves (without trim)
- the partition for the ice-cube drawer
- the 2 pieces that make up the water container for the humidifier
- the adapters for the baking tray
- the holder for the carbon filter (available as an optional accessory)
Removing, dismantling, and cleaning accessories
Removing the door shelf with fine adjustment

- Hold the door shelf in both hands, press the gray buttons on both sides under it, and slide it up off the guide rails.
- Remove the guide rail from the lugs.
- Once you have cleaned it, move the guide rail to the desired position and place the second guide rail parallel to the first rail on the opposite side.
- Push the shelf back down onto the guide rails.
Dismantling the door shelf/bottle shelf
Remove the stainless steel trim before cleaning the door shelf/bottle rack in a dishwasher.
To remove the stainless steel trim, proceed as follows:
- Place the door shelf/bottle rack on the countertop.

- Press the retainer out of the recess. The entire section of stainless steel trim will now come off the shelf.
- After cleaning, reattach the stainless steel trim to the shelf by following the same procedure in reverse.
Dismantling the adjustable shelf/adjustable shelf with lighting
Risk of damage as a result of incorrect cleaning.
The stainless steel trim with LED lighting will be damaged if you place it in water for cleaning.
Clean the stainless steel trim with LED lighting with a damp cloth.
Remove the stainless steel trim or stainless steel trim with LED lighting before cleaning the adjustable shelf.
- Place the adjustable shelf on a soft surface (e.g., a dish towel) with the top side facing downward.
Risk of damage as a result of incorrect handling.
When you remove the stainless steel trim with LED lighting, the metal contacts can be damaged.
These contacts in the front left corner supply power to the LED lighting. Ensure that you always loosen the other side from the contacts (metal discs) first.
- Grasp the plastic surround on the left-hand side of the stainless steel trim at its rearmost point.
1. Pull the plastic surround from the adjustable shelf and
2. pull the trim off at the same time. Then do the same on the opposite side. - After cleaning, reattach the stainless steel trim by following the same procedure in reverse.
Dismantling the adjustable shelf with pivot able glass shelf (Flexi Tray)
- Place the adjustable shelf with pivot able glass shelf on a countertop covered with a soft material (e.g., a dish towel).

- Bring the tray to the front. Use the opening to lift the glass shelf from underneath and remove it.
- Move the tray back to its original position resting on the adjustable shelf.
The tray can only be detached from the adjustable shelf once it has been returned to its original position and is resting on the adjustable shelf. The fastener must be sitting in the circular recess at the end of the runner guide ①.
- Take a firm hold of the top right of the bottom adjustable shelf and pull the tray firmly off the adjustable shelf.
The fastener on the tray comes loose from the circular recess at the end of the runner guide ①.
You can now dismantle all the parts and clean them.
Underneath the plastic shelf, there is a glass panel which is held in place with retainers ② on the outer edge of the adjustable shelf.
The glass panel can also be removed for cleaning as described below: - Move the shelf so that the stainless steel trim is at the back and the front edge hangs over the countertop slightly.

- Release the retainers ② and lift the shelf up.
The glass panel comes loose. Both parts can now be cleaned.
Assembling the adjustable shelf with pivot able glass shelf (Flexibility)
- Put the plastic adjustable shelf down on the countertop so that the recess is at the top and the stainless steel trim is at the front.

- Place the glass panel in the grooves ③ and then secure it in the retainers ②.
- Turn over the shelf so that the plastic surface is facing upward.

- Place the frame on the adjustable shelf so that the arrows on the adjustable shelf line up with the recesses on the frame.

- Take hold of the tray with the fastener facing downward and push the fastener firmly into the circular recess at the end of the runner guide ①.
- Place the glass shelf in the tray.
Removing the drawers from the refrigerator section

- Pull the drawer out as far as it will go.
- Holding the sides of the drawer at the back, lift it up and then forward and out.
Push the telescopic runners back in again to avoid damaging them.
Risk of damage as a result of incorrect cleaning.
The telescopic runners contain a special lubricant which can be washed out during cleaning, damaging the rails.
Wipe the telescopic runners with a damp cloth to clean them.
Replacing the drawers
- Place the drawer on the fully retracted telescopic runners.
- Push the drawer into the refrigeration appliance until it clicks into position.
Removing and dismantling the water container for the humidifier
Risk to health due to contaminated water.
Bacteria can develop in water which has been sitting in the water container for too long. This poses a risk to your health.
Clean the water container for the humidifier and fill it with fresh drinking water if the refrigeration appliance, the refrigerator section, or the humidifier has been switched off for an extended period of time (more than 2 days).
Clean the water container for the humidifier and fill it with fresh drinking water if Vacation mode
has been switched on for an extended period of time (more than 2 weeks).

- Press on the outer corners at the back of the glass shelf ①.
The glass shelf will lift up at the front. - Lift up the shelf and fold it back.
The glass shelf will stand upright. - Push the slider ② to the left.
The water container ③ will spring out of the recess. - Remove the water container.

- Separate the water container into its 2 pieces and clean them by hand or in the dishwasher.
- Reinsert the water container.
- Fold the glass shelf ① back down.
Removing the dividing plate and bottle rack
- Remove the glass shelves at the front and back of the dividing plate.

- Lift the bottle rack at the front and pull it out.
- After cleaning, slide the bottle rack all the way in and push it down.
- Place the glass shelves back on the dividing plate.
Removing the compartment lid
- Lift the lid at the front and pull it out.
- After cleaning, slide the compartment lid back in again.
Removing the drawers and glass shelves from the freezer section
Removing the drawer on telescopic runners
- Pull the drawer out as far as it will go.
- Holding the sides of the drawer at the back, lift it up and then forward and out.
Push the telescopic runners back in again to avoid damaging them.
Replacing the drawer
- Place the drawer on the fully retracted telescopic runners.
- Push the drawer into the freezer section until it clicks into position.
Removing the bottom drawer
- Pull the drawer forward and out.
Removing a glass shelf
- Pull the glass shelf and telescopic runners out.
Removing the telescopic runners from the glass shelf

- To remove the telescopic runners:
1. Push the catch upward.
2. Push the telescopic runner to the side.
3. Then pull the telescopic runner off to the rear. - Pull off the protective trim at the front and back of the shelf.
- After cleaning the shelf, reattach the protective trim.

- To attach the telescopic runners to the shelf:
1. Hook the telescopic runner on at the rear.
2. Then clip the catches into position at the front.
Replacing the carbon filters (optional accessories)
Replace the carbon filters in the holder around every 6 months.
The
symbol on the status display reminds you that the carbon filter needs to be changed.
Replacement KKF-RF carbon filters can be obtained from Miele Customer Service, from your dealer, or from Miele’s website.
- Pull the carbon filter holder upward to remove it from the adjustable shelf.

- Remove both carbon filters and place the new filters with the surrounding edge pointing downward in the holder.

- Place the holder in the middle of the protective strip at the back of the adjustable shelf so that it clicks into position.
- Touch the
symbol on the display to confirm that the filters have been replaced.
The “Replace carbon filter” reminder will go out on the display and the counter will be reset.
The
symbol will go out on the status display.
Cleaning the ice-cube tray
The ice-cube tray cannot be removed and therefore has to be moved into the cleaning position.

Clean the ice-cube tray:
- Before switching off the ice-cube maker for a long period of time.
- Regularly, to remove ice and water residues.
Selecting the cleaning position
for the ice-cube tray
Before selecting the cleaning position for the ice-cube tray, check the following:
– The ice-cube maker is switched on.
– The ice-cube drawer is empty and in position.
- Tap
. - Swipe left or right until
is shown in the middle. - Tap
.
It will take some time to move the ice cube tray into the cleaning position.
If the ice-cube drawer is full,
will appear on the display. The process will stop and and the ice-cube tray will return to its original position.
- Empty the ice-cube drawer and start the process again.
Once the ice-cube tray has stopped moving, the
symbol will appear on the display.
- To leave this Settings level, tap
. - Remove the ice-cube drawer.
- Clean the ice-cube tray and the ice cube drawer with lukewarm water and liquid dish soap. Wipe thoroughly with clean water and dry with a cloth.
- Insert the ice-cube drawer back into the appliance.
- After cleaning, tap
.
You will hear the ice-cube tray return to its original position.
Cleaning the door seal
Risk of damage as a result of incorrect cleaning.
If you treat the door seal with oil or grease, it can become porous.
Do not use oil or grease on the door seal.
- The door seals should be cleaned regularly with clean water, and then wiped dry with a soft cloth.
Cleaning the ventilation gaps
A build-up of dust will increase the energy consumption of the appliance.
- The ventilation gaps should be cleaned on a regular basis with a brush or vacuum cleaner (you could use a Miele Vacuum Cleaner dust brush, for example).
After cleaning
- Replace all shelves and accessories in the appliance.
- Switch the refrigeration appliance back on, if necessary.
- If you have activated the refrigerator section’s Cleaning mode
:
Tap
on the status display. - Tap
again.
When Cleaning mode is switched off, the
symbol will light up white.
The refrigerator section will start cooling again.
- Switch the SuperFreeze
- function on for a while so that the freezer section can cool down quickly.
- Switch on the Automatic SuperCool function
for a while so that the refrigerator section can cool down quickly. - Place food in the refrigerator section.
- Once the temperature in the freezer section is cold enough, you can place the food in the freezer drawers and return the drawers to the freezer.
- Switch off the SuperFreeze
function as soon as the temperature in the freezer section is a constant 0°F (-18°C) or colder. - Close the appliance doors.
Frequently Asked Questions
With the help of the following guide minor faults in the performance of the machine, some of which may result from incorrect operation, can be remedied without contacting the Service Department.
This guide may help you to find the reason for the fault, and how to correct it.
To prevent cold from escaping, open the appliance doors as little as possible until the fault has been corrected.
| Problem | Possible cause and solution |
| The refrigeration appliance is not getting cold and the interior lighting does not come on when the appliance door is opened. | The refrigeration appliance is not switched on and the ■ Turn the refrigeration appliance on. |
| The electrical plug is not properly plugged into the socket. ■ Insert the electrical plug into the socket. If the refrigeration appliance is switched off, | |
| The fuse has tripped. There could be a fault with the appliance, the household electrical wiring, or another appliance. ■ Contact a qualified electrician or Miele Customer Service. | |
| The compressor runs continuously. | Not a fault. To save energy, the compressor runs at a lower speed when less cooling is required. This increases the compressor run time. |
| The compressor is turn- ing on more frequently and for longer periods of time; the temperature in the refrigeration appliance is too low. | The ventilation gaps are obstructed or dusty. ■ Do not block the ventilation gaps. ■ Clean the ventilation gaps on a regular basis to re- move any dust. |
| The appliance doors have been opened too frequently or a large amount of fresh food has been put in all at once for storage or freezing. ■ Only open the appliance doors when necessary and for as short a time as possible. After a while, the temperature will return to normal by itself. | |
| The appliance doors are not closed properly. A thick layer of ice may have already formed in the freezer section. |
| Problem | Possible cause and solution |
| ■ Close the appliance doors. After a while, the temperature will return to normal by itself. If a thick layer of ice has already formed, this will affect cooling and increase energy consumption. ■ Defrost the appliance and clean it. | |
| The ambient temperature is too high. The higher the ambient temperature, the longer the compressor runs. ■ See the information in the section on “Installation – Installation location”. | |
| The appliance was not properly installed in the niche. ■ Install the refrigeration appliance in the niche as described in the installation instructions supplied with it. | |
| The temperature setting in the refrigeration appliance is too low. ■ Correct the temperature setting. | |
| A large amount of food was put in for freezing all at once. ■ See the information in the section on “Freezing and storing food”. | |
| The Automatic SuperCool ■ Switch off the Automatic SuperCool function | |
| The SuperFreeze function ■ Switch off the SuperFreeze function |
| Problem | Possible cause and solution |
| The compressor comes on less and less often and for shorter periods of time. The tempera- ture in the appliance rises. | This is not a fault. The temperature setting is too high. ■ Correct the temperature setting. ■ Check the temperature again after 24 hours. |
| The food begins to thaw. The ambient temperature is too low for this appliance. If the ambient temperature is too low, the compressor will run less frequently. This may cause the freezer to become too warm. ■ See the information in the section on “Installation – Installation location”. ■ Increase the ambient temperature. | |
| Ice or condensation has built up inside the refrigeration appliance. The appliance door may not close correctly. | The door seal has come out of its groove. ■ Check that the door seal is correctly positioned in the groove. |
| The door seal is damaged. ■ Check whether the door seal is damaged. | |
| The door seal is dam- aged or needs to be replaced. | No tools are required to change the door seal. ■ Change the door seal. A replacement is available from Technical Service. |
Other problems
| Problem | Possible cause and solution |
| The food is affected by the | There is too much condensate in the humidity-con- trolled compartment. ■ Wipe off any condensate with a cloth. ■ Place a rack or similar item in the compartment so that excess moisture can drain away. ■ Open the compartment lid by moving it to the low humidity |
| The floor of the refrigerator section is wet. | The drain hole is blocked. ■ Clean the condensate channel and the drain hole. |
| Food has frozen together or to the wall. | The food packaging was not dry when loaded in the freezer. ■ Use a blunt instrument (such as a spoon handle) to carefully pry them apart. |
| An alarm does not sound even though the appliance door has been open for a long time. | This is not a fault. The alarm has been switched off in Settings mode. If you want to switch the acoustic alarm back on again: ■ Tap ■ Swipe left or right until ■ Tap ■ Swipe left or right until the volume you want is shown in the middle. ■ Confirm the volume you want by tapping on the segment bar. When the alarms and audible signals are switched on, |
Messages in the display
| Message | Possible cause and solution |
| Demo mode has been activated. ■ Tap ■ Tap ■ Swipe left or right until ■ Tap After Demo mode | |
| The Cleaning mode function is still switched on. ■ Switch the Cleaning mode function off again by tapping on ■ Tap When Cleaning mode is switched off, the The refrigeration appliance will start cooling again. | |
| Nothing is visible on the display. The display is completely blank. | Sabbath mode ■ Tap on the black display. ■ Tap When Sabbath mode is switched off, the |
| The safety lock function has been activated. ■ Unlock the refrigeration appliance temporarily or switch the safety lock function off completely (see “Selecting additional settings – Deactivating the safety lock function |
| Message | Possible cause and solution |
| The also sounds. | The carbon-filter change indicator ■ Replace the carbon filter in the holder (see “Clean- ing and care – Replacing the carbon filters (optional accessories)”) and touch the The |
| The ice-cube drawer is not in the refrigeration appli- ance. An audible signal sounds after closing the ap- pliance door. ■ Tap The alarm message is confirmed and the audible signal stops. The current temperature will appear in the display again. ■ Replace the drawer correctly in the refrigeration appliance or switch the ice-cube maker off. | |
| The plumbed-water connection was not installed. ■ Make sure that the plumbed-water connection was installed correctly. | |
| The water-supply line is not open. ■ Open the shut-off valve. | |
| There is a kink in the hose. ■ Check the hose; if it is faulty, it must only be re- placed by an original Miele spare part. | |
| The water-connection pressure is too low. ■ Check that the water-connection pressure is be- tween 21.7 and 90 psi (1.5 and 6.2 bar). | |
| The drawer for the ice-cube maker is full. ■ Remove the drawer and empty it. |
| Message | Possible cause and solution |
| The door alarm has been activated. ■ Touch and hold The alarm tone will stop and the ■ Close the relevant appliance door. | |
| The temperature alarm has been activated; the tem- perature in the freezer section has risen higher or fallen lower than the temperature set. Possible reasons for this include: – The appliance door was opened too frequently. – A large quantity of fresh food has been placed in the freezer without switching on the Super- Freeze function. – A prolonged power failure has occurred. – The refrigeration appliance has a fault. ■ Tap The alarm message is confirmed: The warmest temperature recorded in the freezer section will flash for about 1 minute in the display. Then the temperature display will change to the cur- rent temperature in the freezer section. You can exit from the flashing temperature display early: ■ Touch the temperature display for the freezer sec- tion. The warmest temperature displayed will disappear. The display will then revert to showing the current temperature in the freezer section. ■ Rectify the cause of the alarm. ■ Depending on the temperature displayed, you should check whether food in the freezer has started to thaw or has defrosted. If it has, cook it before freezing it again. |
| Message | Possible cause and solution |
| Indication of an interruption to the power supply: the temperature in the freezer section over the last few days or hours has risen too high because of a power failure. ■ Tap The fault message is confirmed: The warmest temperature recorded in the freezer section will flash for about 1 minute on the tempera- ture display for the freezer section. Then the temperature display will change to the current temperature in the freezer section. You can exit from the flashing temperature display early: ■ Touch the temperature display for the freezer sec- tion. The warmest temperature displayed will disappear. The display will then revert to showing the current temperature in the freezer section. The appliance will go back to the last temperature setting when the power is restored. ■ Rectify the cause of the alarm. ■ Depending on the temperature displayed, you should check whether food in the freezer has started to thaw or has defrosted. If it has, cook it before freezing it again. |
| Message | Possible cause and solution |
| There is a fault. ■ Tap ■ Contact Miele Customer Service. To report the fault, you need the fault code and also the model identifier and serial number of your refrigeration appliance. You can access this information on the display. ■ To do this, touch The appliance data required will be shown on the display. Confirm with OK to exit the information display and the fault code will be shown again on the display. The refrigeration appliance can be switched off directly from the fault-message display. | |
| There is an appliance fault: this display always has priority over any settings which have just been selected. An appliance fault has priority over any current door and/or temperature alarms displayed. | |
| There is a fault with the ice-cube maker. ■ Tap ■ Contact Miele Customer Service. The ice-cube maker can also be switched off in Set- tings mode |
Problems with the humidifier
| Problem | Possible cause and solution |
| The humidifier is not supplying moisture to the food in the Perfect- Fresh Active zone. | The humidifier is not switched on. ■ Tap on the |
| The compartment lid has been pulled forwards to the “Low humidity ■ Push the compartment lid backward so that the “Increased humidity | |
| There is not enough water in the water container. ■ Fill the water container with fresh drinking water. | |
| The water container is not installed correctly. ■ Insert the water container, making sure it clicks into position correctly. | |
| There is dirt in front of the humidifier. ■ Clean the humidifier and water container. |
Problems with the ice cube maker
| Problem | Possible cause and solution |
| You cannot turn the ice cube maker on. | The appliance is not connected to the power supply or is not switched on. ■ Reconnect to the power supply and switch the ap- pliance back on. |
| The ice-cube maker is not producing any ice cubes. | The refrigeration appliance or ice-cube maker is not switched on. ■ Switch the refrigeration appliance and the ice- cube maker on. |
| The water intake is not open or has not been vented. ■ Open the water intake. ■ Check that the water intake has been vented. | |
| The ice-cube maker drawer is not closed properly. ■ Push the drawer all the way in. | |
| The appliance door has been opened too frequently, causing the compressor to turn on more often and the ice-cube maker has iced up. |
| Problem | Possible cause and solution |
| ■ Only open the appliance door when necessary and for as short a time as possible. | |
| The temperature in the freezer section is too high. ■ Select a lower temperature. | |
| The water-connection pressure is too low. ■ Check that the water-connection pressure is be- tween 21.7 psi and 90 psi (1.5 and 6.2 bar). Remember that it can take up to 24 hours for the production of ice cubes to commence. | |
| The ice cubes have an unpleasant odor or flavor. | The ice-cube maker is in constant use and needs to be cleaned regularly. ■ Rinse the ice-cube maker and water-intake pipe regularly. The first three batches of ice cubes should be thrown away and not consumed. |
| The ice-cube maker is rarely used. If you do not use it very often, ice cubes that are stored for a long period can absorb the taste and smell of other items. ■ Empty the ice-cube drawer if you are not going to use the ice-cube maker for a long period of time. ■ Rinse the ice-cube maker and water-intake pipe regularly. The first three batches of ice cubes should be thrown away and not consumed. | |
| There are unsealed food packages in the freezer sec- tion. Ice can absorb the taste and smell of unsealed food. ■ Store only sealed food in the freezer section. | |
| The ice-cube drawer is dirty. ■ If necessary, clean the ice-cube drawer. |
The interior lighting is not working
When removing the lighting cover, there is a risk of coming into contact with live electrical components. Do not remove the lighting cover. The LED lighting may only be repaired or re- placed by Customer Service. | |
This lighting corresponds to risk group RG 2. If the cover is defective, there is a risk of eye injury. If the lighting cover is defective, do not look from a close range directly into the lighting with optical instruments (e.g., magnifying glass or similar). | |
| Problem | Possible cause and solution |
| The interior lighting is not working. | The refrigeration appliance has not been turned on. ■ Turn the refrigeration appliance on. |
| Sabbath mode ■ Tap on the black display. ■ Tap lights up orange. ■ Tap on the When Sabbath mode is switched off, the | |
| To avoid overheating, the interior lighting switches it- self off automatically after approximately 15 minutes if the appliance door is left open. If this is not the cause, there is a fault. ■ Contact Miele Customer Service. | |
| Problem | Possible cause and solution |
| The LED lighting on one of the adjustable shelves is not working. | The shelf is not sitting correctly on the shelf supports. ■ Check that the shelf is positioned correctly on the shelf supports. The shelf has metal contacts at the front left corner which supply power to the LED lighting. ■ Push in the shelf until it clicks into position. |
| The LED lighting on the stainless steel trim is faulty. ■ Replace the stainless steel trim with LED lighting. A replacement is available from Miele Customer Service. | |
| The LED lighting is not working on any of the shelves. | Liquid has been spilt onto the LED lighting on one of the shelves or into the contact openings on the left- hand shelf supports. The safety shut-off mechanism has switched off the LED lighting on all the shelves. ■ Wipe the stainless steel trim with LED lighting with a damp cloth and dry it or leave it outside the refrigeration appliance to dry. ■ Ensure that the contacts are clean and dry before replacing the shelves with LED lighting. ■ Push in the shelf until it clicks into position. ■ Close the appliance door. When the door is opened again, the interior lighting will come on. |
| If this does not happen, there is a fault. ■ Contact Miele Customer Service. |
Causes of noises
| Normal noises | Cause |
| Brrrrr… | A humming noise is made by the motor (compressor). This noise can get louder for brief periods when the motor switches on. |
| Blub, blub… | A gurgling noise can be heard when the coolant circulates through the pipes. |
| Click… | Clicking sounds occur whenever the thermostat switches the motor on or off. |
| Sssrrrrr… | You can sometimes just hear the sound of the fan inside the appliance. |
| Crack… | A cracking sound can be heard when materials expand inside the appliance. |
| Please bear in mind that a certain amount of noise is unavoidable (from the compressor and the coolant circulating through the system). | |
| Noises | Cause and solution |
| Rattling, clinking | The appliance is uneven. Realign the appliance using a level by raising or lowering the adjustable feet underneath the refrigeration appliance. For niches of 55” (140 cm) and more: place the stabilizing rods supplied underneath the appliance base. |
| Drawers, baskets, or shelves are jiggling or are stuck. Check all removable parts and reinsert them correctly if required. | |
| Bottles or containers are touching each other. Separate them a little. |
Customer Service
Contact in the event of a fault
In the event of a fault which you cannot remedy yourself, please contact your Miele dealer or Miele Customer Service.
You can book a Miele Service Call online at www.miele.com/service.
Contact information for Miele Customer Service can be found at the end of this document.
Please quote the model identifier and serial number of your appliance (SN) when contacting Miele Customer Service. Both pieces of information can be found on the data plate.
You will find the data plate inside your appliance.
Displaying appliance information
This can be found in Settings mode under Information
(see “Selecting additional settings”) or on the data plate inside the refrigeration appliance.
Appliance warranty and product registration
You can register your product and/or view the manufacturer´s warranty terms and conditions for Miele appliances and vacuum cleaners at www.mieleusa.com.
Please have the model and serial number of your appliance available when contacting Customer Service.
U.S.A.
Miele, Inc.
National Headquarters
9 Independence Way
Princeton, NJ 08540
www.mieleusa.com
Customer Support
Phone: 888-99-MIELE (64353)
[email protected]
International Headquarters
Miele & Cie. KG
Carl-Miele-Straße 29
33332 Gütersloh
Germany
Canada
Importer
Miele Limited
Headquarters and Miele Centre
161 Four Valley Drive
Vaughan, ON L4K 4V8
www.miele.ca
Customer Care Centre
Phone: 1-800-565-6435 / 905-532-2272
[email protected]
KFN 7795 D
en – US/CA
M.-Nr. 11 930 740 / 00





































