MaCURCO GBC Gas Boiler Controller

General Safety Information
List of warnings
| WARNING |
| Each person using this equipment must read and understand the information in this User manual before use. Use of this equipment by untrained or unqualified persons or use that is not in accordance with this user manual, may adversely affect product performance. |
| GBC may not function effectively below 32 °F (0 °C) or above 125 °F (51 °C). Using the equipment outside of this temperature range may adversely affect product. |
| Immediately exit any environment that causes an alarm condition on the sensor. |
| Do not disassemble unit or attempt to repair or modify any component of this instrument. This instrument contains no user serviceable parts, and substitution of components may adversely affect product performance and void product warranty. |
| High voltage terminals (120/240 VAC) are located within this detector, presenting a hazard to service technicians. Only qualified technicians should open the detector case and service the internal circuits. Ensure power is de-energized from the detector relays prior to servicing the unit. Failure to do so may result in electrical shock. |
Use Instructions and Limitations
The Gas Boiler Controller used in conjunction with Macurco Gas detectors is used to shut down boilers in the presence of gas. Using a single detector or up to four gas detectors the controller can control up to eight dry contact outputs. These outputs are designed to shut down the boiler system upon the detection of carbon monoxide and/or combustible gases such as natural gas or propane. In the event of a gas alarm the GBC will engage the relay to turn off the necessary appliance. If the detectors are programmed in latching mode, the GBC will remain in alarm until the reset button has been pressed. If gas is still present above the Fan Relay Setting value, the GBC will go into alarm and latch again. The Gas Boiler Controller has a green power light, a red alarm light, a boiler reset button, and an audible buzzer.
| WARNING |
| Each person using this equipment must read and understand the information in this User manual before use. Use of this equipment by untrained or unqualified persons or use that is not in accordance with this user manual, may adversely affect product performance. |
Use For
The Gas Boiler Controller (GBC) provides automated safety boiler shut down when there is detection of carbon monoxide and/or combustible gasses detected. The GBC provides up to eight dry contact outputs that are designed to shut down boiler systems
| WARNING |
| High voltage terminals (120/240 VAC) are located within this detector, presenting a hazard to service technicians. Only qualified technicians should open the detector case and service the internal circuits. Ensure power is de-energized from the detector relays prior to servicing the unit. Failure to do so may result in electrical shock. |
Macurco GBC Manual
Models Options
| Model Number | Number of Relays | Input Voltage |
| GBC-2-24 | 2 Relays | 24 Volts AC or DC |
| GBC-4-24 | 4 Relays | 24 Volts AC or DC |
| GBC-6-24 | 6 Relays | 24 Volts AC or DC |
| GBC-8-24 | 8 Relays | 24 Volts AC or DC |
| GBC-2-120 | 2 Relays | 120 Volts AC |
| GBC-4-120 | 4 Relays | 120 Volts AC |
| GBC-6-120 | 6 Relays | 120 Volts AC |
| GBC-8-120 | 8 Relays | 120 Volts AC |
Features
- Shutdown up to 8 boilers individually via expansion relays
- Customize up to 4 Expansion Relay Boards
- 24 VDC driver for horn/strobe (250 mA)
- Audible Buzzer 90 dBA at 1ft
- Output power supports combinations of 1 to 4 detector(s) (350 mA)
Specifications
- Size: 8” x 6” x 3” (22.9 X 20.3 X 5 cm)
- Weight: 3lbs.
- Enclosure: Opaque Polycarbonate, NEMA 4X/6P (IP66/68)
- Operating Temperature: 32 °F to 125 °F (0 °C to 52 °C)
- Ambient humidity: 0% to 95% RH non-condensing
- Voltage/Current:
- GBC-X-24: 24 VAC or 24 VDC
- GBC-X-120: 120 VAC
- Relay Rating: SPDT, 120/240 VAC, 10 A Max (resistive)
- Status Indicators (LED): Power, Alarm
- Current at 24V
- Sensor Connections: (Max 4) 3W ea., 0.125 mA ea.
- Green & Red LED: 20 mA ea.
- Buzzer: 30 mA ea.
- 4 x Expansion Relay Modules (2 relays ea.) 40 mA ea.
- Horn / Strobe Output: 250 mA
Macurco GBC Manual
Installation Instructions
The following instructions are intended to serve as a guideline for the use of the Macurco Gas Boiler Controller. It is not to be considered all-inclusive, nor is it intended to replace the policy and procedures for each facility. If you have any doubts about the applicability of the equipment to your situation, consult local authorities having jurisdiction or call Technical Support at 844-325-3050.
Location & Mounting
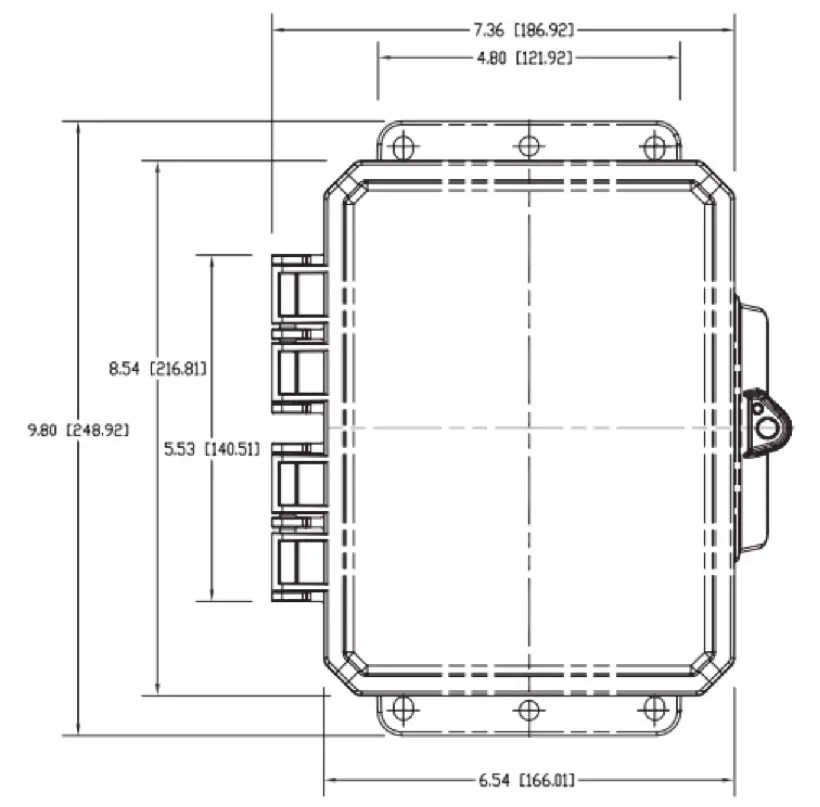
The Macurco GBC enclosure has 6 mounting holes and is shipped with mounting screws. Install the mounting screws on the four corners of the enclosure. The GBC should be mounted with sufficient space all round for access to conduit entry holes on the top and bottom side of the unit. Mount the unit in an appropriate space to see and hear the visual and audible notification and to easily access the reset button. The enclosure comes with one predrilled 3/4” conduit at the bottom center of enclosure (conduit fitting connector not included).
Note: If additional entry holes are required, use caution when drilling new holes in the enclosure. Protect the internal components to prevent damage while drilling.


Macurco GBC Manual
General Wiring Information All the connectors in GBC are spring tightening and will accept wire from 14 to 24 AWG
Connecting the wires to terminals
- Strip each wire back 1/4 in. (6.5 mm).

- Press down the white button of the connector.

- Fully insert the bare wire into the wire cavity of the connector.

- Release the white button.

- Ensure that the wire cannot be easily pulled out of the connector
Macurco GBC Manual
Terminal Connection
Refer to Figure 3-4 – below for location of different connectors in GBC.
Macurco GBC Manual
Warning: When making connections, make sure the power is off.
The GBC offers two power input versions. GBC-X-24: 24 VAC or VDC and GBC-X-120: 120 VAC. Always check the input power type marked on the top of the GBC Main PCBA prior to connecting power. See Figure 3-5 as an example.
There are three terminals for Power: Power, Return, Ground. See Figure 3-5. The power connections to the GBC should be size AWG 18 (minimum) for short runs. For longer runs follow recommended power wire gauge guidelines. Match the polarity for power connection, for the low voltage models there is a bridge rectifier, so it is not polarity sensitive.
| Wire Gauge | Maximum Run Length | |
| (feet) | (meters) | |
| 18 | 500 | 152 |
| 16 | 800 | 244 |
| 14 | 1250 | 381 |
Note: Only connect the GBC to Class 2 power supply.
Note: It is recommended to use an independent transformer for powering the unit(s) due to possible interferences from other devices on the same power supply.
Sensor Connections
There are two sensor connections on the GBC. These connections provide power to the respective units and monitor the normally close circuit that controls the GBC. The GBC can support up to four Macurco 6-Series gas detectors (350 mA max) in any combination. The sensors must be wired in series for the normally closed circuit to operate correctly. See Figure 3-6 and Figure 3-7.
Note: If not using Sensor Connection 2 with a gas detector a jumper wire or zero-ohm resistor is needed between alarm and 24 V. A zero-ohm resistor is factory populated in the Sensor Connection 2; a jumper wire can be used as in place of the zero-ohm resistor. See Figure 3-6.

3.2.2.3 Horn/Strobe Connection
The horn/strobe output provides 24 VDC power to a remote horn/strobe (250 mA Max). The horn/strobe will engage during the same time the onboard relays are set to engage based on the detector set point. See Figure 3-6 and Figure 3-7 3.2.2.4 Relay Connections
There are four expansion slots that accept the Macurco Expansion Relay boards. Each Expansion Relay board contains two SPDT, 120/240 VAC, 10 A Max (resistive) relays.
Each relay can be wired to be either normally open (NO) or normally closed (NC) depending on the application. There is no polarity for these connections. Each terminal can accommodate a wire size from 12 to 24 AWG. Each relay PCBS are labels NO1, COM1, and NC1 for Relay 1 and NO2, COM2, and NC2 for relay 2. See Figure 3-8.
To use relay 1: connect one control wire to the COM1 terminal. For normally open (NO) configuration, connect the other control wire to NO1 terminal. For normally closed (NC) configuration, connect the other control wire to the NC1 terminal. To use relay 2: connect one control wire to the COM2 terminal. For normally open (NO) configuration, connect the other control wire to NO2 terminal. For normally closed (NC) configuration, connect the other control wire to the NC2 terminal.
Note: All relays in normal mode are energized and illuminated LEDs on the boards indicate the relays are energized
To connect wires to the relay terminals (See section 3.2.1)
Operations
Power up
Apply power to the GBC. The Power LED will light up green to indicate the unit is operational.
If the unit is powering the detectors, each detector will cycle through its respected power up cycle. The Macurco Gas Detector (EX. CM-XX) cycles through an internal self-test cycle for the first minute that it is powered. The detector will execute the test cycle any time power is dropped and reapplied (i.e., power failure). During the self-test cycle, the detector will display the firmware version number, then count down from 60 to 0 (if the display setting is “On”) and finally go into normal operation.
The alarm relay will be activated for 10 seconds and the fan relay for 60 seconds during the power-up cycle. The indicator light (LED) will flash green during the self-test cycle.
If 4-20 mA setting is set to “EnH”, CM-xx will transmit information related to calibration period status via 4-20 mA output during power-up cycle. At the end of the 1-minute cycle, the unit will take its first sample of the air and the indicator light will turn solid green (refer to the specific detector manual for additional information).
GBC Configuration
GBC Buzzer and Relay Settings
There are two jumpers located on the circuit board to control the onboard buzzer and separating the relays via the sensor connections.
Buzzer Jumper (J7):
- Jumper position 1 & 2 – “Enable”. (Default)

- Jumper position 2 & 3 – “Disable”.
- The Buzzer Jumper controls the buzzer located locally on the front of the enclosure. See Figure
Jumper position 1 & 2 – “All”. (Default)
PCBA Rev 0.1: the “All” setting activates all populated relays 1-8 simultaneously based on activation from sensors connected to Sensor 1 terminal.
Note: When the jumper is set to “All” Sensor 2 terminal will NOT engage any of the relays. Only the local buzzer (if jumper is enabled) and external horn/strobe will be engaged during activation from the connected sensors. o Jumper position 2 & 3 – “Split”.
All populated relays 1 through 4 will activate simultaneously based on activation from sensors connected to Sensor 1 terminal. The local buzzer (if jumper is enabled) and external horn/strobe engages. All populated relays 5 through 8 will activate simultaneously based on activation from sensors connected to Sensor 2 terminal. The local buzzer (if jumper is enabled) and external horn/strobe engages.
Programming on detectors to work with the GBC The following settings must be updated for proper operation of the GBC
| Settings: | CM-6/CM-12 Default | Change To: | GD-6/GD-12 Default | Change To: |
| Power Up Test | On | Off | On | Off |
| Display | On | On | On | On |
| Buzzer | On | On | On | On |
| Alarm Relay Setting | 200 ppm | 200 ppm | 20% LEL | 20% LEL |
| Alarm Relay Configuration | Normally Open (NO) | Normally Closed (NC) | Normally Open (NO) | Normally Closed (NC) |
| Fan Relay Setting | 35 ppm | 50 ppm | 10% LEL | 10% LEL |
| Ran Relay Delay | 3 minutes | 0 minutes | 3 minutes | 0 minutes |
| Fan Relay Minimum Runtime | 0 minutes | 0 minutes | 0 minutes | 0 minutes |
| Fan Relay Latching | Off | On | Off | On |
| Trouble Fan Setting | Off | Off | Off | Off |
| 4-20mA | bAS (basic) | bAS (basic) | bAS (basic) | bAS (basic) |
| Calibration due | dIS (disabled) | dIS (disabled) | dIS (disabled) | dIS (disabled) |
Power-Up Test Setting – “PUt”
To select the Power Up Test Configuration, in normal mode, push the Next button to get to “Con” or the Configuration menu. Then push the Enter button to enter the Con menu. Then push the Next button to get to the second selection “PUt” or Power Up Test setting. Push Enter. If the testis “On” push Next to turn it “OFF” (flashing) then push Enter to confirm the change (solid) and push Enter again to return to “PUt” in the Con menu. Push Next until “End” is displayed then push Enter to get back to normal operation
Alarm Relay Configuration – “Arc”
To select the Alarm Relay Configuration, in normal mode, push the Next button to get to “Con” or the Configuration menu. Then push the Enter button to enter the Con menu. The sixth selection is the “Arc” or Alarm Relay Configuration. Push Next five times to get to “Arc” then Enter. If the relay is “nO” (normally open) push Next to turn it to “nC” (flashing) then push Enter to confirm the change (solid) and push Enter again to return to “Arc” in the Con menu. Push Next until “End” is displayed then push Enter to get back to normal operation
Fan Relay Setting – “FrS”
To select the Fan Relay setting, in normal mode, push the Next button to get to “Con” or the Configuration menu. Then push the Enter button to enter the Con menu. The seventh selection is the “FrS” or Fan Relay setting. Push Next six times to get to “FrS” then Enter.
- CM-XX: If the fan relay is “dIS” (disabled) push Next to change it to 15, 25, 35, 50 or 100 ppm (flashing) then push Enter to confirm the change (solid) and push Enter again to return to “FrS” in the Con menu.
- GD-XX: If the fan relay is “dIS” (disabled) press Next to change it to 3, 4, 5, 6, 7, 8, 9, 10, 11, 12, 13, 14, 15, 16, 17, 18, 19 or 20% LEL (flashing) then press Enter to confirm the change (solid) and press Enter again to return to “FrS” in the Con menu
4.3.4 Fan Relay Delay Setting – “Frd”
To select the Fan Relay Delay setting, in normal mode, push the Next button to get to “Con” or the Configuration menu. Then push the Enter button to enter the Con menu. The eighth selection is the “Frd” or Fan Relay Delay. Push Next seven times to get to “Frd” then Enter. If the delay is “0” (disabled) push Next to change it to 1, 3, 5, or 10 minutes (flashing) then push Enter to confirm the change (solid) and push Enter again to return to “Frd” in the Con menu. Push Next until “End” is displayed then push Enter to get back to normal operation. 4.3.5 Fan Relay Latching Setting – “FrL”
To select the Fan Relay Latching Option, in normal mode, push the Next button to get to “Con” or the Configuration menu. Then push the Enter button to enter the Con menu. The tenth selection is the “FrL” or Fan Relay Latching Option. Push Next nine times to get to “FrL” then Enter. If latching is “OFF” push Next to turn it to “ON” (flashing) then push Enter to confirm the change (solid) and push Enter again to return to “FrL” in the Con menu. Push Next until “End” is displayed then push Enter to get back to normal operation.
Appendix A – Table of Figures
Table 2-1 – Model Options …………………………………………………………………………………………………………………………….. 4
Figure 3-1 – Internal View ……………………………………………………………………………………………………………………………… 5
Figure 3-3 – Mounting dimensions ………………………………………………………………………………………………………………….. 7
Figure 3-4 – GBC Board Diagram …………………………………………………………………………………………………………………….. 9
Figure 3-5 – GBC Board Diagram …………………………………………………………………………………………………………………… 10
Figure 3-6 – Single Sensor Channel Wiring ……………………………………………………………………………………………………… 11
Figure 3-7 – Dual Sensor Channel Wiring ……………………………………………………………………………………………………….. 12
Figure 3-8 – Relay PCBA ……………………………………………………………………………………………………………………………….. 13
Figure 4-1 – Buzzer Jumper (J7) …………………………………………………………………………………………………………………….. 14
Figure 4-2 – Relay Jumper (J6) ………………………………………………………………………………………………………………………. 15
Figure 4-3 – Relay Designation ……………………………………………………………………………………………………………………… 16
Table 4-1 – Detector Settings Table ………………………………………………………………………………………………………………. 17
Macurco Gas Detection Product limited warranty
Macurco warrants the GBC gas detector will be free from defective materials and workmanship for a period of two (2) years from the date of manufacture (indicated on inside cover of the GBC), provided it is maintained and used in accordance with Macurco instructions and/or recommendations. If any component becomes defective during the warranty period, it will be replaced or repaired free of charge, if the unit is returned in accordance with the instructions below. This warranty does not apply to units that have been altered or had repair attempted, or that have been subjected to abuse, accidental or otherwise. The above warranty is in lieu of all other express warranties, obligations or liabilities. THE IMPLIED WARRANTIES OF MERCHANTABILITY AND FITNESS FOR PARTICULAR PURPOSE ARE LIMITED TO A PERIOD OF TWO (2) YEARS FROM THE PURCHASE DATE. Macurco shall not be liable for any incidental or consequential damages for breach of this or any other warranty, express or implied, arising out of or related to the use of said gas detector. The manufacturer or its agent’s liability shall be limited to replacement or repair as set forth above. Buyer’s sole and exclusive remedies are the return of the goods and repayment of the price, or repair and replacement of non-conforming goods or parts.
Modbus is a trademark or registered trademark of Schneider Automation Inc.
Macurco Gas Detection 3601 N. St. Paul Avenue Sioux Falls, SD 57104
Technical Support Contact Information
Phone: 1-844-325-3050 Fax: 1-605-951-9616
Email: [email protected] Website: www.macurco.com/support/
General Contact Information Phone : 1-877-367-7891 Fax : 1-605-951-9616
Email: [email protected] Website: www.macurco.com


























