
MONOGRAM 30″ BUILT-IN SINGLE OVEN
ZTSX1DSSNSS 
![]()
ZTSX1DSSNSS 30 Inch Built-In Single Oven
THE MONOGRAM MINIMALIST COLLECTION
Streamlined design and precisely machined metals create a contemporary yet functional aesthetic
LCD CONTROLS
Allow you to adjust oven settings with little effort
WIFI CONNECT
Perfectly in sync with a busy lifestyle, Alexa or Google Home can be used to control an array of oven functions from both inside and outside the home
VOICE CONTROL
Sleek handle-less design now benefits from the convenience of voice control. Once programmed, you can use your voice to open the oven door, preheat the oven and more, all without raising a finger
NO-PREHEAT AIR FRY
A must-have for health-conscious cooks, the No-Preheat Air Fry mode crisps food to crunchy perfection, without using oils or butter
PRECISION COOKING MODES
Master new recipes and perfectly execute favorite dishes using this ultra-smart system that automatically tracks cooking progress, modifies temperatures and adjusts cook times
SCAN-TO-COOK
Innovative and time saving, scan-to-cook technology ensures that packaged foods are always prepared correctly. A simple scan of the barcode with a smartphone delivers consistently, delicious results For questions about your appliance, please call 1-800-626-2000.
TWIN CONVECTION WITH DIRECT AIR
Achieve beautifully cooked and delicious meals every time with this expertly designed, third heating element and fan combination
5.0 CUBIC FOOT CAPACITY
Easily accommodates even the largest meals
EXCLUSIVE SELF-CLEAN, (2 FULL-EXTENSION, 1 REGULAR) OVEN RACKS
Glide in and out smoothly on stainless steel ball bearings, and are designed to be left in the oven during the self-clean cycle
TEN-PASS BAKE ELEMENT
Covers more surface area for more even baking results
EIGHT-PASS BROIL ELEMENT
Provides complete coverage and even browning, even for large dishes
SELF-CLEAN WITH STEAM CLEAN OPTION
Gives you flexible options for thorough oven cleaning
PUSH-TO-OPEN DOOR
Handle-free, push-to-open door adds a touch of elegant simplicity and stylish convenience to your wall oven.
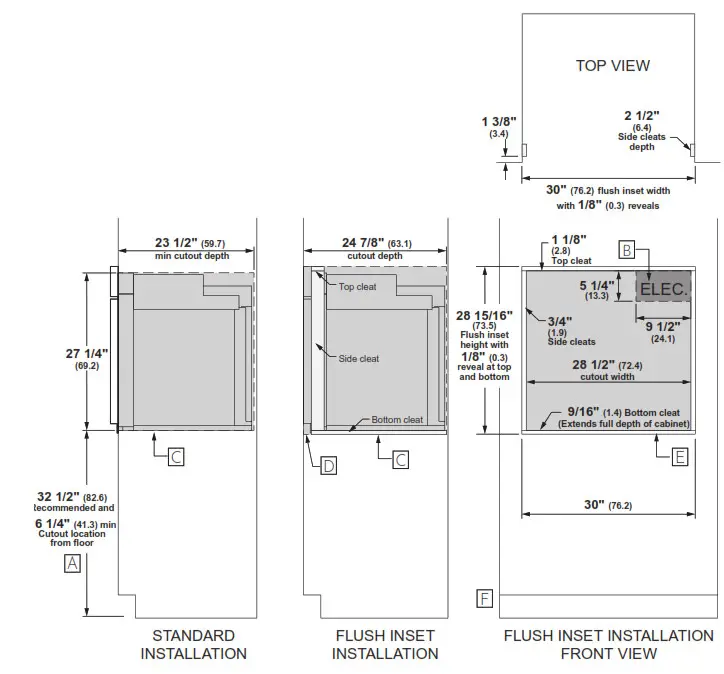
SPECIFICATIONS
| Overall Width | 29 3/4″ (75.6 cm) |
| Overall Height | 28 11/16″ (72.8 cm) |
| Overall Depth | 24 11/16″ (62.7cm) |
| Oven Door Clearance | 20 9/16″ (52.2 cm) |
| Overall Oven Interior Capacity | 5.0 cu. ft. (141.6 liters) |
| Oven Interior Dimensions (W x H x D) | 25″ x 17 3/8″ x 20 1/4″ (63.5 x 44.1 x 51.4 cm) |
| Minimum Cabinet Width* | 30″ (76.2 cm) |
| Minimum Cabinet Depth* | 24″ (61.0 cm) |
| Minimum Base Support | 220 lbs. (99 kg) |
| Cutout Width* | 28 1/2″ (72.4 cm) Min 28 5/8″ (72.7 cm) Max |
| Cutout Height* | 27 1/4″ (69.2 cm) Min 27 5/16″ (69.4 cm) Max |
| Cutout Depth* | 23 1/2″ (59.7 cm) Min |
| Volts/Hertz/Amps | 240/208 V AC, 60 Hz, 20A |
| Conduit Length | 48″ (72″ available special order: WB18T10398) |
| Electrical Rating | 3.4 kW at 208V 4.5 kW at 240V |
| Shipping Weight | 184 lbs. (84 kg) |
* Additional space will be needed for flush installation.
ATTENTION ELECTRICIAN:
A 240/208V, 60Hz, 20 Amp circuit is required. An individual properly grounded branch circuit or circuit breaker is required. Hardware junction box is required for built-in product.
OVERALL DIMENSIONS

Dimensions in parentheses are in centimeters unless otherwise noted.
Actual product dimensions may vary due to manufacturing tolerances.
WALL INSTALLATION

Allow 1/8″ (0.3) clearances from side edges of oven door.
HELPFUL TIPS
A Based on a user height of 5′ 6″ to 5′ 10″ Min. cutout 16.25
B Junction box location (May also be located in adjacent cabinet.)
C Platform must be able to support 220 lbs (99 kg)
D Cabinet surfaces must be an appearance finished surface for flush installation.
E Cleats may be visible and should be finished to match cabinetry.
F If using optional flush install vent trim accessory ZX30VT1, please adjust cutout height to 28-5/8” and bottom cleat height to 1/4″.
INSTALLATION WITH ADVANTIUM AND WARMING DRAWER
SIDE BY SIDE INSTALLATION
HELPFUL TIPS
A Dimensions per Advantium or Microwave Oven requirements
B Dimension per Warming Drawer requirements
For more details, refer to the installation instructions for this product on Monogram.com.
Dimensions in parentheses are in centimeters unless otherwise noted.
For questions about your appliance, please call 1-800-626-2000.


















